Скачать Серия 4.407-262 Прокладка троллейного шинопровода ШТА 75 на 250 А (рабочие чертежи)Дата актуализации: 01.01.2021
|
| Обозначение: | Серия 4.407-262 |
| Обозначение англ: | Series 4.407-262 |
| Статус: | не действует |
| Название рус.: | Прокладка троллейного шинопровода ШТА 75 на 250 А (рабочие чертежи) |
| Дата добавления в базу: | 01.09.2013 |
| Дата актуализации: | 01.01.2021 |
| Дата введения: | 01.11.1979 |
| Дата окончания срока действия: | 01.04.1989 |
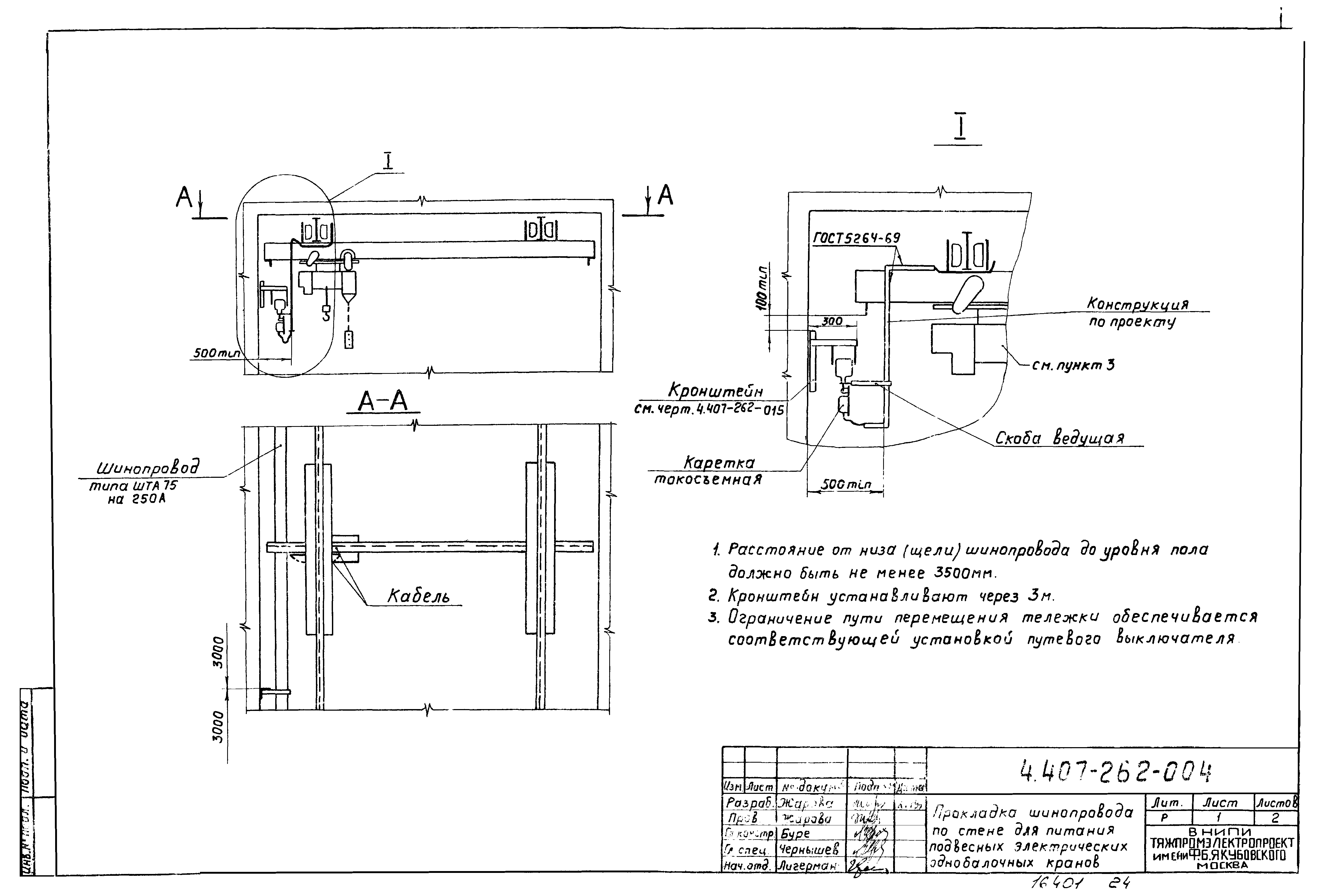
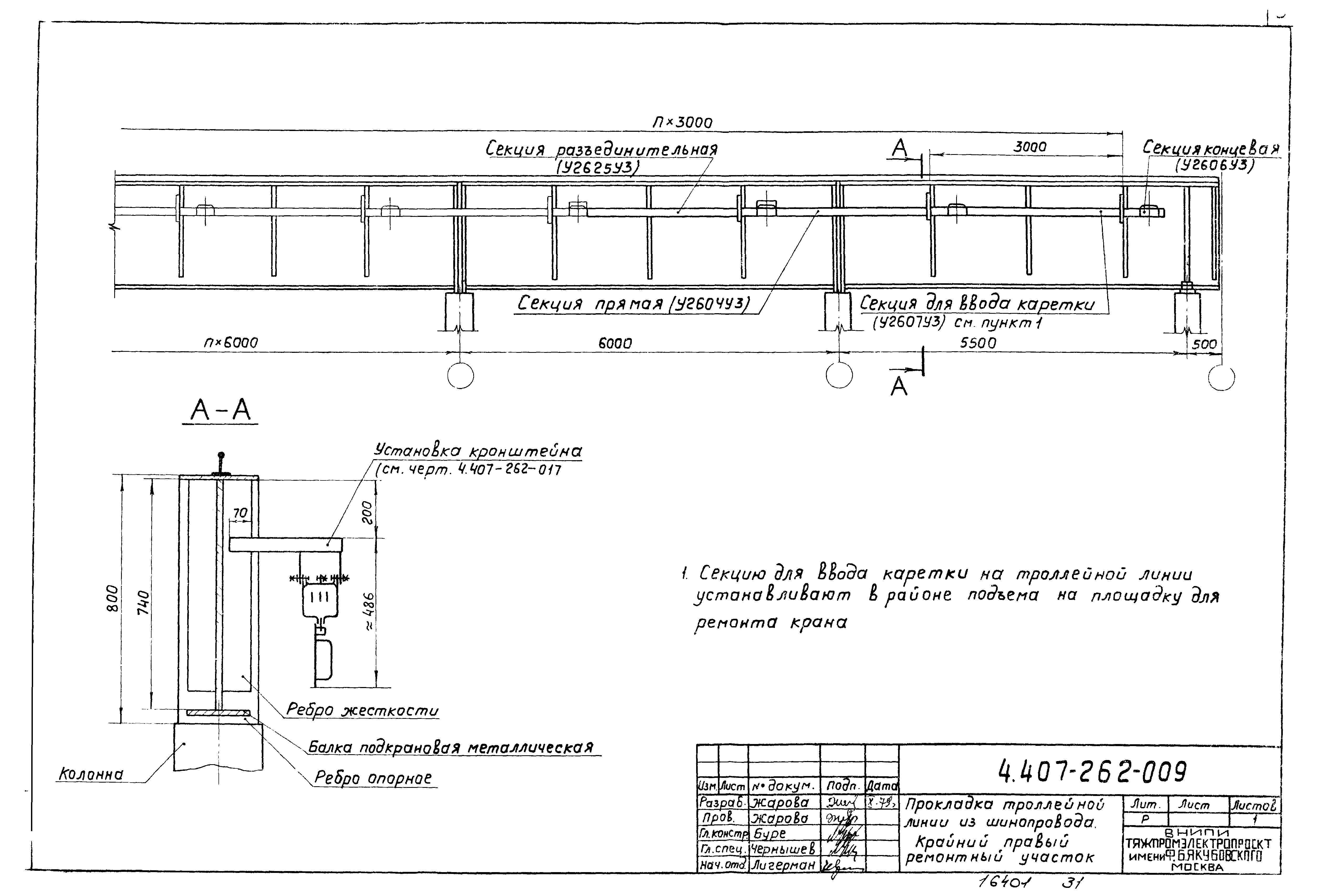
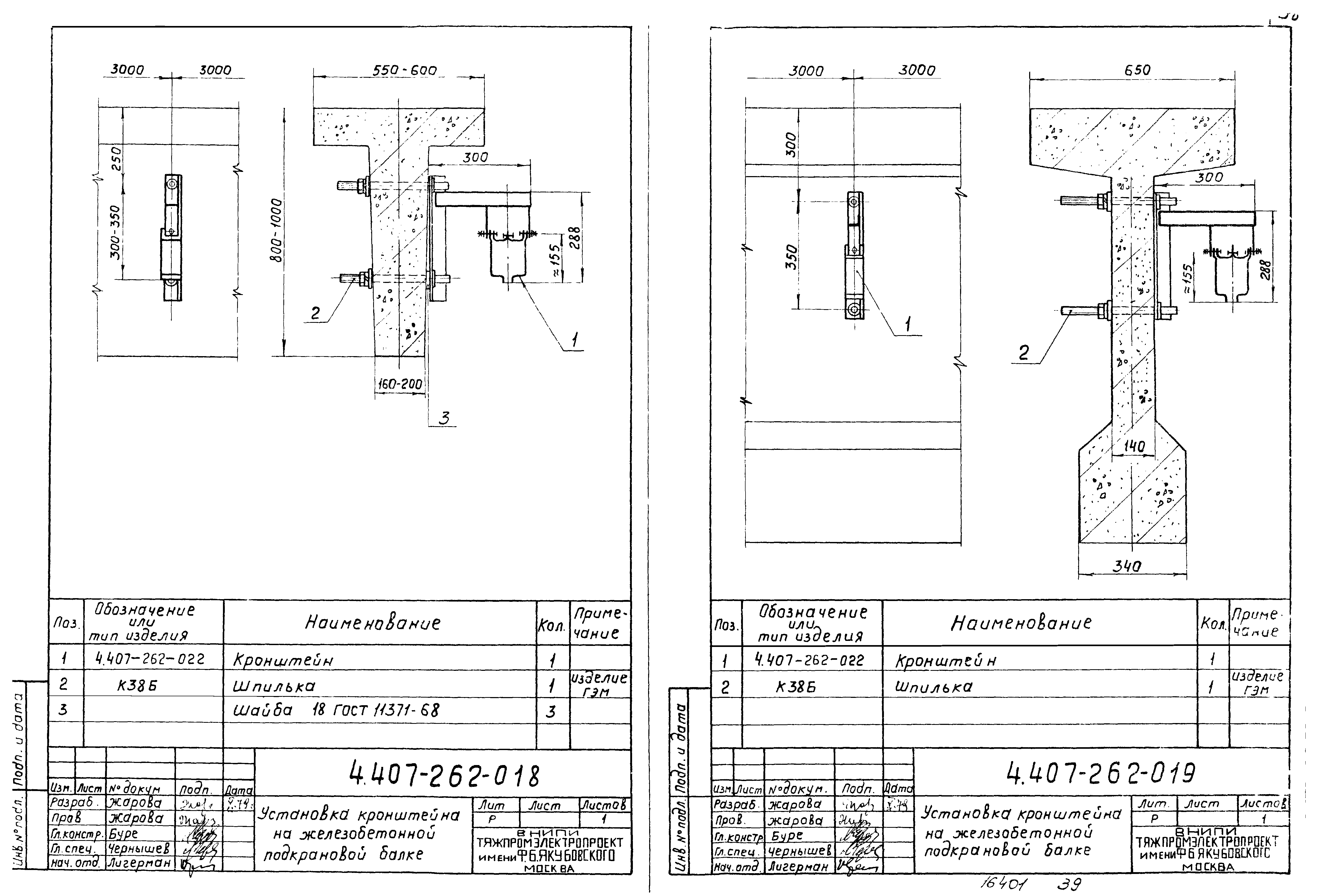
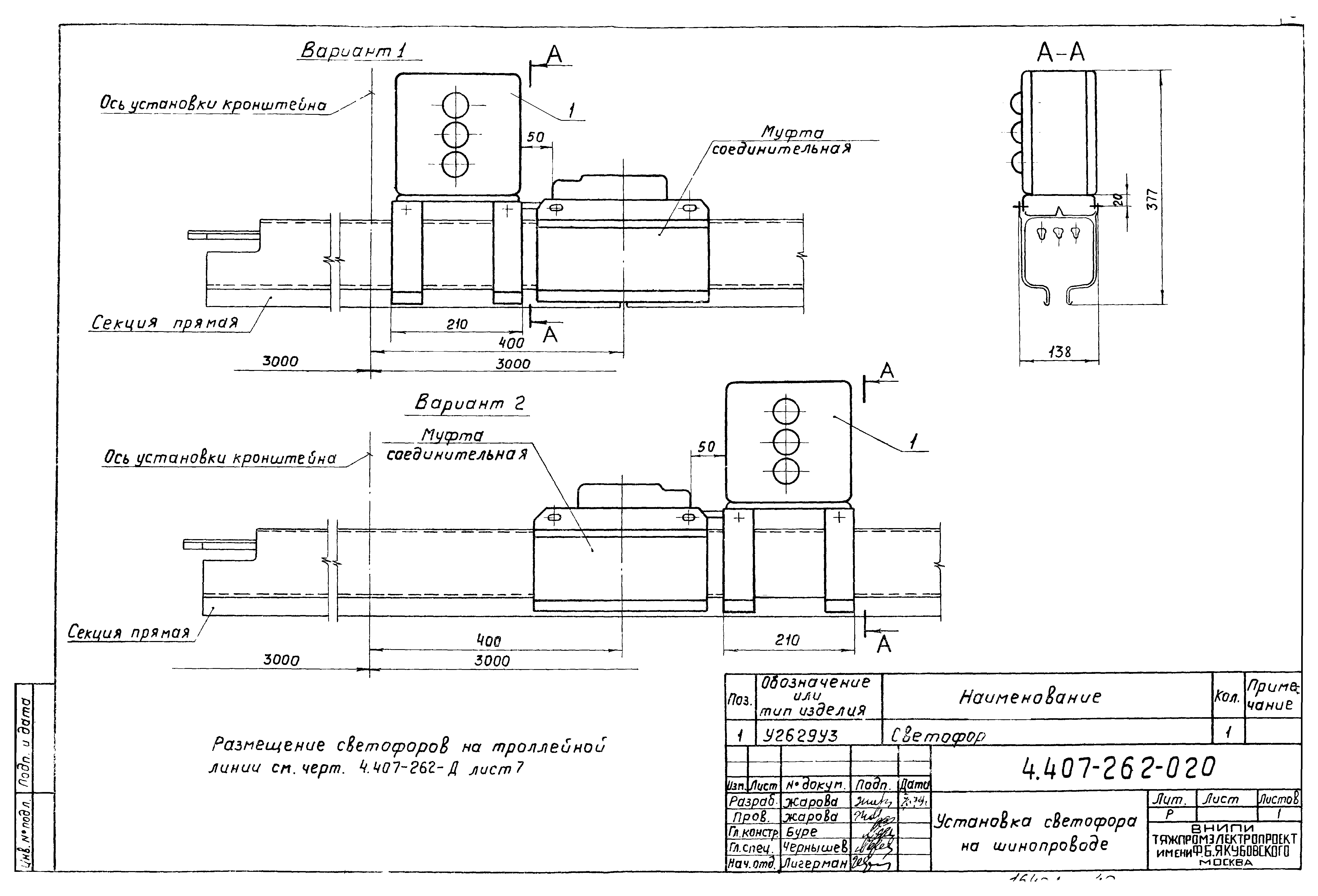
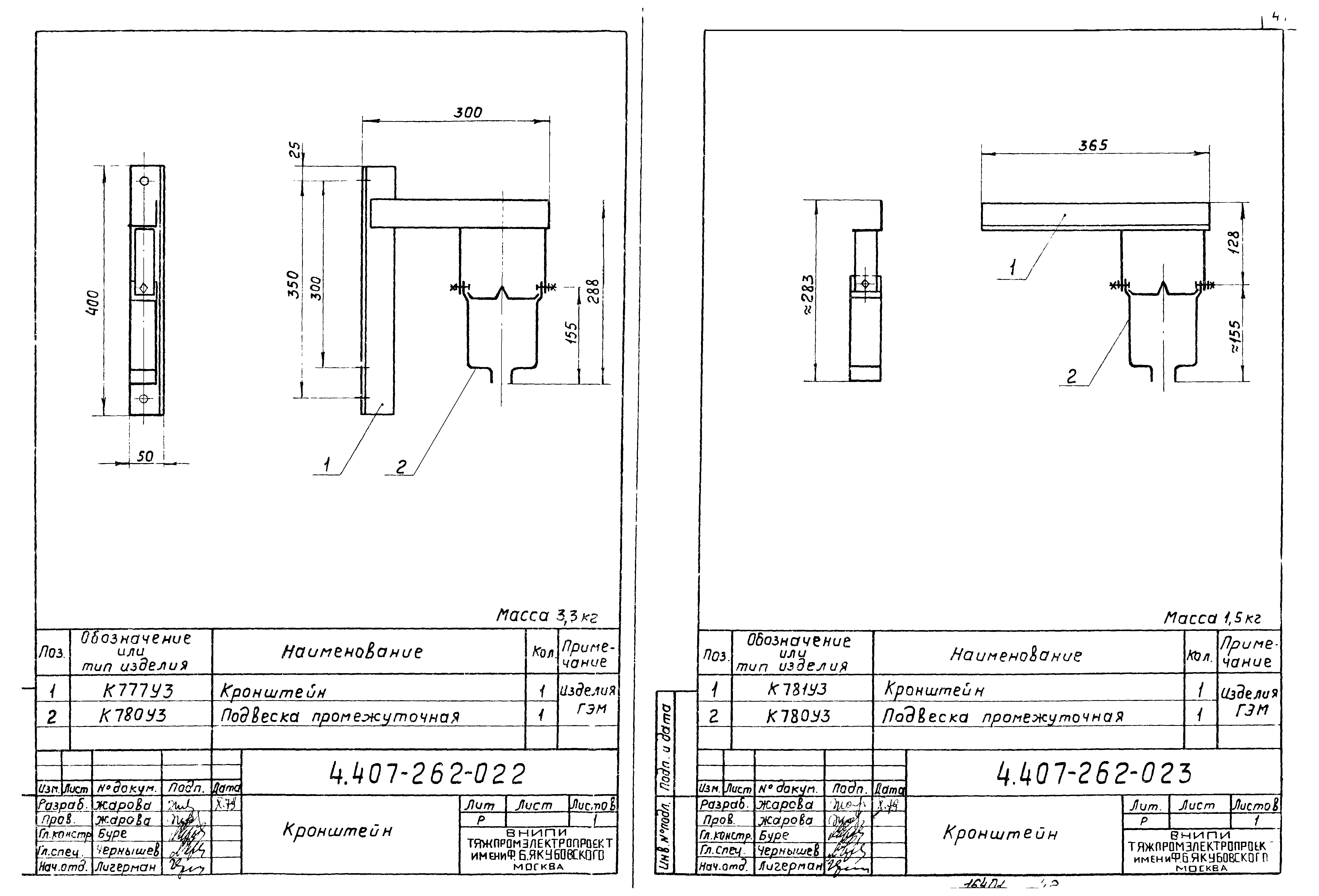
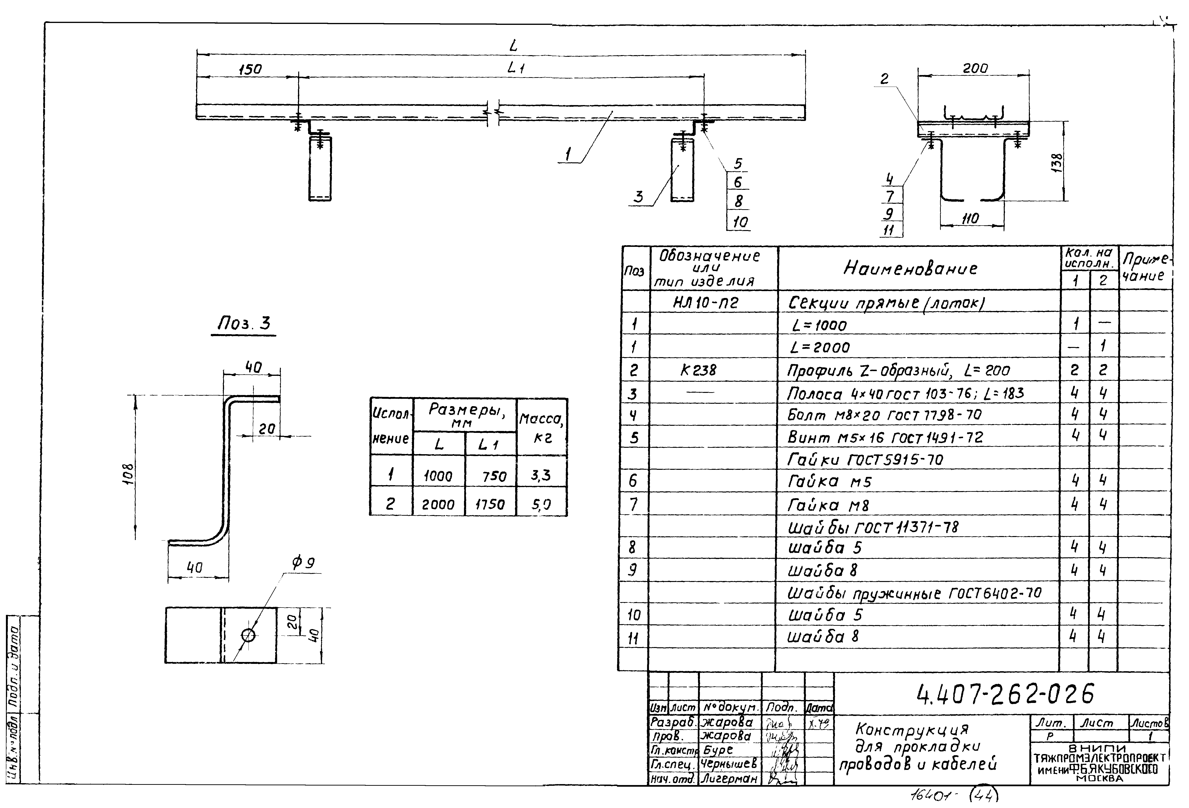
| Оглавление: | 4.407-262-Д Общие данные Примеры оформления рабочих чертежей 4.407-262-001 План прокладки троллейного шинопровода для крана 4.407-262-002 План прокладки троллейного шинопровода для электрической тали Узлы прокладки троллейного шинопровода 4.407-262-003 Прокладка шинопровода вдоль двутавровой балки для питания подвесных одноблочных электрических кранов 4.407-262-004 Прокладка шинопровода по стене для питания подвесных электрических однобалочных кранов 4.407-262-005 Прокладка шинопровода вдоль двутавровой балки (угловая секция) 4.407-262-006 Прокладка троллейной линии без ремонтных участков 4.407-262-007 Прокладка троллейной линии из шинопровода. Крайний левый ремонтный участок 4.407-262-008 Прокладка троллейной линии из шинопровода. Средний ремонтный участок 4.407-262-009 Прокладка троллейной линии из шинопровода. Крайний правый ремонтный участок 4.407-262-010 Прокладка шинопровода вдоль металлической подкрановой балки 4.407-262-011 Подвод питания к шинопроводу 4.407-262-012 Прокладка шинопровода в канале (к напольным тележкам) Установочные чертежи 4.407-262-013 Установка кронштейна на двутавровой балке 4.407-262-014 Установка кронштейна на стене с помощью пристрелки 4.407-262-015 Установка кронштейна на стене с помощью закладных элементов 4.407-262-016 Установка кронштейна на кирпичной стене с помощью закладных элементов 4.407-262-017 Установка кронштейна на металлической подкрановой балке 4.407-262-018 Установка кронштейна на железобетонной подкрановой балке 4.407-262-019 Установка кронштейна на железобетонной подкрановой балке 4.407-262-020 Установка светофора на шинопроводе Сборочные чертежи и детали 4.407-262-021 Кронштейн 4.407-262-022 Кронштейн 4.407-262-023 Кронштейн 4.407-262-024 Кронштейн 4.407-262-025 Кронштейн 4.407-262-026 Конструкция для прокладки проводов и кабелей |
| Разработан: | Главэлектромонтаж Минмонтажспецстроя СССР ВНИПИ Тяжпромэлектропроект им. Ф.Б. Якубовского |
| Утверждён: | 24.10.1979 ВНИПИ Тяжпромэлектропроект им. Ф.Б. Якубовского (F.B.Yakubovskiy Tyazhpromelektroproject VNIPI 200) |












































