Скачать Серия 4.904-17 Клапаны перекидные утепленные для вентиляционных шахт. Рабочие чертежиДата актуализации: 01.01.2021
|
| Обозначение: | Серия 4.904-17 |
| Обозначение англ: | Series 4.904-17 |
| Статус: | не действует |
| Название рус.: | Клапаны перекидные утепленные для вентиляционных шахт. Рабочие чертежи |
| Дата добавления в базу: | 01.09.2013 |
| Дата актуализации: | 01.01.2021 |
| Дата окончания срока действия: | 01.12.1991 |
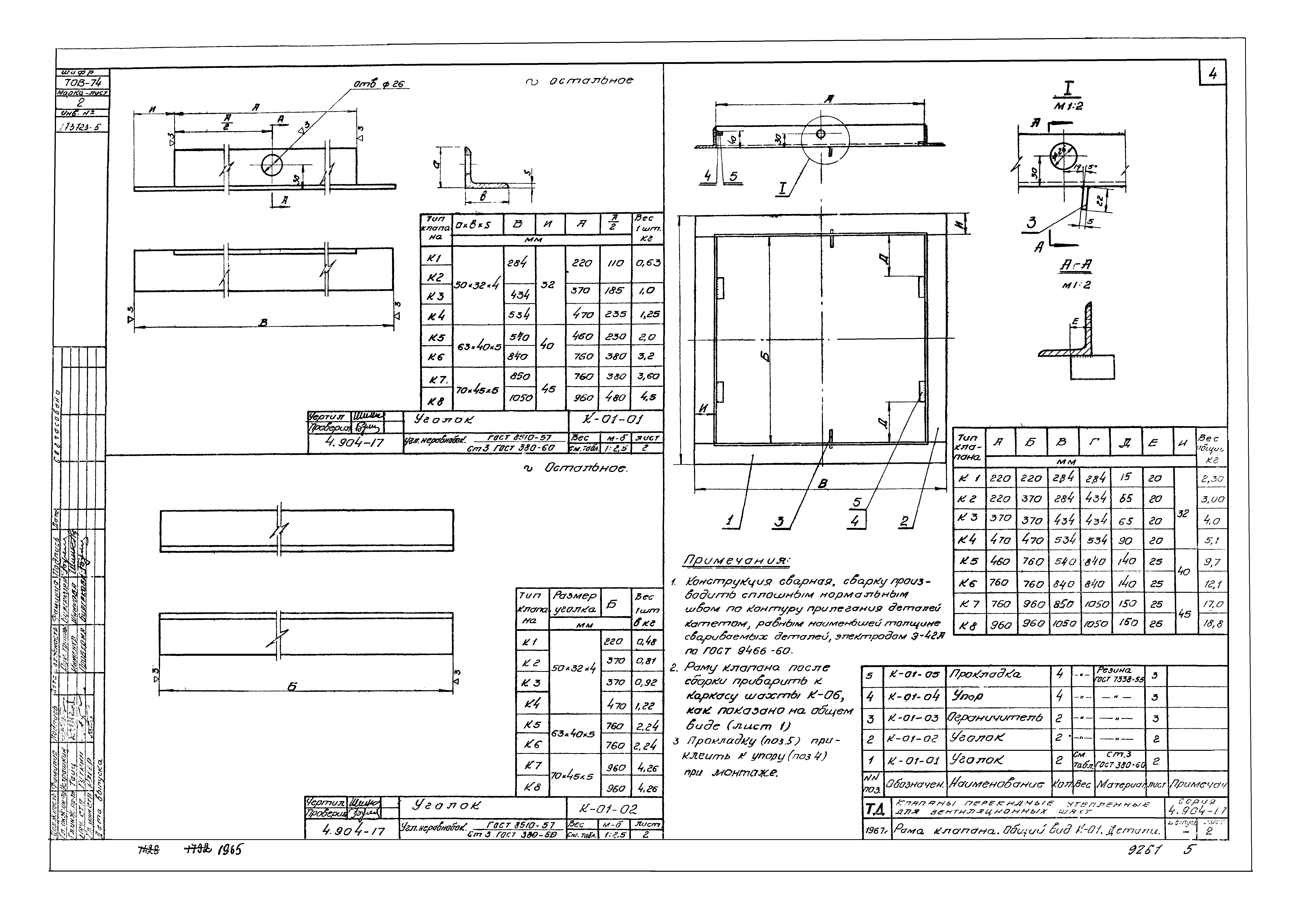
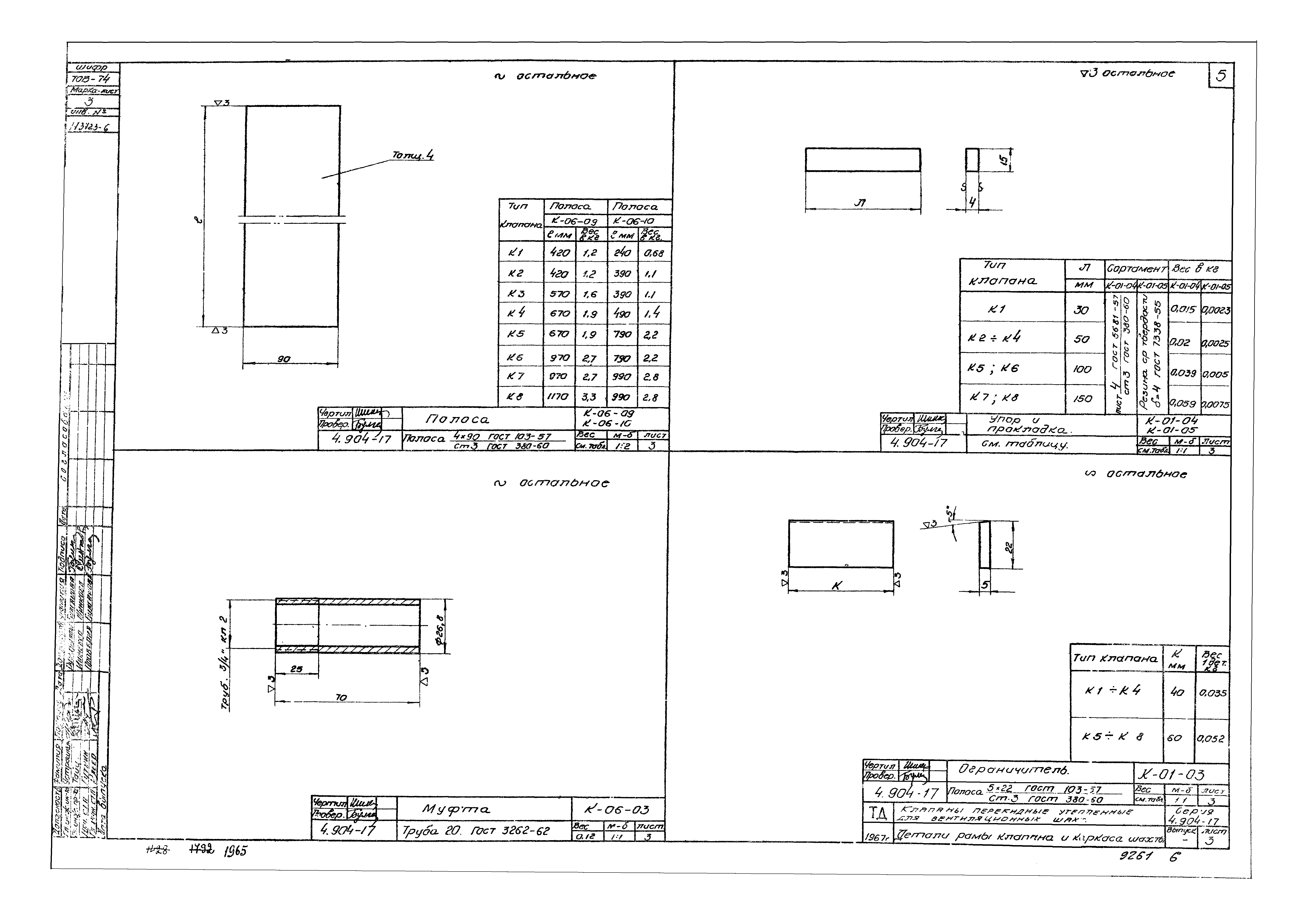
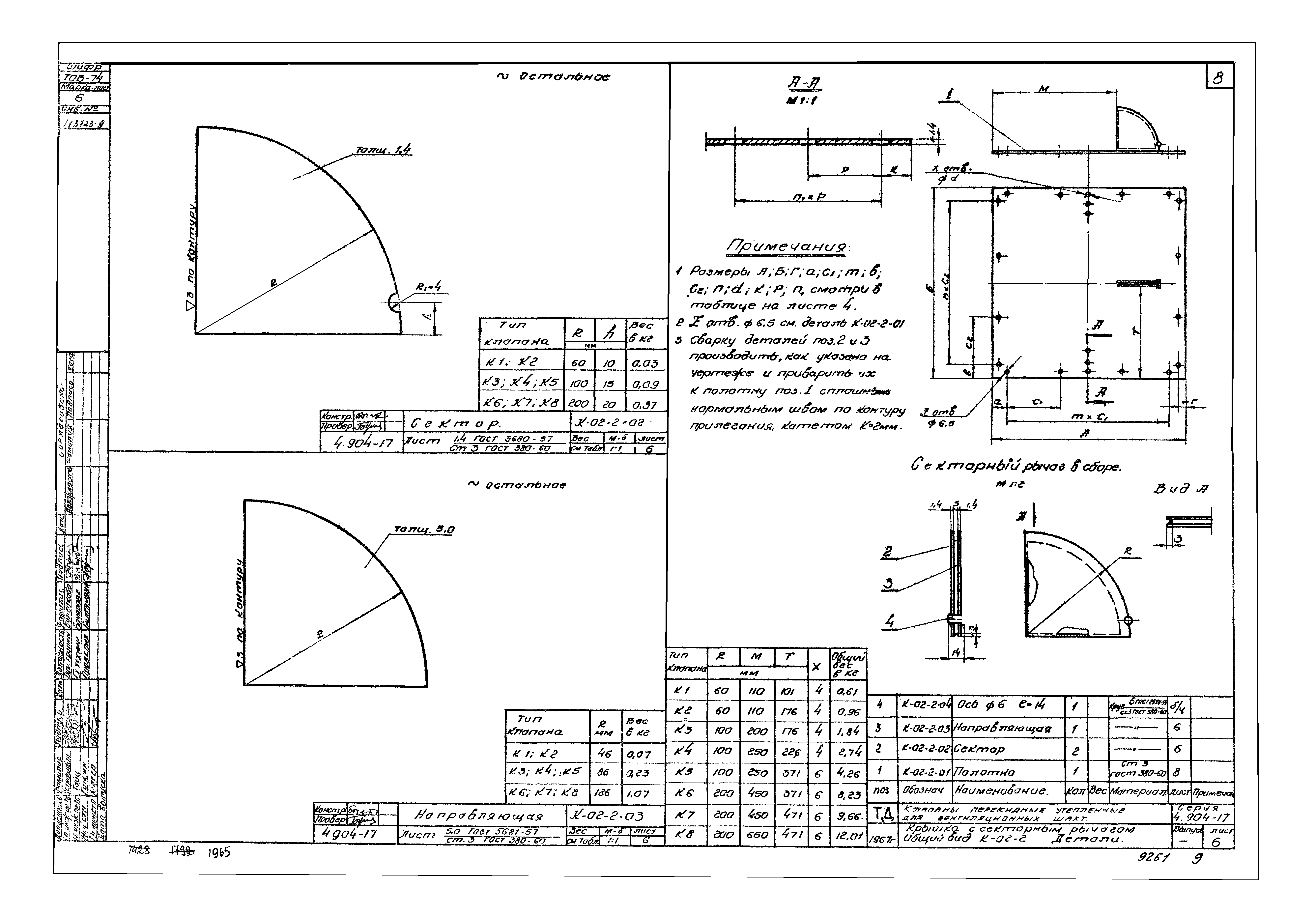
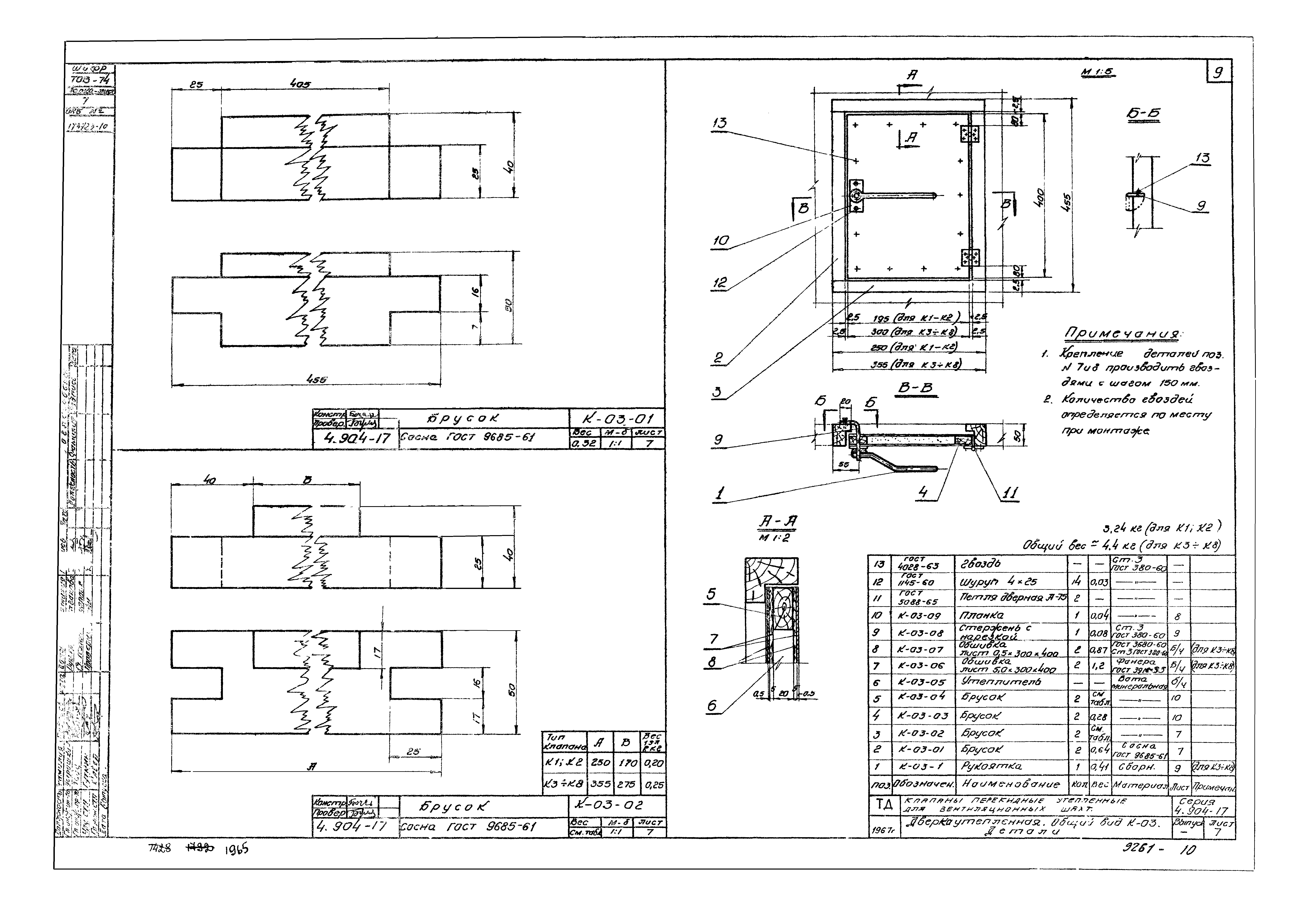
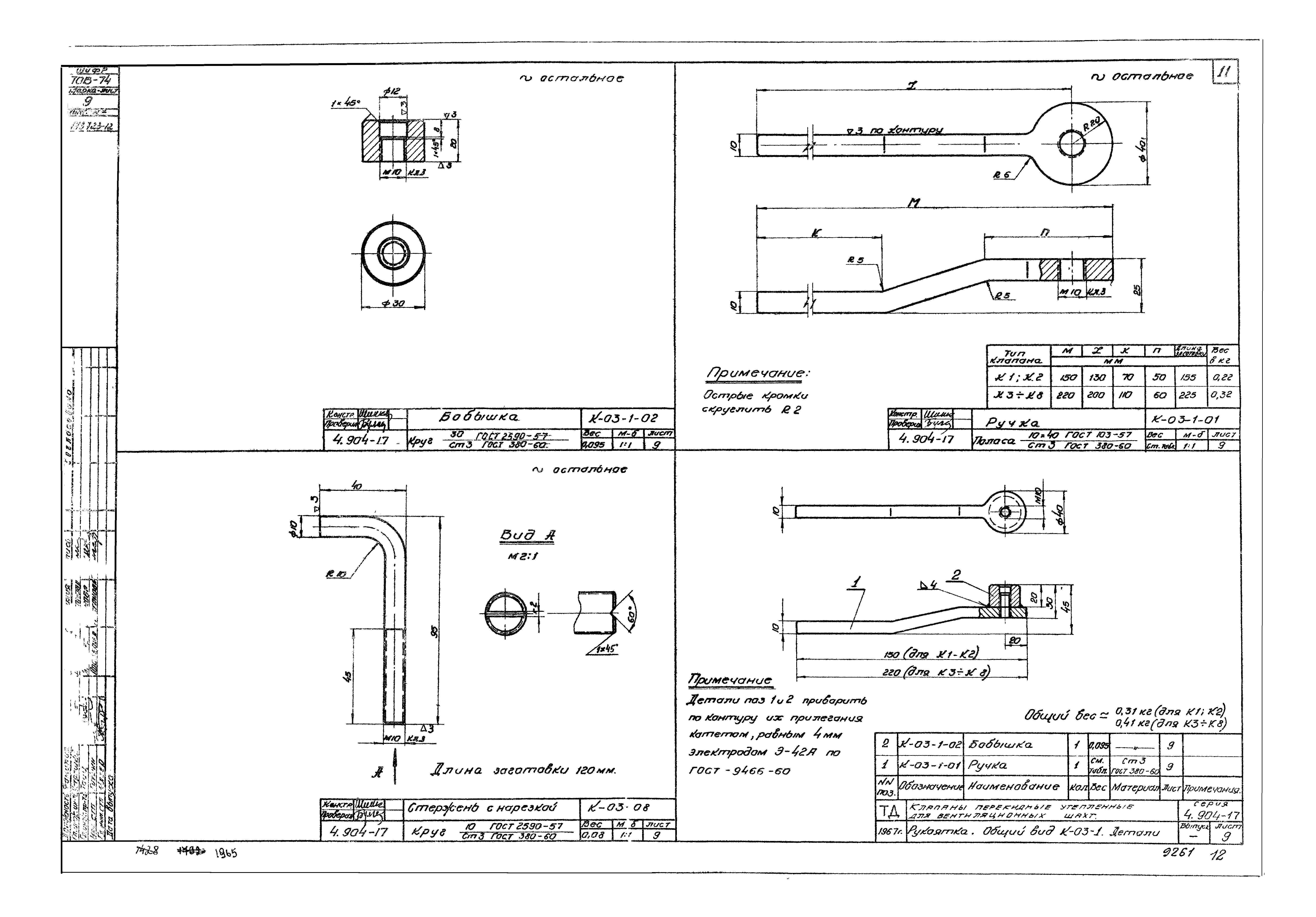
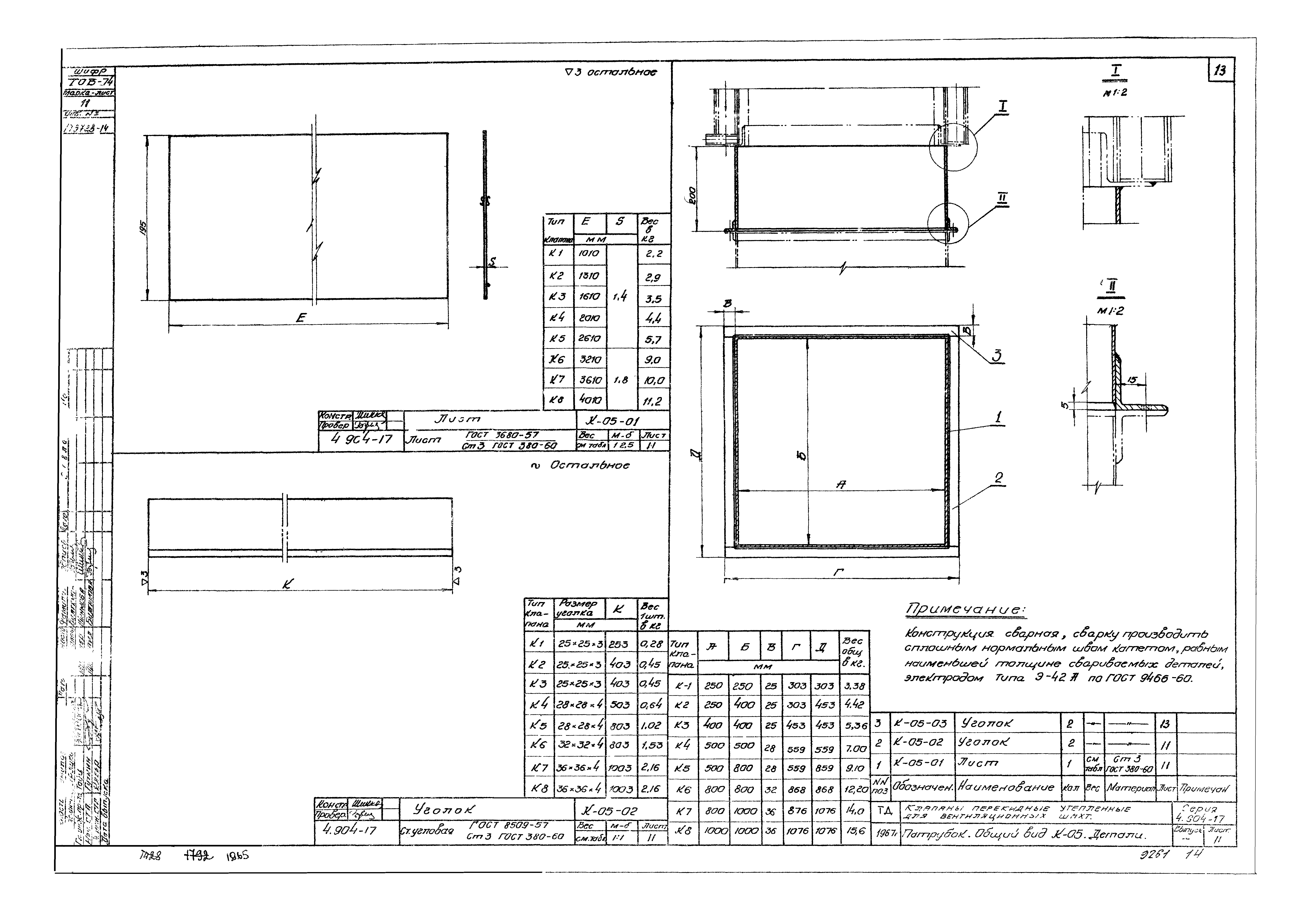
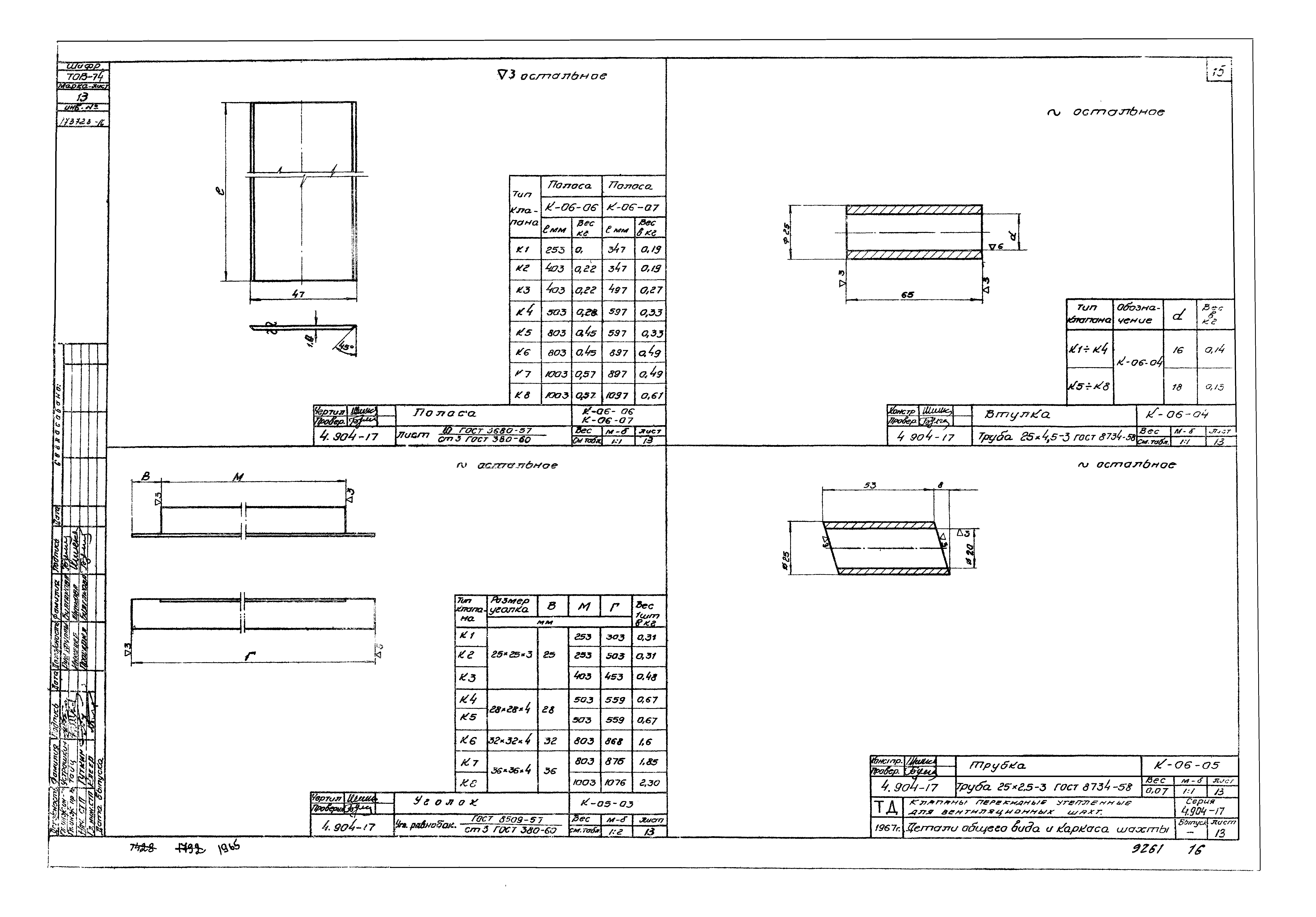
| Оглавление: | Пояснительная записка Чертежи Клапаны типа К1-К8. Общий вид и таблица размеров Рама клапана. Общий вид К-01. Детали Детали рамы клапана и каркаса шахты Клапан. Общий вид К-02 Каркас клапана. Общий вид К-02-1. Детали Крышка с секторным рычагом. Общий вид К-02-2. Детали Дверка утепленная. Общий вид К-03. Детали Детали крышки и каркаса клапана Рукоятка. Общий вид К-03-1. Детали Детали двери и общего вида Патрубок. Общий вид К-05. Детали Каркас шахты. Общий вид К-06 Детали общего вида и каркаса шахты Детали каркаса шахты |
| Разработан: | ЦНИИпромзданий Госхимпроект |
| Утверждён: | 24.05.1967 Госстрой СССР (Государственный комитет Совета Министров СССР по делам строительства) (USSR Gosstroy 157) |

















