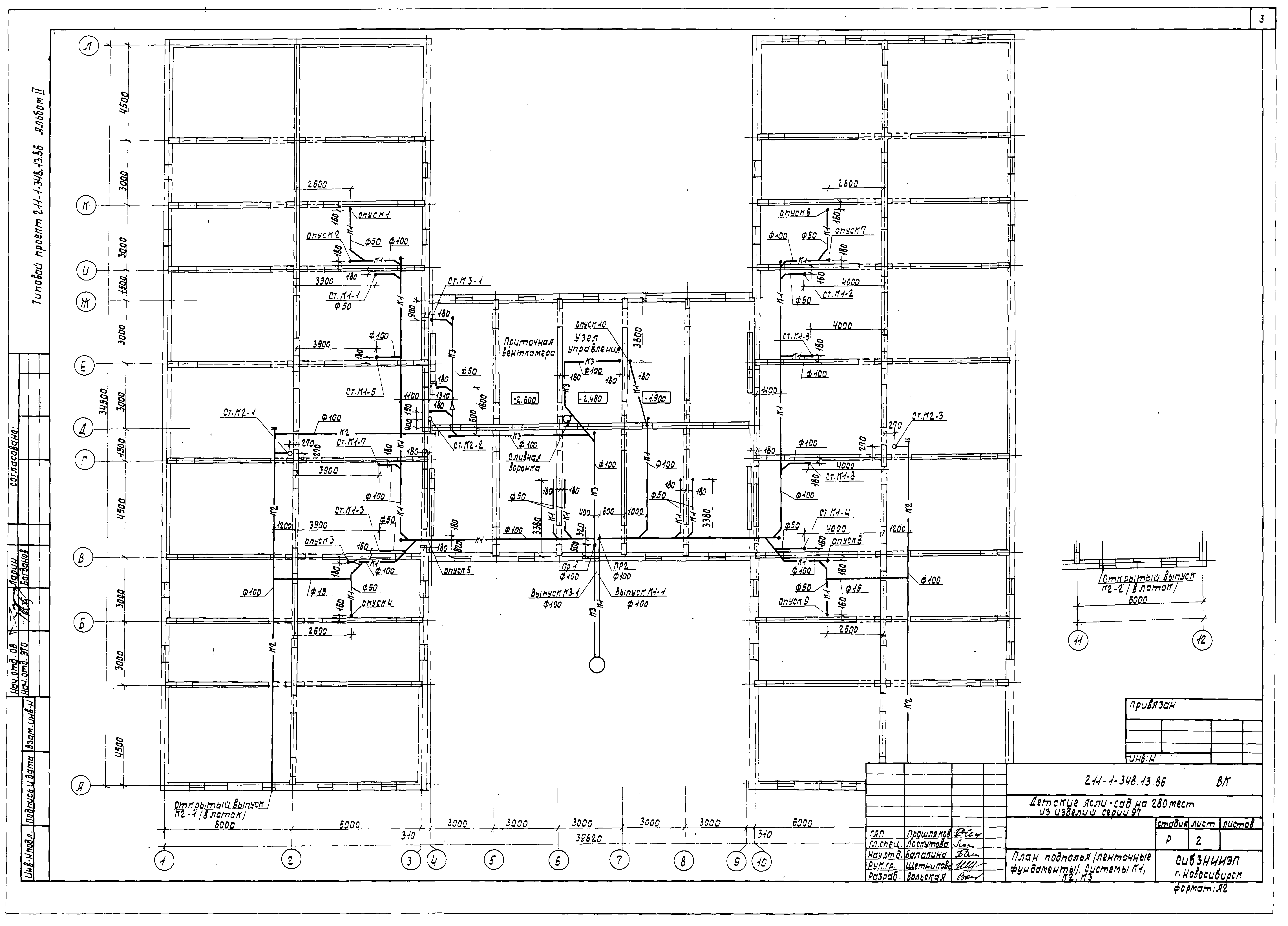
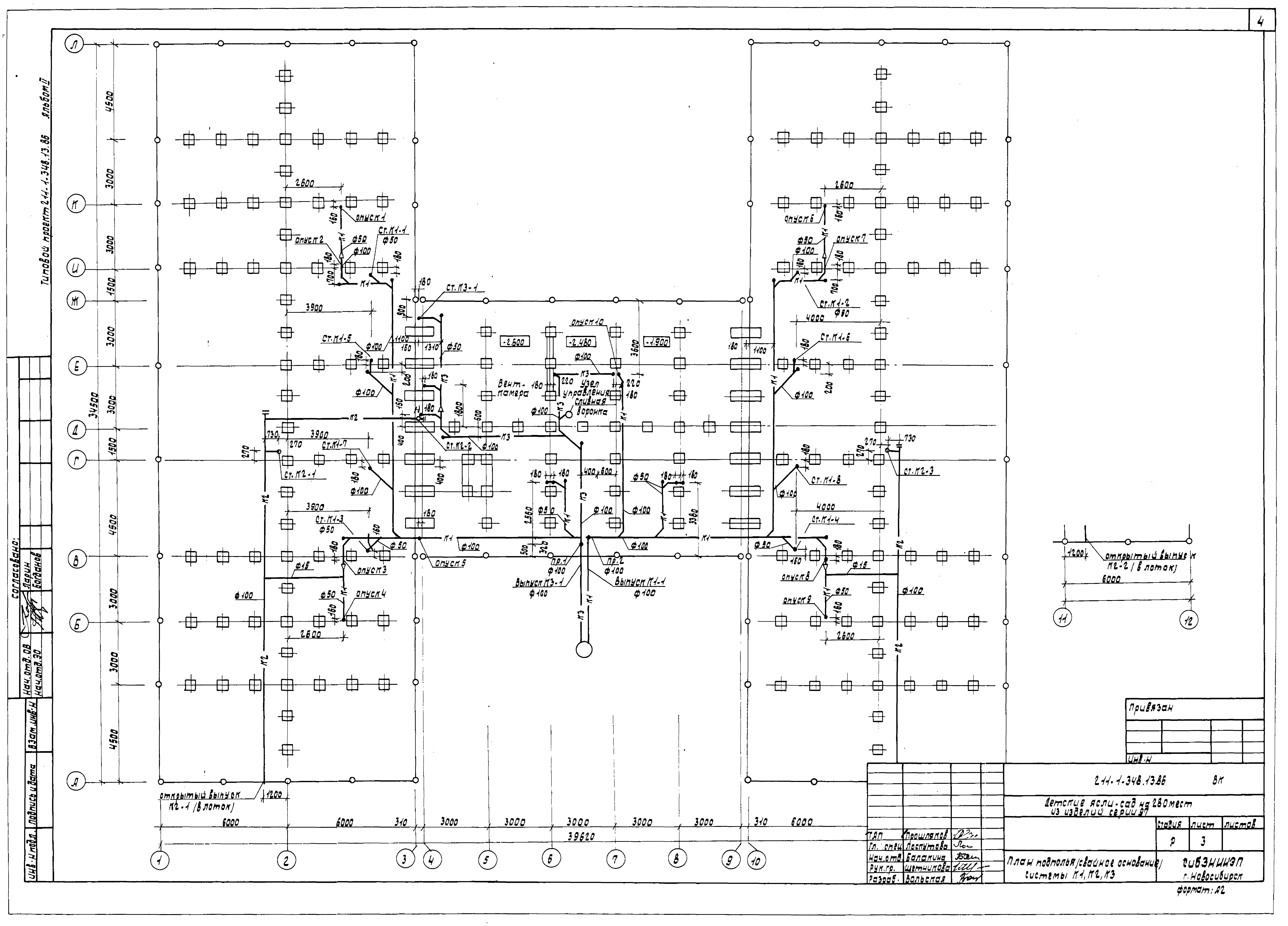
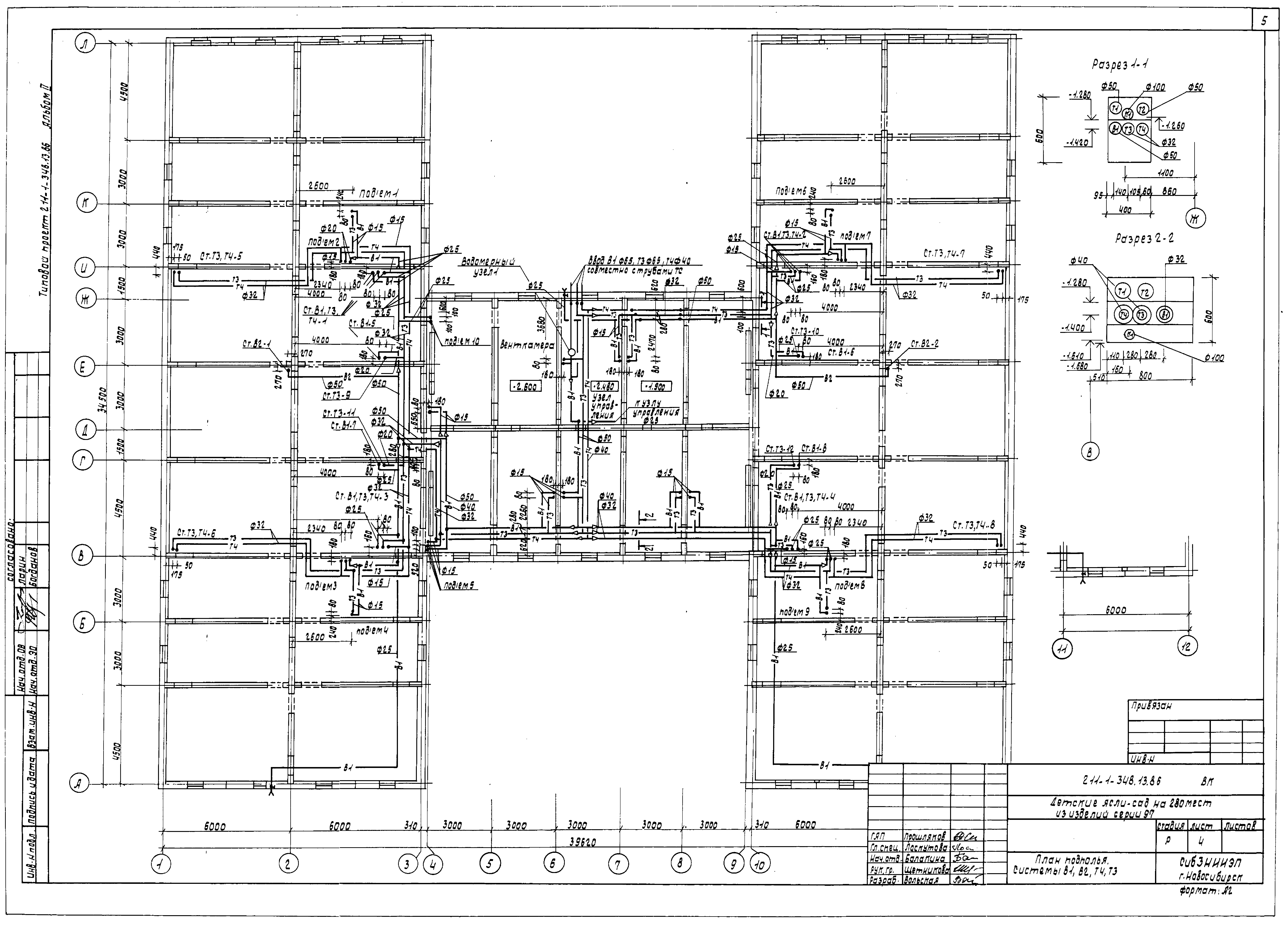
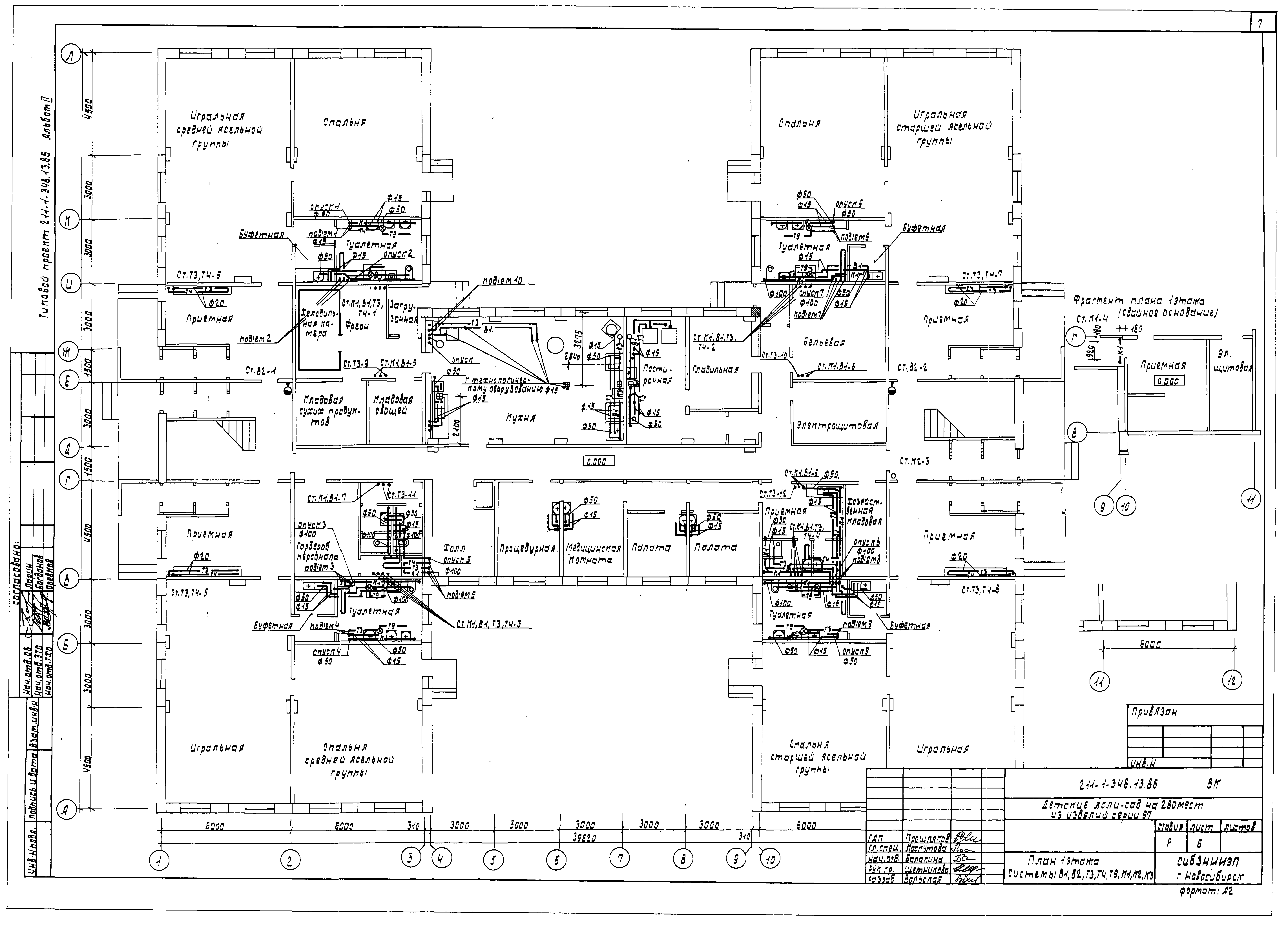
Скачать Типовой проект 211-1-348.13.86 Альбом II. Водопровод и канализацияДата актуализации: 01.01.2021
|
| Обозначение: | Типовой проект 211-1-348.13.86 |
| Обозначение англ: | 211-1-348.13.86 |
| Статус: | не определен законодательством |
| Название рус.: | Альбом II. Водопровод и канализация |
| Дата добавления в базу: | 01.09.2013 |
| Дата актуализации: | 01.01.2021 |
| Дата введения: | 28.12.1985 |
| Дата окончания срока действия: | 30.06.2003 |
| Разработан: | СибЗНИИЭП Госгражданстроя |
| Утверждён: | 26.12.1985 Госгражданстрой (Gosgrazhdanstroy 452) |













