Скачать Типовой проект 704-4-28 Альбом I. Рабочие чертежиДата актуализации: 01.01.2021
|
| Обозначение: | Типовой проект 704-4-28 |
| Обозначение англ: | 704-4-28 |
| Статус: | действует |
| Название рус.: | Альбом I. Рабочие чертежи |
| Дата добавления в базу: | 01.09.2013 |
| Дата актуализации: | 01.01.2021 |
| Дата введения: | 02.11.1977 |
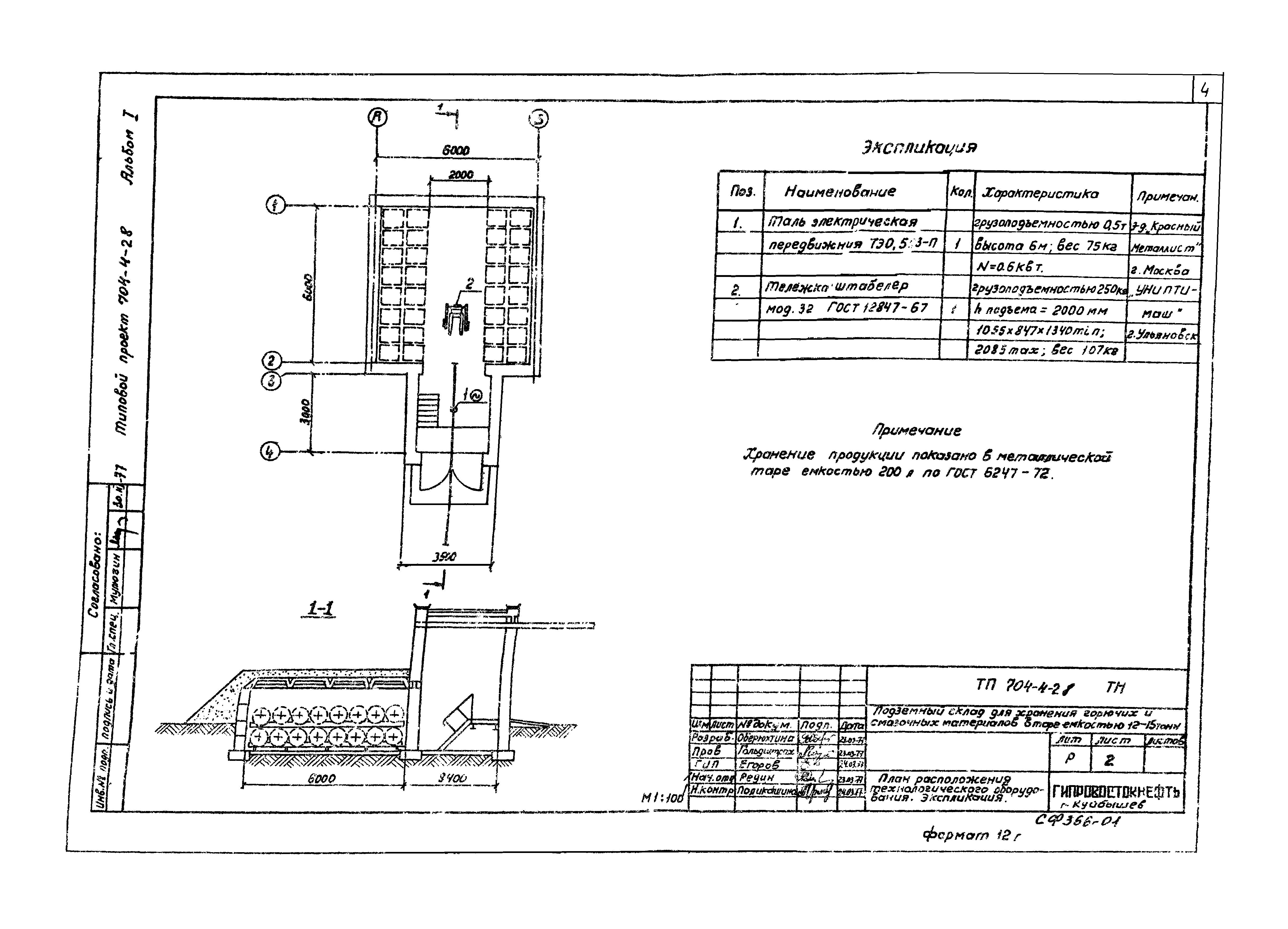
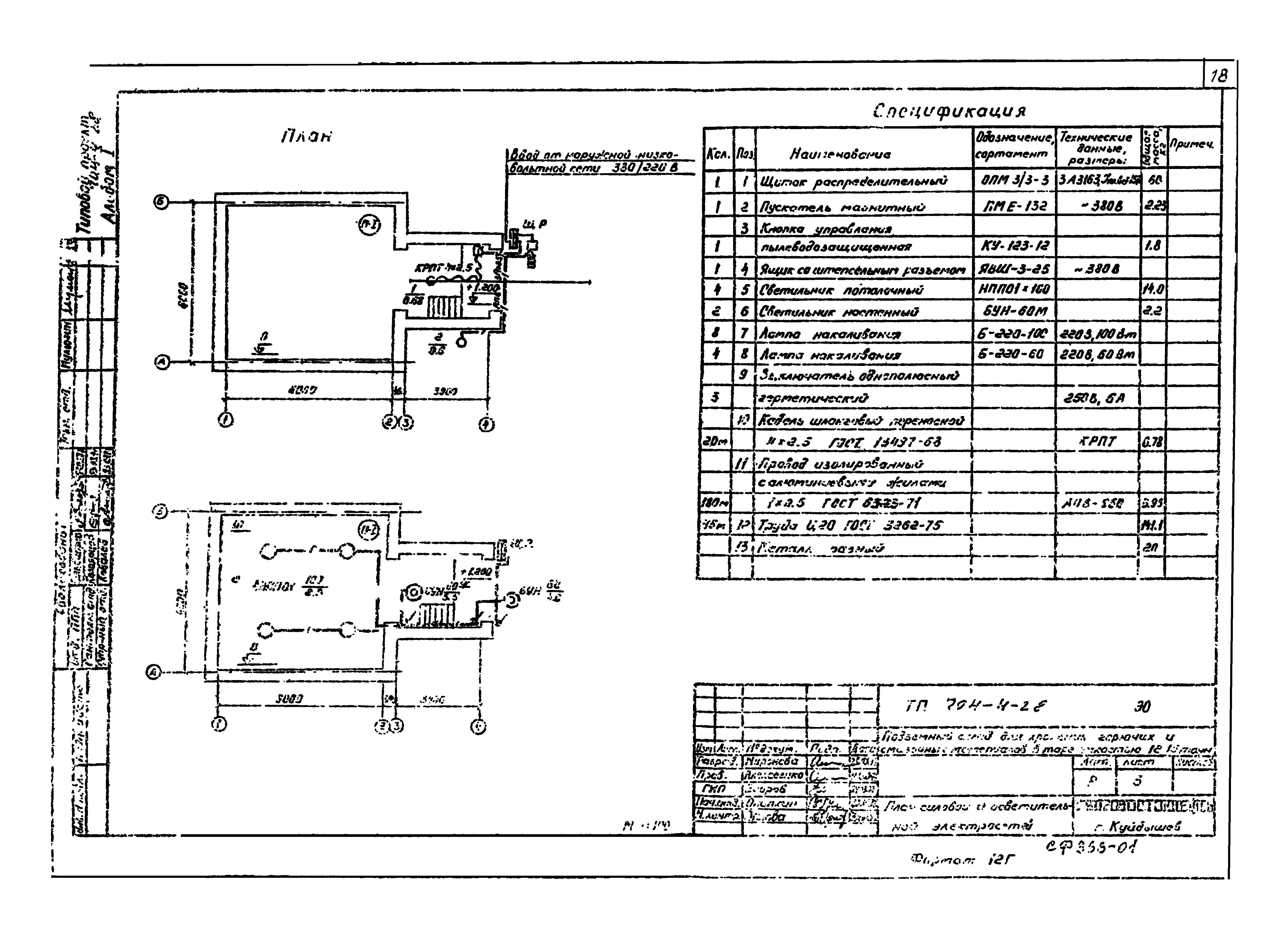
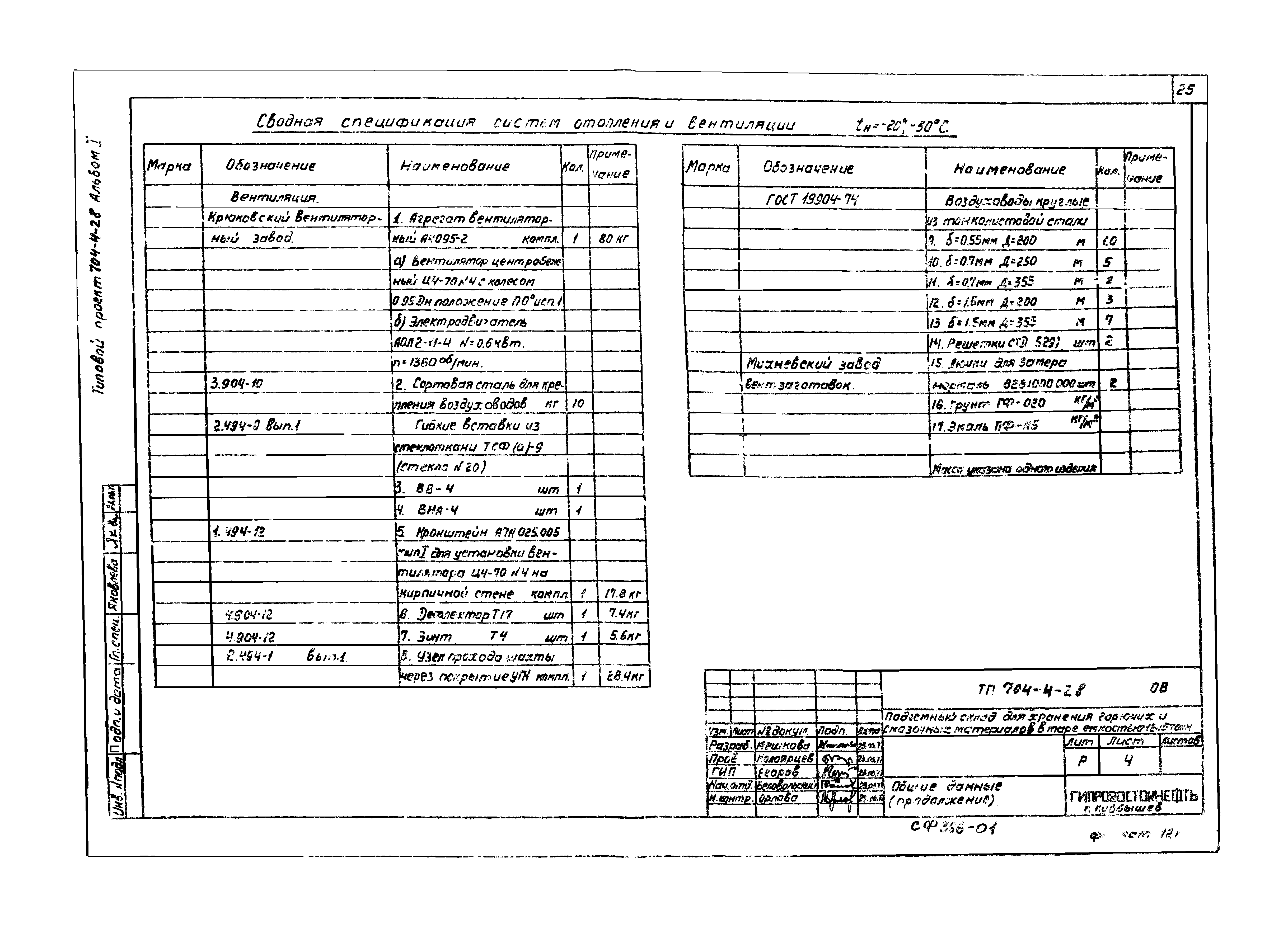
| Оглавление: | Содержание альбома 1 Технологическая часть ТН-1 Общие данные ТН-2 План расположения технологического оборудования. Экспликация Архитектурно-строительные решения АР-1 Общие данные (начало) АР-2 Общие данные (окончание) АР-3 План. Разрез АР-4 Фасады. Узел А АР-5 План фундаментов. План покрытия. Сечение а-а АР-6 Узлы 1,2,3 АР-7 Узлы 4,5. Установка лестничного марша АР-8 Дверная коробка и дверное полотно двери Д-1. Схема растяжек. Узел Б АР-9 План кронштейнов и навеса. Сечения АР-10 Будка для вентилятора (при температуре наружного воздуха -50ºС) АР-11 Лестница и настил (при температуре наружного воздуха -50ºС) Электрическая часть ЭО-1 Общие данные (начало) ЭО-2 Общие данные (окончание) ЭО-3 План силовой и осветительной электросетей ЭО-4 Расчетная таблица электросети 380/220 В ЭО-5 План силовой и осветительной электросетей при tн=-50ºС ЭО-6 Расчетная таблица электросети 380/220 В tн=-50ºС Отопление и вентиляция ОВ-1 Общие данные (начало) ОВ-2 Общие данные (продолжение) ОВ-3 Общие данные (продолжение) ОВ-4 Общие данные (продолжение) ОВ-5 Общие данные (окончание) ОВ-6 Вентиляция при tн=-20-30ºС. Планы. Разрез. Схема ОВ-7 Вентиляция и отопление при tн=-50ºС. Планы. Разрезы. Схема ОВ-8 Рама крепления для одной электрической печи ПТ-10-2 Контроль и автоматизация КА-1 Общие данные (начало) КА-2 Общие данные (окончание) КА-3 Схема электрическая принципиальная управления электроотоплением КА-4 Щит управления электроотопление. Общий вид КА-5 Щит управления электроотопление. Схема монтажная КА-6 Схема внешних электрических проводок КА-7 План электрических проводок |
| Разработан: | Гипровостокнефть Миннефтепрома (Giprovostokneft, Minnefteprom ) |
| Утверждён: | 02.11.1977 Миннефтепром (Minnefteprom ) |





































