Скачать Типовой проект 901-4-92.86 Альбом II. Технологические трубопроводы и сигнализация (из ТП 901-4-93.86)Дата актуализации: 01.01.2021
|
| Обозначение: | Типовой проект 901-4-92.86 |
| Обозначение англ: | 901-4-92.86 |
| Статус: | действует |
| Название рус.: | Альбом II. Технологические трубопроводы и сигнализация (из ТП 901-4-93.86) |
| Дата добавления в базу: | 01.09.2013 |
| Дата актуализации: | 01.01.2021 |
| Дата введения: | 12.11.1986 |
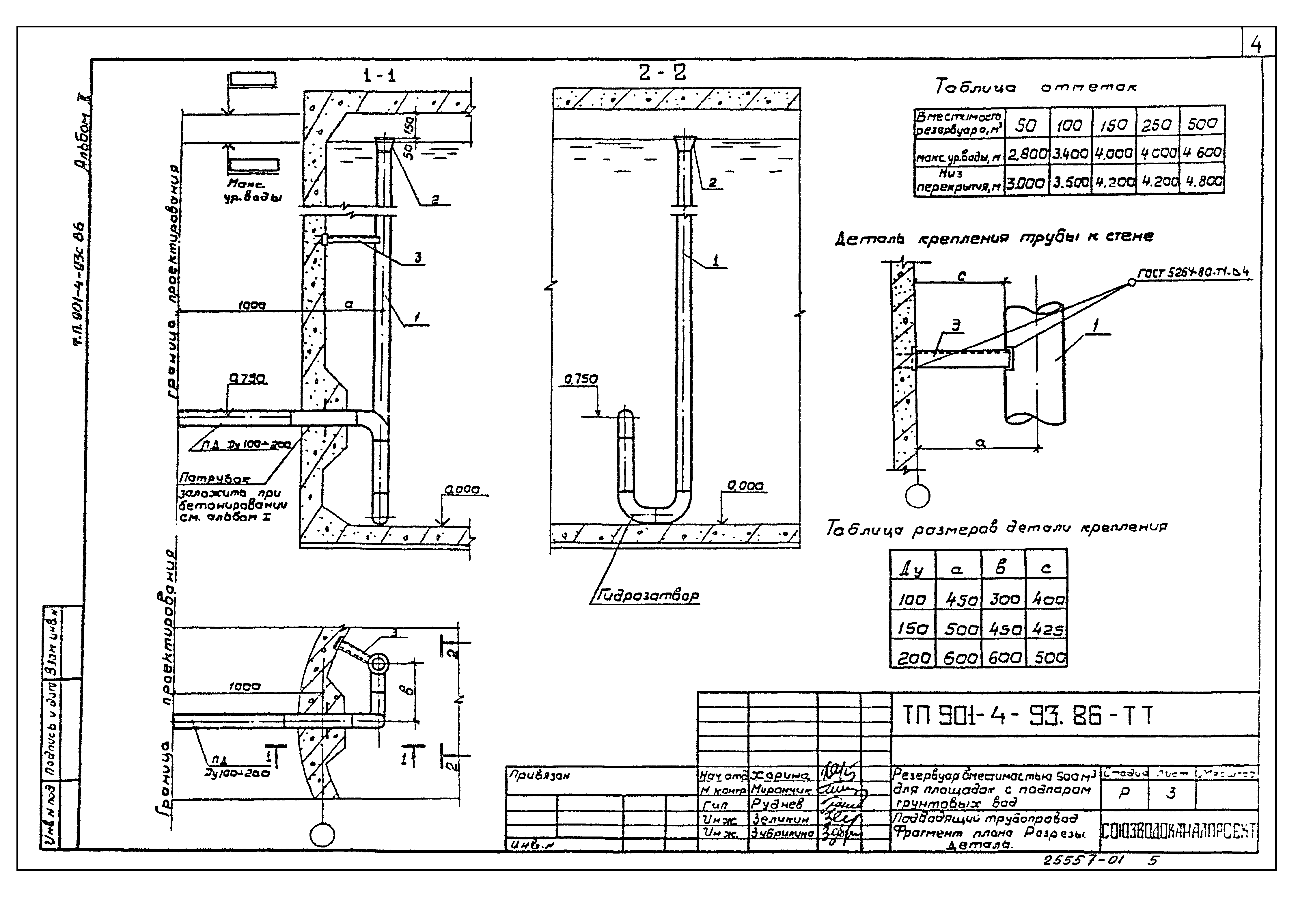
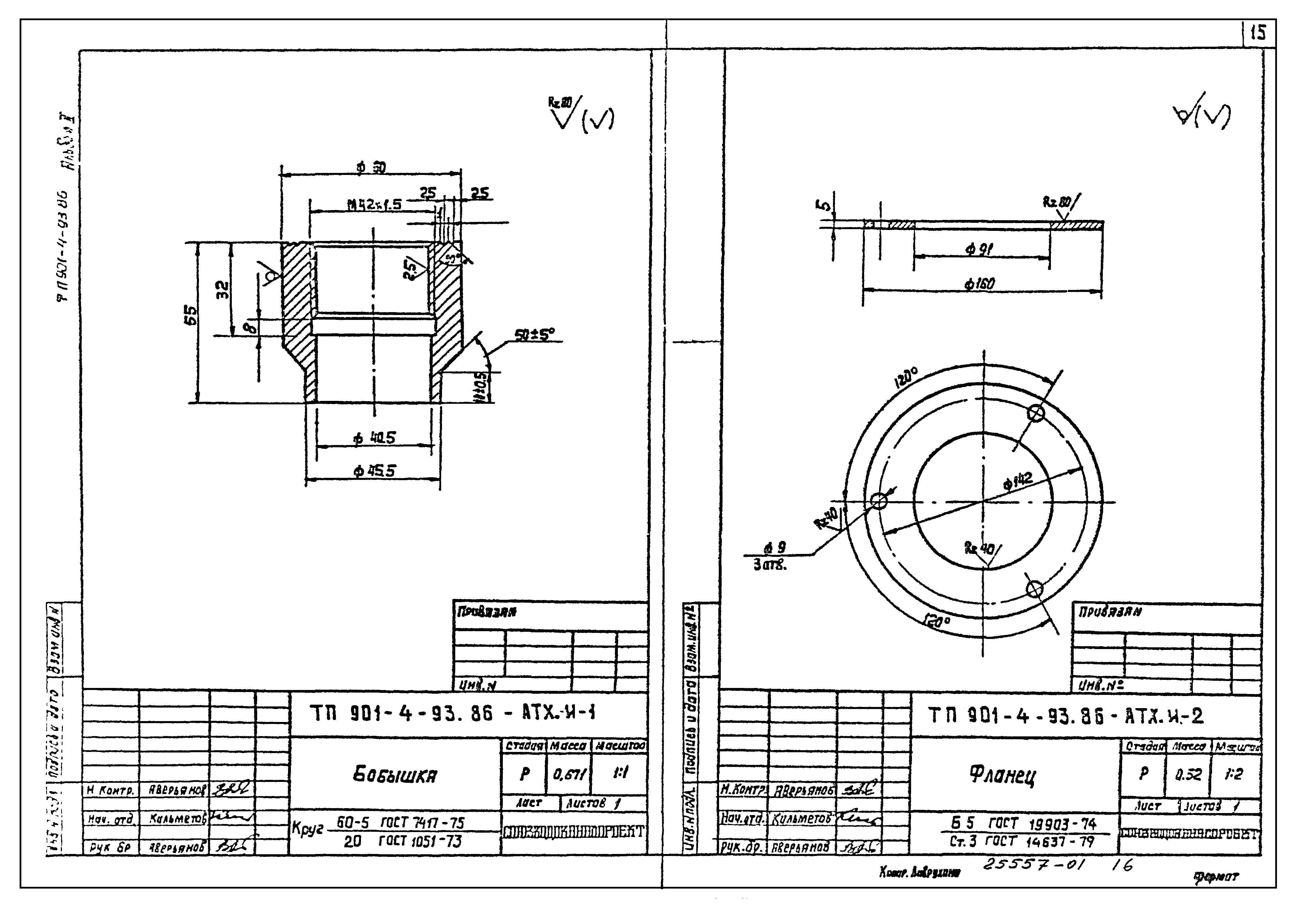
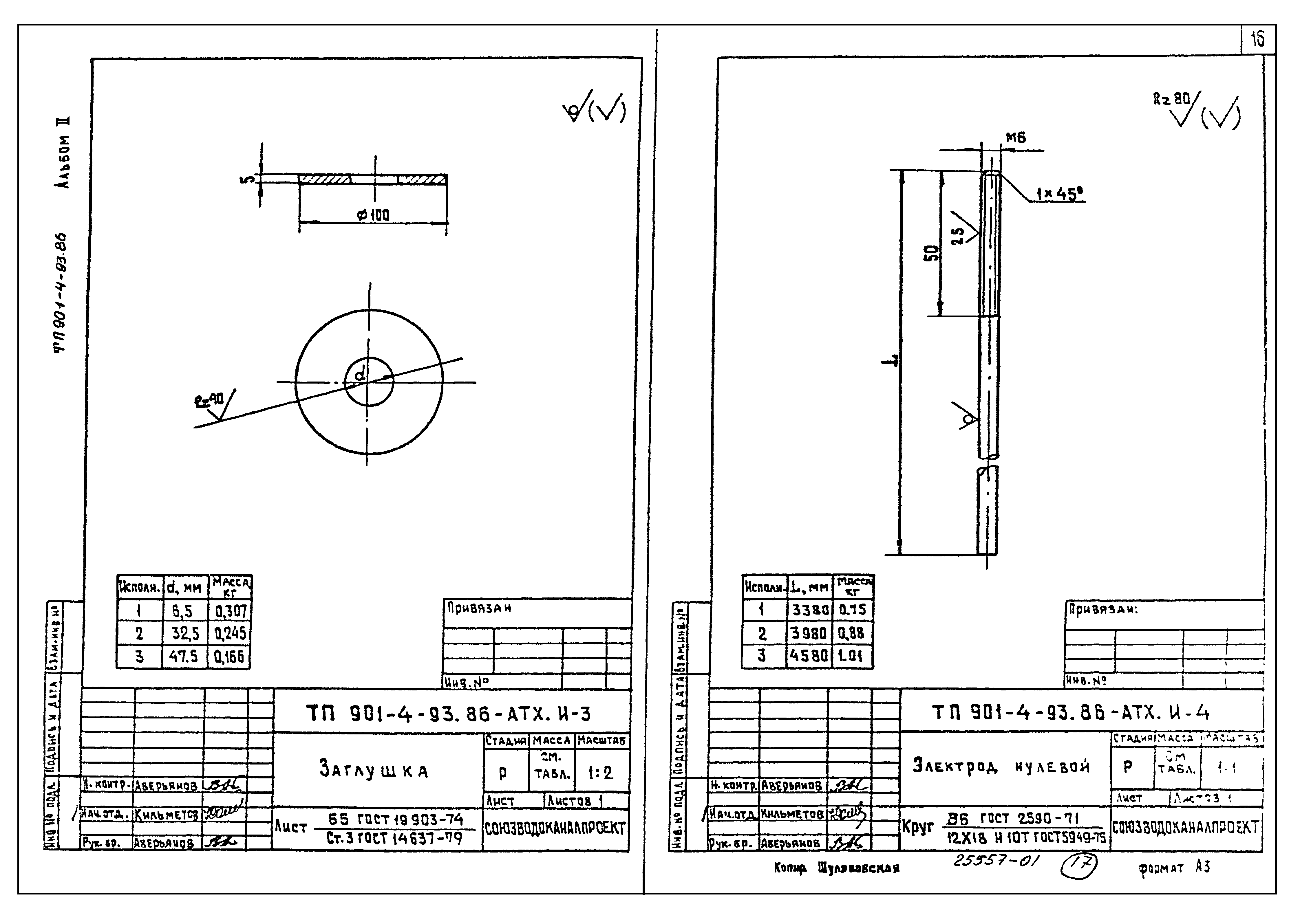
| Оглавление: | Общие данные Планы Подводящий трубопровод. Фрагмент плана. Разрезы. Деталь Подводящий трубопровод. Спецификация Переливное устройство. Фрагмент плана. Разрезы. Деталь Переливное устройство. Спецификация Технические условия Деталь отводящего трубопровода Деталь спускного трубопровода Общие данные (начало) Общие данные (окончание) Расположение датчиков в камере приборов Установка датчика уровня УКС-1 и первичного преобразователя уровнемера РУС-0 Установка датчика уровня ЭРСУ-3 (ЭИУ-2) и нулевого электрода Бобышка Фланец Заглушка Электрод нулевой |
| Разработан: | Союзводоканалпроект НИИЖБ |
| Утверждён: | 06.11.1986 Госстрой СССР (Государственный комитет Совета Министров СССР по делам строительства) (USSR Gosstroy АЧ-73) |
















