Скачать Серия КЭ-03-2 Выпуск 1. Антресоли с каркасом из металла. Рабочие чертежиДата актуализации: 01.01.2021
|
| Обозначение: | Серия КЭ-03-2 |
| Обозначение англ: | Series КЭ-03-2 |
| Статус: | действует |
| Название рус.: | Выпуск 1. Антресоли с каркасом из металла. Рабочие чертежи |
| Дата добавления в базу: | 01.09.2013 |
| Дата актуализации: | 01.01.2021 |
| Дата введения: | 01.10.1965 |
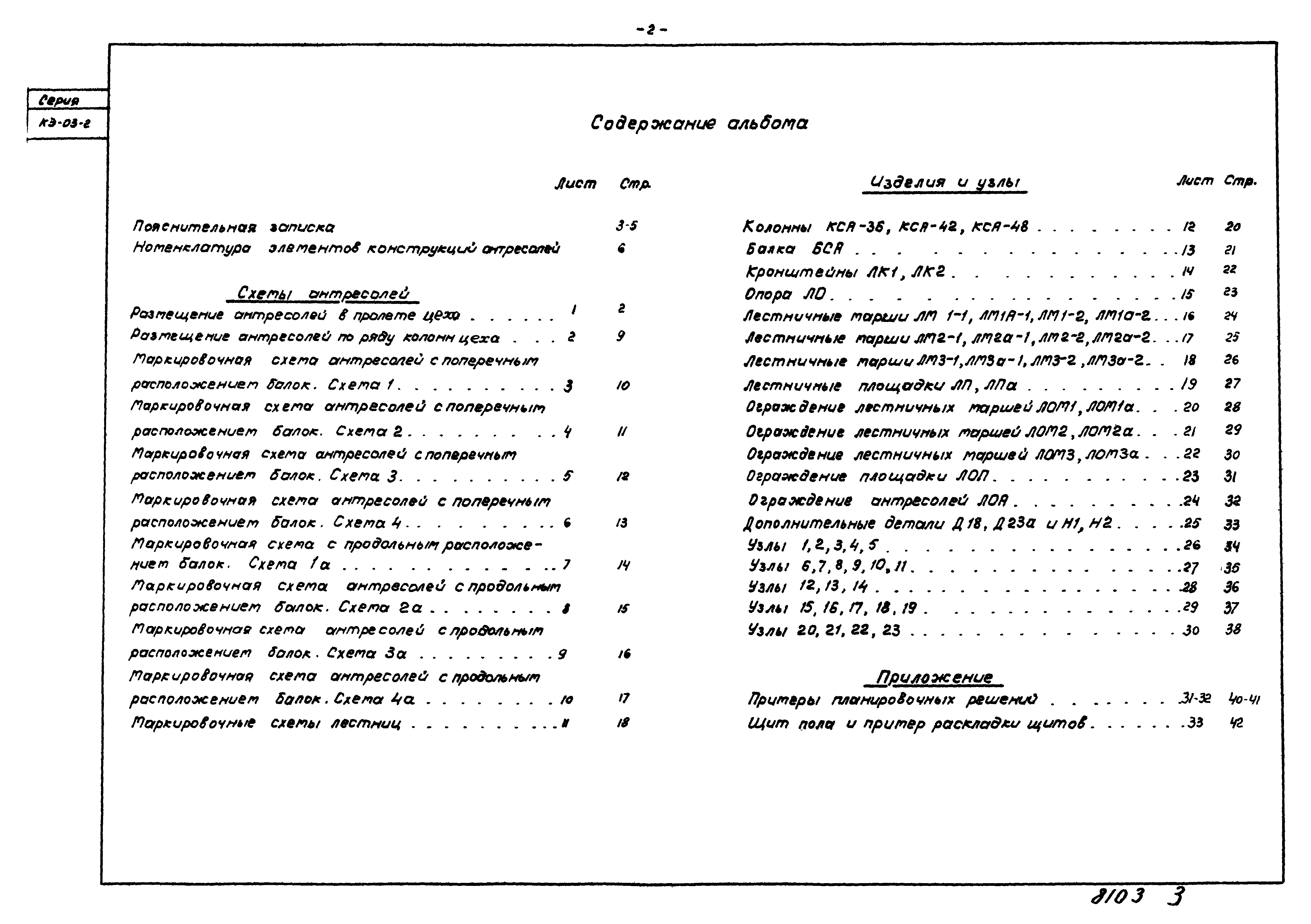
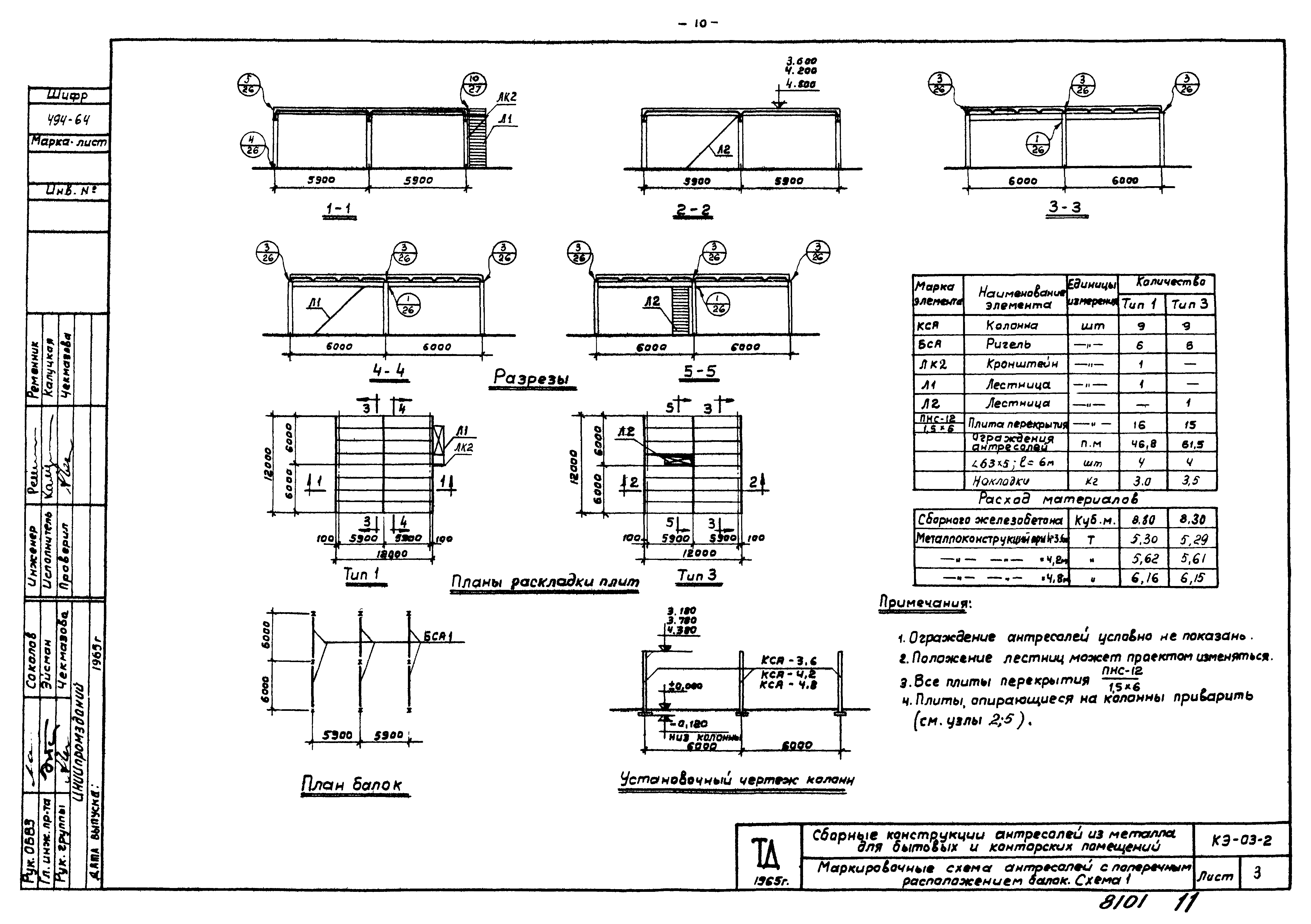
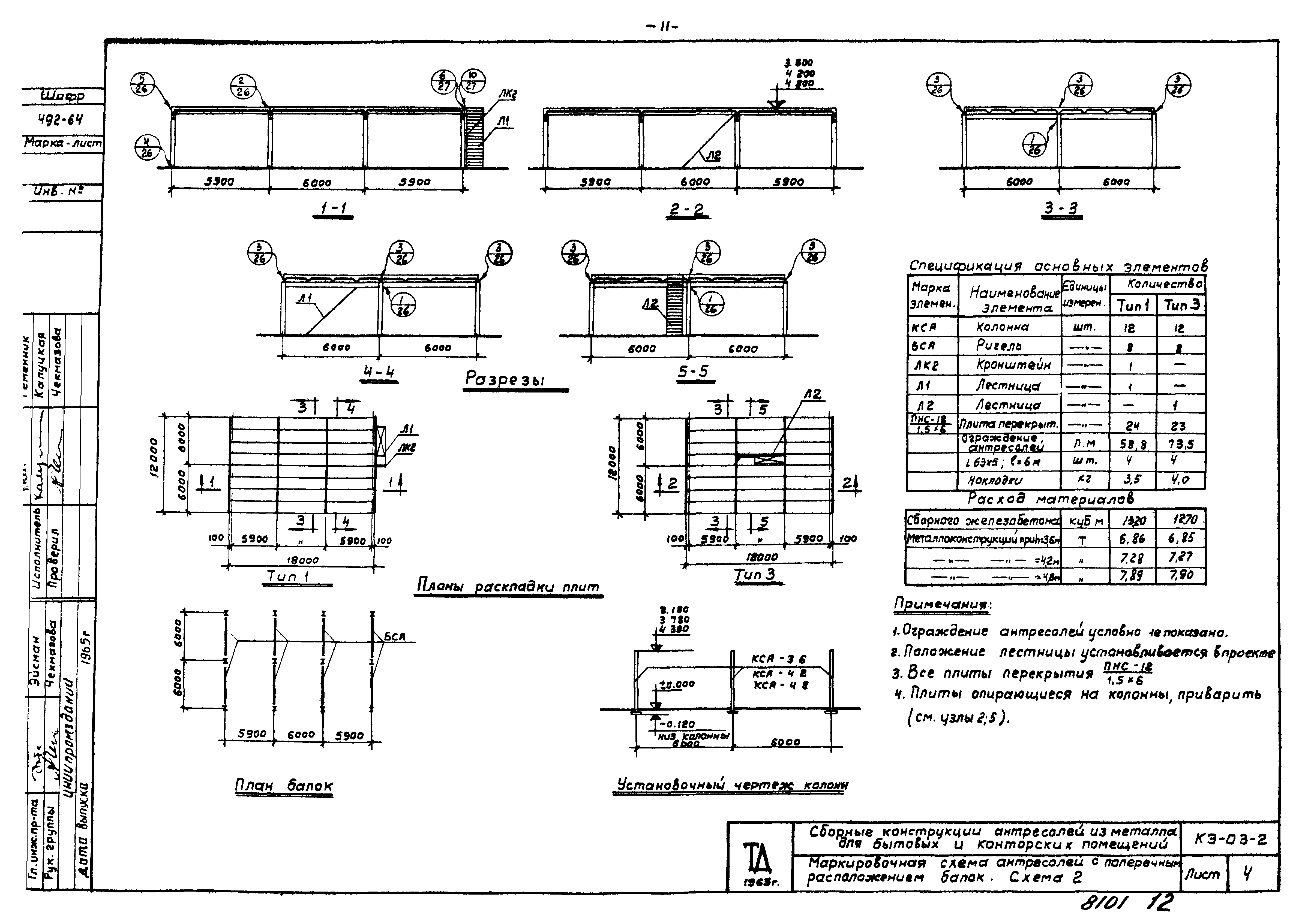
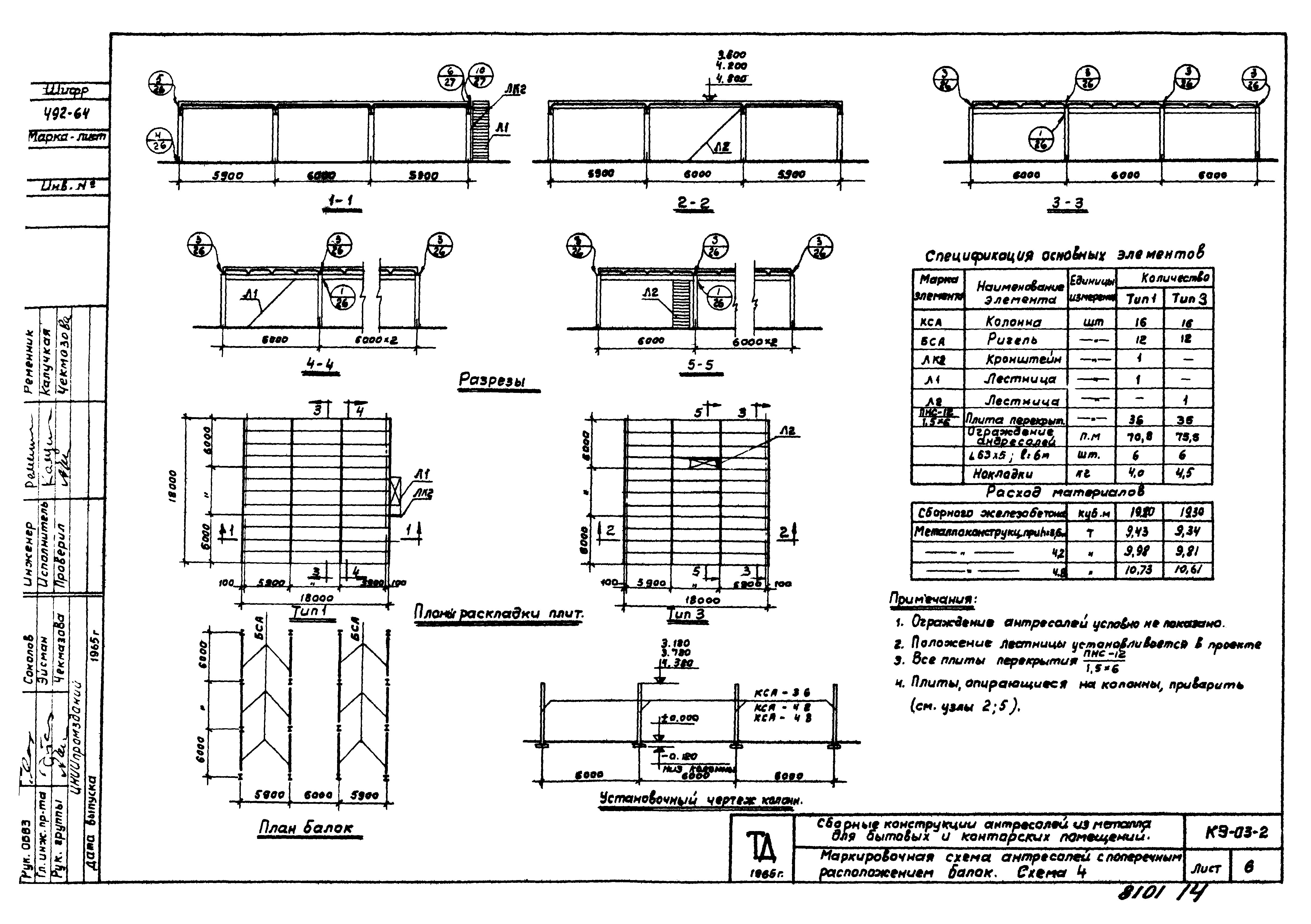
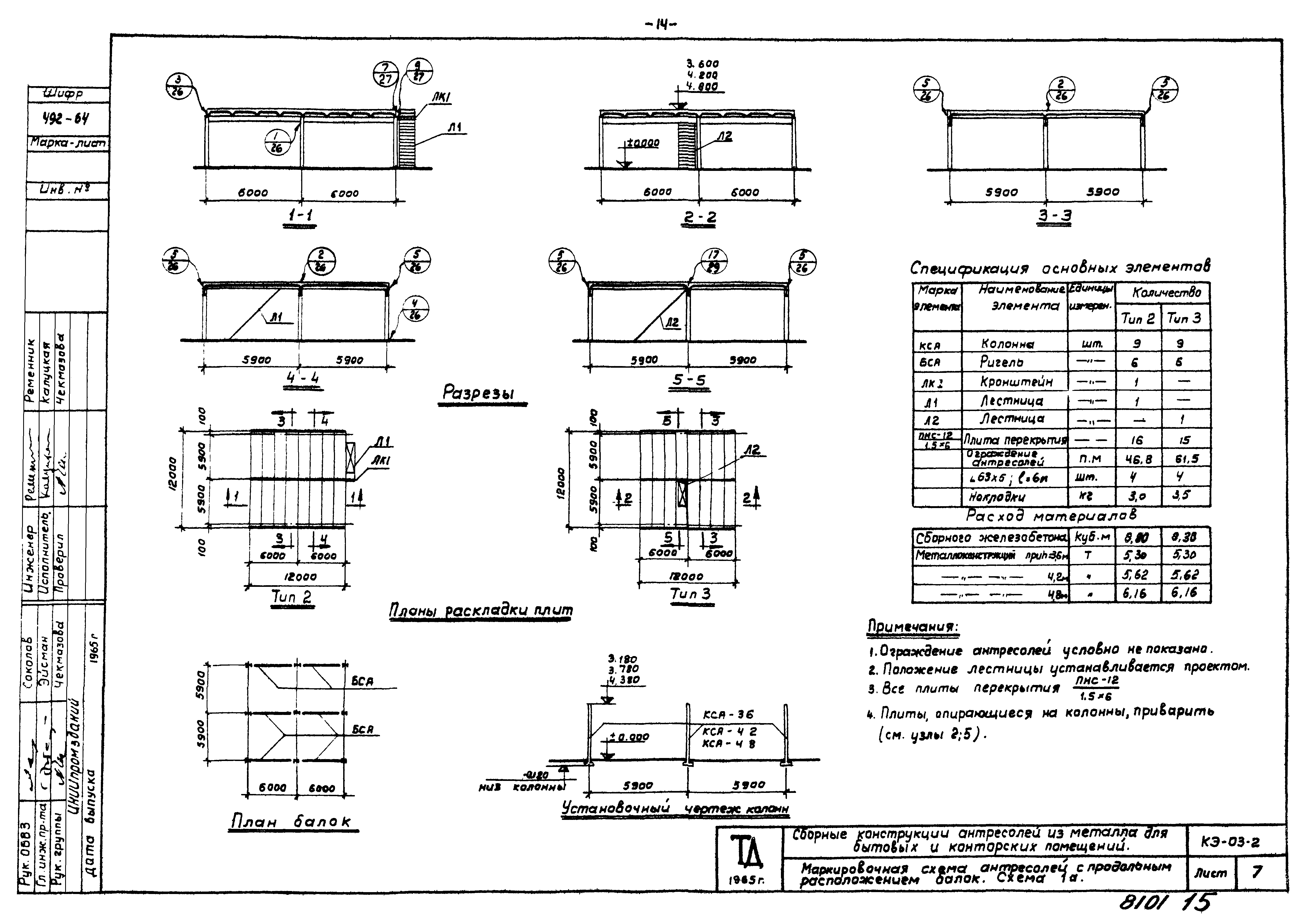
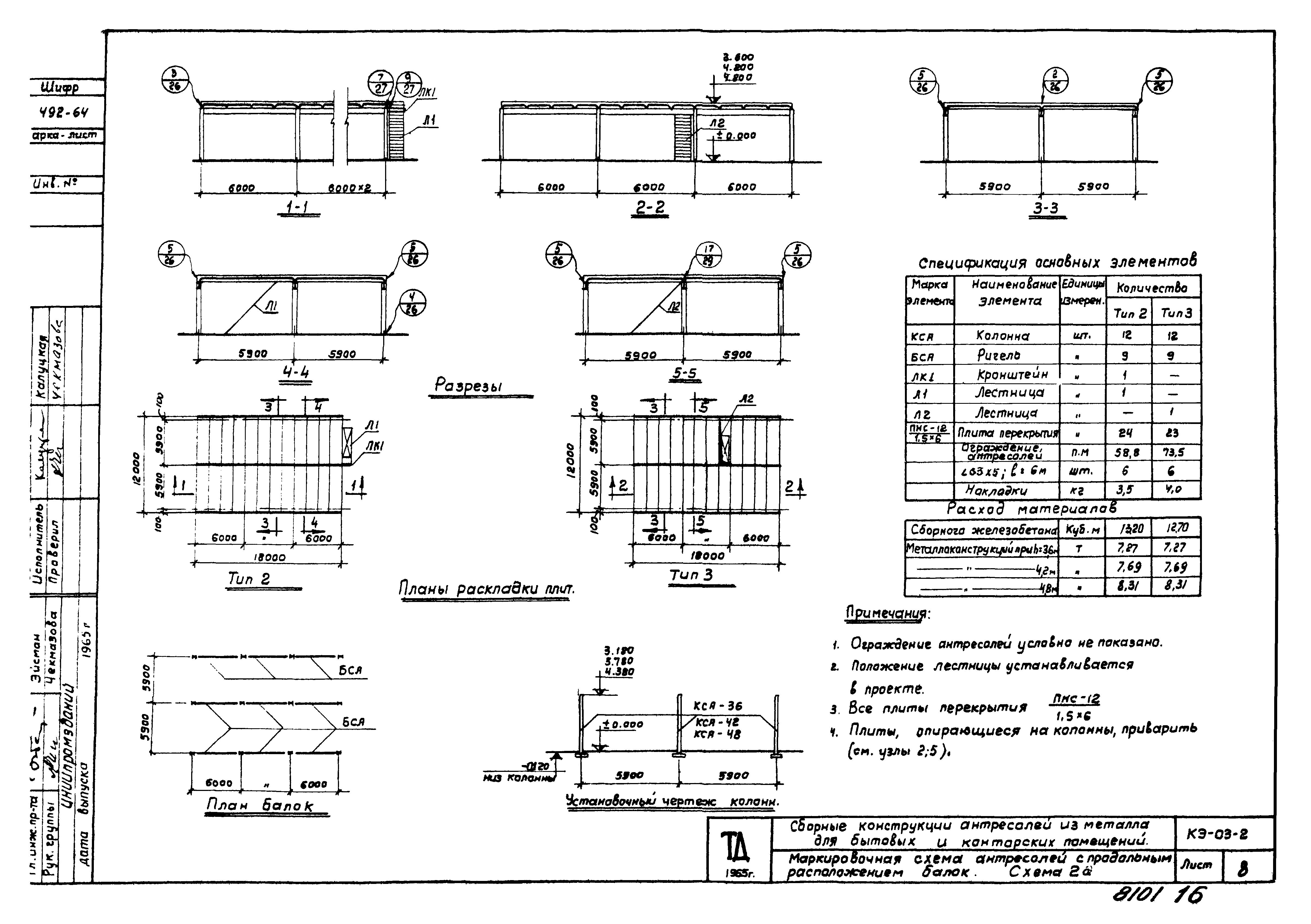
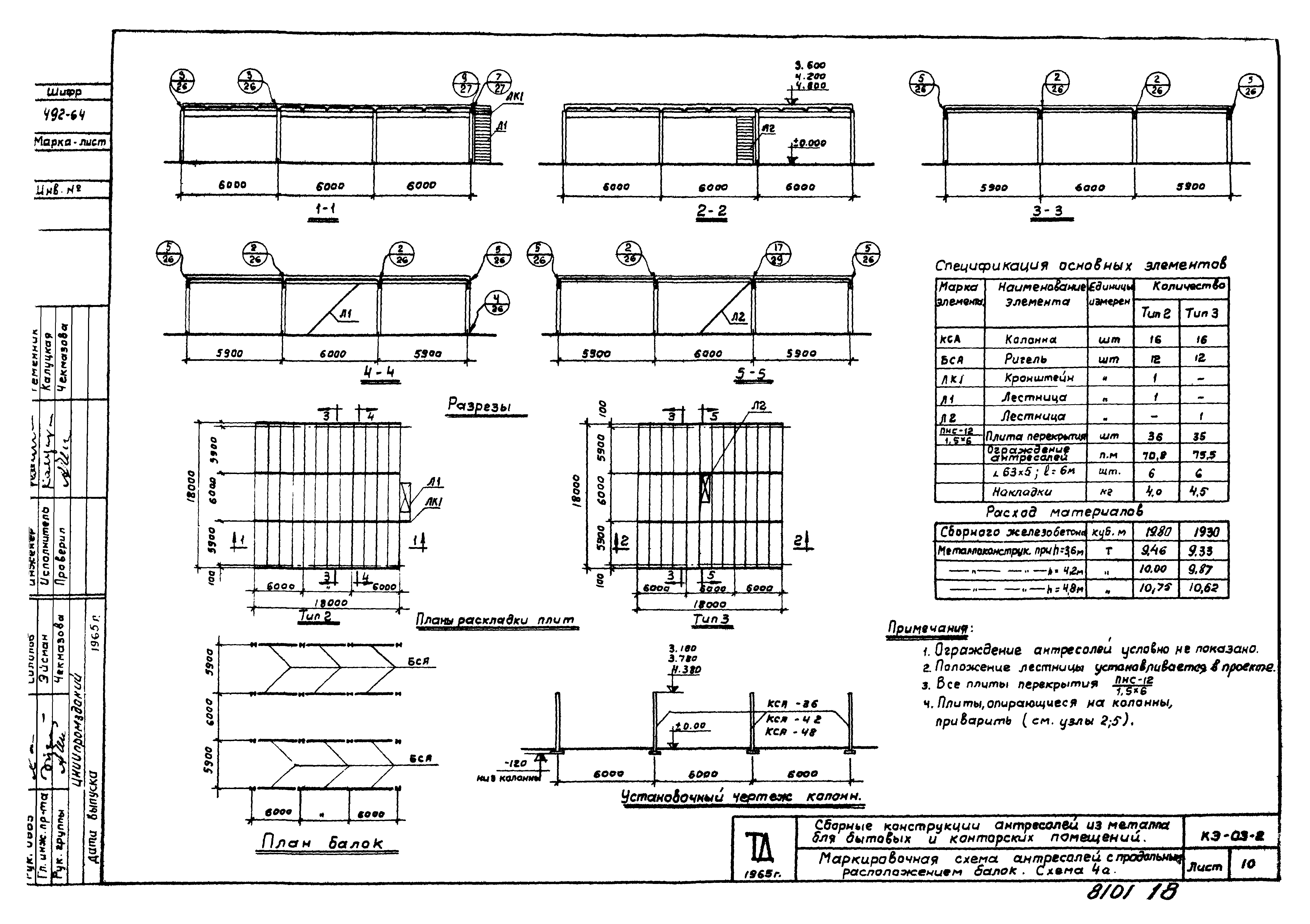
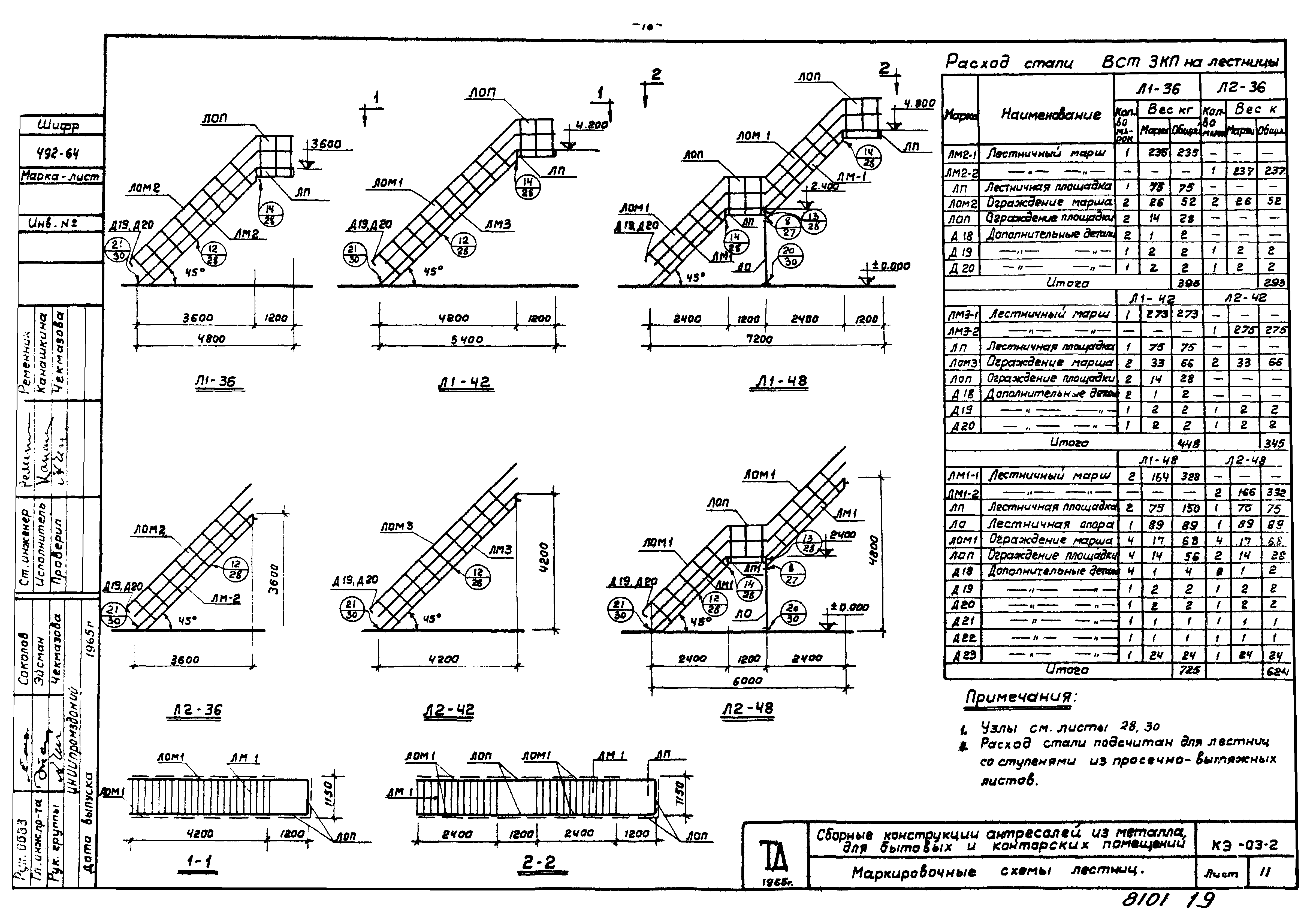
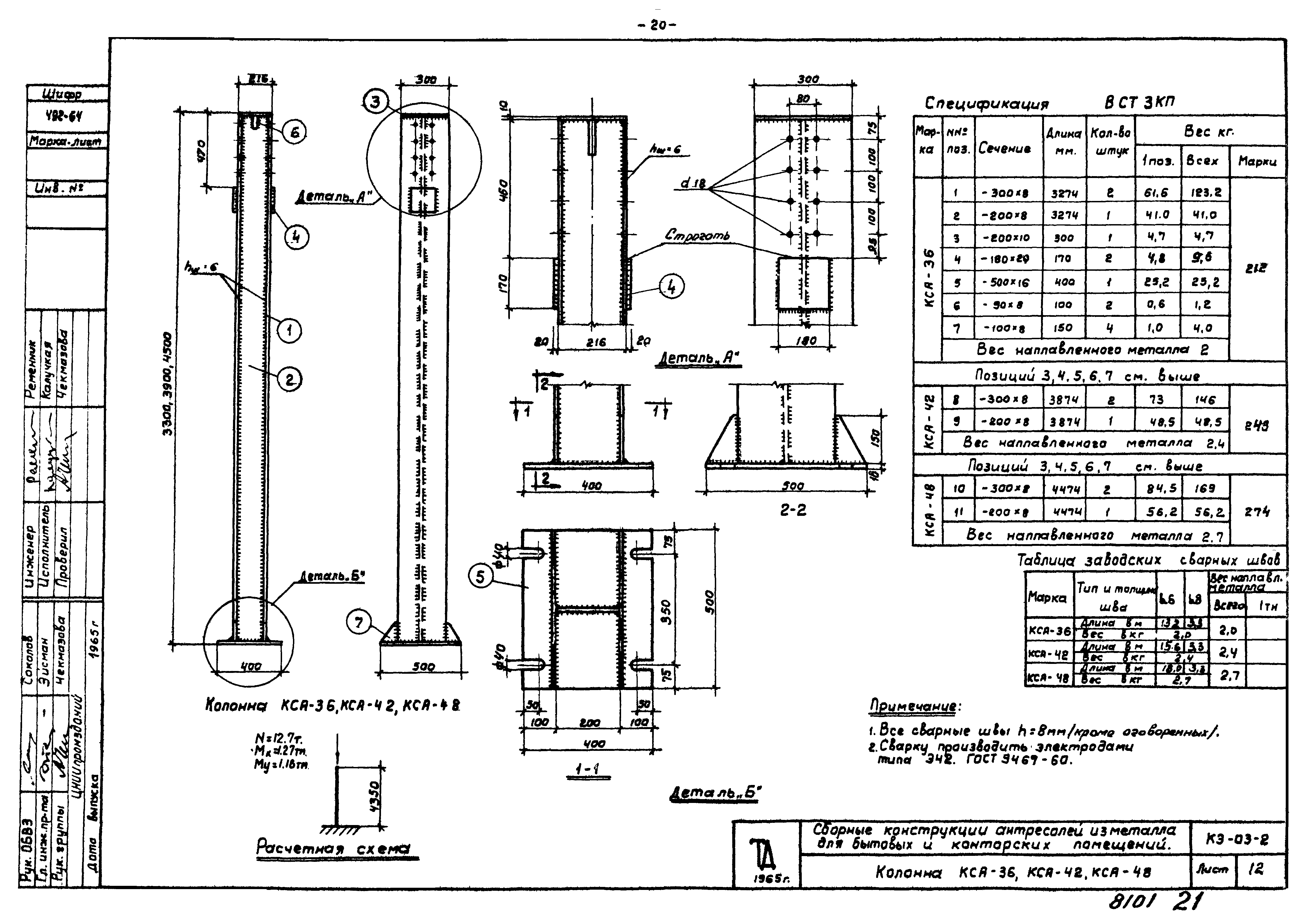
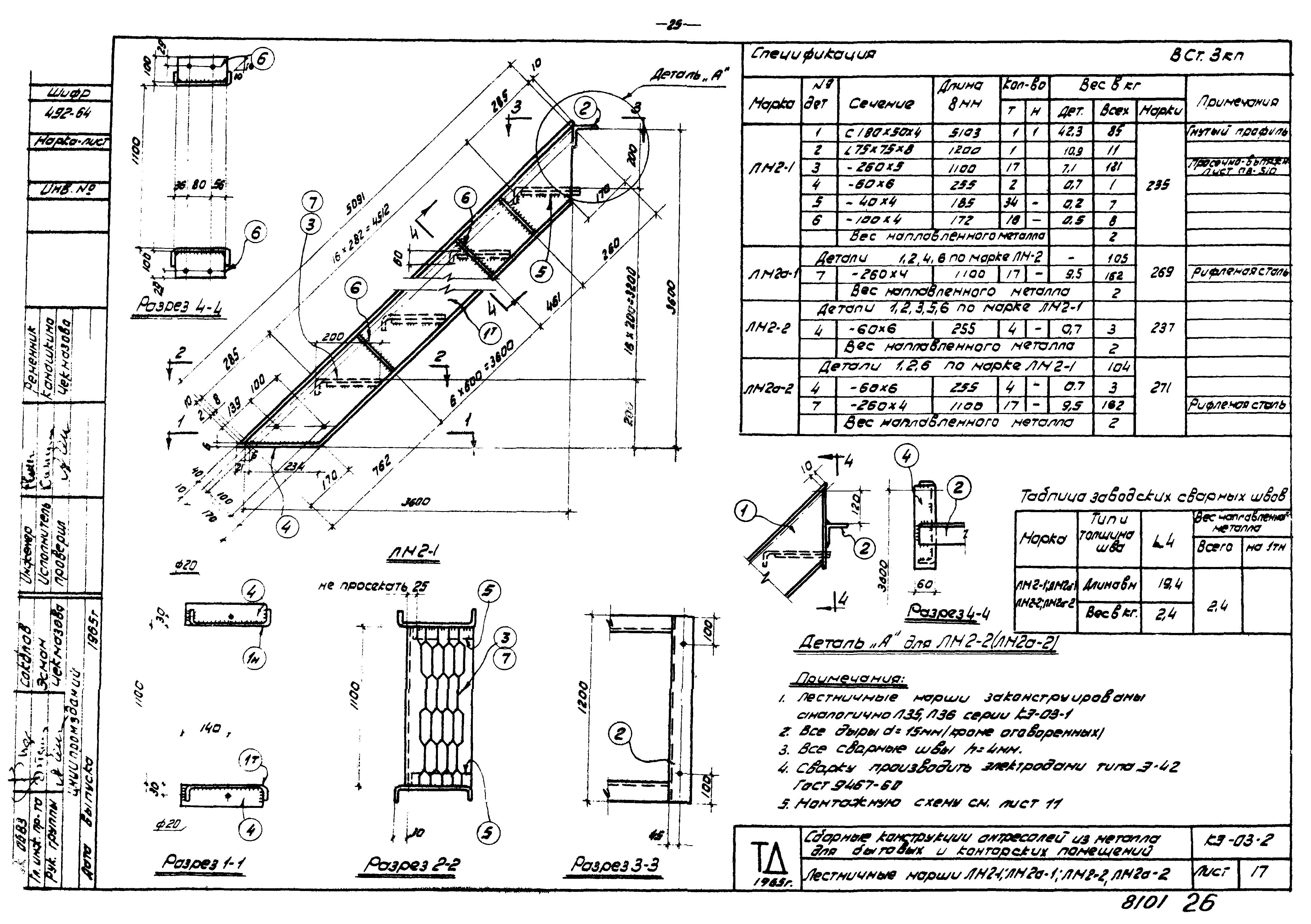
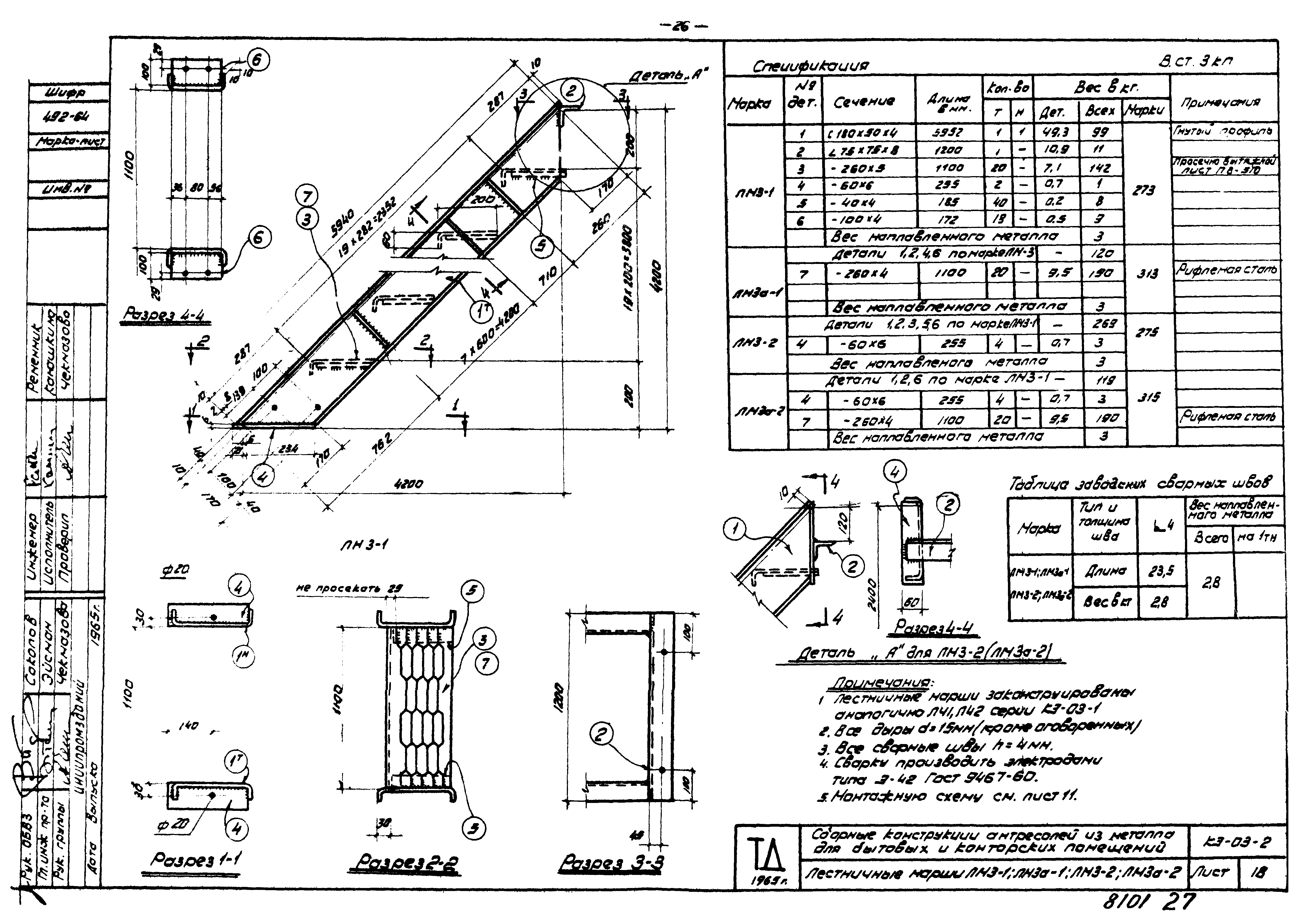
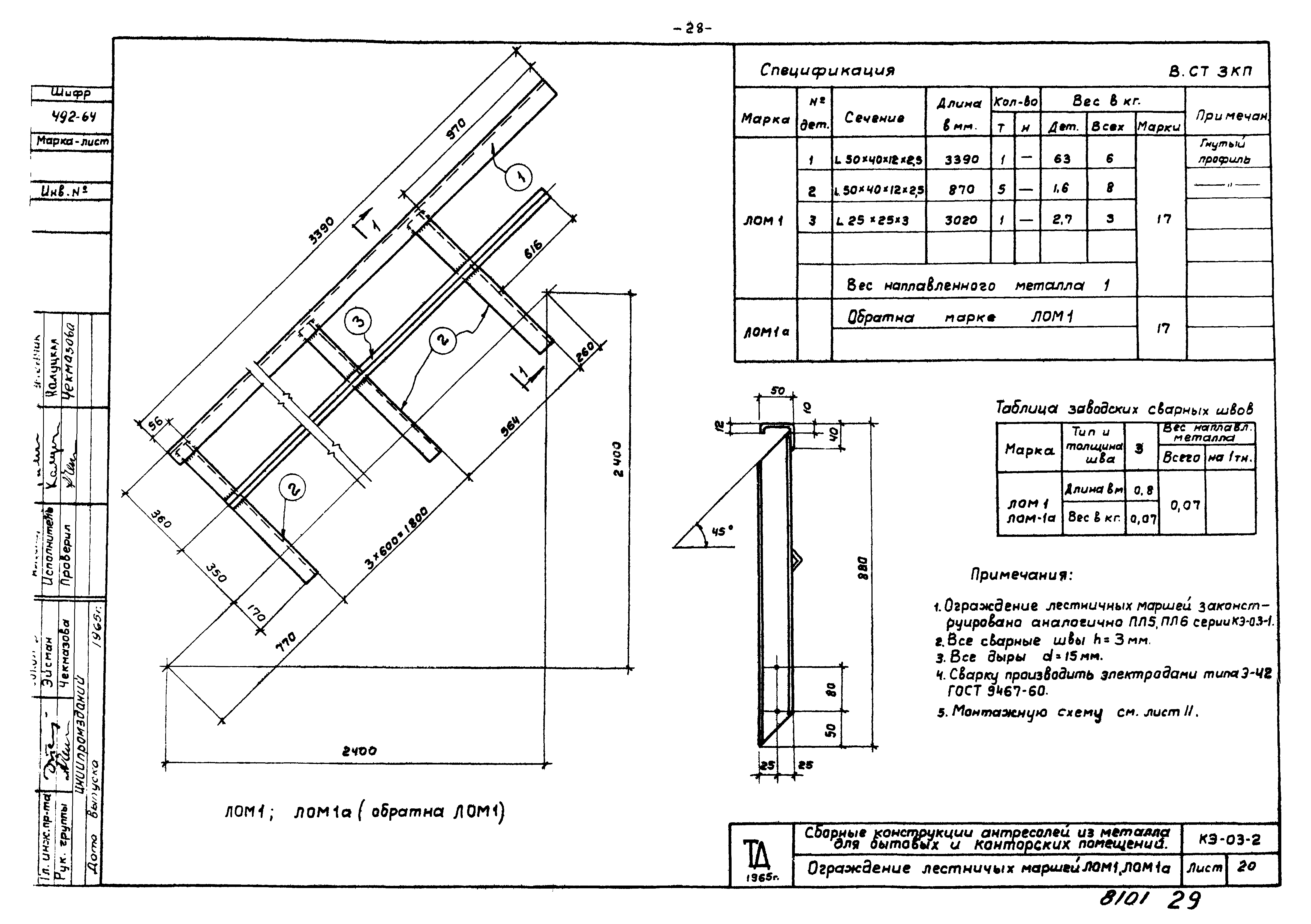
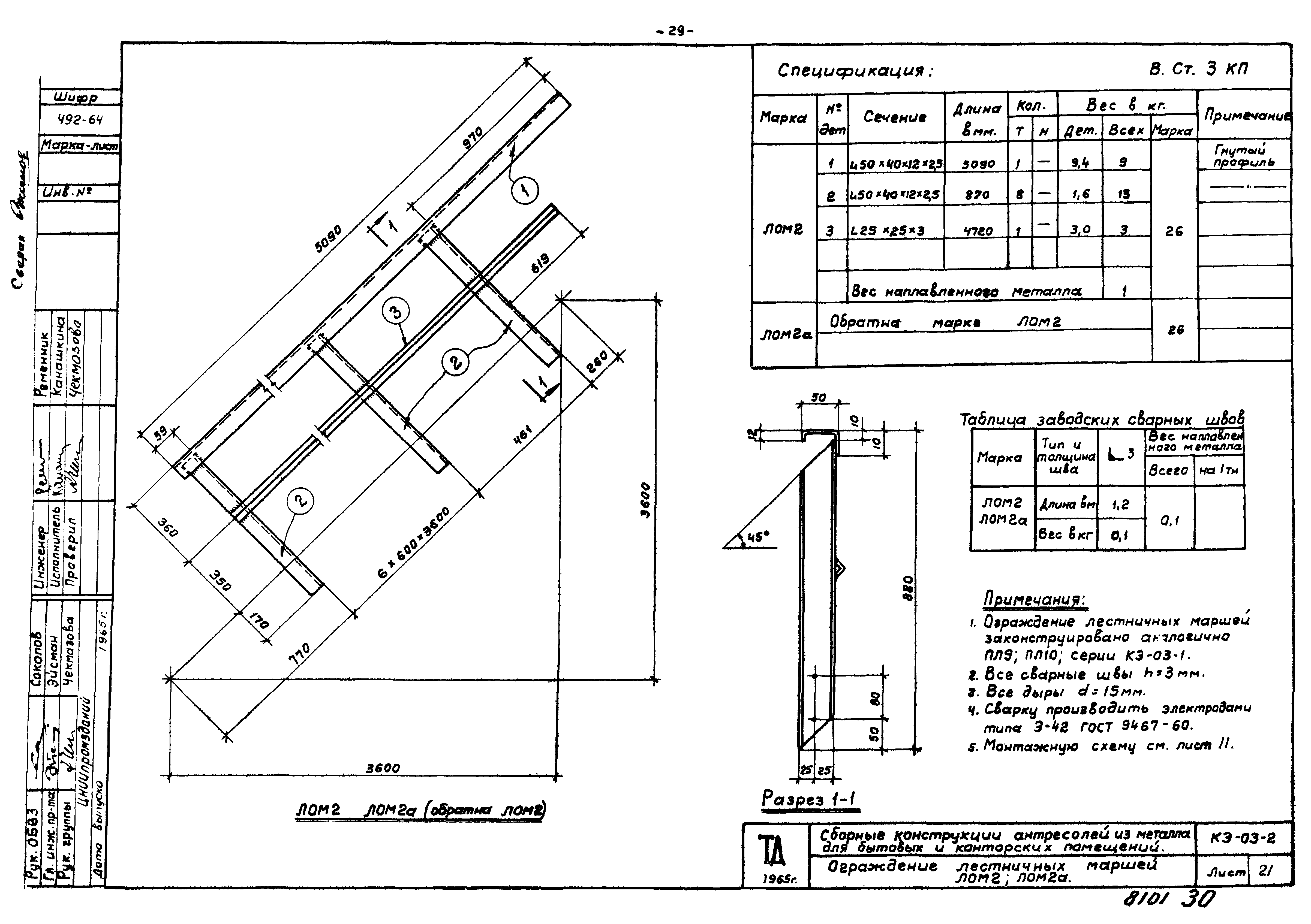
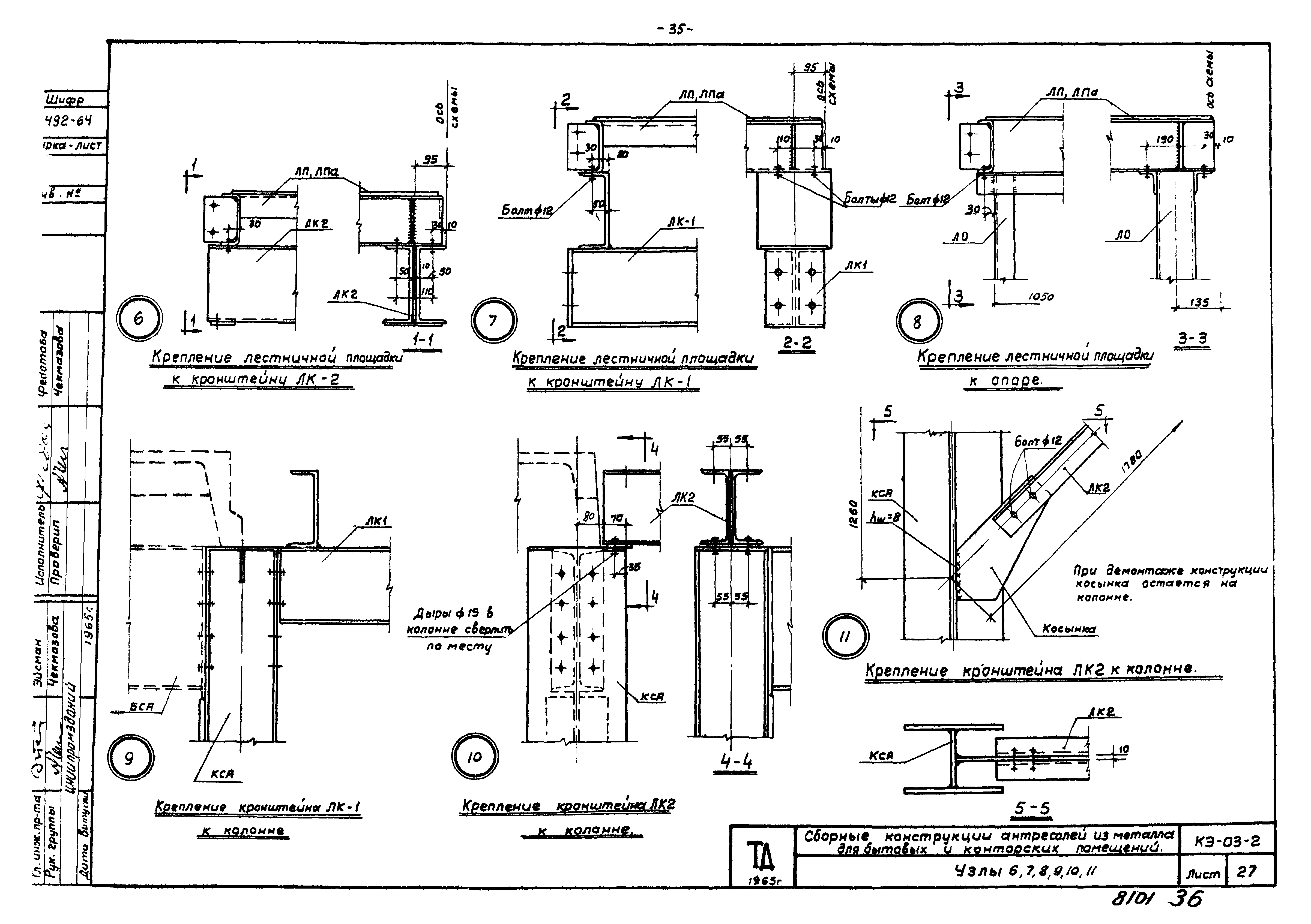
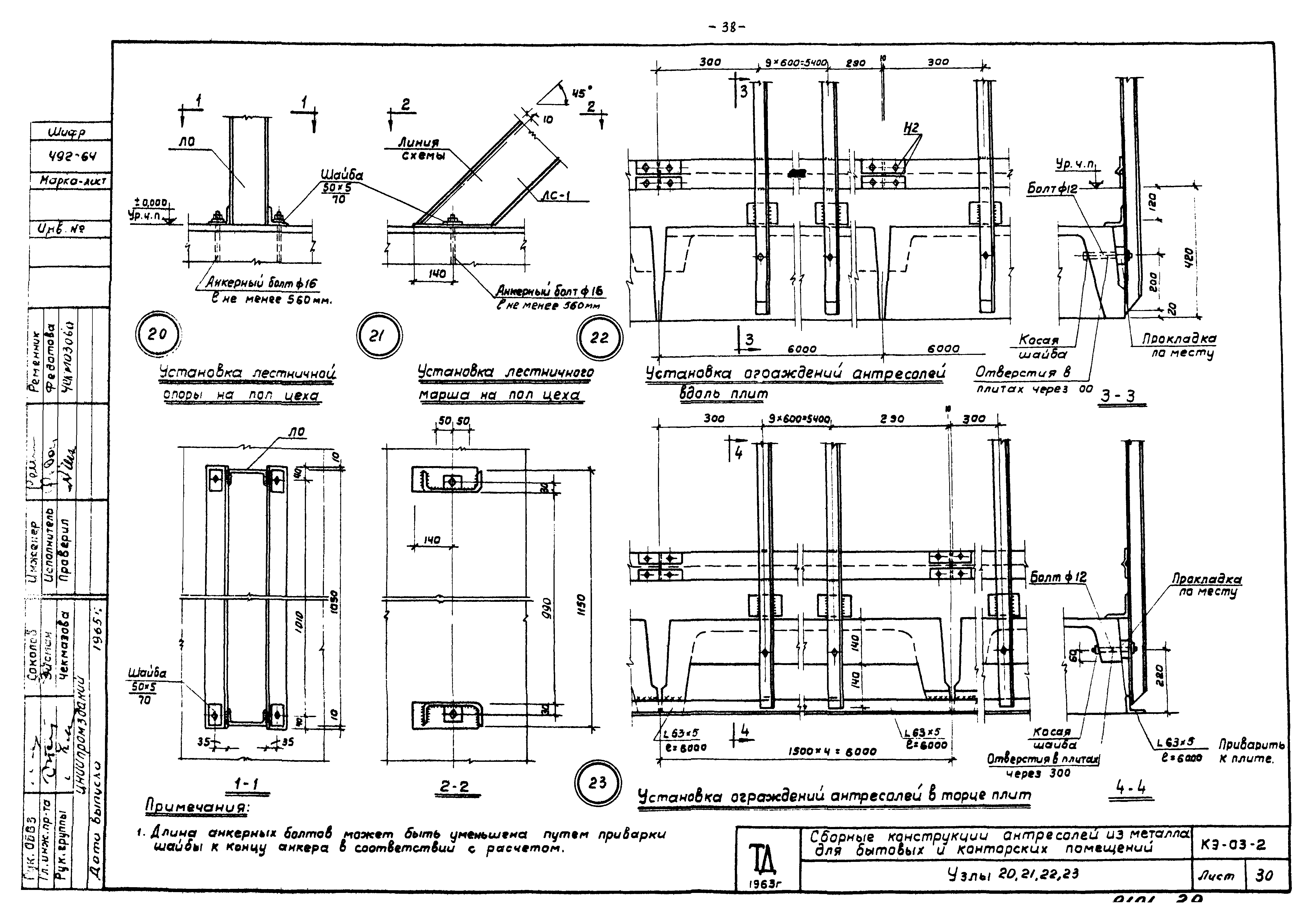
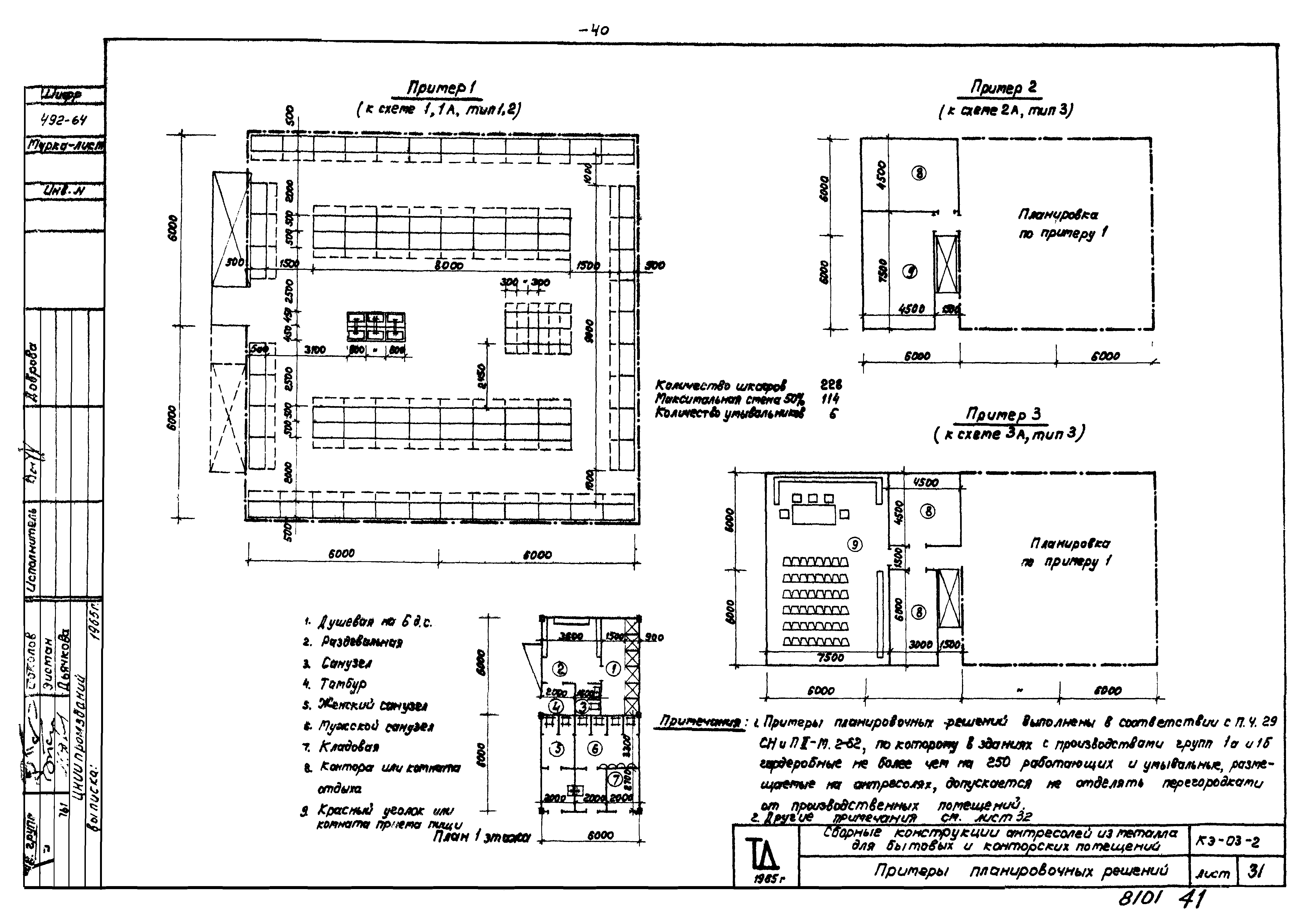
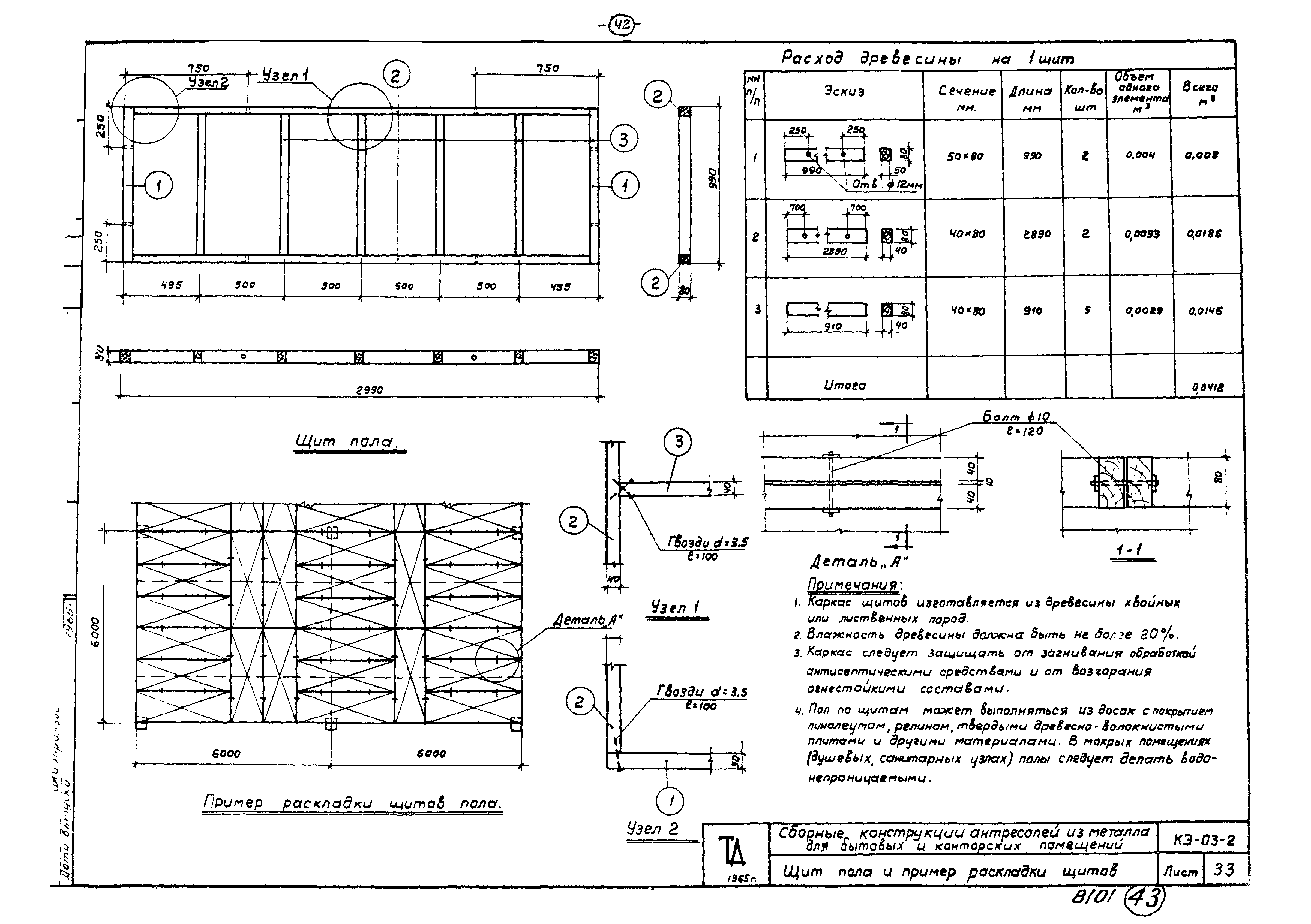
| Оглавление: | Пояснительная записка Номенклатура элементовконструкций антресолей Схемы антресолей Размещение антресолей в пролете цеха Размещение антресолей по ряду колонн цеха Маркировочная схема антресолей с поперечным расположение балок. Схема 1 Маркировочная схема антресолей с поперечным расположение балок. Схема 2 Маркировочная схема антресолей с поперечным расположение балок. Схема 3 Маркировочная схема антресолей с поперечным расположение балок. Схема 4 Маркировочная схема с продольным расположение балок. Схема 1а Маркировочная схема антресолей с продольным расположение балок. Схема 2а Маркировочная схема антресолей с продольным расположение балок. Схема 3а Маркировочная схема антресолей с продольным расположение балок. Схема 4а Маркировочные схемы лестниц Изделия и узлы Колонны КСА-36,КСА-42,КСА-48 Балка БСА Кронштейны ЛК1,ЛК2 Опора ЛО Лестничные марши ЛМ1-1,ЛМ1А-1,ЛМ1-2,ЛМ1а-2 Лестничные марши ЛМ2-1,ЛМ2А-1,ЛМ2-2,ЛМ2а-2 Лестничные марши ЛМ3-1,ЛМ3А-1,ЛМ3-2,ЛМ3а-2 Лестничные площадки ЛП,Лпа Ограждение лестничных маршей ЛОМ1,ЛОМ1а Ограждение лестничных маршей ЛОМ2,ЛОМ2а Ограждение лестничных маршей ЛОМ3,ЛОМ3а Ограждение площадок ЛОП Ограждение антресолей ЛОА Дополнительные детали Д18,Д23а и Н1,Н2 Узлы 1,2,3,4,5 Узлы 6,7,8,9,10,11 Узлы 12,13,14 Узлы 15,16,17,18,19 Узлы 20,21,22,23 Приложение Примеры планировочных решений Щит пола и пример раскладки щитов |
| Разработан: | ЦНИИпромзданий |
| Утверждён: | 12.08.1965 Главпромстройпроект Госстроя СССР |










































