Скачать Серия ПР-05-38.2 Ворота распашные 4х4,2; 4х3 и 3х3 м с автоматическим открыванием и воздушными завесами. Электрическая частьДата актуализации: 01.01.2021
|
| Обозначение: | Серия ПР-05-38.2 |
| Обозначение англ: | Series ПР-05-38.2 |
| Статус: | не действует |
| Название рус.: | Ворота распашные 4х4,2; 4х3 и 3х3 м с автоматическим открыванием и воздушными завесами. Электрическая часть |
| Дата добавления в базу: | 01.09.2013 |
| Дата актуализации: | 01.01.2021 |
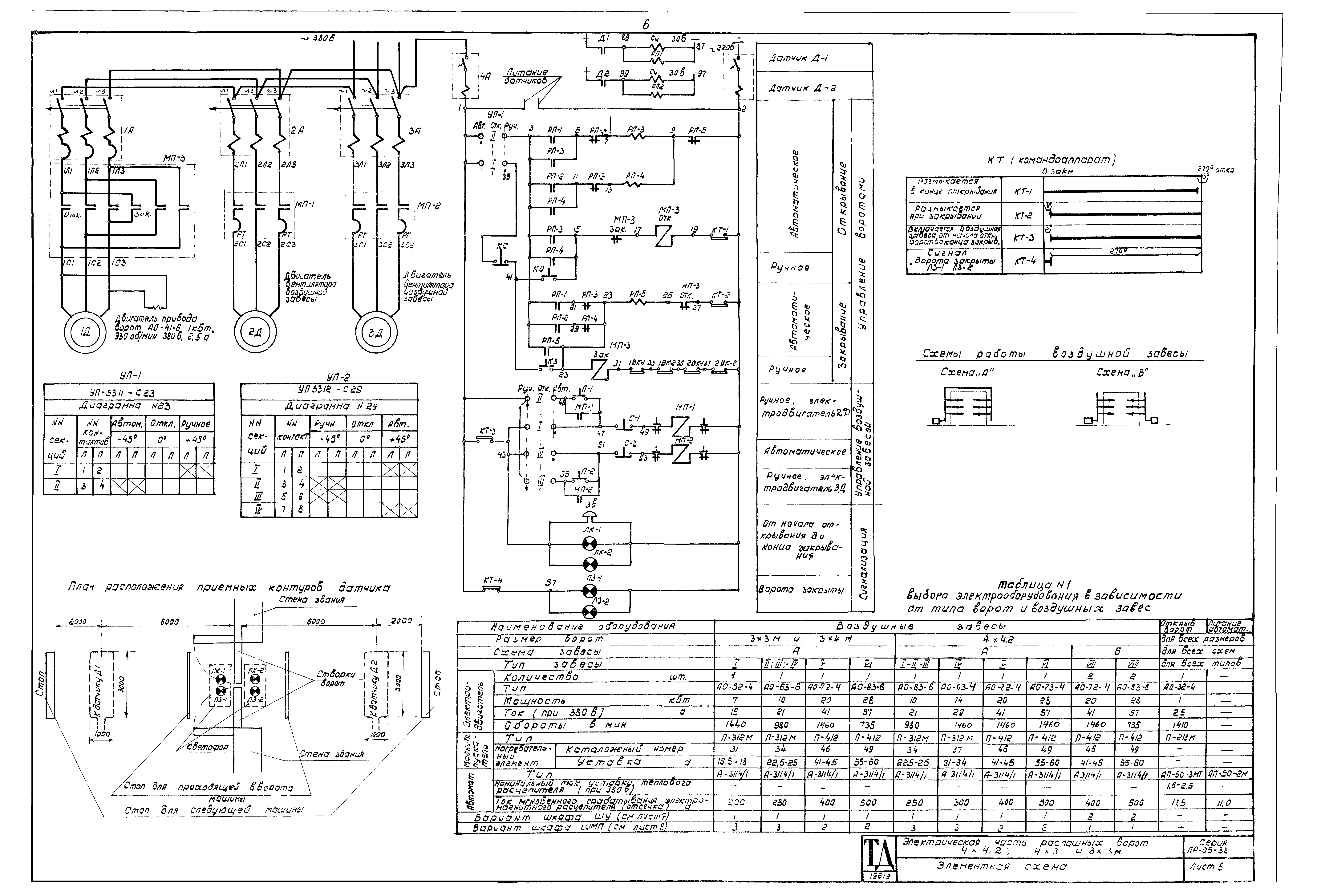
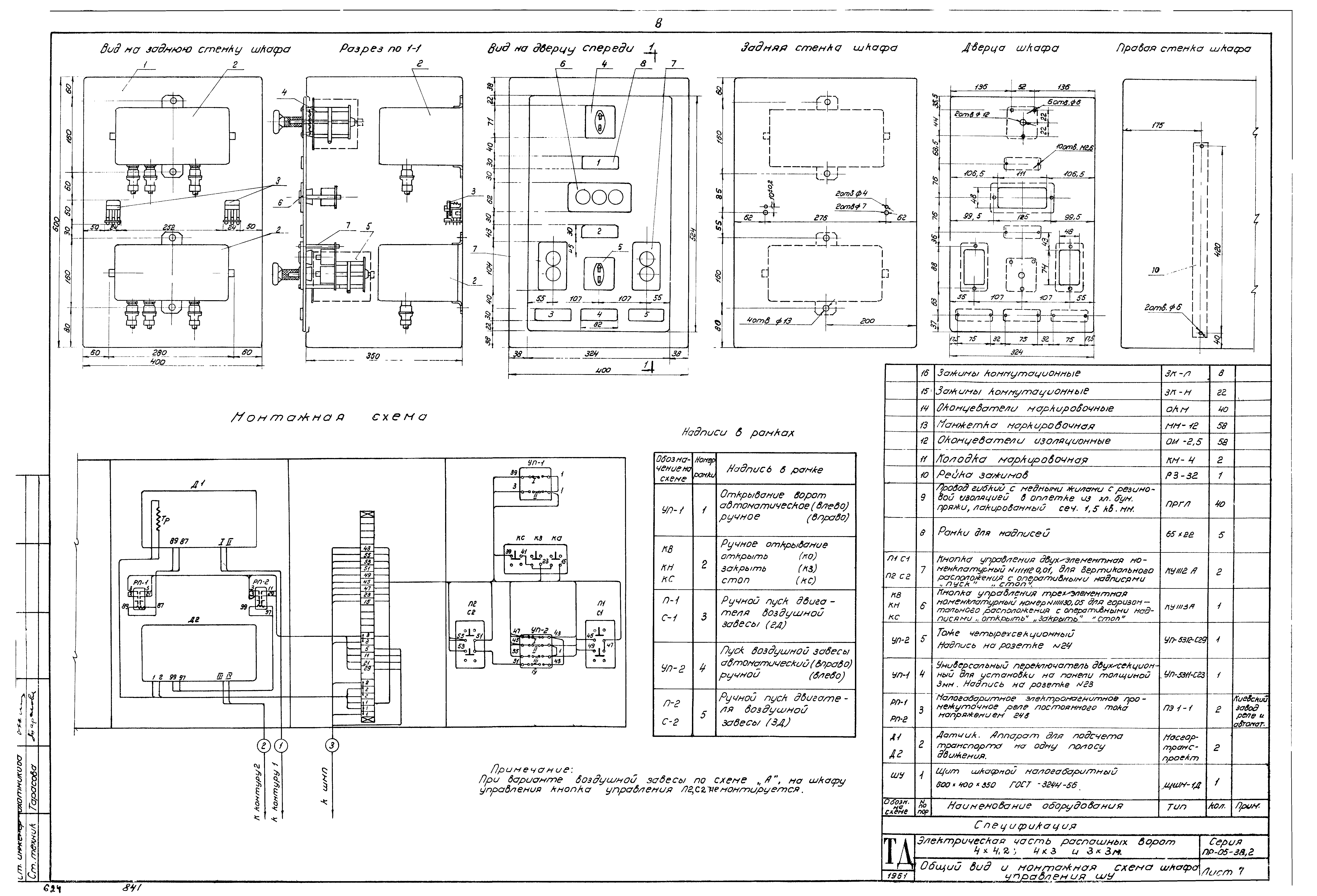
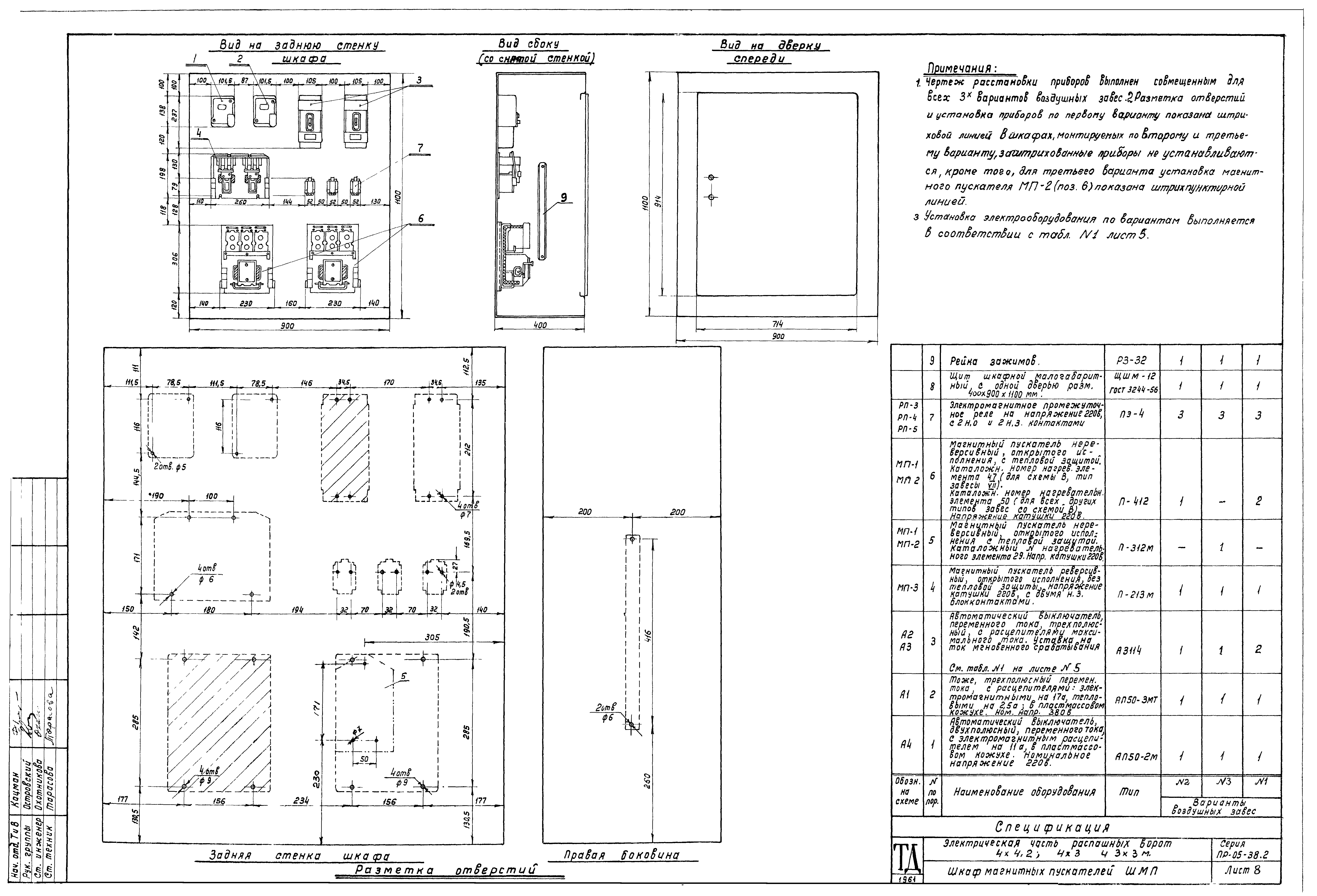
| Оглавление: | Оглавление Предисловие Размещение электрооборудования Пояснение к элементной схеме Элементная схема Общий вид и элементная схема датчика Общий вид и монтажная схема шкафа управления ШУ Шкаф магнитных пускателей ШМП Монтажная схема шкафа магнитных пускателей Схема внешних кабельных и трубных соединений |
| Разработан: | Гипротис |
| Утверждён: | 30.12.1961 Гипротис (265) |










