Скачать Серия ПР-05-42.1 Ворота раздвижные 4,7х5,6 м (однопольные и двухпольные) с автоматическим открыванием и воздушными завесами. Электрическая частьДата актуализации: 01.01.2021
|
| Обозначение: | Серия ПР-05-42.1 |
| Обозначение англ: | Series ПР-05-42.1 |
| Статус: | не действует |
| Название рус.: | Ворота раздвижные 4,7х5,6 м (однопольные и двухпольные) с автоматическим открыванием и воздушными завесами. Электрическая часть |
| Дата добавления в базу: | 01.09.2013 |
| Дата актуализации: | 01.01.2021 |
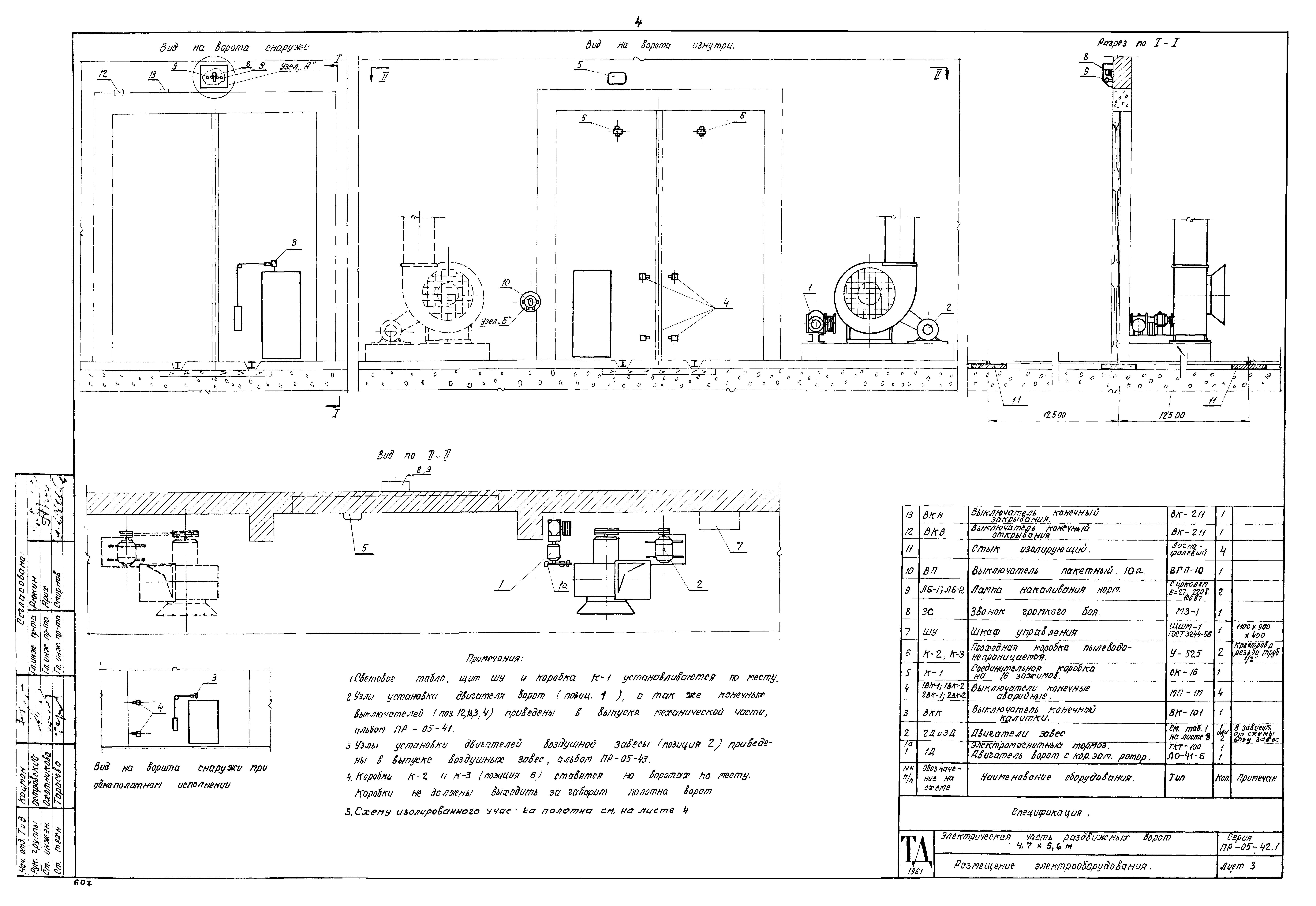
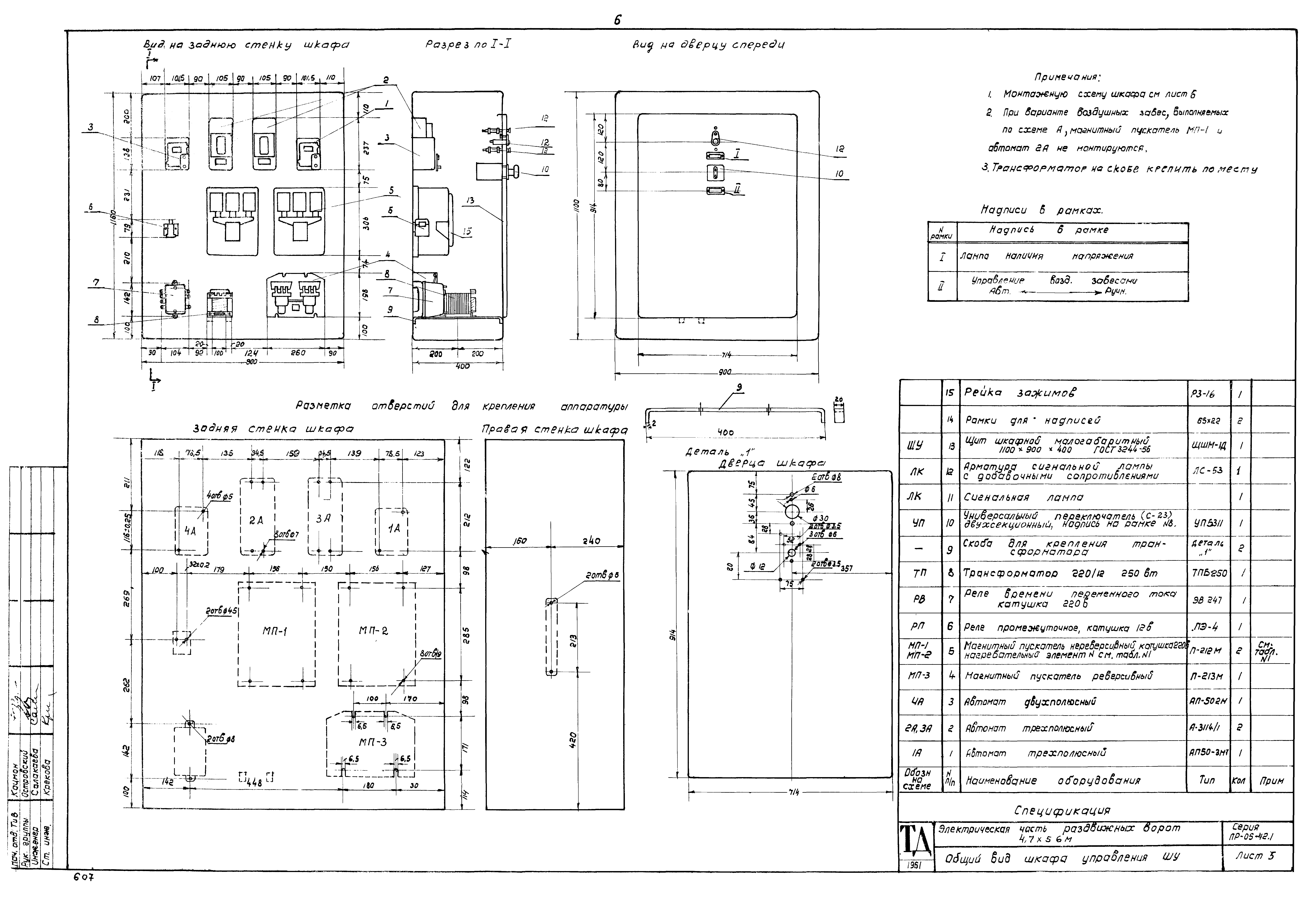
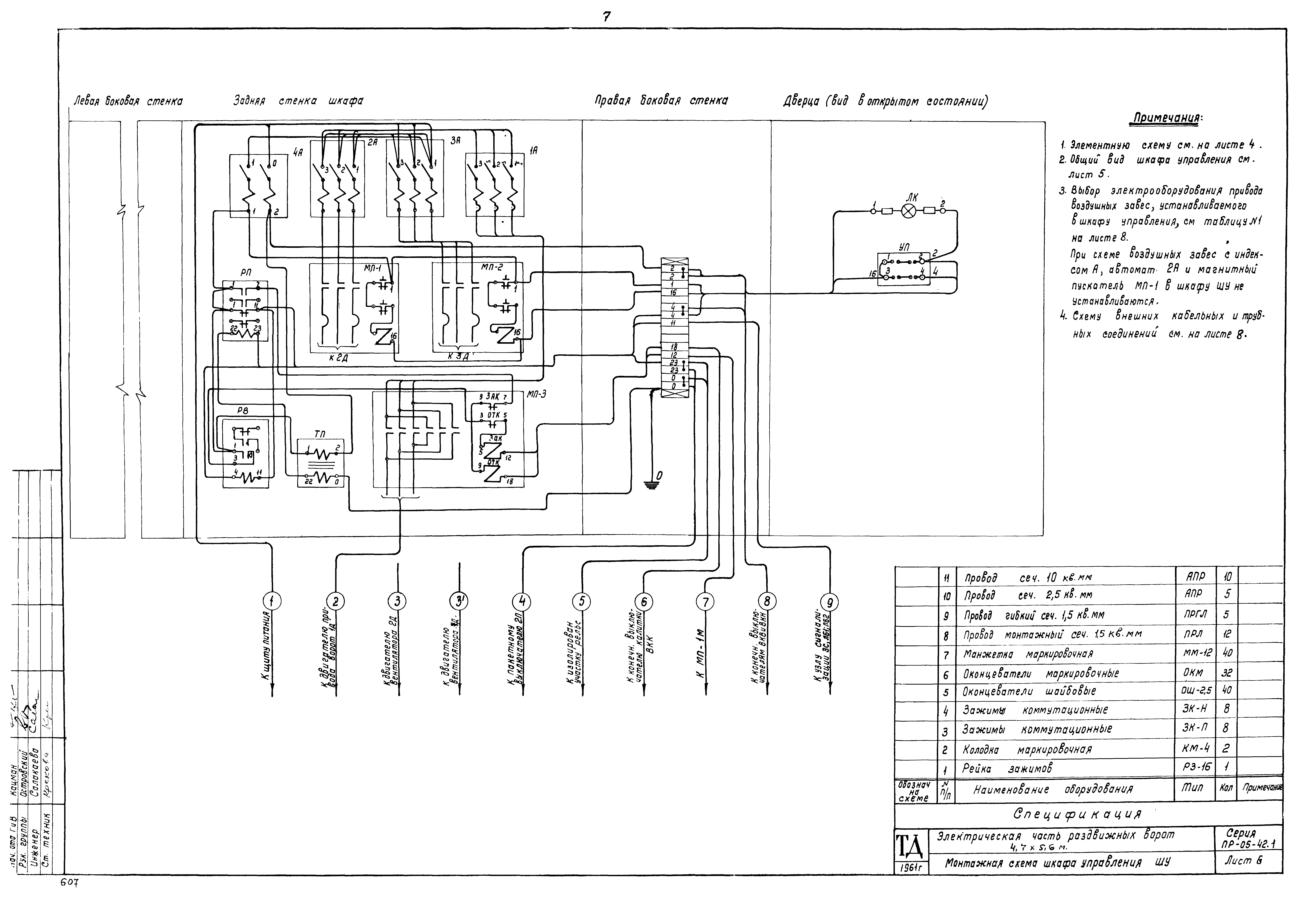
| Оглавление: | Оглавление Предисловие Размещение электрооборудования Элементная схема Общий вид шкафа управления ШУ Монтажная схема шкафа управления ШУ Узлы электрооборудования Схема внешних кабельных и трубных соединений |
| Разработан: | Гипротис |
| Утверждён: | 30.12.1961 Гипротис (265) |








