Скачать Серия ПР-05-58 Выпуск 1. Рабочие чертежиДата актуализации: 01.01.2021
|
| Обозначение: | Серия ПР-05-58 |
| Обозначение англ: | Series ПР-05-58 |
| Статус: | не действует |
| Название рус.: | Выпуск 1. Рабочие чертежи |
| Дата добавления в базу: | 01.09.2013 |
| Дата актуализации: | 01.01.2021 |
| Дата введения: | 01.03.1968 |
| Дата окончания срока действия: | 01.10.1977 |
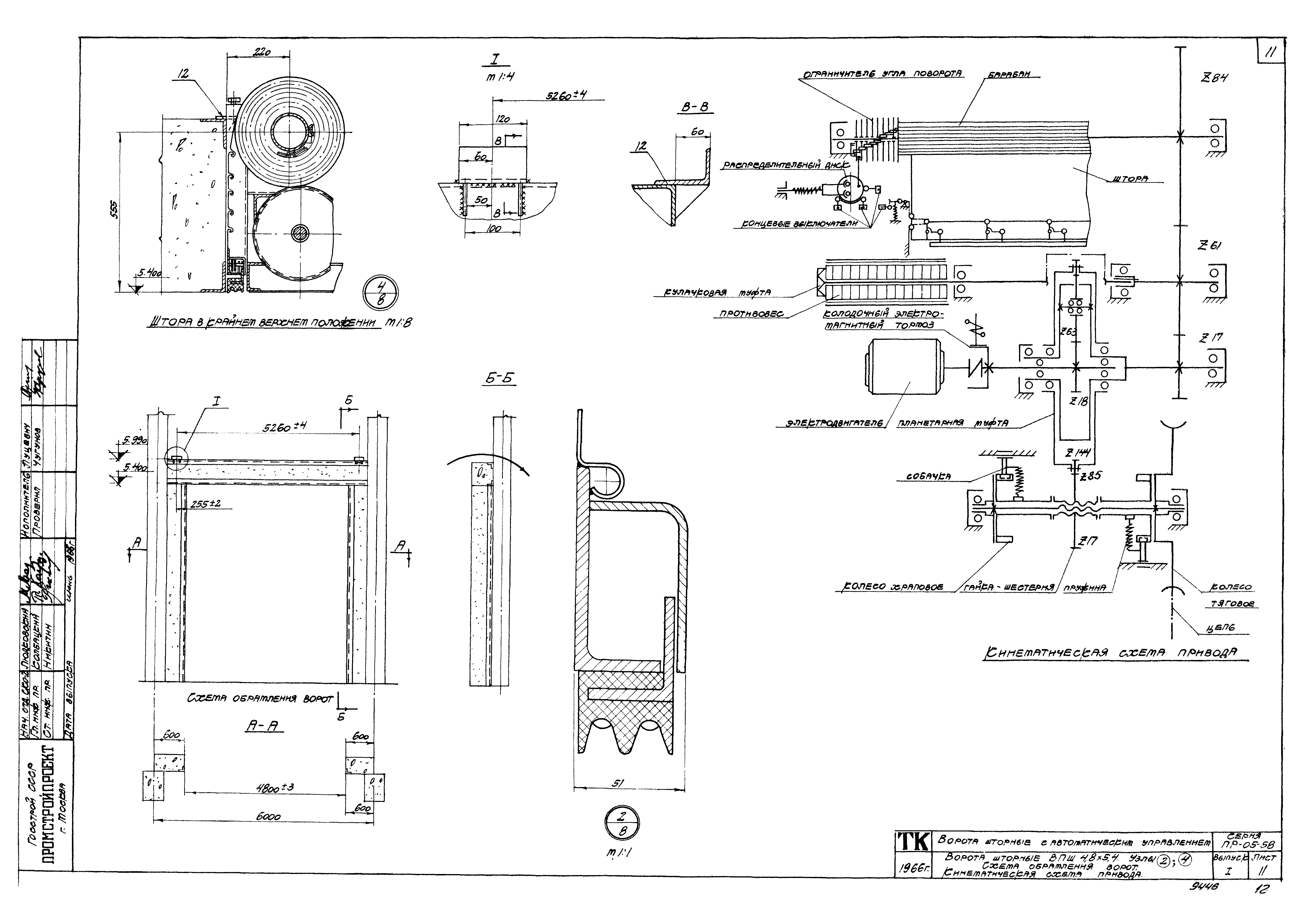
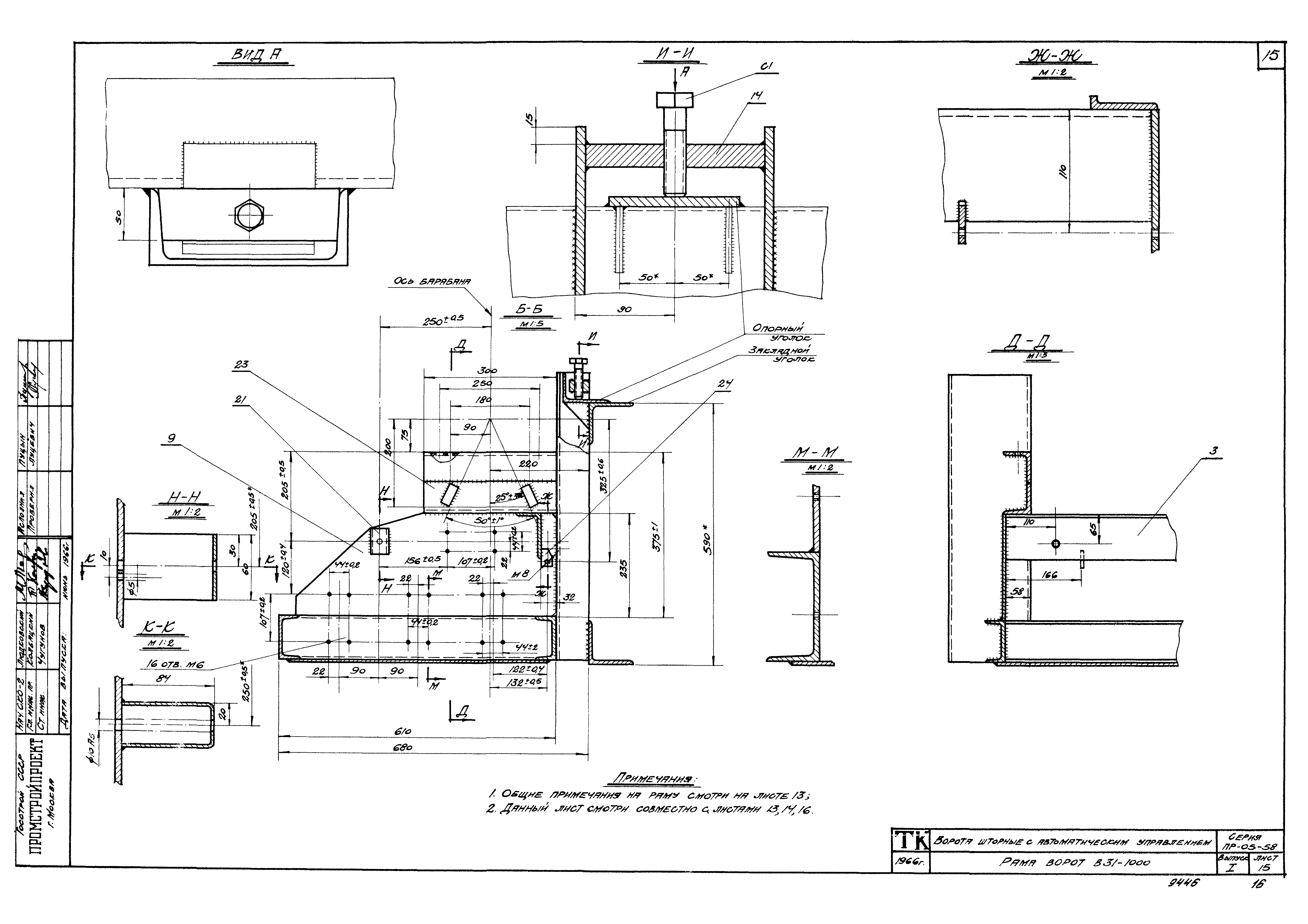
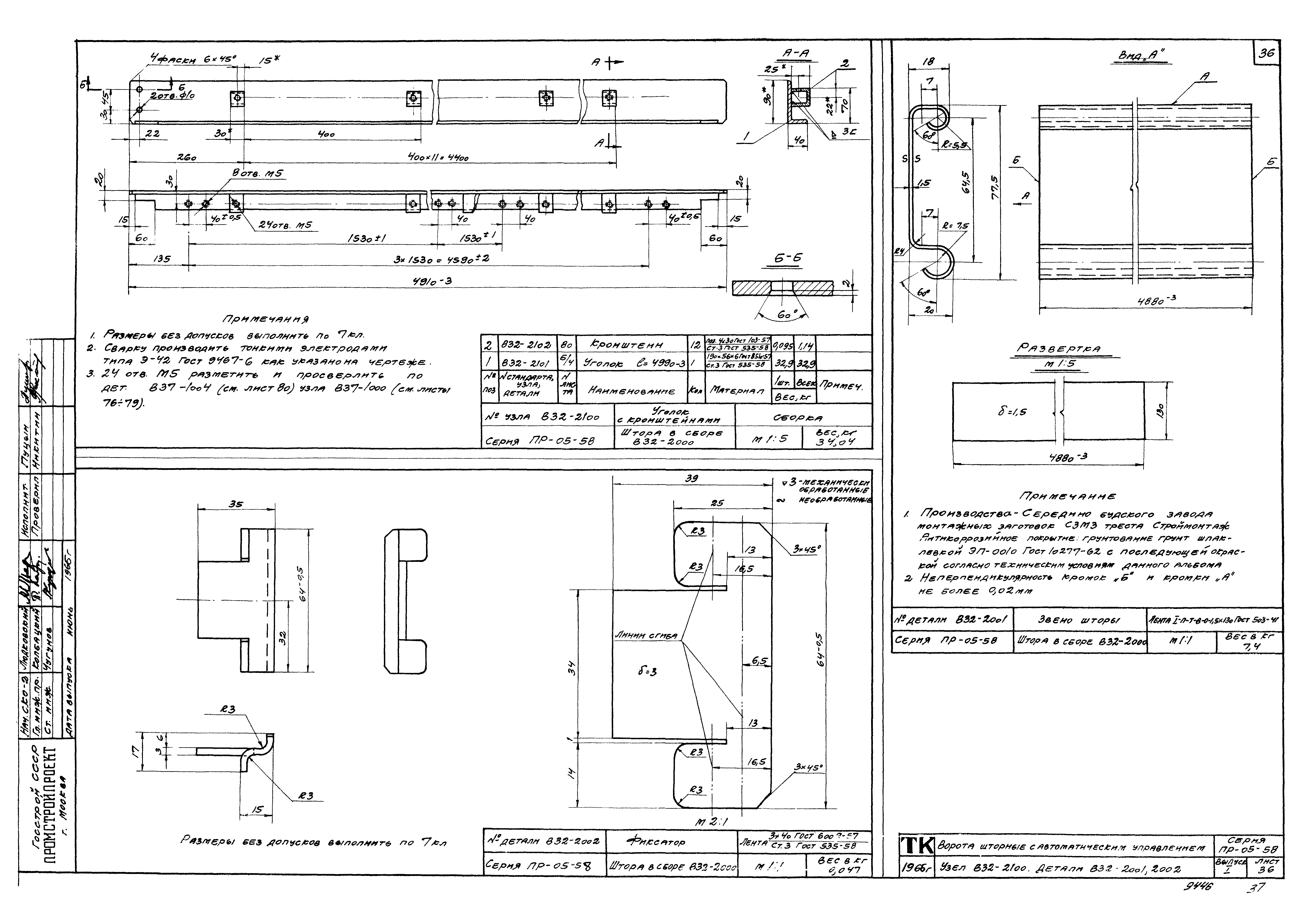
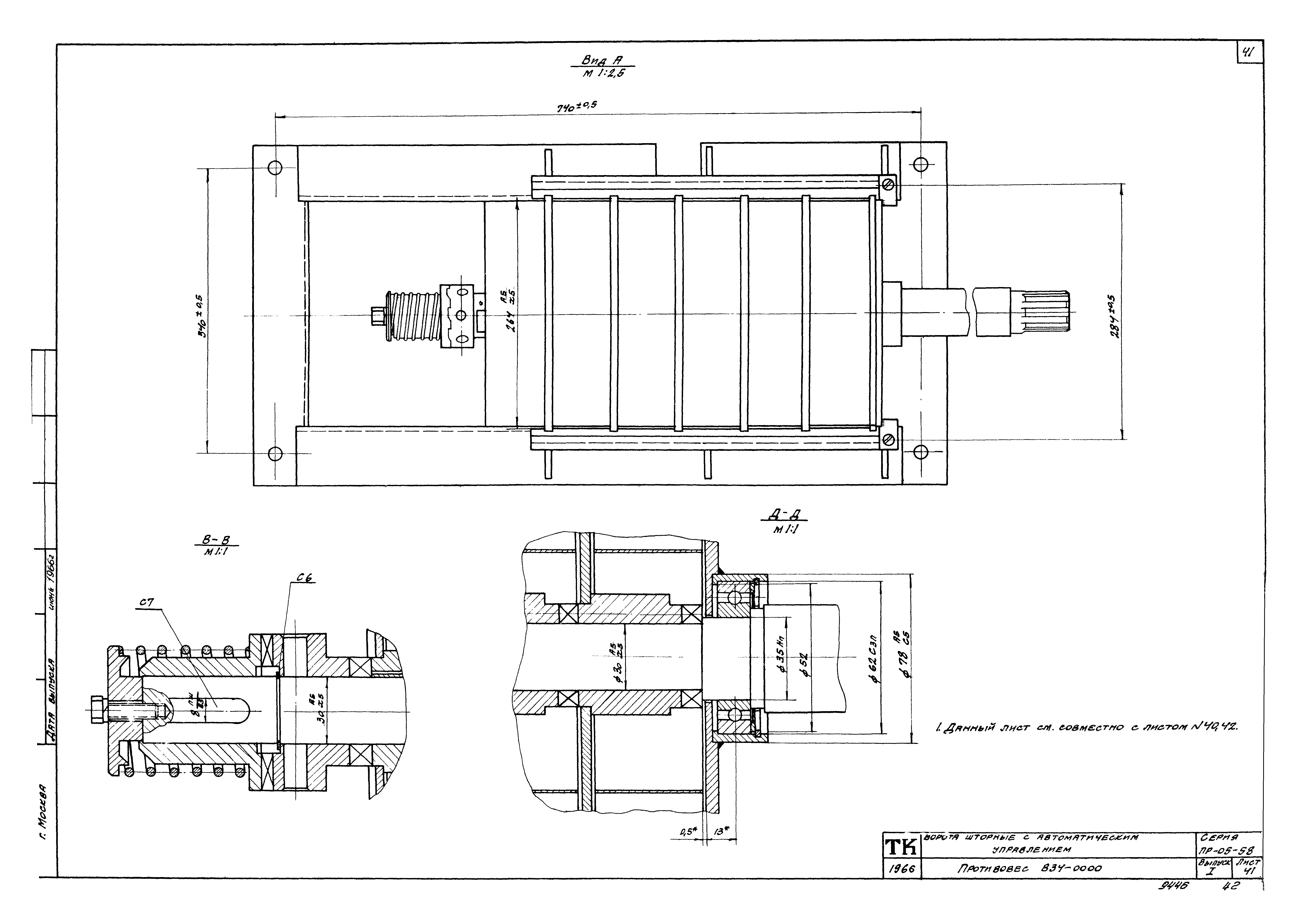
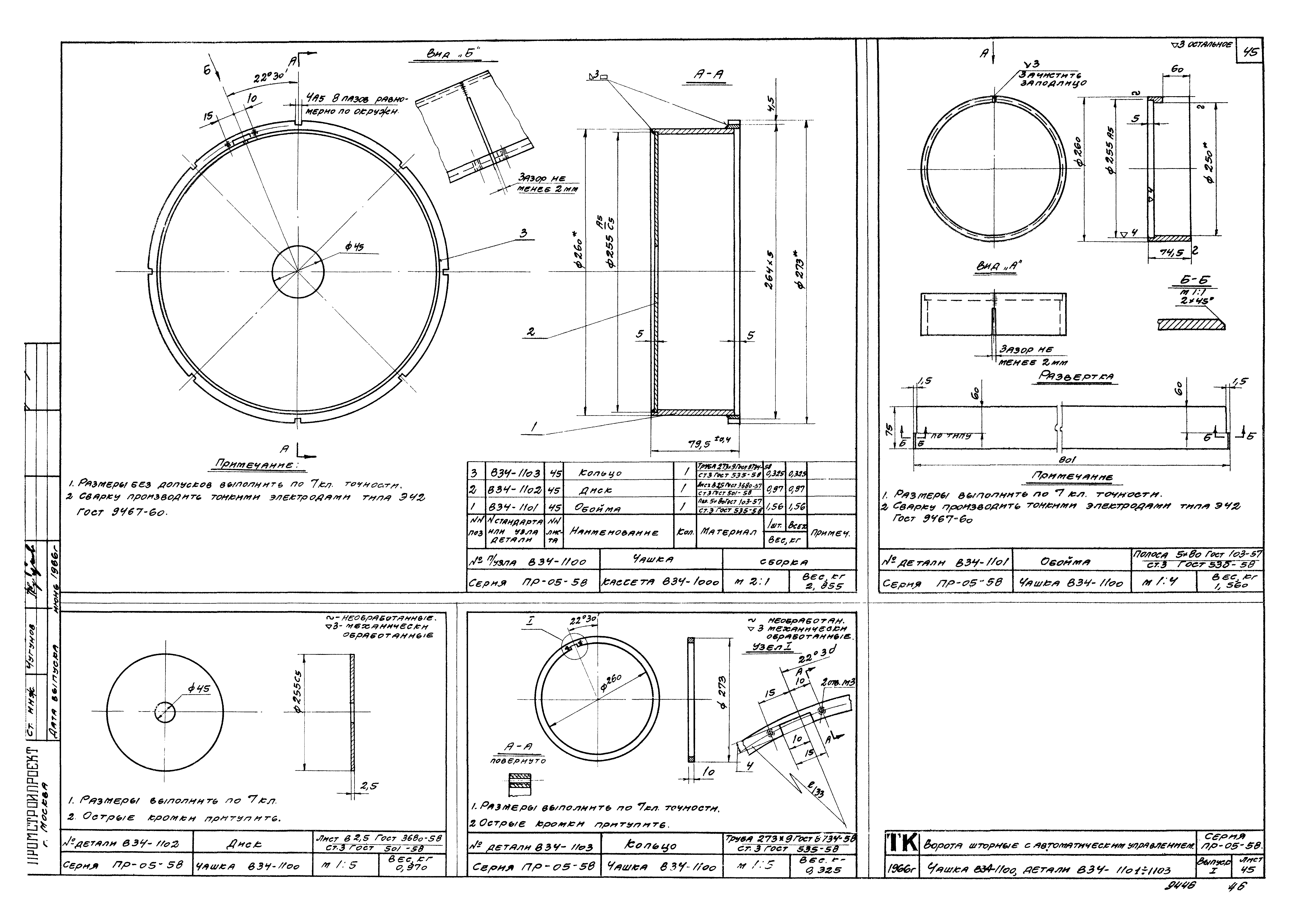
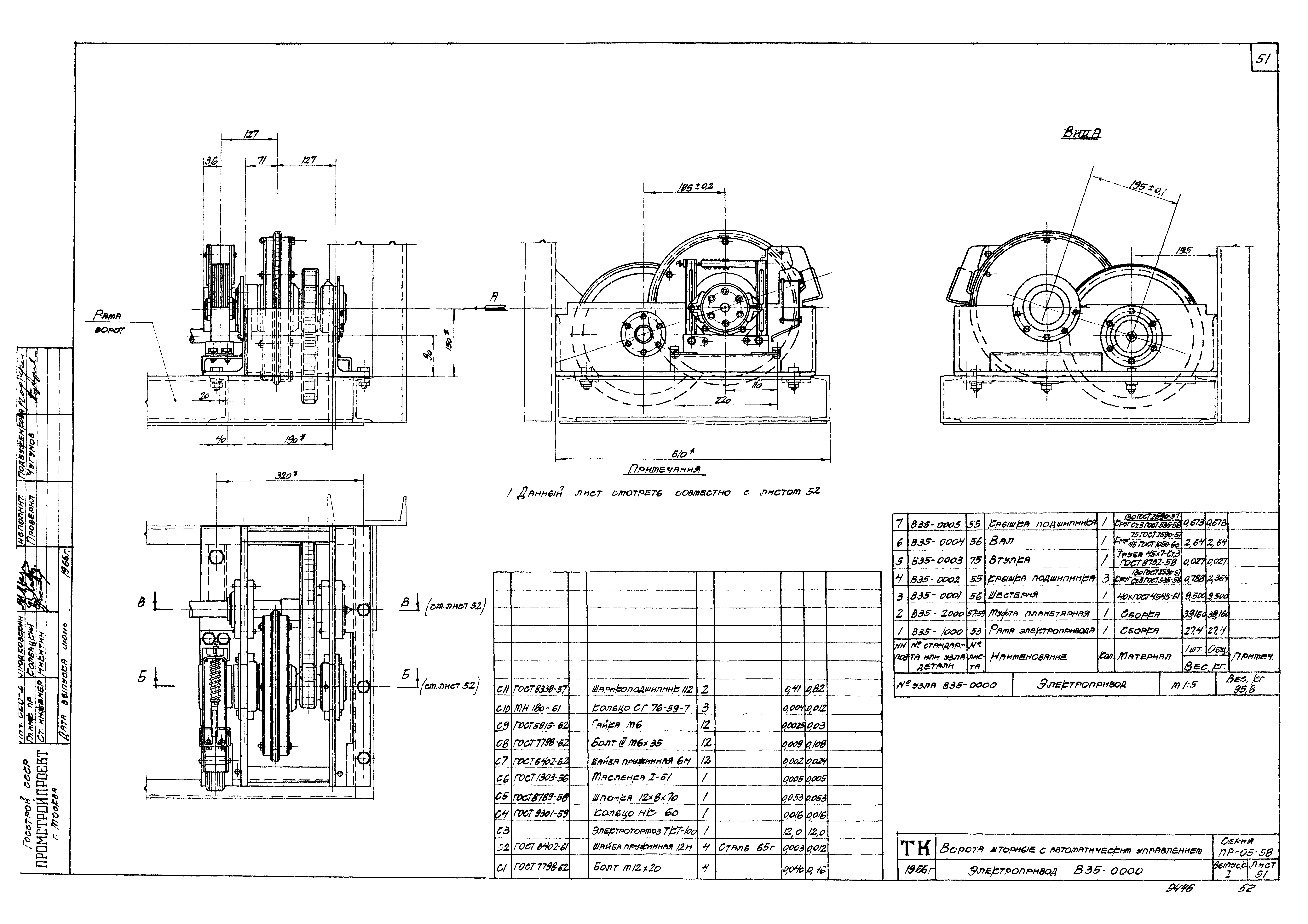
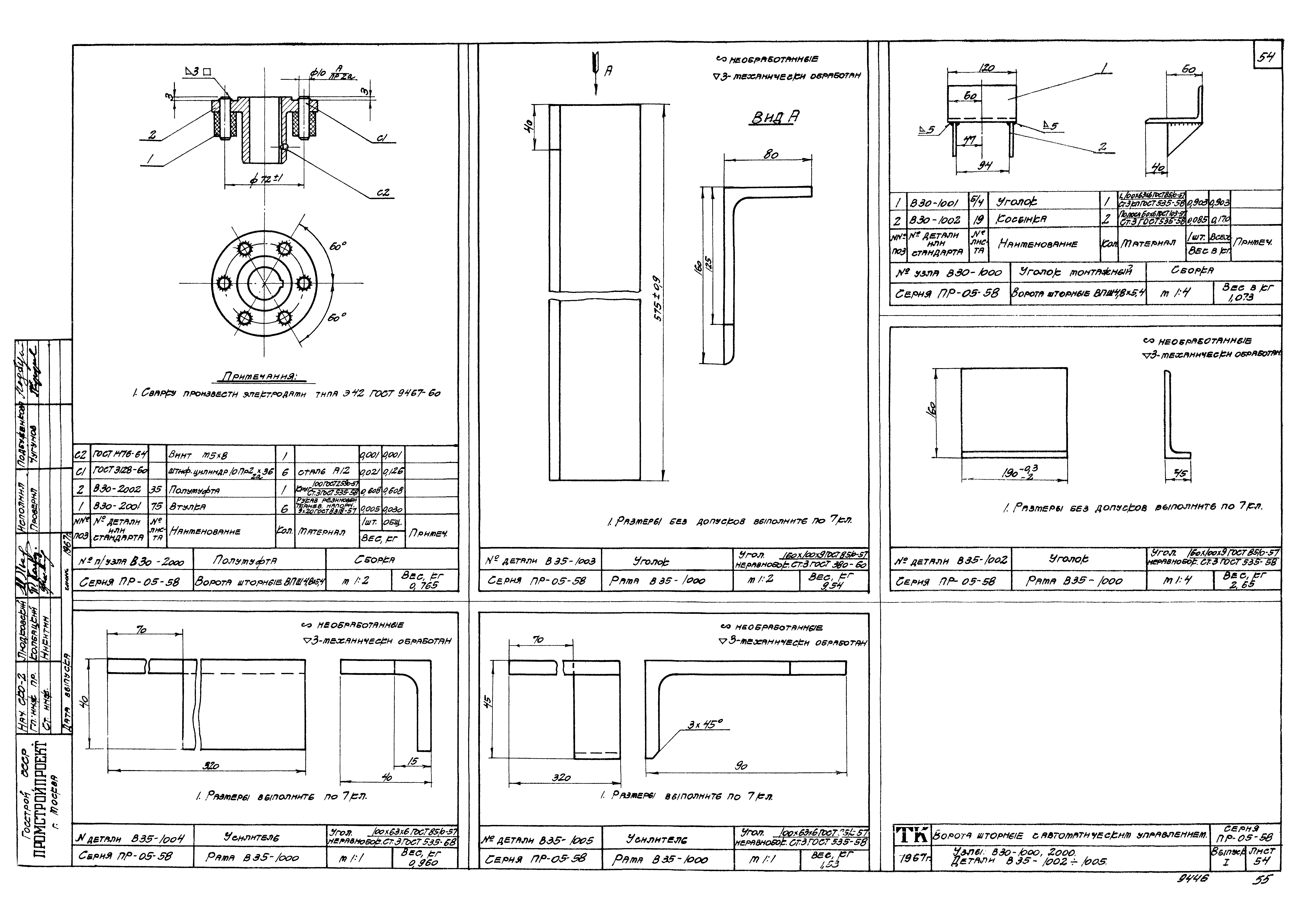
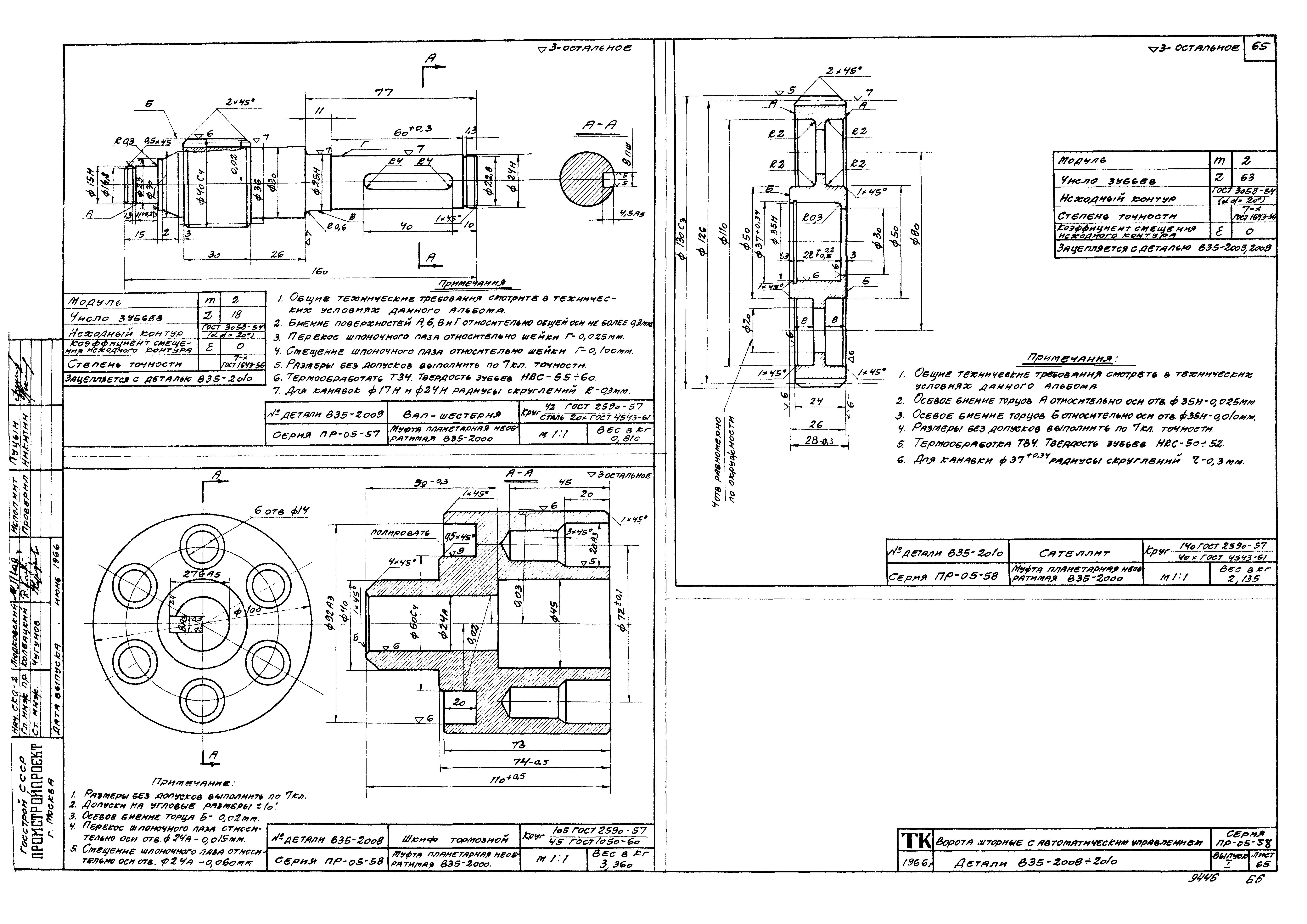
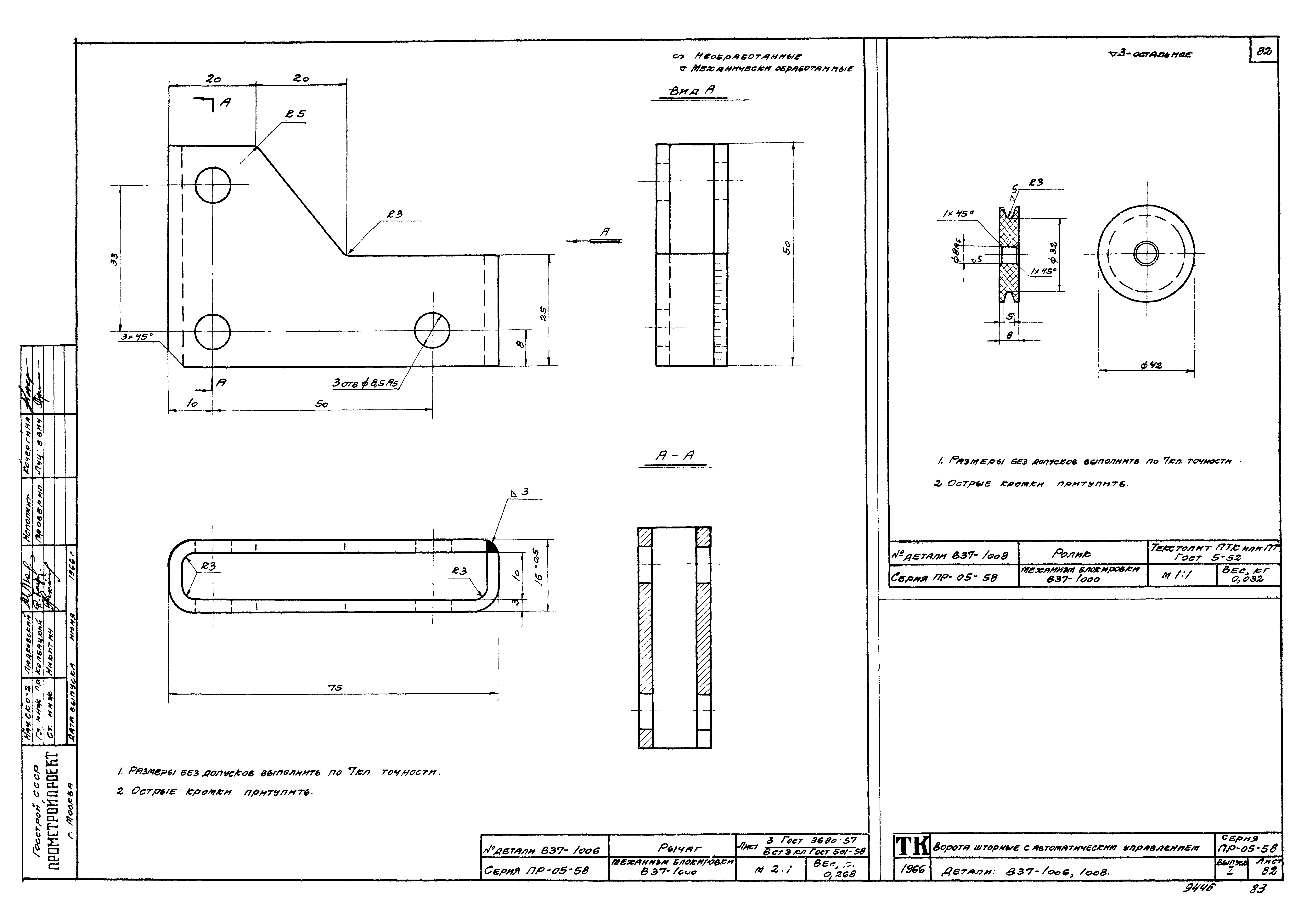
| Оглавление: | Содержание альбома Пояснительная записка Пояснительная записка (окончание) Технические условия на ворота Технические условия на ворота (продолжение) Технические условия на ворота (окончание) Ворота шторные ВПШ4,8х5,4. Общий вид Ворота шторные ВПШ4,8х5,4. Узел 1 Ворота шторные ВПШ4,8х5,4. Узлы 2,4. Схема обрамления ворот. Кинематическая схема привода Ворота шторные ВПШ4,8х5,4. Пояснения к монтажу Рама ворот В31-1000 Детали В31-1002-1004,1013 Детали В31-1005-1007,1009,1011 Детали В30-1002,В31-1012,1014,1016-1020 Кожух В31-2000 Схема установки кожуха В31-2000 Детали В31-2001,2003-2005,1022-1024 Барабан и штора в сборе. В32-0000 Барабан в сборе В32-1000 Штора в сборе В32-2000 Узел В32-1100. Детали В32-1101-1103 Узел В32-1500. Детали В32-1101,1012,1501,1502 Узел В32-1200. Детали В32-1201,1004,1005 Детали В32-1002,1003,1007 Узлы В32-1300,1400. Детали В32-1302,1303,1401,1402 Узлы В32-1600. Детали В32-1301,1601,1602 Детали В30-0001,2002,В32-1008-1011 Узел 332-2100, детали В32-2001,2002 Направляющие В33-0000 Узлы В33-1000,2000. Деталь В33-002 Детали В33-0001,0003,1001 Противовес В34-0000 Кассета В34-1000 Пружина В34-1002 Чашка В34-1100. Детали В34-1101-1103 Рама противовеса Детали В34-2001,2003-2006 Узел В34-3000. Детали В34-3002,В34-3003 Детали В34-0001,0004,1001,1003,3001 Детали В34-0002,0003,1005,1006 Электропривод В35-0000 Электропривод В35-000 Рама электропривода В35-1000 Узлы В30-1000,2000. Детали В35-1002,1005 Детали В35-0002,0005 Детали В35-0001,0004 Муфта планетарная В35-2000 Узлы В35-2100,2200. Детали В35-2102,2201 Детали В35-2101,2103,2202,2006 Детали В35-2001-2003,2014 Деталь В35-2004 Детали В35-2001-2005,2011 Детали В35-2001-2008-2010 Детали В35-2012,2013,2015-2017,В32-2004 Ручной привод В36-1000 Узел В36-1100. Детали В36-1005,1006,1101 Детали В36-1001-1003 Детали В36-1004,1018 Детали В36-1007,1008,1011,1102,1103,1105,В30-0002 Детали В36-1009,1013-1017 Детали В32-2003,В35-1001,1006 Детали В37-2105,В30-2001,В350003,В32-2005,1006 Механизм блокировки В37-1000 Детали В37-1004,1009,В32-2102 Детали: В37-1003,1005,1007,1010,1012,1013 Детали: В37-1006,1008 Детали: В37-1001,1002,1011 Конечные выключатели В37-2000 Узлы В37-2100,2200. Детали: В37-2101,2102 Узлы В37-2300. Детали: В37-2301,2302,2005-2008 Детали В35-2007,В37-2001-2004 Детали В37-2103,2104,2201-2205,2009 Элементная схема и перечень электрооборудования В38-1000 ШСУ. Общие виды, монтажные схемы и спецификация В38-2000 Схема внешних соединений и кабельный журнал В38-3000 Расположение электрооборудования и прокладка труб В38-4000 Рама ворот. Расположение электрооборудования и прокладка труб В38-5000 Ящик клеммный и скобы В38-5001 Сводная спецификация изготовляемых узлов и деталей (на листы 8-89) Сводная спецификация изготовляемых узлов и деталей (продолжение) Сводная спецификация изготовляемых узлов и деталей (окончание) Выборка материалов из сводной спецификации, изготовляемых узлов и деталей Сводная спецификация на стандартные детали (на листы 8-89) Сводная спецификация электрооборудования (на листы 90-96)и материалов |
| Разработан: | Промстройпроект |
| Утверждён: | 29.08.1967 Госстрой СССР (Государственный комитет Совета Министров СССР по делам строительства) (USSR Gosstroy 159) |




































































































