Скачать Серия ПР-05-37/65 Ворота распашные 4,7х5,6; 4х4,2; 4х3 и 3х3 м с автоматическим открыванием и тепловоздушными завесами. Механизмы для открывания ворот. Рабочие чертежиДата актуализации: 01.01.2021
|
| Обозначение: | Серия ПР-05-37/65 |
| Обозначение англ: | Series ПР-05-37/65 |
| Статус: | не действует |
| Название рус.: | Ворота распашные 4,7х5,6; 4х4,2; 4х3 и 3х3 м с автоматическим открыванием и тепловоздушными завесами. Механизмы для открывания ворот. Рабочие чертежи |
| Дата добавления в базу: | 01.09.2013 |
| Дата актуализации: | 01.01.2021 |
| Дата введения: | 10.12.1965 |
| Дата окончания срока действия: | 01.10.1977 |
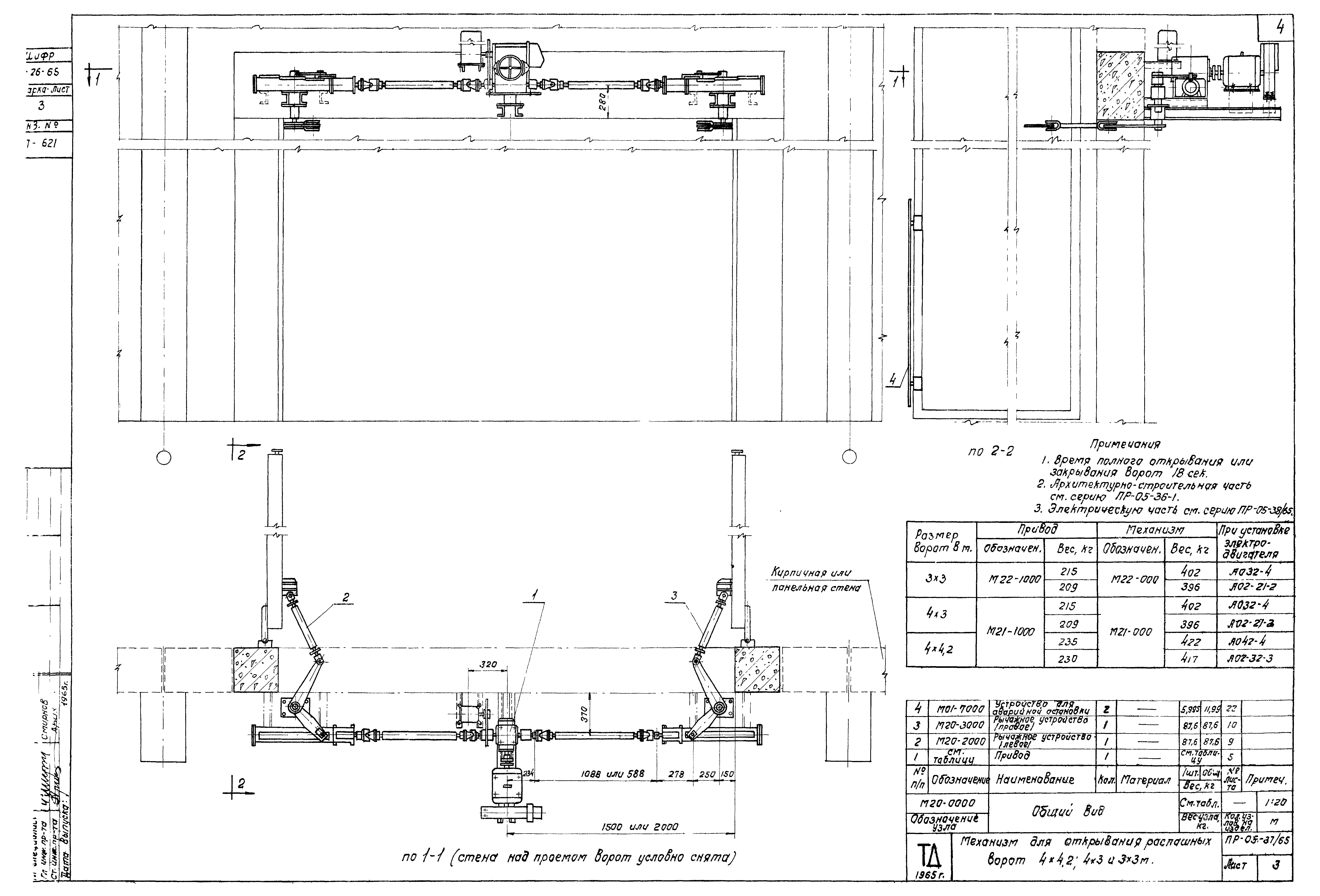
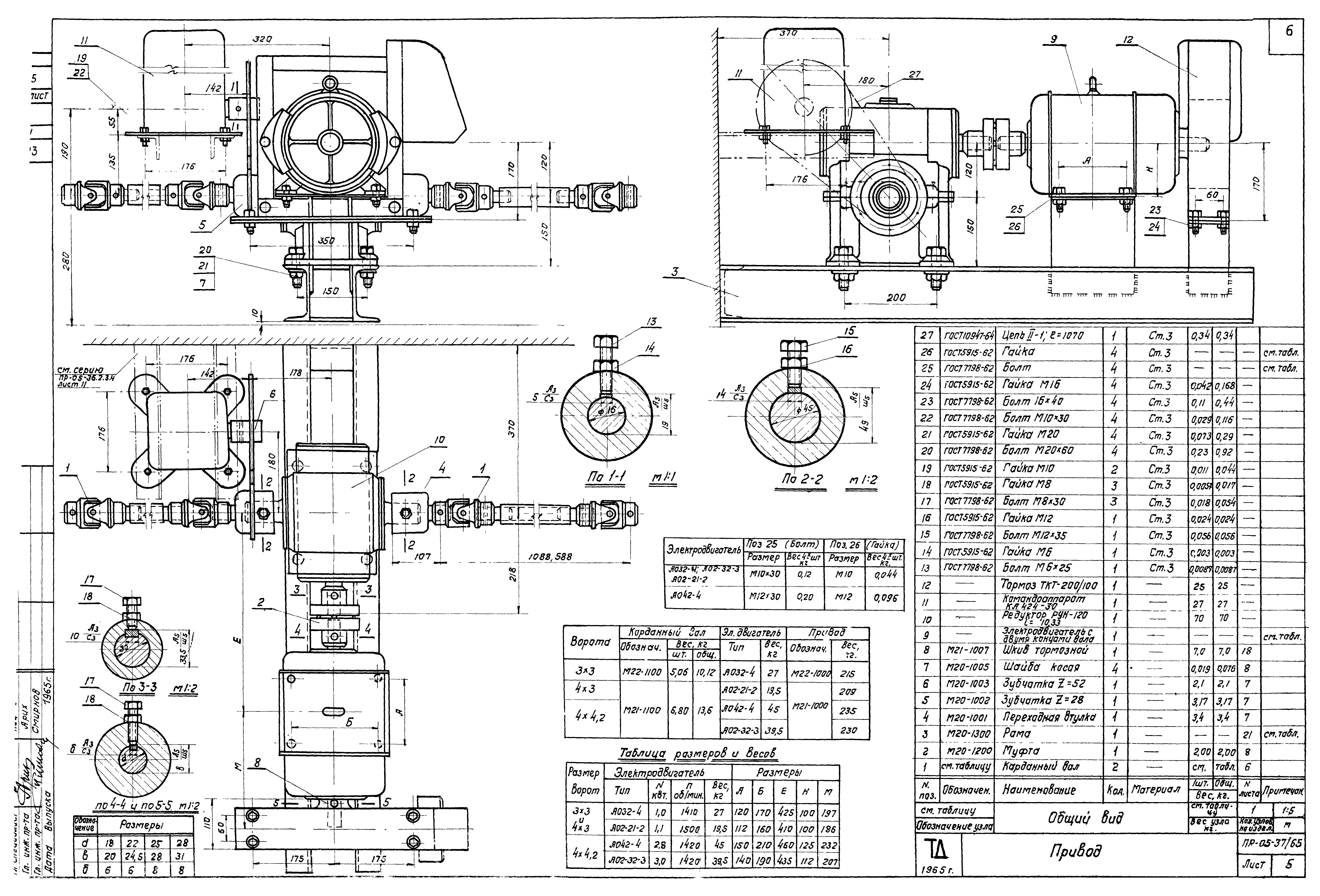
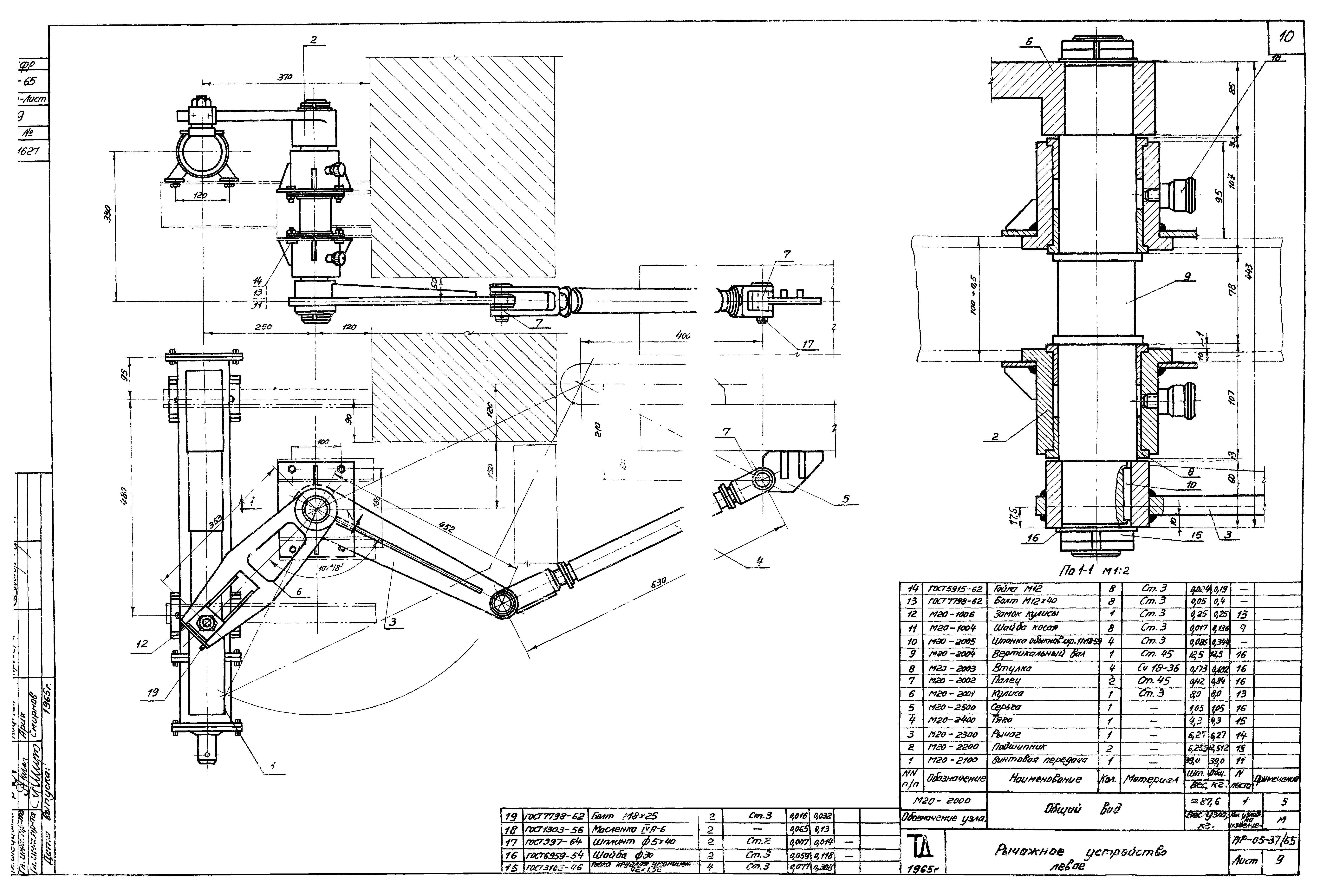
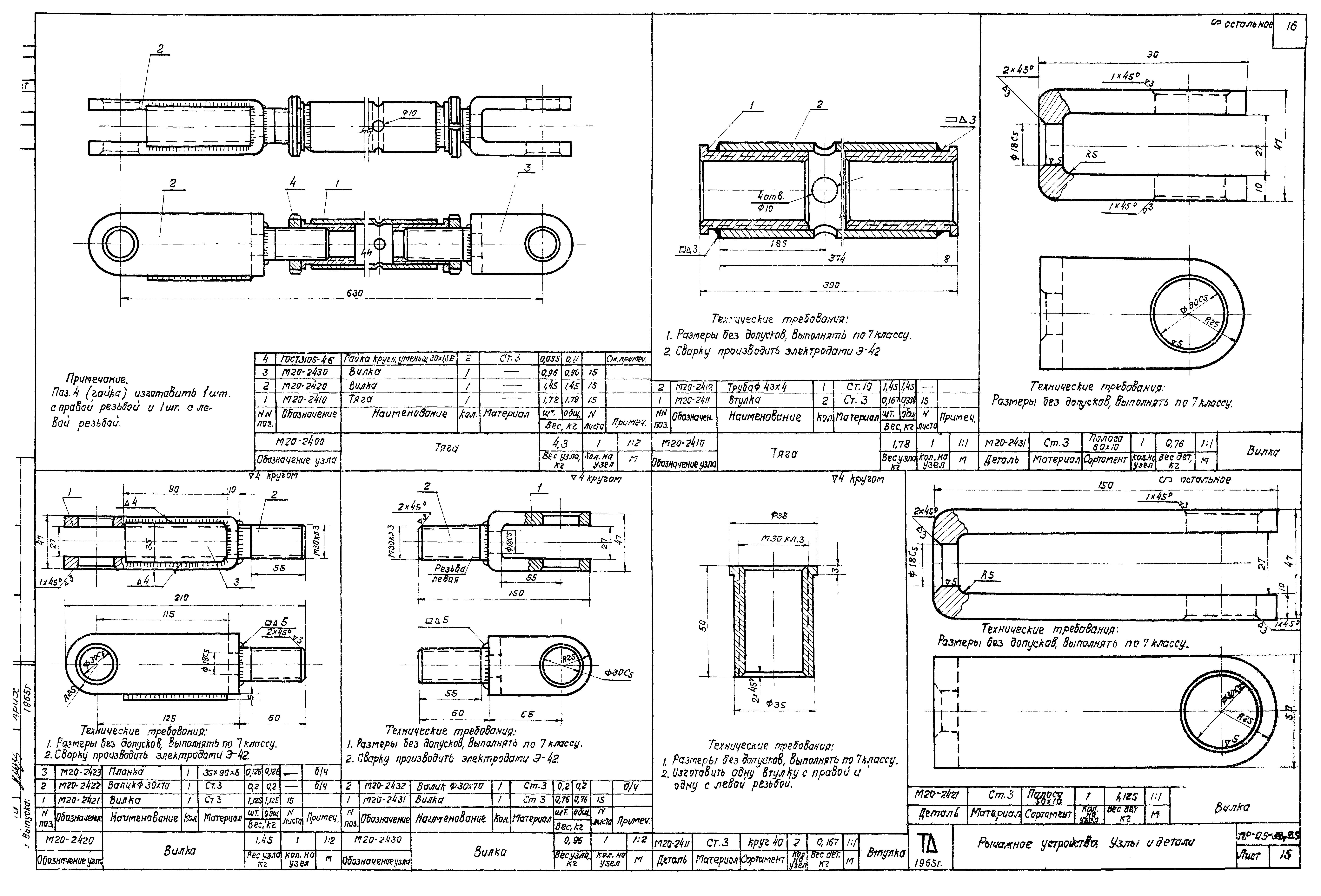
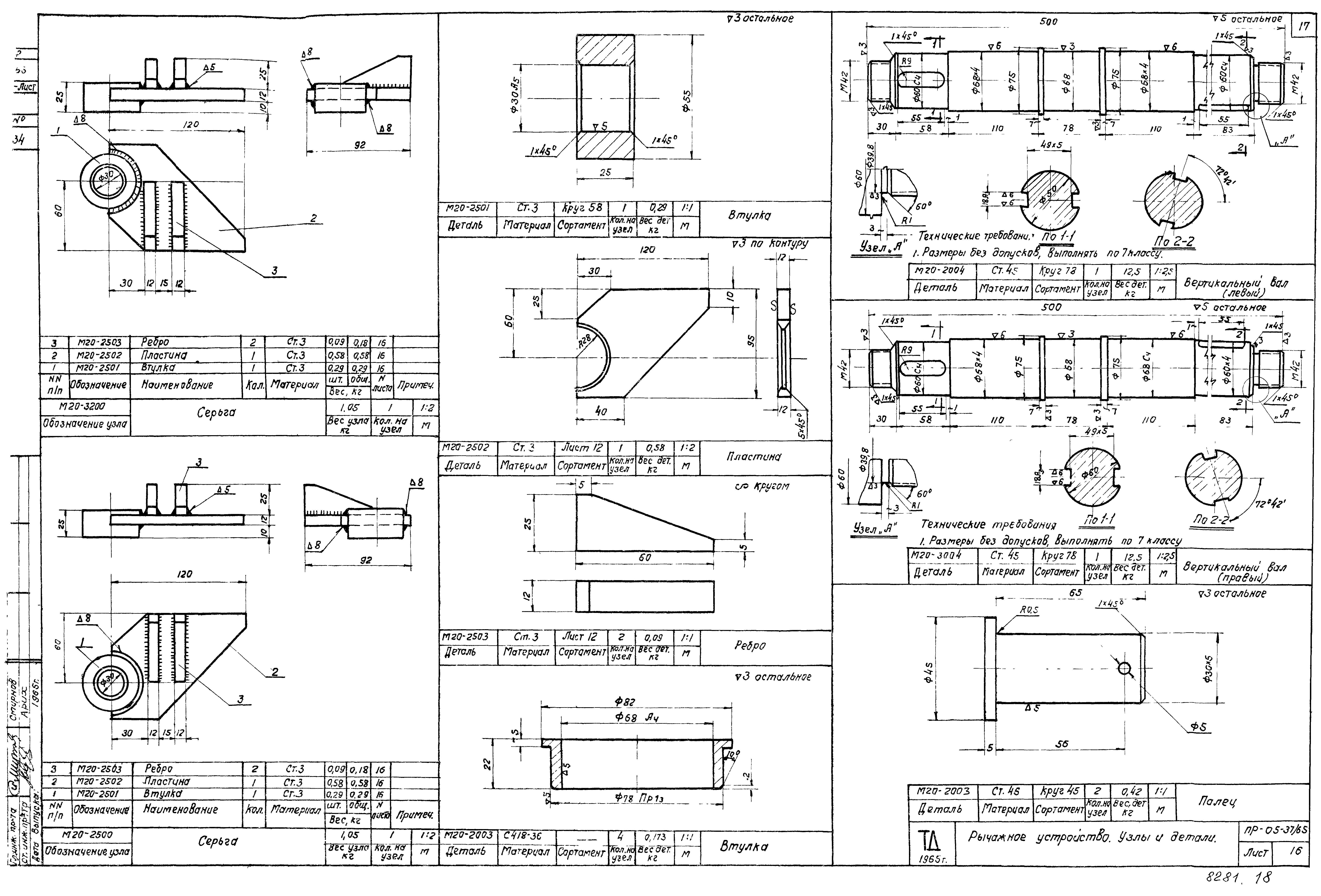
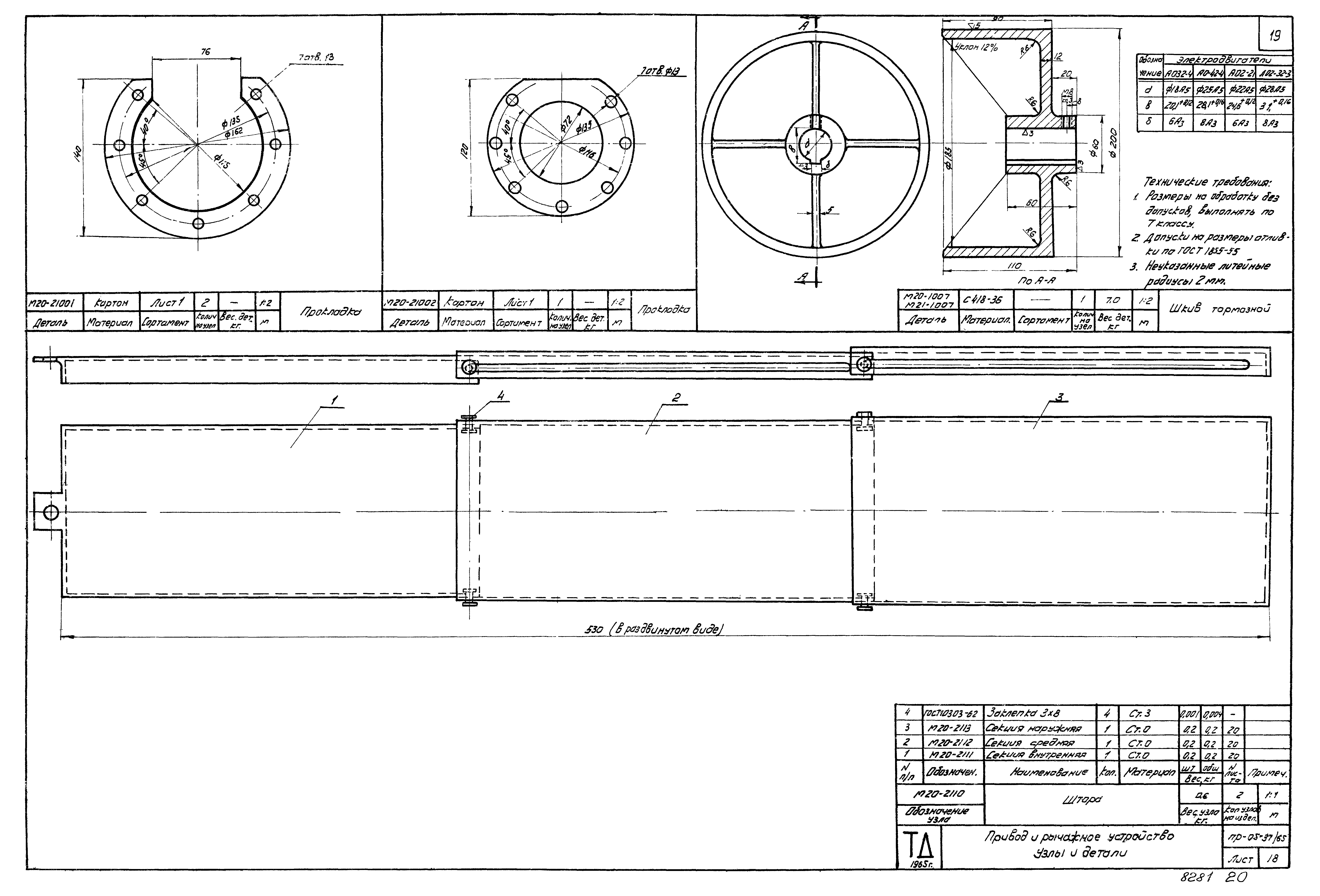
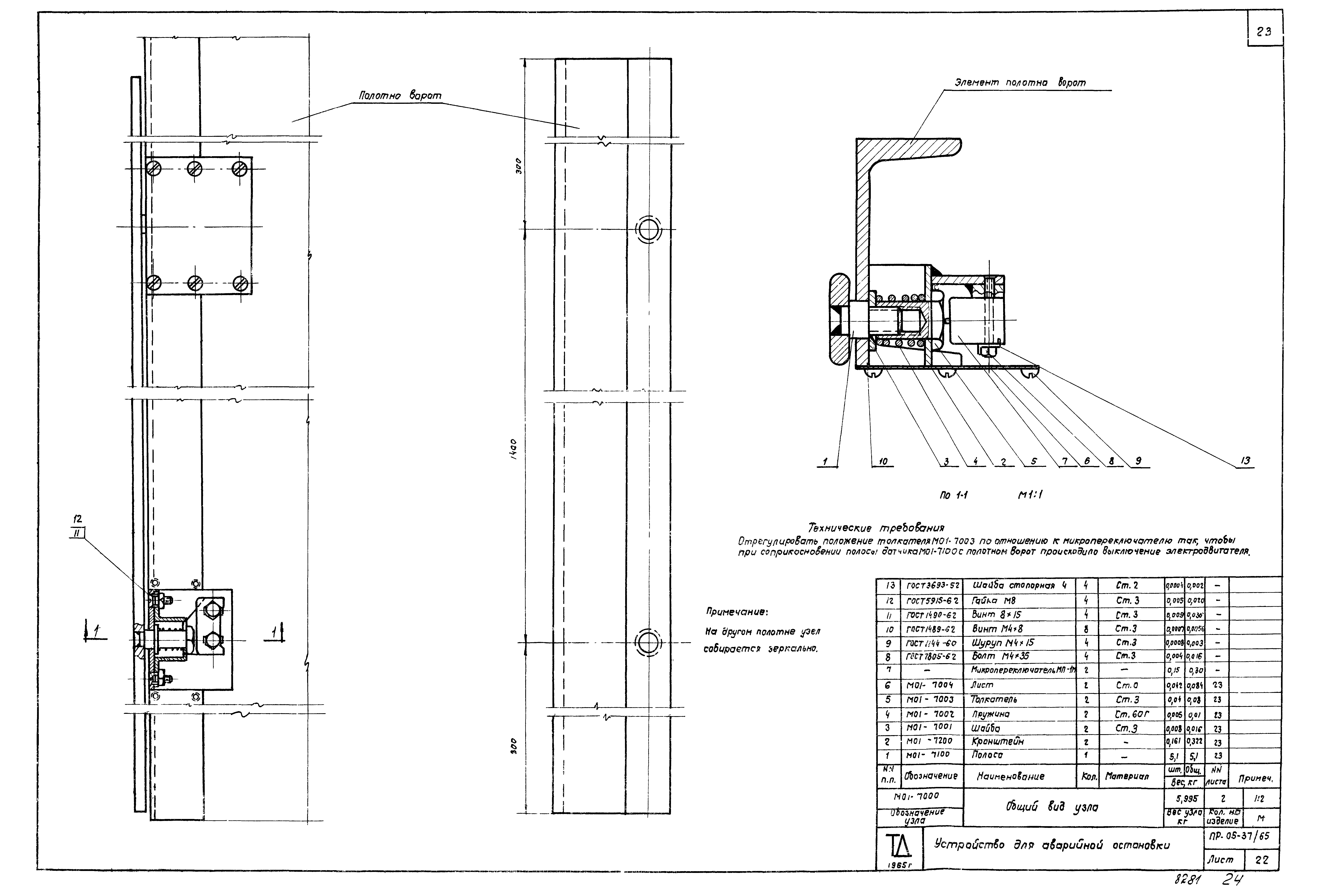
| Оглавление: | Пояснительная записка и перечень чертежей Механизм для открывания распашных ворот 4,7х5,6 м Механизм для открывания распашных ворот 4х4,2;4х3 и 3х3 м Привод Привод. Узлы Привод. Детали Привод и рычажное устройство. Узлы и детали Рычажное устройство левое Рычажное устройство правое Рычажное устройство. Узлы Рычажное устройство. Узлы и детали Привод и рычажное устройство. Узлы и детали Рычажное устройство. Детали Привод. Узлы и детали Устройство для аварийной остановки Устройство для аварийной остановки. Детали |
| Разработан: | ЦНИИпромзданий |
| Утверждён: | 24.11.1965 ЦНИИпромзданий (TsNIIpromzdaniy 35) |

























