Скачать Типовой проект 184-000-382.86 Альбом 1. Архитектурно-строительные решения. Отопление и вентиляция. Внутренние водопровод и канализация. Электротехнические решения. Связь и сигнализацияДата актуализации: 01.01.2021
|
| Обозначение: | Типовой проект 184-000-382.86 |
| Обозначение англ: | 184-000-382.86 |
| Статус: | не действует |
| Название рус.: | Альбом 1. Архитектурно-строительные решения. Отопление и вентиляция. Внутренние водопровод и канализация. Электротехнические решения. Связь и сигнализация |
| Дата добавления в базу: | 01.09.2013 |
| Дата актуализации: | 01.01.2021 |
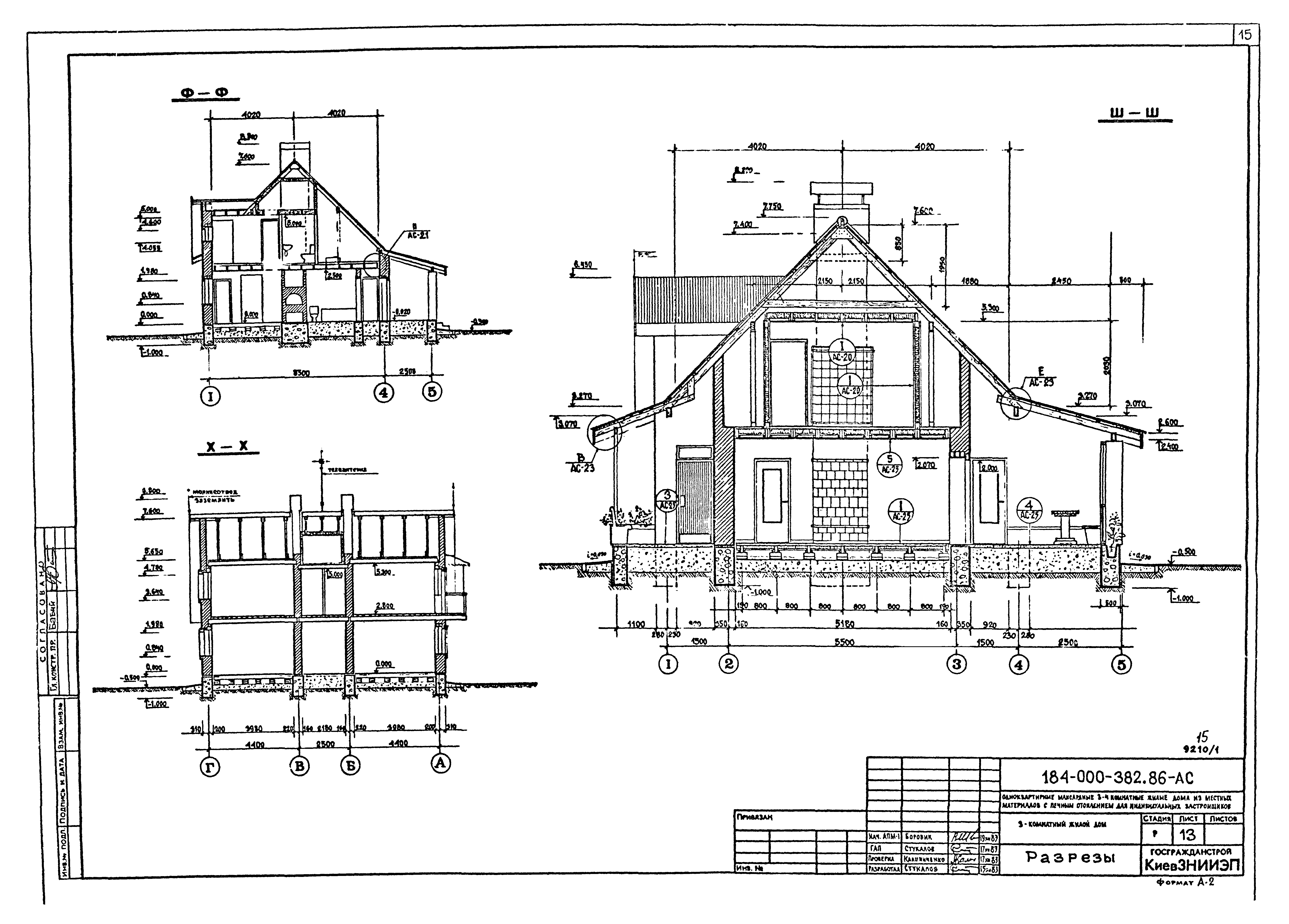
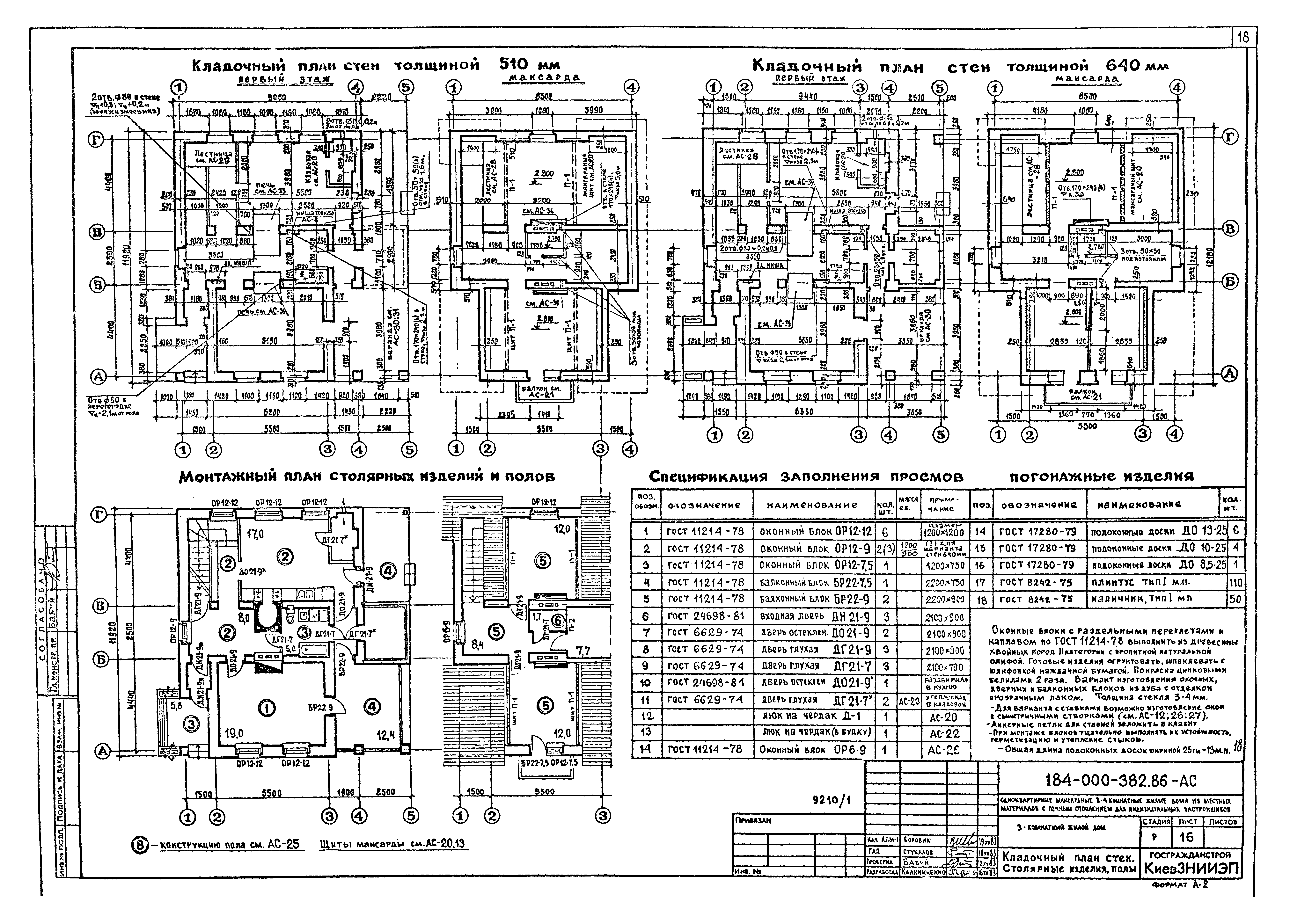
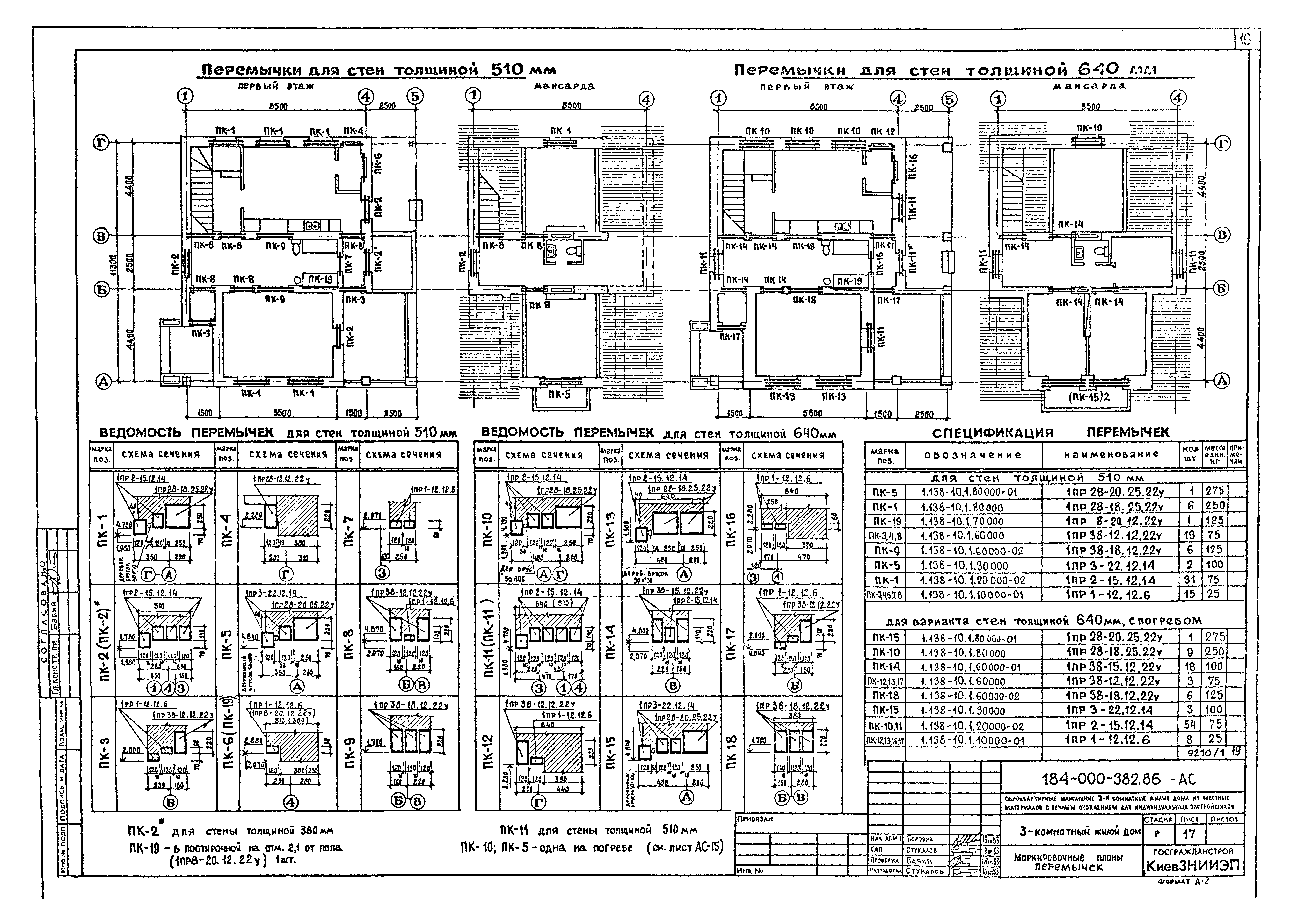
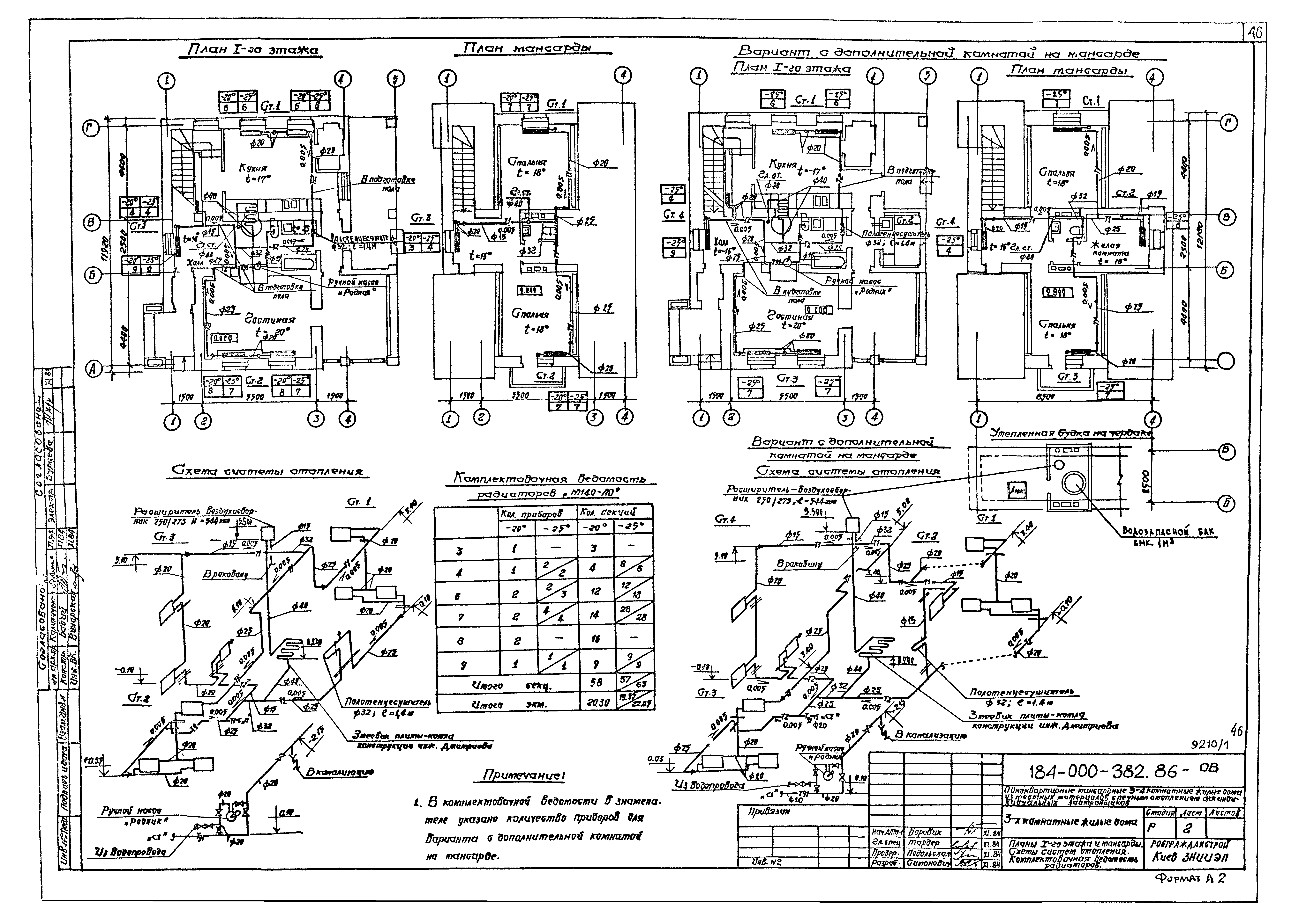
| Оглавление: | Обложка Титульный лист Содержание альбома Архитектурно-строительные решения Примеры компоновки жилого дома и хозблока Общие данные (начало) Общие данные (продолжение) Общие данные (окончание) Общий вид жилого дома Планы Вариант с комбинированным отоплением Фасады Фасады варианта с комбинированным отоплением Фрагмент фасада Разрезы Разрезы варианта с комбинированным отоплением Фундаменты. Планы, сечения Кладочный план стен. Столярные изделия, полы Маркировочные планы перемычек Перекрытия Изделия деревянные и металлические Щиты мансарды. Детали перекрытий Балкон. Детали перекрытий Стропила, кровля Стропила. Детали Стропила. Разрезы, детали Экспликация полов. Ведомость отделки помещений Установка оконных блоков и ставней Установка дверных блоков и ставней Лестница Лестница. Детали Веранда Печное отопление Комбинированное отопление (печное и водяное) Установка печей. Дымовентиляционные каналы Отопительно-варочный агрегат с щитком Двухъярусная отопительная печь с щитком Компоновка печи с кухонной мебелью Вариант компоновки кухонного оборудования Вариант устройства печи-камина в общей комнате Конструкция печи-камина с воздушным обогревом Бойлер емк. 145 л. Змеевик Q=11990 ккал/ч Водозапасный бак в утепленной будке на чердаке Отопление и вентиляция Общие данные Планы 1 этажа и мансарды. Схемы систем отопления. Комплектовочная ведомость радиаторов Водоснабжение и канализация Общие данные Планы 1 этажа и мансарды. Схемы В1,Т3 и К1. Спецификация Электроосвещение Общие данные План 1 этажа и мансарды. Электрические сети Связь и сигнализация Общие данные |
| Разработан: | КиевЗНИИЭП |
| Утверждён: | 31.07.1985 Госгражданстрой (Gosgrazhdanstroy 180) |

















































