Скачать Типовой проект 320-55 Альбом I. Остановки общественного транспортаДата актуализации: 01.01.2021
|
| Обозначение: | Типовой проект 320-55 |
| Обозначение англ: | 320-55 |
| Статус: | не определен законодательством |
| Название рус.: | Альбом I. Остановки общественного транспорта |
| Дата добавления в базу: | 01.09.2013 |
| Дата актуализации: | 01.01.2021 |
| Дата введения: | 19.09.1977 |
| Дата окончания срока действия: | 30.06.2003 |
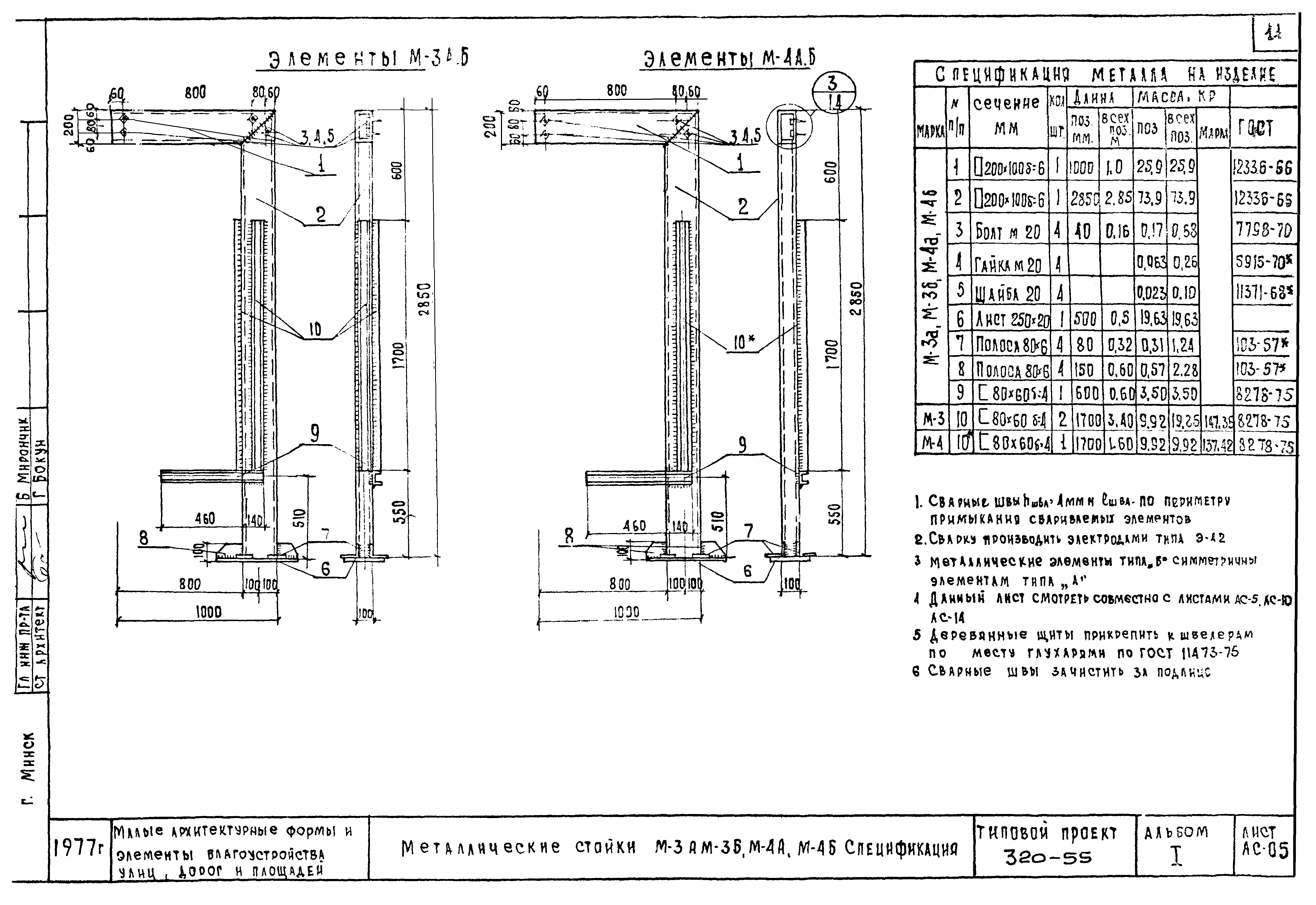
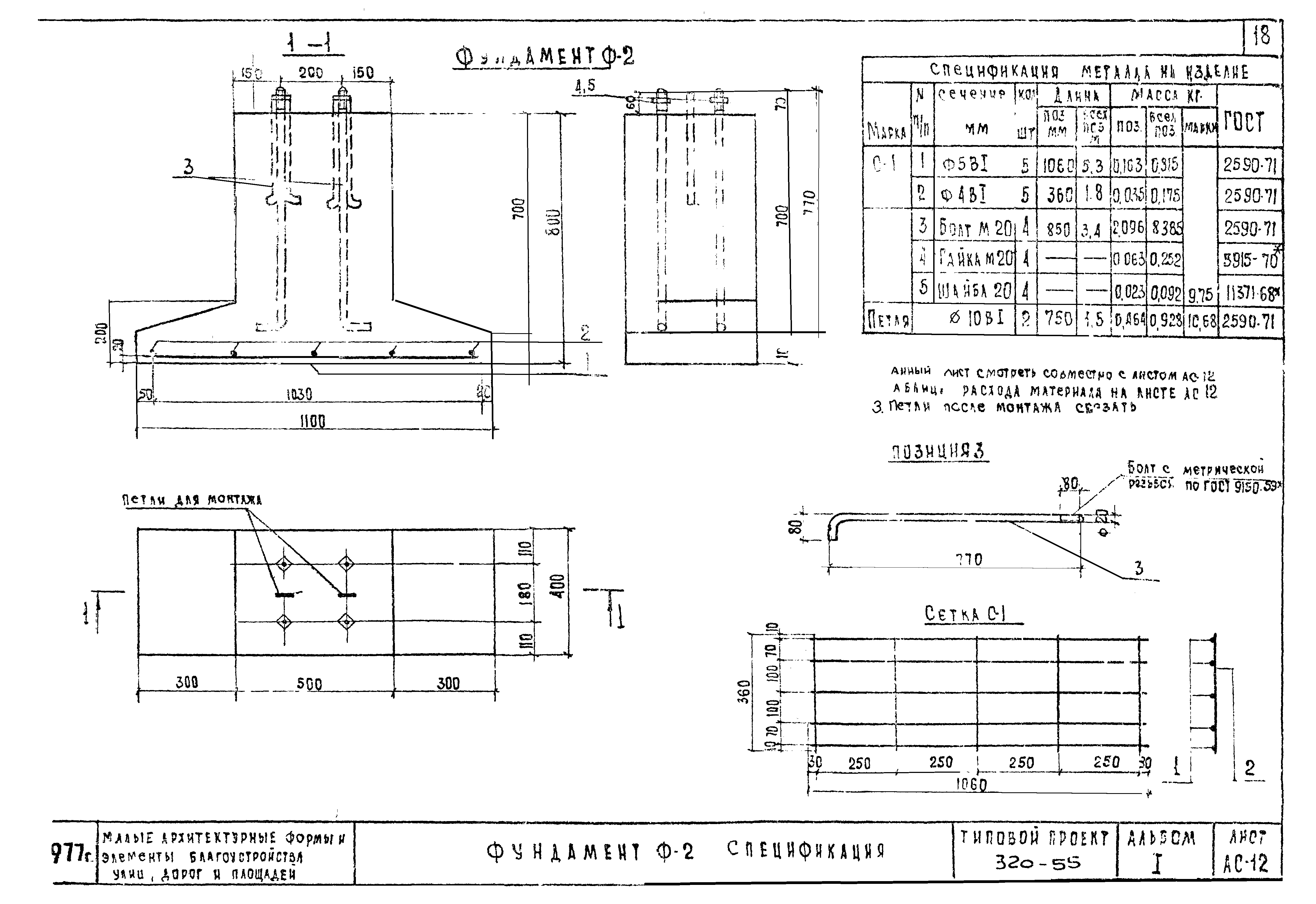
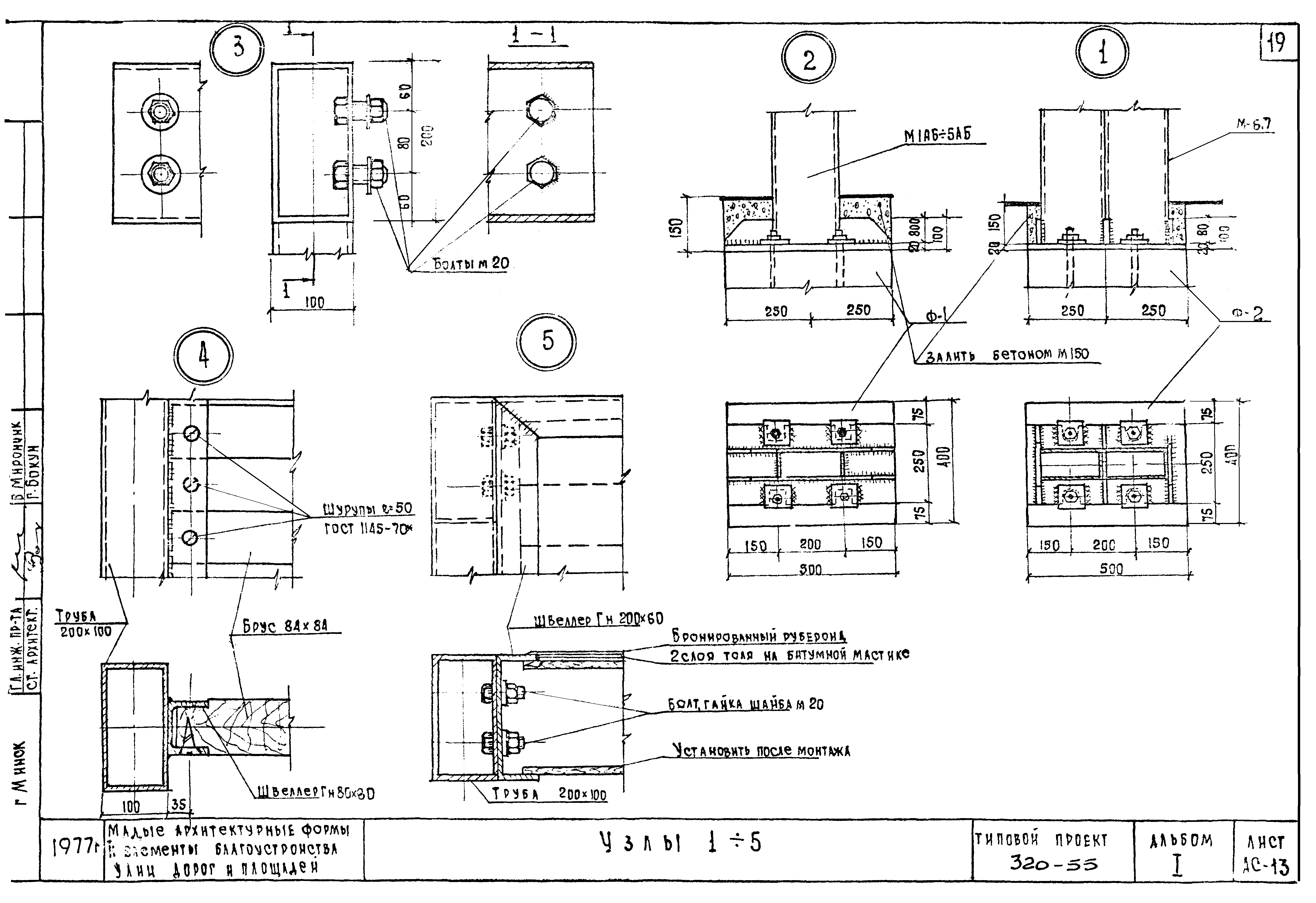
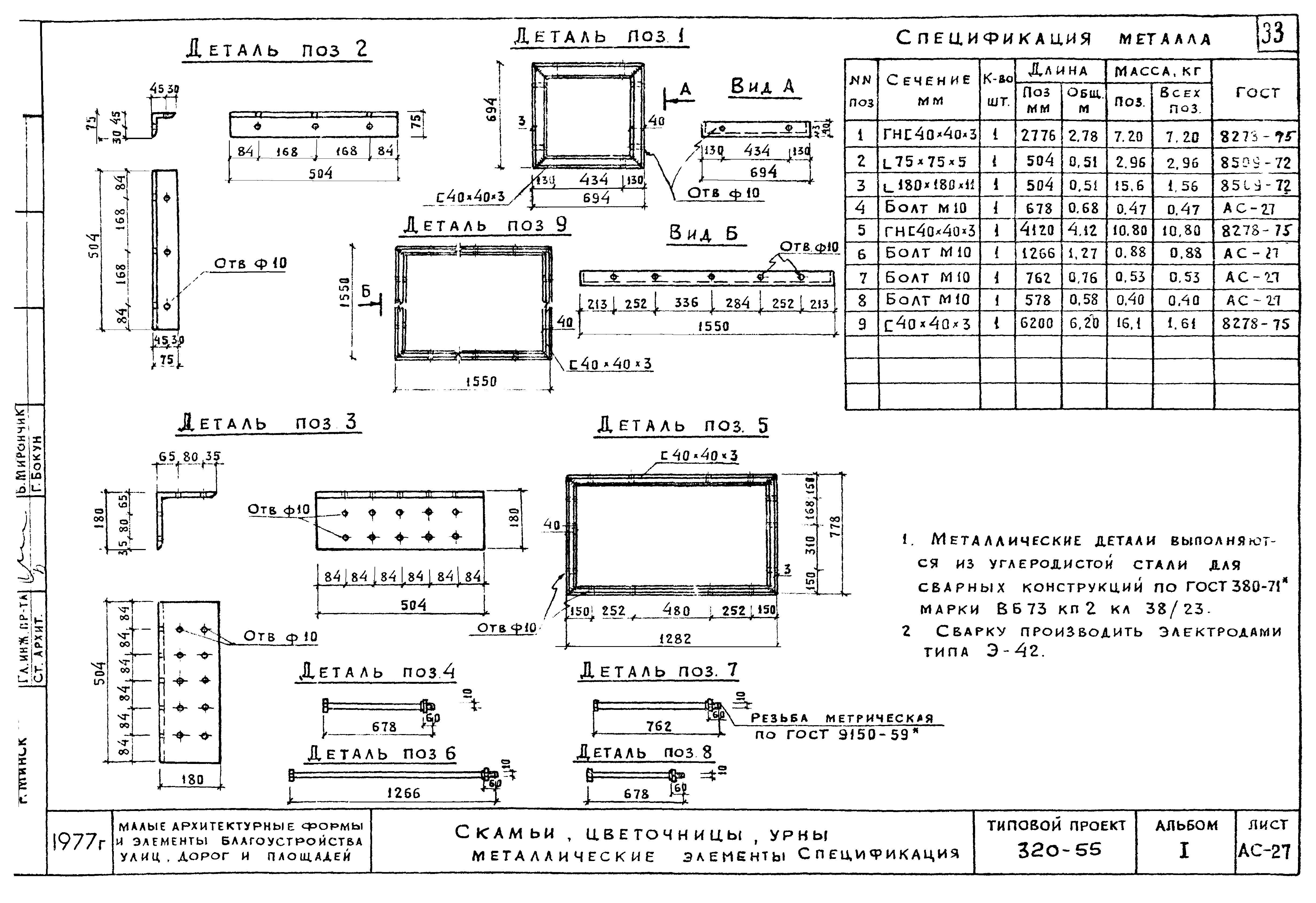
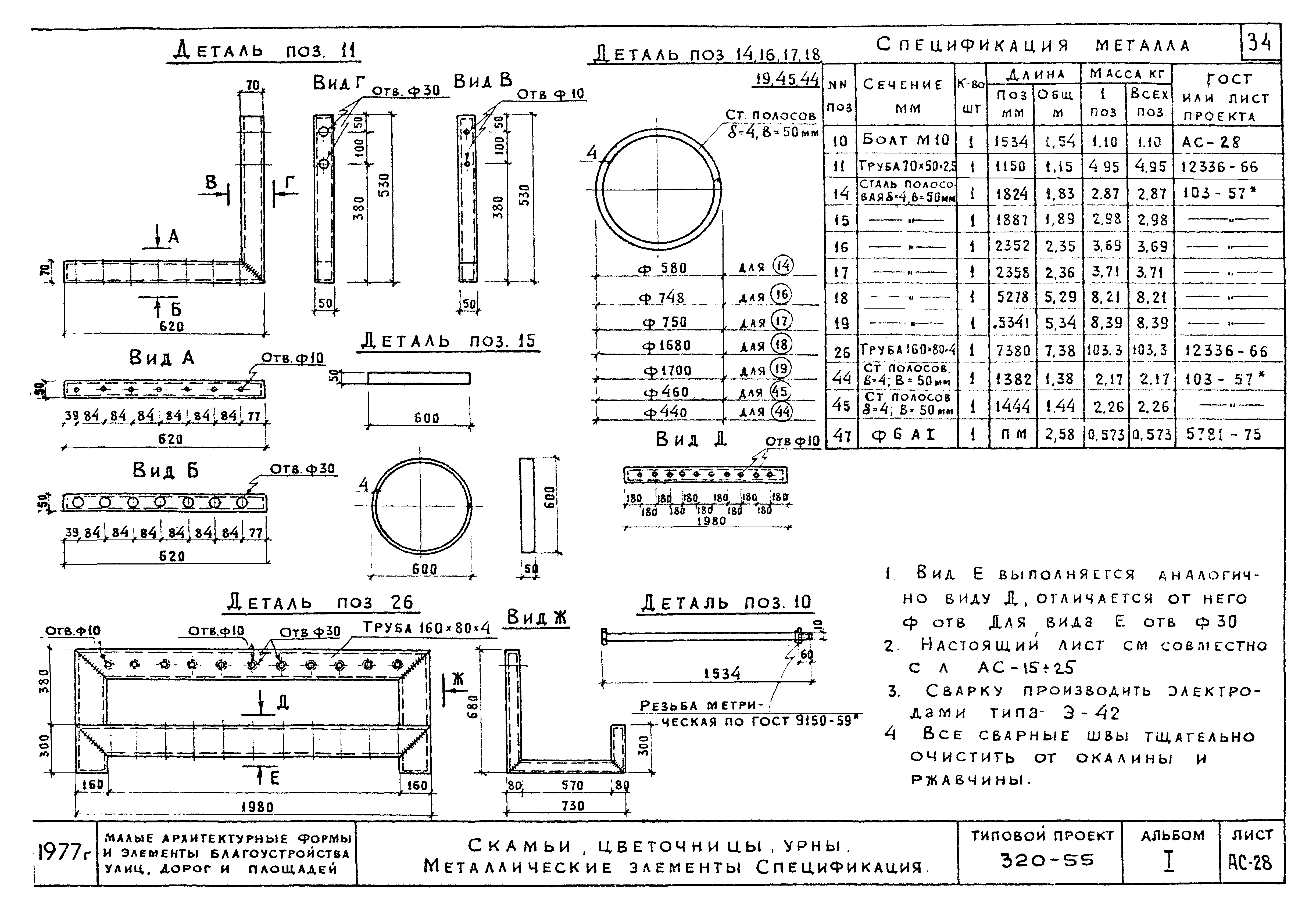
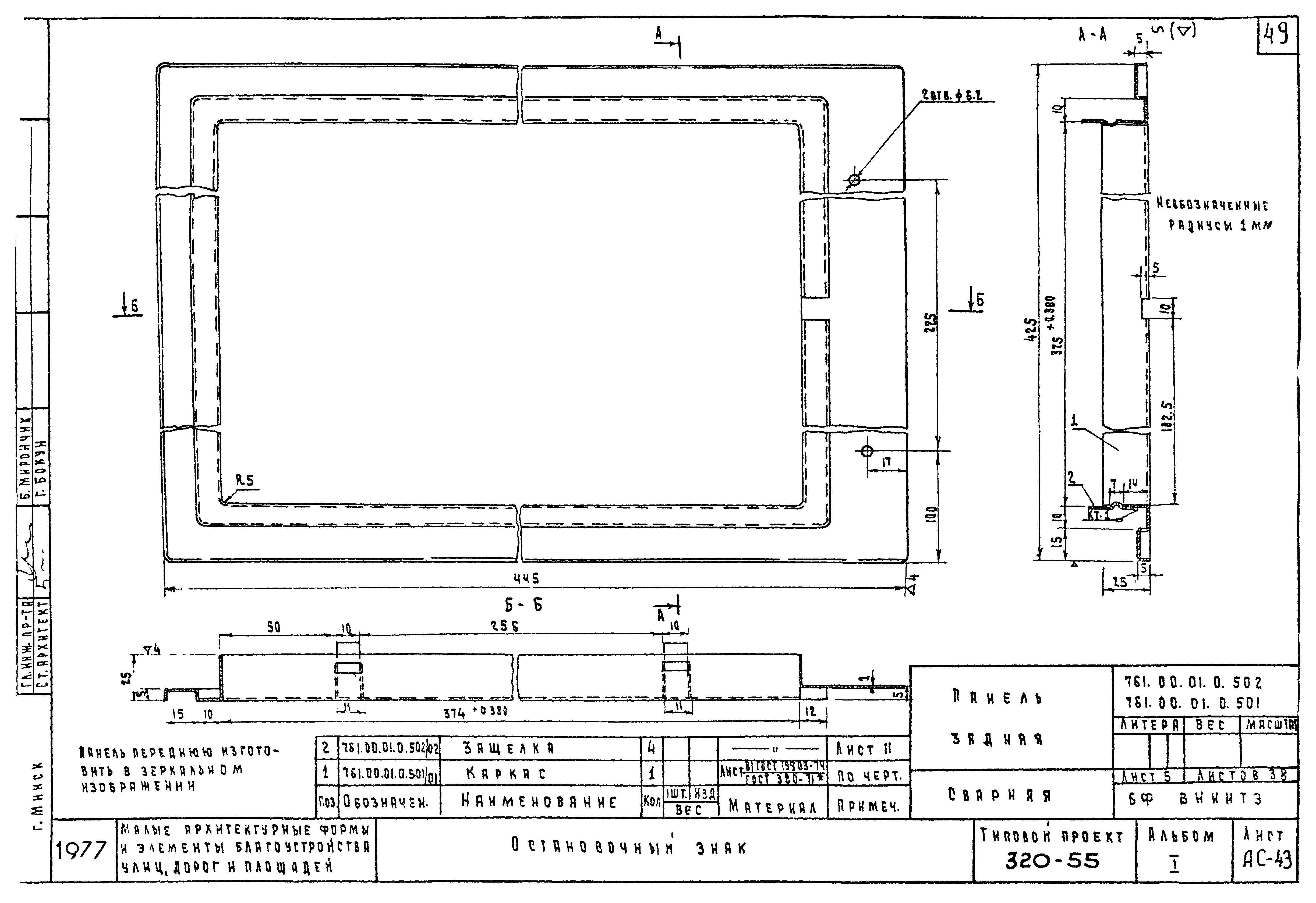
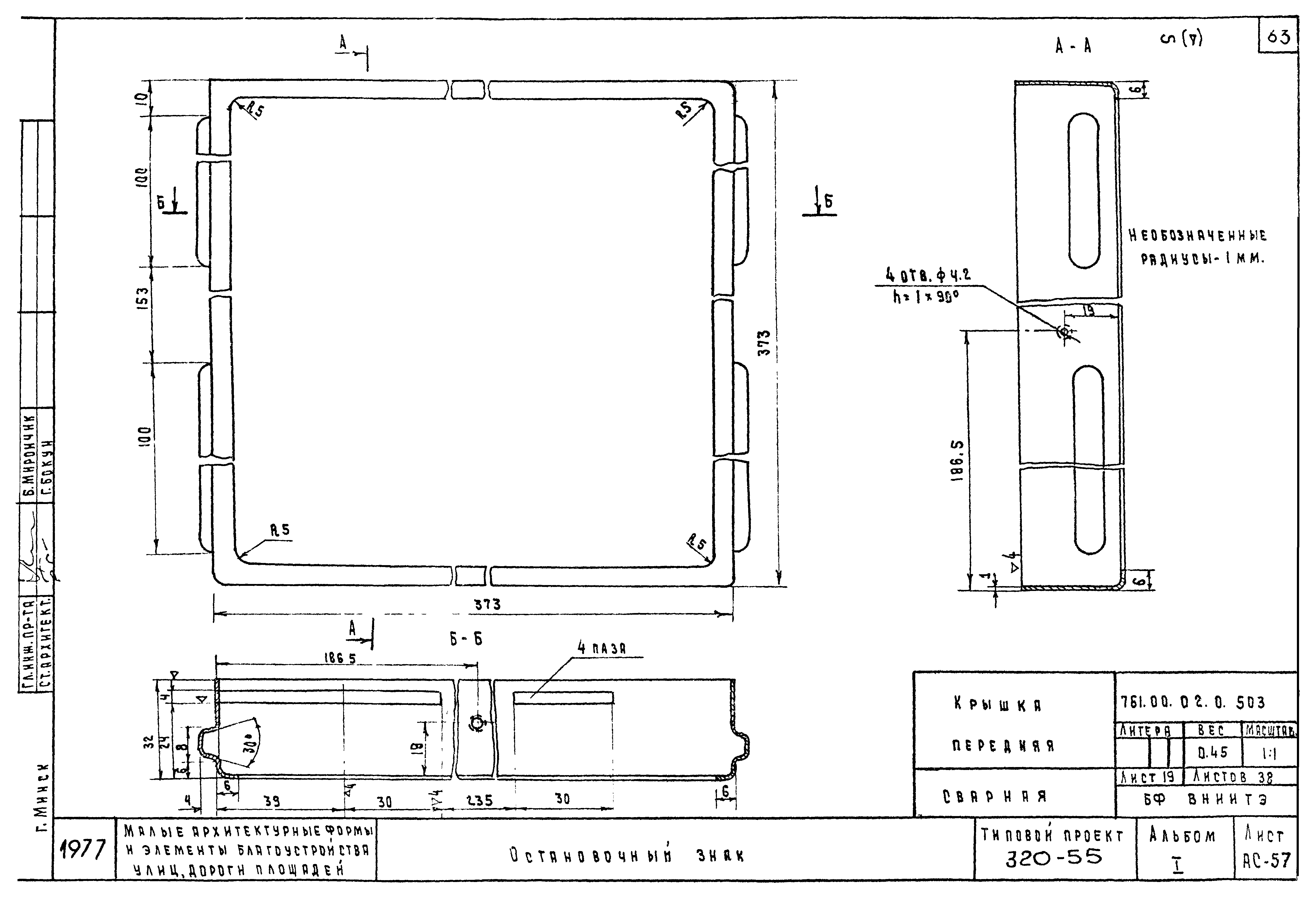
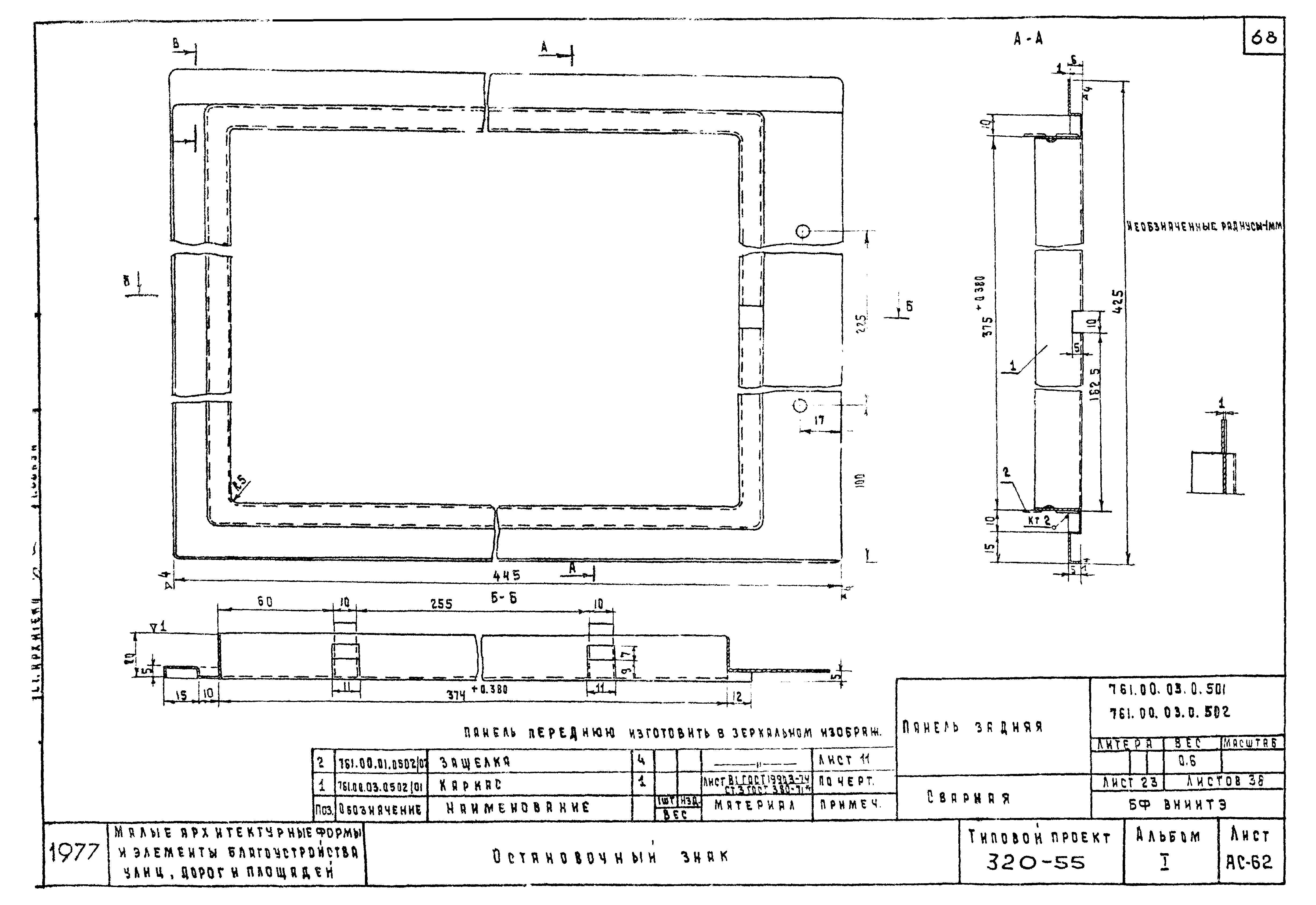
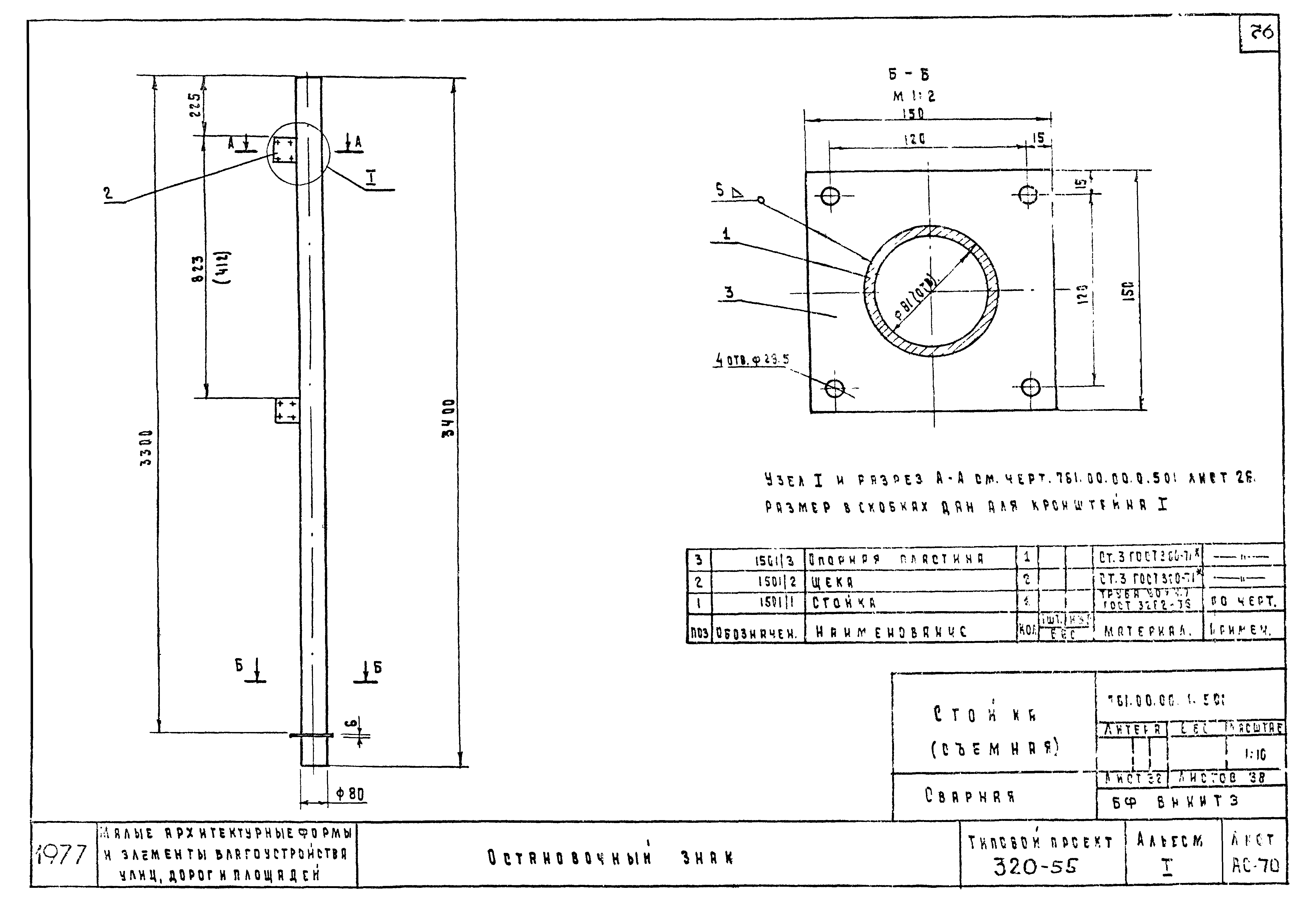
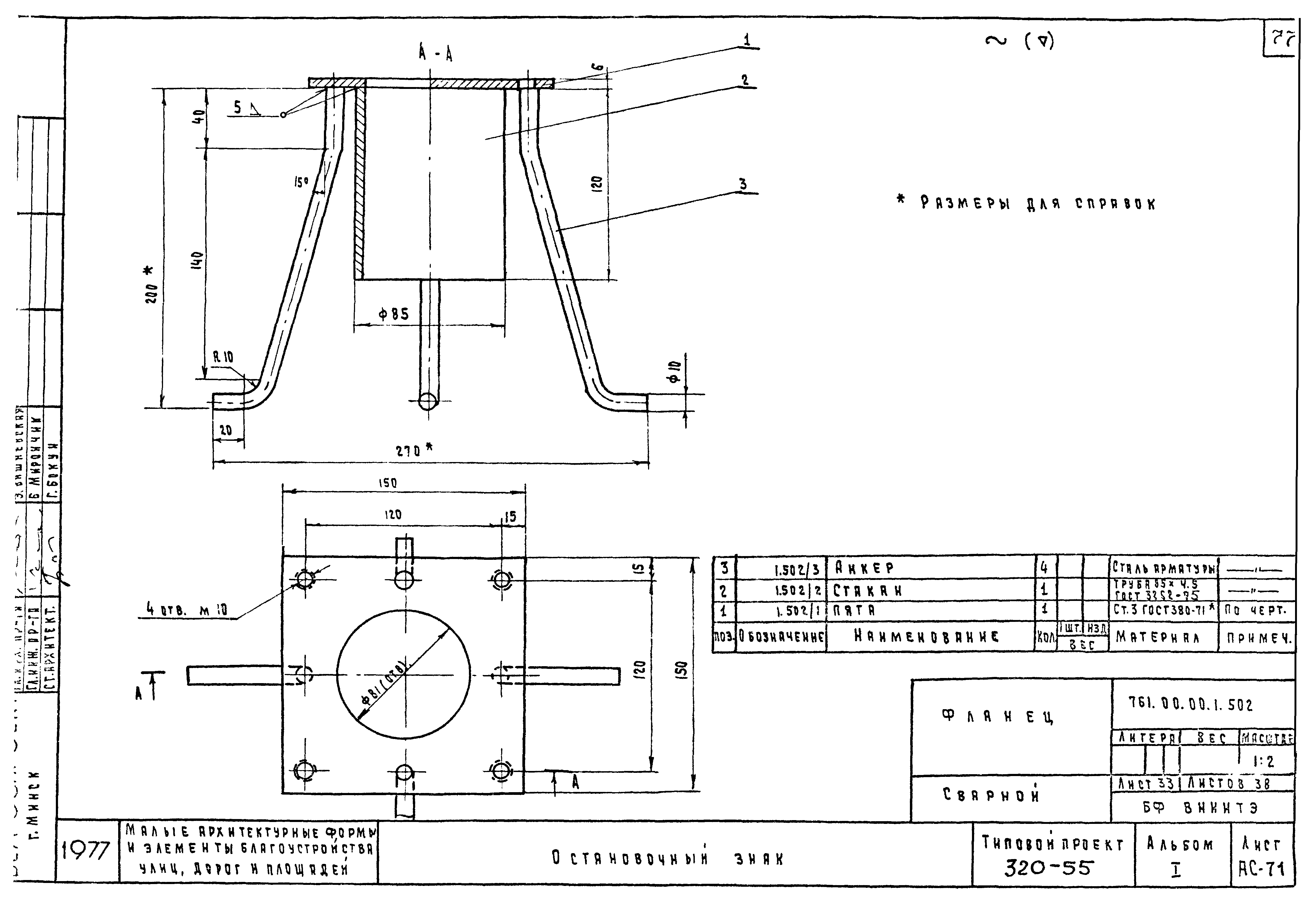
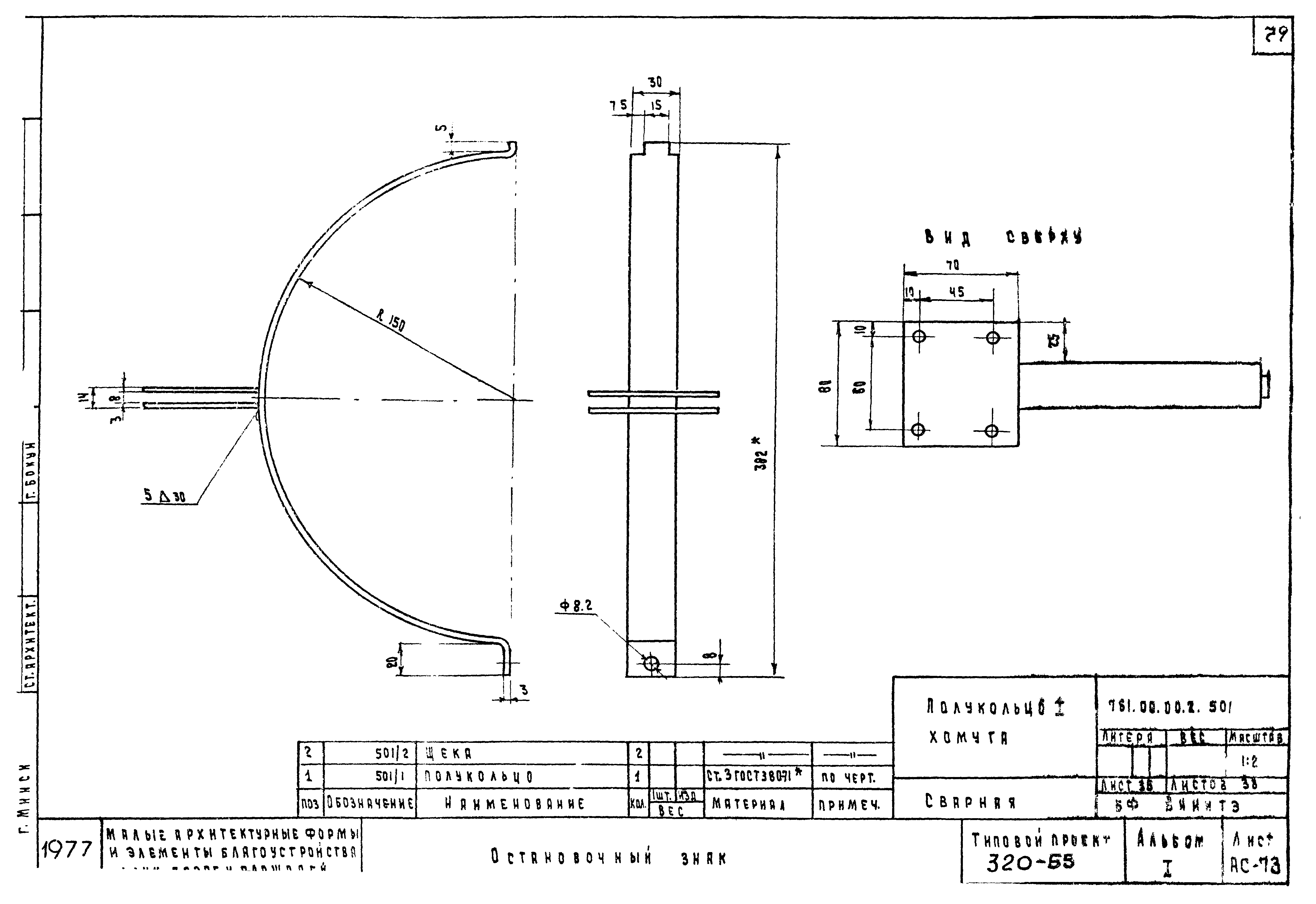
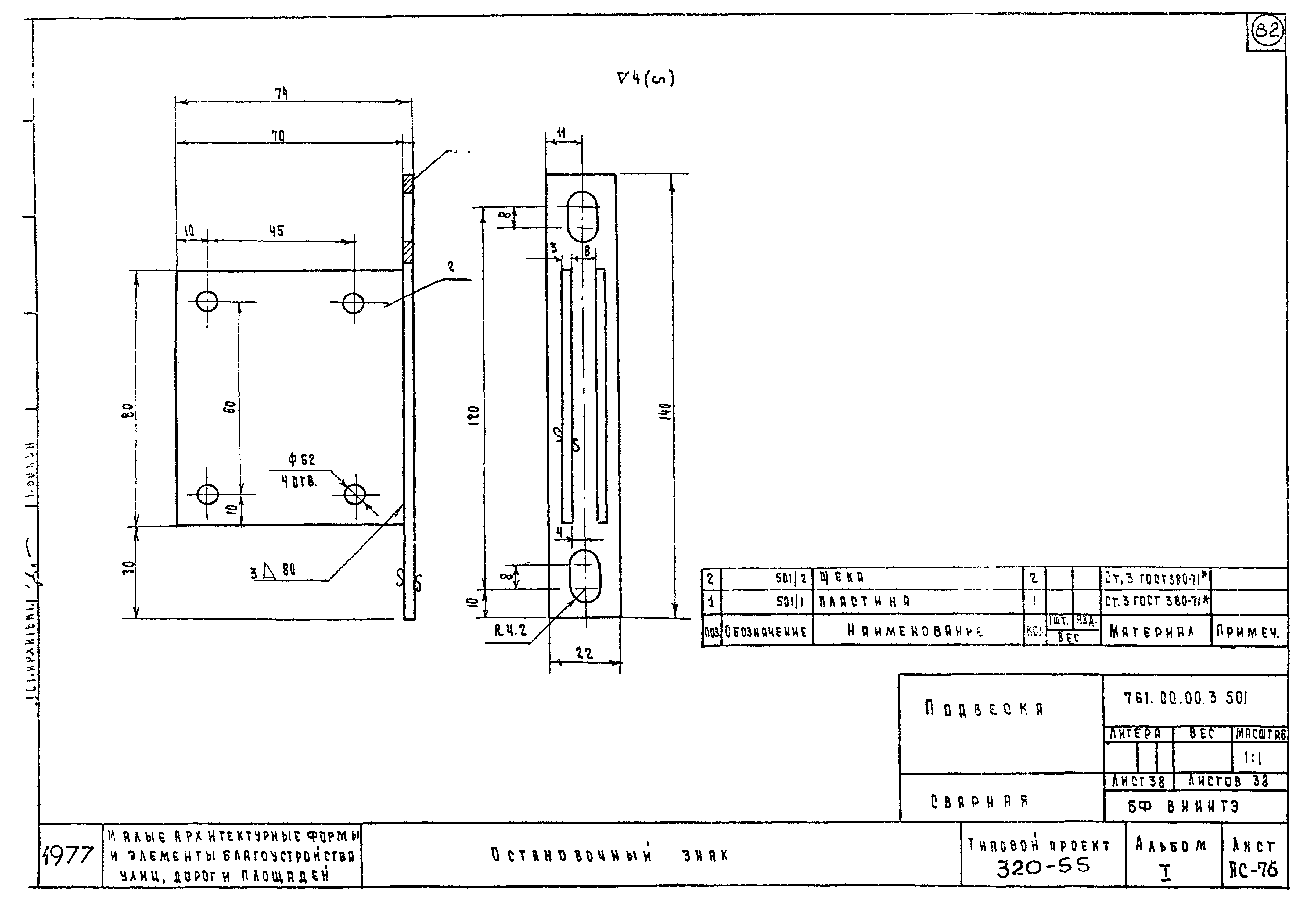
| Оглавление: | Содержание альбома Пояснительная записка АС-01 Павильоны остановок общественного транспорта тип 1, тип2, тип 3 АС-02 Павильоны остановок общественного транспорта тип 4, тип 5, тип 6 АС-03 Павильоны остановок общественного транспорта тип 1, тип 2, тип 3, тип 4, тип 5, тип 4 АС-04 Металлические стойки М-1А, М-1Б, М-2А, М-2Б. Спецификация АС-05 Металлические стойки М-3А, М-3Б, М-4А, М-4Б. Спецификация АС-06 Металлические стойки М-5А, М-5Б, М-8. Спецификация АС-07 Металлическая стойка М-6. Спецификация АС-08 Металлическая стойка М-7. Спецификация АС-09 Металлические детали АС-10 Навес Н-1. Спецификация. Деревянные брусья АС-11 Фундамент Ф-1 АС-12 Фундамент Ф-2. Спецификация АС-13 Узлы 1-5 АС-14 Варианты компоновки секционных скамей тип 1 и цветочниц тип 1,2,3,4 АС-15 Скамья тип 1. Скамья ограничитель тип 1 АС-16 Скамья тип 2, тип 2А АС-17 Скамья-цветочница тип 1 АС-18 Скамья-цветочница тип 2. Цветочница тип 4 АС-19 Скамья-цветочница тип 3. Цветочница тип 1,2,3 АС-20 Скамья-цветочница тип 4 АС-21 Скамья-ограничитель тип 2 АС-22 Скамья тип 3 АС-23 Скамья тип 4,4а,5,5а АС-24 Цветочницы тип 5,6,7,8,9 АС-25 Урна тип 1,2,3 АС-26 Скамьи, цветочницы, урны. Спецификация деревянных элементов. Условия изготовления АС-27-30 Скамьи, цветочницы, урны, металлические элементы. Спецификация АС-31-АС-32 Скамьи, цветочницы, урны. Спецификация элементов на изделие АС-33 Урна тип 4 АС-34 Урна тип 5 АС-35,АС-36 Цветочницы сборные, варианты компоновок, секционные цветочницы, варианты композиций АС-37 Варианты компоновки и крепления остановочного знака АС-38 Остановочный знак. Монтажные узлы АС-39 Остановочный знак. Номера маршрутов. Общий вид. 1 вариант АС-40-АС-41 Остановочный знак. Номера маршрутов. Разрезы АС-42 Остановочный знак. Номера маршрутов. 1 вариант. Спецификация. Защелка АС-43 Остановочный знак. Панель задняя АС-44 Остановочный знак. Крышка АС-45 Остановочный знак. Прижим АС-46 Остановочный знак. Крышка передняя АС-47 Остановочный знак. Панель для информации АС-48 Остановочный знак. Ламподержатель АС-49 Остановочный знак. 2 вариант. Номера маршрутов. Общий вид АС-50-АС-51 Остановочный знак. Номера маршрутов. 2 вариант. Разрезы АС-52 Остановочный знак. Номера маршрутов. 2 вариант. Спецификация. Пиктограмма. Спецификация АС-53 Остановочный знак. Пиктограмма. Общий вид АС-54 Остановочный знак. Пиктограмма. Разрезы АС-55,АС-56 Остановочный знак. Панель задняя АС-57 Остановочный знак. Крышка передняя АС-58 Остановочный знак. Схема маршрутов. 1 и 2 вариант. Общий вид АС-59,АС-60 Остановочный знак. Схема маршрутов. 1 вариант. Разрезы АС-61 Остановочный знак. Схема маршрутов. 1 вариант. Спецификация. Схема маршрутов. 2 вариант. Спецификация АС-62 Остановочный знак. Панель задняя АС-63,АС-64 Остановочный знак. Схема маршрутов. 2 вариант. Разрезы АС-65 Остановочный знак. Стойка АС-66 Остановочный знак. Кронштейн 1 АС-67 Остановочный знак. Кронштейн 2 АС-68 Остановочный знак. Крышка. Пластина АС-69 Остановочный знак. Узел крепления объемной стойки в землю АС-70 Остановочный знак. Стойка (объемная) АС-71 Остановочный знак. Фланец АС-72 Остановочный знак. Вариант привязки остановочного знака к сущ. столбам АС-73 Остановочный знак. Полукольца 1 хомута АС-74 Остановочный знак. Полукольца 2 хомута АС-75 Остановочный знак. Вариант крепления остановочного знака к стене АС-76 Остановочный знак. Подвеска |
| Разработан: | Белгоспроект |
| Утверждён: | 20.07.1977 Госстрой БССР (BSSR Gosstroy 95) |


















































































