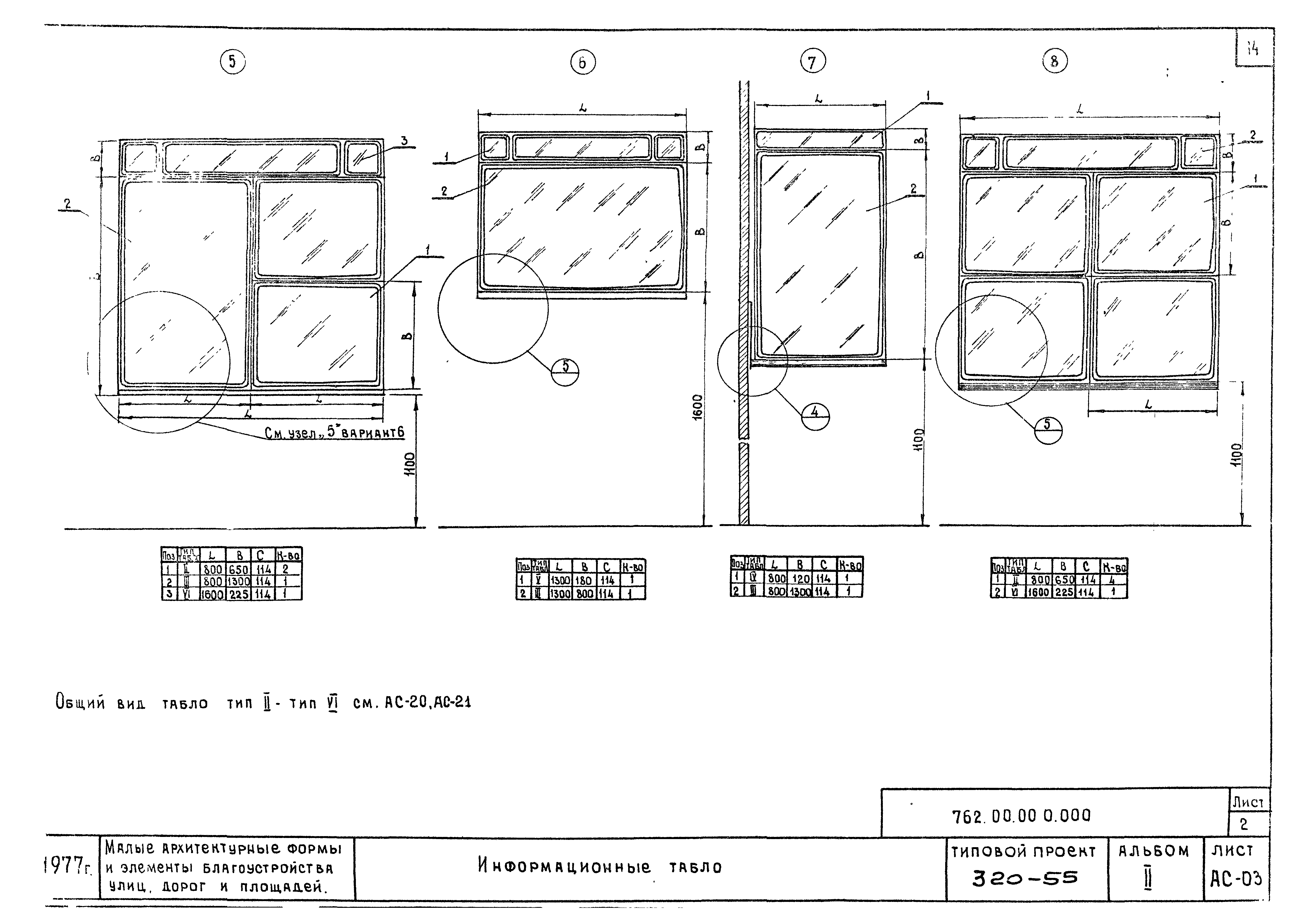
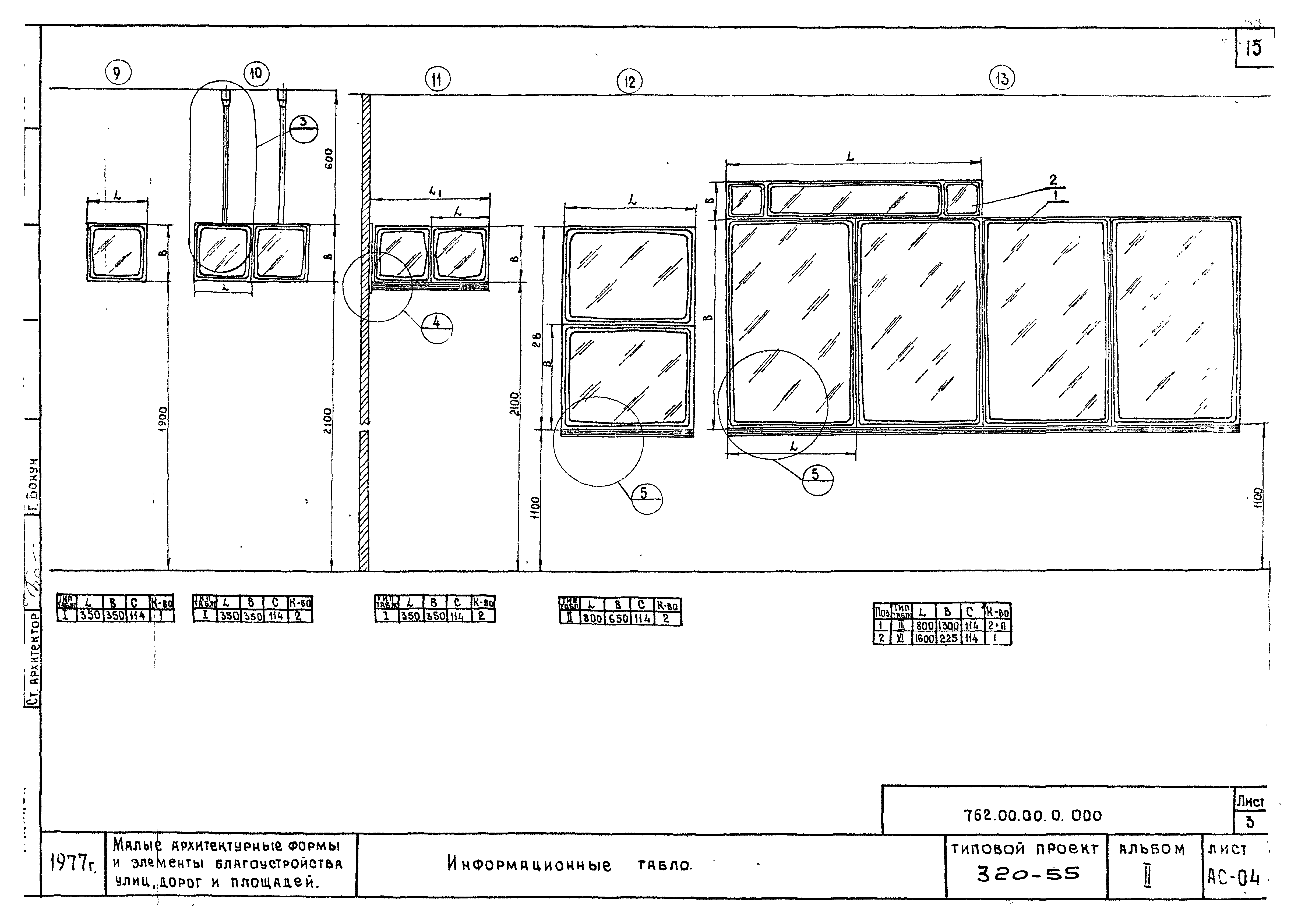
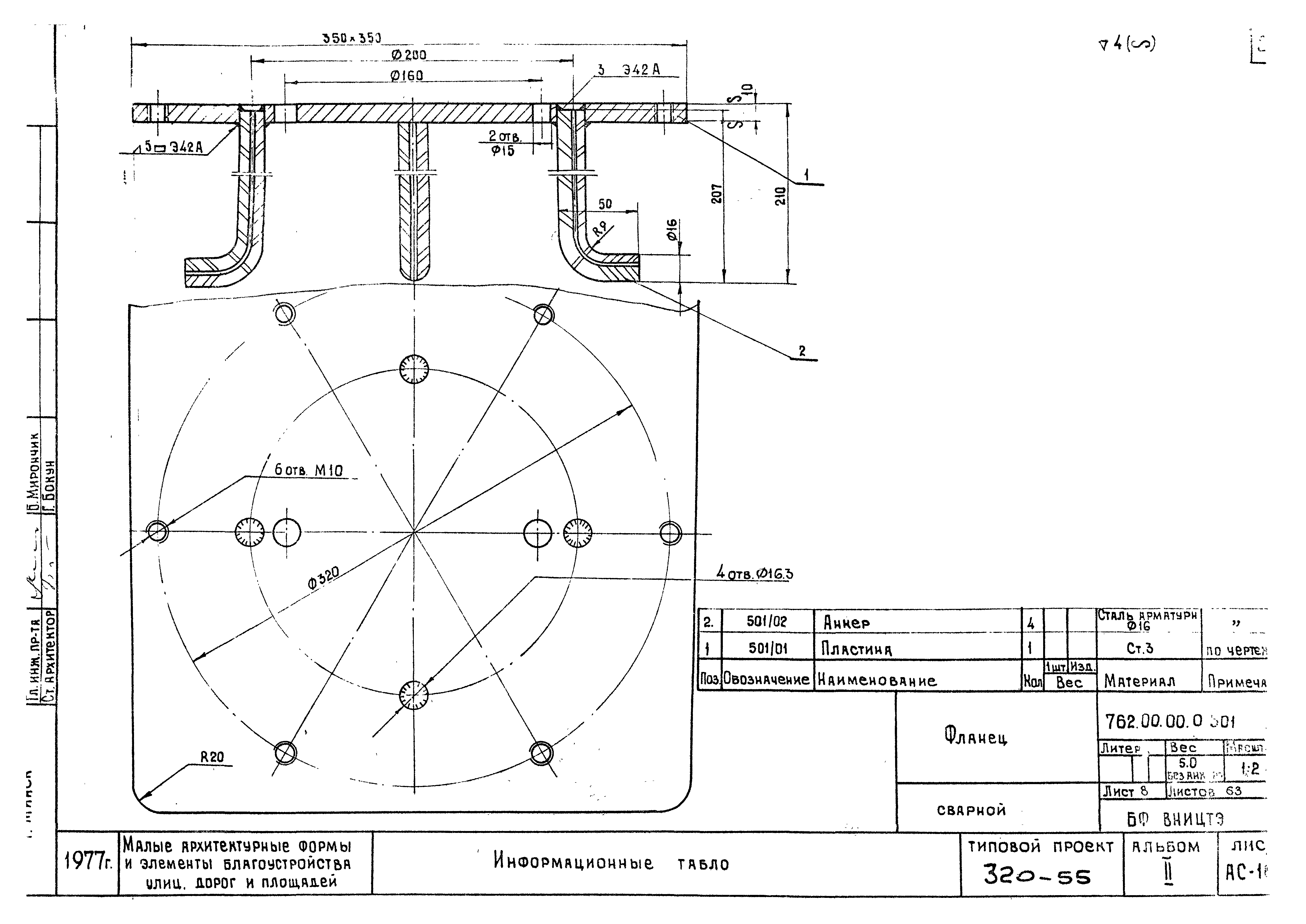
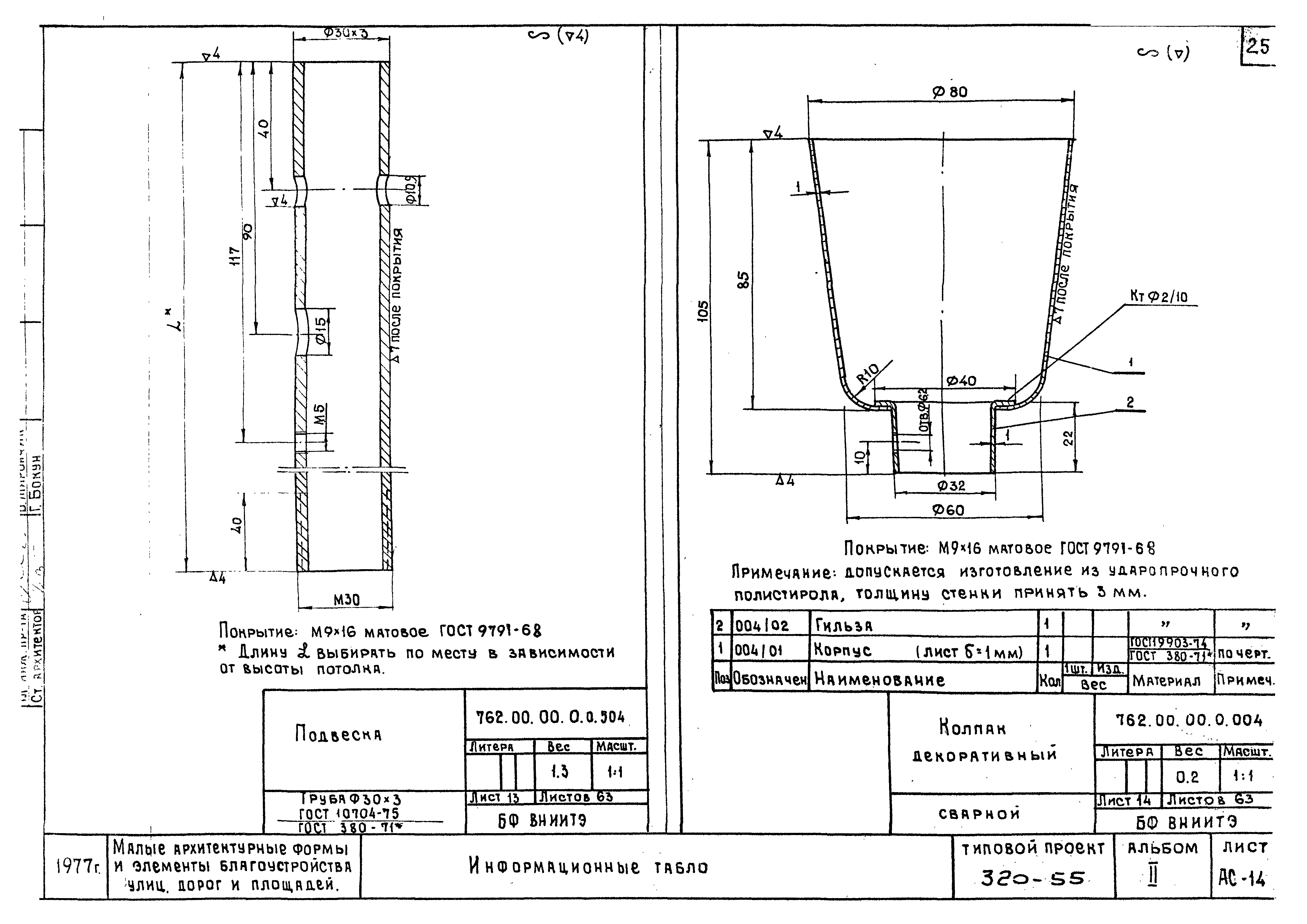
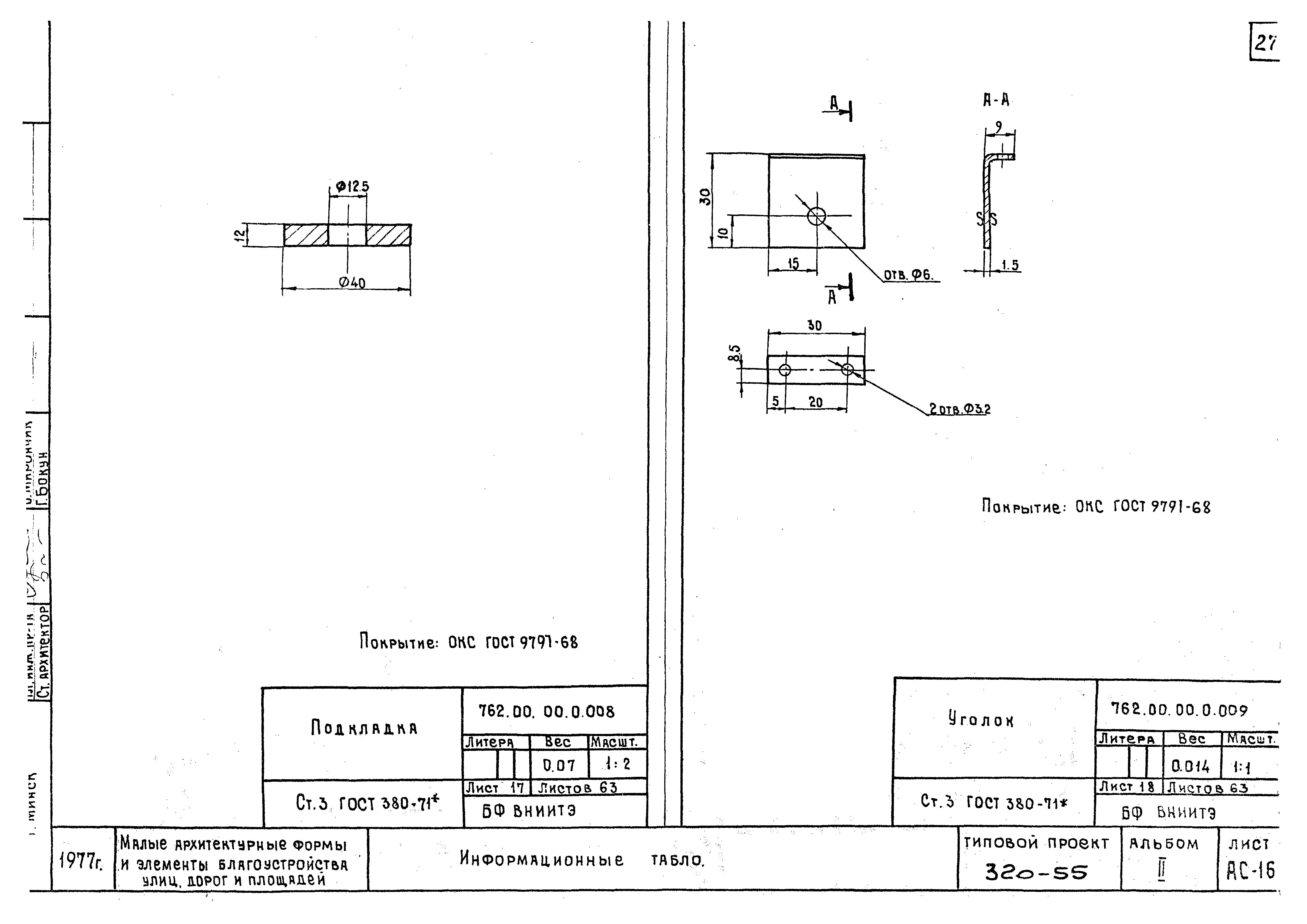
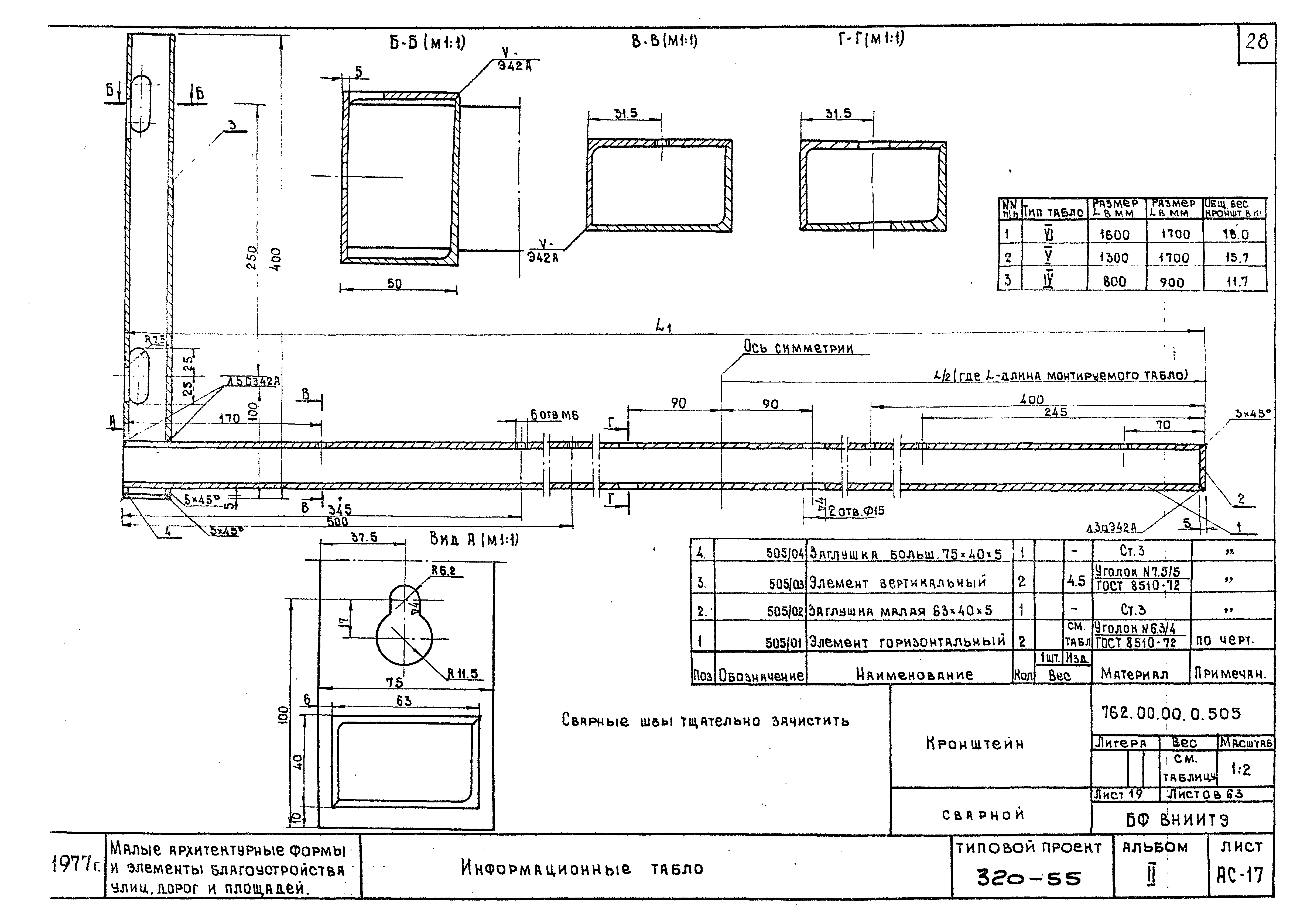
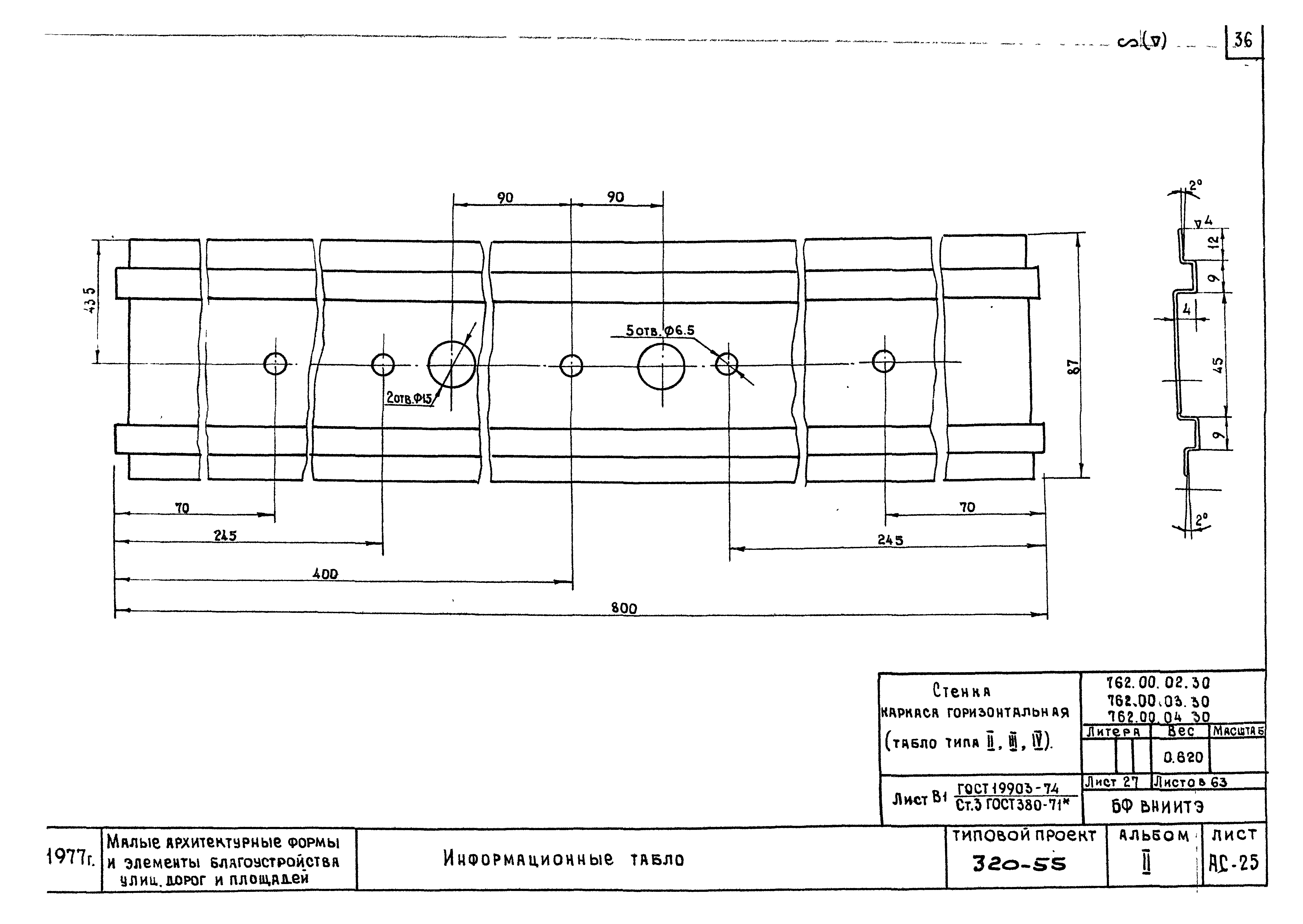
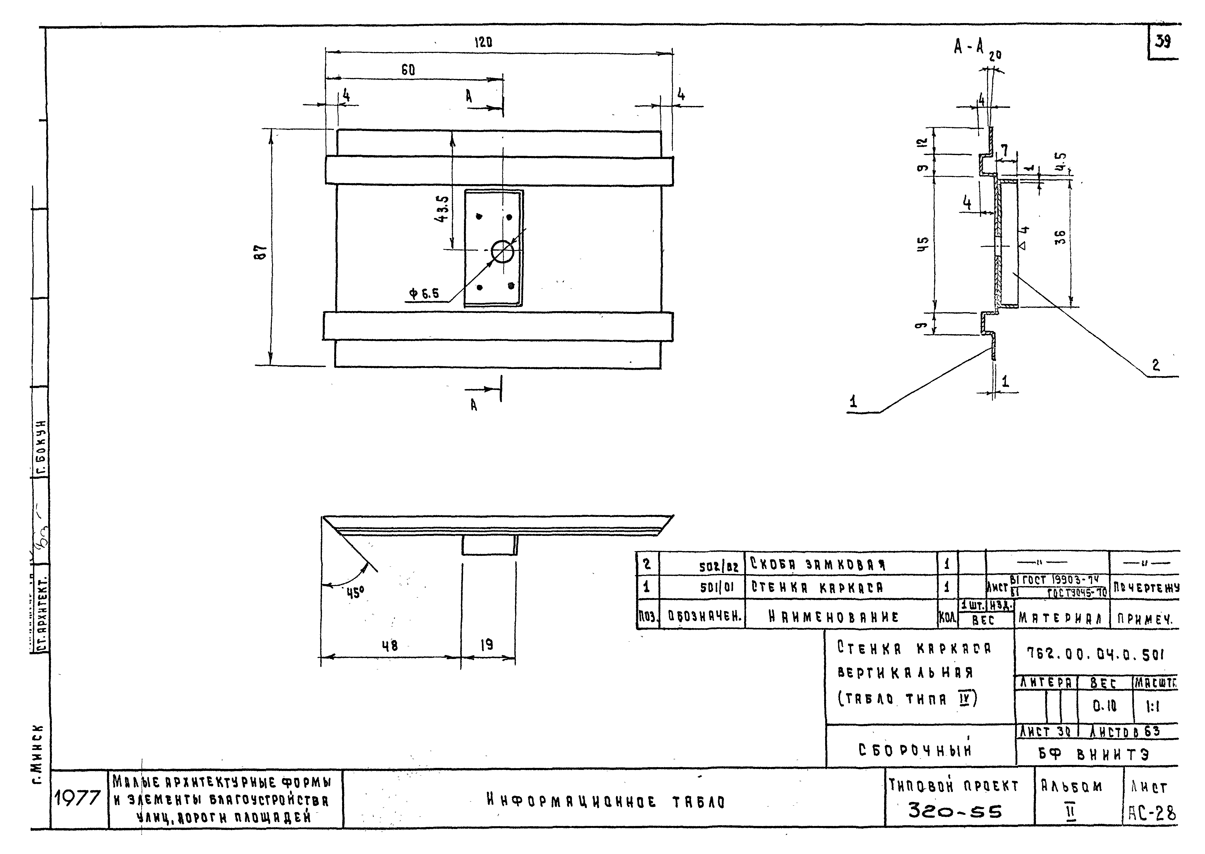
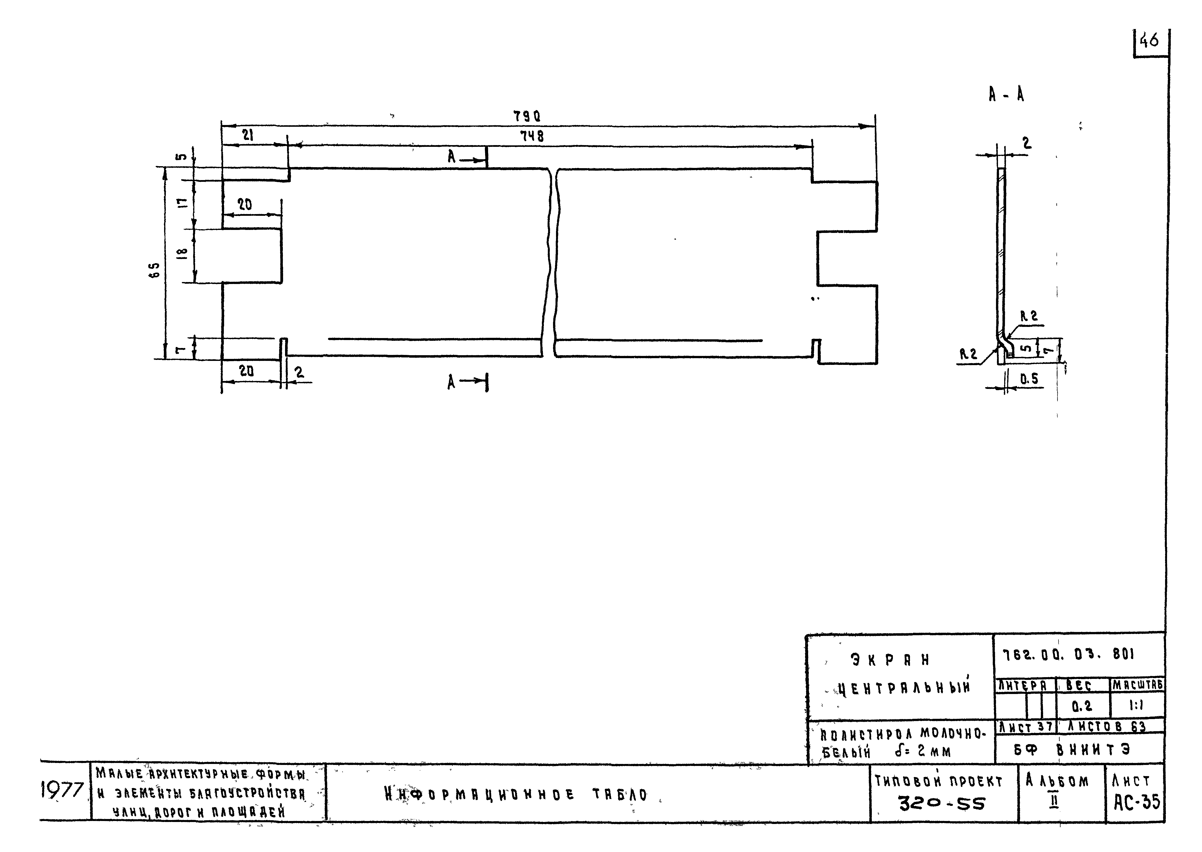
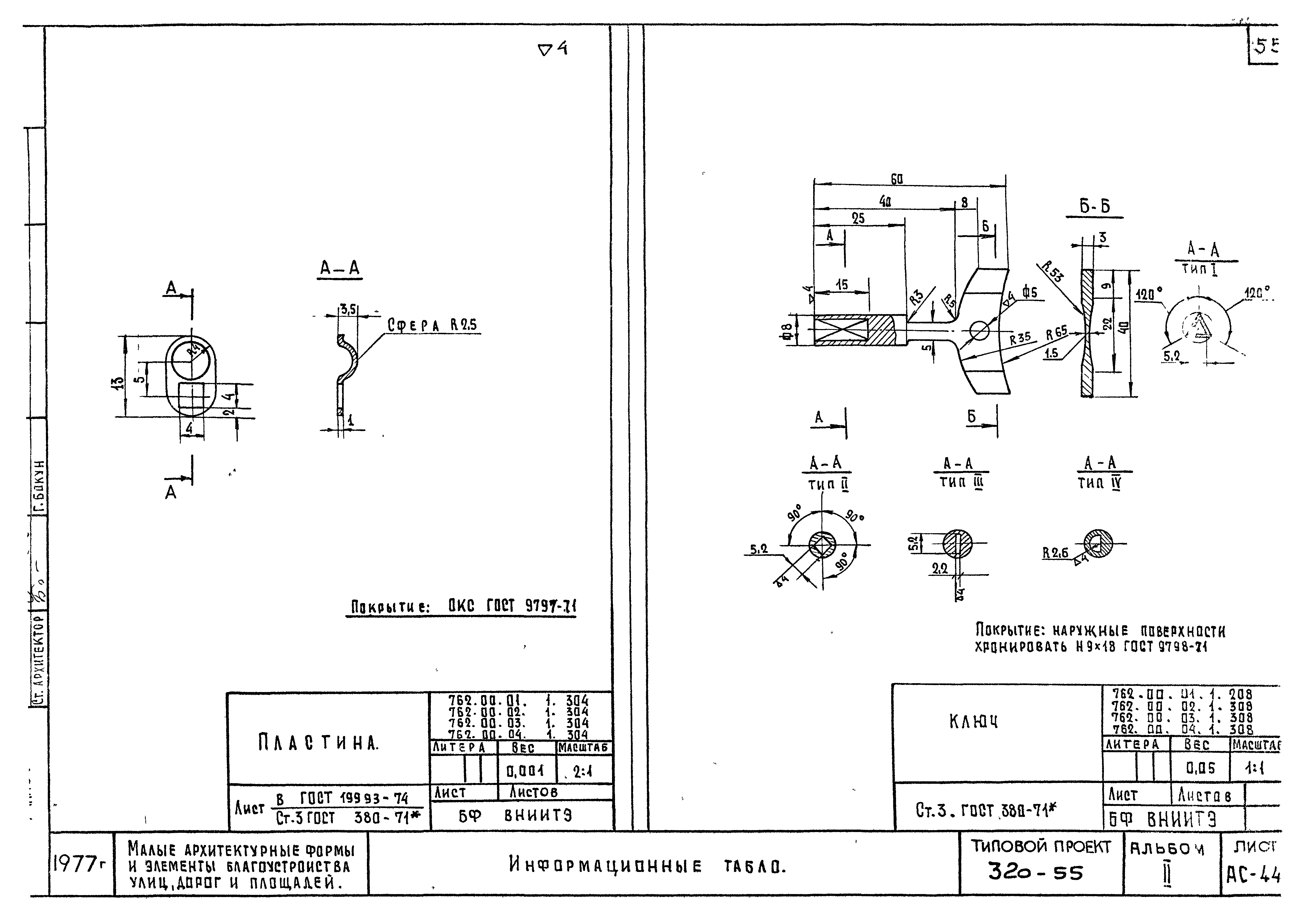
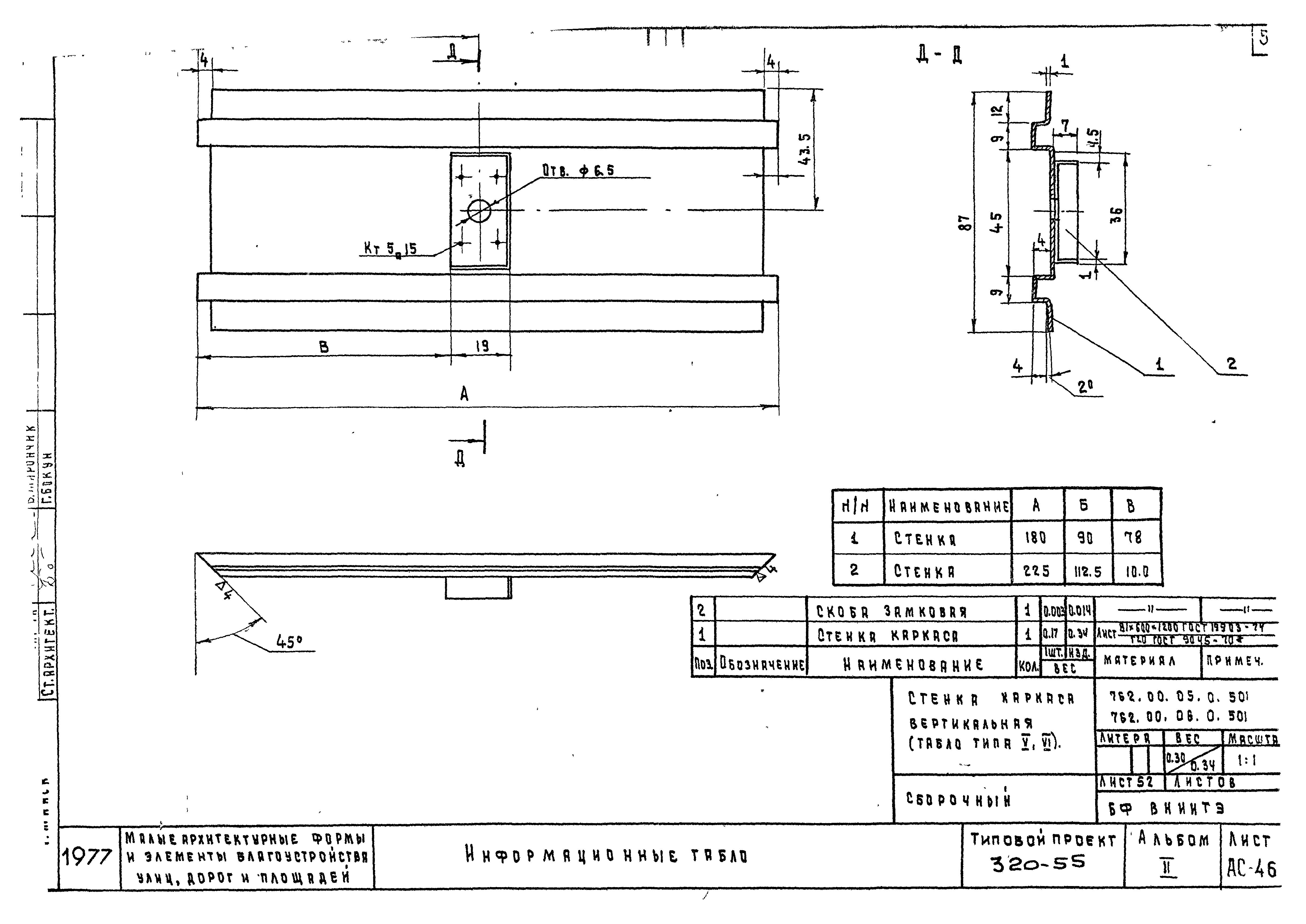
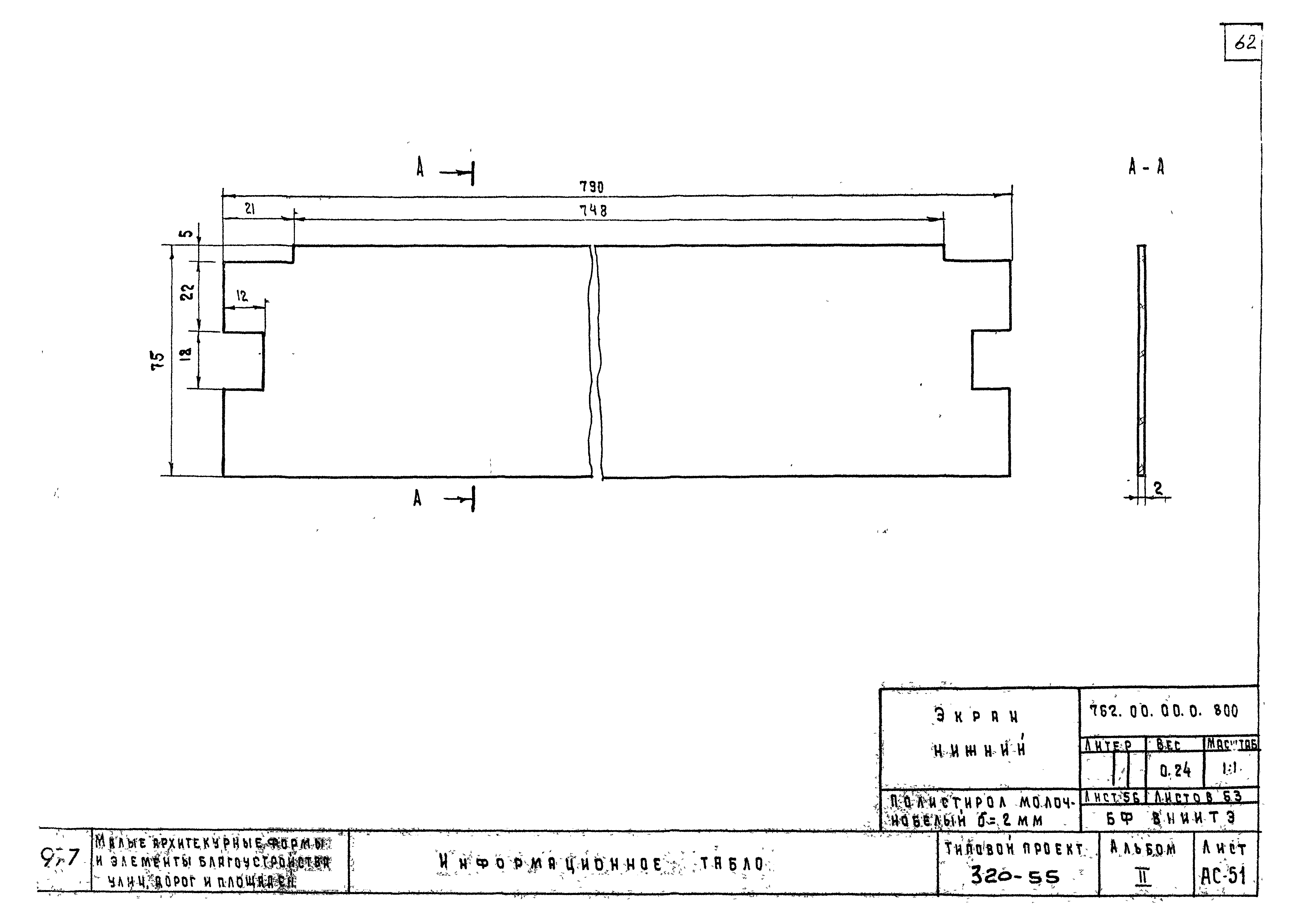
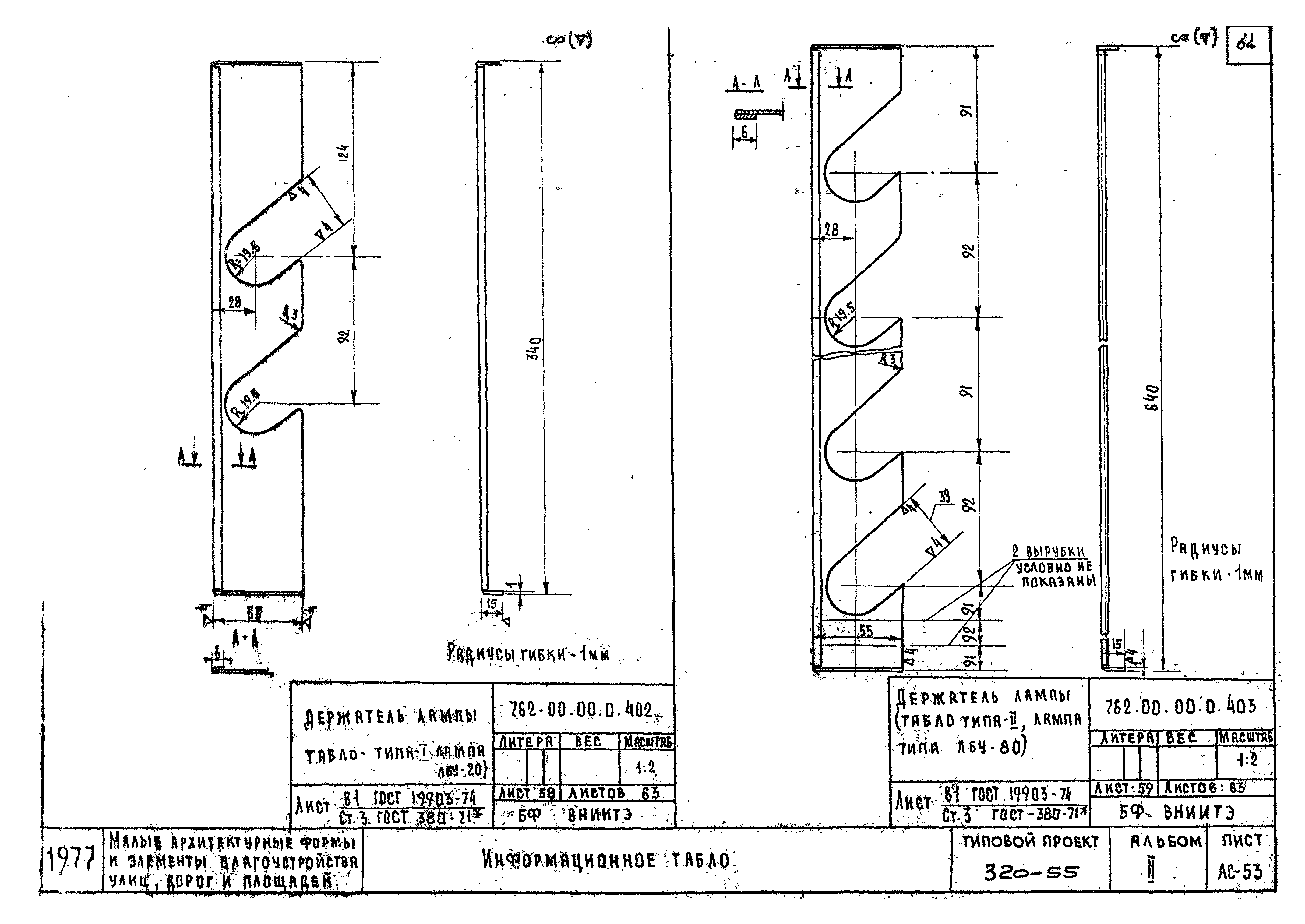
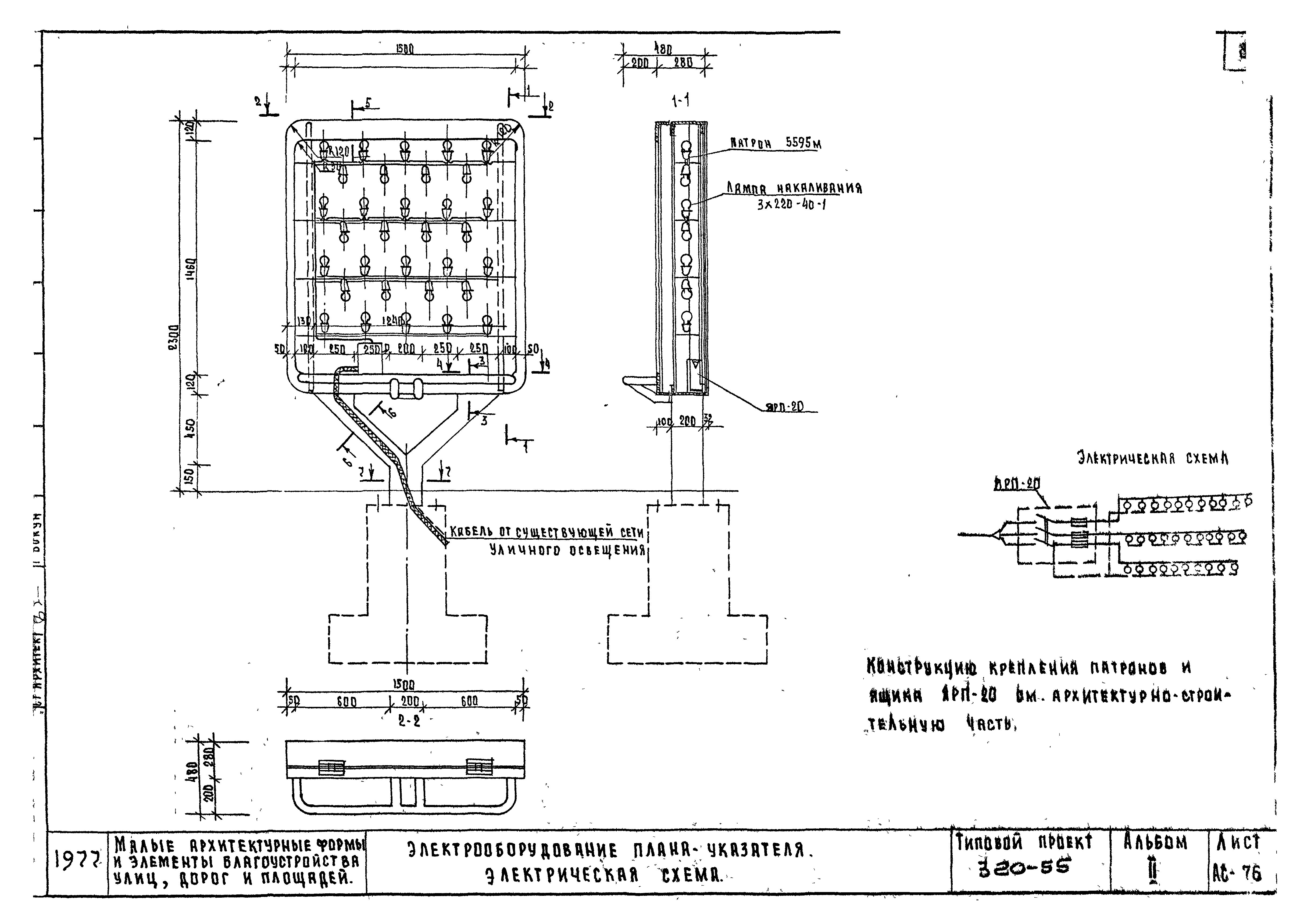
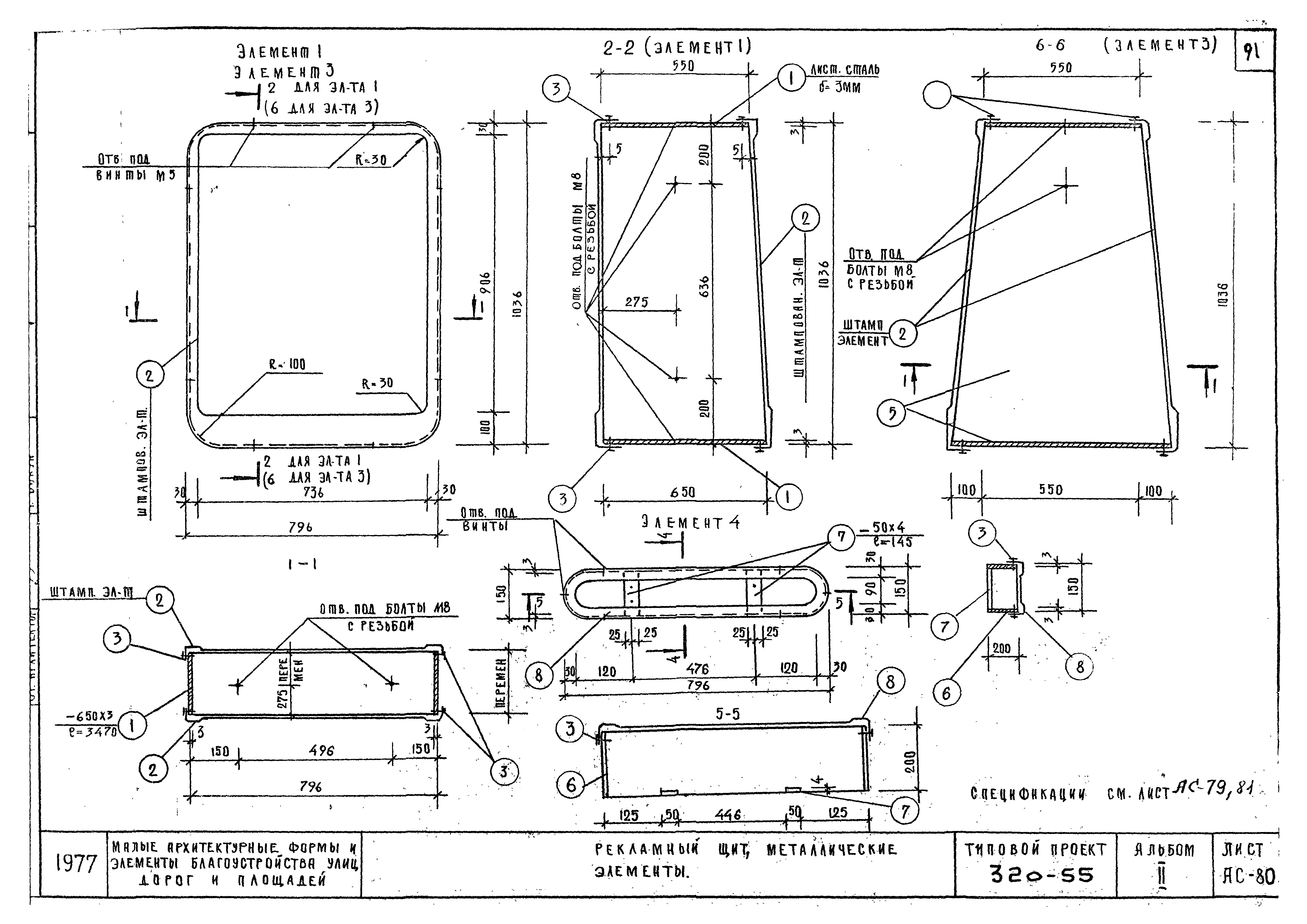
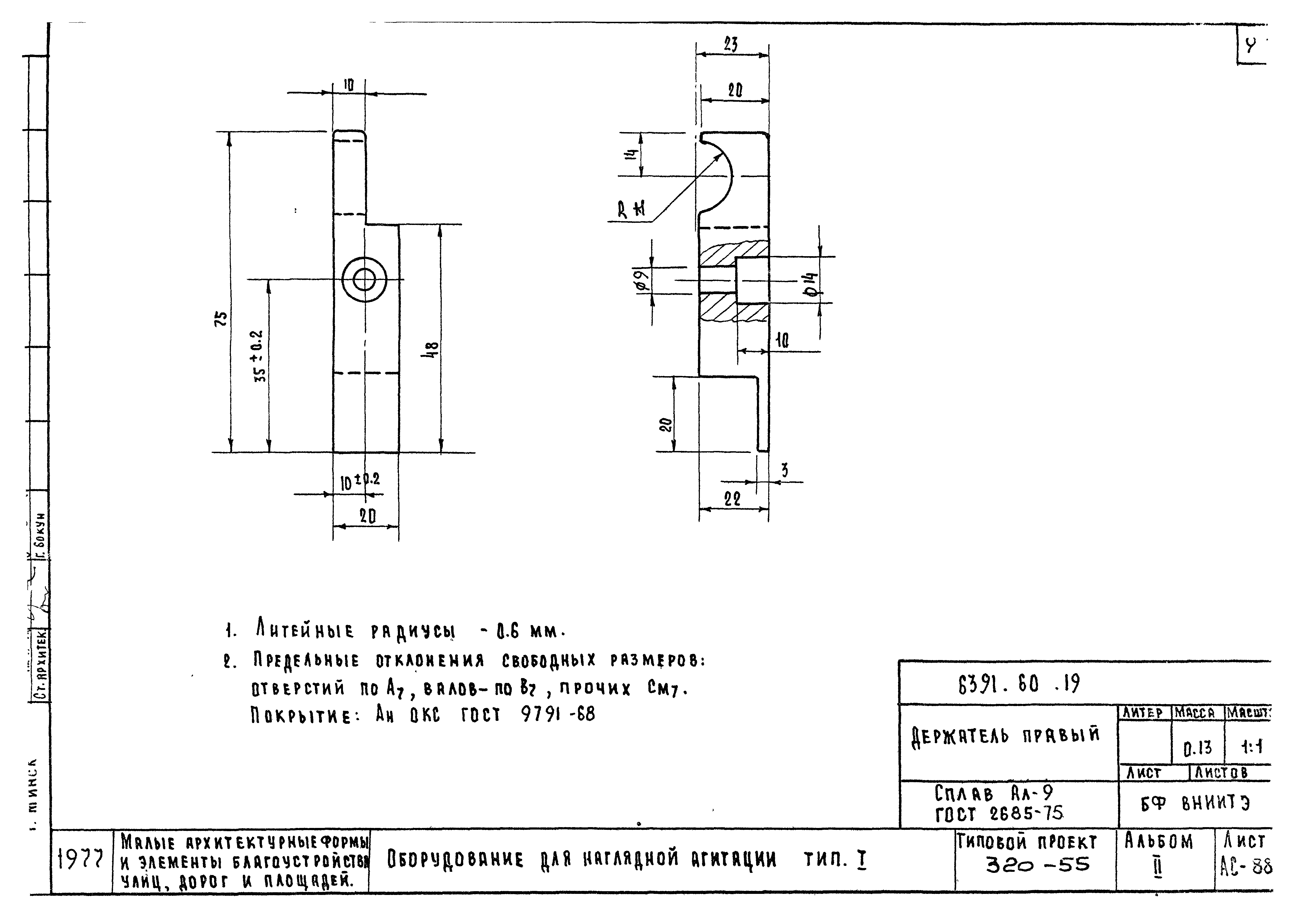
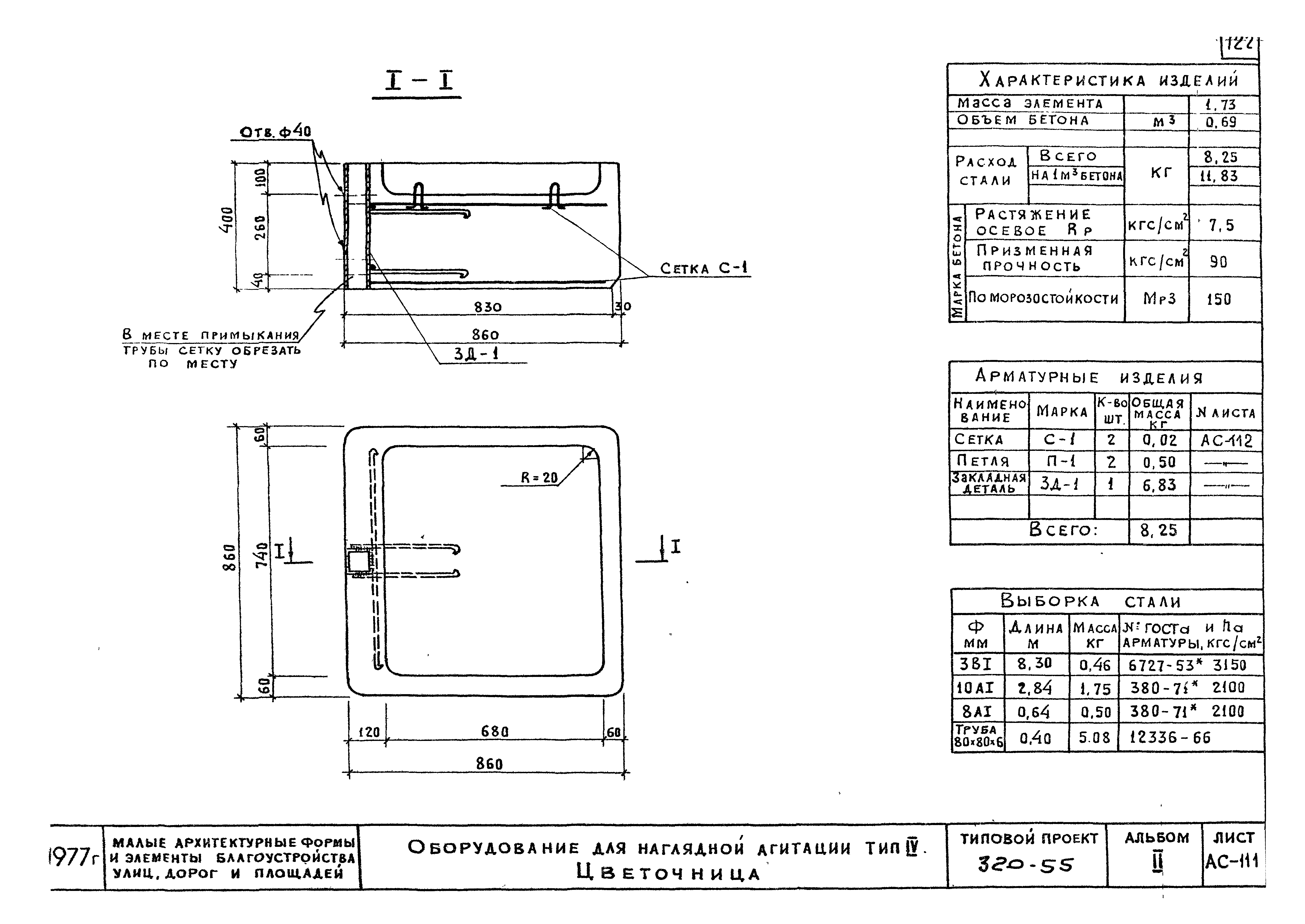
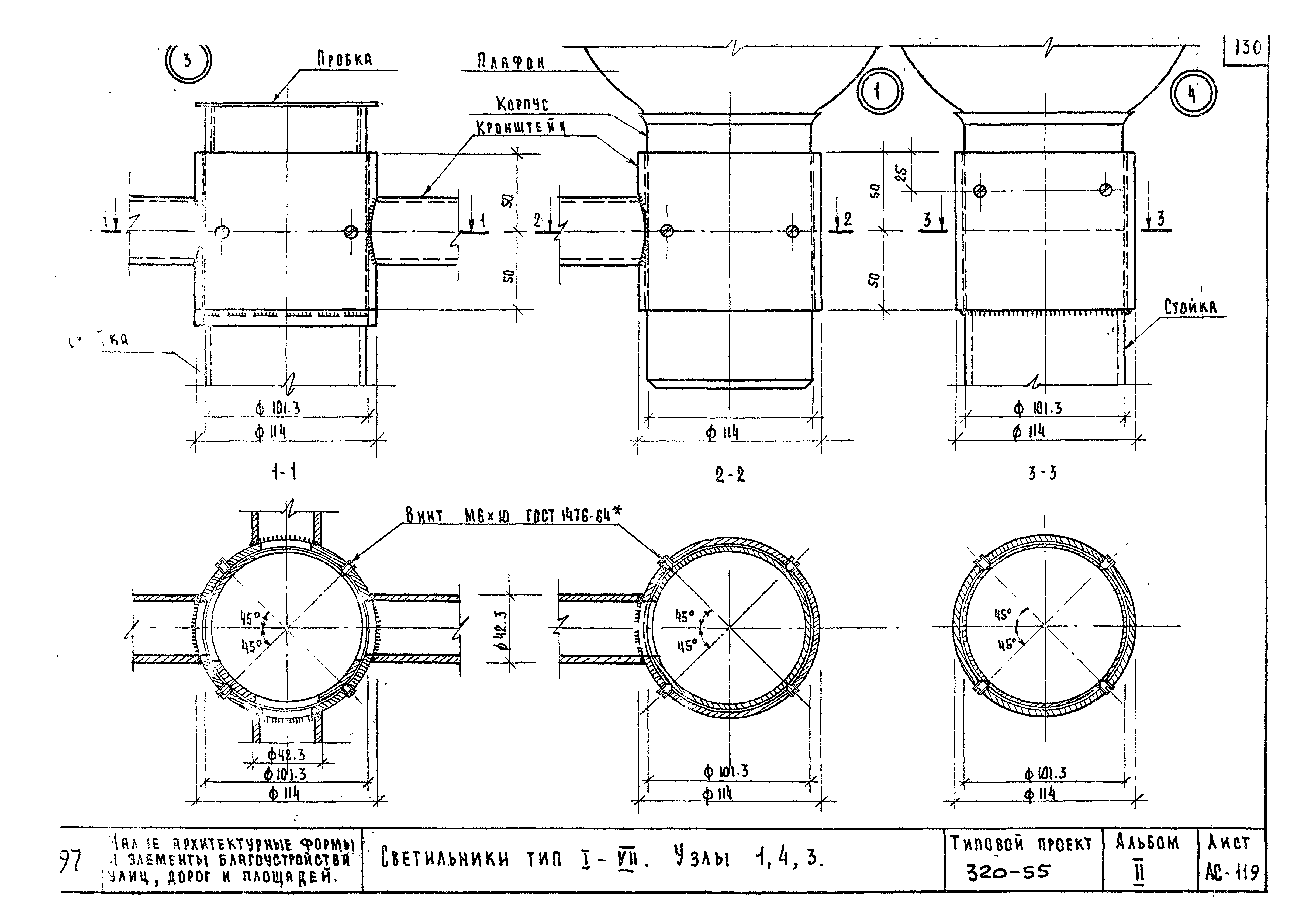
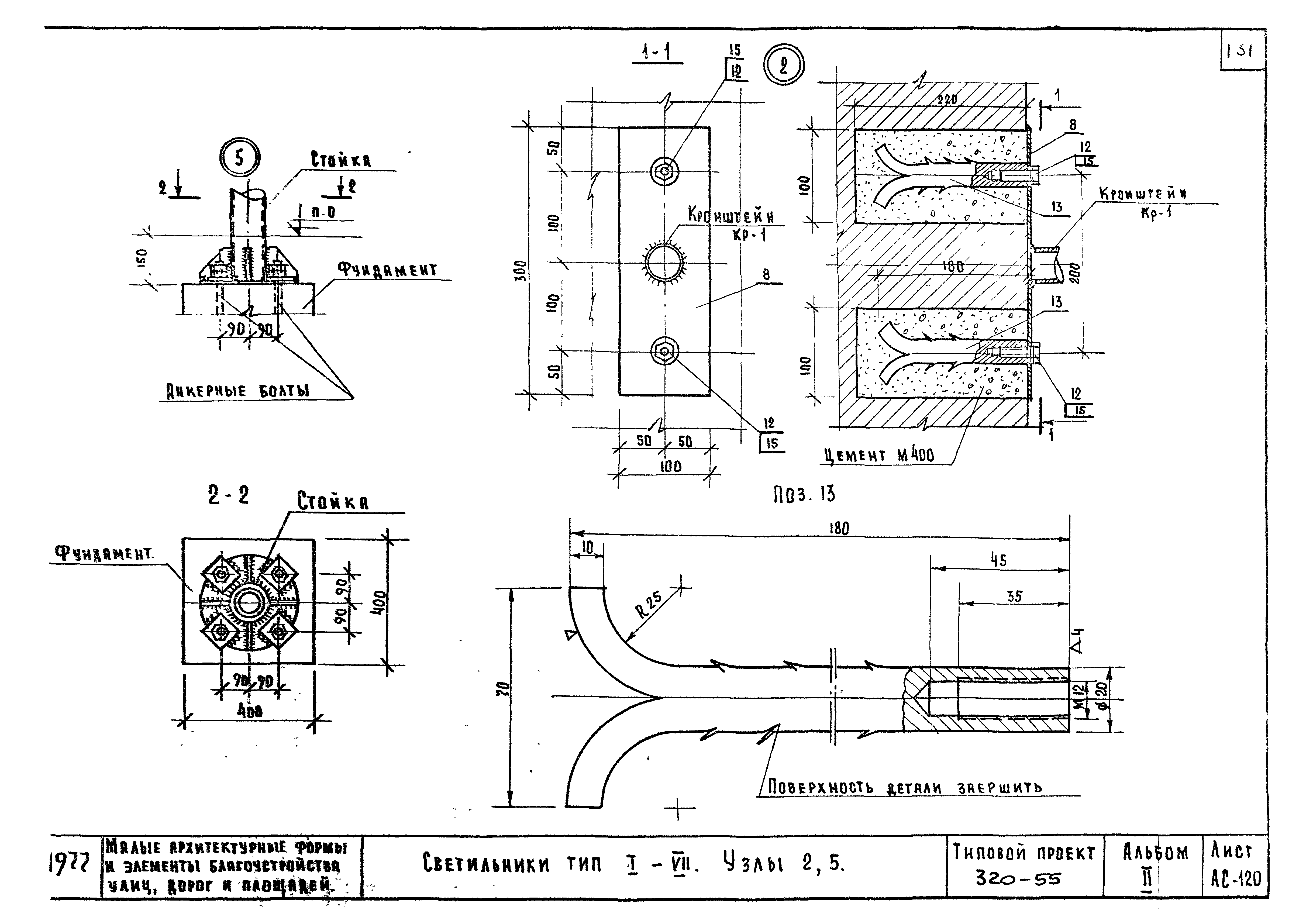
Скачать Типовой проект 320-55 Альбом II. Элементы информации и освещенияДата актуализации: 01.01.2021 Типовой проект 320-55
Альбом II. Элементы информации и освещения| Обозначение: | Типовой проект 320-55 | | Обозначение англ: | 320-55 | | Статус: | не определен законодательством | | Название рус.: | Альбом II. Элементы информации и освещения | | Дата добавления в базу: | 01.09.2013 | | Дата актуализации: | 01.01.2021 | | Дата введения: | 19.09.1977 | | Дата окончания срока действия: | 30.06.2003 | | Разработан: | Белгоспроект
| | Утверждён: | 20.07.1977 Госстрой БССР (BSSR Gosstroy 95)
|
                                                                                                                                                  
|