Скачать Типовой проект 320-068.23.86 Альбом II. Архитектурно-строительные чертежи (вариант их местных строительных материалов)Дата актуализации: 01.01.2021
|
| Обозначение: | Типовой проект 320-068.23.86 |
| Обозначение англ: | 320-068.23.86 |
| Статус: | действует |
| Название рус.: | Альбом II. Архитектурно-строительные чертежи (вариант их местных строительных материалов) |
| Дата добавления в базу: | 01.09.2013 |
| Дата актуализации: | 01.01.2021 |
| Дата введения: | 04.10.1985 |
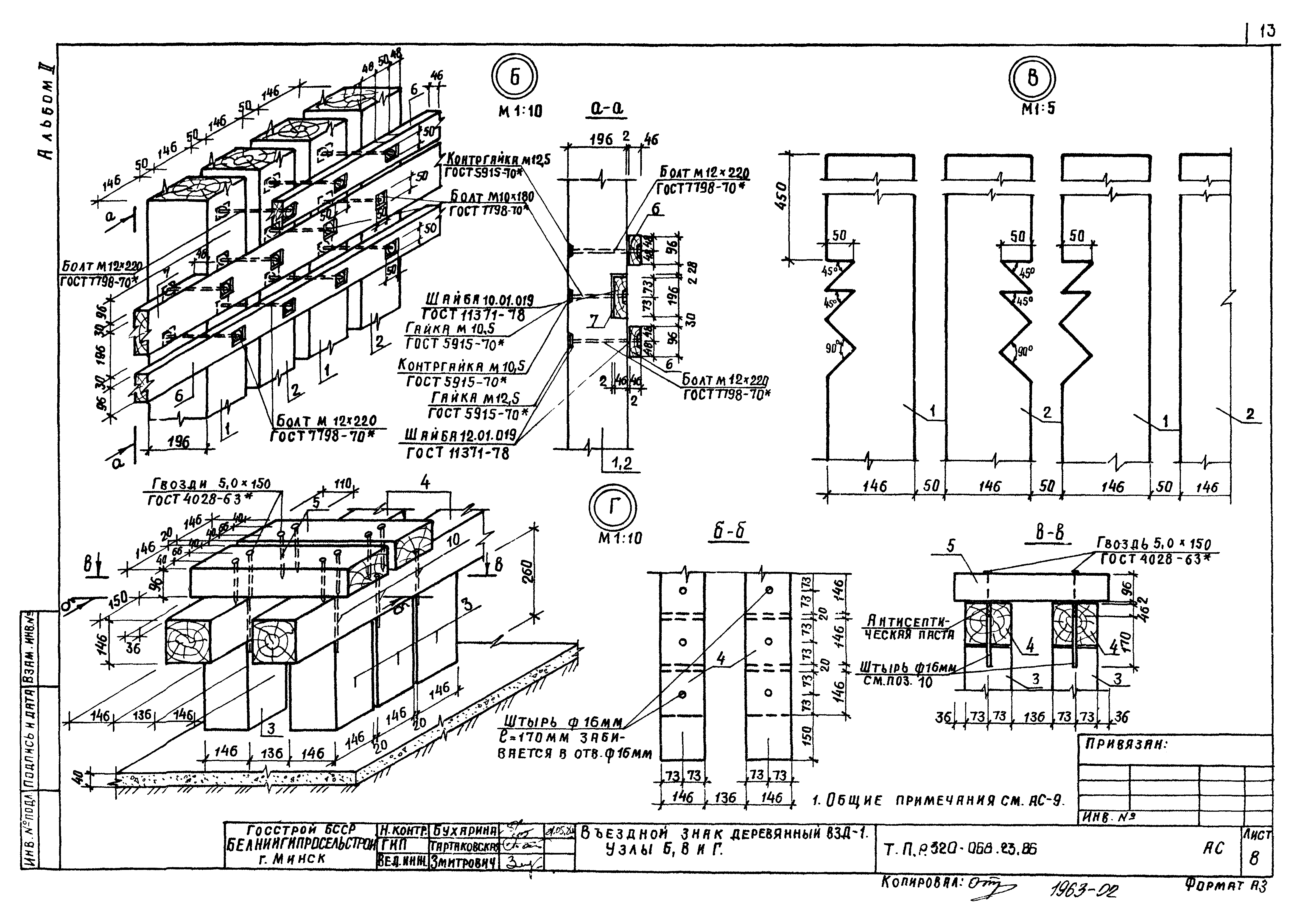
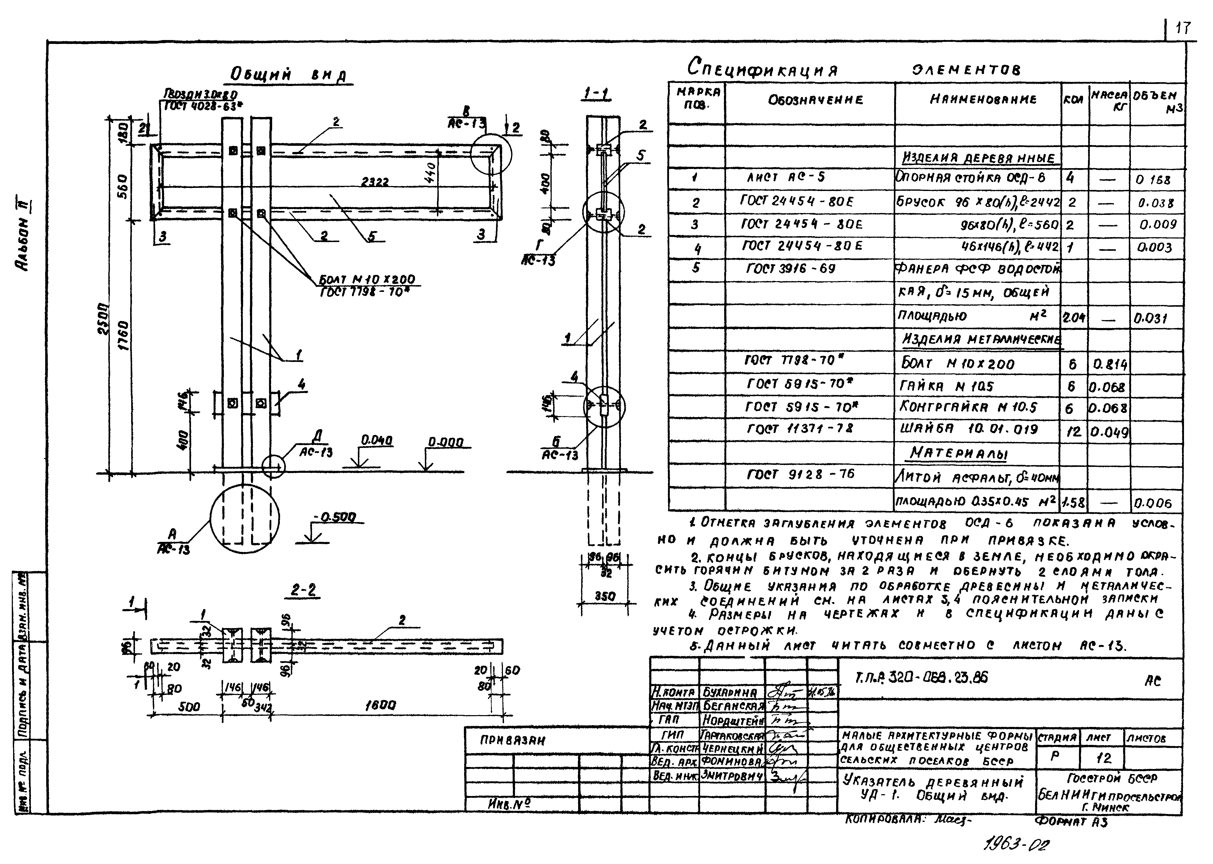
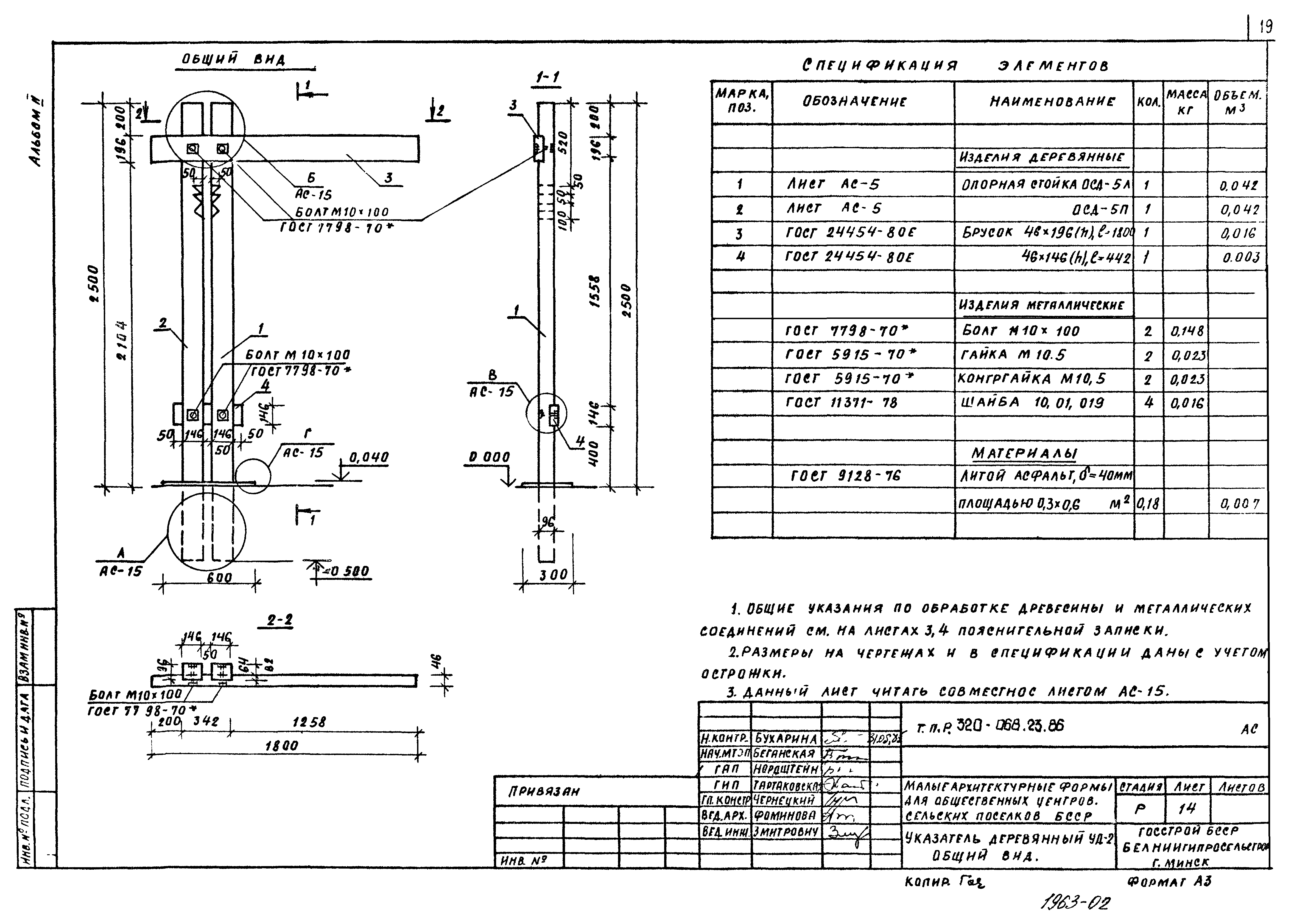
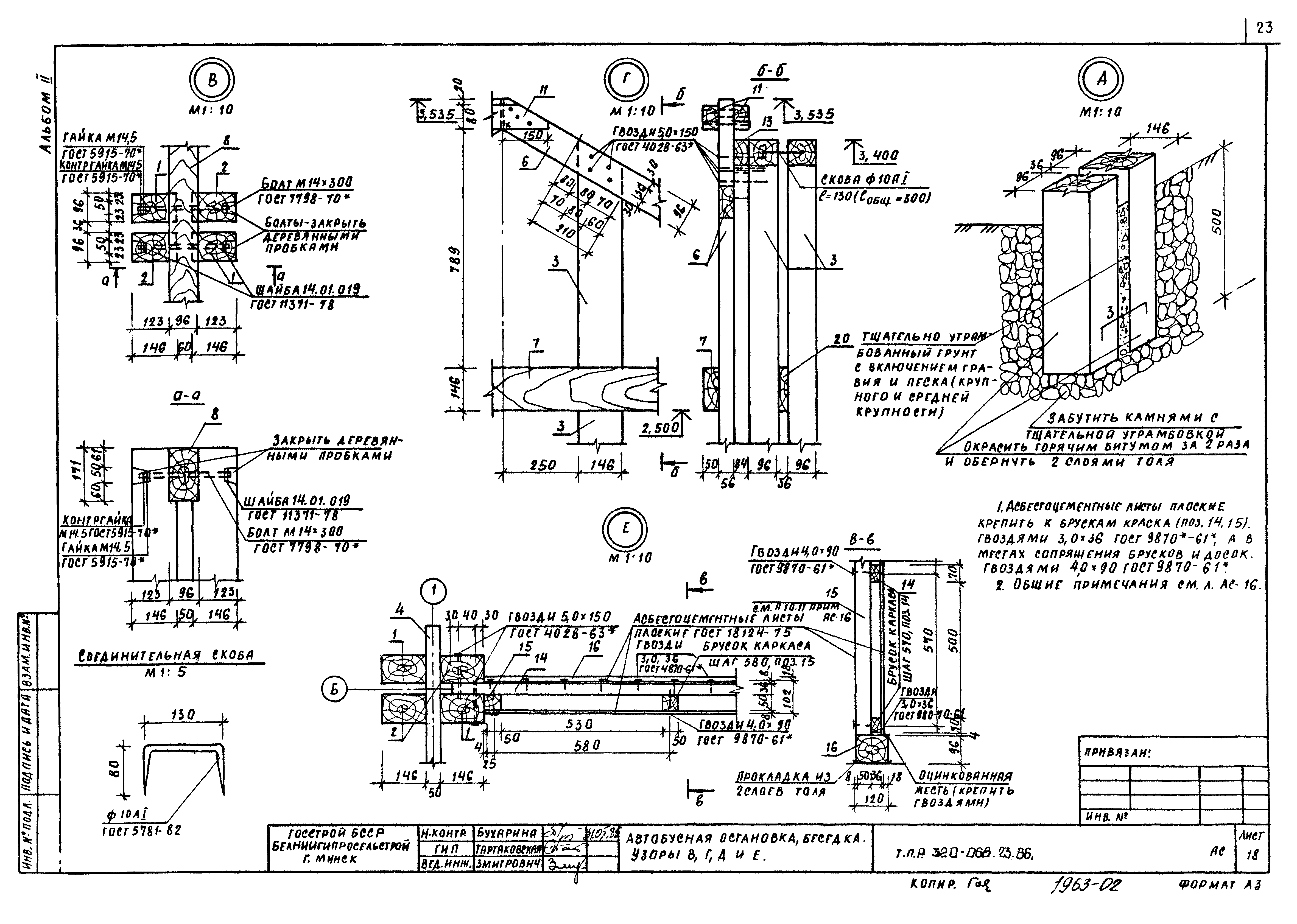
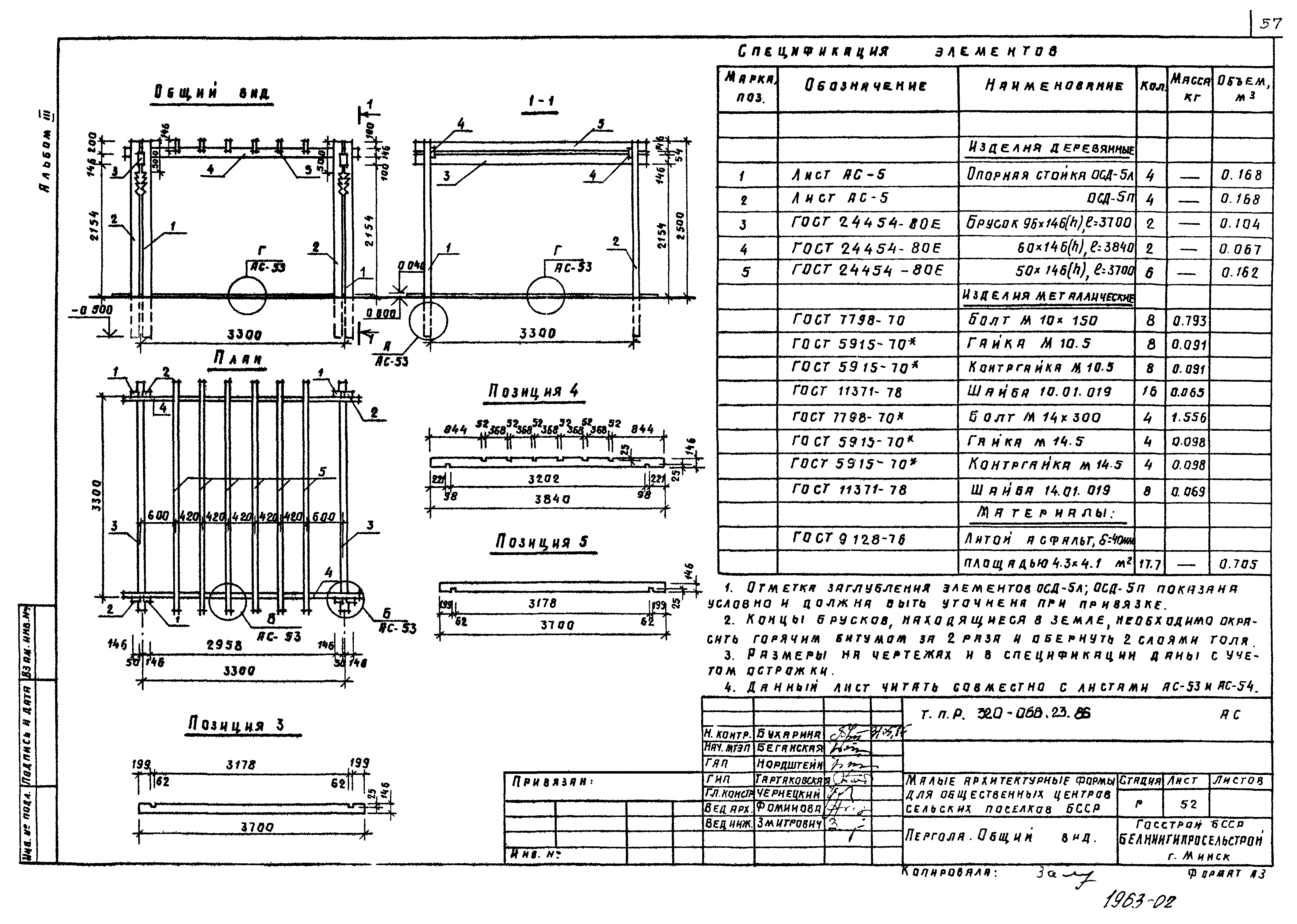
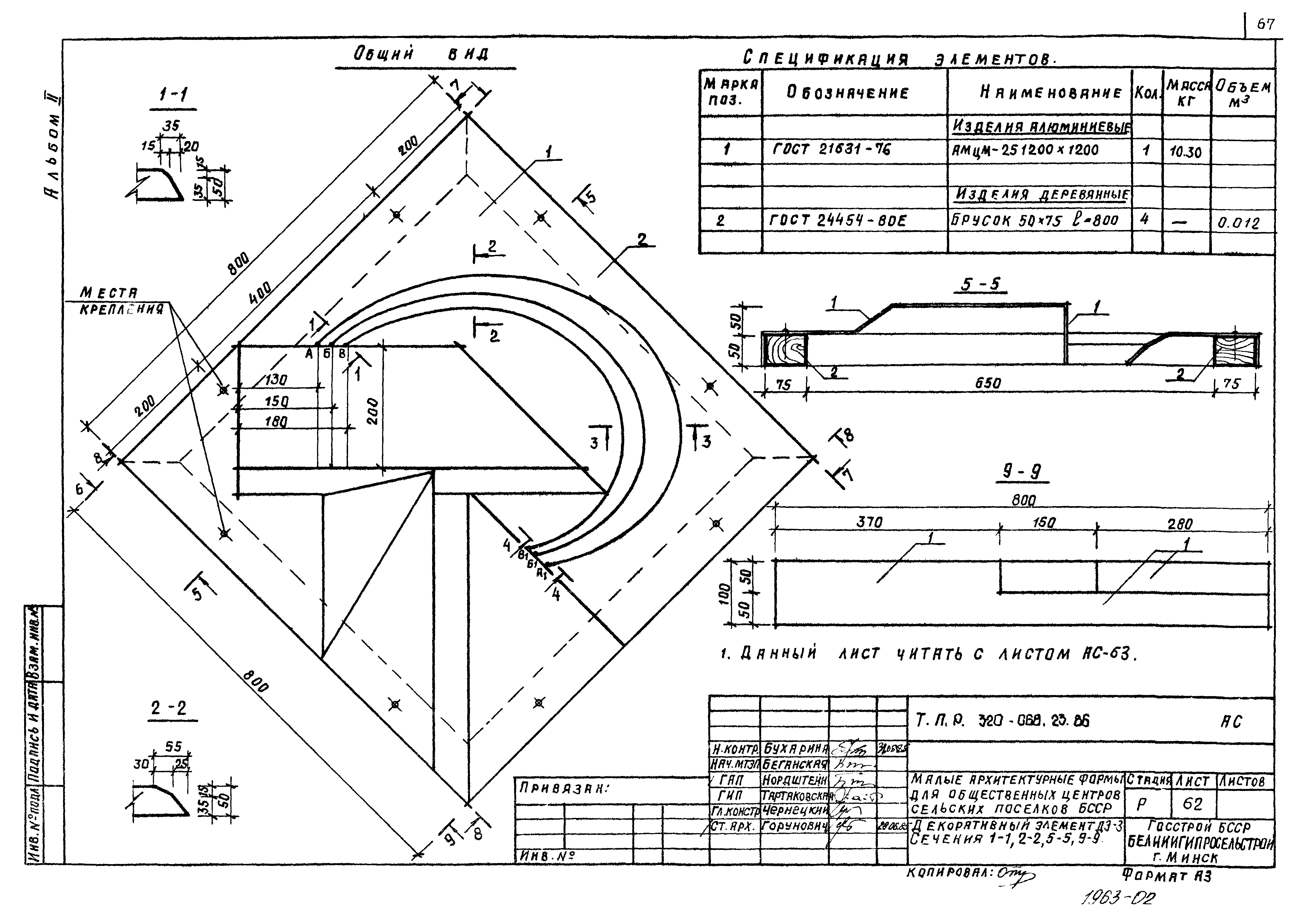
| Оглавление: | Содержание альбома (начало) Содержание альбома (окончание) Пояснительная записка (начало) Пояснительная записка (окончание) Архитектурно-строительные решения АС Общие данные (начало) Общие данные (продолжение) Общие данные (окончание) Опорные стойки деревянные. Номенклатура (начало) Опорные стойки деревянные. Номенклатура (продолжение) Опорные стойки деревянные. Номенклатура (окончание) Въездной знак деревянный ВЗД-1. Общий вид. Узел А Въездной знак деревянный ВЗД-1. Узлы Б,В и Г Въездной знак деревянный ВЗД-1. Узлы Д,Е,Ж и И Въездной знак деревянный ВЗД-2. Общий вид. Узел А Въездной знак деревянный ВЗД-2. Узлы Б,В,Г и Д Указатель деревянный УД-1. Общий вид Указатель деревянный УД-1. Узлы А,Б,В,Г и Д Указатель деревянный УД-2. Общий вид Указатель деревянный УД-2. Узлы А,Б,В и Г Автобусная остановка, беседка. Общий вид Автобусная остановка, беседка. Схема расположения элементов стропил. Узлы А и Б Автобусная остановка, беседка. Узлы В,Г,Д и Е Автобусная остановка, беседка. Узлы Ж,И,К,Л и М Автобусная остановка, беседка. Спецификация элементов Автобусная остановка, беседка. Примеры компоновок Торговый ряд. Общий вид. Узел А Торговый ряд. Схема расположения элементов стропил. Узел Б Торговый ряд. Узлы В,Г,Д,Е,Ж и И Торговый ряд. Узлы К,Л и М Торговый ряд. Спецификация элементов Автобусная остановка с торговыми рядами. Общий вид. Узел А Автобусная остановка с торговыми рядами. Схема расположения элементов стропил. Узел 5 Автобусная остановка с торговыми рядами. Узлы В,Г,Д,Е и Ж Автобусная остановка с торговыми рядами. Узлы И,К и Л Автобусная остановка с торговыми рядами. Узлы М,Н,П и Р Автобусная остановка с торговыми рядами. Узлы С,Т,У и Ф Автобусная остановка с торговыми рядами. Спецификация элементов Велосипедная стоянка на 8 велосипедов. Общий вид Велосипедная стоянка на 8 велосипедов. Узлы А,Б,В и Г Велосипедная стоянка на 8 велосипедов. Узлы Д,Е,Ж и И Стенд информации. Общий вид. Узел А Стенд информации. Узлы Б,В,Г,Д и Е Доска показателей. Общий вид. Узел А Доска показателей. Узлы Б,В и Г Доска показателей. Узлы Д,Е,Ж,И и К Доска показателей. Витрина. Общий вид. Узел А Доска показателей. Витрина. Узлы Б,В,Г,Д и Е Доска почета. Общий вид. Узел А Доска почета. Узлы Б,В,Г и Д Доска почета. Узлы Е,Ж и И Доска почета. Рамка для фотографий Доска почета. Шрифт Доска почета. Детали крепления букв Декоративная стенка. Общий вид. Узел А Декоративная стенка. Узлы Б,В,Г,Д и Е Перголя. Общий вид Перголя. Узлы А,Б,В и Г Перголя. Примеры блокировки Скамья тип 1. Общий вид Скамья тип 1. Узлы А,Б,В и Г Скамья тип 2. Общий вид Скамья тип 2. Узлы А,Б,В,Г и Д Урна Декоративный элемент деревянный ДЭД-1 Декоративный элемент деревянный ДЭД-2 Декоративный элемент ДЭ-3. Сечения 1-1,2-2,5-5,9-9 Декоративный элемент ДЭ-3. Шаблоны. Сечения 3-3,4-4,6-6,7-7,8-8 |
| Разработан: | БелНИИгипросельстрой |
| Утверждён: | 06.09.1985 Госстрой БССР (BSSR Gosstroy 147) |





































































