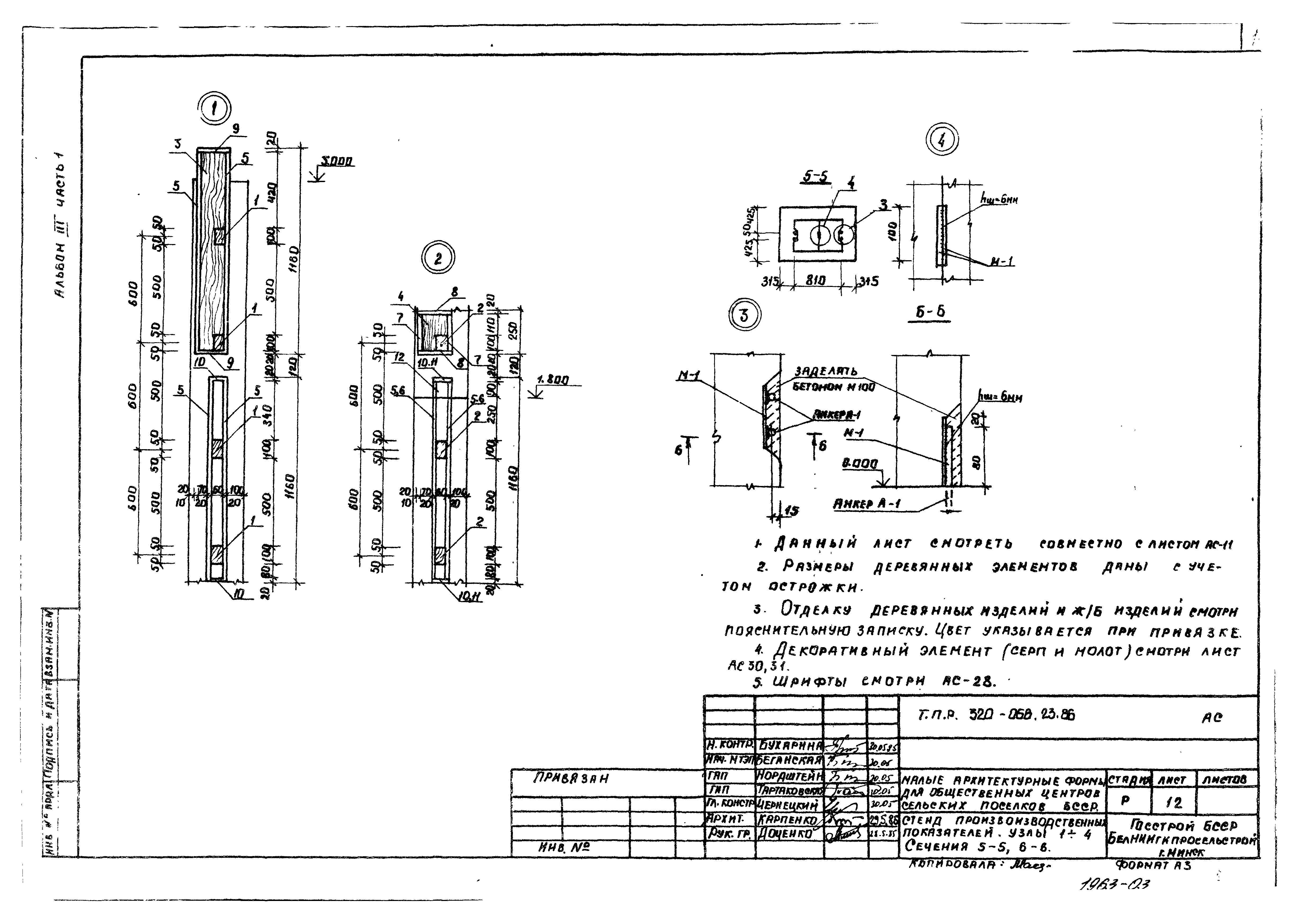
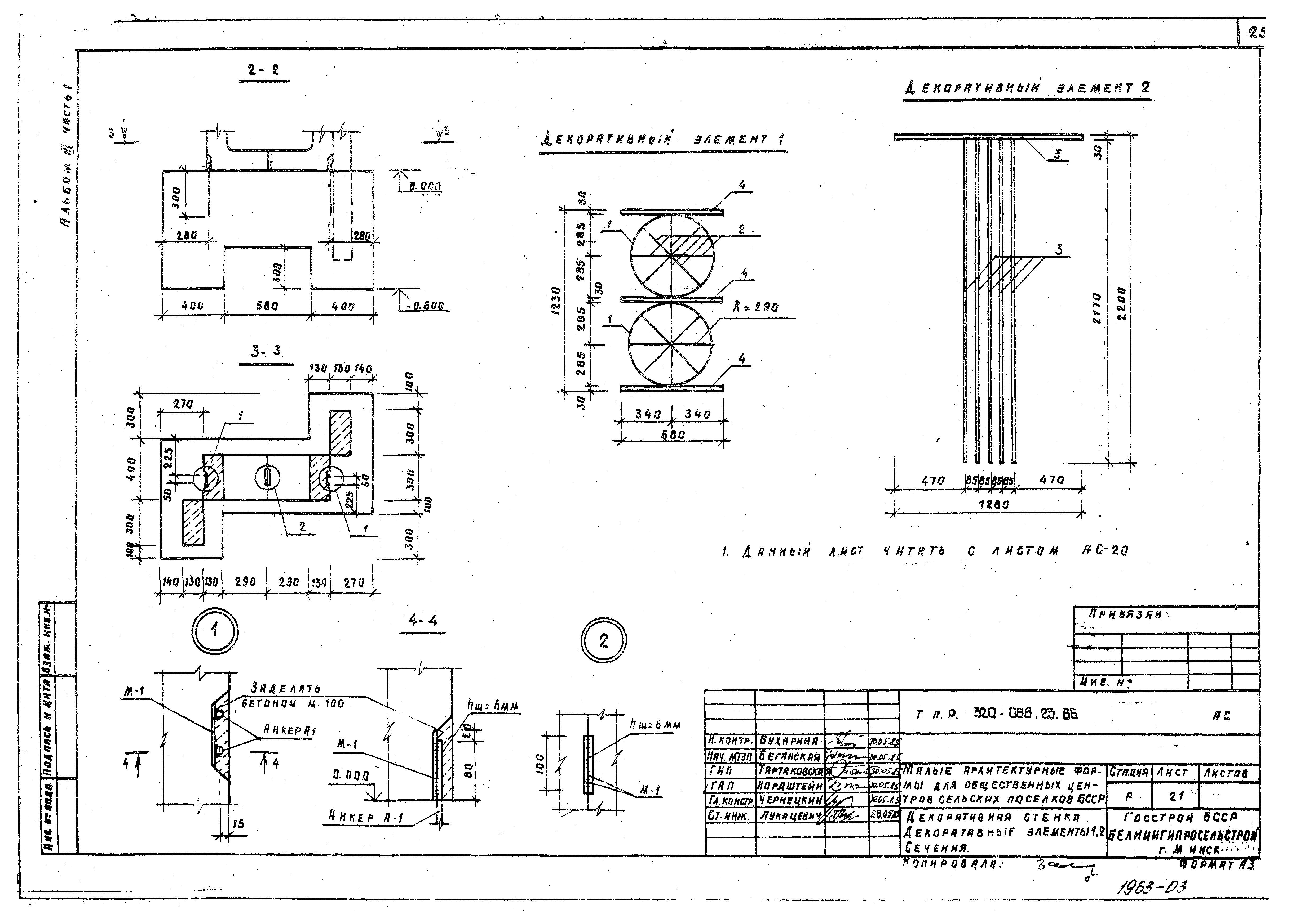
Скачать Типовой проект 320-068.23.86 Альбом III. Часть 1. Архитектурно-строительные чертежи (вариант из индустриальных изделий)Дата актуализации: 01.01.2021 Типовой проект 320-068.23.86
Альбом III. Часть 1. Архитектурно-строительные чертежи (вариант из индустриальных изделий)| Обозначение: | Типовой проект 320-068.23.86 | | Обозначение англ: | 320-068.23.86 | | Статус: | действует | | Название рус.: | Альбом III. Часть 1. Архитектурно-строительные чертежи (вариант из индустриальных изделий) | | Дата добавления в базу: | 01.09.2013 | | Дата актуализации: | 01.01.2021 | | Дата введения: | 04.10.1985 | | Разработан: | БелНИИгипросельстрой
| | Утверждён: | 06.09.1985 Госстрой БССР (BSSR Gosstroy 147)
|
                                 
|