Скачать Типовой проект 320-068.23.86 Альбом III. Часть 2. Изделия заводского изготовленияДата актуализации: 01.01.2021
|
| Обозначение: | Типовой проект 320-068.23.86 |
| Обозначение англ: | 320-068.23.86 |
| Статус: | действует |
| Название рус.: | Альбом III. Часть 2. Изделия заводского изготовления |
| Дата добавления в базу: | 01.09.2013 |
| Дата актуализации: | 01.01.2021 |
| Дата введения: | 04.10.1985 |
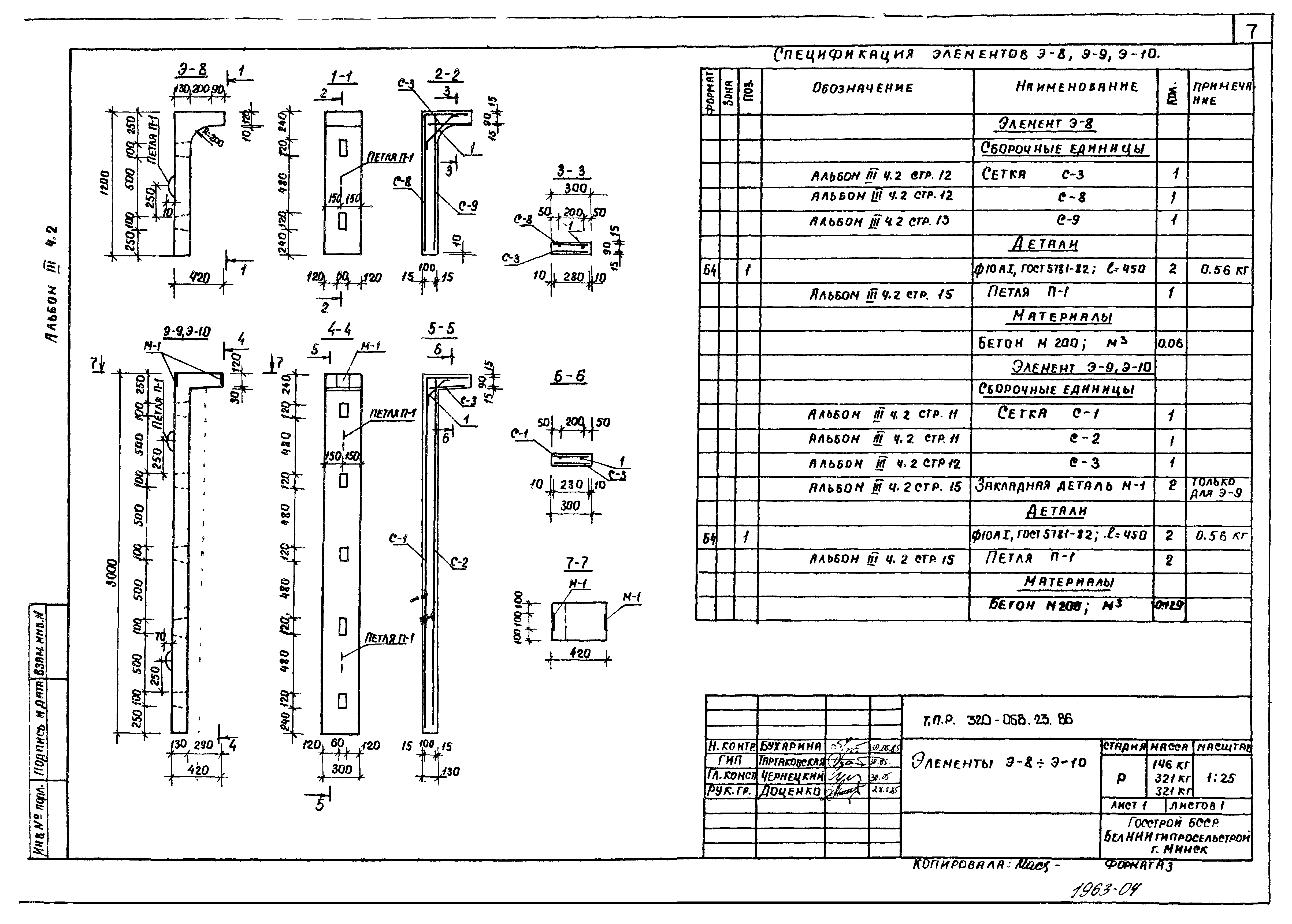
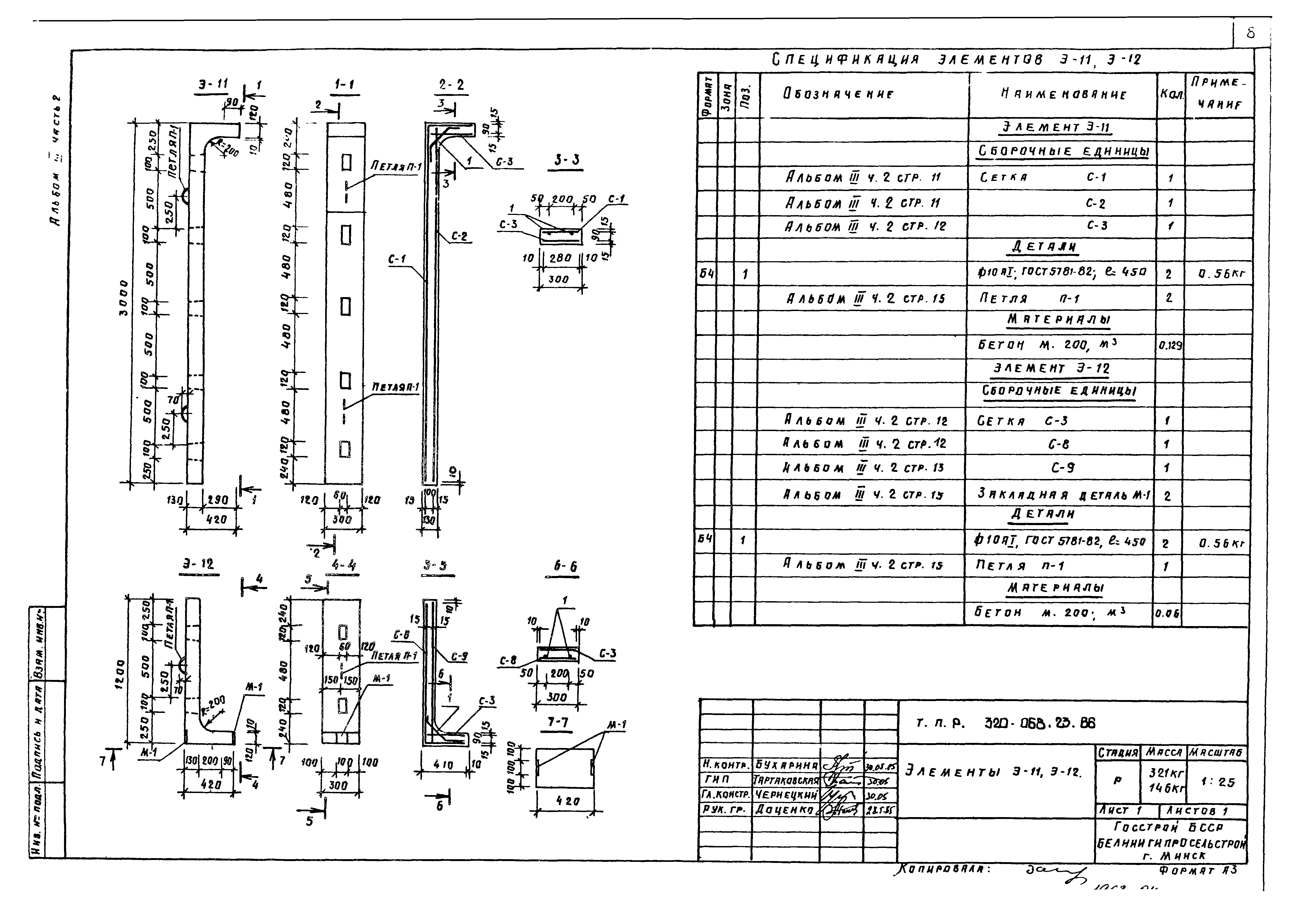
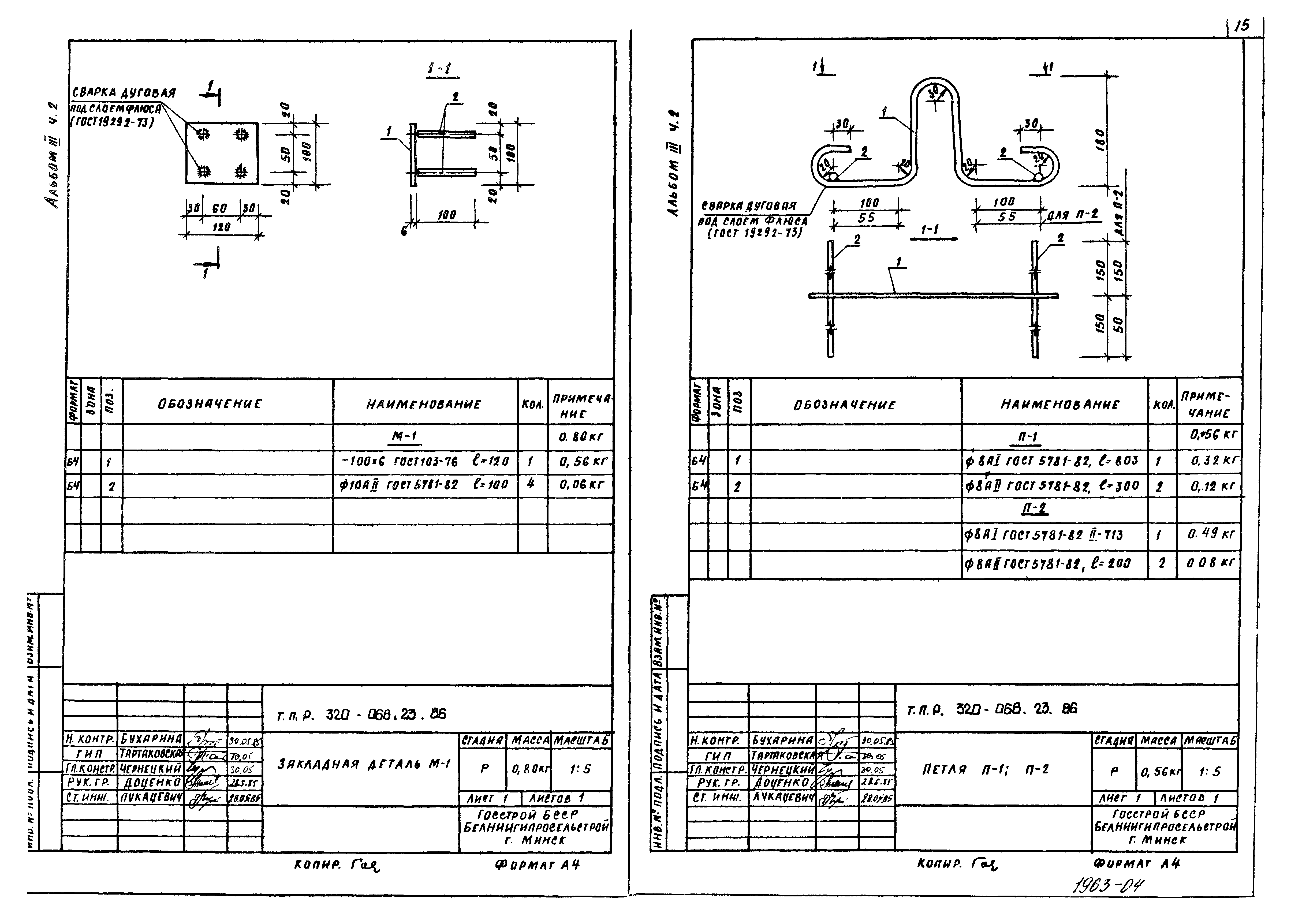
| Оглавление: | Титульный лист Содержание альбома. Техническое описание Элемент Э-1 Элементы Э-2,Э-3 Элементы Э-4,Э-5 Элементы Э-6,Э-7 Элементы Э-8-Э-10 Элементы Э-11;Э-12 Элементы Э-13;Э-14 Элементы Э-15;Э-16 Сетки С-1,С-4,С-6 Сетки С-2,С-3,С-7 Сетка С-3 Сетки С-8,С-11 Сетки С-9,С-12 Сетка С-10 Анкер А-1 Анкер А-2 Закладная деталь М-1 Петля П-1,П-2 Деталь крепления М-2 Шпилька Ш-1,Ш-2 |
| Разработан: | БелНИИгипросельстрой |
| Утверждён: | 06.09.1985 Госстрой БССР (BSSR Gosstroy 147) |

















