Скачать Типовой проект 330-018.85 Альбом I. Архитектурно-планировочные решенияДата актуализации: 01.01.2021
|
| Обозначение: | Типовой проект 330-018.85 |
| Обозначение англ: | 330-018.85 |
| Статус: | не определен законодательством |
| Название рус.: | Альбом I. Архитектурно-планировочные решения |
| Дата добавления в базу: | 01.09.2013 |
| Дата актуализации: | 01.01.2021 |
| Дата введения: | 25.02.1985 |
| Дата окончания срока действия: | 30.06.2003 |
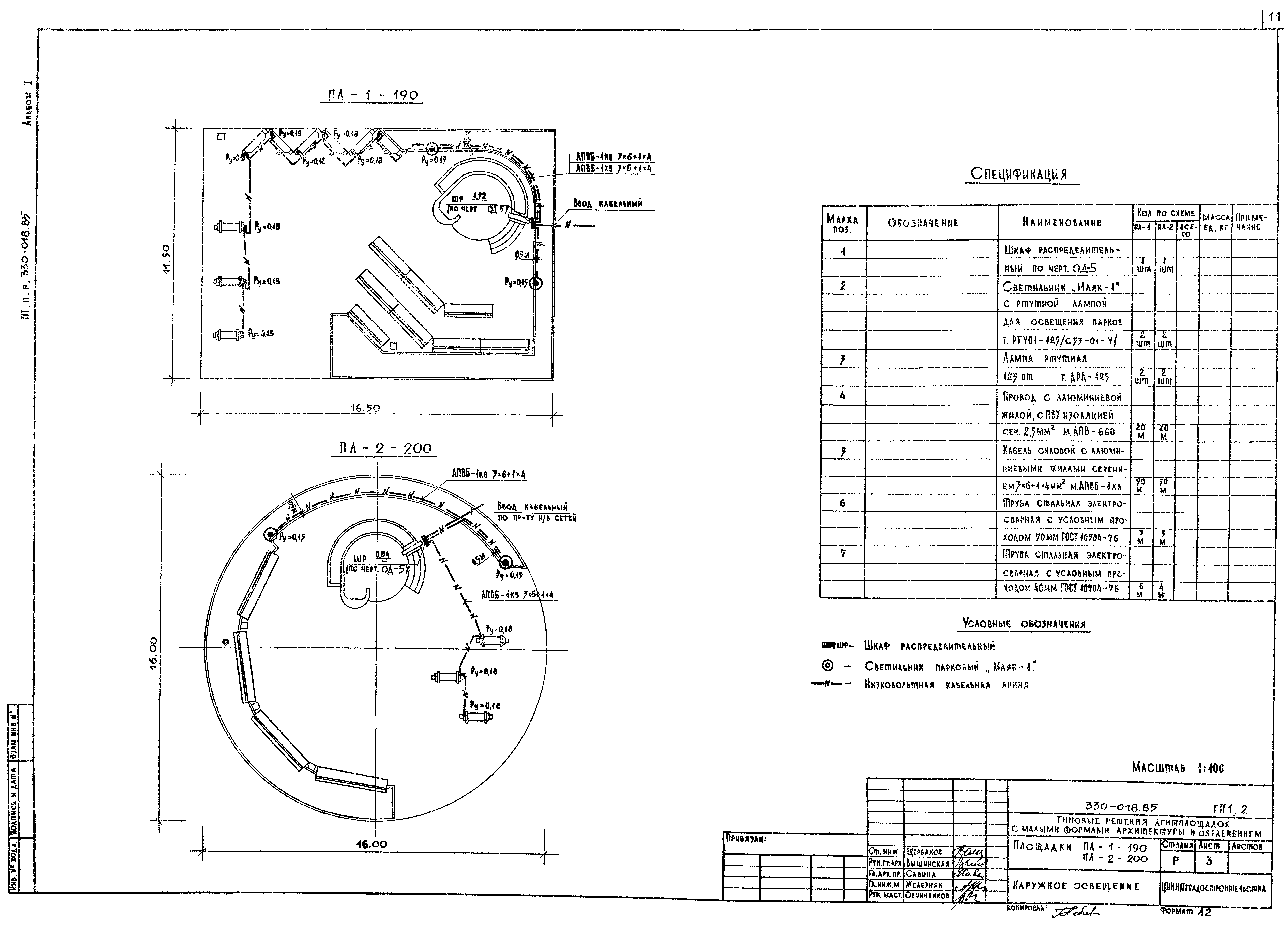
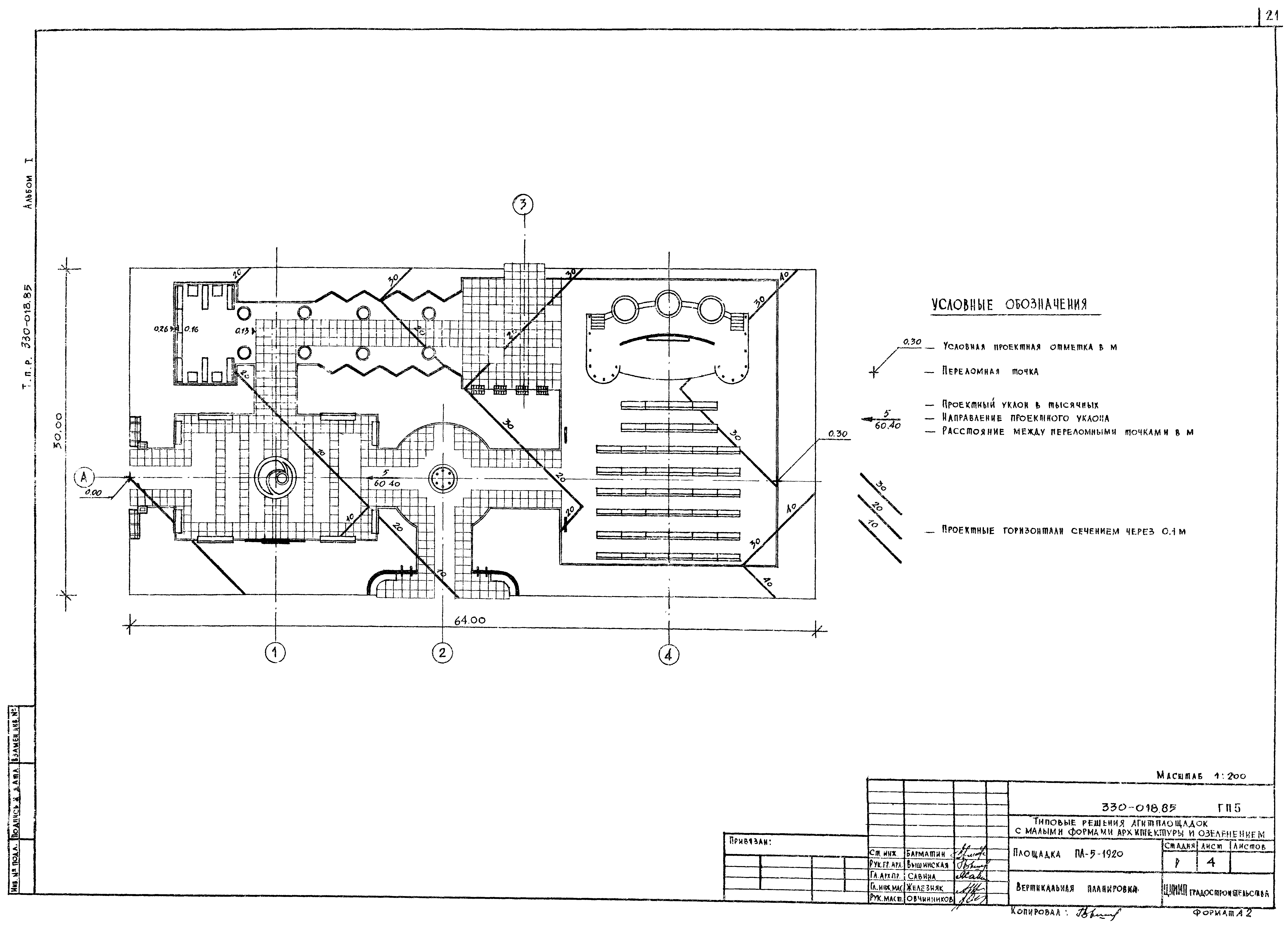
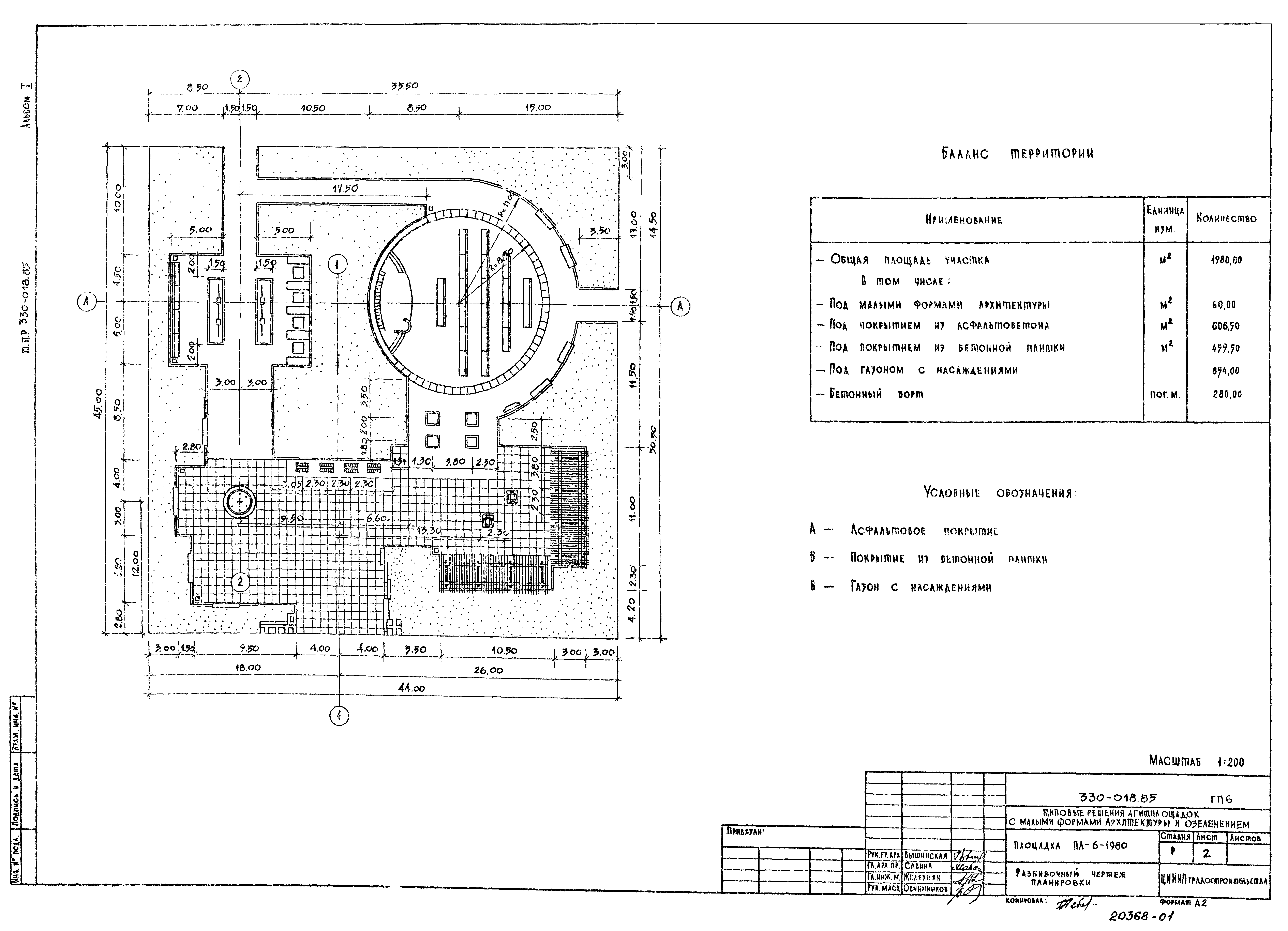
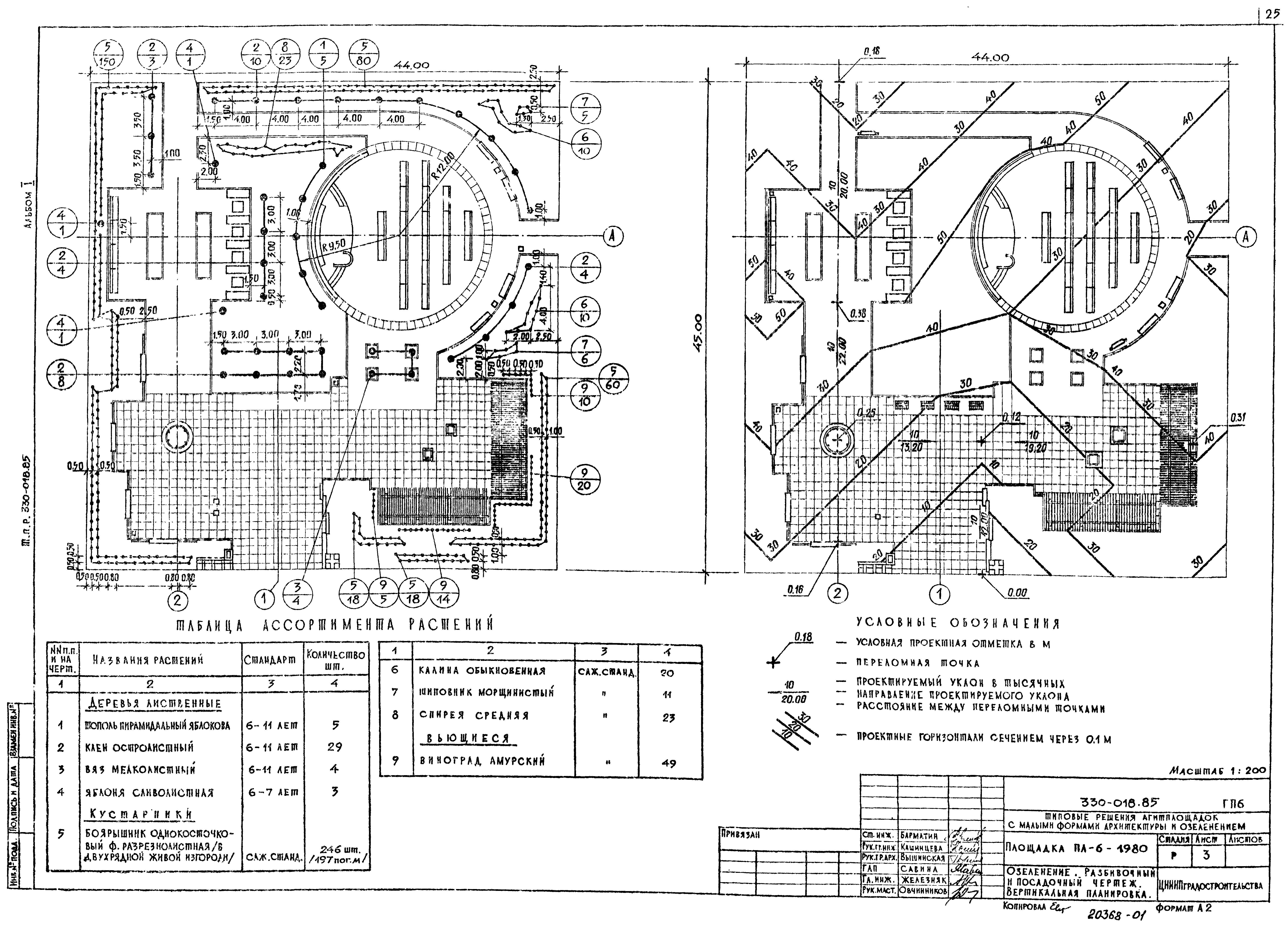
| Оглавление: | Общие данные ОД.1 Ведомость чертежей основного комплекта и ведомость ссылочных и прилагаемых документов ОД.2,3,4 Общие указания ОД.5 Шкаф ШР ОД.6,7 Номенклатура типовых площадок Площадки ПЛ-1-190;ПЛ-2-200 ГП.1.2.1 Генплан. Размещение малых форм архитектуры. Разбивочный чертеж планировки ГП.1.2.2 Озеленение. Разбивочный и посадочный чертеж. Вертикальная планировка ГП.1.2.3 Наружное освещение Площадка ПЛ-3-490 ГП.3.1 Генплан. Размещение малых форм архитектуры. Разбивочный чертеж планировки ГП.3.2 Озеленение. Разбивочный и посадочный чертеж. Вертикальная планировка ГП.3.3 Наружное освещение Площадка ПЛ-4-500 ГП.4.1 Генплан. Размещение малых форм архитектуры. Разбивочный чертеж планировки ГП.4.2 Озеленение. Разбивочный и посадочный чертеж. Вертикальная планировка ГП.4.3 Наружное освещение Площадка ПЛ-5-1320 ГП.5.1 Генплан. Размещение малых форм архитектуры и озеленением ГП.5.2 Разбивочный чертеж планировки ГП.5.3 Озеленение. Посадочный и разбивочный чертеж ГП.5.4 Вертикальная планировка ГП.5.5 Электроосвещение. Водопровод и канализация Площадка ПЛ-5-1320 ГП.6.1 Генплан. Размещение малых форм архитектуры ГП.6.2 Разбивочный чертеж планировки ГП.6.3 Озеленение. Разбивочный и посадочный чертеж. Вертикальная планировка ГП.6.4 Наружное освещение ГП.6.5 Водопровод и канализация Площадка ПЛ-7-5000 ГП.7.1 Генплан. Размещение малых форм архитектуры ГП.7.2 Разбивочный чертеж планировки ГП.7.3 Озеленение. Разбивочный и посадочный чертеж. Вертикальная планировка ГП.7.4 Наружное освещение. Водопровод и канализация Площадка ПЛ-8-4840 ГП.8.1 Генплан. Размещение малых форм архитектуры. Разбивочный чертеж планировки ГП.8.2 Озеленение. Разбивочный и посадочный чертеж ГП.8.3 Наружное освещение. Водопровод и канализация Площадка ПЛ-9-1000 ГП.9.1 Генплан. Размещение малых форм архитектуры ГП.9.2 Разбивочный чертеж планировки ГП.9.3 Озеленение. Разбивочный и посадочный чертеж ГП.9.4 Вертикальная планировка ГП.9.5 Наружное освещение ГП.9.6 Водопровод и канализация Площадка ПЛ-10-9800 ГП.10.1 Генплан. Размещение малых форм архитектуры ГП.10.2 Разбивочный чертеж планировки ГП.10.3 Озеленение. Разбивочный и посадочный чертеж ГП.10.4 Вертикальная планировка ГП.10.5 Наружное освещение ГП.10.6 Водопровод и канализация ГП.СО Материал для проектирования по составлению спецификаций оборудования ГП.ВМ Материал для проектирования по составлению ведомостей потребности в материалах |
| Разработан: | ЦНИИЭП градостроительства |
| Утверждён: | 08.02.1982 Госгражданстрой (Gosgrazhdanstroy 35) |

















































