Скачать Типовой проект 330-018.85 Альбом II. Малые формы архитектурыДата актуализации: 01.01.2021
|
| Обозначение: | Типовой проект 330-018.85 |
| Обозначение англ: | 330-018.85 |
| Статус: | не определен законодательством |
| Название рус.: | Альбом II. Малые формы архитектуры |
| Дата добавления в базу: | 01.09.2013 |
| Дата актуализации: | 01.01.2021 |
| Дата введения: | 25.02.1985 |
| Дата окончания срока действия: | 30.06.2003 |
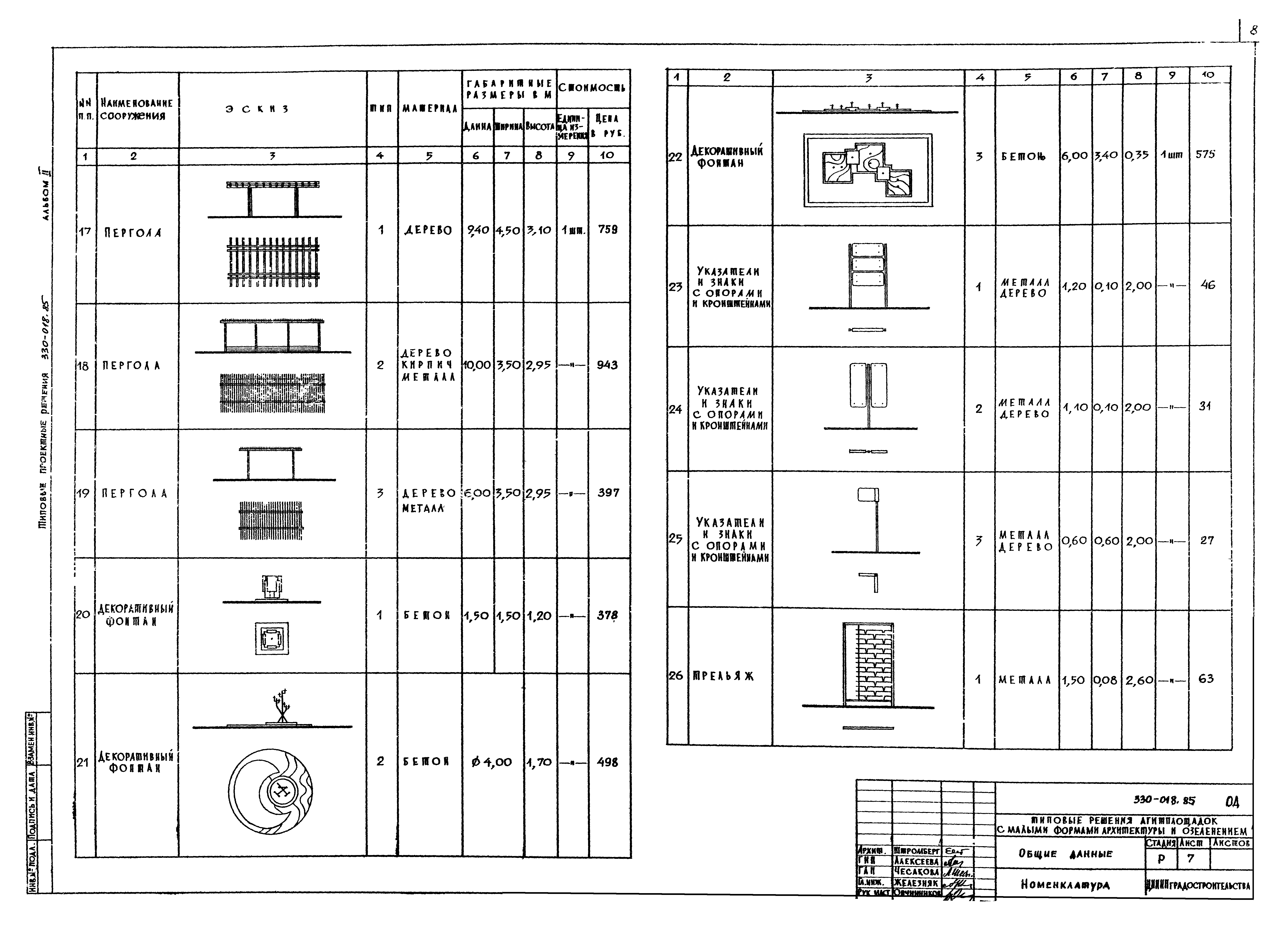
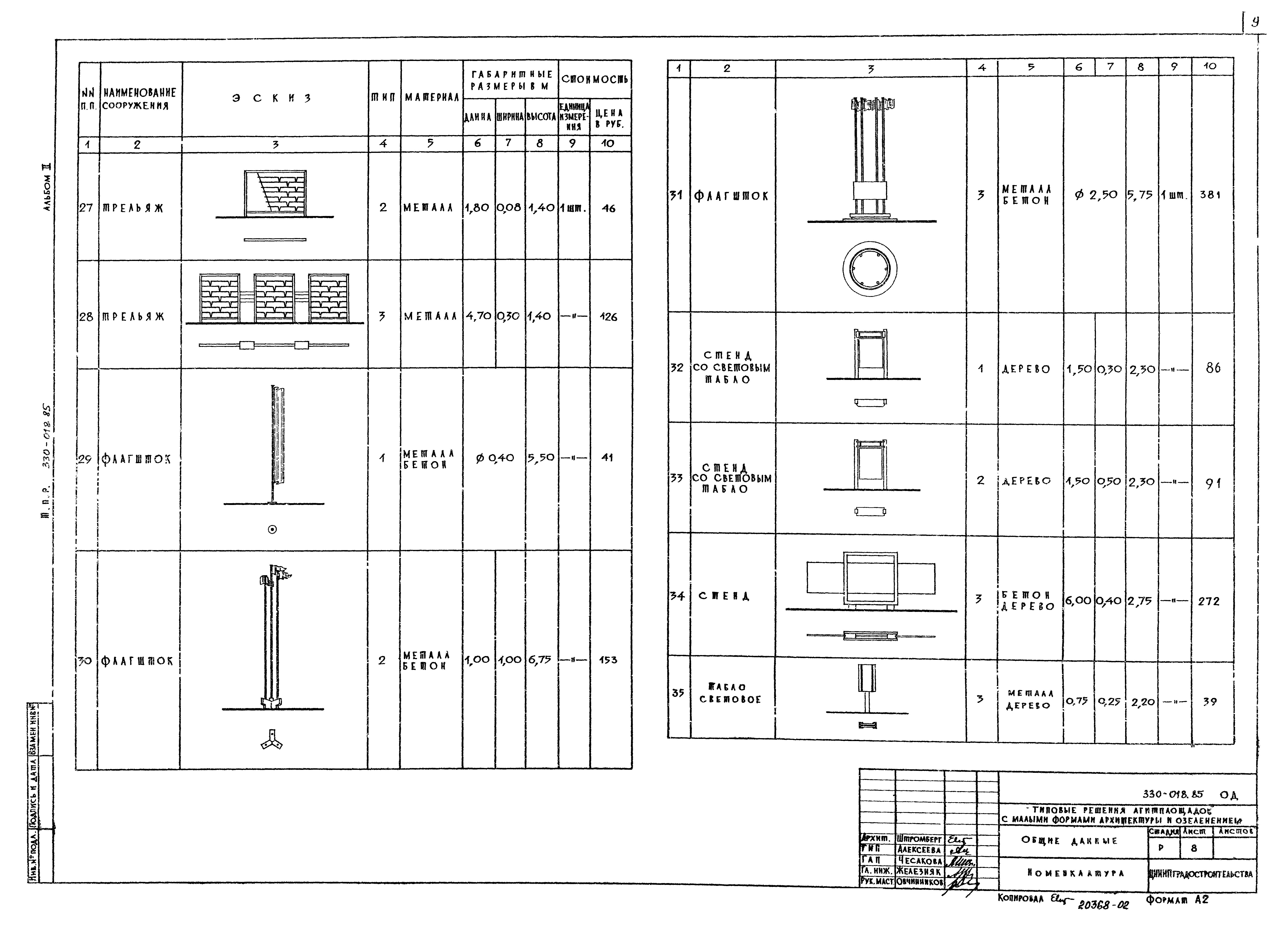
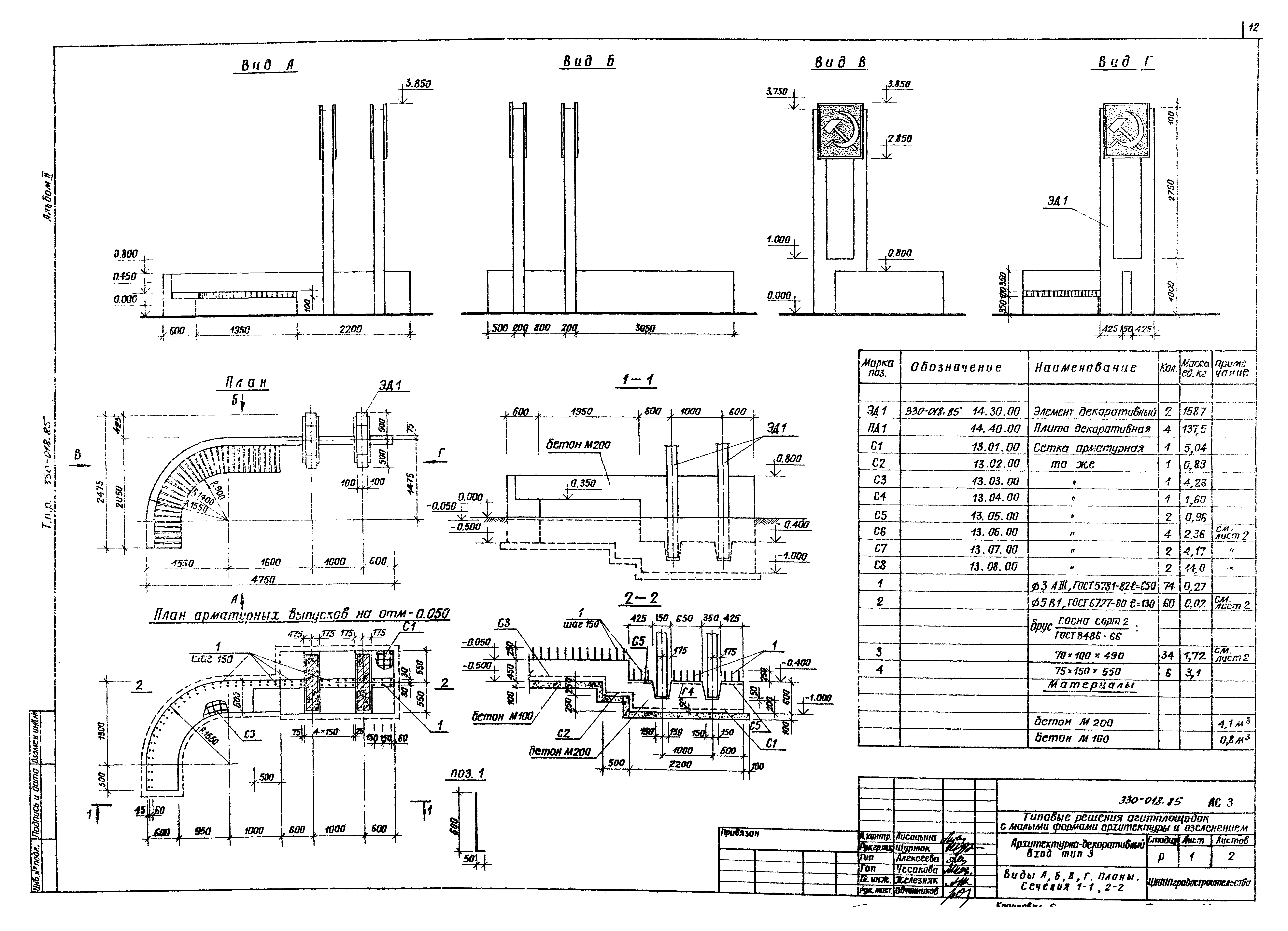
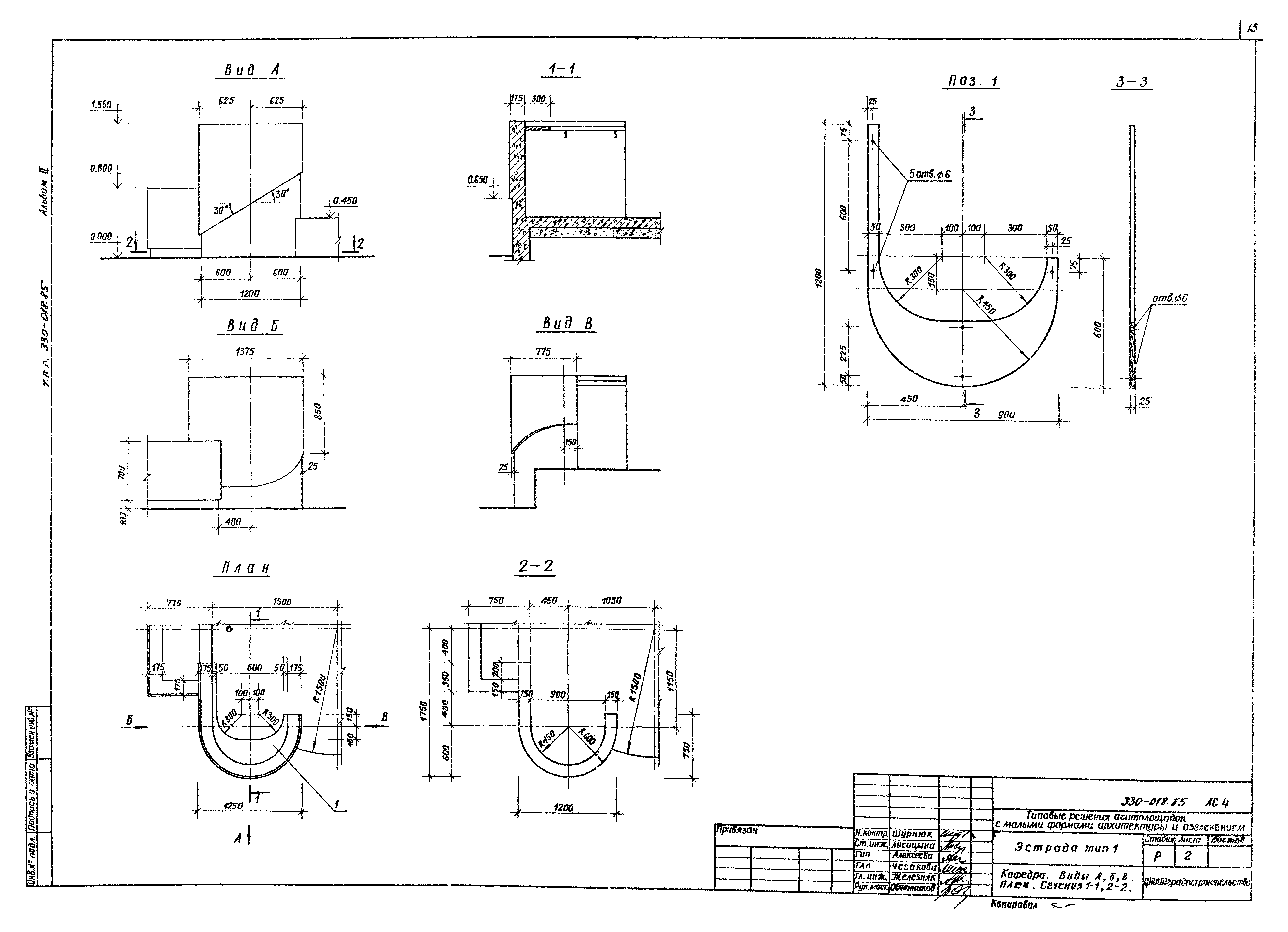
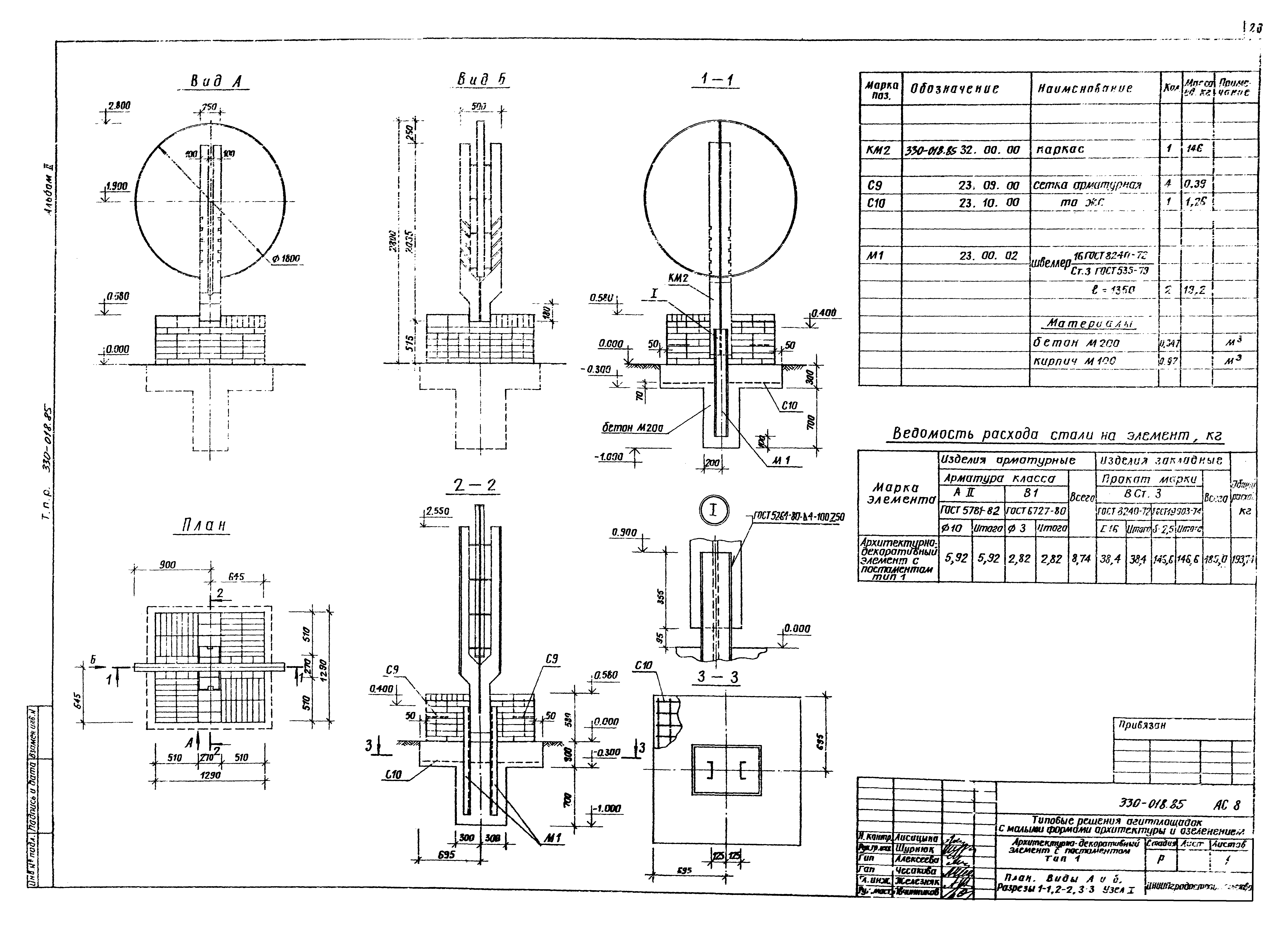
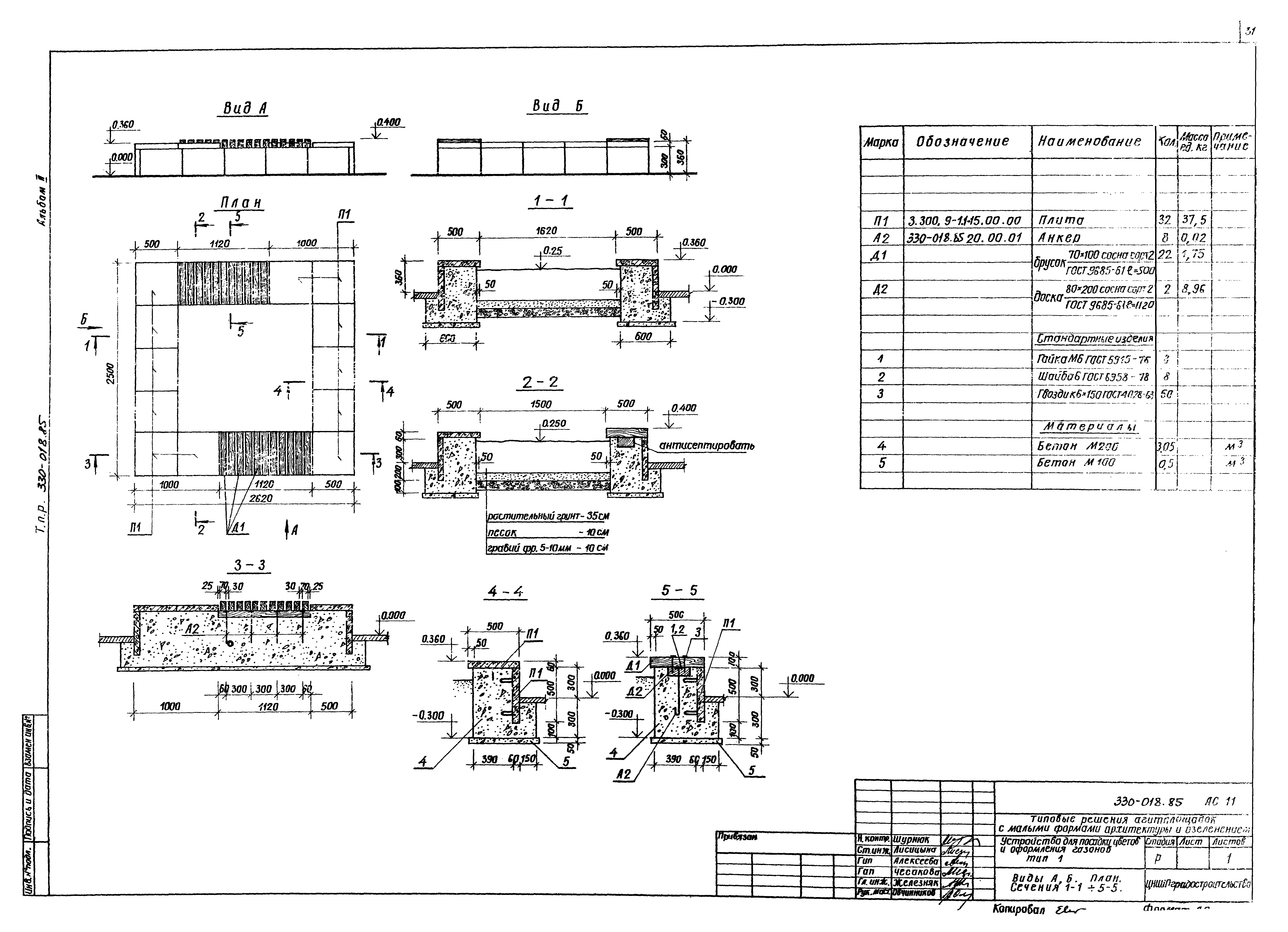
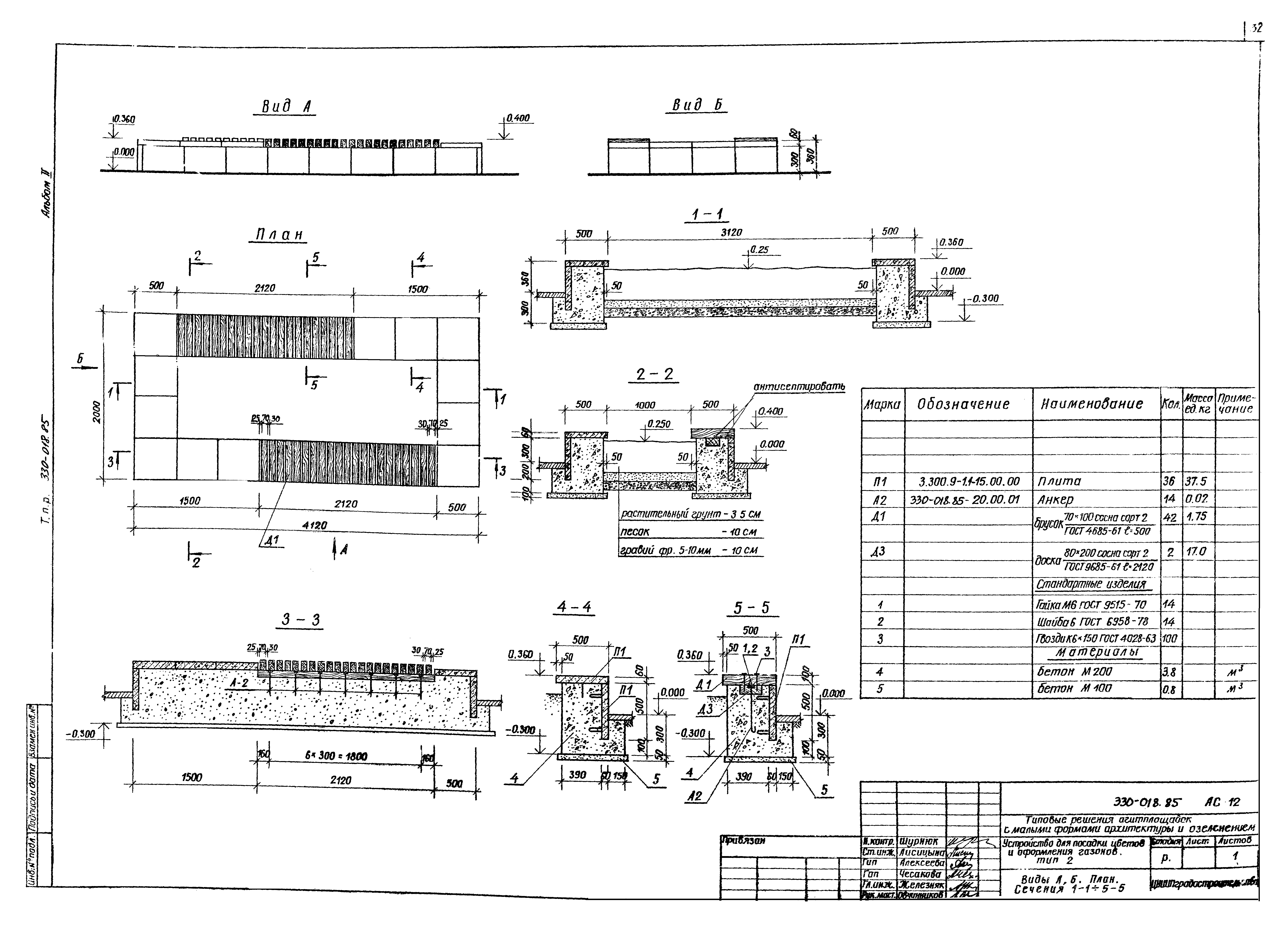
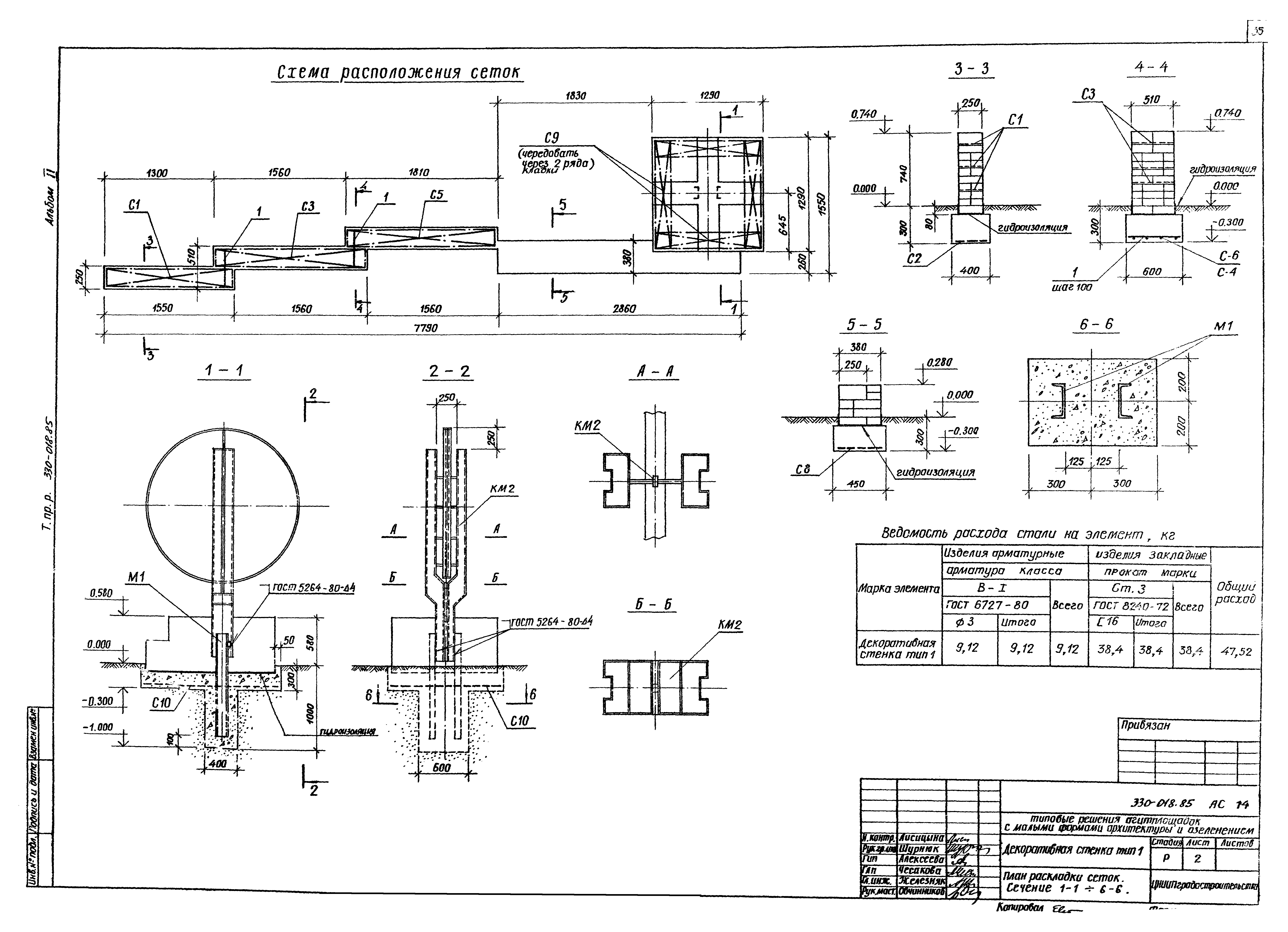
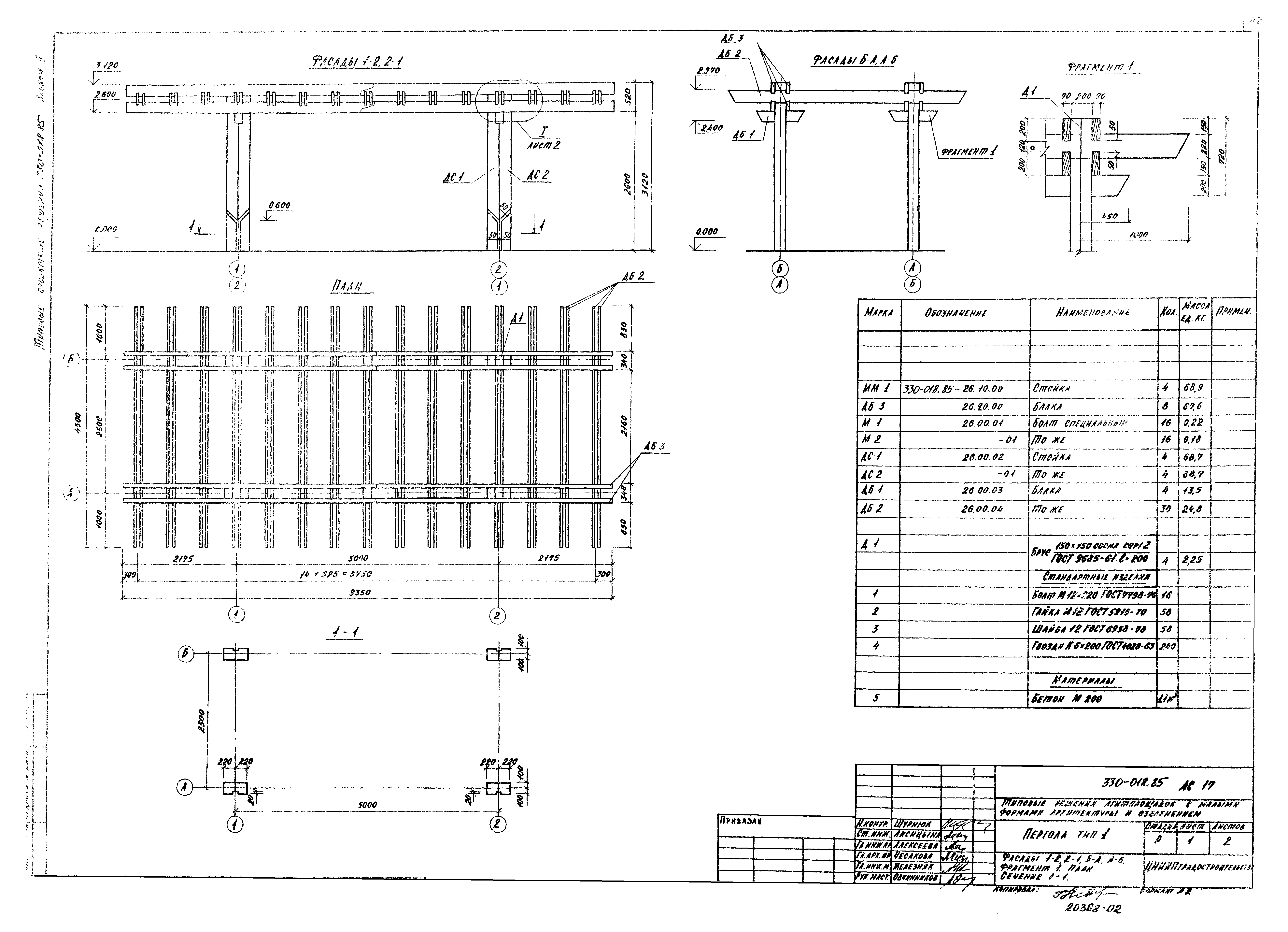
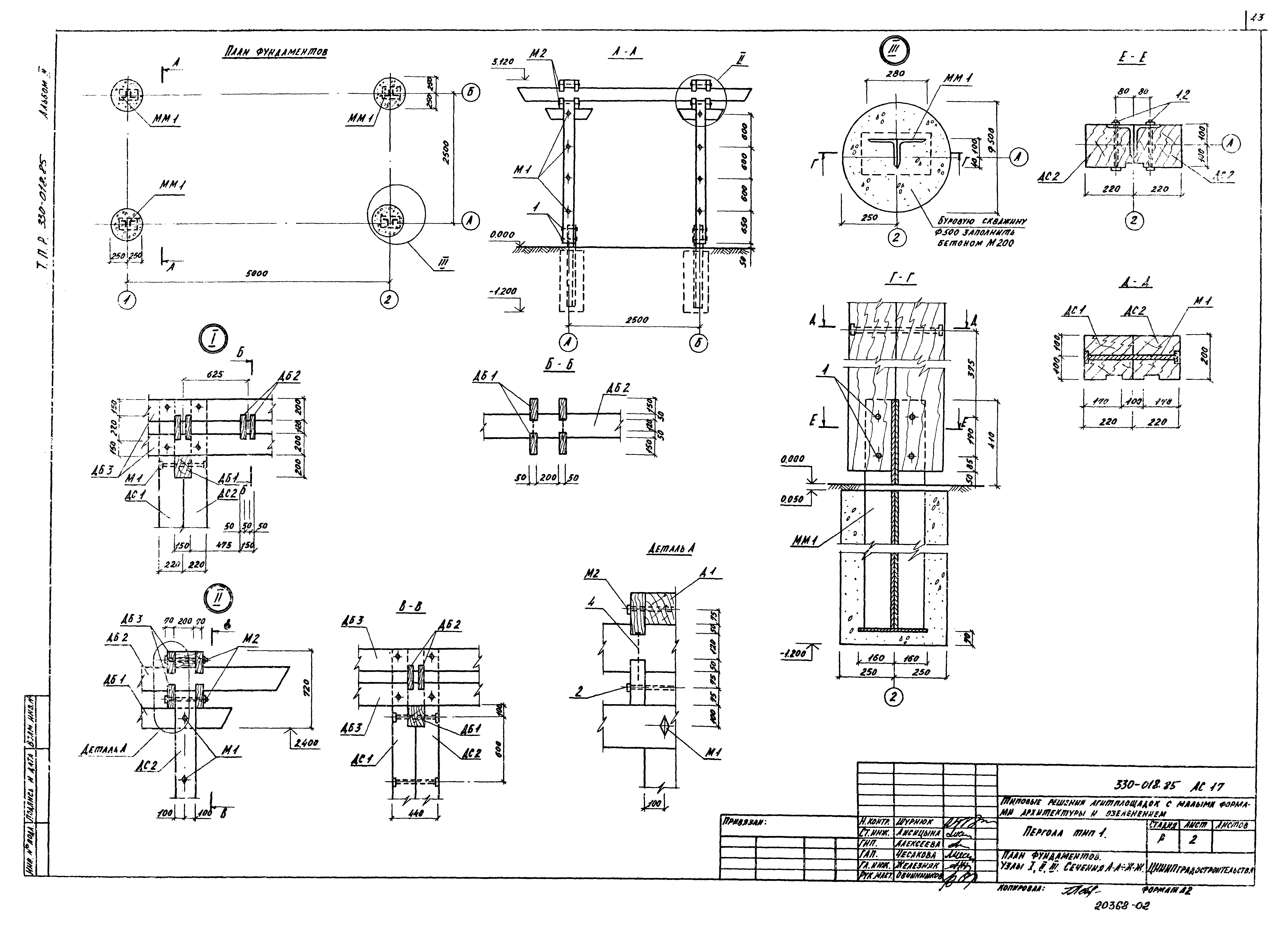
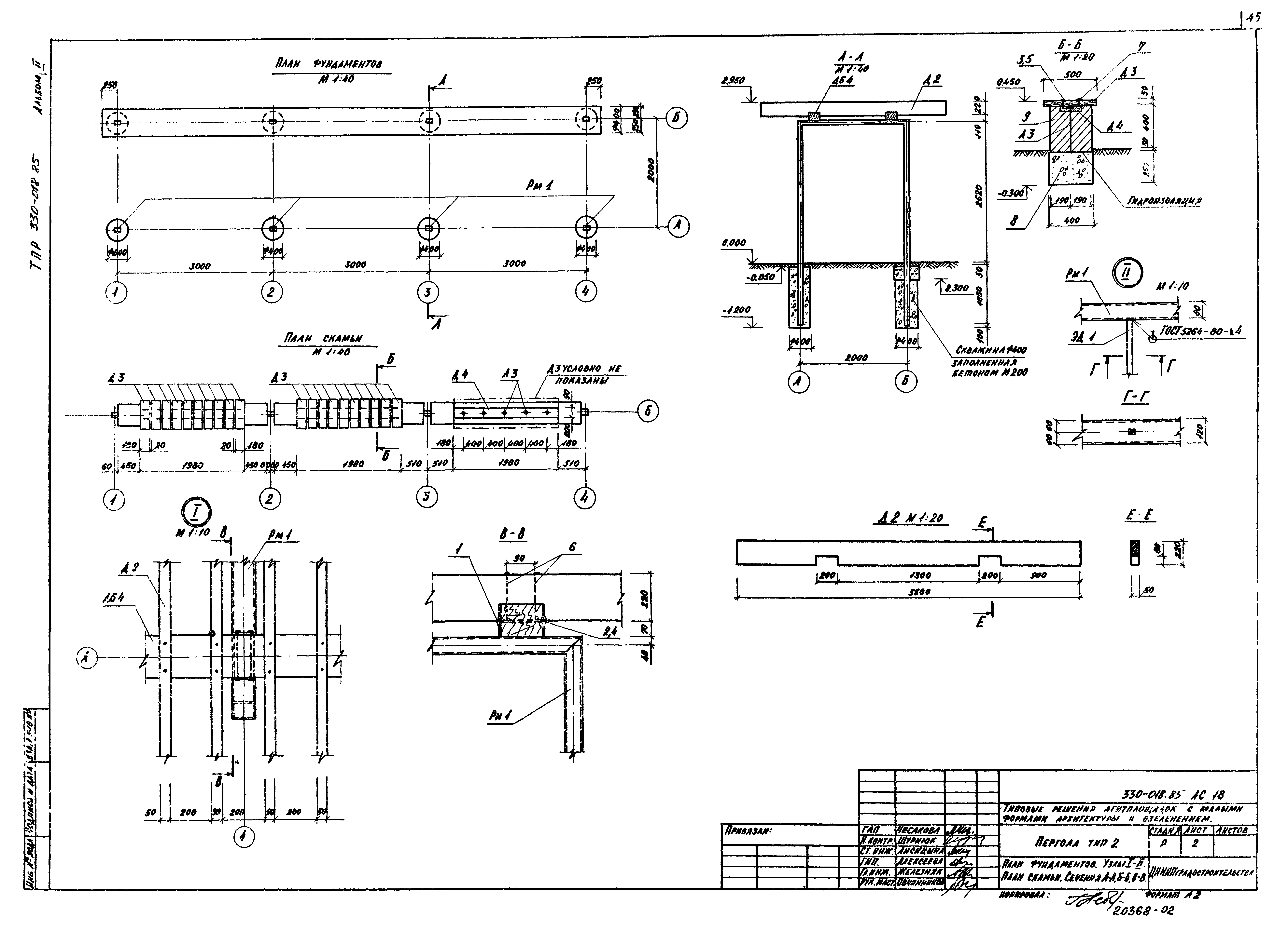
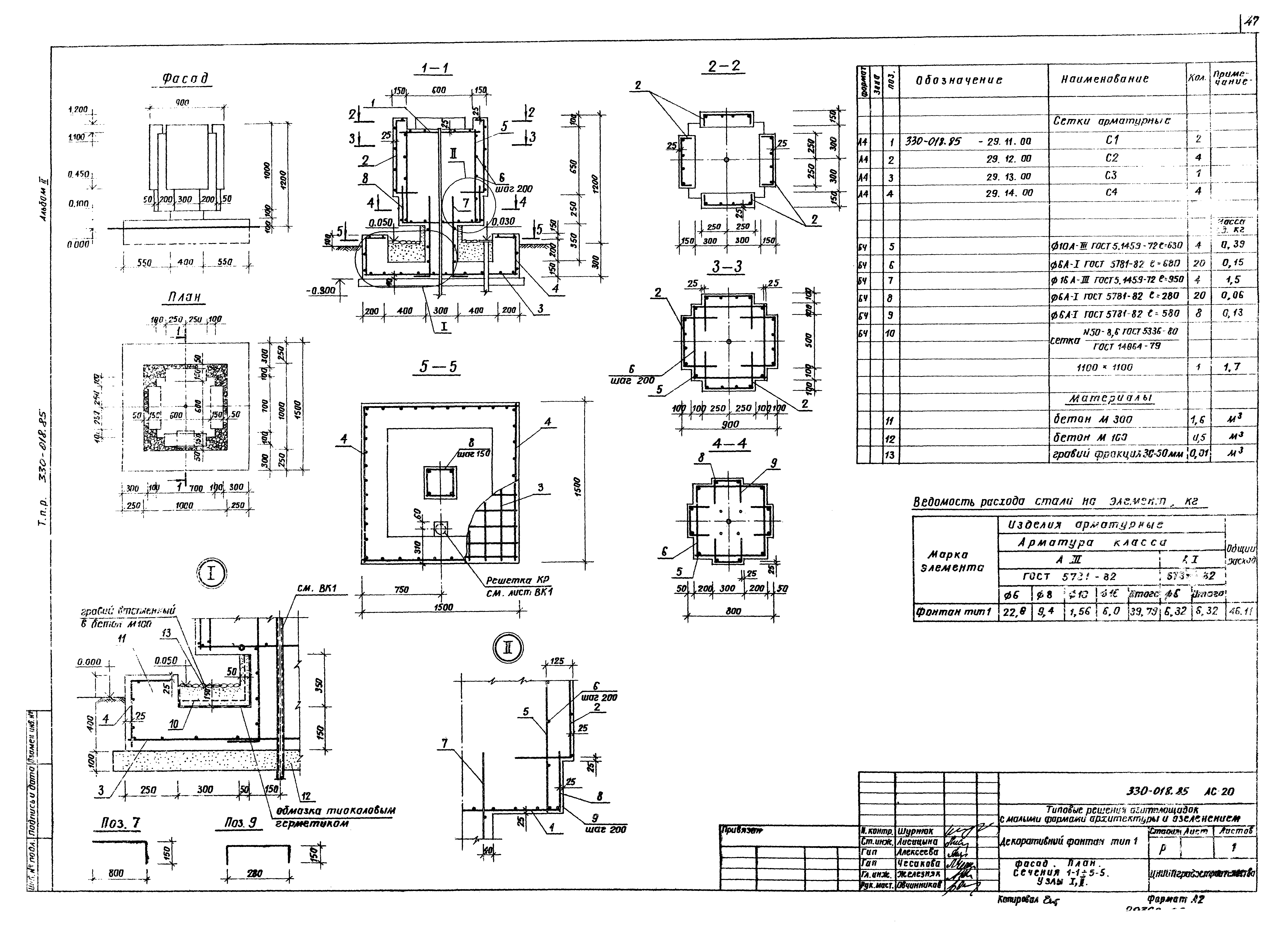
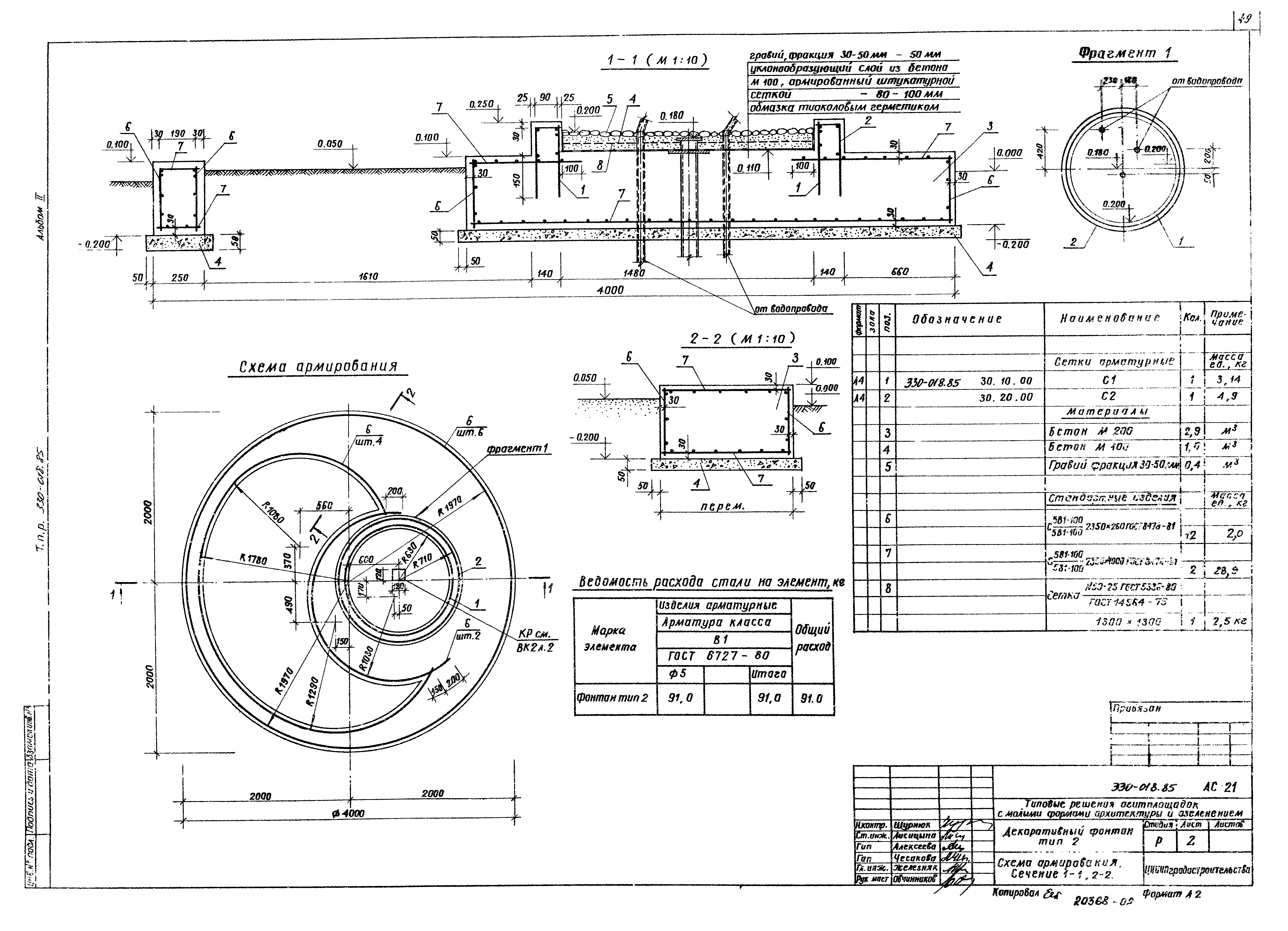
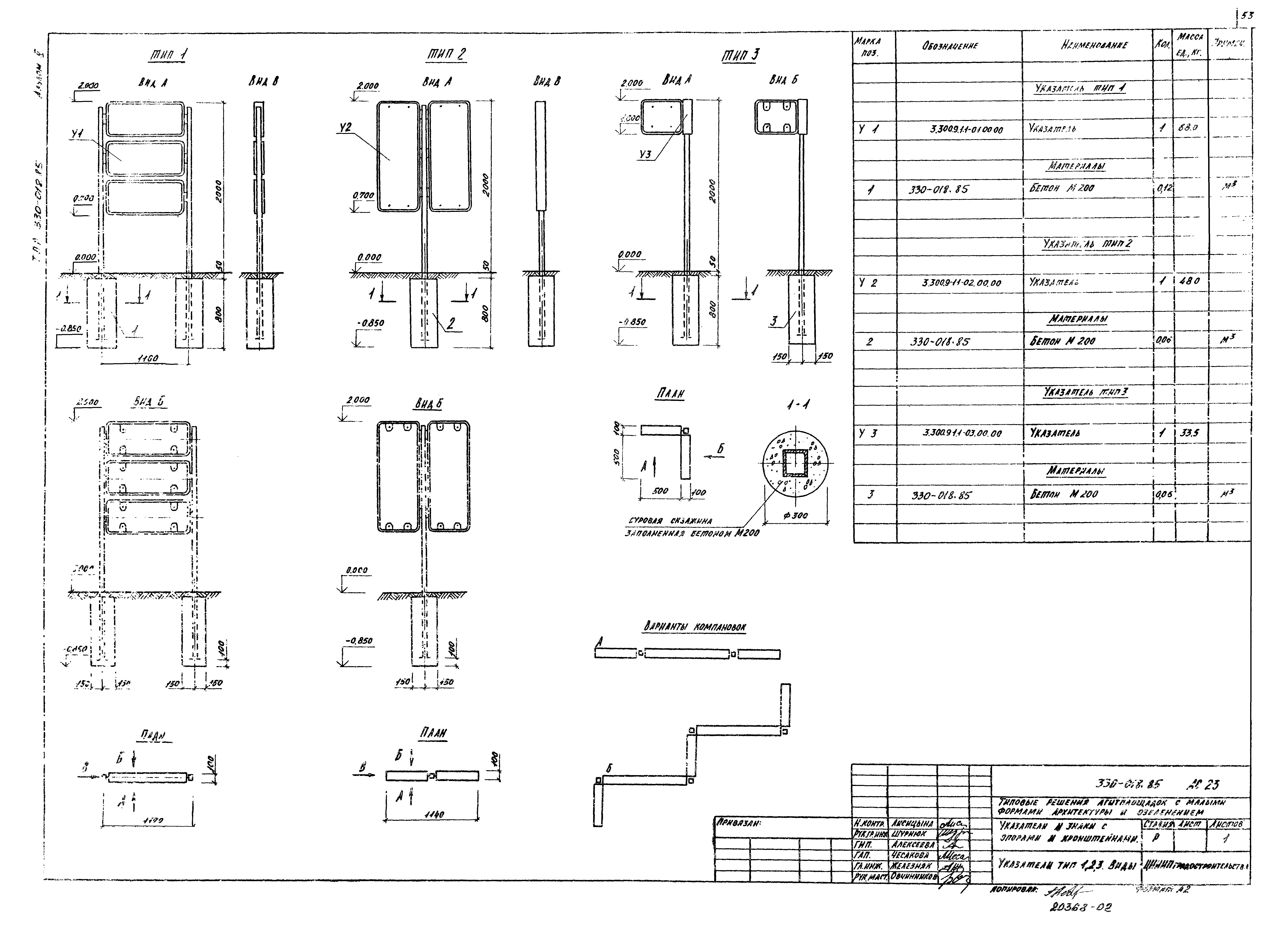
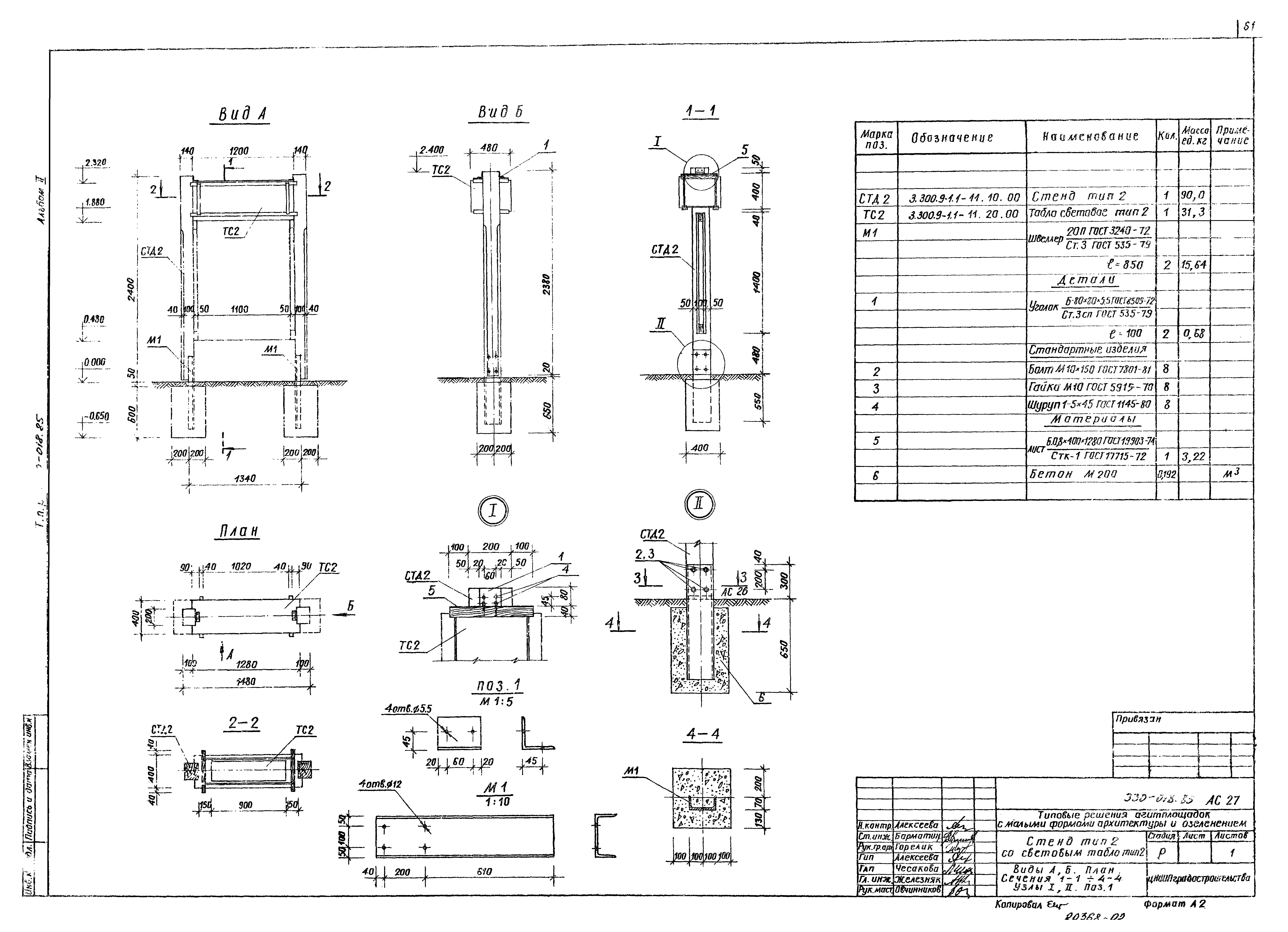
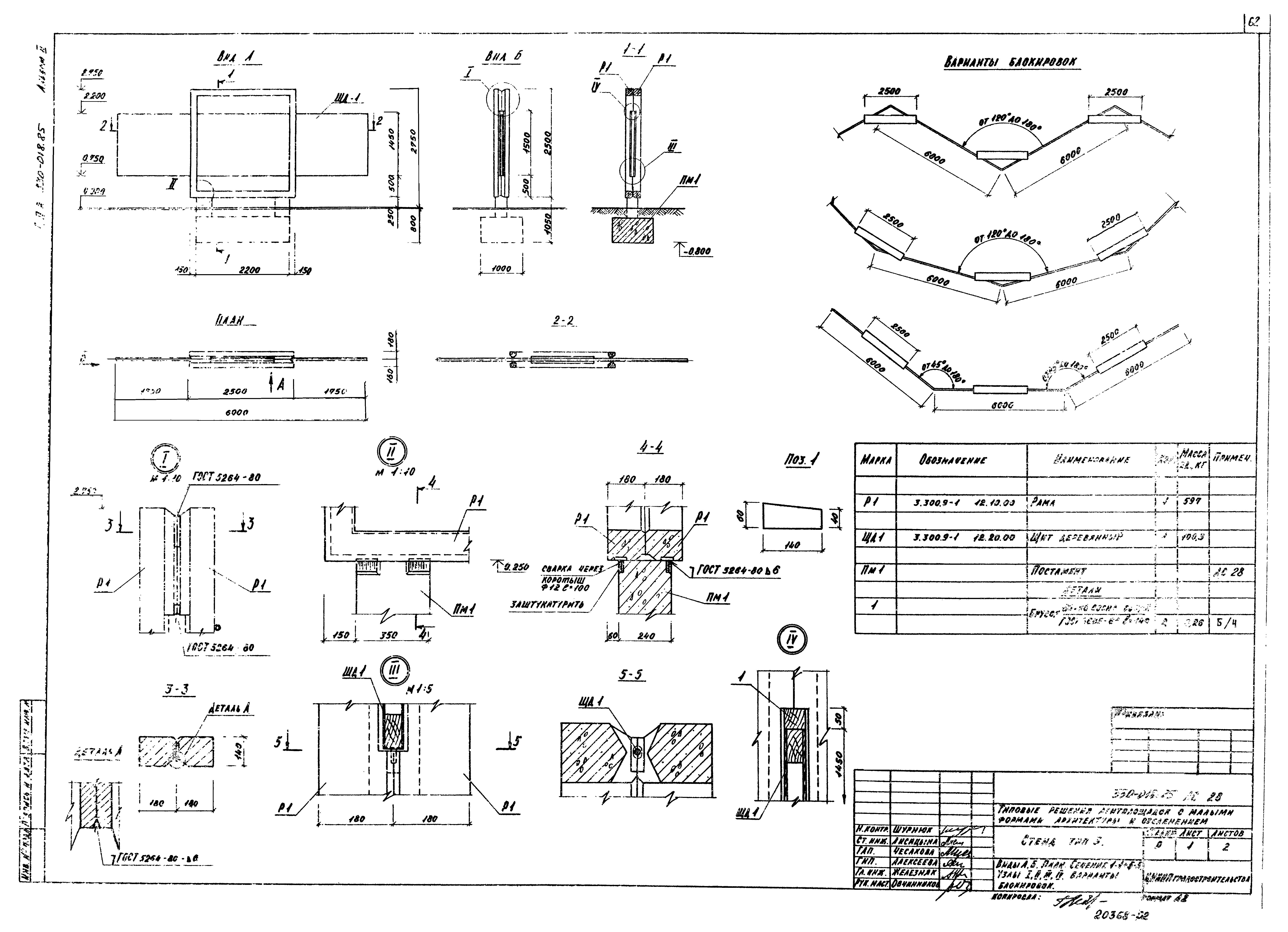
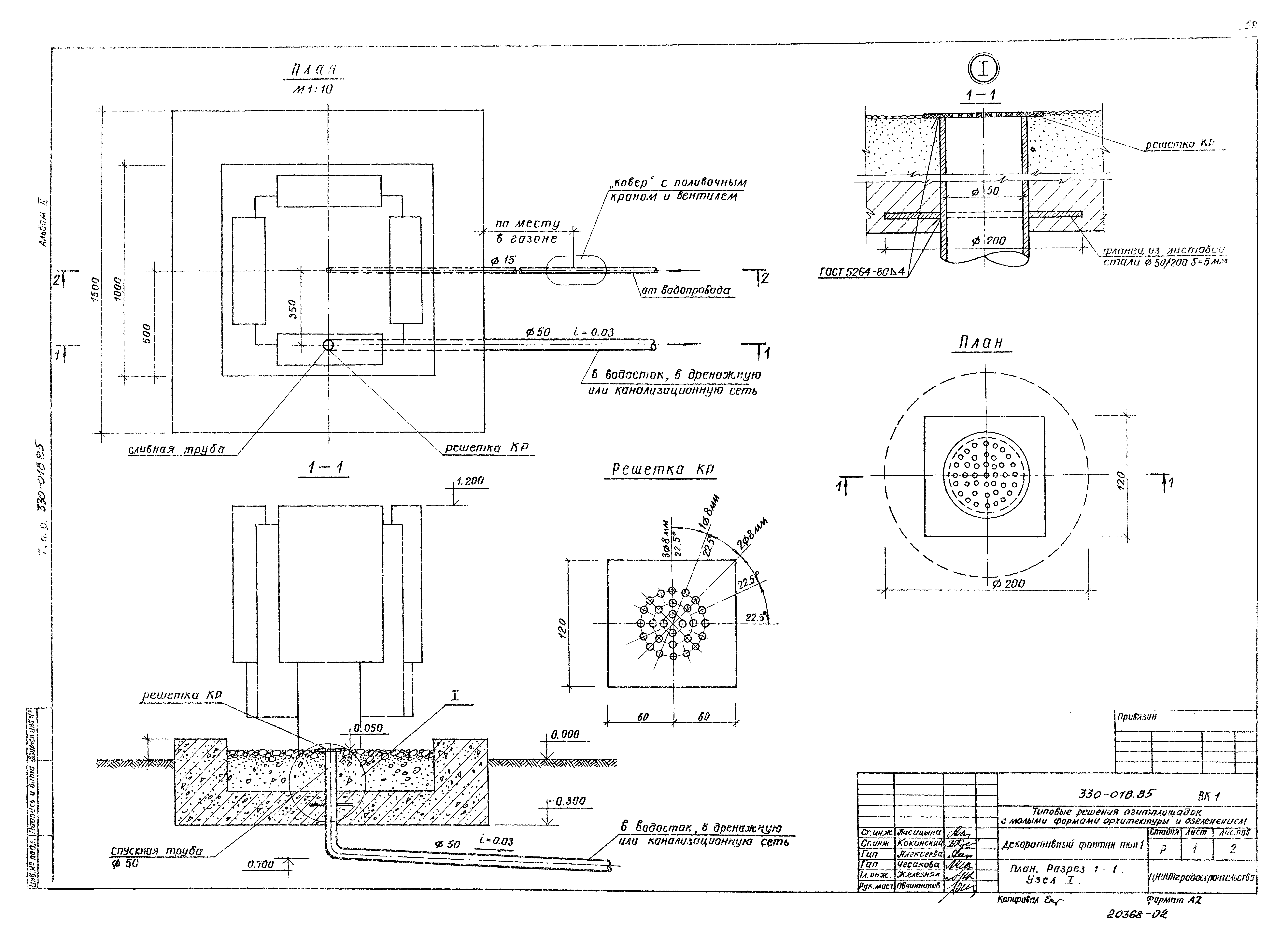
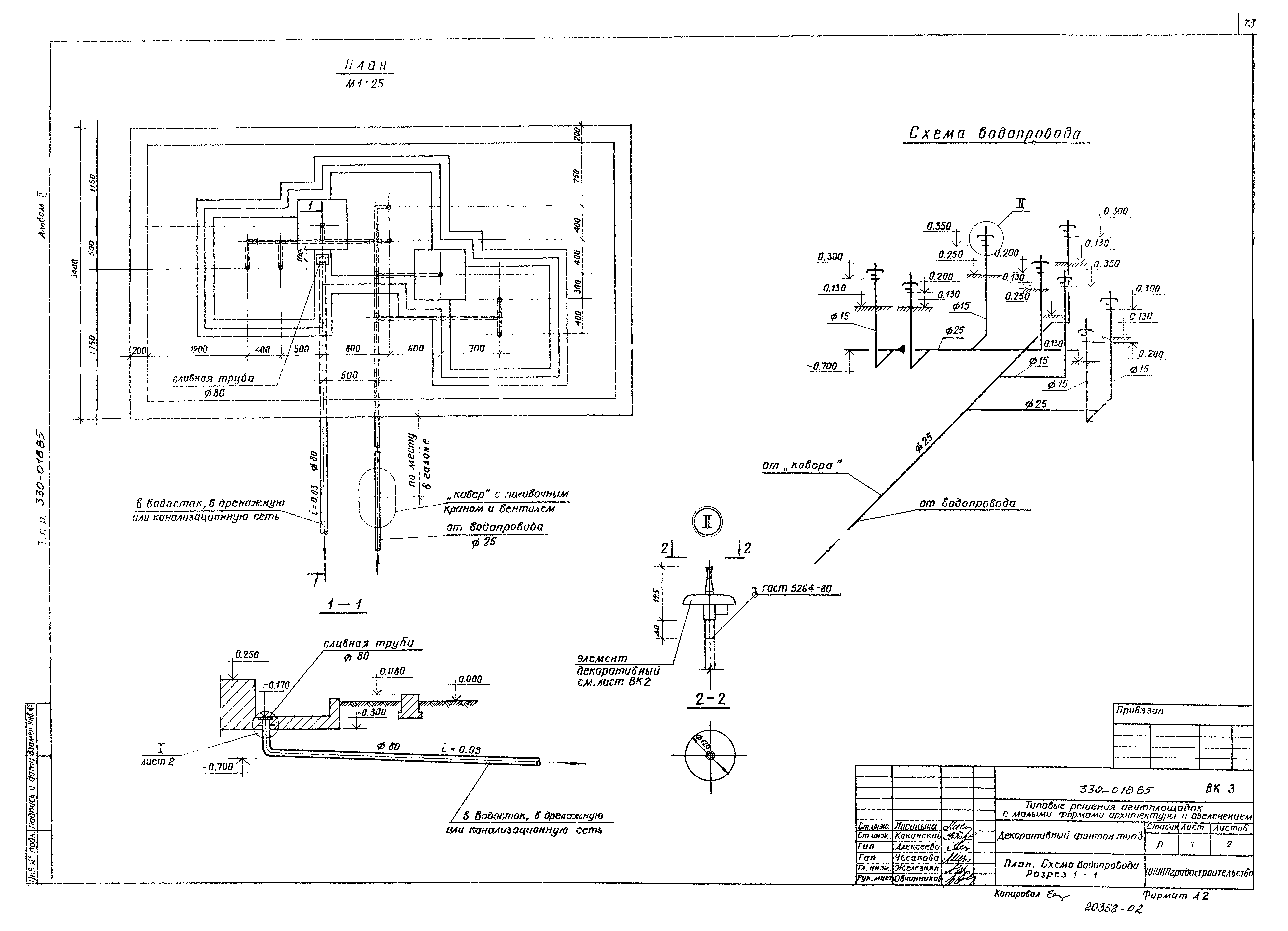
| Оглавление: | Ведомость чертежей основного комплекта Ведомость чертежей основного комплекта. Ведомость ссылочных и прилагаемых документов. Ведомость спецификаций Общие указания Номенклатура Чертежи основного комплекта марки АС Архитектурно-декоративный вход тип 1. Виды А, Б, В, Г. Планы. Сечения 1-1, 2-2 Архитектурно-декоративный вход тип 2. Виды А, Б, В, Г. Планы. Схема раскладки сеток. Сечения 1-1, 2-2 Архитектурно-декоративный вход тип 3. Виды А, Б, В, Г. Планы. Сечения 1-1, 2-2 Архитектурно-декоративный вход тип 3. Скамья (фрагмент). Схема армирования стенки. Сечения 1-1 - 4-4 Эстрада тип 1. Виды А, Б, В. План. Сечения 1-1, 2-2 Эстрада тип 1. Кафедра. Виды А, Б, В. План. Сечения 1-1, 2-2 Эстрада тип 1. Монолитный участок Ум1. Планы на отм. + 0.800; - 1.000; + 1.550. Сечения А-А - Е-Е Эстрада тип 2. План. Виды А, Б, В. Сечение 1-1. Узлы I, II Эстрада тип 2. Монолитный участок Ум1. Схема армирования. Сечения 1-1, 2-2. Узел I Эстрады тип 2 и 2а. Фрагмент фасада. Сечения 2-2 - 5-5 Эстрады тип 2 и 2а. Элементы декоративные Эстрада тип 2а. План. Виды А, Б, В Эстрада тип 2а. Схема армирования монолитного участка Ум2. Сечения 3-3, 4-4 Эстрада тип 3. Виды А, Б, В. План. Фрагменты 1, 2. Разрез 1-1 Эстрада тип 3. План на отм. 0.000; - 0.800. План раскладки сеток. Фрагменты плана Эстрада тип 3. Сечения 1-1 - 8-8 Эстрада тип 3. Разрез А-А. Сечения 1-1 - 3-3 Эстрада тип 3. Фрагмент стенки экрана. Сечения 1-1 - 3-3. Узлы I, II, III Архитектурно-декоративный элемент с постаментом тип 1. План. Виды А и Б. Разрезы 1-1, 2-2, 3-3. Узел I Архитектурно-декоративный элемент с постаментом тип 2. План. Виды А и Б. Сечения 1-1, 2-2 Архитектурно-декоративный элемент с постаментом тип 3. План. Виды А и Б. Сечения 1-1, 2-2. Узел I Устройство для посадки цветов и оформления газонов тип 1. План. Виды А, Б. Сечения 1-1 - 5-5 Устройство для посадки цветов и оформления газонов тип 2. План. Виды А, Б. Сечения 1-1 - 5-5 Устройство для посадки цветов и оформления газонов тип 3. Вид А. Фрагмент вида А. Сечения 1-1 - 3-3 Декоративная стенка тип 1. План. Виды А, Б, В, Г. Сечение 1-1 Декоративная стенка тип 1. План раскладки сеток. Сечения 1-1 - 6-6 Декоративная стенка тип 2. План. Виды А, Б, В, Г. Сечения 1-1, 2-2, 3-3. Варианты блокировки Декоративная стенка тип 2. План фундаментов. Сечения 1-1 - 6-6 Декоративная стенка тип 3. Виды А, Б, В. Разрез 1-1. Фрагмент обшивки Декоративная стенка тип 3. План на отм. - 0.050. Узел I. Сечение 1-1 Декоративная стенка тип 3. Схема расположения Декоративная стенка тип 3. Сечения 1-1 - 6-6, А-А Пергола тип 1. Фасады 1-2, 2-1, Б-А, А-Б. Фрагмент 1. План. Сечение 1-1 Пергола тип 1. План фундаментов. Узлы I, II, III. Сечения А-А - Ж-Ж Пергола тип 2. Фасады 1-4, 4-1, А-Б. План. Сечения 1-1, 2-2 Пергола тип 2. План фундаментов. План скамьи. Сечения А-А, Б-Б, В-В. Узлы I, II Пергола тип 3. Фасады 1-2, 2-1, Б-А, А-Б. План. Сечения 1-1 - 3-3. Узел I Декоративный фонтан тип 1. Фасад. План. Сечения 1-1 - 5-5. Узлы I, II Декоративный фонтан тип 2. Виды А, Б. План. Фрагмент плана. Сечение 1-1 Декоративный фонтан тип 2. Схема армирования. Сечения 1-1, 2-2 Декоративный фонтан тип 3. Виды А, Б, В, Г. Фрагмент плана. Сечение 1-1 Декоративный фонтан тип 3. Раскладка сеток днища. Схема армирования Декоративный фонтан тип 3. Сечения 1-1, 2-2. Узлы I, II. Детали 1, 2 Указатели и знаки с опорами и кронштейнами. Указатели тип 1, 2, 3. План. Виды Трельяжи тип 1, 2, 3. Фасады. Сечения 1-1 - 7-7. Узел I Флагштоки тип 1, 2, 3. Фасады, планы, разрезы 1-1, 2-2 Флагшток тип 1. Фасад. Сечение А-А. Узел I Флагшток тип 2. Фасад. Разрезы 1-1, 2-2. Схема армирования Флагшток тип 3. План. Вид 1-1. Узлы I, II Флагшток тип 3. Фрагмент А. Узел III. Сечения 1-1, 2-2, 3-3 Стенд тип 1 со световым табло тип 1. Виды А, Б, В. План. Разрезы 1-1, 2-2. Узлы I, II. Сечения 3-3, 4-4, 5-5 Стенд тип 2 со световым табло тип 2. Виды А, Б. План. Сечения 1-1 - 4-4. Узлы I, II. Поз. 1 Стенд тип 3. Виды А, Б. План. Сечения 1-1 - 5-5. Узлы I, II, III, IV. Варианты блокировок Стенд тип 3. постамент монолитный Пм1. Сечения А-А - Е-Е. Узел I Табло световое тип 3. Виды А и Б. План. Разрезы 1-1, 2-2, 3-3 Чертежи основного комплекта марки ЭО Стенд тип 1 со световым табло тип 1. Электроосвещение Стенд тип 2 со световым табло тип 2. Электроосвещение Табло световое тип 3. Электроосвещение Чертежи основного комплекта марки ВК Общие данные Декоративный фонтан тип 1. План. Разрез 1-1. Узел I Декоративный фонтан тип 1. Разрез 2-2. "Ковер". Насадка Декоративный фонтан тип 2. Схема водопровода. "Ковер". План. Разрез 1-1 Декоративный фонтан тип 2. План. Разрез 1-1. Узел I Декоративный фонтан тип 3. План. Схема водопровода. Разрез 1-1 Декоративный фонтан тип 3. Узел I. "Ковер". Насадка с регулирующим тройником |
| Разработан: | ЦНИИЭП градостроительства |
| Утверждён: | 08.02.1982 Госгражданстрой (Gosgrazhdanstroy 35) |











































































