Скачать Типовой проект 705-1-192.85 Альбом II. Технолого-механические решенияДата актуализации: 01.01.2021
|
| Обозначение: | Типовой проект 705-1-192.85 |
| Обозначение англ: | 705-1-192.85 |
| Статус: | действует |
| Название рус.: | Альбом II. Технолого-механические решения |
| Дата добавления в базу: | 01.09.2013 |
| Дата актуализации: | 01.01.2021 |
| Дата введения: | 07.01.1985 |
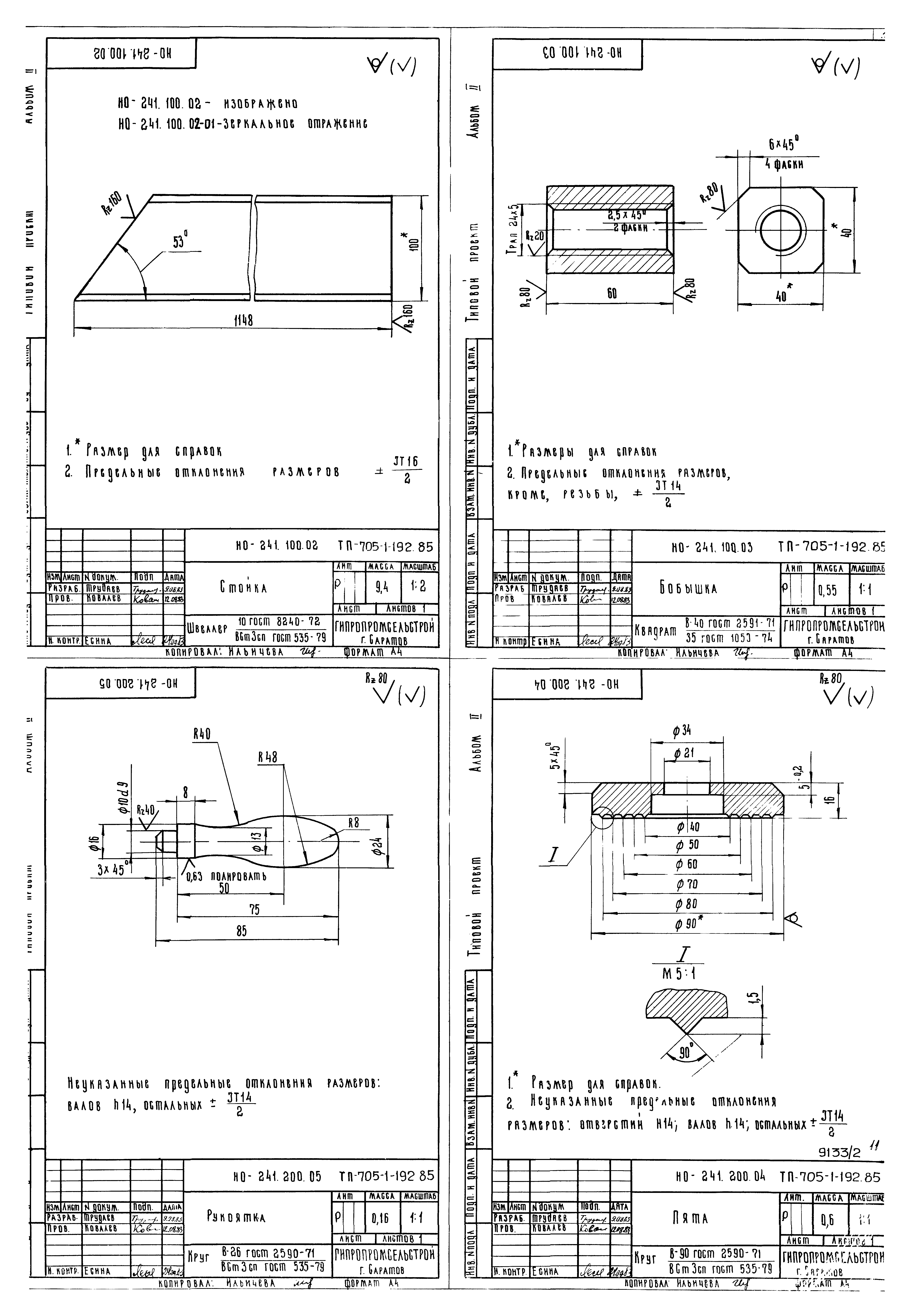
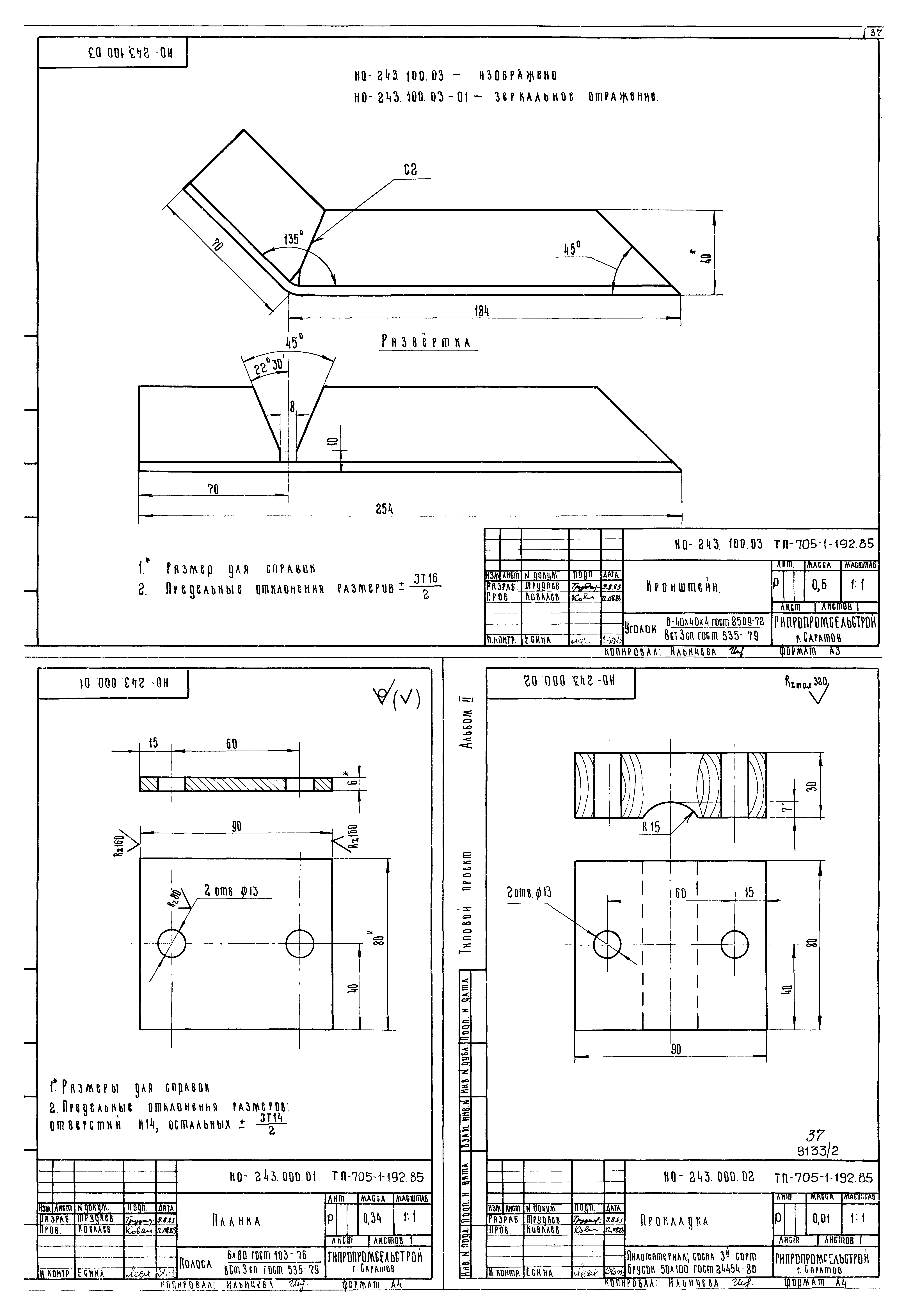
| Оглавление: | Содержание альбома Лестница передвижная опорная. Сборочный чертеж Лестница передвижная опорная. Спецификация Лестница передвижная опорная. Ведомость спецификаций Лестница передвижная опорная. Ведомость покупных изделий НО-241.100.00 СБ Рама. Сборочный чертеж НО-241.100.00 Рама. Спецификация НО-241.100.01 Боковина НО-241.100.01-01 Боковина НО-241.100.02 Стойка НО-241.100.02-01 Стойка НО-241.100.03 Бобышка НО-241.100.04 Ступенька НО-241.100.05 Поручень НО-241.100.06 Стойка НО-241.100.07 Настил НО-241.100.08 Ограждение НО-241.100.09 Ограждение НО-241.100.10 Ограждение НО-241.100.11 Стойка НО-241.100.11-01 Стойка НО-241.100.12 Груз НО-241.100.13 Заглушка НО-241.200.00 СБ Опора. Сборочный чертеж НО-241.200.00 Опора. Спецификация НО-241.200.01 Ключ НО-241.200.02 Винт НО-241.200.03 Кольцо НО-241.200.04 Пята НО-241.200.05 Рукоятка НО-242.000.00 СБ Устройство маневровое для работы на эстакаде высотой 2.5 м. Сборочный чертеж НО-242.000.00 Устройство маневровое для работы на эстакаде высотой 2.5 м. Спецификация НО-242.000.00 ВС Устройство маневровое для работы на эстакаде высотой 2.5 м. Ведомость спецификация НО-242.000.00 ВП Устройство маневровое для работы на эстакаде высотой 2.5 м. Ведомость покупных изделий НО-242.100.00 СБ Ролик горизонтальный. Сборочный чертеж НО-242.100.00 Ролик горизонтальный. Спецификация НО-242.000.01 Колесо НО-242.000.02 Втулка НО-242.000.03 Крышка НО-242.000.04 Ось НО-242.000.05 Оседержатель НО-242.110.00 СБ Рама. Сборочный чертеж НО-242.110.00 Рама. Спецификация НО-242.200.00 СБ Ролик вертикальный. Сборочный чертеж НО-242.200.00 Ролик вертикальный. Спецификация НО-242.210.00 СБ Рама. Сборочный чертеж НО-242.210.00 Рама. Спецификация НО-242.210.01 Стойка НО-242.210.02 Косынка НО-242.300.00 СБ Установка конечного выключателя ВПК 2112У2А. Сборочный чертеж НО-242.300.00 Установка конечного выключателя ВПК 2112У2А. Спецификация НО-242.300.01 Ось НО-242.300.02 Втулка НО-242.300.03 Втулка НО-242.300.04 Крышка НО-242.300.05 Прокладка НО-242.300.06 Пружина НО-242.300.07 Пробка НО-242.300.08 Зажим НО-242.300.09 Штырь НО-242.310.00 СБ Корпус. Сборочный чертеж НО-242.310.00 Корпус. Спецификация НО-242.310.01 Стакан НО-242.310.02 Перекладина НО-242.310.03 Перекладина НО-242.320.00 СБ Рычаг. Сборочный чертеж НО-242.320.00 Рычаг. Спецификация НО-242.320.01 Ребро НО-242.320.02 Крышка НО-242.330.00 СБ Основание. Сборочный чертеж НО-242.330.00 Основание. Спецификация НО-242.400.00 СБ Чалочное устройство. Сборочный чертеж НО-242.400.00 Чалочное устройство. Спецификация НО-242.400.01 Крюк НО-242.400.02 Защелка НО-242.400.03 Ось НО-242.400.04 Шайба НО-242.500.00 СБ Зажим. Сборочный чертеж НО-242.500.00 Зажим. Спецификация НО-242.500.01 Пластина НО-242.500.02 Скоба НО-243.000.00 СБ Штанга. Сборочный чертеж НО-243.000.00 Штанга. Спецификация НО-243.000.00 ВС Штанга. Ведомость спецификация НО-243.000.00 ВП Штанга. Ведомость покупных изделий НО-243.000.00 МЧ Штанга. Монтажный чертеж НО-243.000.01 Планка НО-243.000.02 Прокладка НО-243.000.03 Планка НО-243.100.00 СБ Стойка. Сборочный чертеж НО-243.100.00 Стойка. Спецификация НО-243.100.01 Желоб НО-243.100.02 Накладка НО-243.100.03 Кронштейн НО-243.100.03-01 Кронштейн НО-243.200.00 СБ Кронштейн. Сборочный чертеж НО-243.200.00 Кронштейн. Спецификация НО-243.200.01 Ребро |
| Разработан: | Гипропромсельстрой |
| Утверждён: | 20.12.1984 Министерство сельского хозяйства СССР (USSR Ministry of Agriculture 105-ЭГ) |







































