Скачать Типовой проект 705-1-192.85 Альбом III. Архитектурные решения. Конструкции железобетонные. Конструкции металлические. Антикоррозийная защита конструкций и оборудованияДата актуализации: 01.01.2021
|
| Обозначение: | Типовой проект 705-1-192.85 |
| Обозначение англ: | 705-1-192.85 |
| Статус: | действует |
| Название рус.: | Альбом III. Архитектурные решения. Конструкции железобетонные. Конструкции металлические. Антикоррозийная защита конструкций и оборудования |
| Дата добавления в базу: | 01.09.2013 |
| Дата актуализации: | 01.01.2021 |
| Дата введения: | 07.01.1985 |
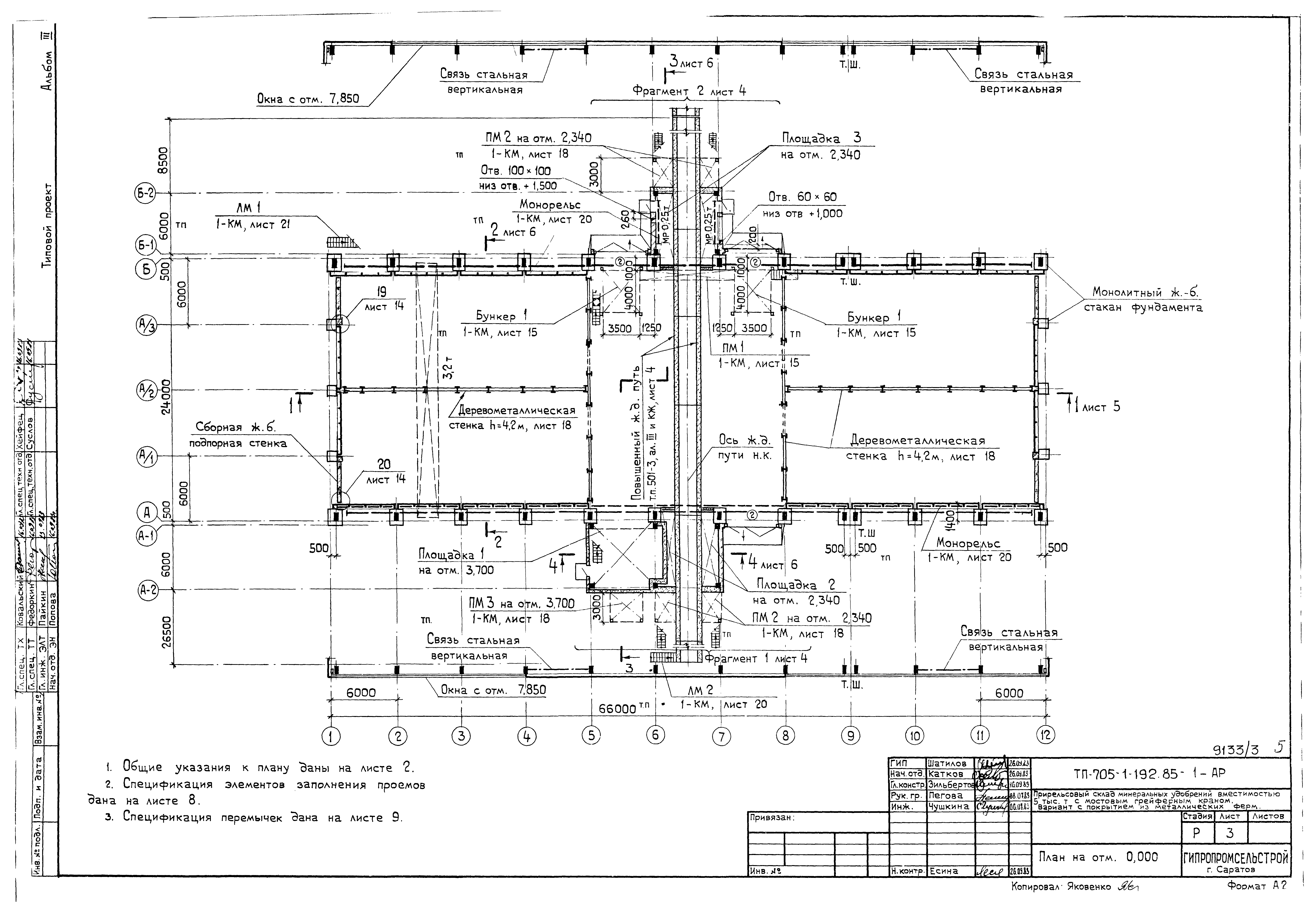
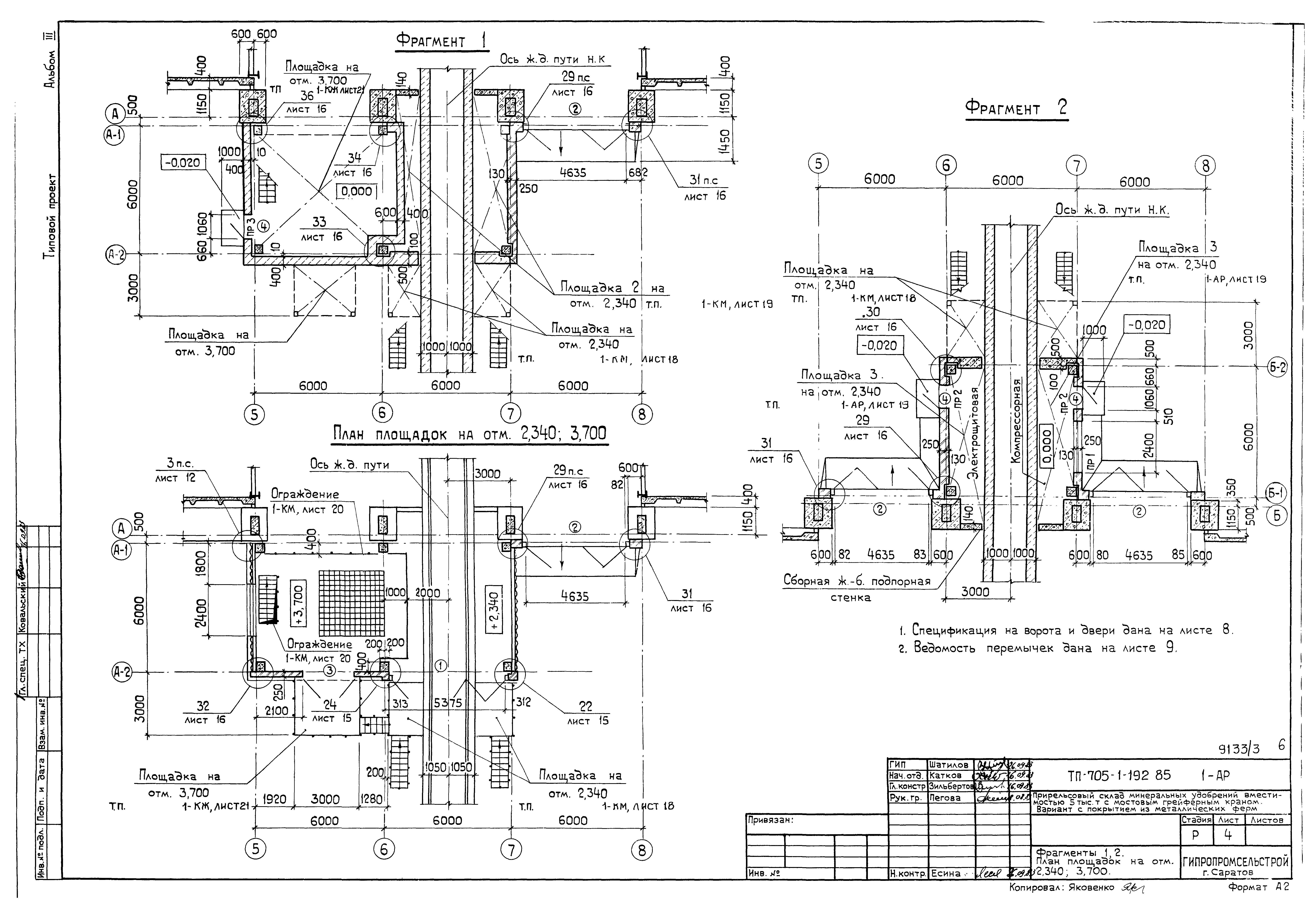
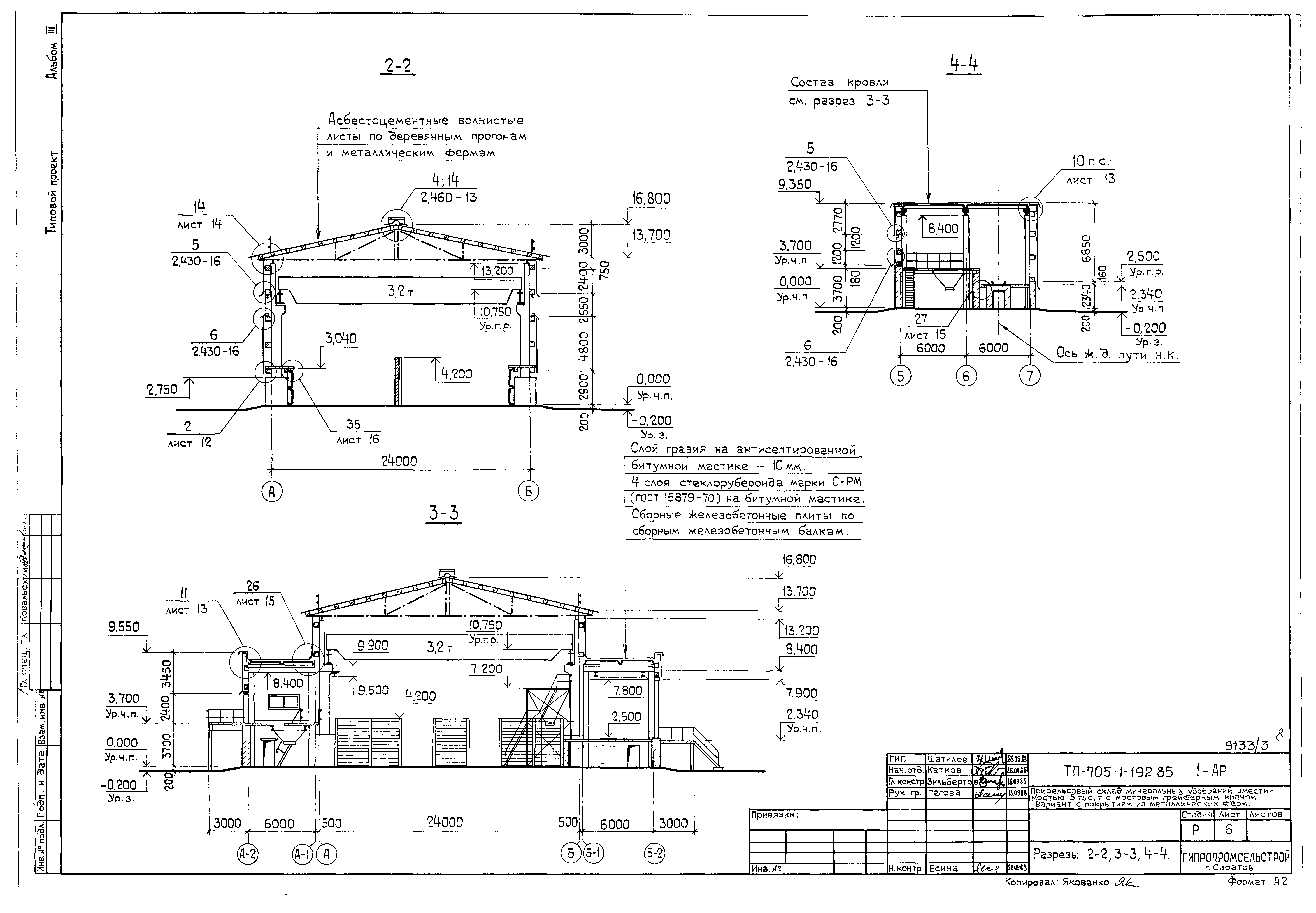
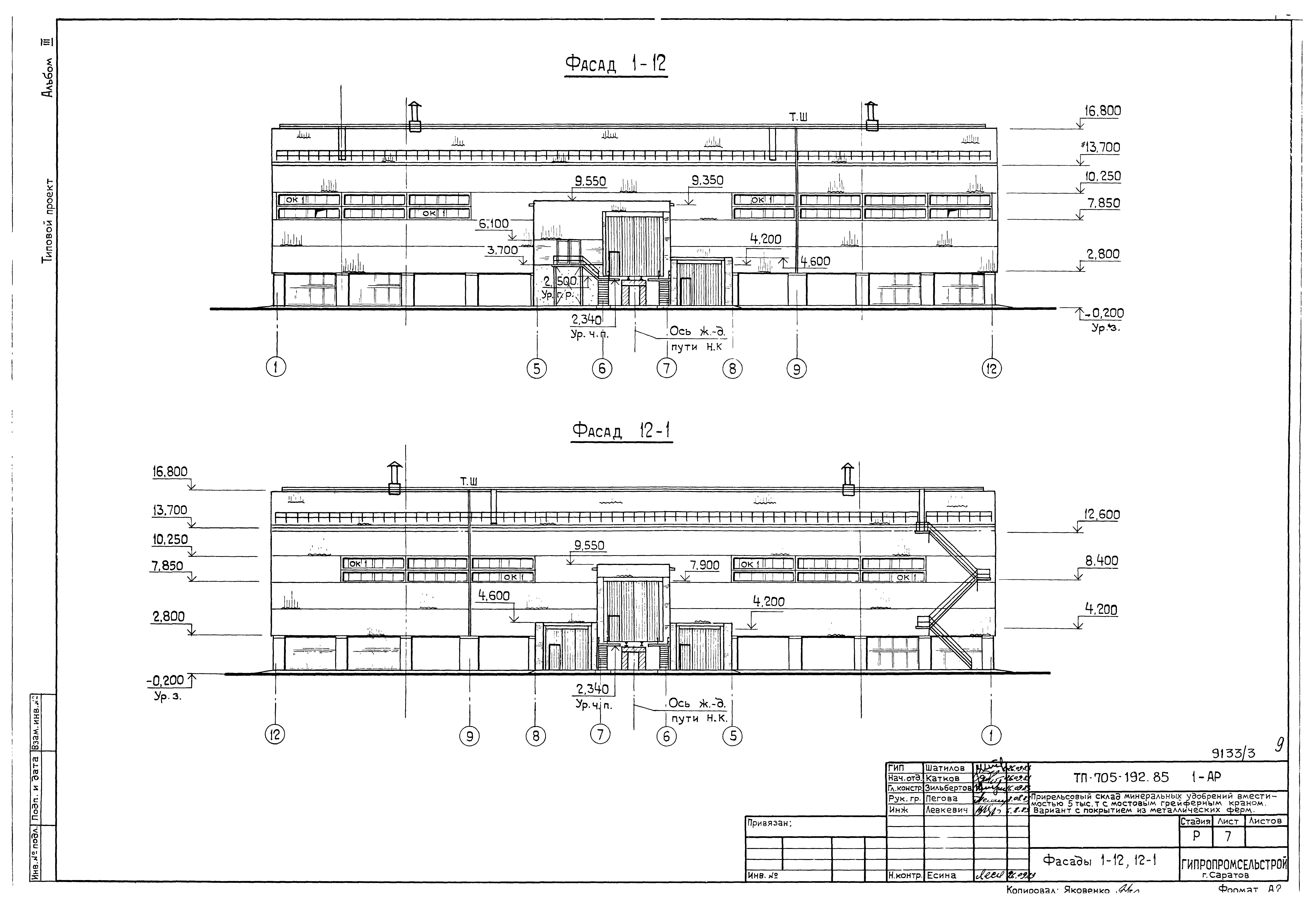
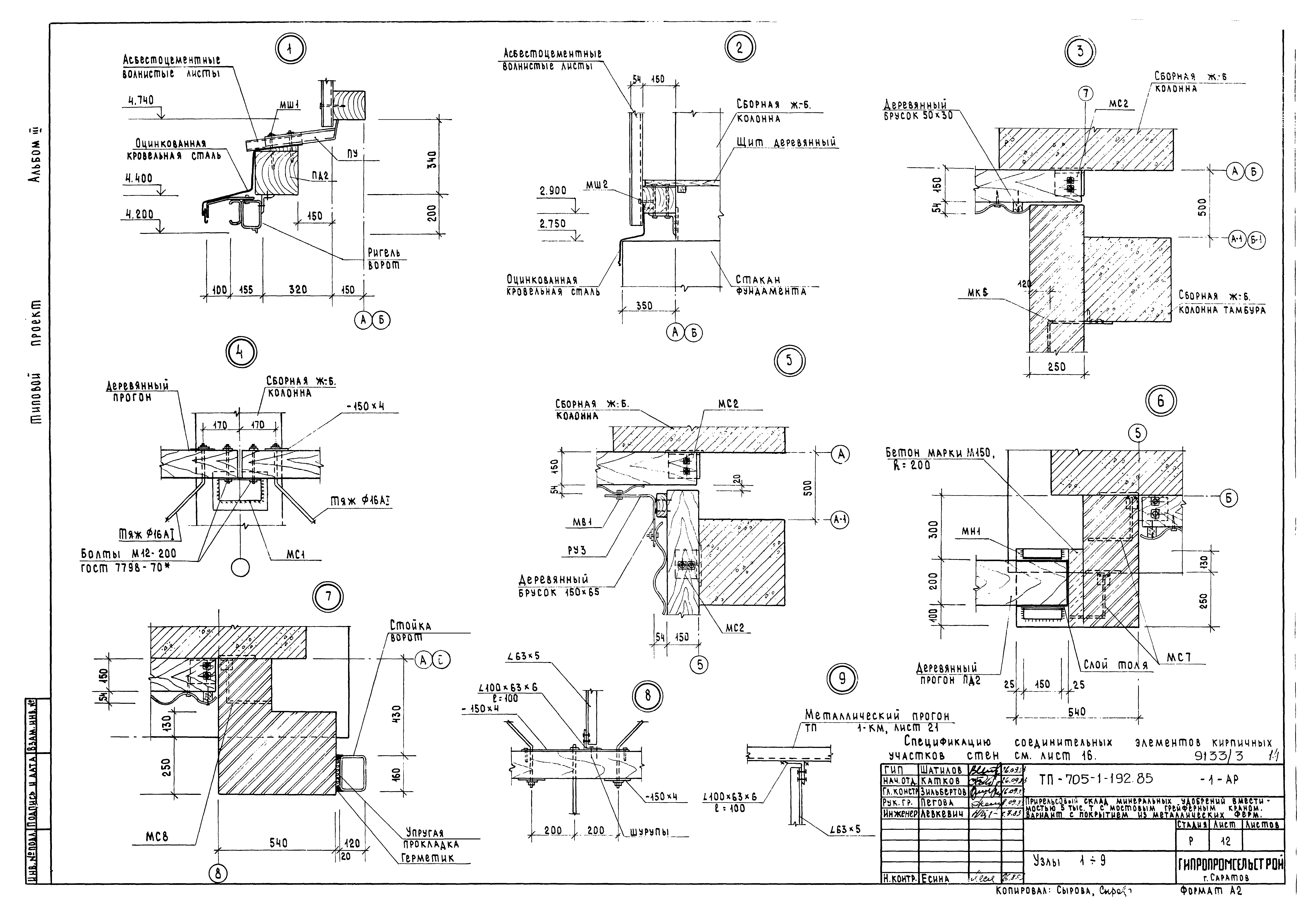
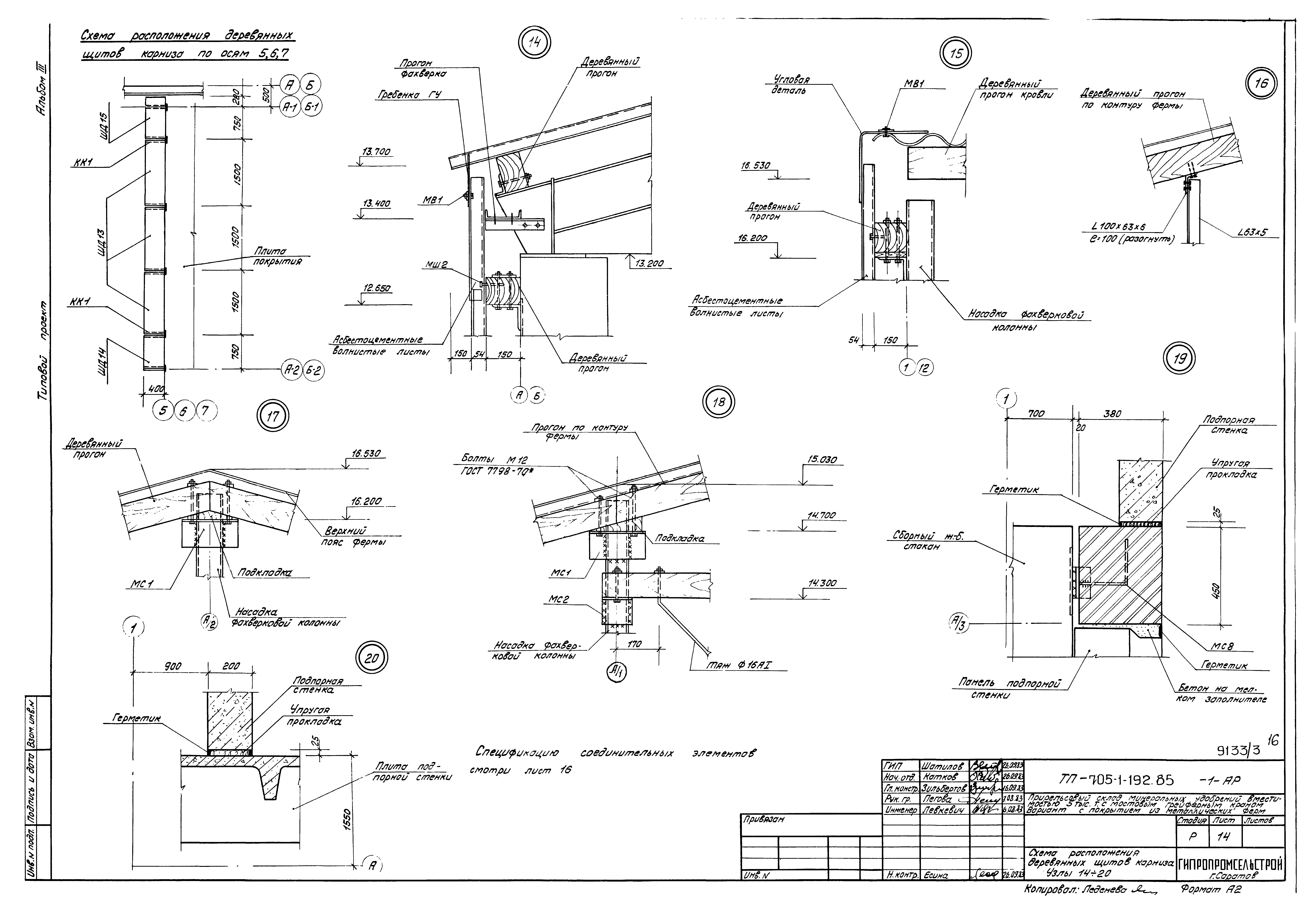
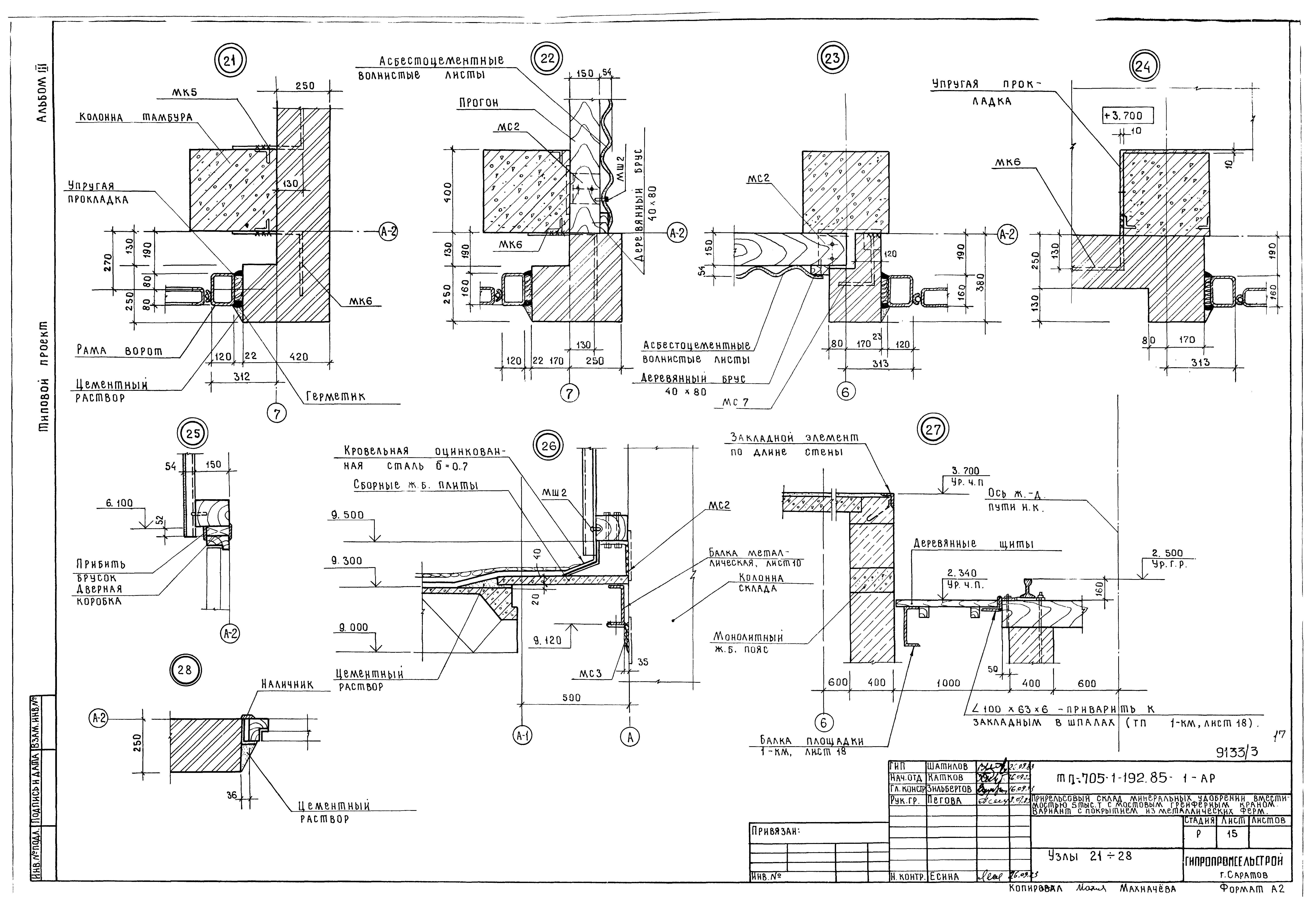
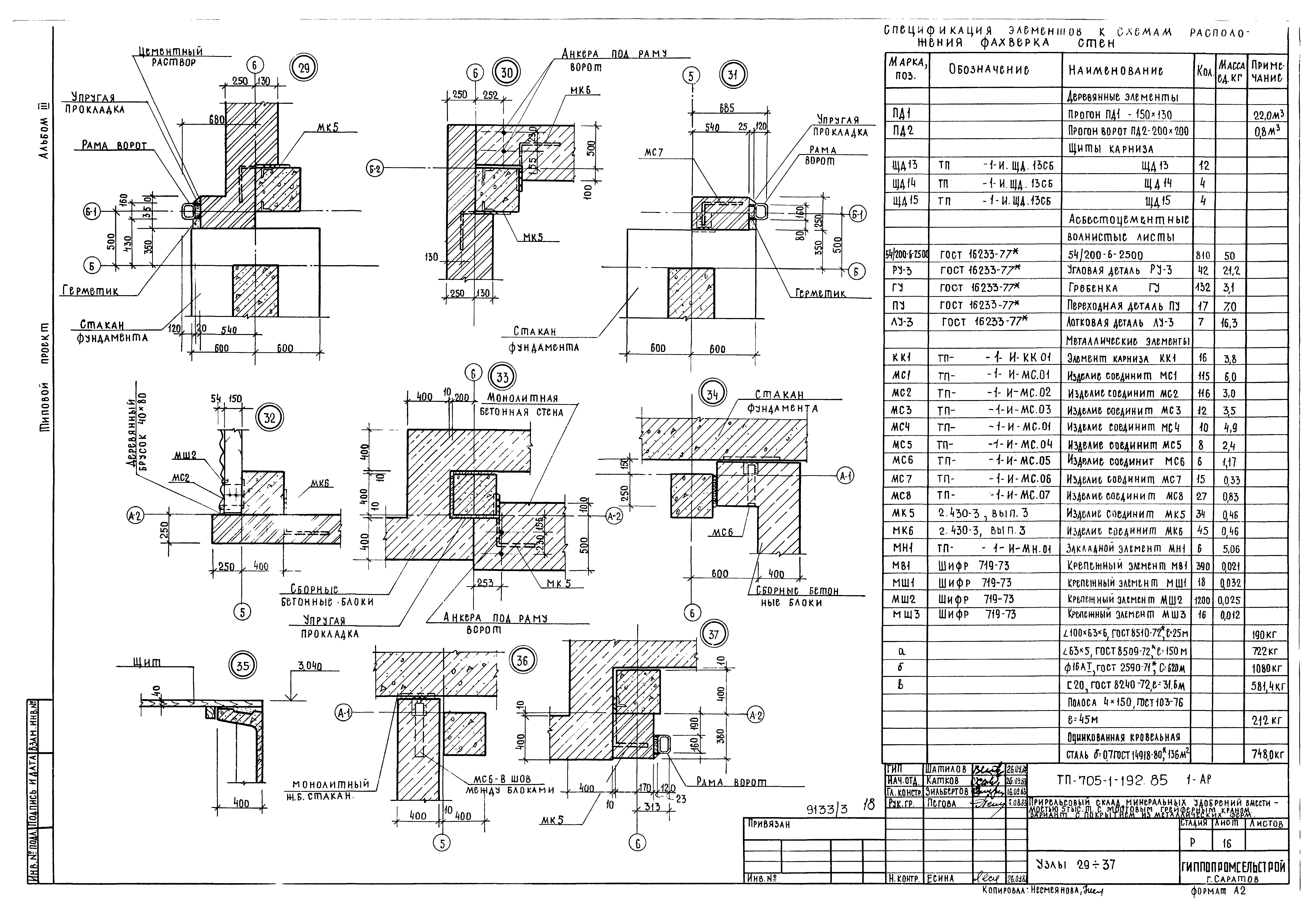
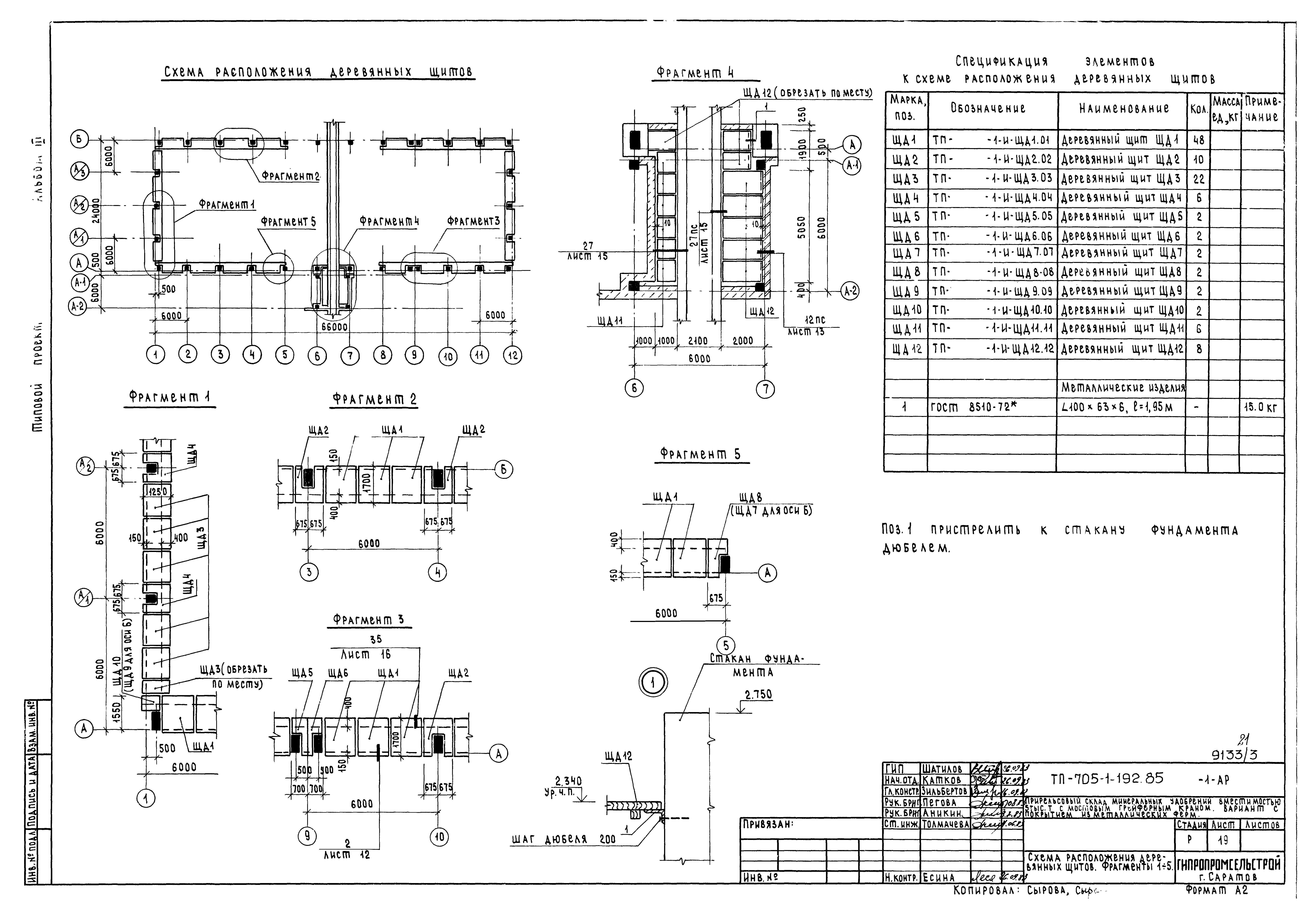
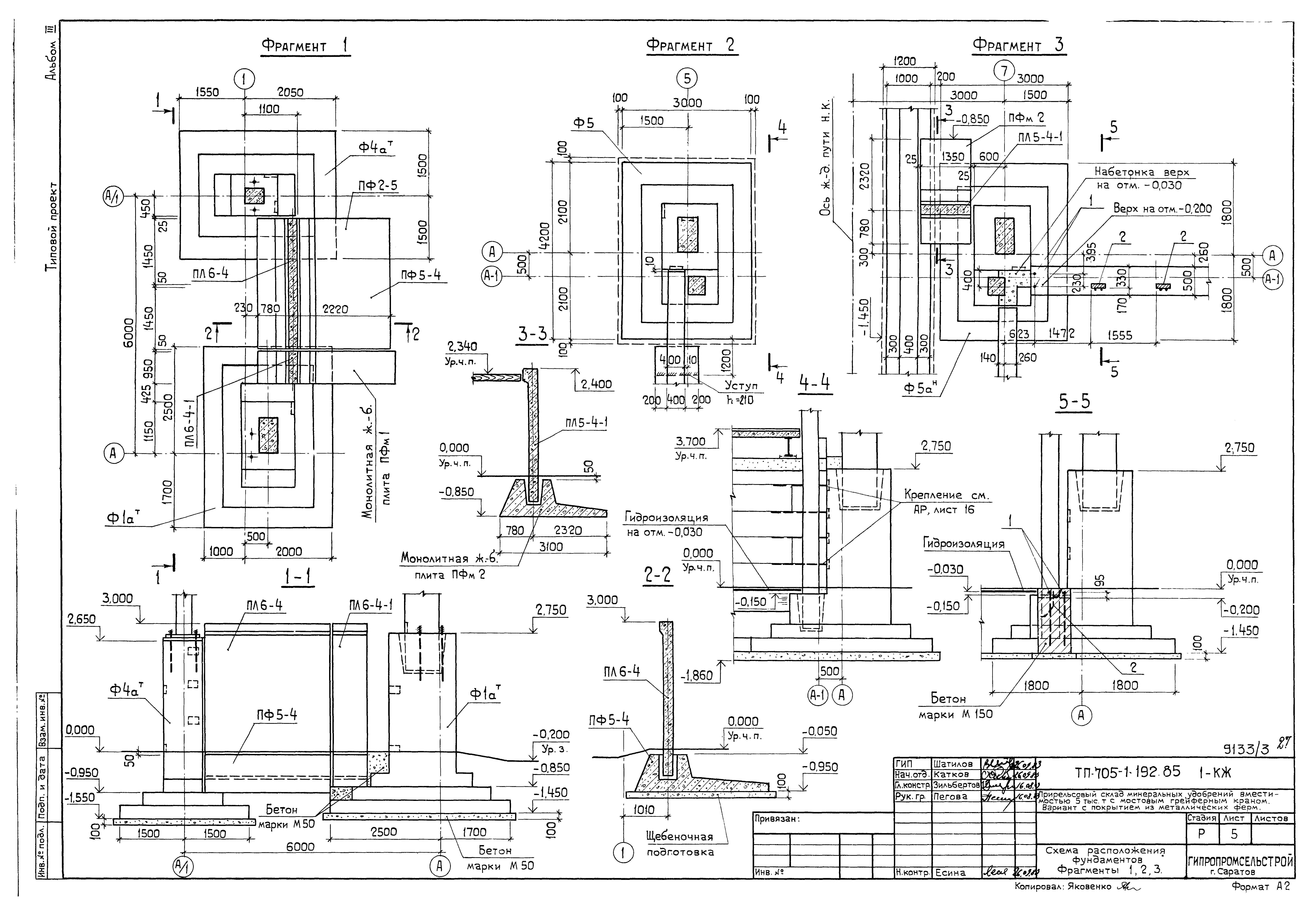
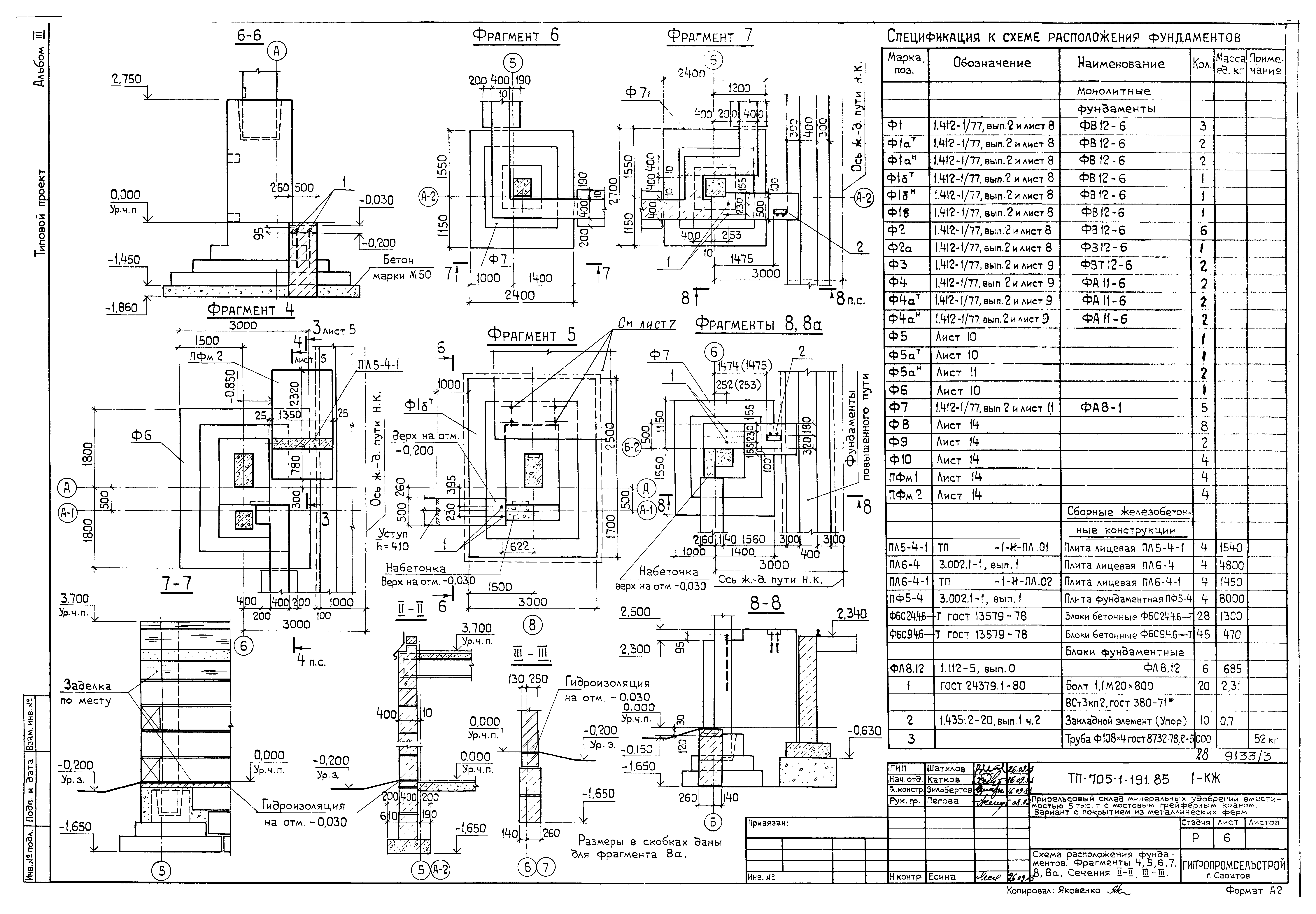
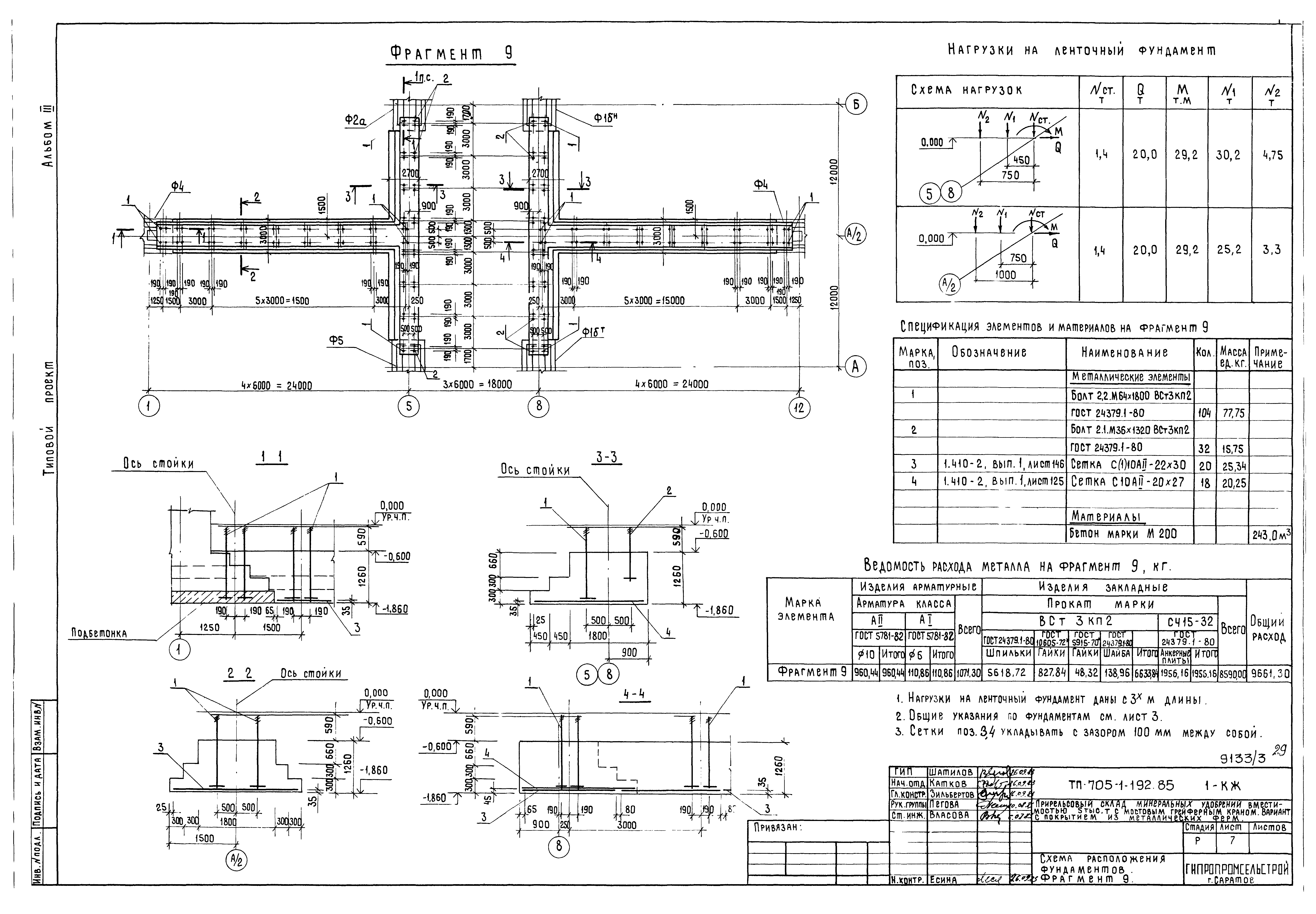
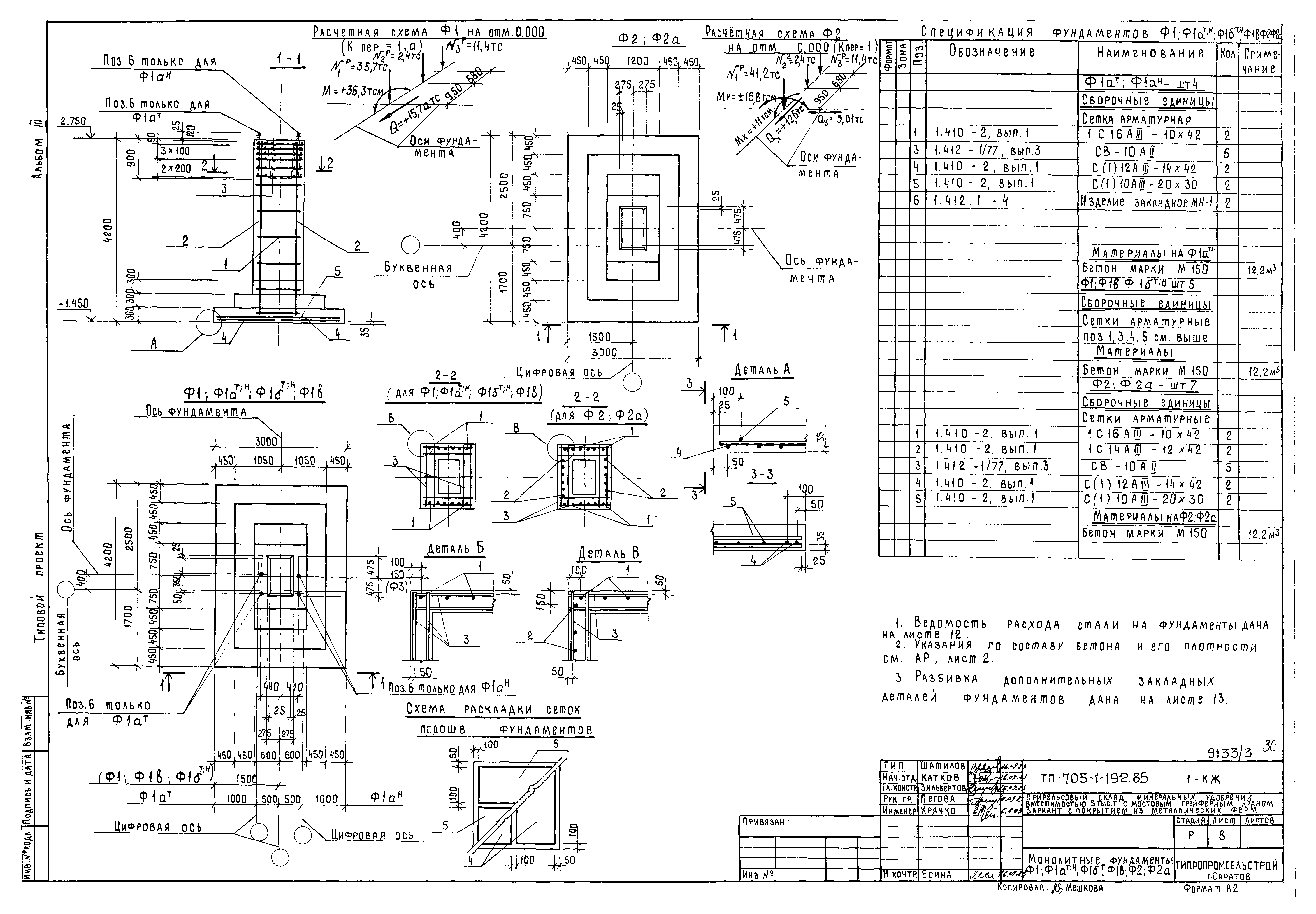
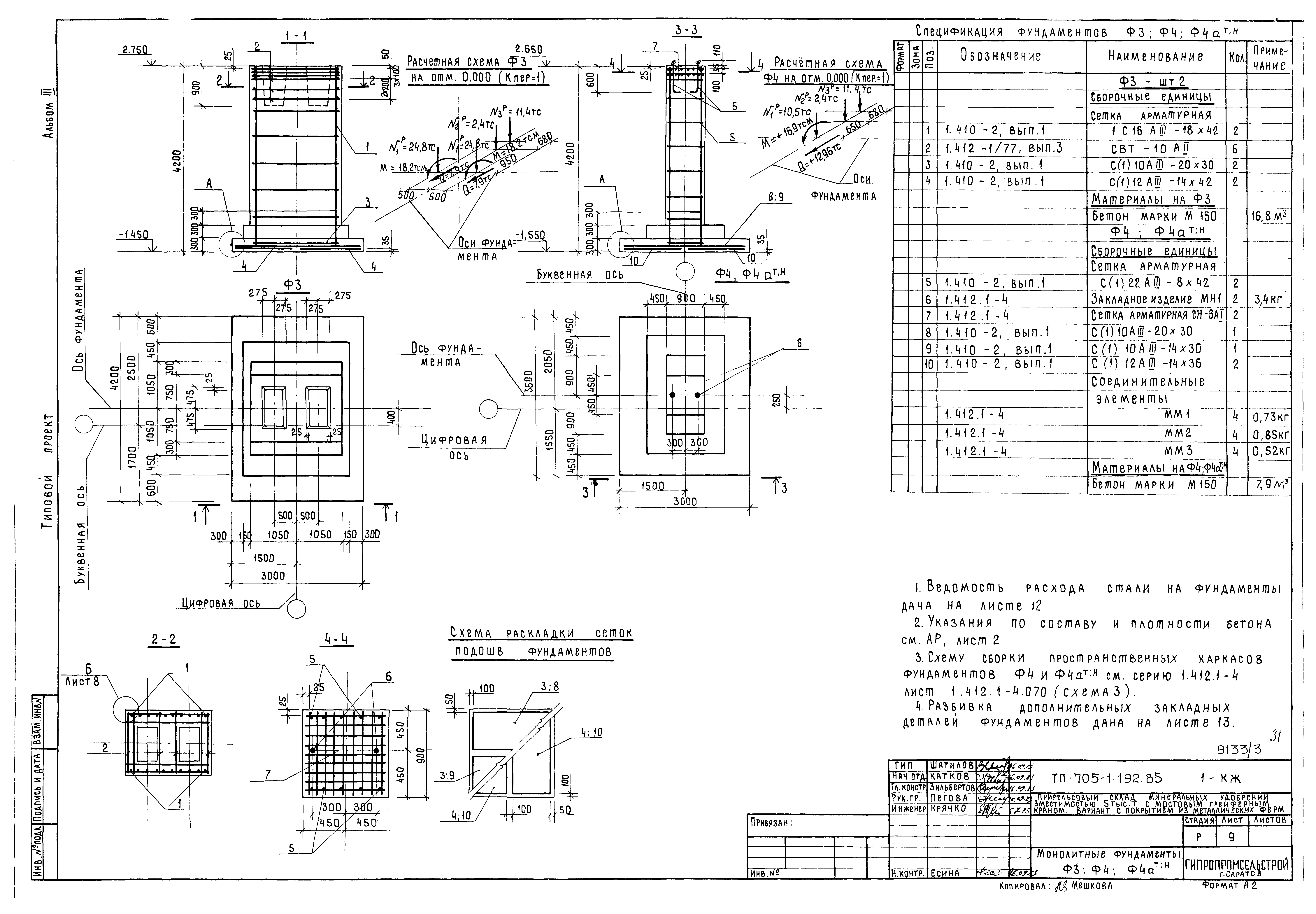
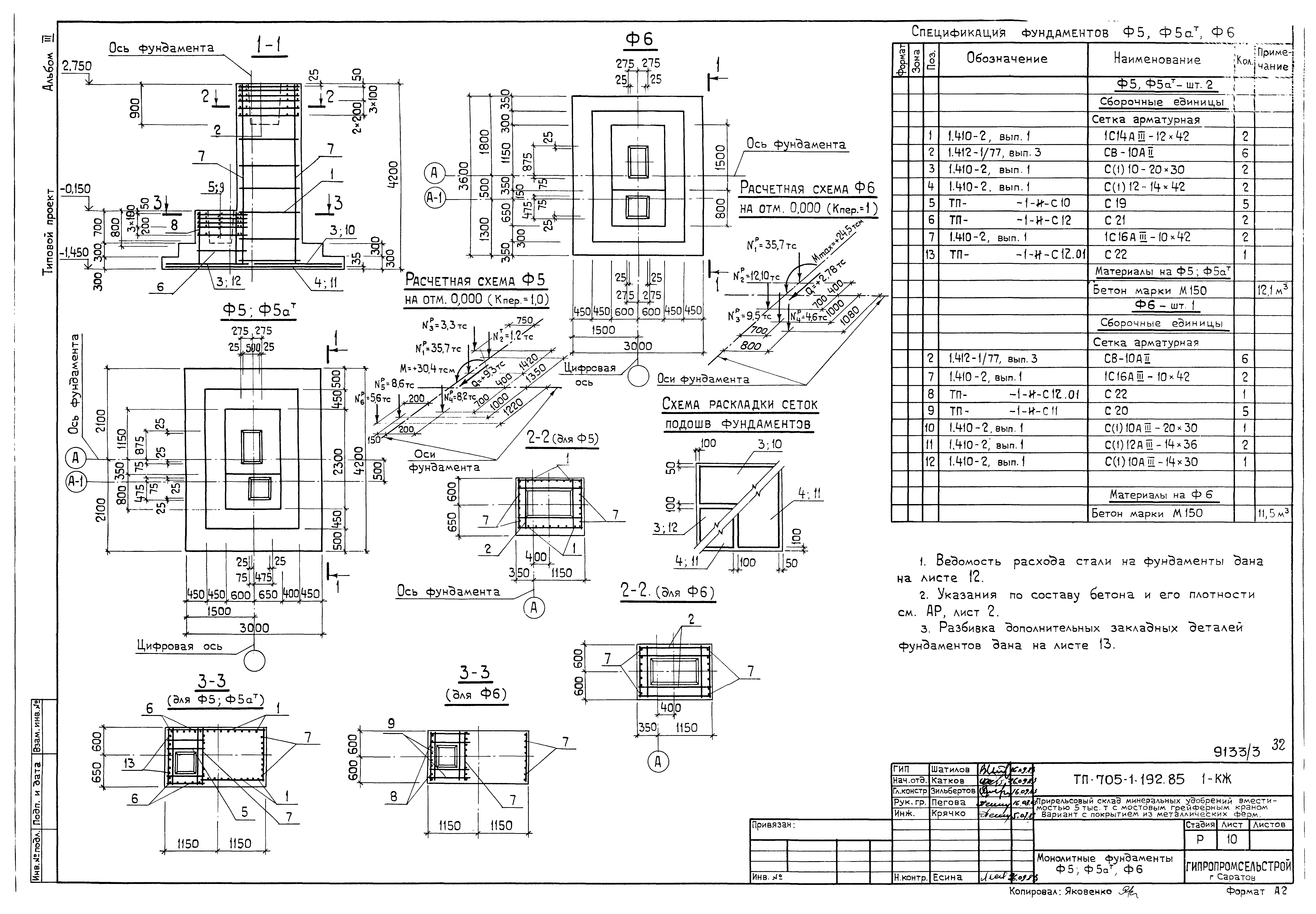
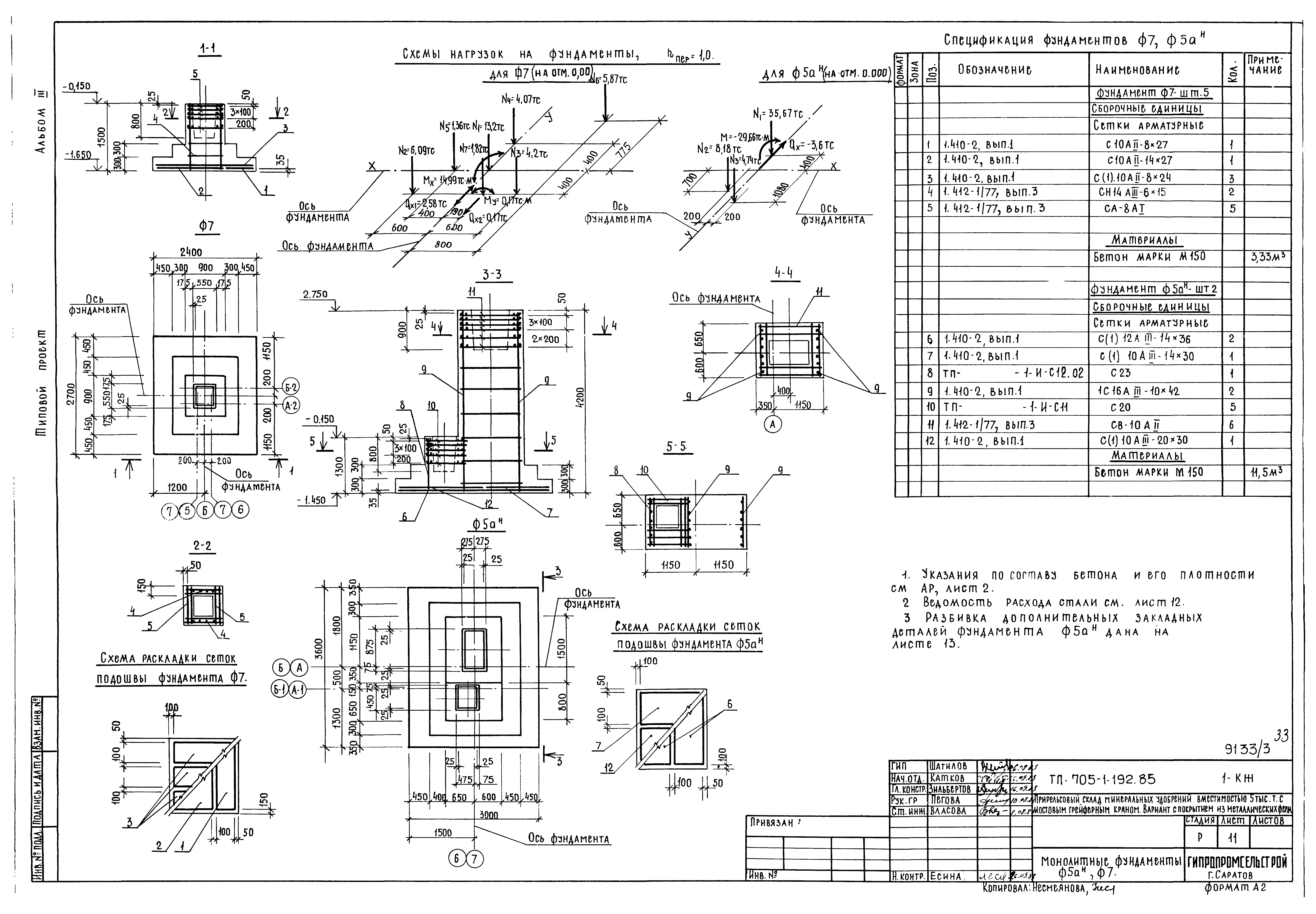
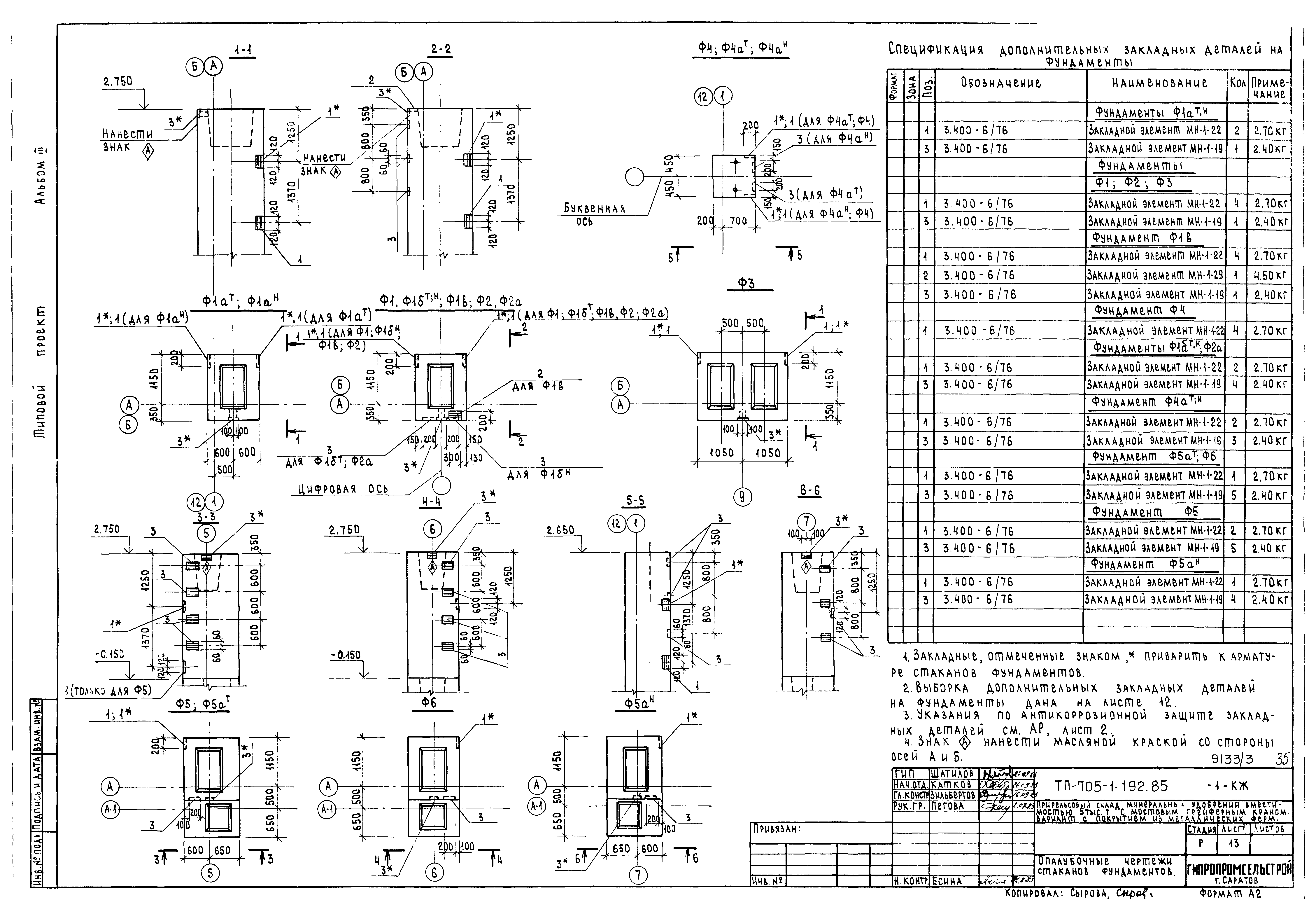
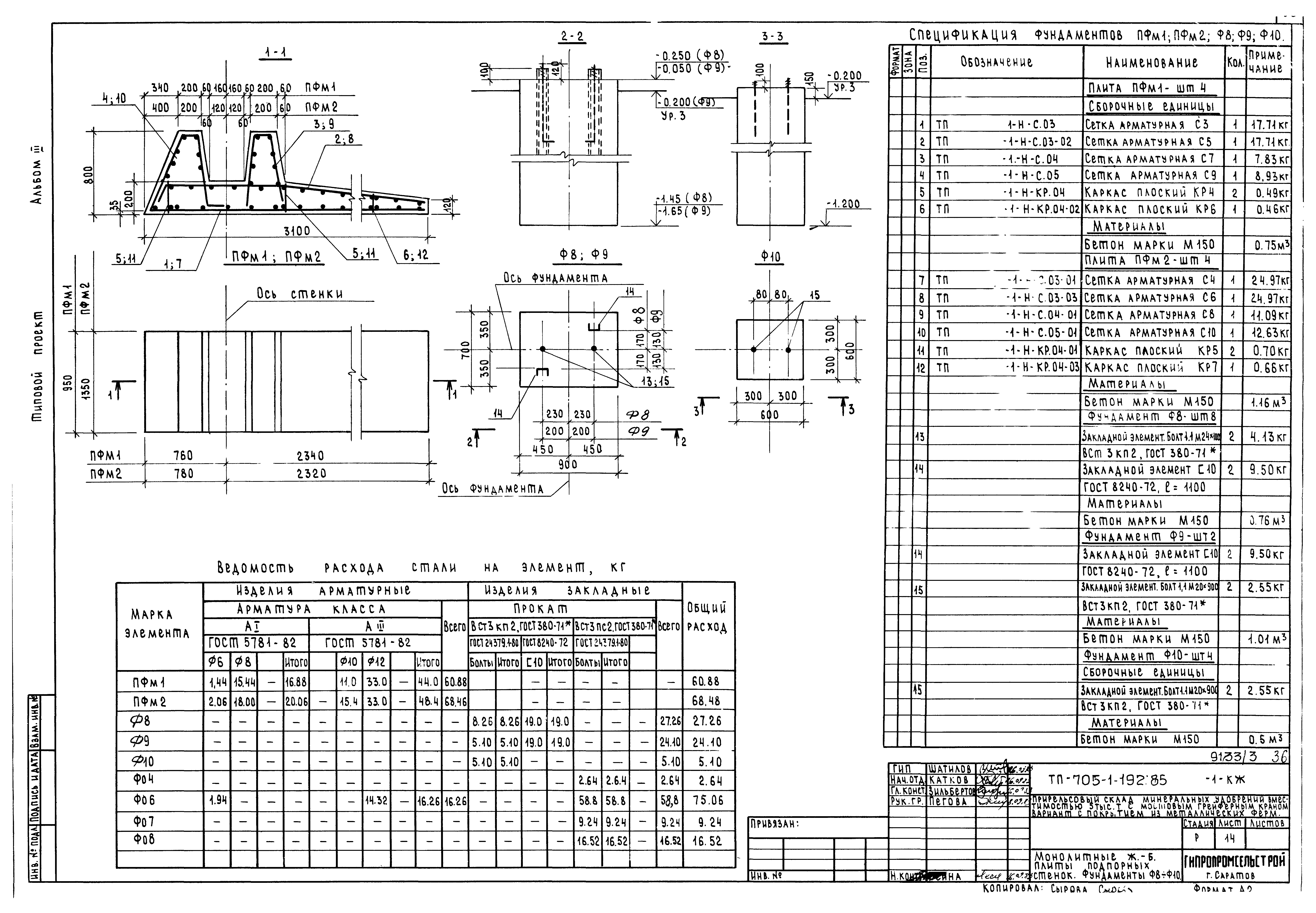
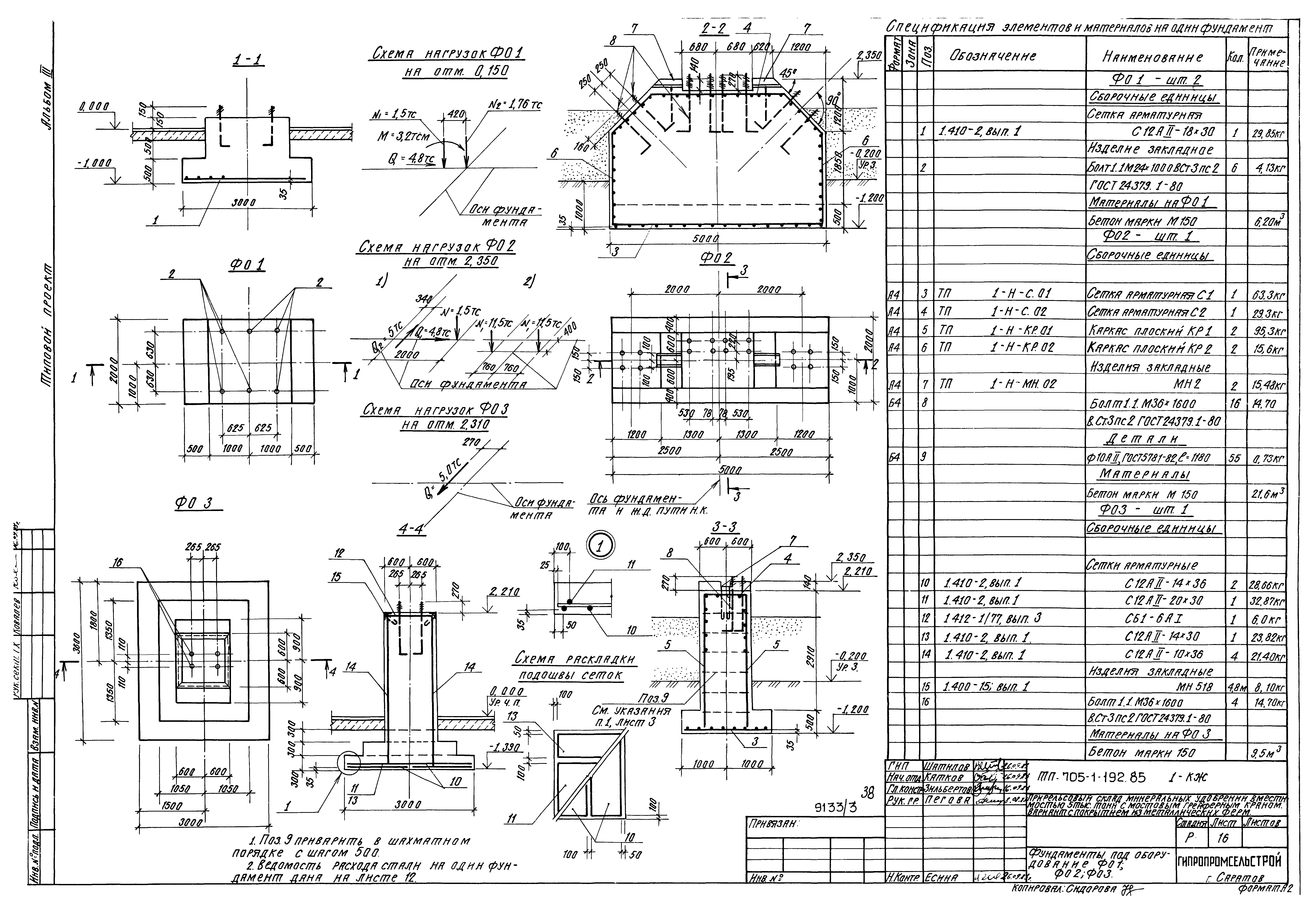
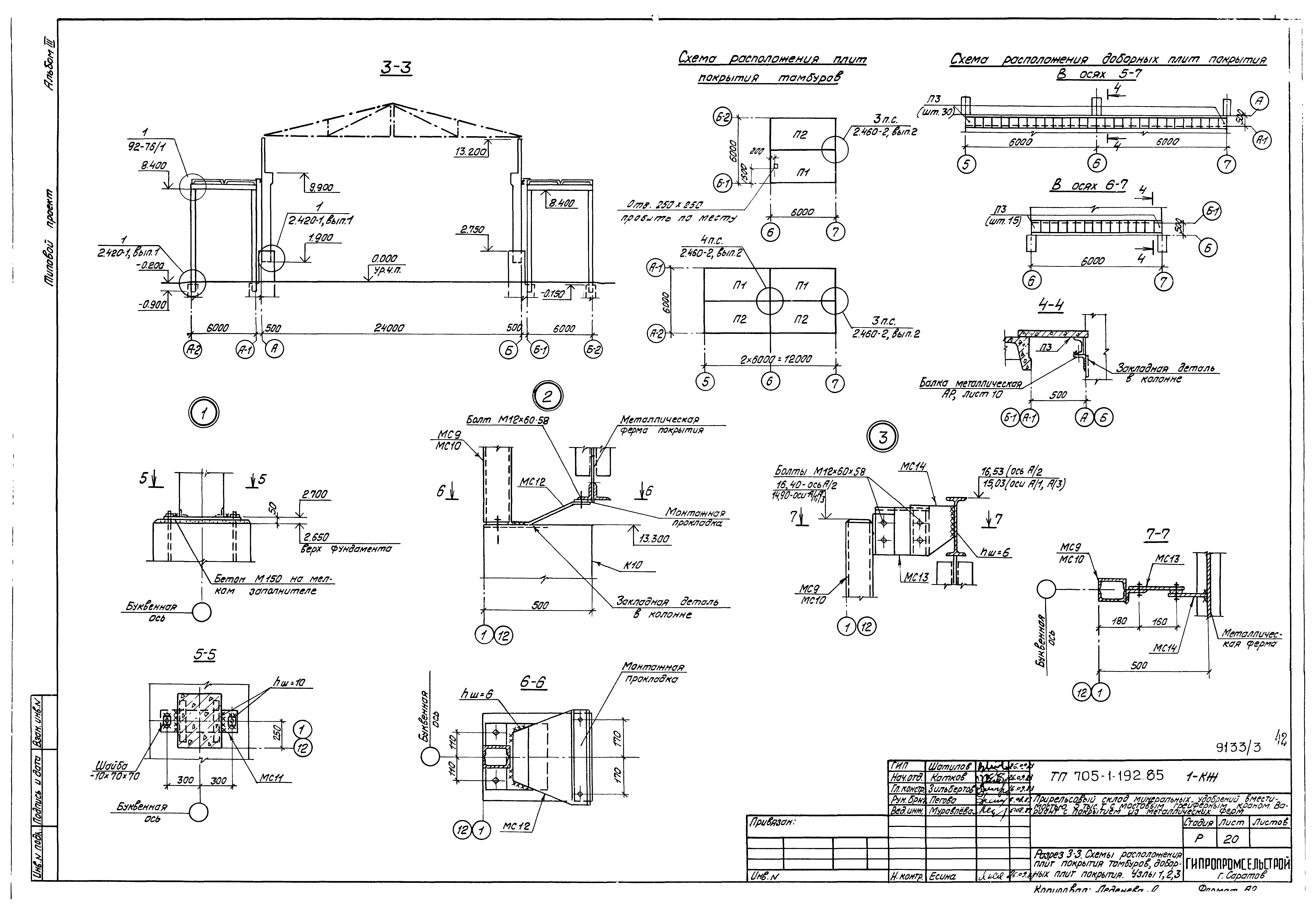
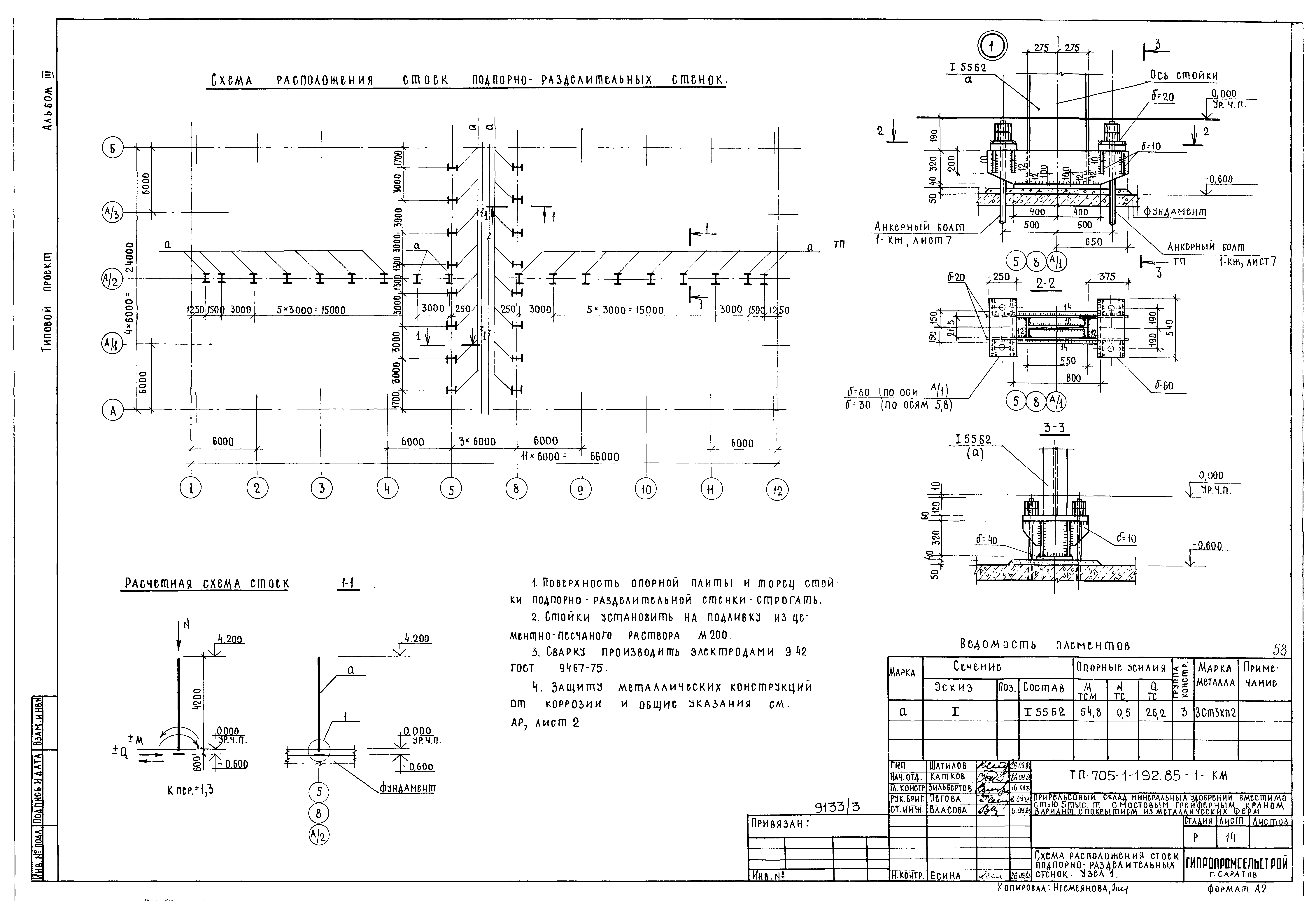
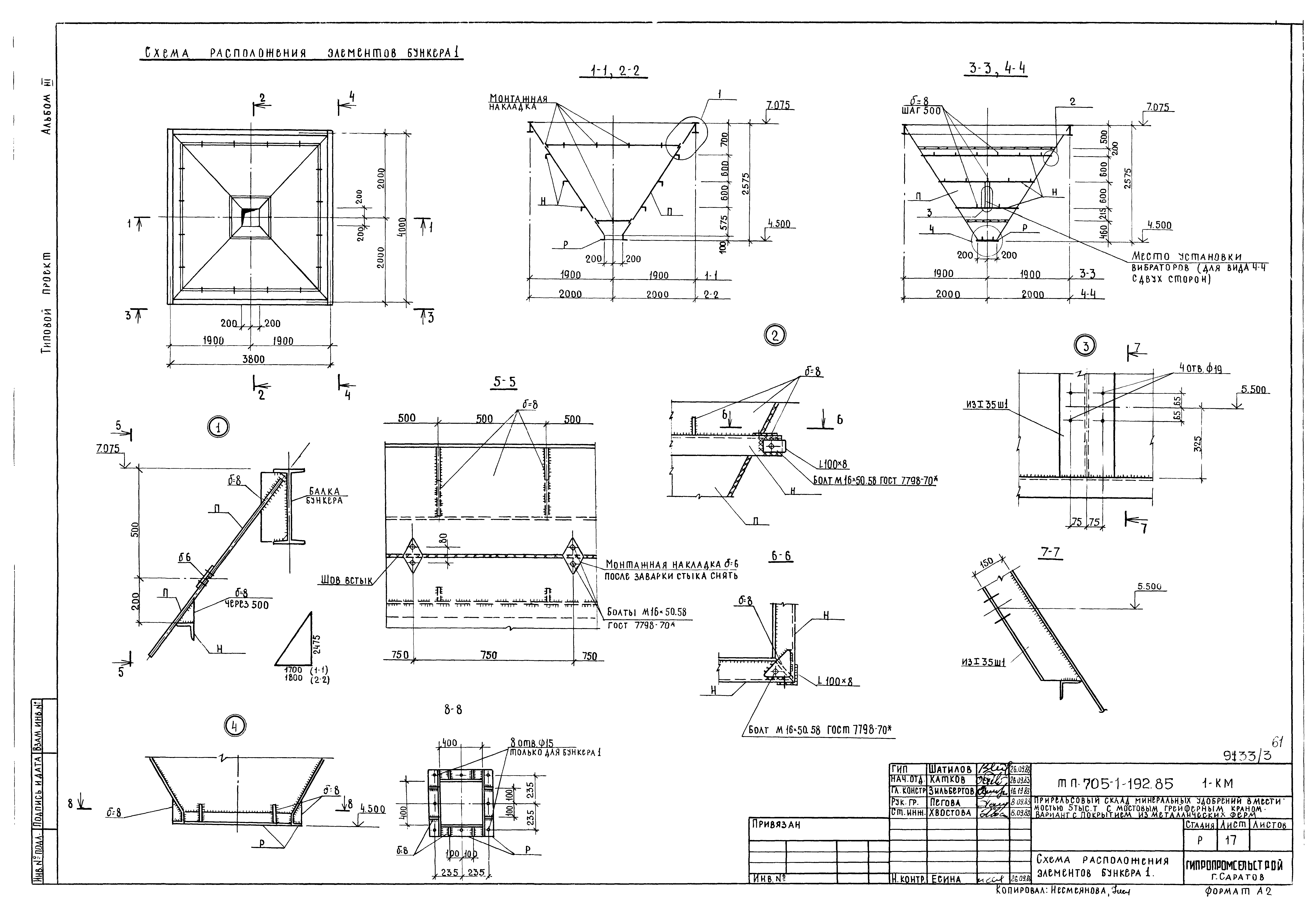
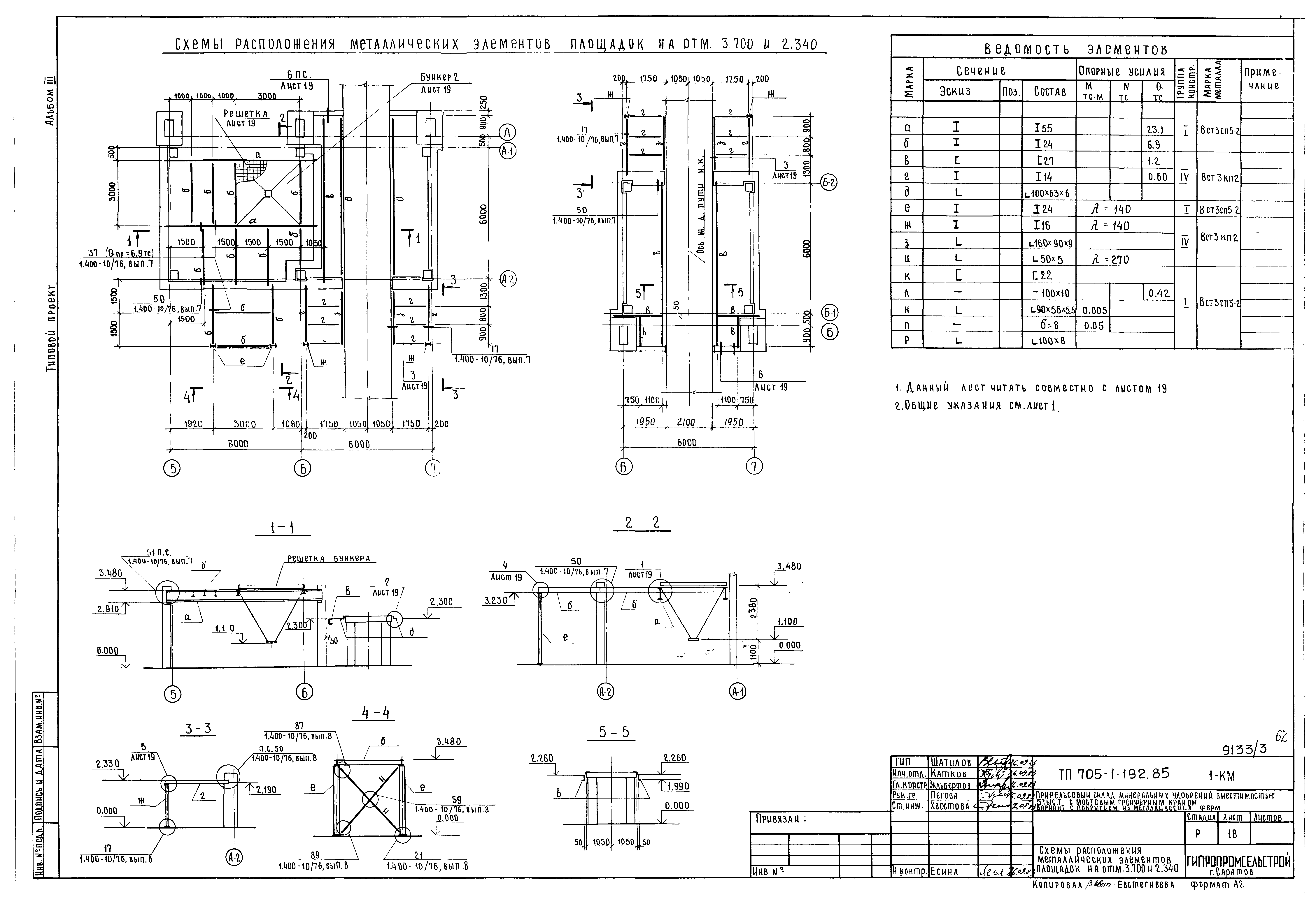
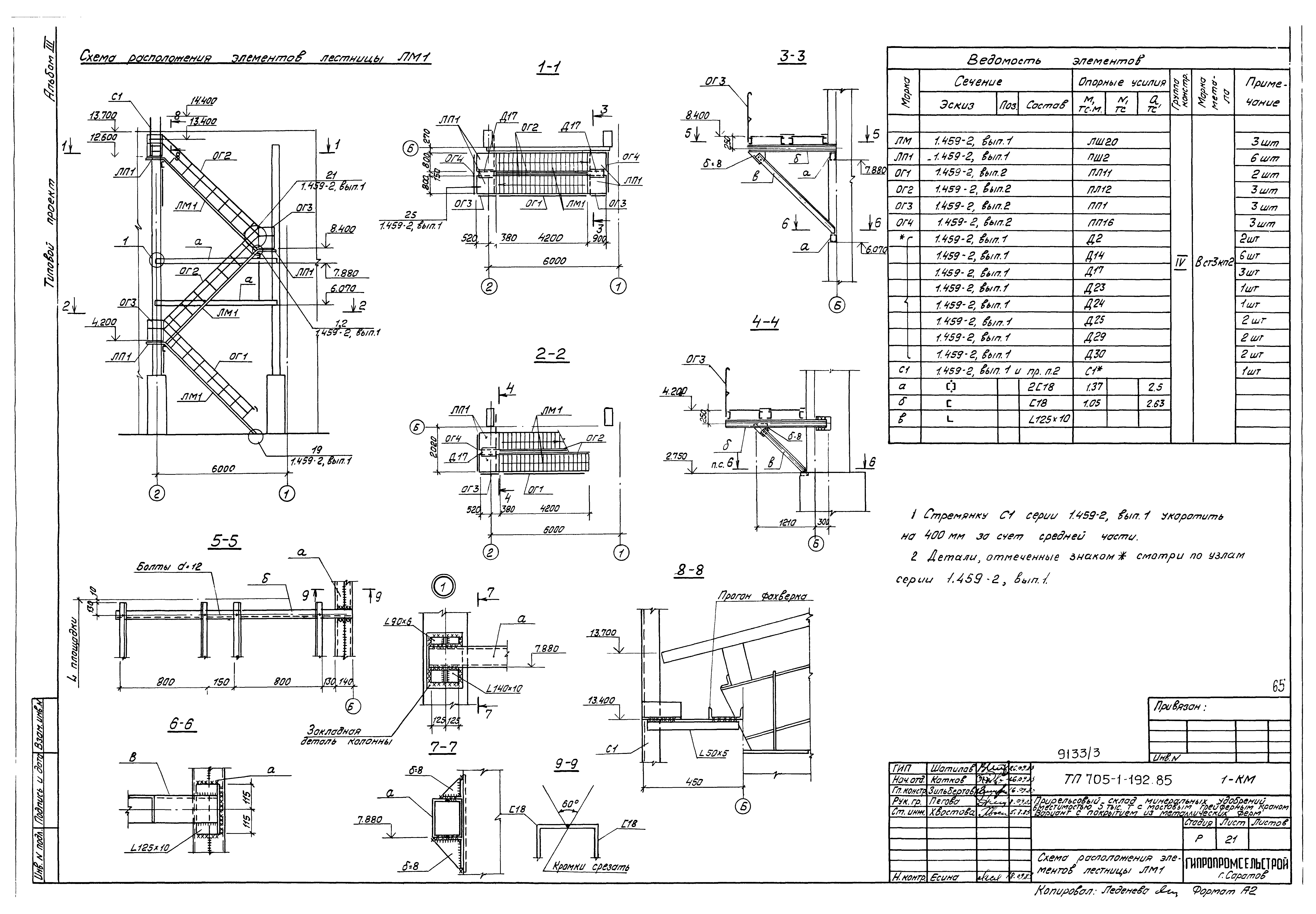
| Оглавление: | СА-1 Содержание альбома Архитектурные решения АР Общие данные (начало) Общие данные (окончание) План на отм. 0.000 Фрагменты 1,2. План площадок на отм. 2.340;3.700 Разрез 1-1. План площадок на отм. 2.340 Разрезы 2-2;3-3;4-4 Фасады 1-2;12-1 Фасады А-2-Б-2;Б-2-А-2 Планы полов на отм. 0.000;2.340;3.700. Ведомость перемычек. Спецификация перемычек Схема расположения элементов продольного фахверка по осям "А" и "Б" Схема расположения элементов торцевого фахверка по осям "1" и "12" и схемы тамбуров Узлы 1-9 Узлы 10-13 Схема расположения деревянных щитов карниза. Узлы 14-20 Узлы 21-28 Узлы 29-37 План кровли. Схема расположения элементов ограждения кровли Схема расположения подпорно-разделительных стенок. Узлы 1-4 Схема расположения деревянных щитов. Фрагменты 1-5 Схема расположения элемент кровли и прогонов Конструкции железобетонные КЖ Общие данные (начало) Общие данные (окончание) Схема расположения фундаментов Разрез 1-1. Сечения 1-1,2-2,3-3 Схема расположения фундаментов. Фрагменты 1,2,3 Схема расположения фундаментов. Фрагменты 4,5,6,7,8,8а. Сечения 2-2-3-3 Схема расположения фундаментов. Фрагмент 9 Монолитные фундаменты Ф1,Ф1а в степени т,н,Ф1б в степени т,Ф1в,Ф2,Ф2а Монолитные фундаменты Ф3,Ф4,Ф4а в степени т,н Монолитные фундаменты Ф5,Ф5а в степени т,Ф6 Монолитные фундаменты Ф5а в степени н,Ф7 Ведомость расхода стали на фундаменты, кг Опалубочные чертежи стаканов фундаментов Монолитные ж.б. плиты подпорных стенок. Фундаменты Ф5-Ф10 Схемы расположения фундаментов под оборудование и элементов ограждения Фундаменты под оборудование ФО1,ФО2,ФО3 Схема расположения фундаментов под оборудование. Фундаменты ФО4-ФО8 Спецификация элементов к схеме расположения колонн, балок и плит покрытия Схема расположения колонн, балок покрытия, связей. Разрезы 1-1 и 2-2 Разрезы 3-3. Схемы расположения плит покрытия тамбуров доборных плит покрытия. Узлы 1,2,3 Схема расположения стеновых плит Схемы расположения элементов монолитных перекрытий на отм. 3.700;2.340 и монолитного пояса на отм. 2.910 Конструкции металлические - КМ Общие данные Техническая спецификация металла (начало) Техническая спецификация металла (продолжение) Техническая спецификация металла (окончание) Схема расположения стропильных ферм и связей по верхним поясам ферм Схема расположения связей по нижним поясам стропильных ферм. Узел А Схема расположения подкрановых балок. Упор У-1 Схема расположения стоек подпорно-разделительных стенок. Узел 1 Схема расположения элементов площадки 1 Узлы 1-5 к схеме расположения элементов площадки Схема расположения элементов бункера 1 Схема расположения металлических элементов площадок на отм. 3.700 и 2.340 Схема расположения элементов бункера 2. Узлы 1-5 Схемы расположения элементов лестниц и ограждений площадок, элементов монорельсов Схема расположения элементов лестницы ЛМ1 Антикоррозийная защита конструкций и оборудования АЗ Общие данные. Перечень чертежей. Условия эксплуатации. Антикоррозийная защита План на отм. 0.000. Узел 1. Сечение 3-3 Разрезы 1-1,2-2. Сечения 4-4,5-5. Узлы 2,3 |
| Разработан: | Гипропромсельстрой |
| Утверждён: | 20.12.1984 Министерство сельского хозяйства СССР (USSR Ministry of Agriculture 105-ЭГ) |





































































