Скачать Типовой проект 705-1-192.85 Альбом IV. Изделия заводского изготовленияДата актуализации: 01.01.2021
|
| Обозначение: | Типовой проект 705-1-192.85 |
| Обозначение англ: | 705-1-192.85 |
| Статус: | действует |
| Название рус.: | Альбом IV. Изделия заводского изготовления |
| Дата добавления в базу: | 01.09.2013 |
| Дата актуализации: | 01.01.2021 |
| Дата введения: | 07.01.1985 |
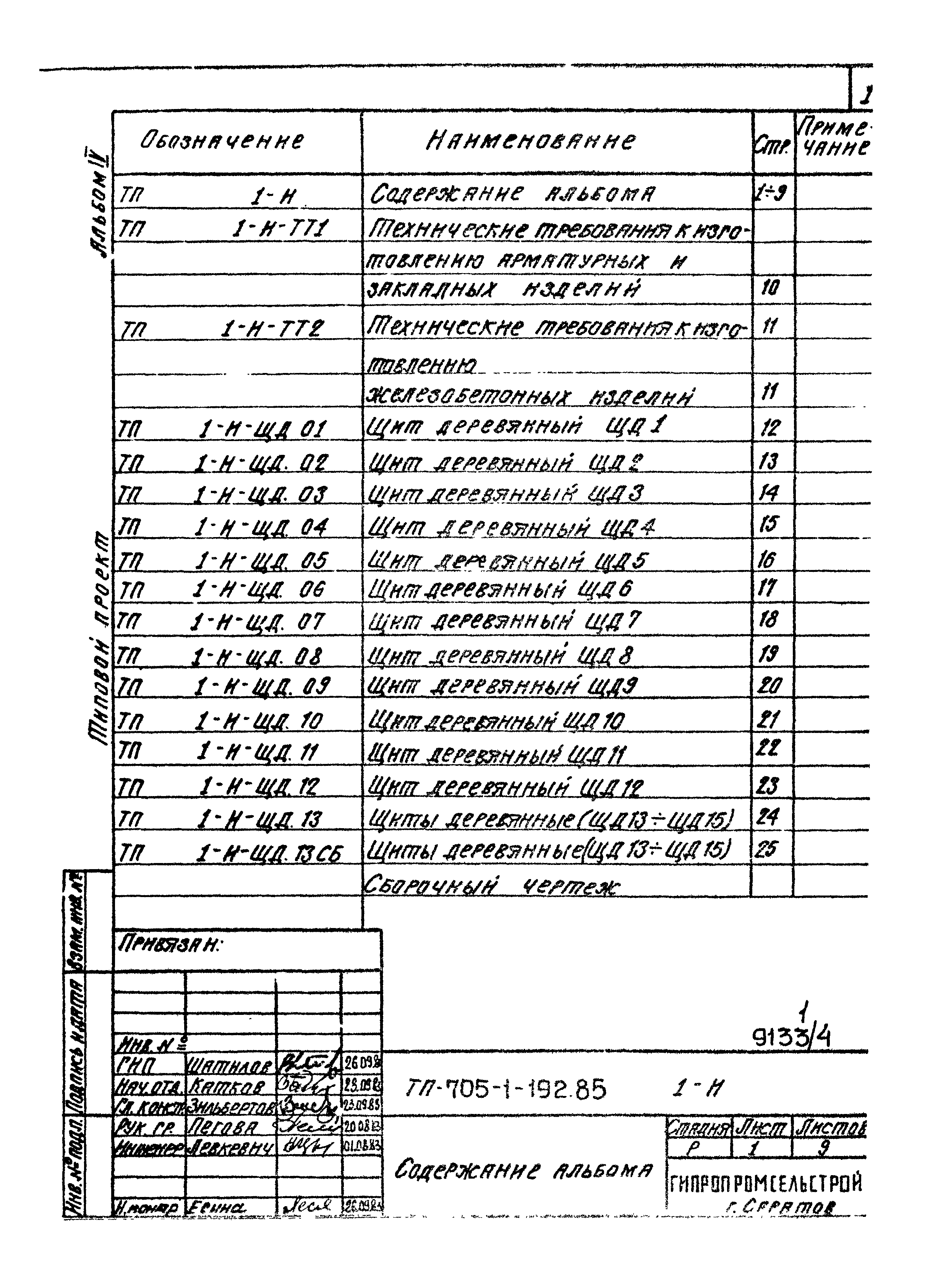
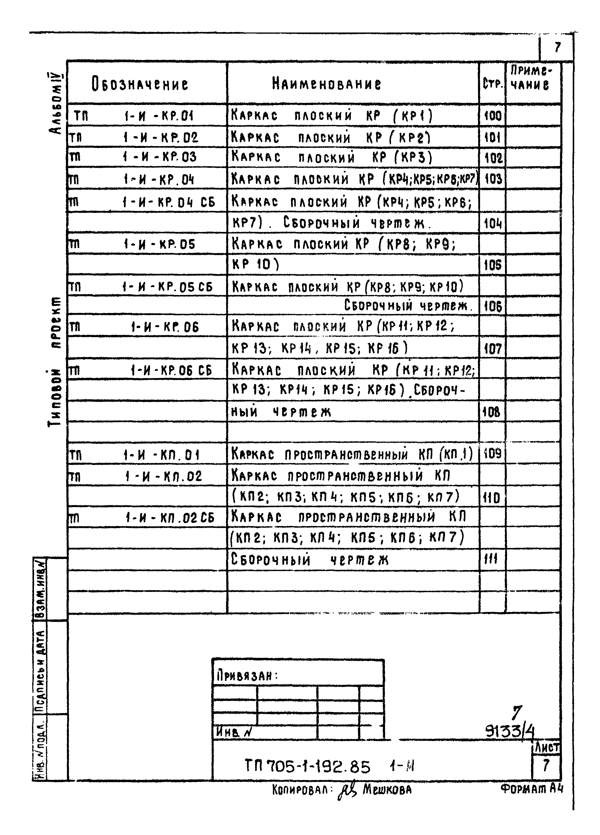
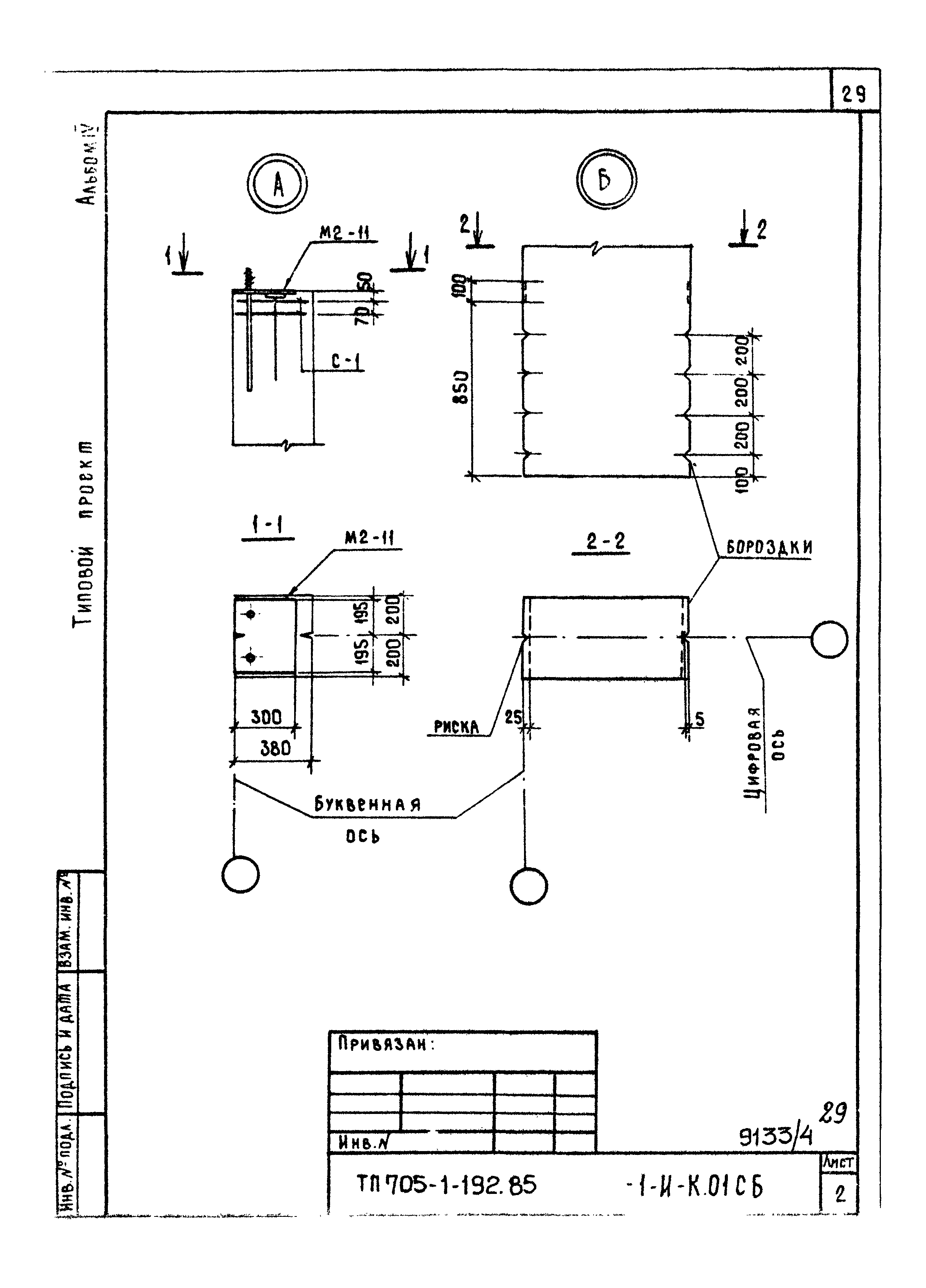
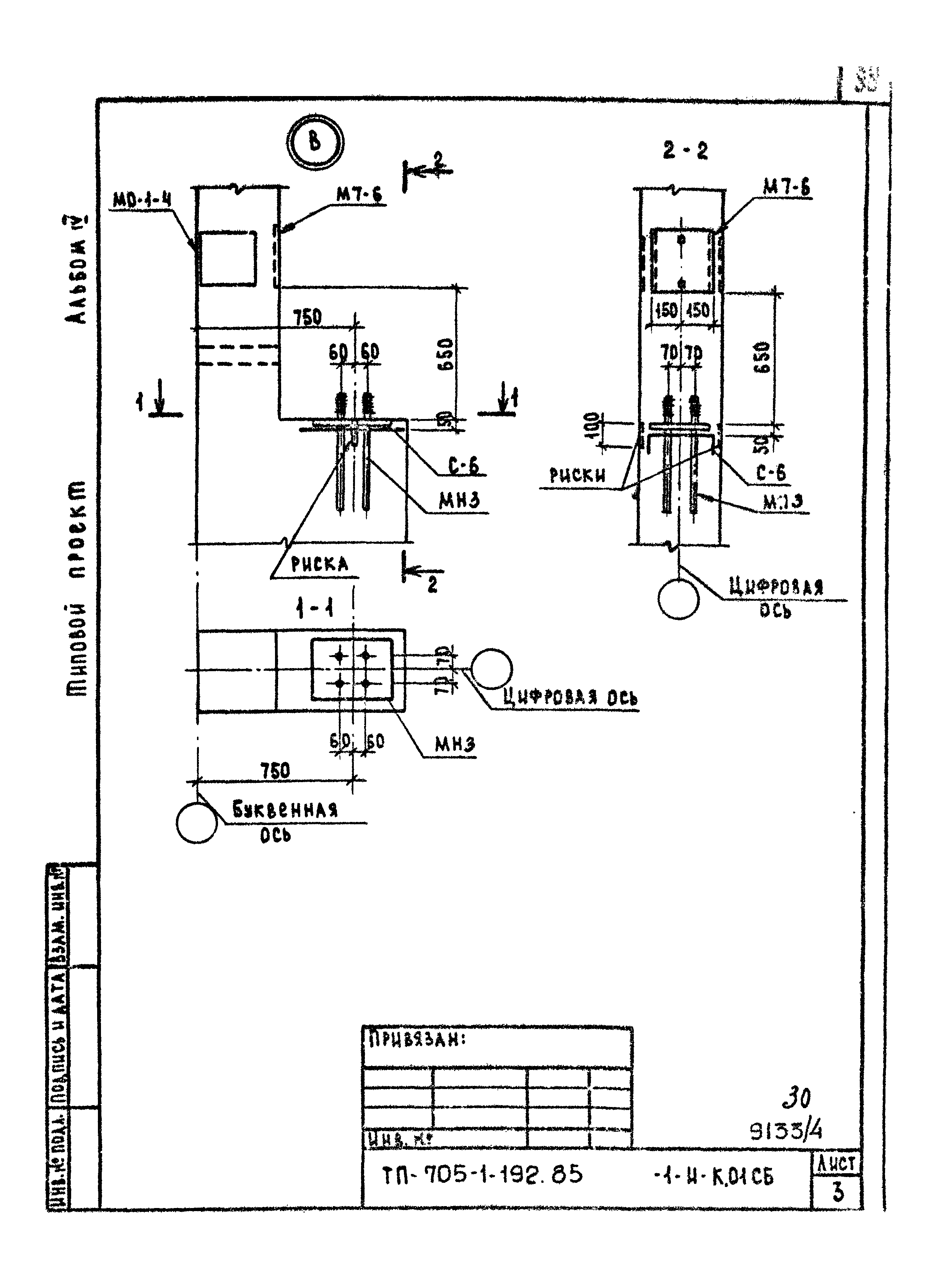
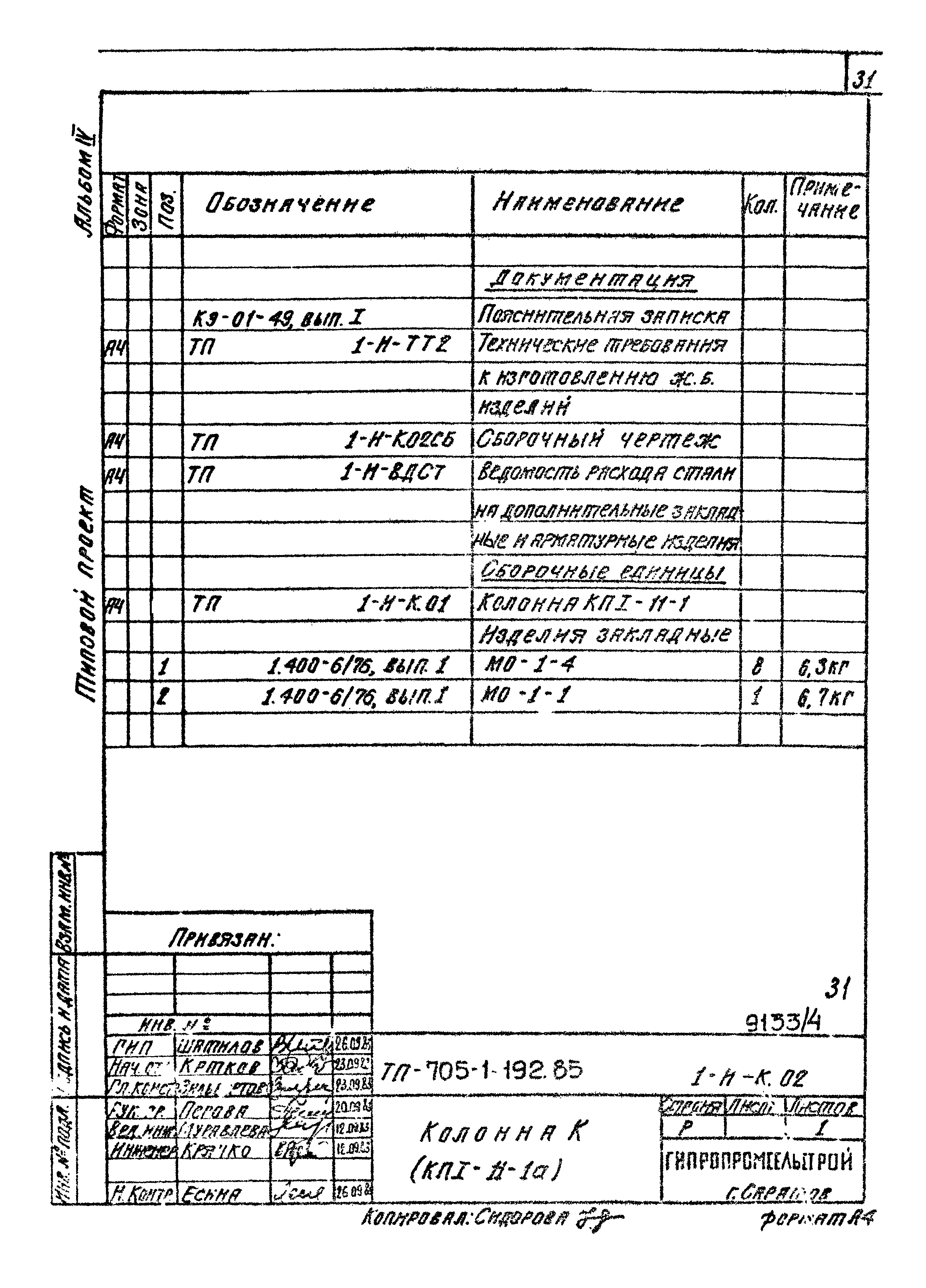
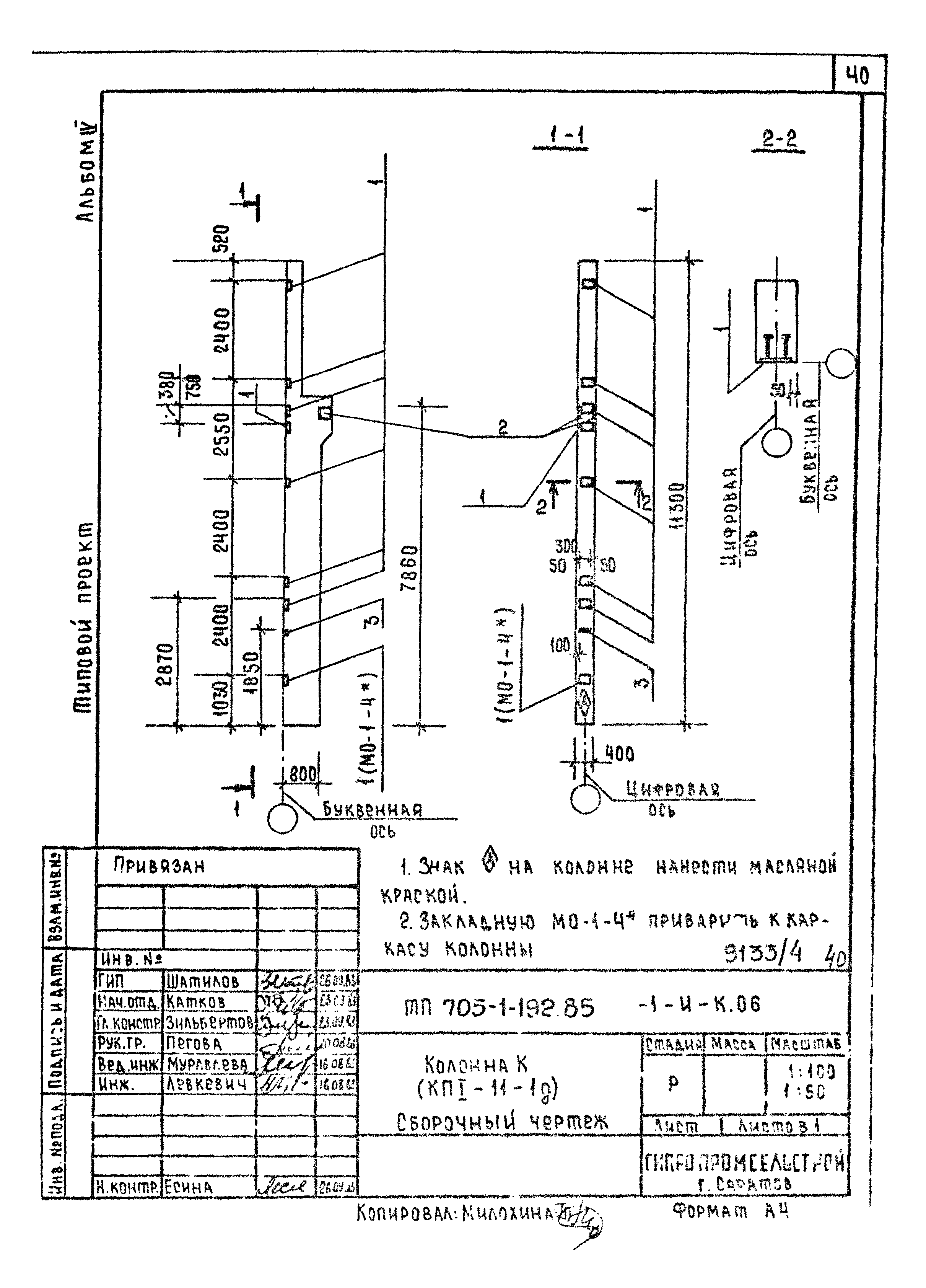
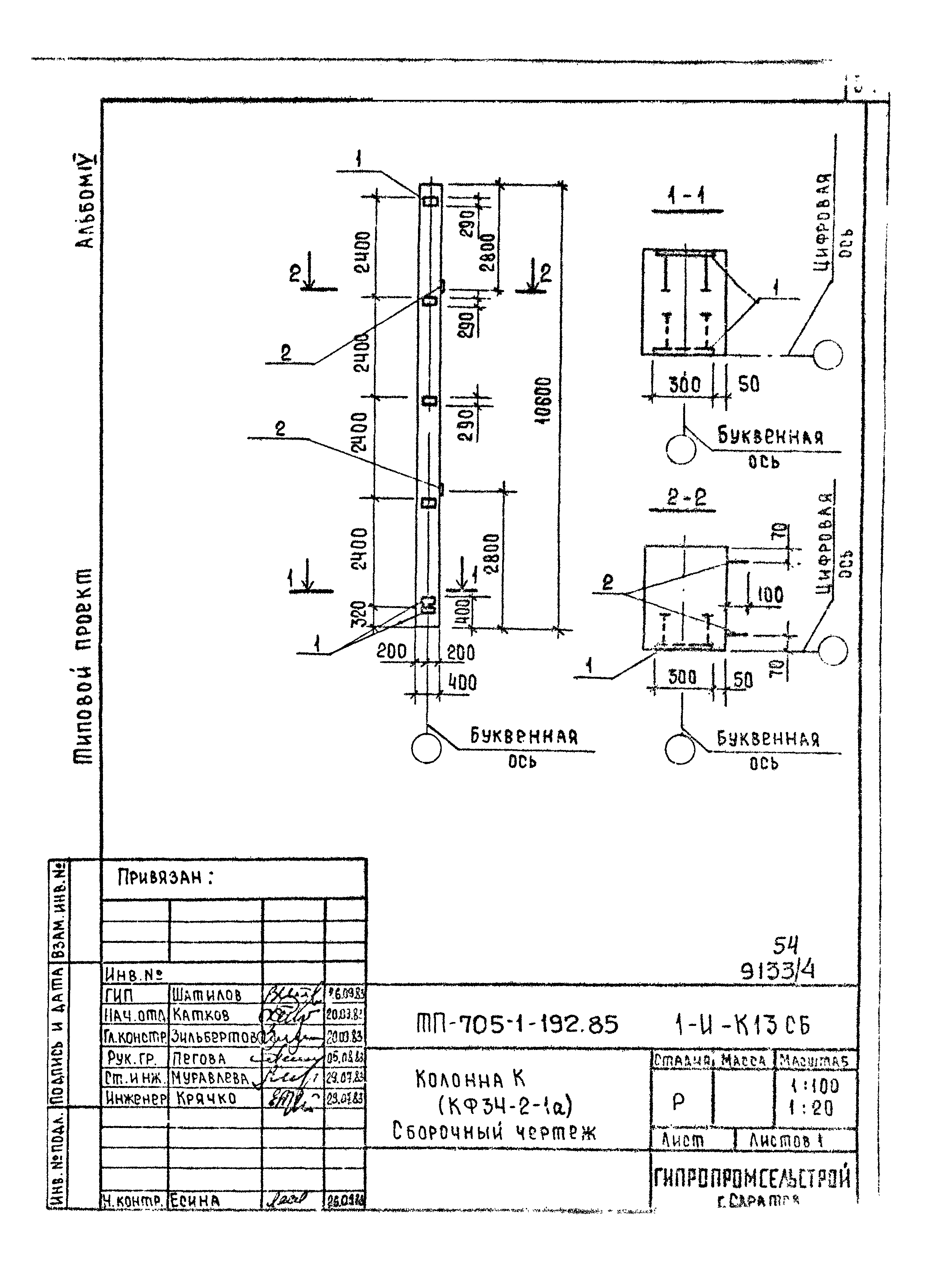
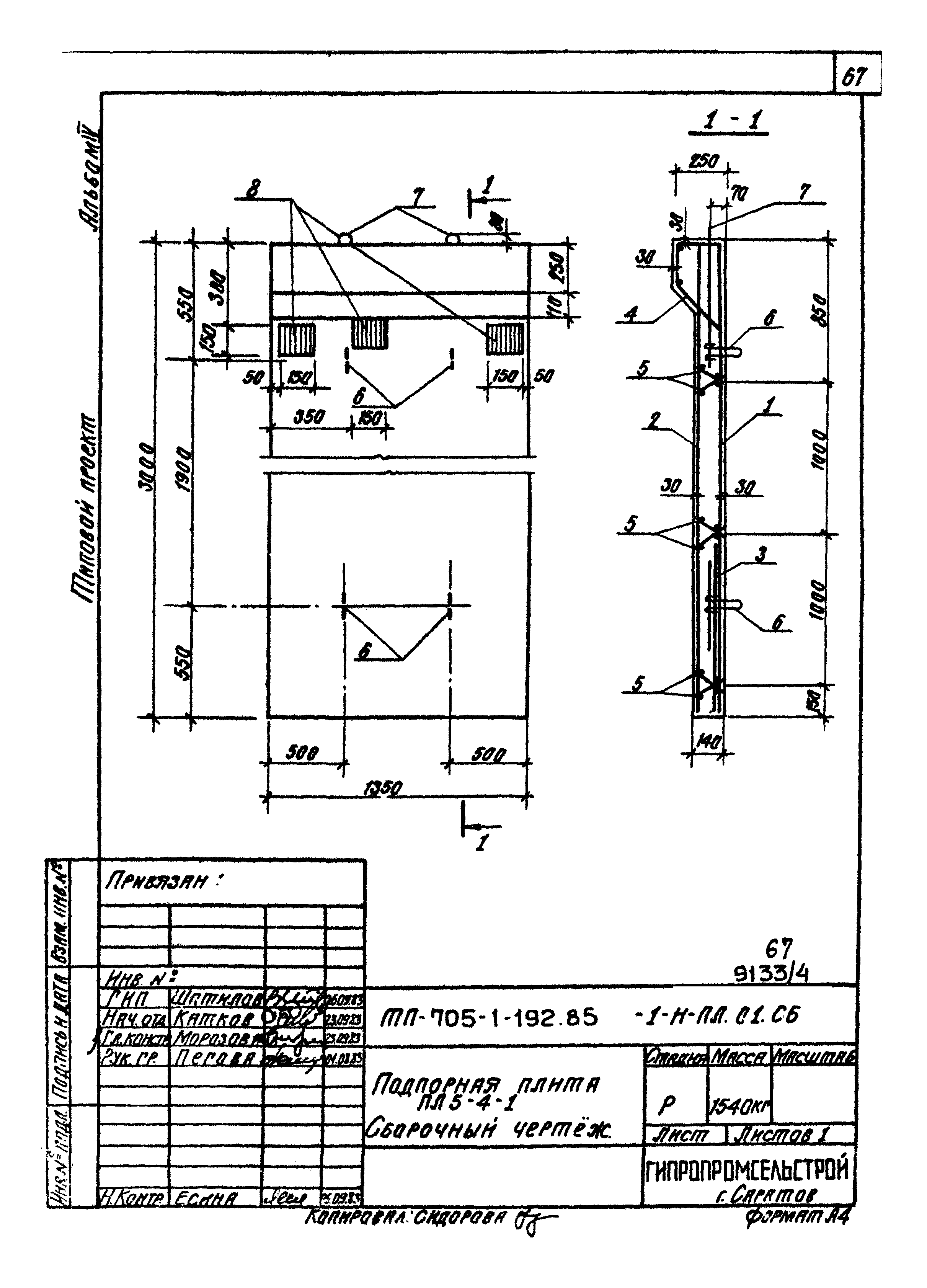
| Оглавление: | 1-И Содержание альбома 1-И-ТТ1 Технические требования к изготовлению арматурных и закладных изделий 1-И-ТТ2 Технические требования к изготовлению железобетонных изделий 1-И-ЩД.01 Щит деревянный ЩД1 1-И-ЩД.02 Щит деревянный ЩД2 1-И-ЩД.03 Щит деревянный ЩД3 1-И-ЩД.04 Щит деревянный ЩД4 1-И-ЩД.05 Щит деревянный ЩД5 1-И-ЩД.06 Щит деревянный ЩД6 1-И-ЩД.07 Щит деревянный ЩД7 1-И-ЩД.08 Щит деревянный ЩД8 1-И-ЩД.09 Щит деревянный ЩД9 1-И-ЩД.10 Щит деревянный ЩД10 1-И-ЩД.11 Щит деревянный ЩД11 1-И-ЩД.12 Щит деревянный ЩД12 1-И-ЩД.13 Щит деревянный (ЩД13-ЩД15) 1-И-ЩД.13 СБ Щит деревянный (ЩД13-ЩД15). Сборочный чертеж 1-И-К.01 Колонна К(КПI-11-1) 1-И-К.01 СБ Колонна К(КПI-11-1). Сборочный чертеж 1-И-К.02 Колонна К(КПI-11-1а) 1-И-К.02 СБ Колонна К(КПI-11-1а). Сборочный чертеж 1-И-К.03 Колонна К(КПI-11-1б) 1-И-К.03 СБ Колонна К(КПI-11-1б). Сборочный чертеж 1-И-К.04 Колонна К(КПI-11-1в) 1-И-К.04 СБ Колонна К(КПI-11-1в). Сборочный чертеж 1-И-К.05 Колонна К(КПI-11-1г) 1-И-К.05 СБ Колонна К(КПI-11-1г). Сборочный чертеж 1-И-К.06 Колонна К(КПI-11-1д) 1-И-К.06 СБ Колонна К(КПI-11-1д). Сборочный чертеж 1-И-К.07 Колонна К(КПI-11-1е) 1-И-К.07 СБ Колонна К(КПI-11-1е). Сборочный чертеж 1-И-К.08 Колонна К(КПI-11-1ж) 1-И-К.08 СБ Колонна К(КПI-11-1ж). Сборочный чертеж 1-И-К.09 Колонна К(КПI-11-1и) 1-И-К.09 СБ Колонна К(КПI-11-1и). Сборочный чертеж 1-И-К.10 Колонна К(КПI-11-1к) 1-И-К.10 СБ Колонна К(КПI-11-1к). Сборочный чертеж 1-И-К.11 Колонна К(КПI-11-1л) 1-И-К.11 СБ Колонна К(КПI-11-1л). Сборочный чертеж 1-И-К.12 Колонна К(КФ34-2-1) 1-И-К.12 СБ Колонна К(КФ34-2-1). Сборочный чертеж 1-И-К.13 Колонна К(КФ34-2-1а) 1-И-К.13 СБ Колонна К(КФ34-2-1а). Сборочный чертеж 1-И-К.14 Колонна К(КФ84-2-7а) 1-И-К.14 СБ Колонна К(КФ84-2-7а). Сборочный чертеж 1-И-Б.01 Балка Б(Б6-5АIVа;Б6-6АIVа;Б6-8АIVа;Б6-6АIVб;Б6-7АIVб;Б6-8АIVб) 1-И-Б.01 СБ Балка Б(Б6-5АIVа;Б6-6АIVа;Б6-8АIVа;Б6-6АIVб;Б6-7АIVб;Б6-8АIVб). Сборочный чертеж 1-И-П.01 Плита П(ПГ-3АтVт-1;ПГ-4АтVт-1;ПГ-6АтVт-1;ПГ-3АтVт-2;ПГ-4АтVт-2;ПГ-6Ат-Vт-2) 1-И-П.01 СБ Плита П(ПГ-3АтVт-1;ПГ-4АтVт-1;ПГ-6АтVт-1;ПГ-3АтVт-2;ПГ-4АтVт-2;ПГ-6Ат-Vт-2). Сборочный чертеж 1-И-ПС.01 Плита стеновая ПС(2П1-3АIVт-Па;2П1-2АIVт-Па;2П1-3АIVт-Пб;2П1-2АIVт-Пб;2П1-3АIVт-Пв;2П1-2АIVт-Пв;2П1-3АIVт-г;2П1-2АIVт-Пг) 1-И-ПС.01 СБ Плита стеновая ПС(2П1-3АIVт-Па;2П1-2АIVт-Па;2П1-3АIVт-Пб;2П1-2АIVт-Пб;2П1-3АIVт-Пв;2П1-2АIVт-Пв;2П1-3АIVт-г;2П1-2АIVт-Пг). Сборочный чертеж 1-И-ПЛ.01 Подпорная плита ПЛ5-4-1 1-И-ПЛ.01 СБ Подпорная плита ПЛ5-4-1. Сборочный чертеж 1-И-ПЛ.02 Подпорная плита ПЛ6-4-1 1-И-ПЛ.02 СБ Подпорная плита ПЛ6-4-1. Сборочный чертеж 1-И-ВДСт Ведомость расхода стали на дополнительные закладные и арматурные изделия 1-И-КК.01 Элемент карниза КК1 1-И-ПМ.01 Панель ПМ1-01 1-И-ПМ.01 СБ Панель ПМ1-01. Сборочный чертеж 1-И-МС.01 Изделие соединительное МС(МС1,МС4) 1-И-МС.01 СБ Изделие соединительное МС(МС1,МС4). Сборочный чертеж 1-И-МС.02 Изделие соединительное МС(МС2) 1-И-МС.03 Изделие соединительное МС(МС3) 1-И-МС.04 Изделие соединительное МС(МС5) 1-И-МС.05 Изделие соединительное МС(МС6) 1-И-МС.06 Изделие соединительное МС(МС7) 1-И-МС.07 Изделие соединительное МС(МС8) 1-И-МС.08 Изделие соединительное МС(МС9,МС10) 1-И-МС.08 СБ Изделие соединительное МС(МС9,МС10). Сборочный чертеж 1-И-МС.09 Изделие соединительное МС(МС11) 1-И-МС.10 Изделие соединительное МС(МС12) 1-И-МС.11 Изделие соединительное МС(МС13) 1-И-МС.12 Изделие соединительное МС(МС14) 1-И-МН.01 Изделие закладное МН(МН1) 1-И-МН.02 Изделие закладное МН(МН2) 1-И-МН.03 Изделие закладное МН(МН3) 1-И-МН.04 Изделие закладное МН(МН4) 1-И-КР.01 Каркас плоский КР(КР1) 1-И-КР.02 Каркас плоский КР(КР2) 1-И-КР.03 Каркас плоский КР(КР3) 1-И-КР.04 Каркас плоский КР(КР4,КР5,КР6,КР7) 1-И-КР.04 СБ Каркас плоский КР(КР4,КР5,КР6,КР7). Сборочный чертеж 1-И-КР.05 Каркас плоский КР(КР8,КР9,КР10) 1-И-КР.05 СБ Каркас плоский КР(КР8,КР9,КР10). Сборочный чертеж 1-И-КР.06 Каркас плоский КР(КР11,КР12,КР13,КР14,КР15,КР16) 1-И-КР.06 СБ Каркас плоский КР(КР11,КР12,КР13,КР14,КР15,КР16). Сборочный чертеж 1-И-КП.01 Каркас пространственный КП(КП1) 1-И-КП.02 Каркас пространственный КП(КП2,КП3,КП4,КП5,КП6,КП7) 1-И-КП.02 СБ Каркас пространственный КП(КП2,КП3,КП4,КП5,КП6,КП7). Сборочный чертеж 1-И-С.01 Сетка арматурная С(С1) 1-И-С.02 Сетка арматурная С(С2) 1-И-С.03 Сетка арматурная С(С3,С4,С5,С6) 1-И-С.03 СБ Сетка арматурная С(С3,С4,С5,С6). Сборочный чертеж 1-И-С.04 Сетка арматурная С(С7,С8) 1-И-С.04 СБ Сетка арматурная С(С7,С8). Сборочный чертеж 1-И-С.05 Сетка арматурная С(С9,С10) 1-И-С.05 СБ Сетка арматурная С(С9,С10). Сборочный чертеж 1-И-С.06 Сетка арматурная С(С11,С15) 1-И-С.06 СБ Сетка арматурная С(С11,С15). Сборочный чертеж 1-И-С.07 Сетка арматурная С(С12,С16) 1-И-С.07 СБ Сетка арматурная С(С12,С16). Сборочный чертеж 1-И-С.08 Сетка арматурная С(С13,С17) 1-И-С.08 СБ Сетка арматурная С(С13,С17). Сборочный чертеж 1-И-С.09 Сетка арматурная С(С14,С18) 1-И-С.09 СБ Сетка арматурная С(С14,С18). Сборочный чертеж 1-И-С.10 Сетка арматурная С(С19) 1-И-С.11 Сетка арматурная С(С20) 1-И-С.12 Сетка арматурная С(С21,С22,С23) 1-И-С.12 СБ Сетка арматурная С(С21,С22,С23). Сборочный чертеж |
| Разработан: | Гипропромсельстрой |
| Утверждён: | 20.12.1984 Министерство сельского хозяйства СССР (USSR Ministry of Agriculture 105-ЭГ) |





































































































































