Скачать Типовой проект 705-1-199.86 Альбом I. Пояснительная записка. Технология производства. Архитектурно-строительные решения. Конструкции железобетонные. Силовое электрооборудование. Связь и сигнализацияДата актуализации: 01.01.2021
|
| Обозначение: | Типовой проект 705-1-199.86 |
| Обозначение англ: | 705-1-199.86 |
| Статус: | не определен законодательством |
| Название рус.: | Альбом I. Пояснительная записка. Технология производства. Архитектурно-строительные решения. Конструкции железобетонные. Силовое электрооборудование. Связь и сигнализация |
| Дата добавления в базу: | 01.09.2013 |
| Дата актуализации: | 01.01.2021 |
| Дата введения: | 16.04.1986 |
| Дата окончания срока действия: | 30.06.2003 |
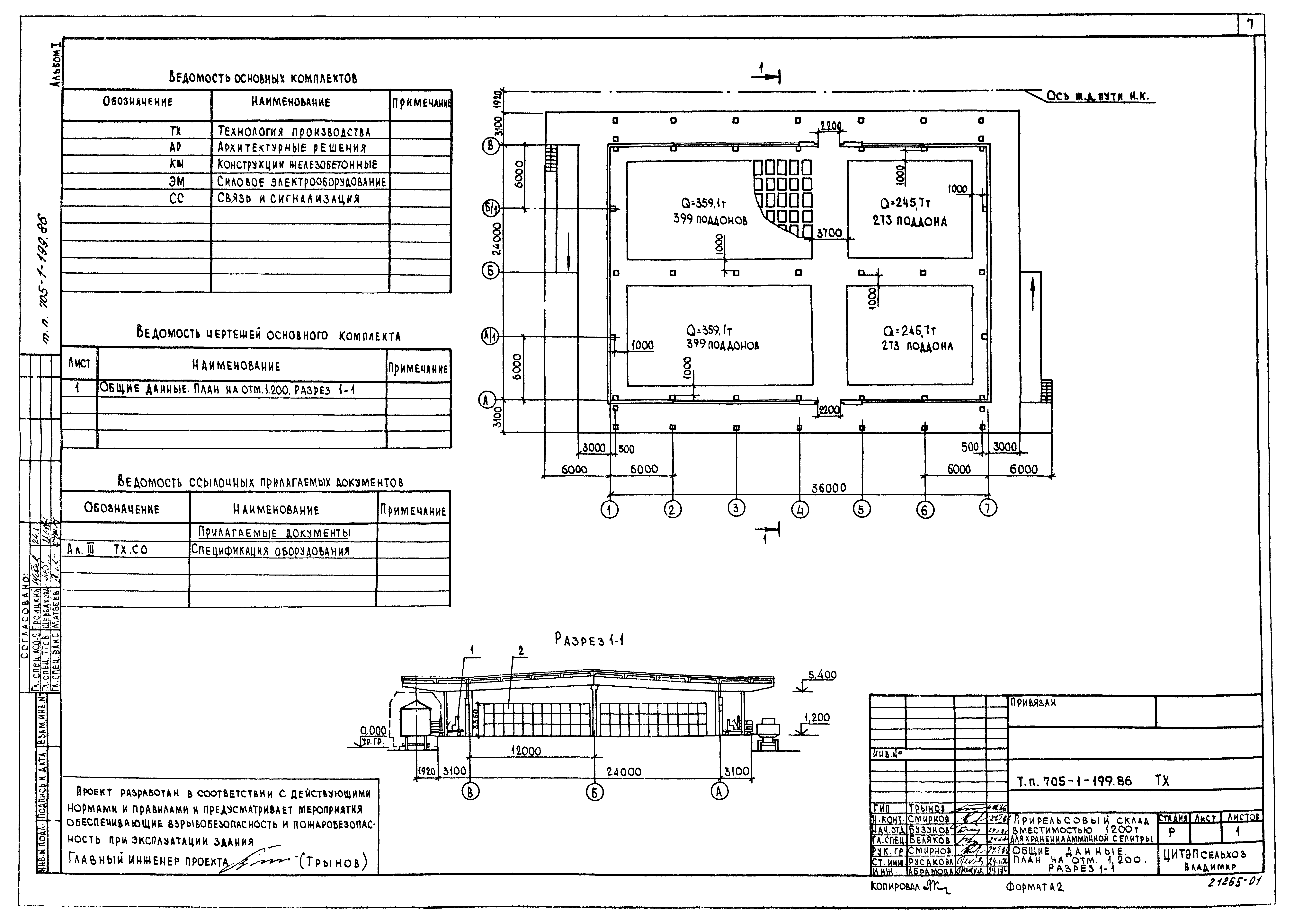
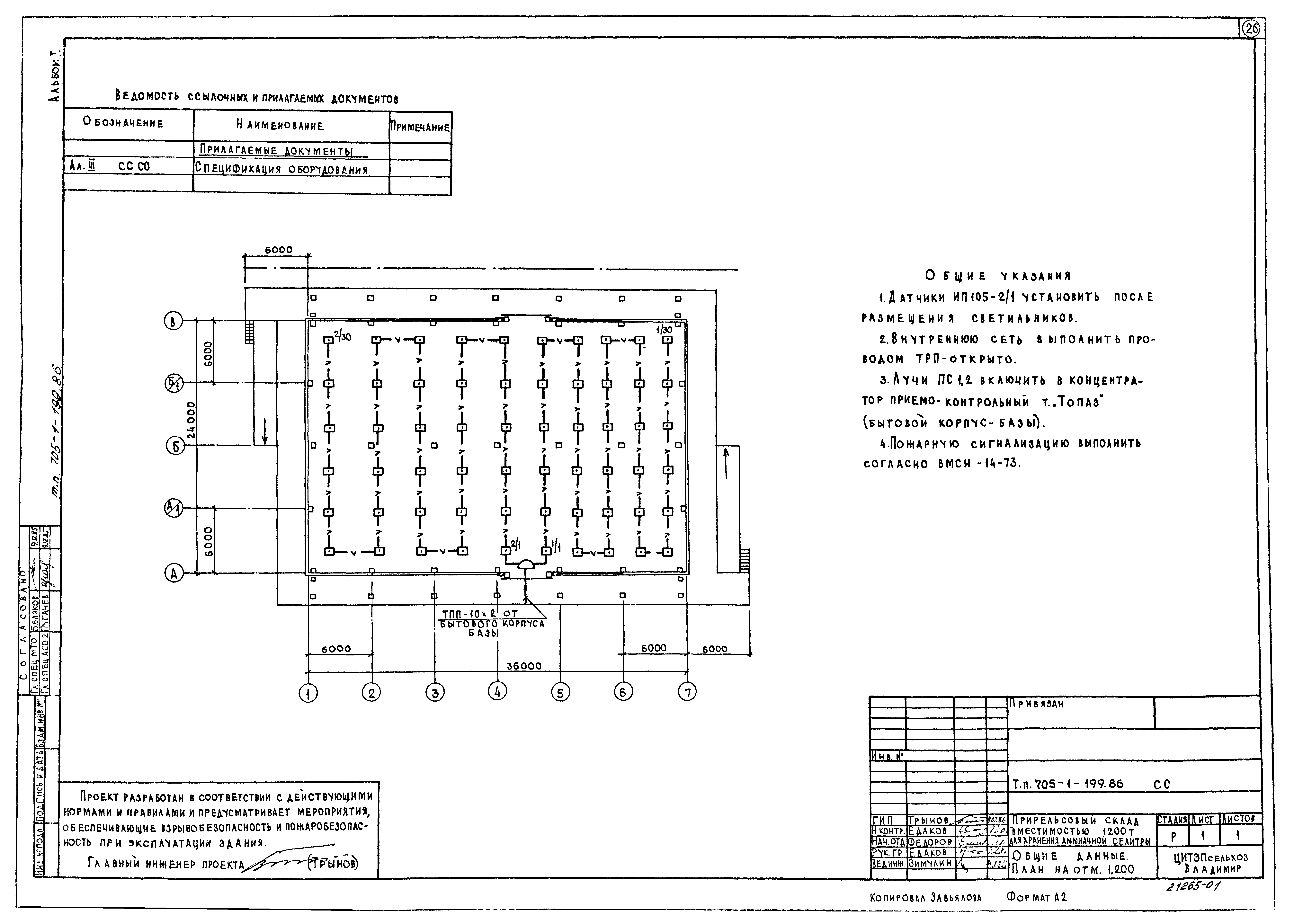
| Оглавление: | Содержание альбома ПЗ-1 Пояснительная записка ПЗ-2 Пояснительная записка ПЗ-3 Пояснительная записка ПЗ-4 Пояснительная записка ТХ-1 Общие данные. План на отм. 1.200. Разрез 1-1 АР-1 Общие данные АР-2 План на отм. 0.000. План полов АР-3 Разрезы 1-1-3-3. План кровли. Узлы 1-4 АР-4 Фасады. Схемы расположения элементов заполнения проема ОК1 и анкеров в проеме поз. 1 КЖ-1 Общие данные КЖ-2 Схема расположения фундаментов КЖ-3 Узлы 1-6 КЖ-4 Фундаменты ФМ1,ФМ2. Узлы 7-9 КЖ-5 Фундаменты ФМ3,ФМ4 КЖ-6 Схемы расположения элементов подпорных стен и плит рампы КЖ-7 Виды А-Д. Узлы 10,11 КЖ-8 Схема расположения колонн, балок. Узел 12 КЖ-9 Сечения 1-1-7-7. Узел 13 КЖ-10 Схема расположения плит покрытия КЖ-11 Схемы расположения стеновых панелей ЭМ-1 Общие данные ЭМ-2 Электрическое освещение. План на отм. 0.000 ЭМ.ВИ Ведомость изделий мастерских электромонтажных заготовок МЭЗ ЭМ.ВИМ Ведомость изделий и материалов для изготовления изделий МЭЗ ЭМ.ВР Ведомость объемов строительных и монтажных работ по чертежам СС-1 Общие данные. План на отм. 1.200 |
| Разработан: | ЦИТЭПсельхозпром |
| Утверждён: | 12.12.1985 Минсельхоз СССР (USSR Minselkhoz 110-ЭГ) |



























