Скачать Типовой проект 902-2-276с Альбом IV. Блок емкостей. Монолитный вариантДата актуализации: 01.01.2021
|
| Обозначение: | Типовой проект 902-2-276с |
| Обозначение англ: | 902-2-276с |
| Статус: | действует |
| Название рус.: | Альбом IV. Блок емкостей. Монолитный вариант |
| Дата добавления в базу: | 01.09.2013 |
| Дата актуализации: | 01.01.2021 |
| Дата введения: | 01.08.1976 |
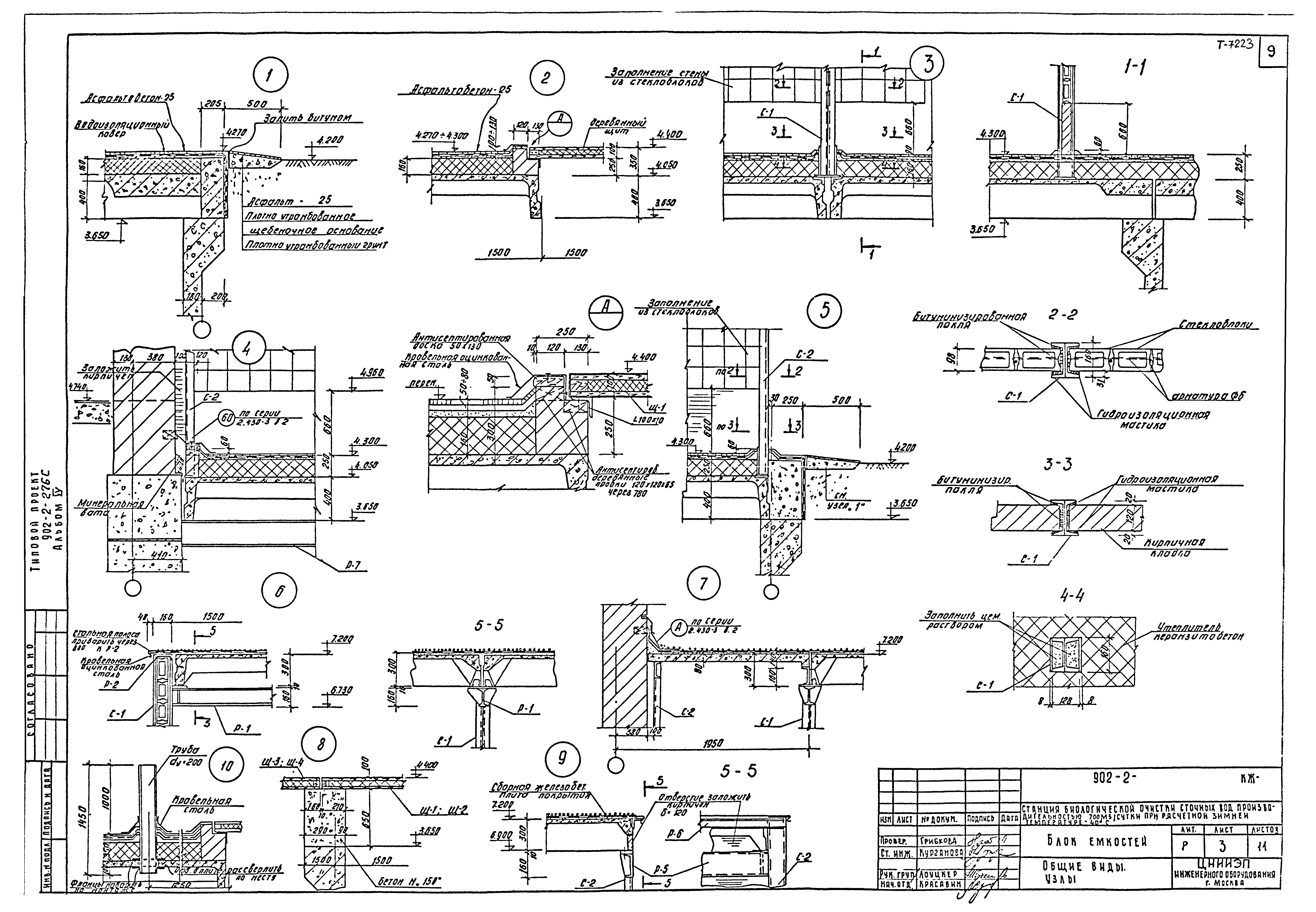
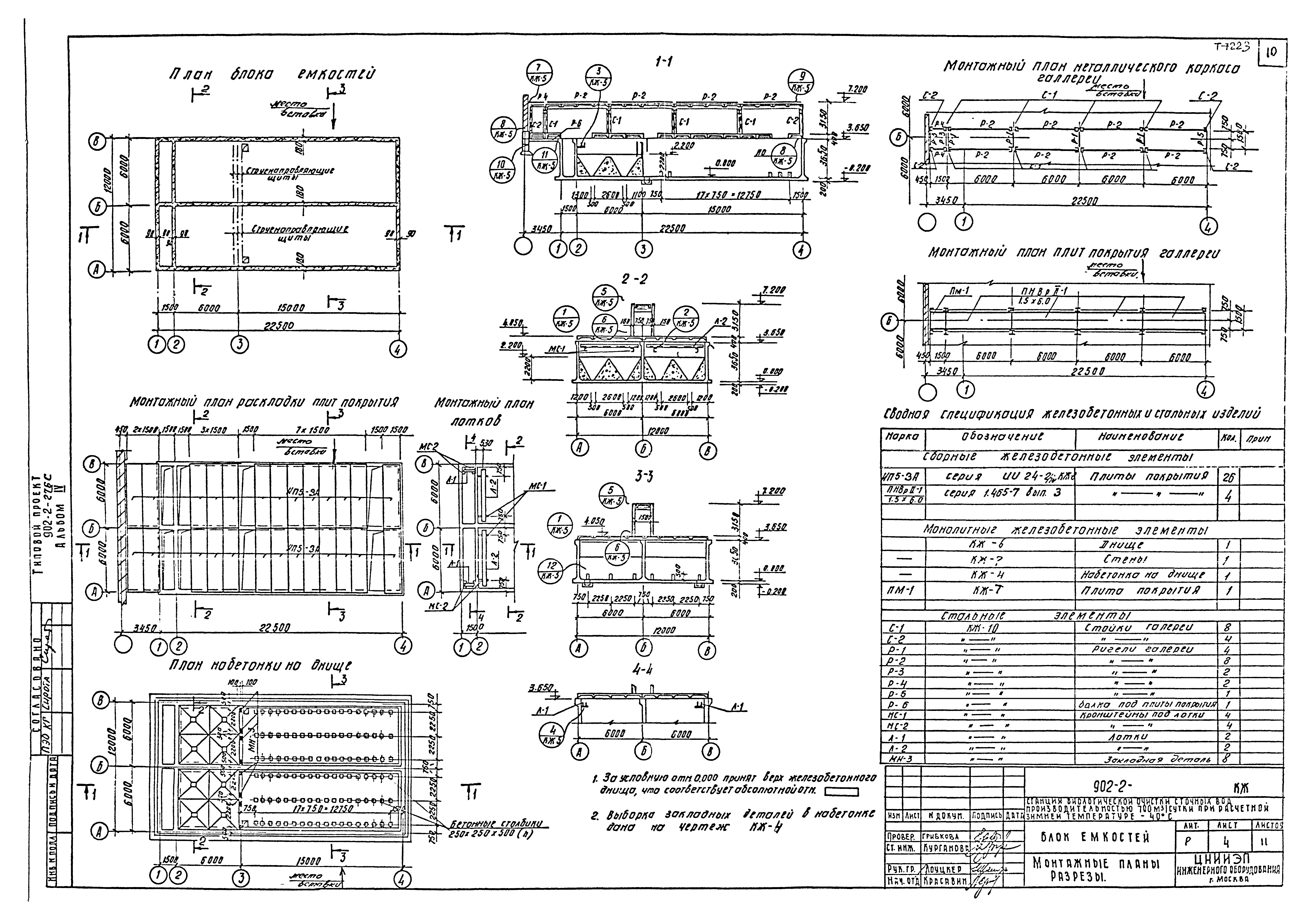
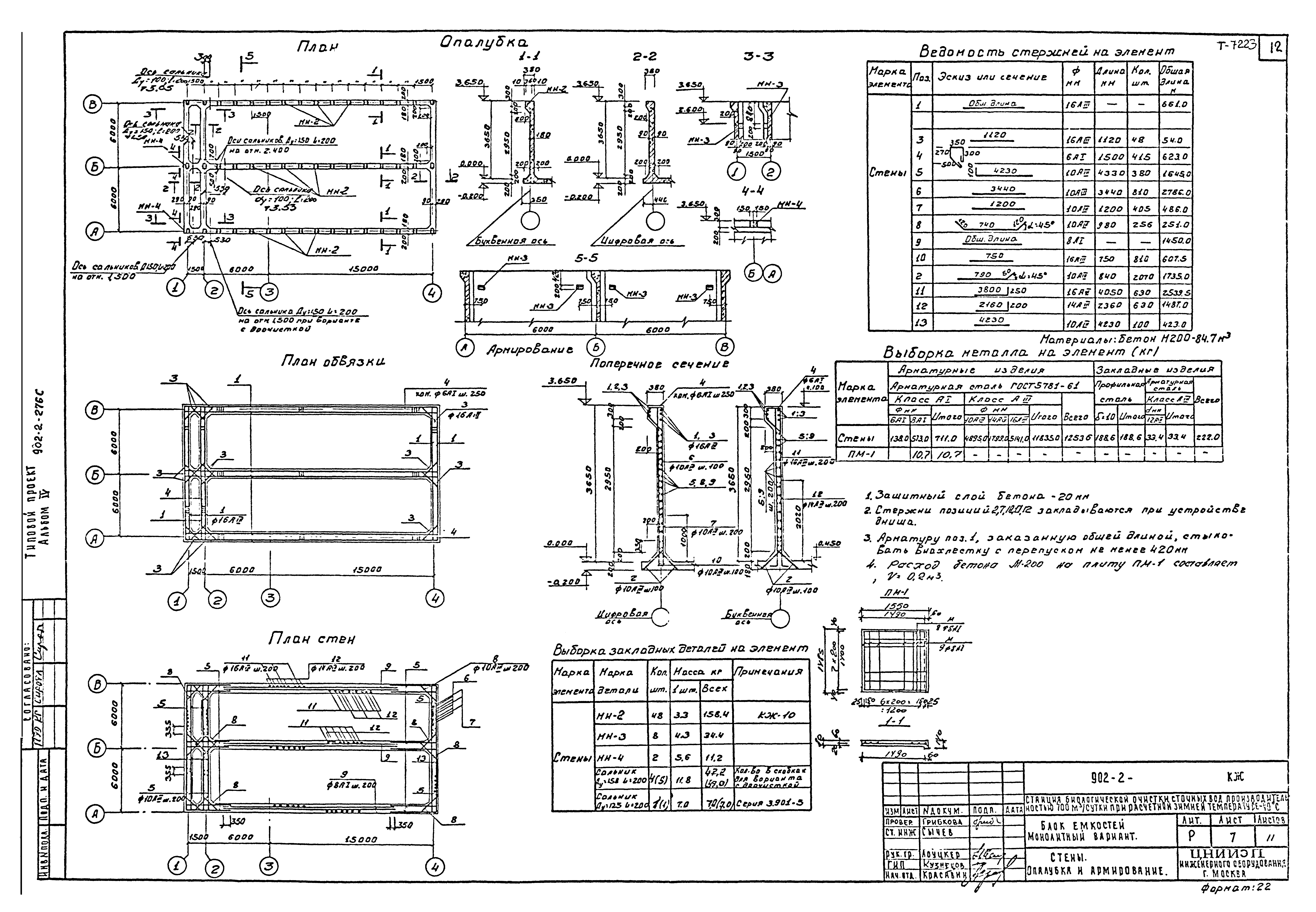
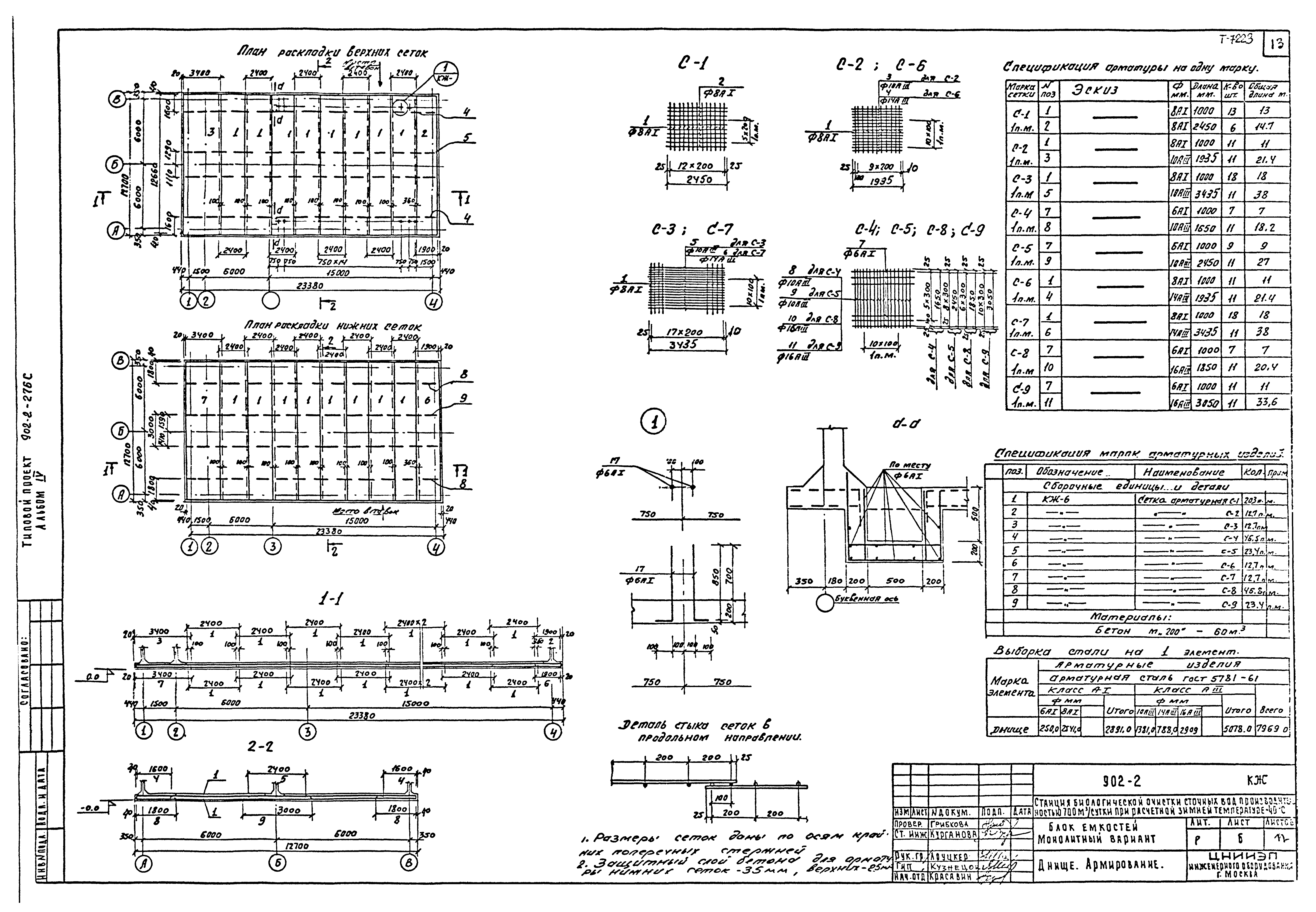
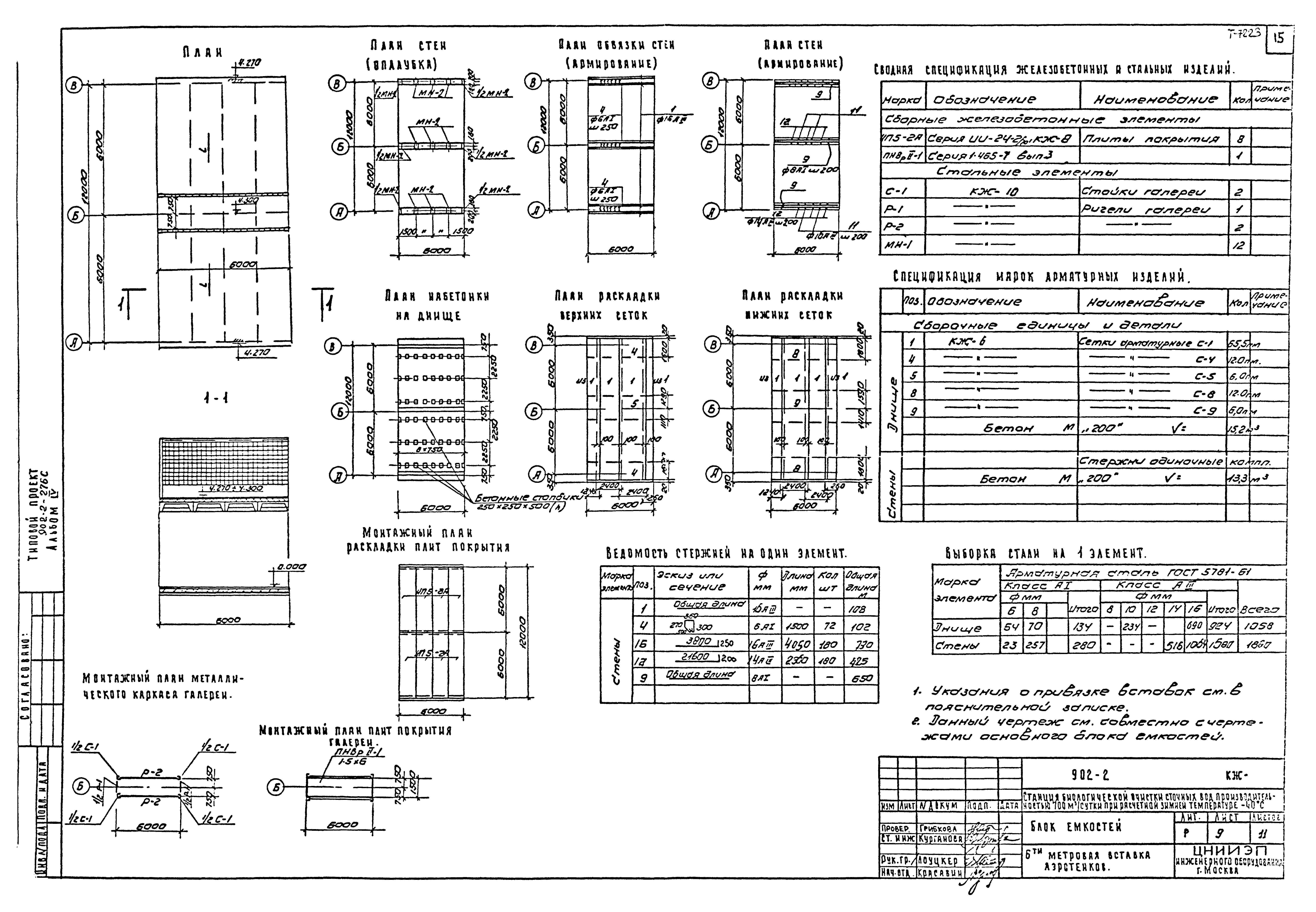
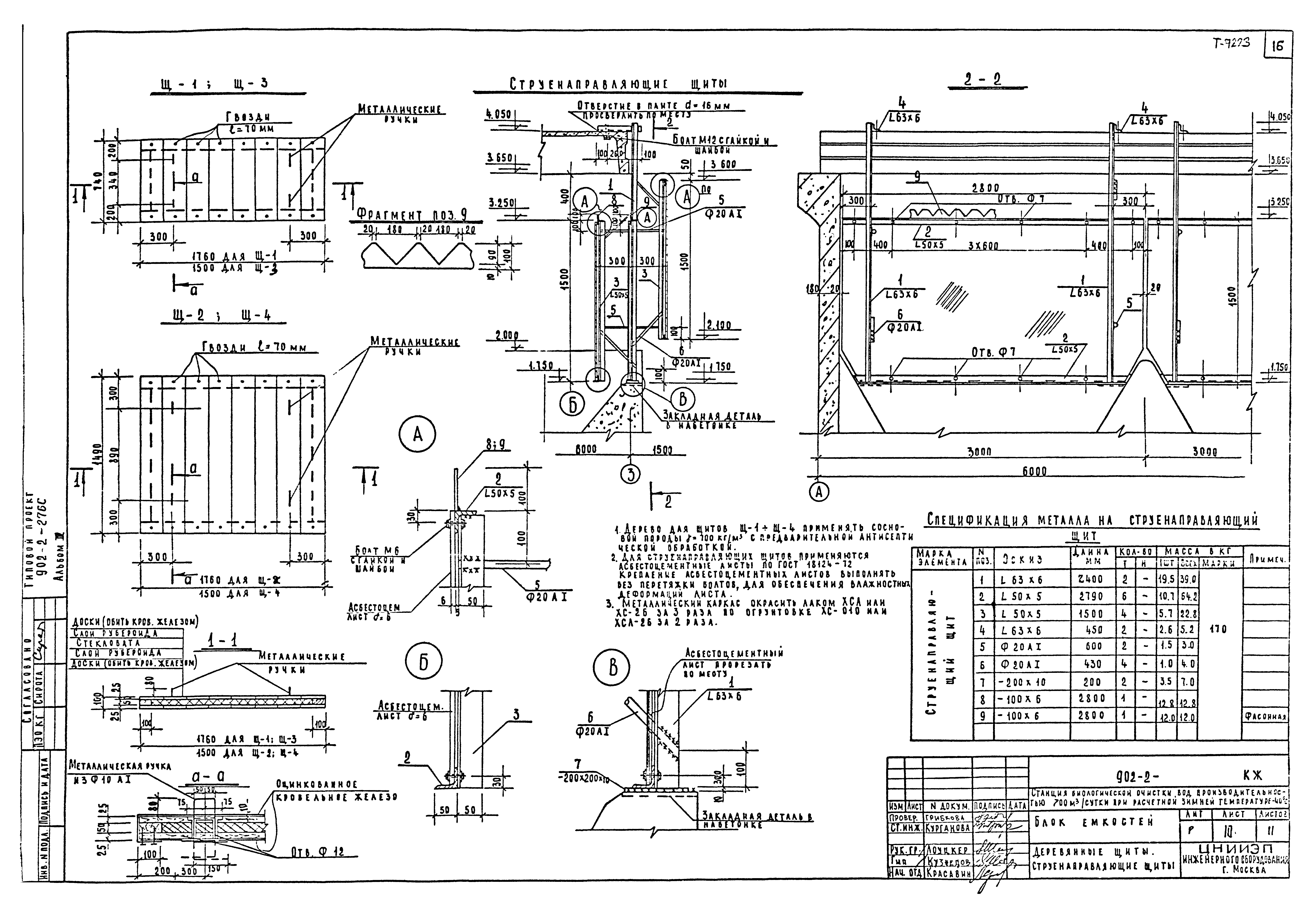
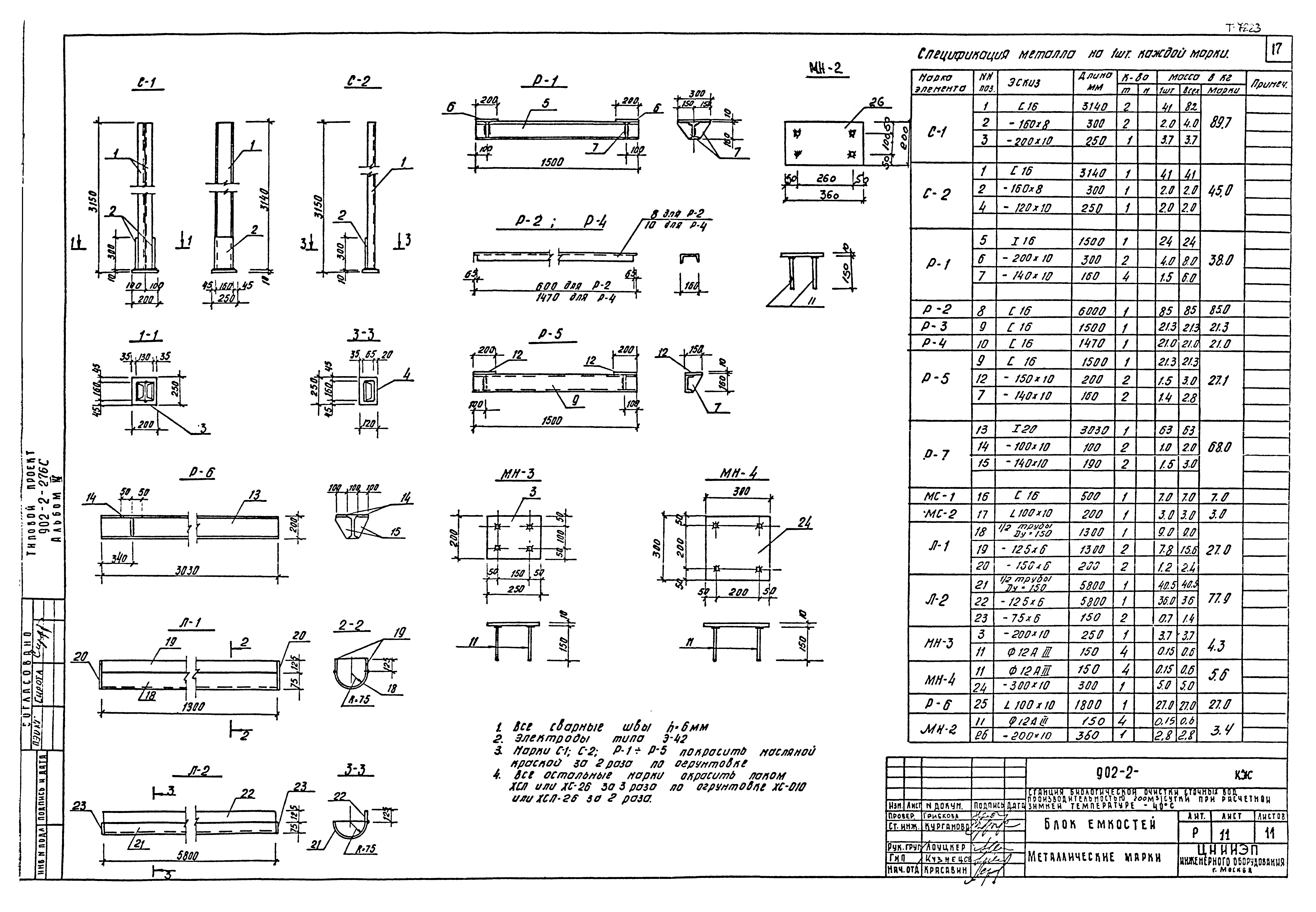
| Оглавление: | Технологические чертежи КГ-1 Заглавный лист КГ-2 Вариант без доочистки. Монтажный чертеж. План КГ-3 Разрез 1-1. Деталь зубчатого водослива. Деталь аэратора. Экспликация сооружений. Экспликация оборудования КГ-4 Разрезы 2-2,3-3. Деталь входа эрлифта в илопровод. Ведомость материалов КГ-5 Вариант доочистки. Монтажный чертеж. Элемент плана. Разрезы 1-1,2-2 Строительные чертежи КЖ-1 Заглавный лист КЖ-2 Общие виды. План. Разрезы КЖ-3 Общие виды. Узлы КЖ-4 Монтажные схемы. Планы. Разрезы КЖ-5 Монтажные схемы. Узлы КЖ-6 Днище. Армирование КЖ-7 Стены. Опалубка и армирование КЖ-8 Плита ИП5-3А. Опалубка КЖ-11 6ти метровая вставка аэротенков КЖ-9 Деревянные щиты. Струенаправляющие щиты КЖ-10 Металлические марки Чертежи нестандартизированного оборудования 466.00.000.80 Эрлифт. Чертеж общего вида Электротехнические чертежи АК-1 Электрическое освещение. План |
| Разработан: | ЦНИИЭП |
| Утверждён: | 27.05.1975 Госгражданстрой (Gosgrazhdanstroy 116) |


















