Скачать Типовой проект 902-2-380.84 Альбом I. Технологическая частьДата актуализации: 01.01.2021
|
| Обозначение: | Типовой проект 902-2-380.84 |
| Обозначение англ: | 902-2-380.84 |
| Статус: | не действует |
| Название рус.: | Альбом I. Технологическая часть |
| Дата добавления в базу: | 01.09.2013 |
| Дата актуализации: | 01.01.2021 |
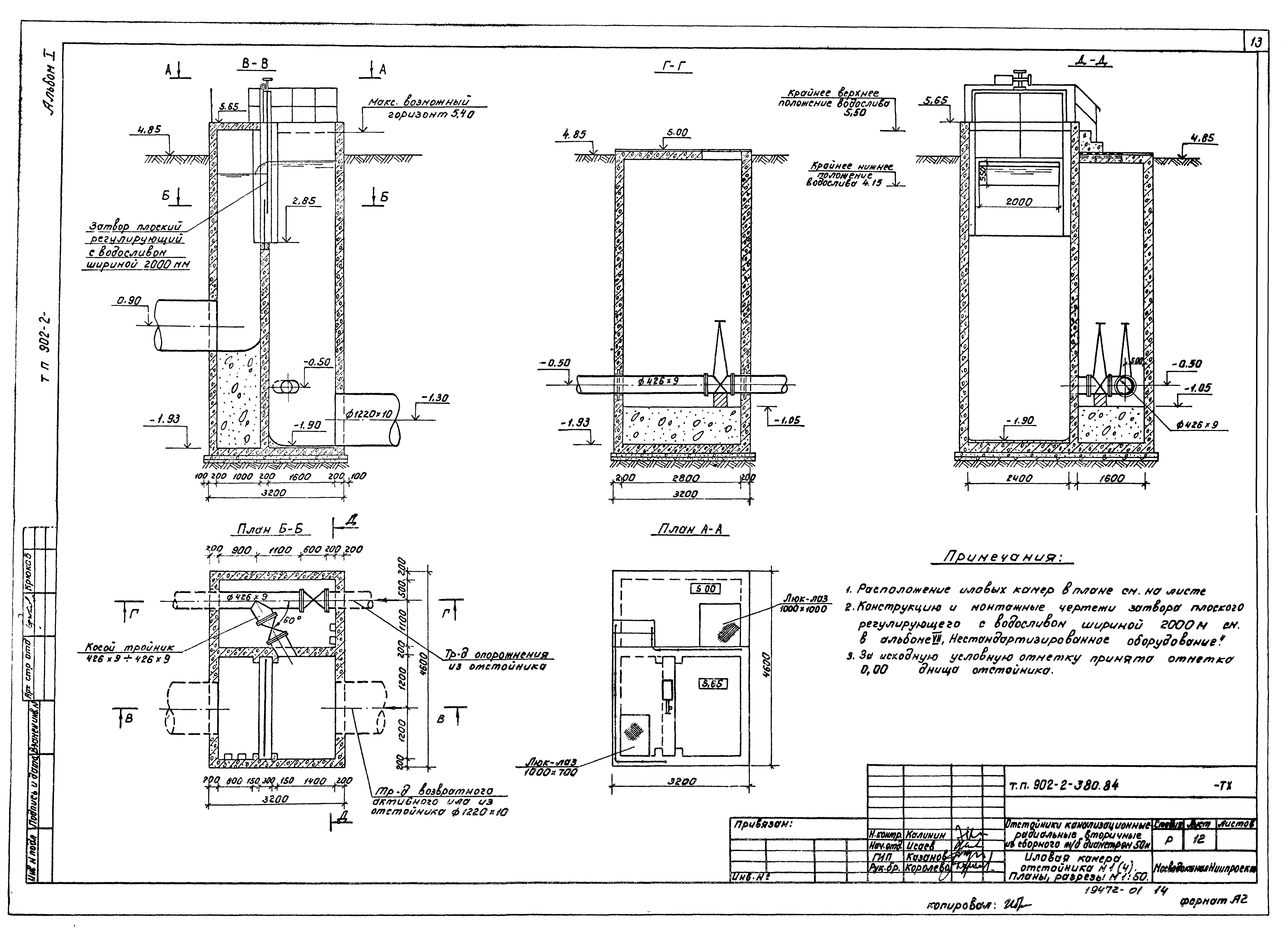
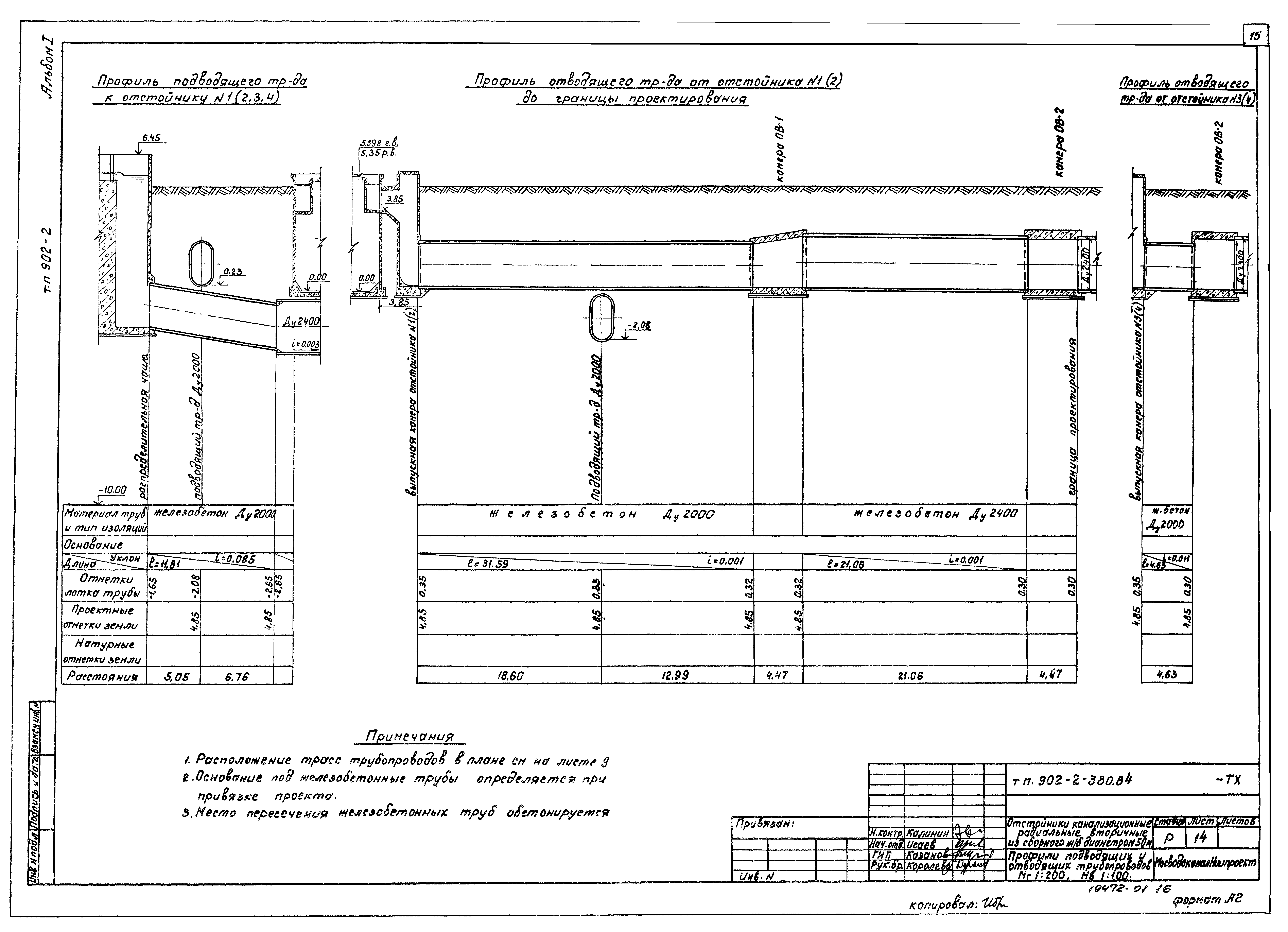
| Оглавление: | Общие данные План группы отстойников М1:400 Отстойник № 1 М1:200 Распределительная чаша. Планы, разрезы М1:100 Иловая камера отстойника № 1(№ 4). Планы, разрезы М1:50 Иловая камера отстойника № 2(№ 3). Планы, разрезы М1:50 Профили подводящих и отводящих трубопроводов Профили трубопроводов опорожнения Профили трубопроводов возвратного активного ила |
| Разработан: | МосводоканалНИИпроект |
| Утверждён: | 20.12.1983 МосводоканалНИИпроект (312) |

















