Скачать Типовой проект 902-2-380.84 Альбом VII. Нестандартизированное оборудование. Затворы щитовые, установка сигнализатора уровня осадка и фасонные частиДата актуализации: 01.01.2021
|
| Обозначение: | Типовой проект 902-2-380.84 |
| Обозначение англ: | 902-2-380.84 |
| Статус: | не действует |
| Название рус.: | Альбом VII. Нестандартизированное оборудование. Затворы щитовые, установка сигнализатора уровня осадка и фасонные части |
| Дата добавления в базу: | 01.09.2013 |
| Дата актуализации: | 01.01.2021 |
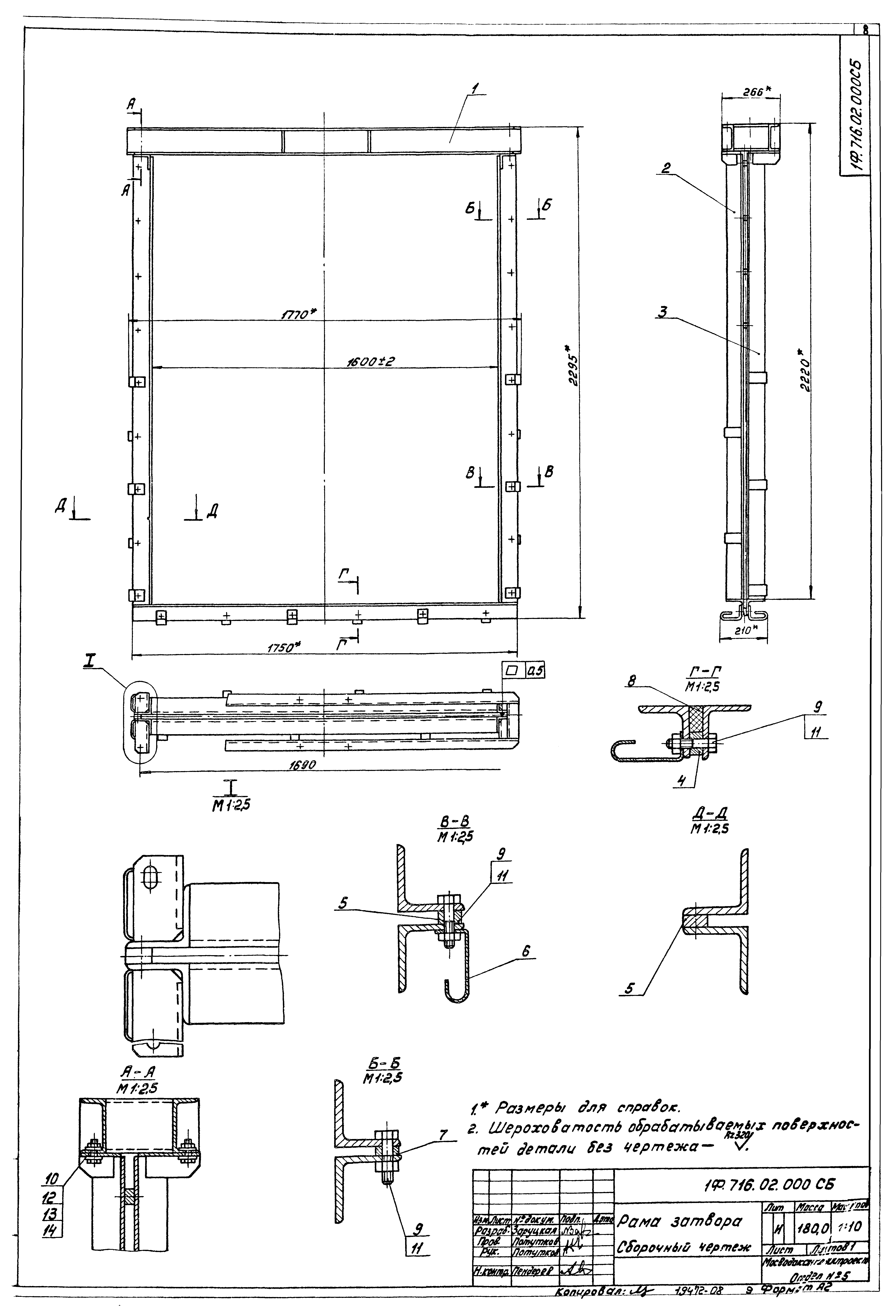
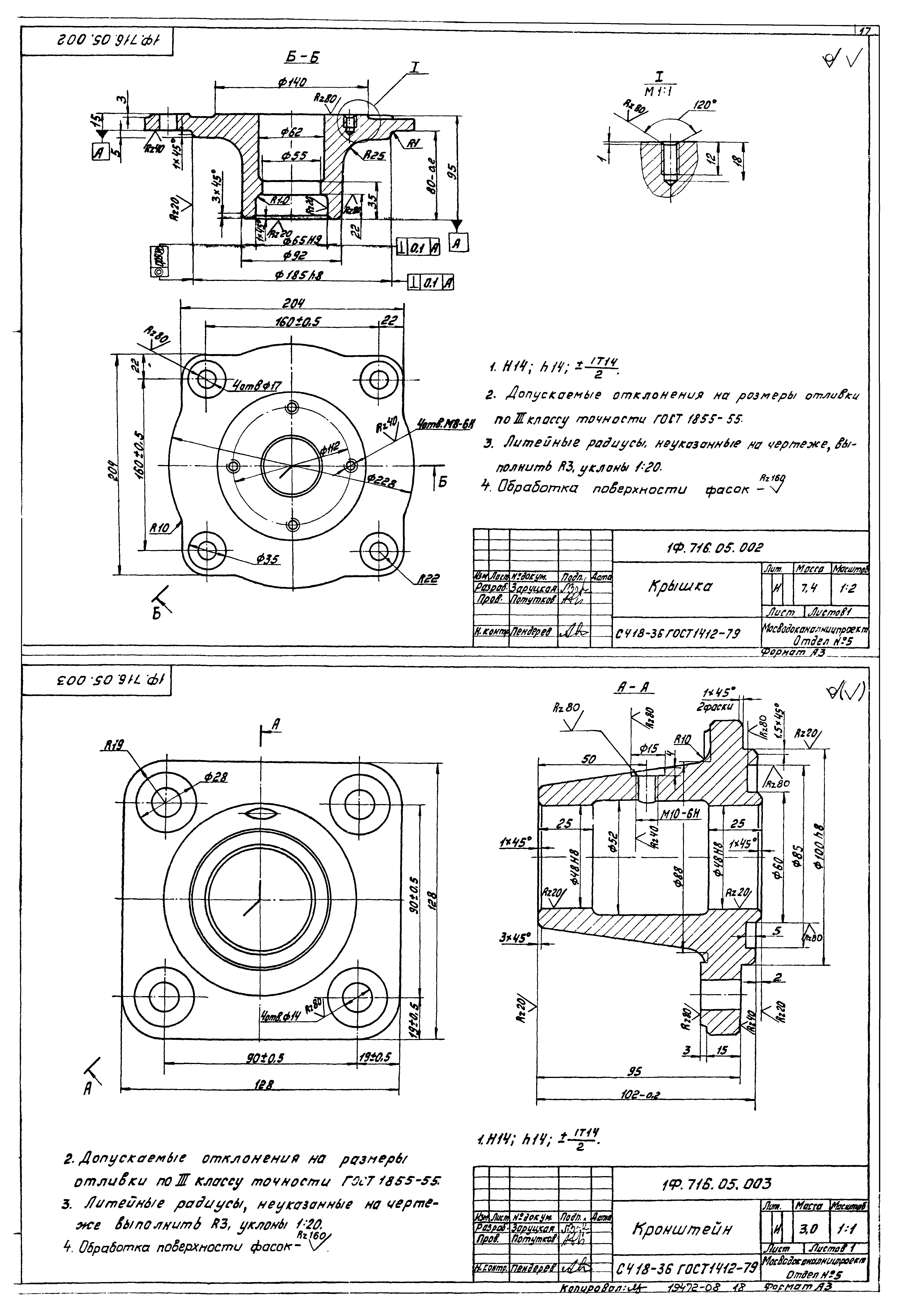
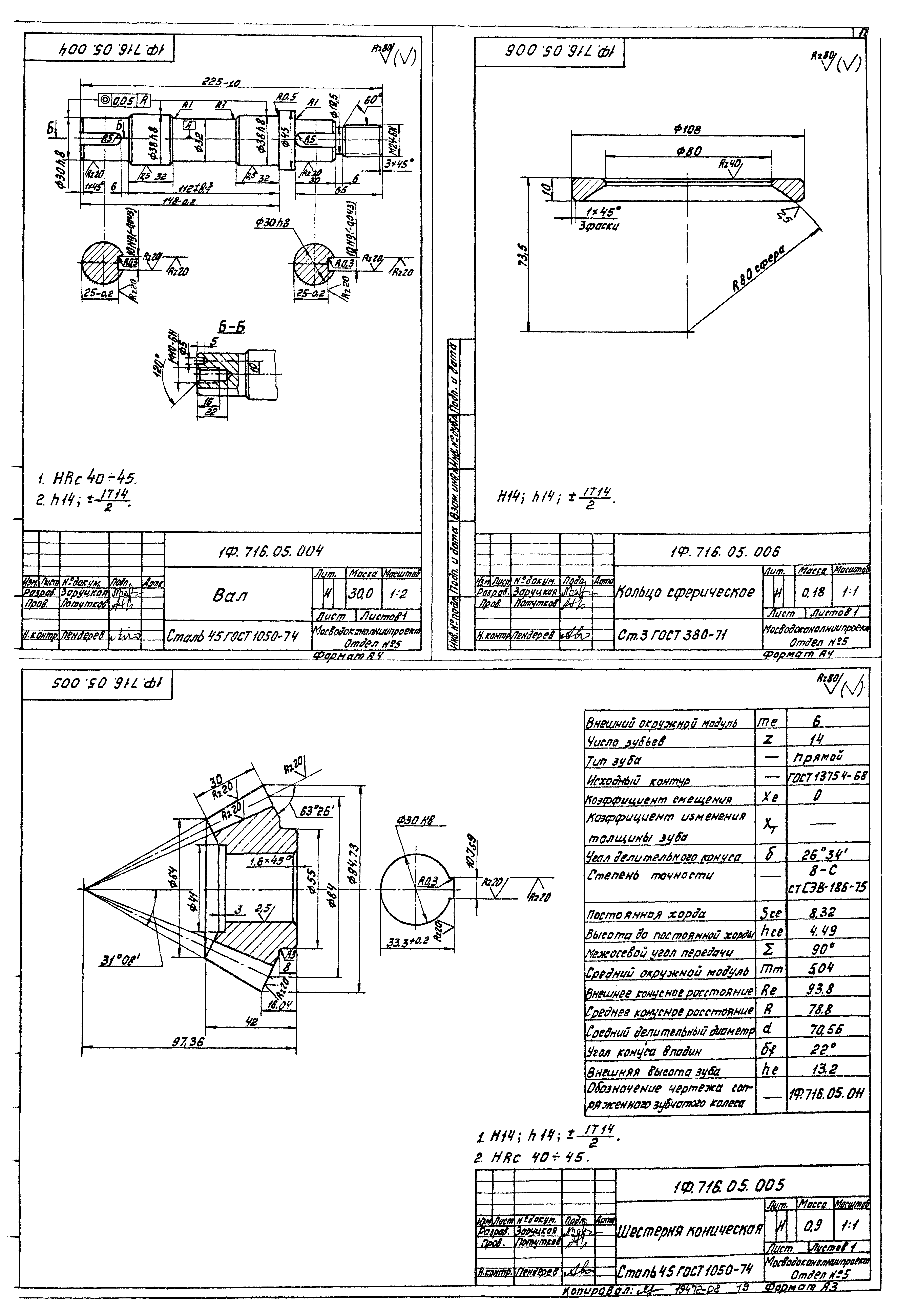
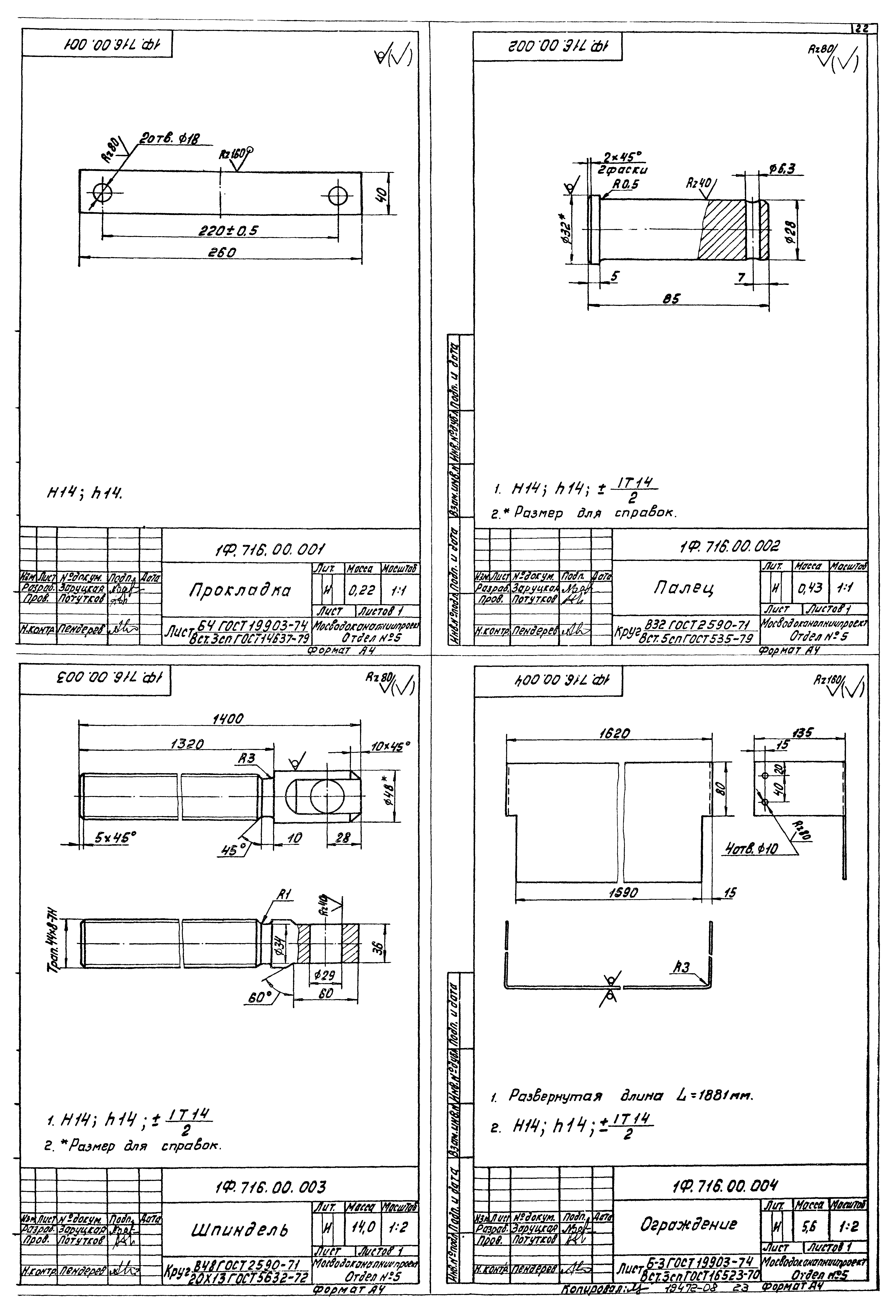
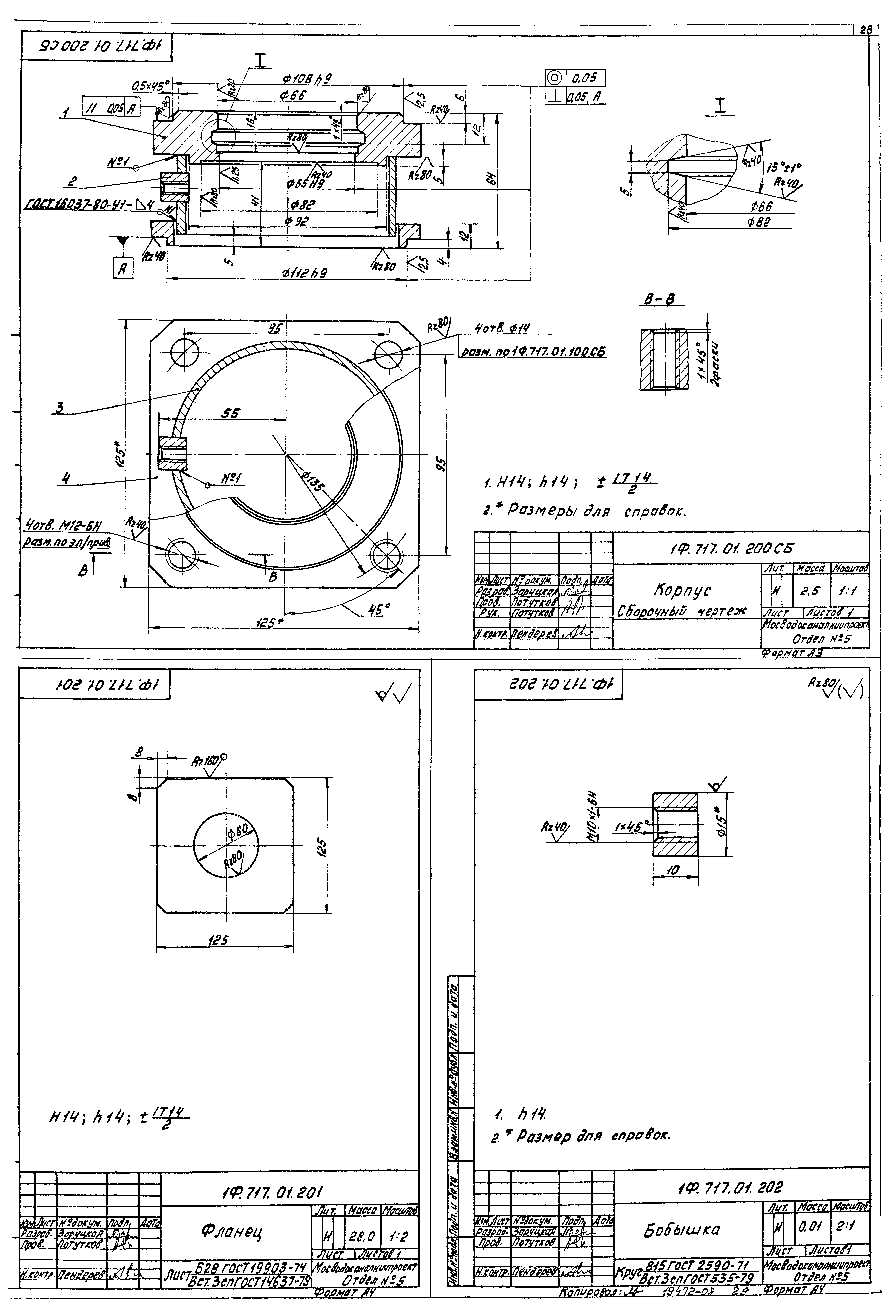
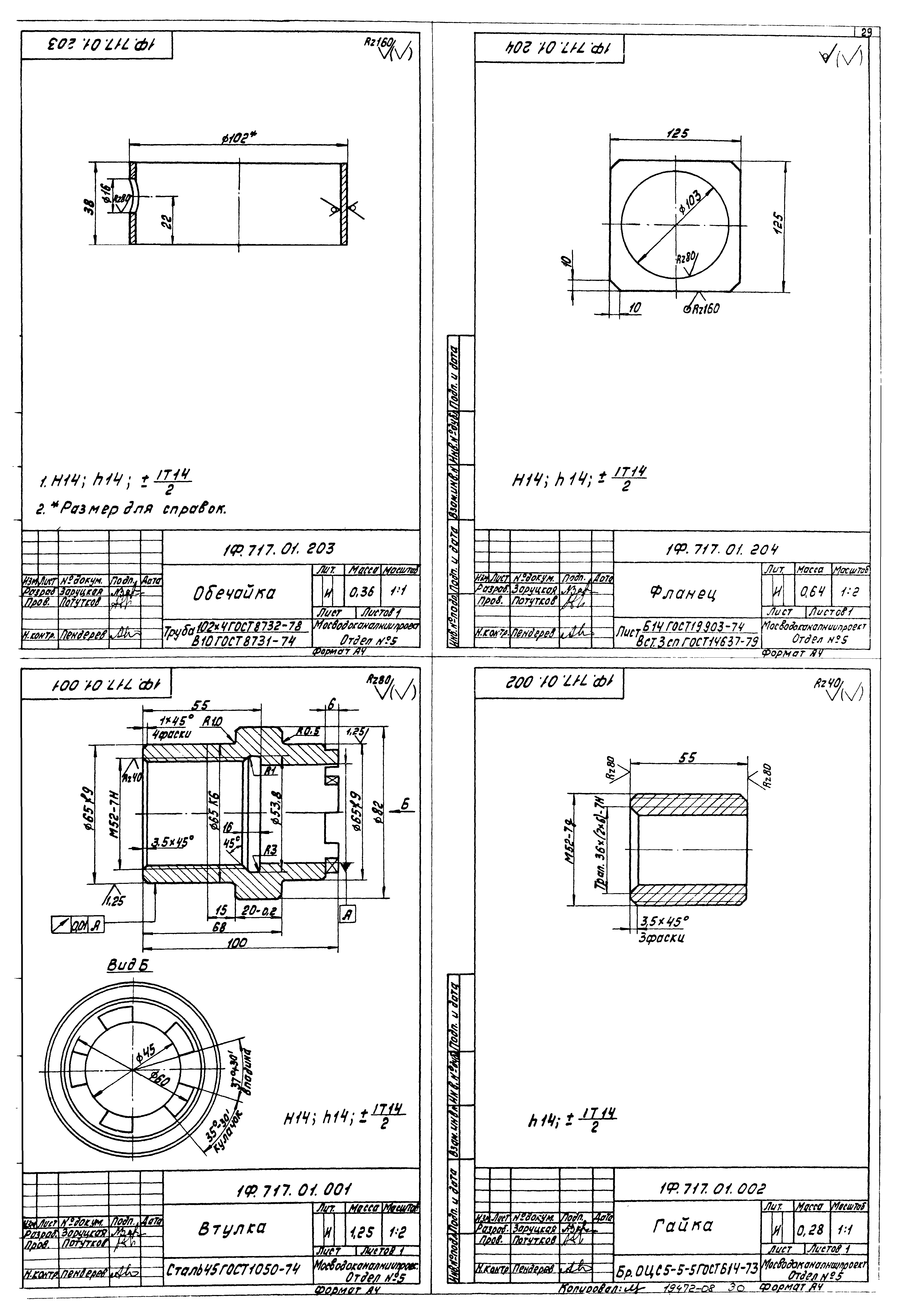
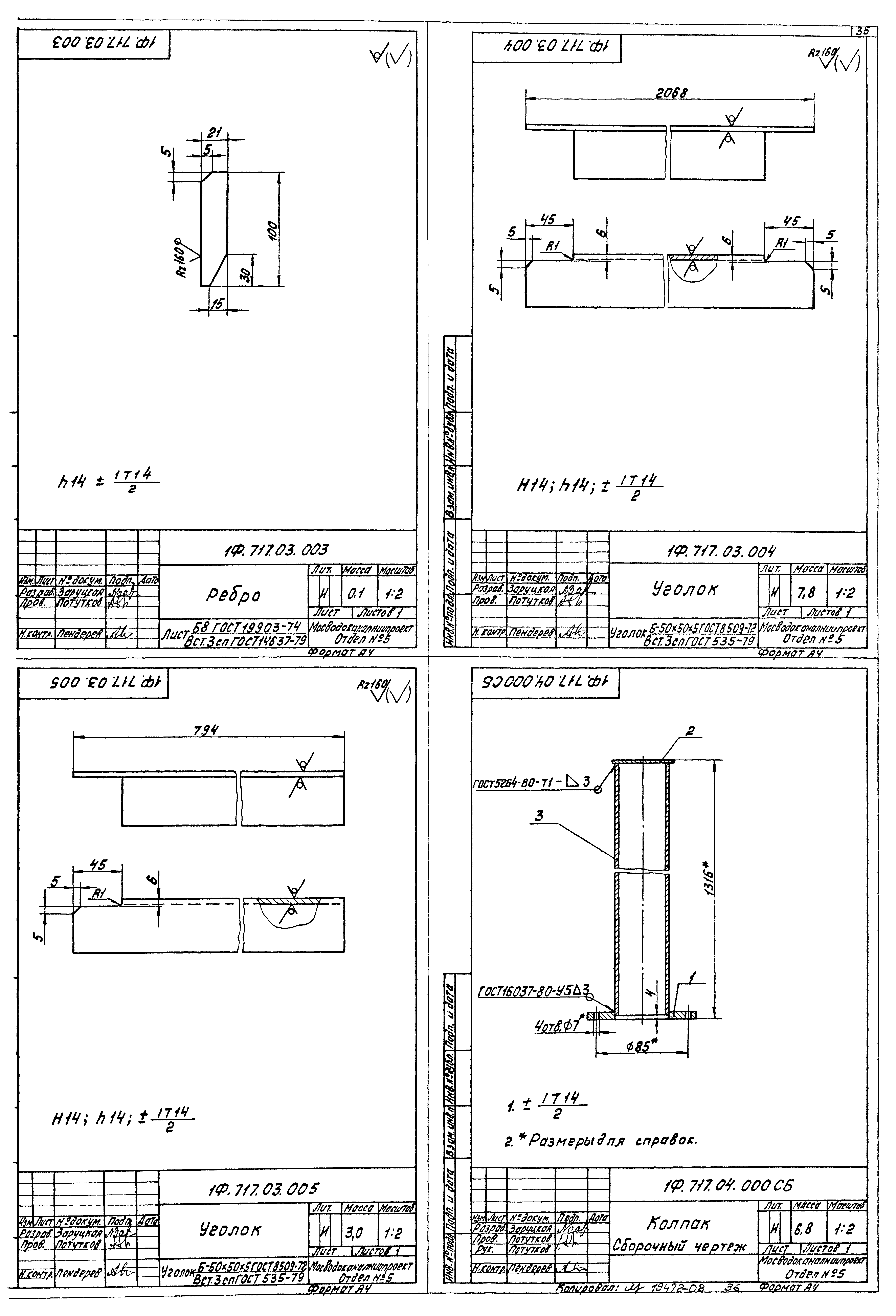
| Оглавление: | Титульный лист Содержание альбома 1Ф.716.00.000 МЧ Затвор плоский поверхностный 1600х1100. Лист 1-2 1Ф.716.00.000 Затвор плоский поверхностный 1600х1100. Спецификация. Лист 1-2 1Ф.716.01.000 СБ Щит в сборе 1Ф.716.01.000 Щит в сборе. Спецификация 1Ф.716.01.100 Металлоконструкция. Спецификация 1Ф.716.01.100 СБ Металлоконструкция 1Ф.716.01.101 Ушко 1Ф.716.01.102 Уголок 1Ф.716.01.103 Лист 1Ф.716.01.104 Упор 1Ф.716.01.001 Накладка 1Ф.716.01.002 Уплотнение 1Ф.716.02.000 СБ Рама затвора 1Ф.716.02.000 Рама затвора. Спецификация. Лист 1-2 1Ф.716.02.100 СБ Рама верхняя 1Ф.716.02.100 Рама верхняя. Спецификация 1Ф.716.02.101 Ребро 1Ф.716.02.200 СБ Рама 1Ф.716.02.200-01 СБ Рама 1Ф.716.02.200 Рама. Спецификация. Лист 1-2 1Ф.716.02.203 Кронштейн 1Ф.716.02.203-01 Кронштейн 1Ф.716.02.204 Кронштейн 1Ф.716.02.204-01 Кронштейн 1Ф.716.02.001 Полоса 1Ф.716.02.002 Полоса 1Ф.716.02.003 Анкер 1Ф.716.02.004 Втулка 1Ф.716.03.000 СБ Маховик в сборе 1Ф.716.03.000 Маховик в сборе. Спецификация 1Ф.716.03.002 Ручка 1Ф.716.03.001 Маховик 1Ф.716.04.000 СБ Колпак 1Ф.716.04.000 Колпак. Спецификация 1Ф.716.04.001 Фланец 1Ф.716.05.000 Головка штанговая. Спецификация. Лист 1-2 1Ф.716.05.001 Втулка 1Ф.716.05.000 СБ Головка штанговая 1Ф.716.05.002 Крышка 1Ф.716.05.003 Кронштейн 1Ф.716.05.004 Вал 1Ф.716.05.005 Шестерня коническая 1Ф.716.05.006 Кольцо сферическая 1Ф.716.05.007 Гайка 1Ф.716.05.009 Кольцо сферическое 1Ф.716.05.011 Колесо коническое 1Ф.716.05.008 Корпус 1Ф.716.05.012 Втулка 1Ф.716.05.013 Планка стопорная 1Ф.716.05.014 Шайба 1Ф.716.05.015 Втулка 1Ф.716.00.001 Прокладка 1Ф.716.00.002 Палец 1Ф.716.00.003 Шпиндель 1Ф.716.00.004 Ограждение 1Ф.717.00.000 МЧ Затвор плоский регулирующий с водосливом шириной 2000 мм. Лист 1-2 1Ф.717.00.000 Затвор плоский регулирующий с водосливом шириной 2000 мм. Спецификация. Лист 1-2 1Ф.717.01.000 СБ Подпятник 1Ф.717.01.000 Подпятник. Спецификация. Лист 1-2 1Ф.717.01.100 СБ Основание 1Ф.717.01.100 Основание. Спецификация 1Ф.717.01.101 Накладка 1Ф.717.01.102 Плита 1Ф.717.01.200 Корпус. Спецификация 1Ф.717.01.200 СБ Корпус 1Ф.717.01.201 Фланец 1Ф.717.01.202 Бобышка 1Ф.717.01.203 Обечайка 1Ф.717.01.204 Фланец 1Ф.717.01.001 Втулка 1Ф.717.01.002 Гайка 1Ф.717.01.003 Кольцо 1Ф.717.02.000 Рама затвора. Спецификация. Лист 1-2 1Ф.717.02.100 Рама. Спецификация 1Ф.717.02.000 СБ Рама затвора 1Ф.717.02.100 СБ Рама 1Ф.717.02.101 Лист 1Ф.717.02.102 Анкер 1Ф.717.02.001 Втулка 1Ф.717.02.002 Анкер 1Ф.717.02.003 Полоса 1Ф.717.02.004 Втулка 1Ф.717.02.005 Уголок 1Ф.717.03.000 Щит с водосливом. Спецификация 1Ф.717.03.000 СБ Щит с водосливом. 1Ф.717.03.001 Лист 1Ф.717.03.002 Ушко 1Ф.717.03.003 Ребро 1Ф.717.03.004 Уголок 1Ф.717.03.005 Уголок 1Ф.717.04.000 СБ Колпак 1Ф.717.04.000 Колпак. Спецификация 1Ф.717.04.001 Фланец 1Ф.717.00.001 Штанга винтовая 1Ф.717.00.002 Ось 3Р.81.000 МЧ Установка сигнализатора уровня осадка 3Р.81.000 Установка сигнализатора уровня осадка. Спецификация 3Р.81.100 СБ Корпус 3Р.81.100 Корпус. Спецификация 3Р.81.101 Труба 3Р.81.102 Конус 3Р.81.103 Пруток 3Р.81.200 СБ Скоба закладная 3Р.81.200 Скоба закладная. Спецификация 3Р.81.201 Упор 3Р.81.202 Шпилька 3Р.81.203 Скоба 3Р.81.300 СБ Прижим 3Р.81.300 Прижим. Спецификация 3Р.81.301 Полоса 3Р.81.001 Пластина опорная 9К.94.000 СБ Люк-лаз Ду600 9К.94.000 Люк-лаз Ду600. Спецификация 9К.94.100 Патрубок закладной 9К.94.101 Фланец 9К.94.001 Заглушка 6С.70.33 Патрубок 4220х10 6С.53.131.000 Тройник косой ø426х9-ø426х9 6С.53.131.001 Патрубок 6С.53.131.002 Труба |
| Разработан: | МосводоканалНИИпроект |
| Утверждён: | 20.12.1983 МосводоканалНИИпроект (312) |











































