Скачать Типовой проект 902-3-60.87 Альбом II. Технологическая, санитарно-техническая части. Архитектурно-строительные решения. Конструкции железобетонные и металлическиеДата актуализации: 01.01.2021
|
| Обозначение: | Типовой проект 902-3-60.87 |
| Обозначение англ: | 902-3-60.87 |
| Статус: | не определен законодательством |
| Название рус.: | Альбом II. Технологическая, санитарно-техническая части. Архитектурно-строительные решения. Конструкции железобетонные и металлические |
| Дата добавления в базу: | 01.09.2013 |
| Дата актуализации: | 01.01.2021 |
| Дата введения: | 01.06.1987 |
| Дата окончания срока действия: | 30.06.2003 |
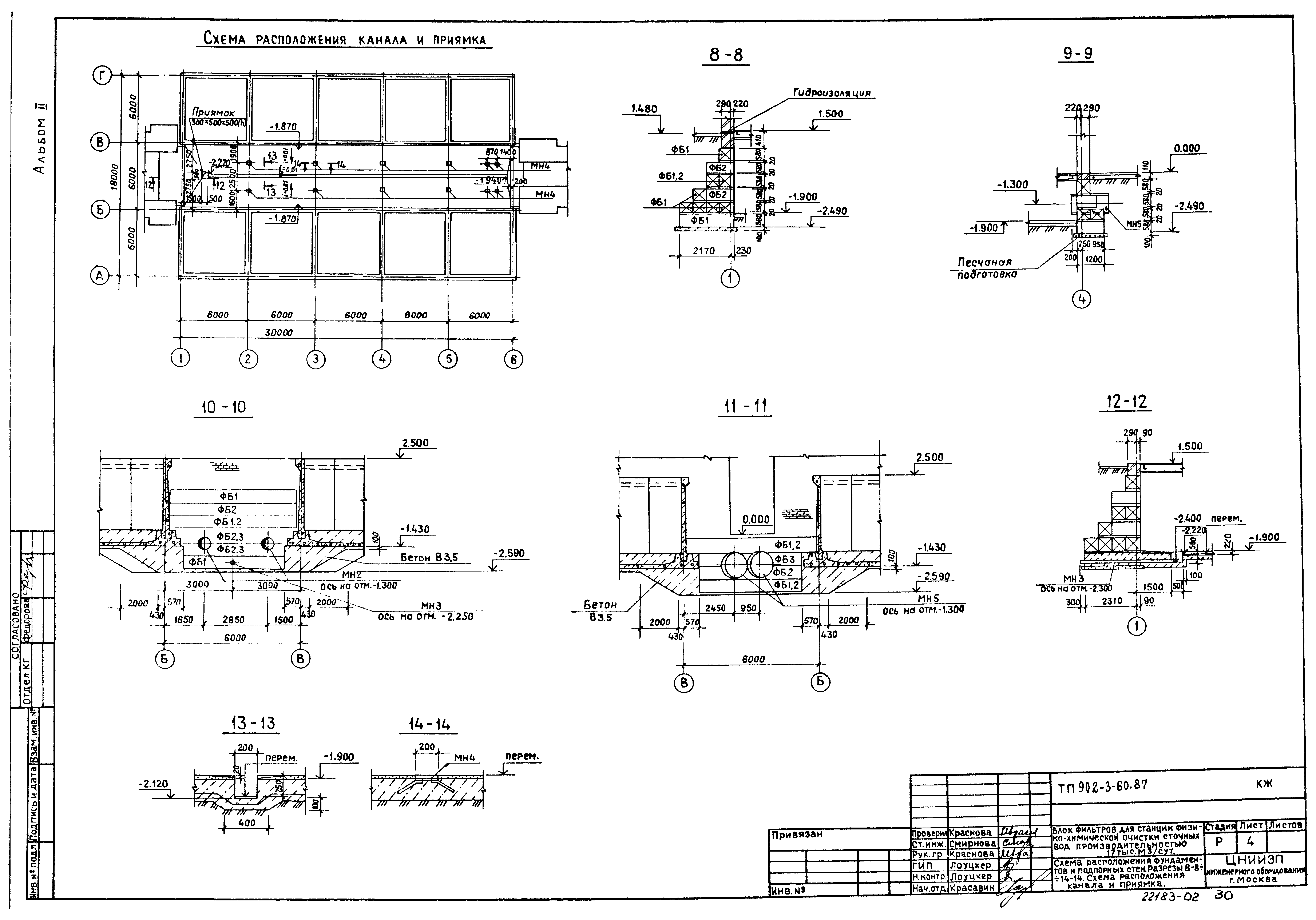
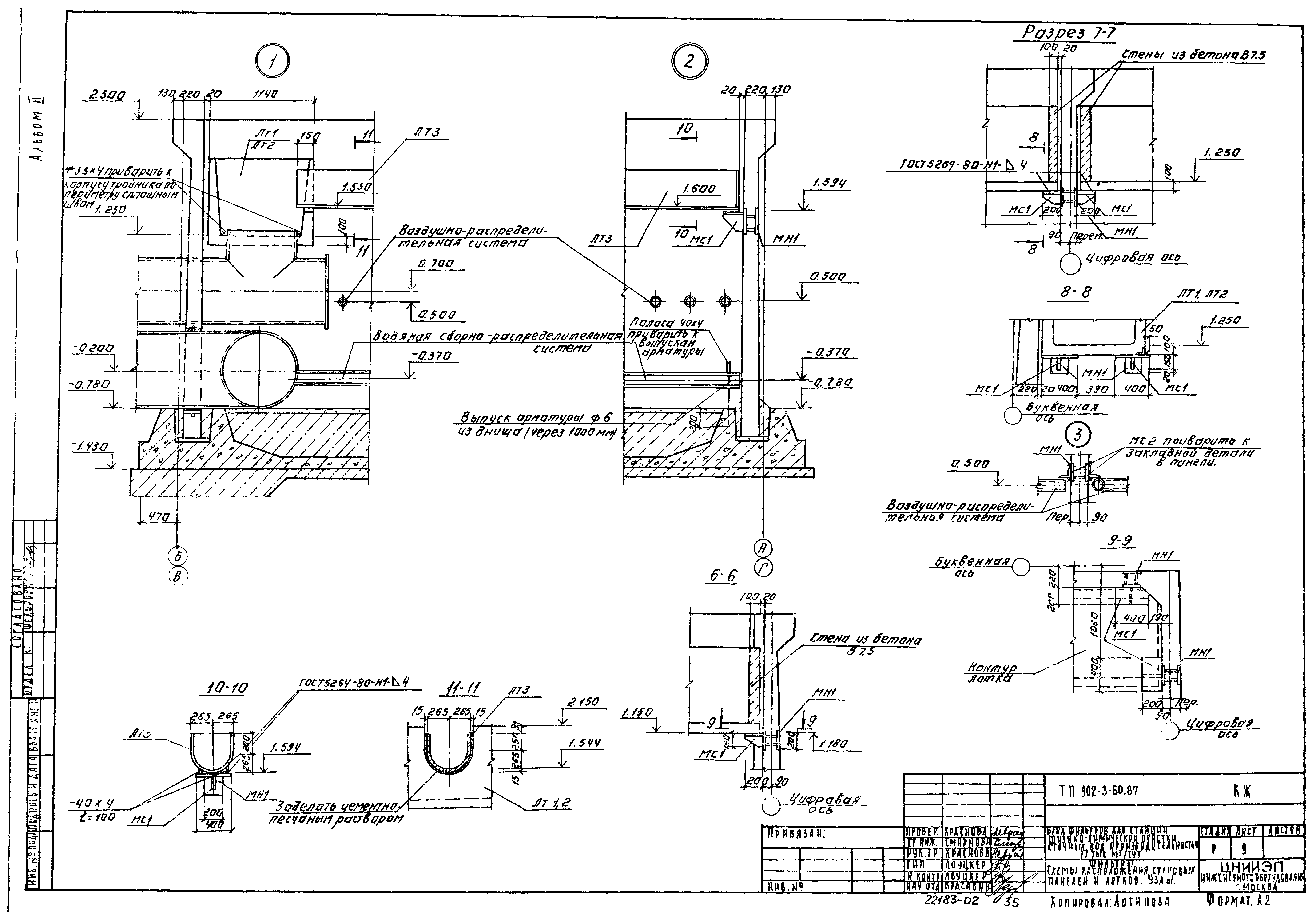
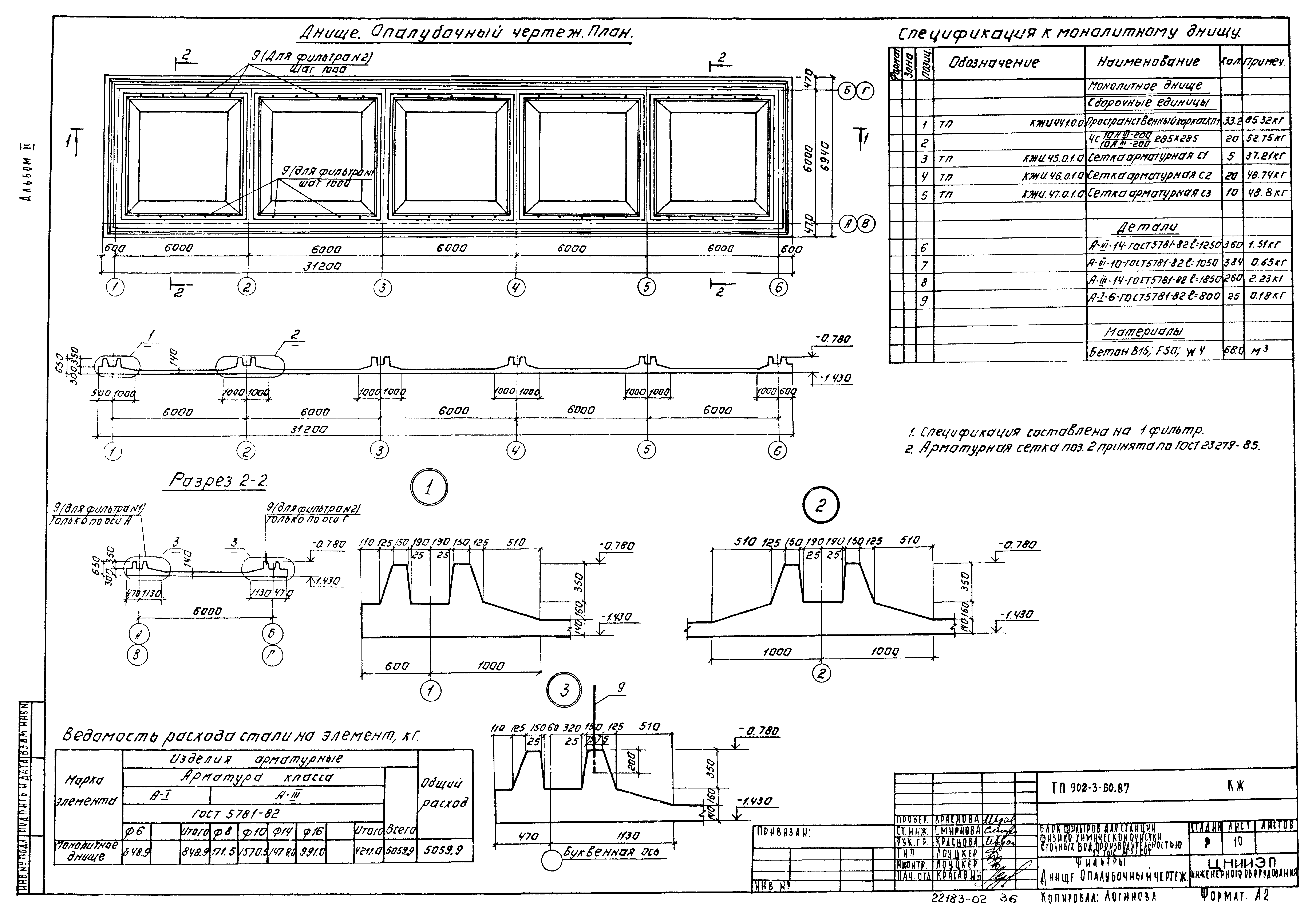
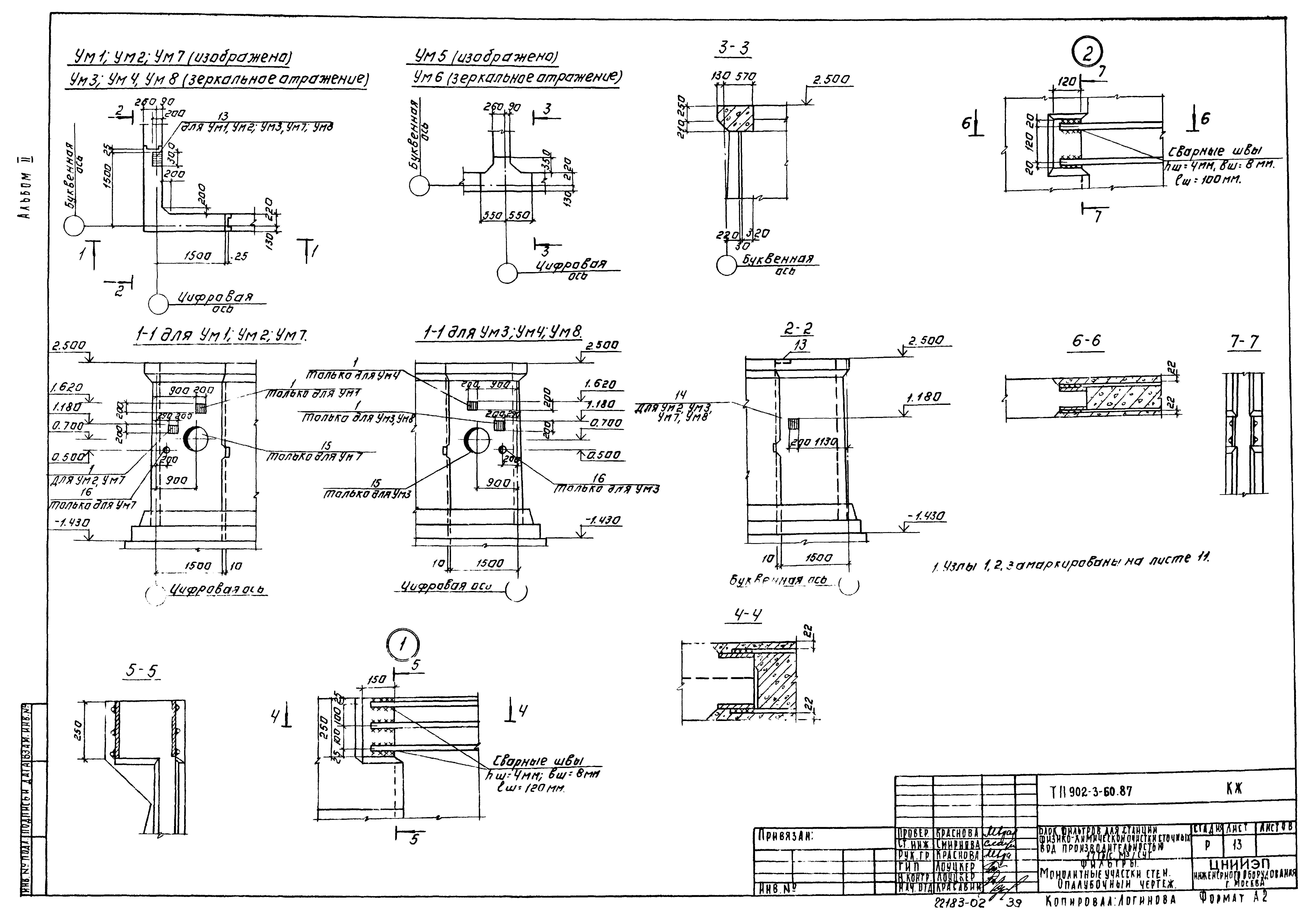
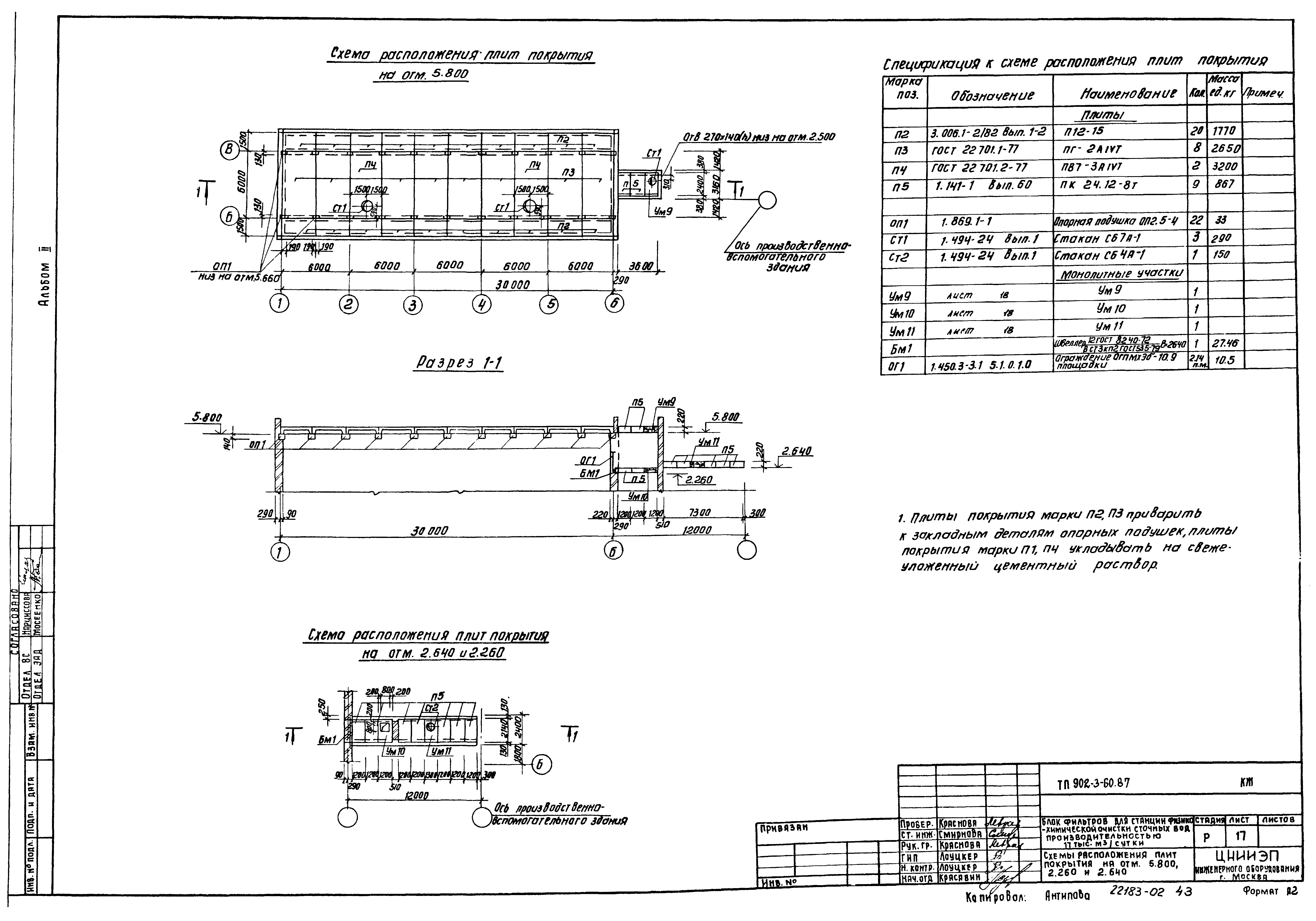
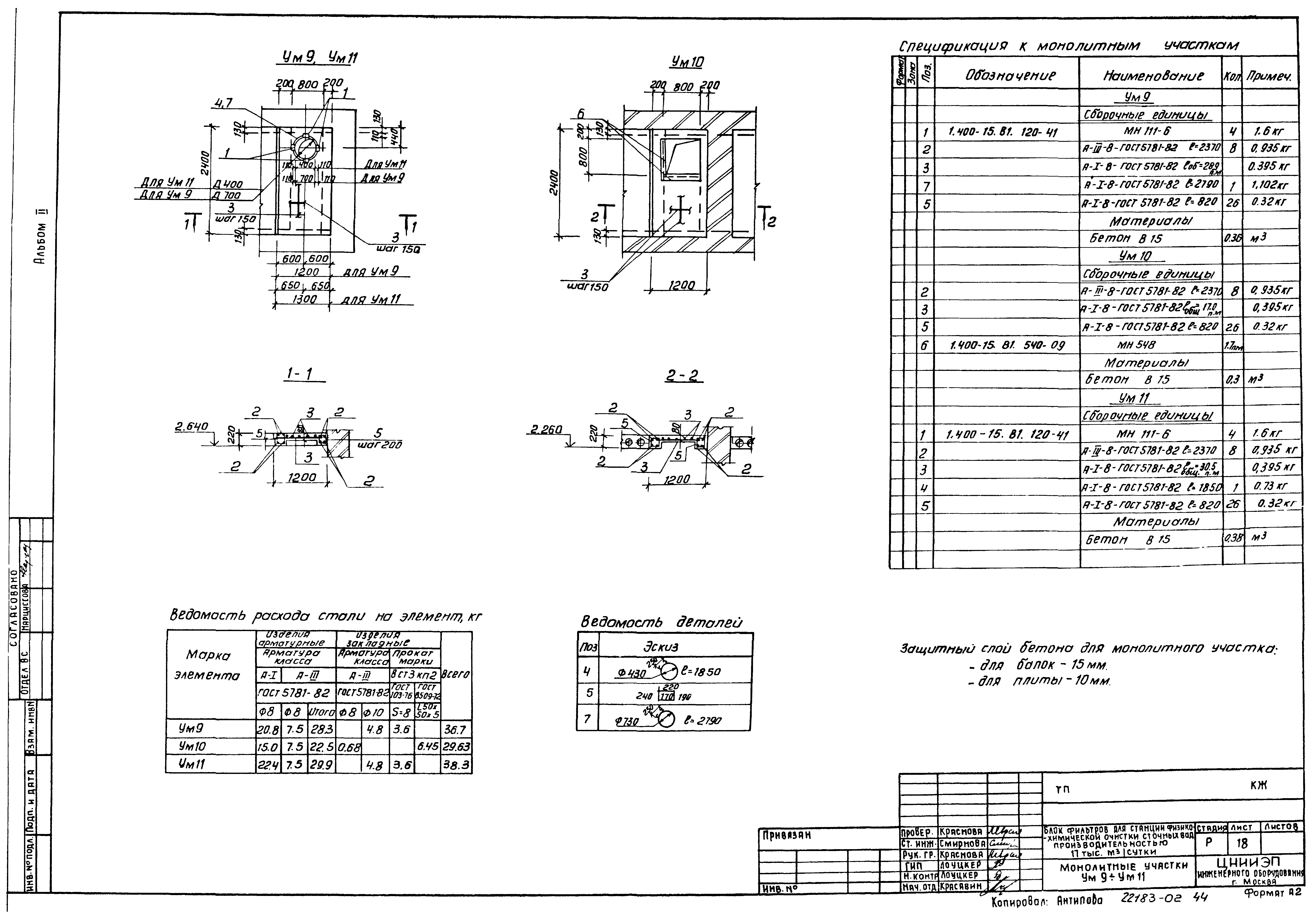
| Оглавление: | Содержание альбома Технологическая часть ТХ-1 Общие данные ТХ-2 План ТХ-3 Вид А-А. Вид Б-Б ТХ-4 Вид В-В ТХ-5 Разрез 1-1. Узлы ТХ-6 Разрезы 2-2,3-3 ТХ-7 Разрез 4-4 ТХ-8 Разрезы 5-5,6-6. Узел 1 ТХ-9 Аксонометрические схемы трубопроводов М2,М4 ТХ-10 Аксонометрические схемы трубопроводов М7,М8 ТХ-11 Аксонометрические схемы трубопроводов АО,П2 Отопление и вентиляция ОВ-1 Общие данные ОВ-2 План на отм. -1.900 и 0.0000. План на отм. 1.500 и 2.500 ОВ-3 Схема отопления. Схемы систем В1,ВЕ1,ВЕ2,ВЕ3 ОВ-4 Установка системы В1 ОВН-1 Конструкция тепловой изоляции Архитектурные решения АР-1 Общие данные АР-2 План на отм. -1.900 и 0.000 АР-3 План на отм. -1.500 и 2.500. Экспликация помещений АР-4 Разрезы 1-1,2-2 АР-5 Фасады 1-4,4-1,А-Г,Г-А АР-6 Фрагмент 1. Детали АР-7 План и экспликация полов. Ведомости. Спецификации Конструкции железобетонные КЖ-1 Общие данные КЖ-2 Схема расположения фундаментов подпорных стен КЖ-3 Схема расположения фундаментов подпорных стен. Разрезы 1-1 - 7-7 КЖ-4 Схема расположения фундаментов подпорных стен. Разрезы 8-8 - 14-14. Схема расположения канала и приямка КЖ-5 Фильтры. Схемы расположения стеновых панелей КЖ-6 Фильтры. Схемы расположения лотков КЖ-7 Фильтры. Схемы расположения стеновых панелей и лотков. Разрез 1-1,2-2. Вид 3-3 КЖ-8 Фильтры. Схемы расположения стеновых панелей и лотков. Вид 4-4. Разрез 5-5. Спецификация КЖ-9 Фильтры. Схемы расположения стеновых лотков. Узлы КЖ-10 Фильтры. Днище. Опалубочный чертеж КЖ-11 Фильтры. Днище. Армирование. Схемы расположения верхних и нижних сеток КЖ-12 Фильтры. Днище. Армирование. Разрезы. Узлы КЖ-13 Фильтры. Монолитные участки стен. Опалубочный чертеж КЖ-14 Фильтры. Монолитные участки стен. Армирование КЖ-15 Фильтры. Схемы расположения балок, плит покрытия и щитков на отм. 2.500. Разрезы КЖ-16 Фильтры. Схемы расположения балок, плит покрытия и щитов на отм. 2.500. Узлы КЖ-17 Схемы расположения плит покрытия КЖ-18 Монолитные участки УМ9-УМ11 Конструкции металлические КМ-1 Общие данные. Техническая спецификация стали КМ-2 Общие данные (продолжение). Техническая спецификация стали на типовые конструкции КМ-3 Общие данные (окончание). Ведомость металлоконструкций по видам профилей КМ-4 Схема расположения подвесного пути КМ-5 Схема расположения переходных площадок и лестниц. Разрез 1-1 КМ-6 Схема расположения переходных площадок и лестниц. Разрезы. Узлы ОС-1 График производства работ (начало) ОС-2 График производства работ (окончание) |
| Разработан: | ЦНИИЭП |
| Утверждён: | 05.11.1984 Госгражданстрой (Gosgrazhdanstroy 320) |



















































