Скачать Типовой проект 902-9-3 Альбом II. Архитектурно-строительная часть (вариант - стены кирпичные)Дата актуализации: 01.01.2021
|
| Обозначение: | Типовой проект 902-9-3 |
| Обозначение англ: | 902-9-3 |
| Статус: | действует |
| Название рус.: | Альбом II. Архитектурно-строительная часть (вариант - стены кирпичные) |
| Дата добавления в базу: | 01.09.2013 |
| Дата актуализации: | 01.01.2021 |
| Дата введения: | 25.03.1974 |
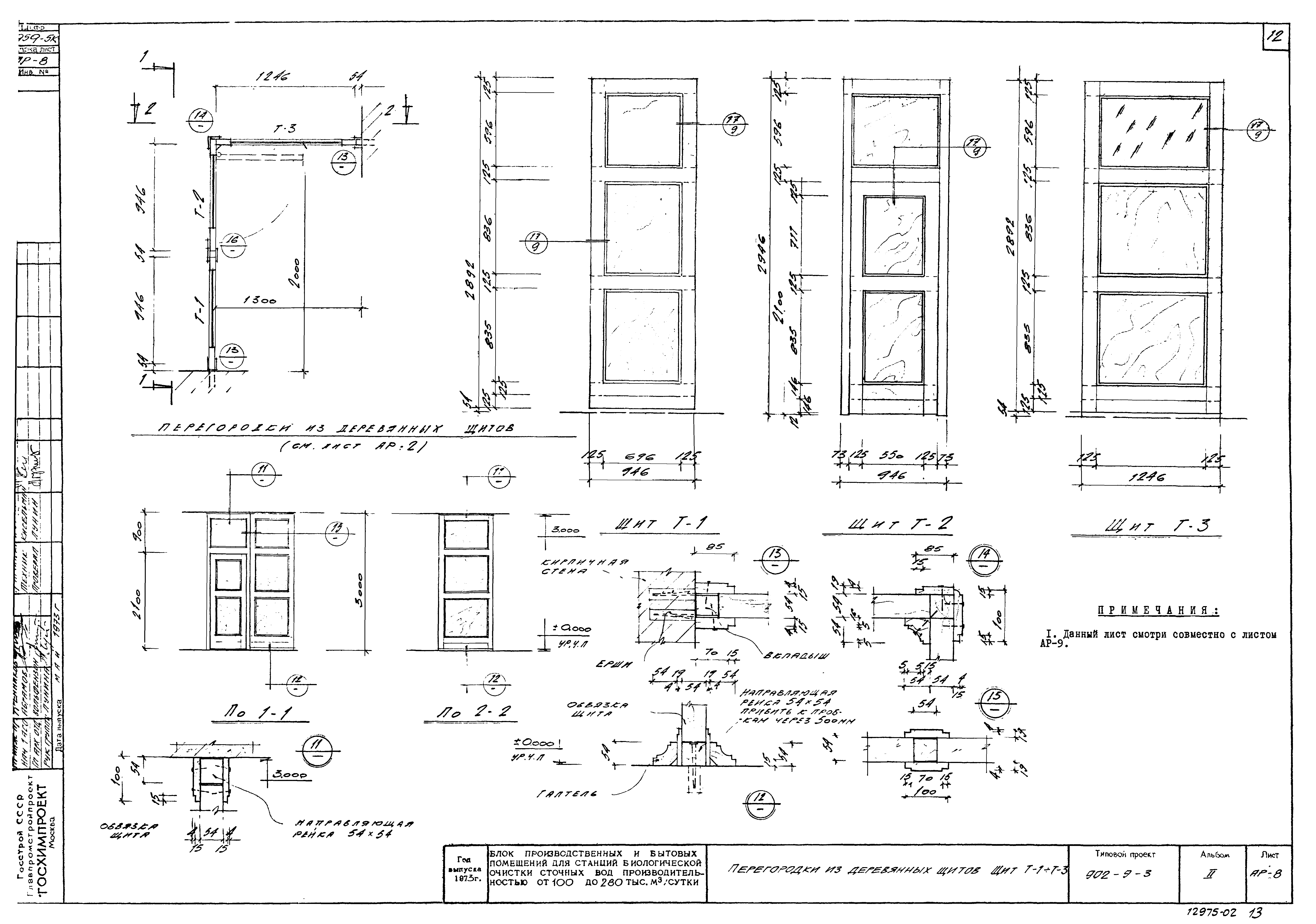
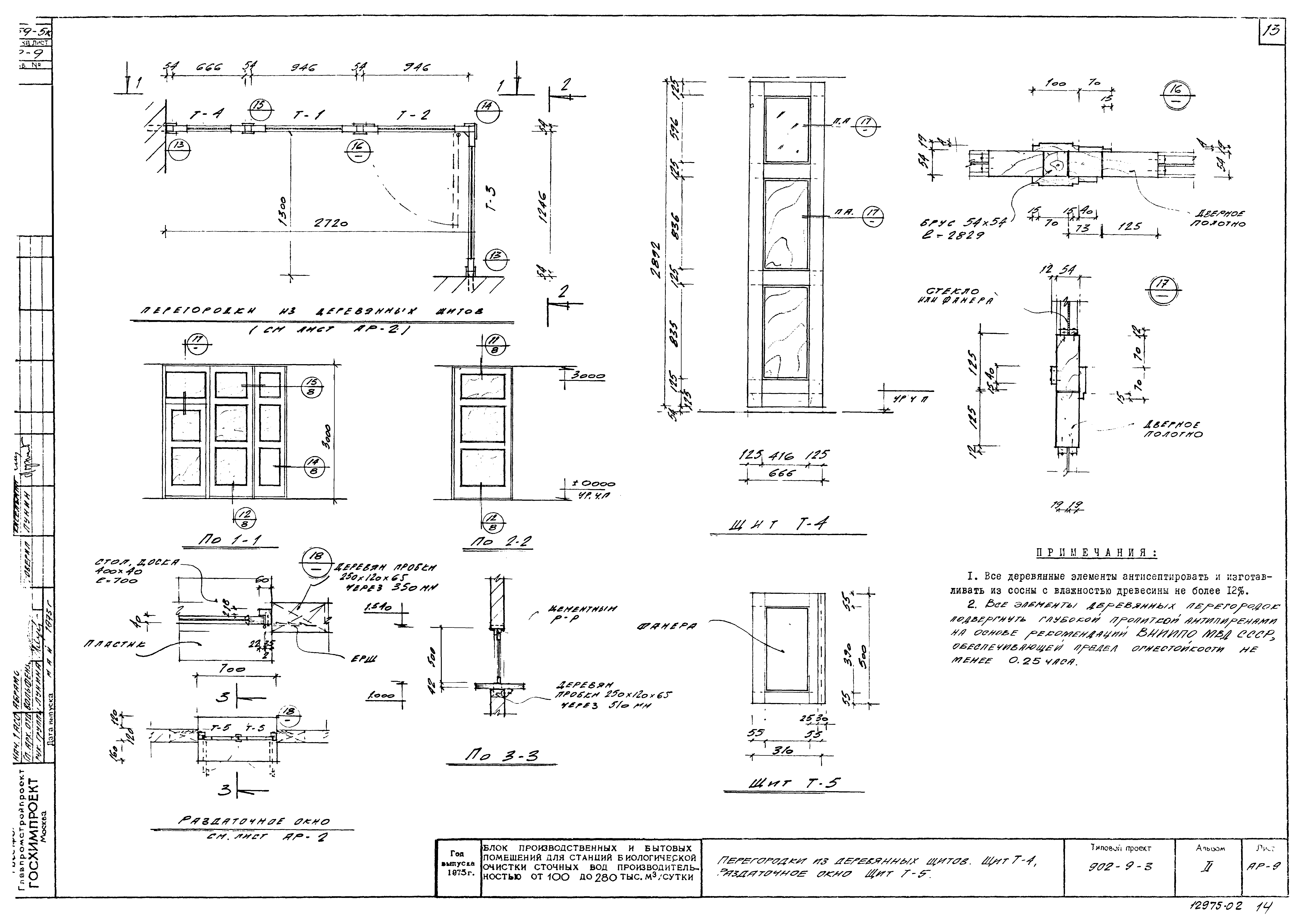
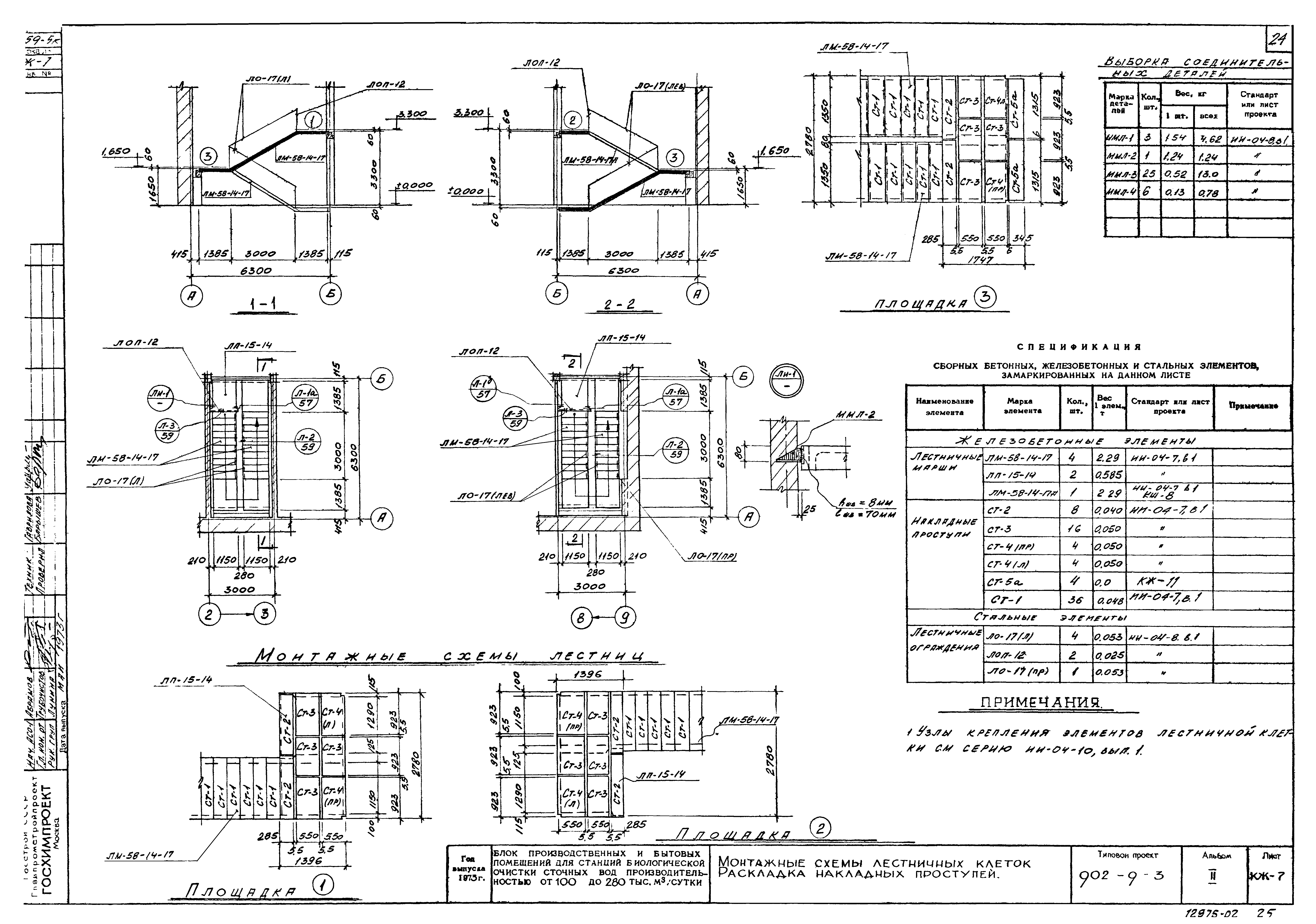
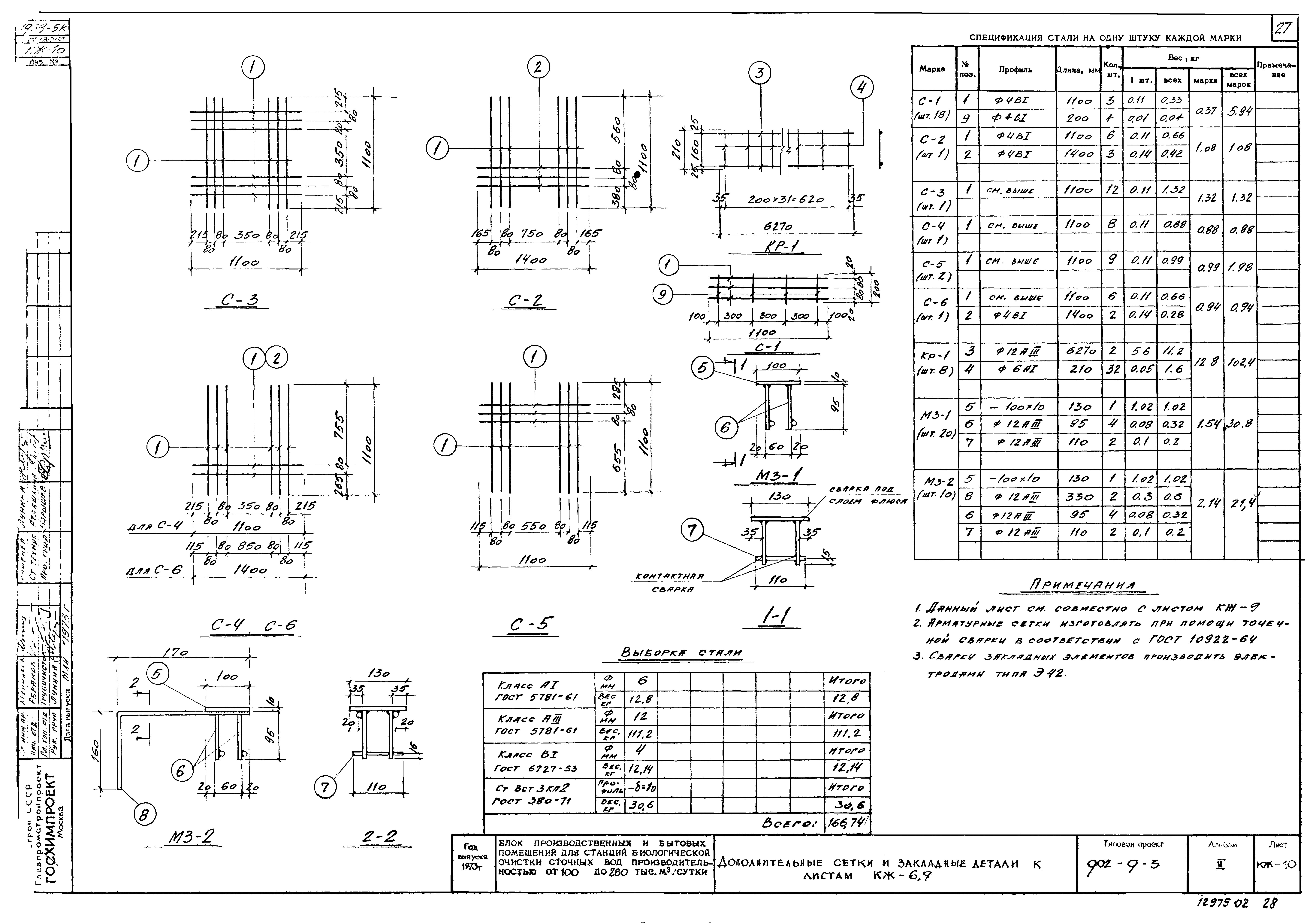
| Оглавление: | Содержание Пояснительная записка Чертежи марки "АР" АР-1 План кровли. Спецификации. Перечень листов марки АР. Основные строительные показатели АР-2 План на отм. ±0.000. Спецификация проемов и изделий дверей и ворот АР-3 План на отм. 3.300. Элемент плана № 1. Экспликация помещений АР-4 Разрезы 1-1,2-2 АР-5 Фасады 1-9,9-1,А-В,В-А. Типы остекления АР-6 Планы раскладки асбестоцементных листов подшивного потолка на отм. 2.500, 5.800 АР-7 Планы полов. Экспликация полов. Ведомость внутренних отделочных работ АР-8 Перегородки из деревянных щитов. Щит Т-1-Т-3 АР-9 Перегородки из деревянных щитов. Щит Т-4. Раздаточное окно. Щит Т-5 АР-10 Перегородки из стеклопрофилита КП-1-КП-4 АР-11 Планы приямка, подпольных каналов. Элементы планов 2-7 АР-12 План раскладки балок подшивного потолка АР-13 Элементы планов полов Чертежи марки "КЖ" КЖ-1 Заглавный лист к чертежам марки КЖ КЖ-2 Заглавный лист к чертежам марки КЖ (продолжение) КЖ-3 План фундаментов КЖ-4 Монтажные схемы колонн и ригелей КЖ-5 Монтажные схемы диафрагм жесткости. Разрезы 1-1-4-4 КЖ-6 Монтажные схемы плит покрытия и перекрытия КЖ-7 Монтажные схемы лестничных клеток. Раскладка накладных проступей КЖ-8 Опалубки колонн. К-17-75-3, КЛ-2Л-13-75-3а,К2-13-75-3 и лестничного марша ЛМ-58-14-17А КЖ-9 Опалубка плит с отверстиями КЖ-10 Дополнительные стенки и закладные детали к листам КЖ-6,10 КЖ-11 Опалубка диафрагм жесткости В-29-33А,В-29-33Б и накладной проступи СТ-5А КЖ-12 Армирование диафрагм жесткости В-29-33А,В-29-33Б и накладной проступи СТ-5А КЖ-13 Каркасы, сетки, спецификация арматуры к листам КЖ-11,12 КЖ-14 Каркасы, сетки, спецификация арматуры к листам КЖ-11,12 КЖ-15 Закладные детали, рамки, анкера |
| Разработан: | Госхимпроект |
| Утверждён: | 25.02.1974 СоюзводоканалНИИпроект (SoyuzvodokanalNIIproject 40) |































