Скачать Типовой проект 902-9-3 Альбом IV. Технологическая и санитарно-техническая части (вариант - стены кирпичные)Дата актуализации: 01.01.2021
|
| Обозначение: | Типовой проект 902-9-3 |
| Обозначение англ: | 902-9-3 |
| Статус: | действует |
| Название рус.: | Альбом IV. Технологическая и санитарно-техническая части (вариант - стены кирпичные) |
| Дата добавления в базу: | 01.09.2013 |
| Дата актуализации: | 01.01.2021 |
| Дата введения: | 25.03.1974 |
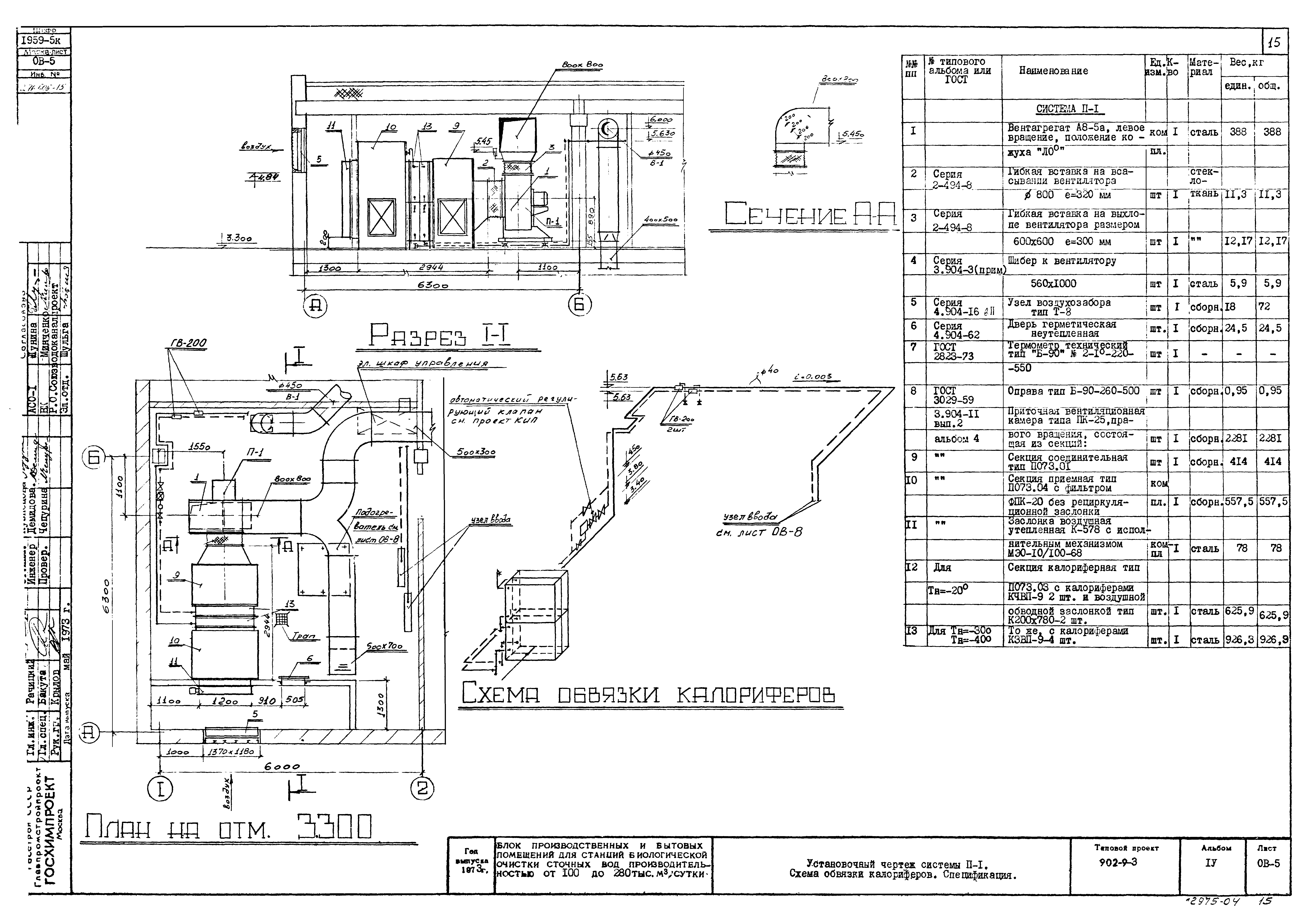
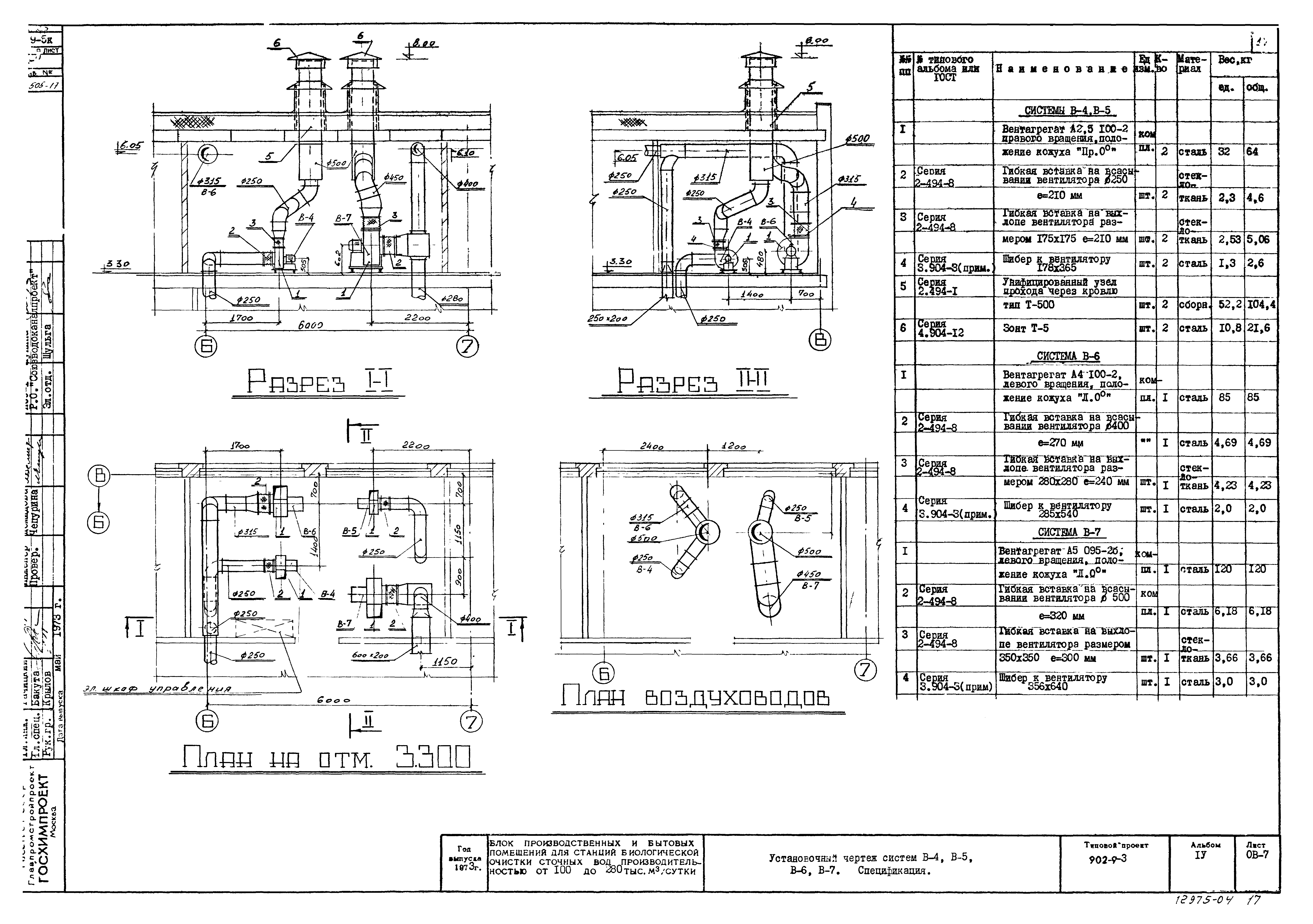
| Оглавление: | Содержание альбома Пояснительная записка Технологическая часть ТК-1 Примерная схема компоновки станции очистки сточных вод с аэротенками ТК-2 Химическая и бактериологическая лаборатории. План, разрезы, схема подсоединении сантехпанелей и экспликация оборудования. ТК-3 План буфета с расстановкой и привязкой технологического оборудования, привязкой подводок электроэнергии и воды к технологическому оборудованию. Фрагмент плана буфета с привязкой вентотсосов. Спецификация технологического оборудования. Отопление и вентиляция ОВ-1 Характеристика отопительно-вентиляционного оборудования. Таблица объемов воздуха, удаляемого местными отсосами. ОВ-2 Таблица воздушных балансов помещений ОВ-3 План на отм. ± 0.00 . Отопление и вентиляция ОВ-4 План на отм.+3.30. Отопление и вентиляция ОВ-5 Установочный чертеж системы П-1. Схема обвязки калориферов. Спецификация. ОВ-6 Установочный чертеж систем B-1, В-2, В-3. Спецификация ОВ-7 Установочный чертеж систем В-4-В-7. Спецификация. ОВ-8 Установочный чертеж теплового пункта. ОВ-9 Схема отопления, схема обвязки водоподогревателя. ОВ-10 Схемы вентиляции систем П-1, В-2, В-3, В-4 ОВ-11 Схемы вентиляции систем B-1, В-5, В-6, В-7,В-8. ОВ-12 Сводная спецификация (лист № 1) ОВ-13 Сводная спецификация (лист № 2) ОВ-14 Сводная спецификация (лист № 3) Водопровод и канализация ВК-1 Расчетные расходы воды бытовых и производственных сточных вод. Условные обозначения. ВК-2 План на отм. ±0.00 с сетями водопровода и канализации. ВК-3 План на отм. 3.300 с сетями водопровода и канализации ВК-4 Схема сетей хозяйственно-производственного водопровода и водопровода горячей воды ВК-5 Схемы сетей бытовой, производственной и ливневой канализации ВК-6 Спецификация ВК-7 Спецификация (продолжение). Расчет сети хозяйственно-производственного водопровода |
| Разработан: | Госхимпроект Союзводоканалниипроект |
| Утверждён: | 25.02.1974 СоюзводоканалНИИпроект (SoyuzvodokanalNIIproject 40) |































