Скачать Типовой проект 902-9-3 Альбом V. Электротехническая частьДата актуализации: 01.01.2021
|
| Обозначение: | Типовой проект 902-9-3 |
| Обозначение англ: | 902-9-3 |
| Статус: | действует |
| Название рус.: | Альбом V. Электротехническая часть |
| Дата добавления в базу: | 01.09.2013 |
| Дата актуализации: | 01.01.2021 |
| Дата введения: | 25.03.1974 |
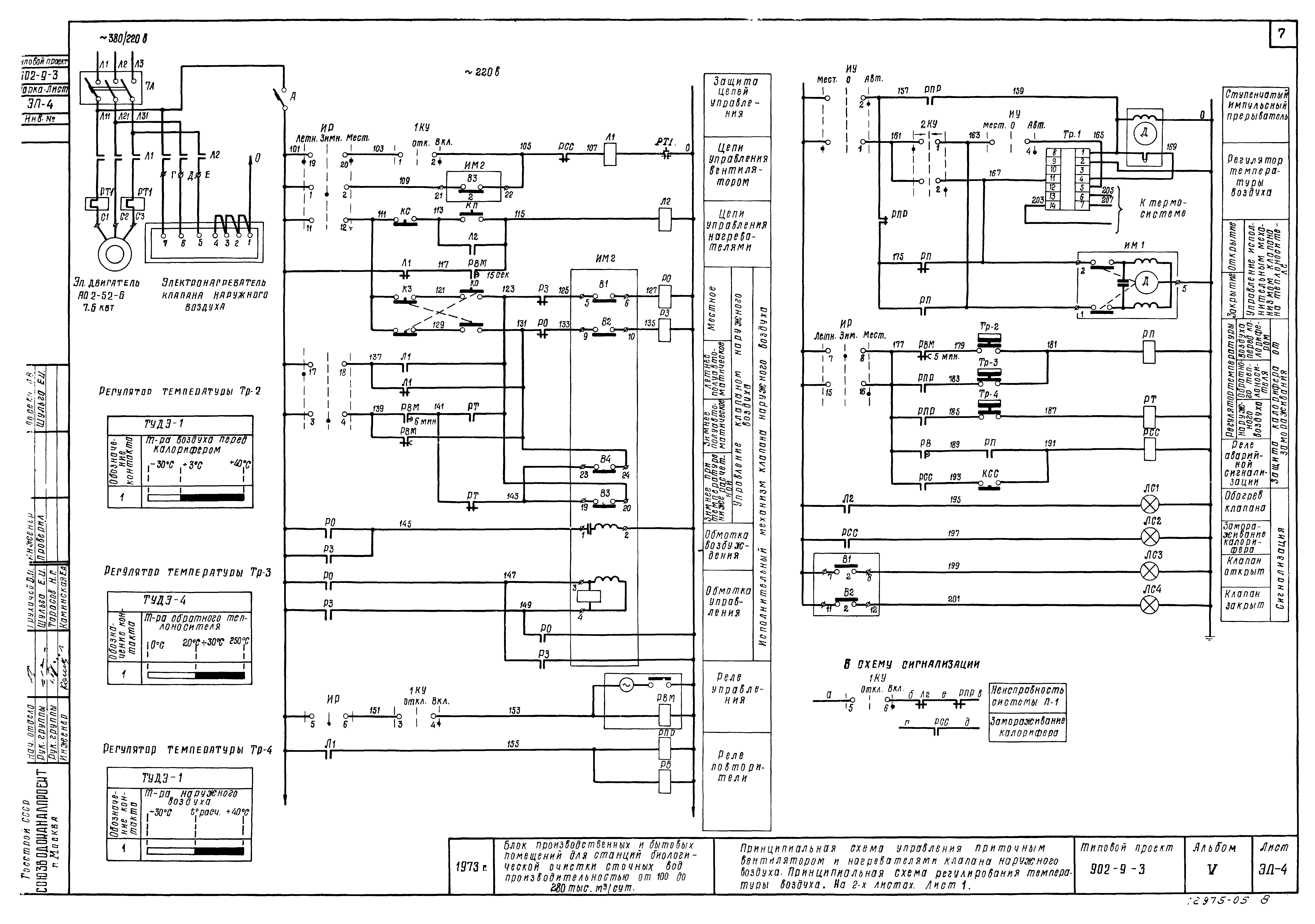
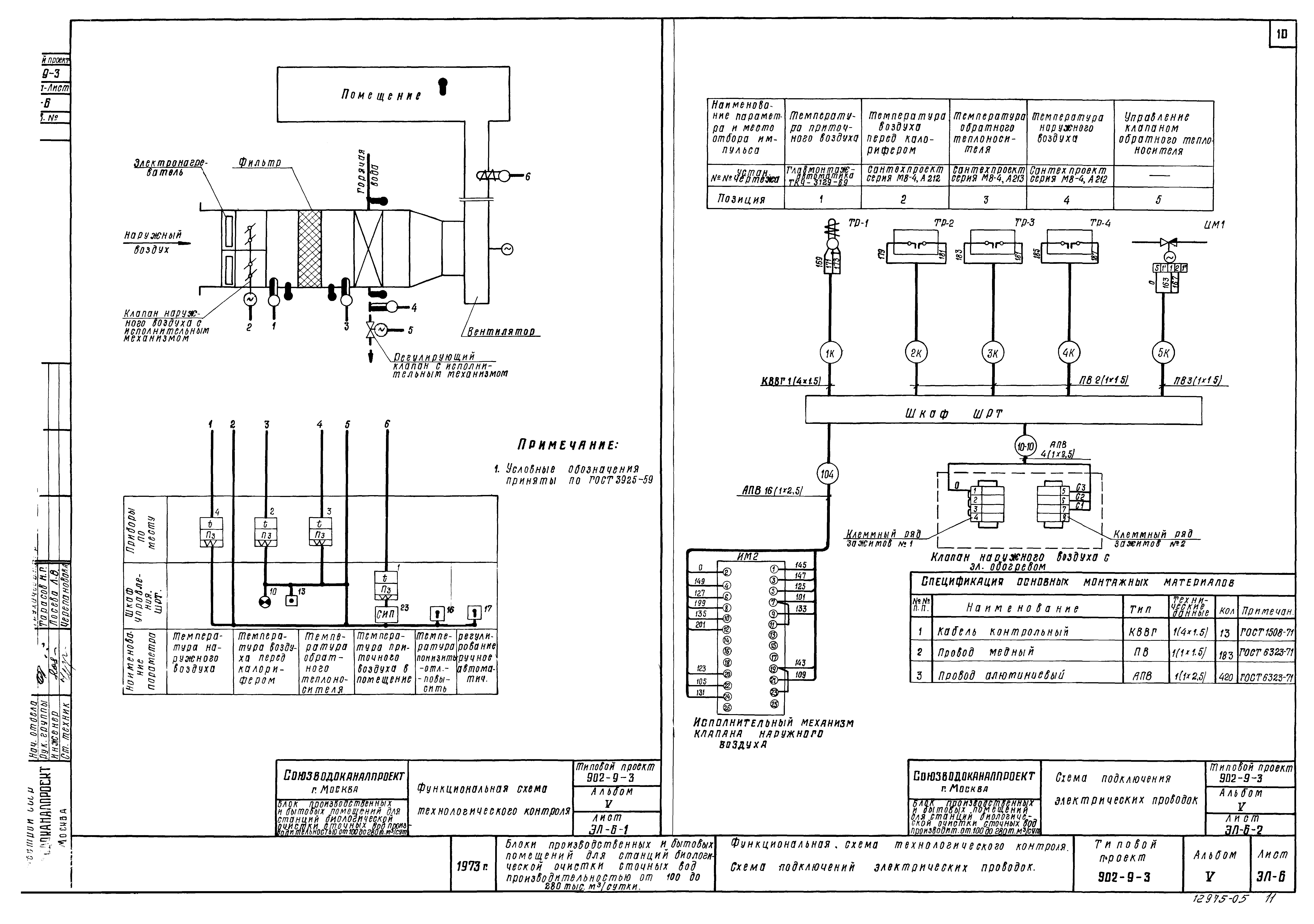
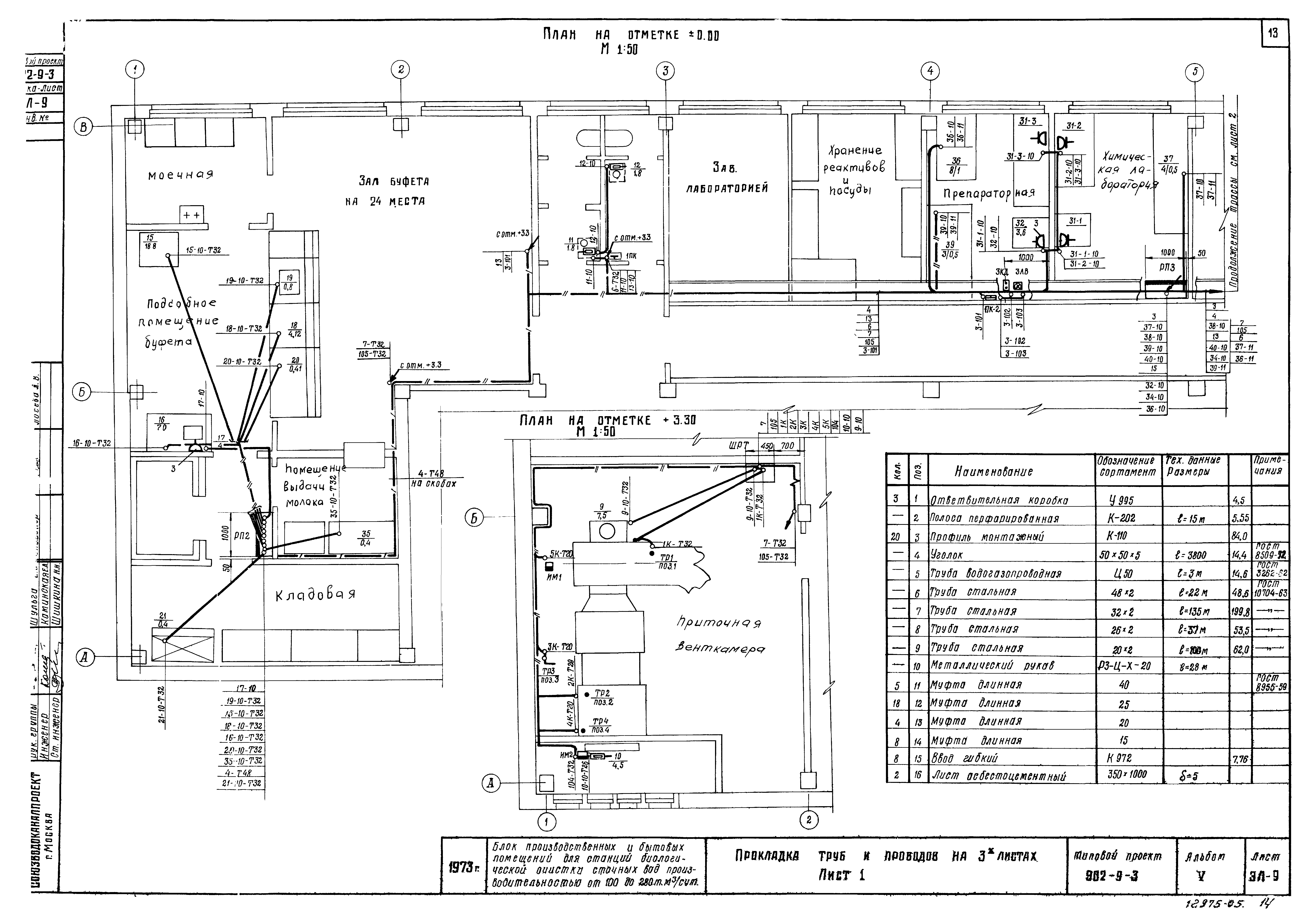
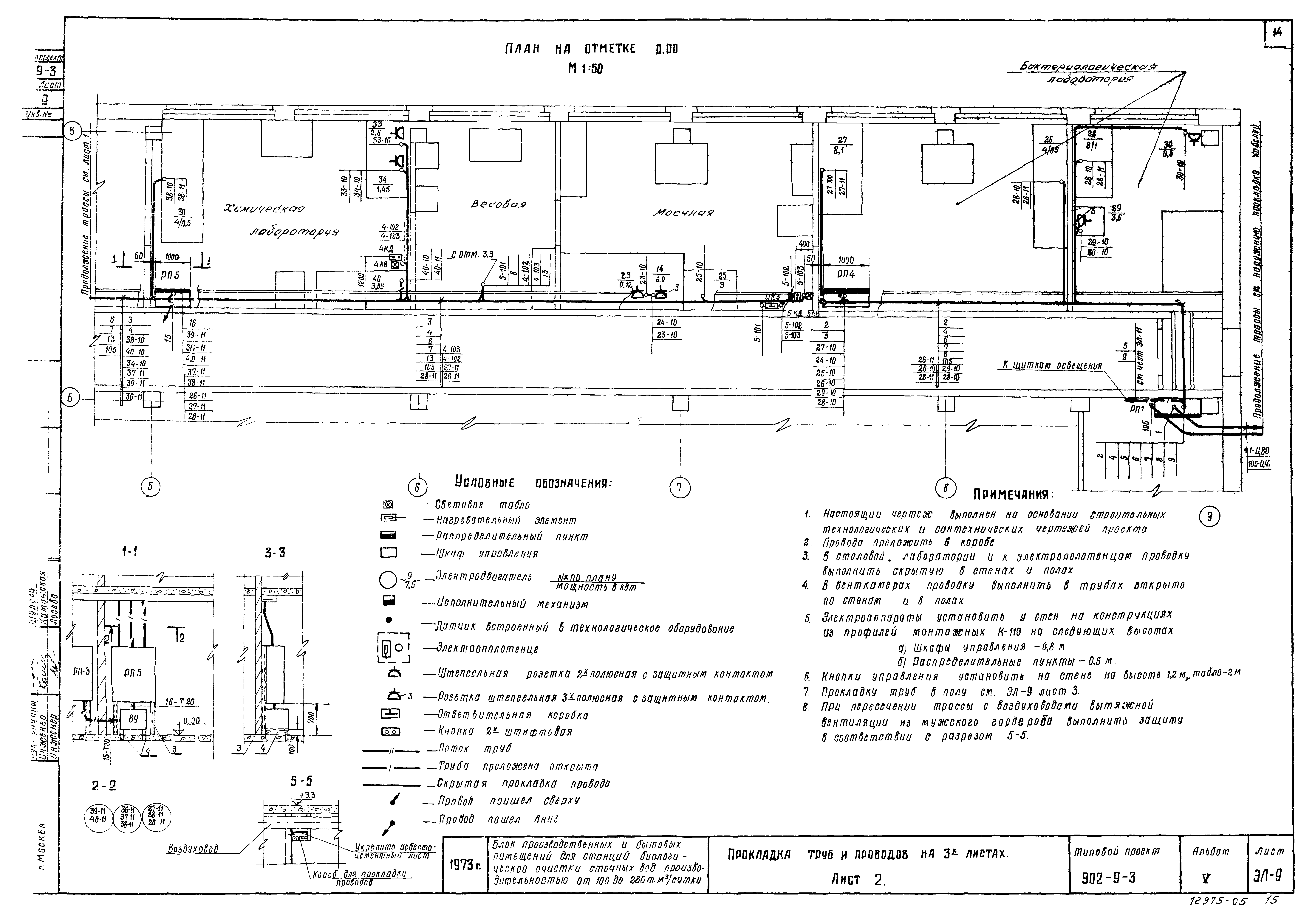
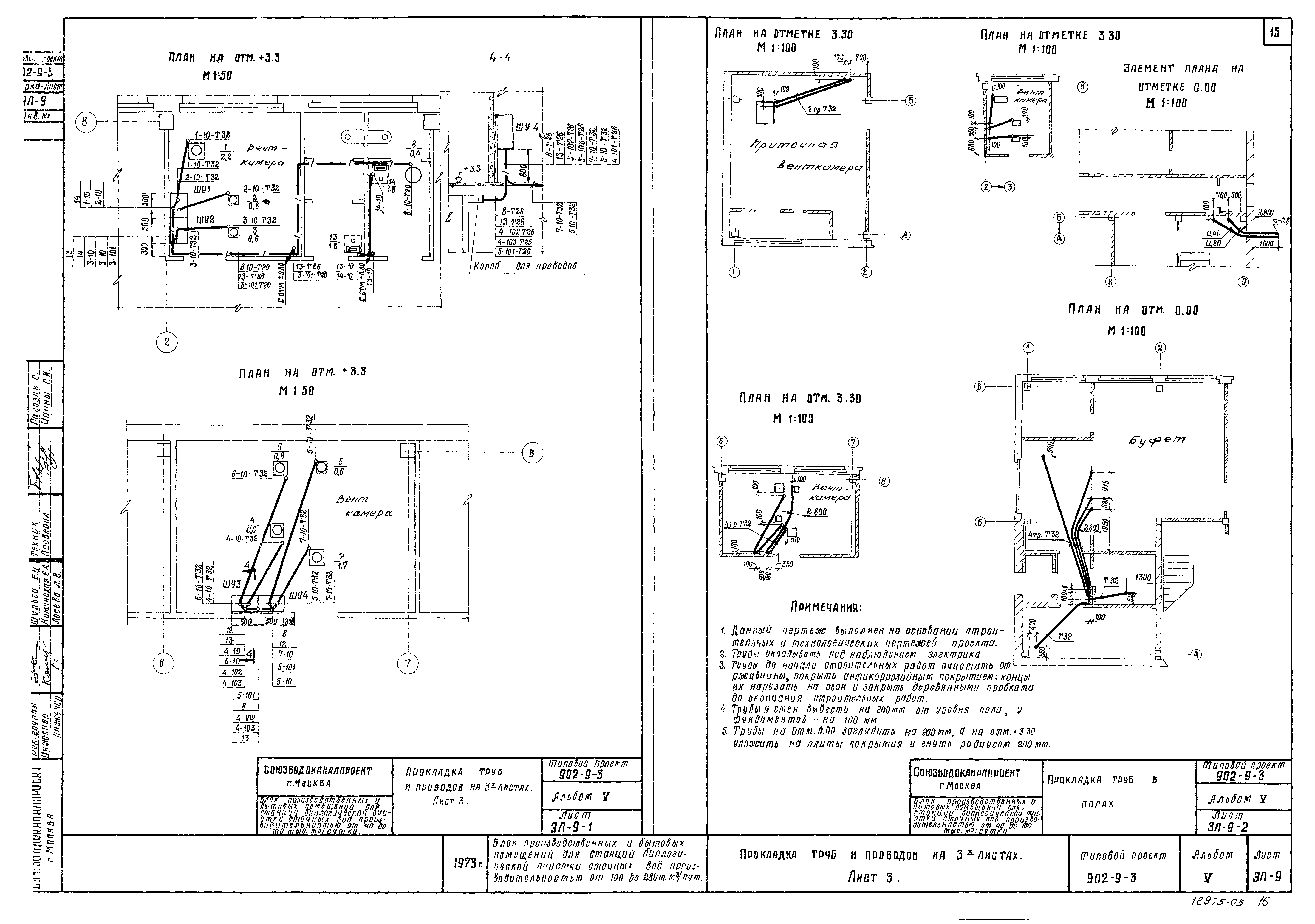
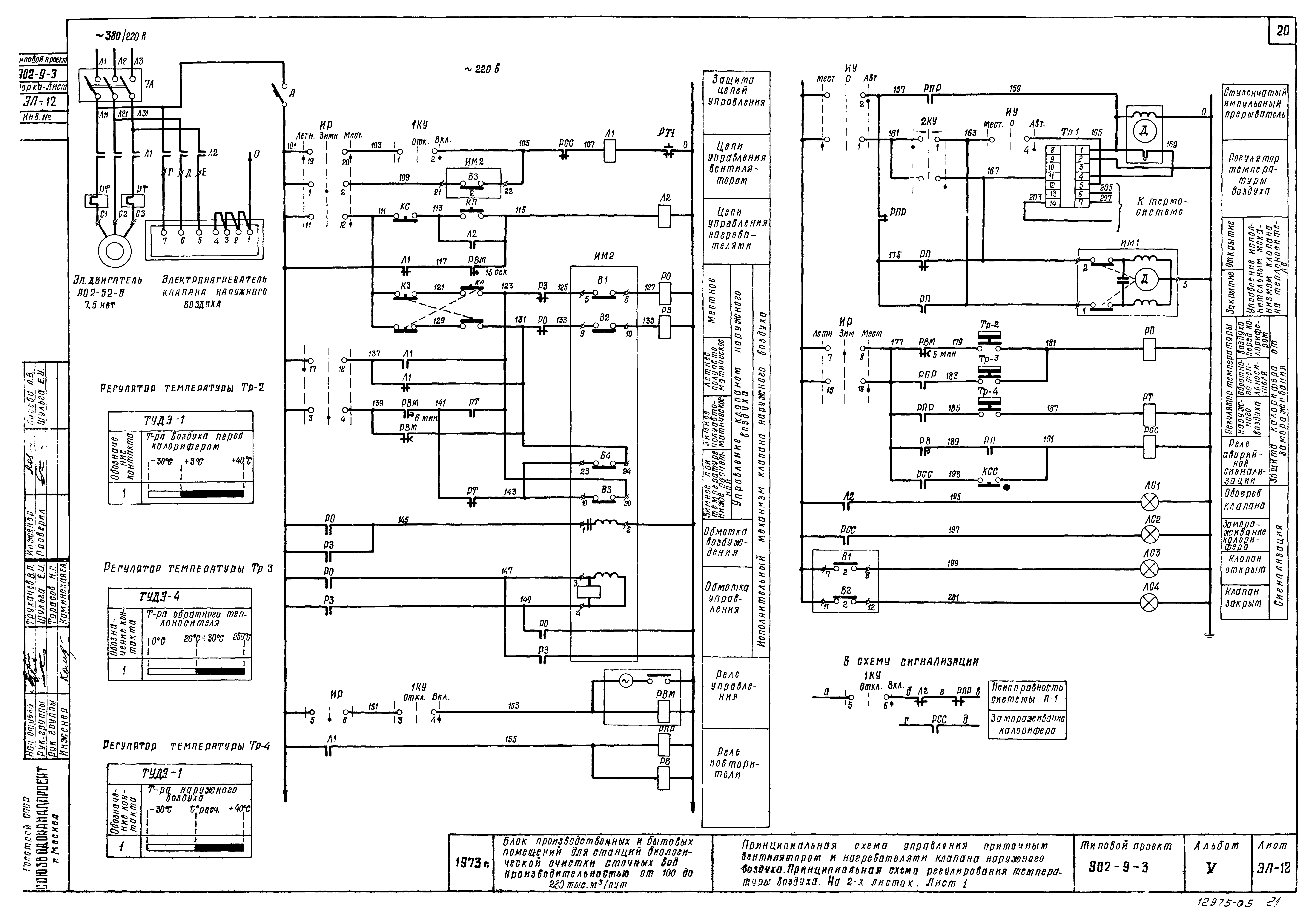
| Оглавление: | Раздел 1 ЭЛ-1 Содержание альбома ЭЛ-2 Пояснительная записка на 2х листах ЭЛ-3 Принципиальная схема силовой сети на 2х листах ЭЛ-4 Принципиальная схема управления приточным вентилятором и нагревателями клапана наружного воздуха. Принципиальная схема регулирования температуры воздуха. На 2х листах ЭЛ-5 Принципиальная схема управления вытяжными вентиляторами. Шкафы управления. Схема подключений ЭЛ-5-1 Принципиальная схема управления вытяжными вентиляторами ЭЛ-5-2 Шкафы управления. Схема подключений ЭЛ-6 Функциональная схема технологического контроля. Схема подключений электрических проводок ЭЛ-6-1 Функциональная схема технологического контроля ЭЛ-6-2 Схема подключений электрических проводок ЭЛ-7 Шкаф управления ШРТ. Общий вид ЭЛ-8 Шкаф управления ШРТ. Схема соединений ЭЛ-9 Прлокладка труб и проводов на 3-х листах ЭЛ-10 Кабельный журнал на 3 листах ЭЛ-11 Электрическое освещение. Планы Раздел 2 ЭЛ-12 Принципиальная схема управления приточным вентилятором и нагревателями клапана наружного воздуха. Принципиальная схема регулирования температуры воздуха на 2-х листах ЭЛ-13 Шкаф управления ШРТ. Общий вид ЭЛ-14 Шкаф управления ШРТ. Схема соединений |
| Разработан: | Союзводоканалниипроект |
| Утверждён: | 25.02.1974 СоюзводоканалНИИпроект (SoyuzvodokanalNIIproject 40) |
























