Скачать Типовой проект 902-1-120.87 Альбом 5. Строительные решения. Подземная часть (из ТП 902-1-119.87)Дата актуализации: 01.01.2021
|
| Обозначение: | Типовой проект 902-1-120.87 |
| Обозначение англ: | 902-1-120.87 |
| Статус: | не определен законодательством |
| Название рус.: | Альбом 5. Строительные решения. Подземная часть (из ТП 902-1-119.87) |
| Дата добавления в базу: | 01.09.2013 |
| Дата актуализации: | 01.01.2021 |
| Дата введения: | 10.12.1987 |
| Дата окончания срока действия: | 30.06.2003 |
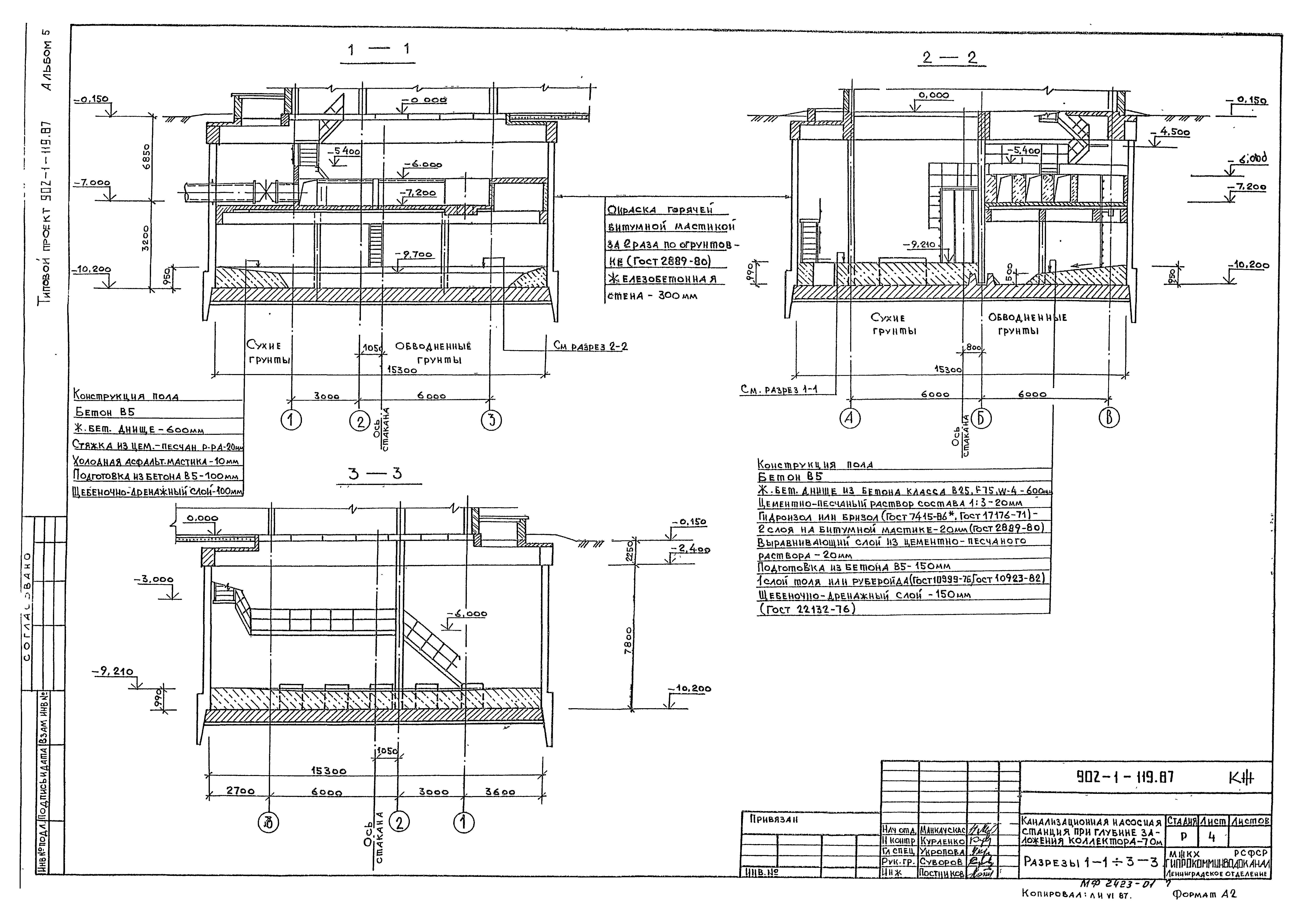
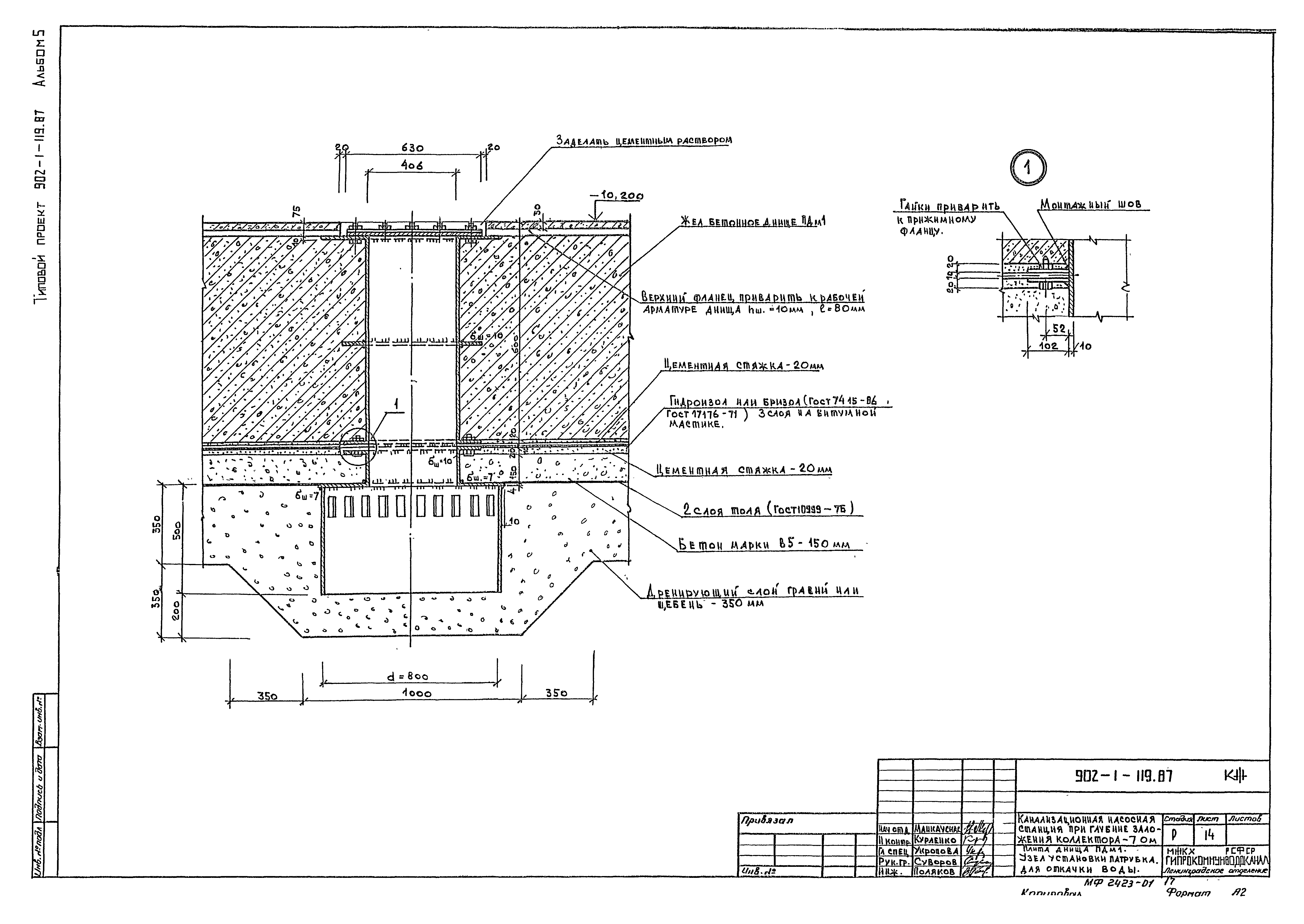
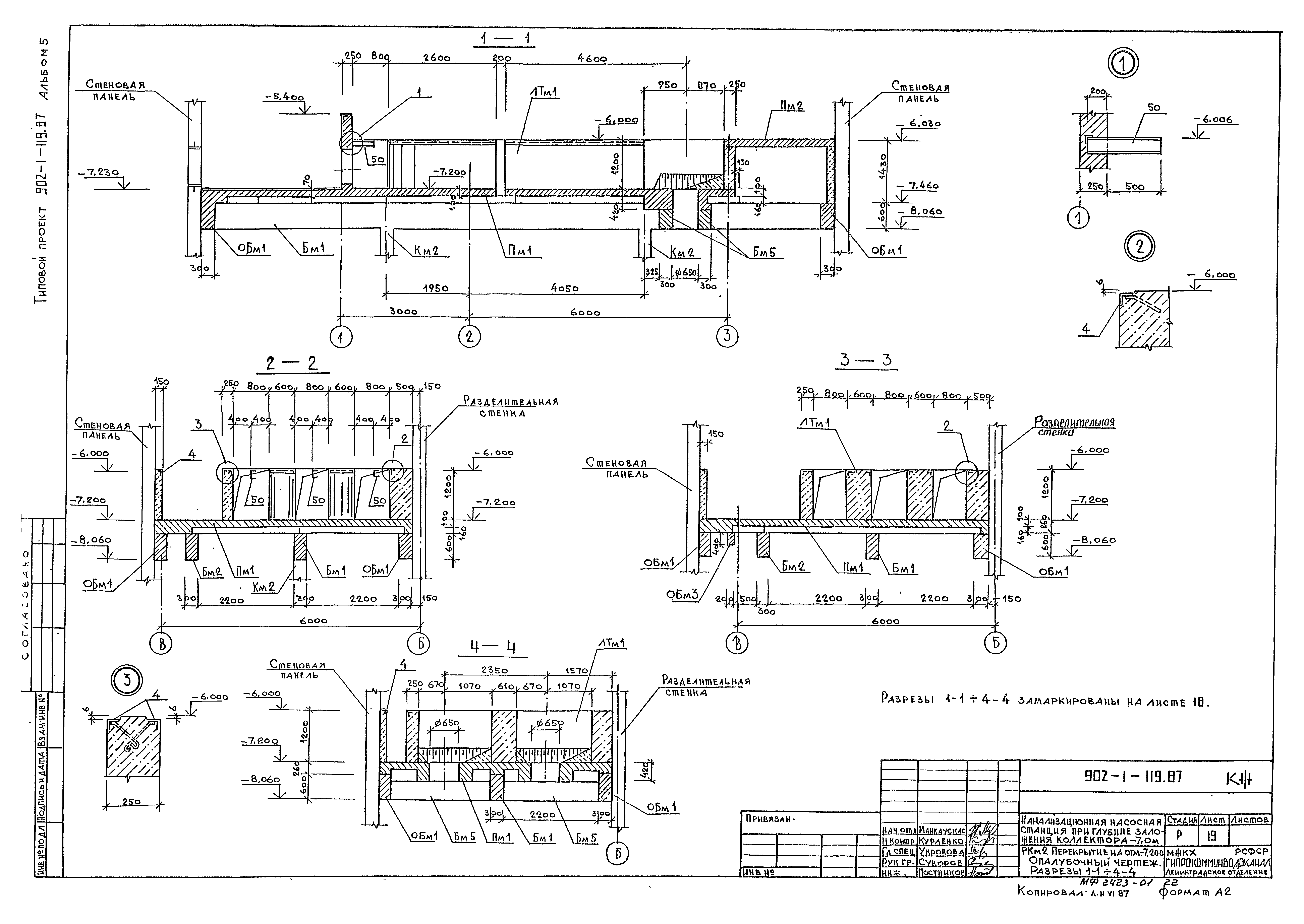
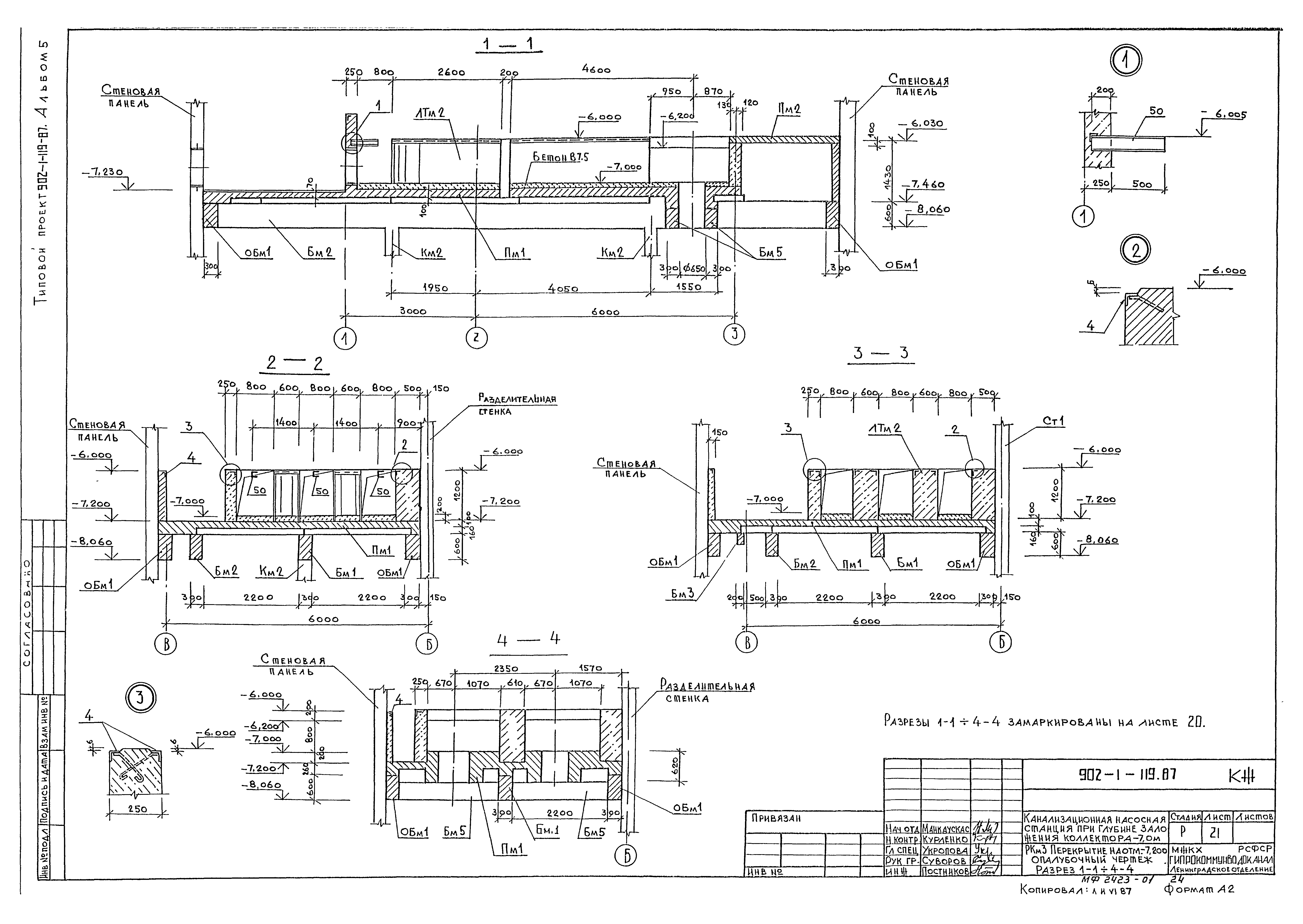
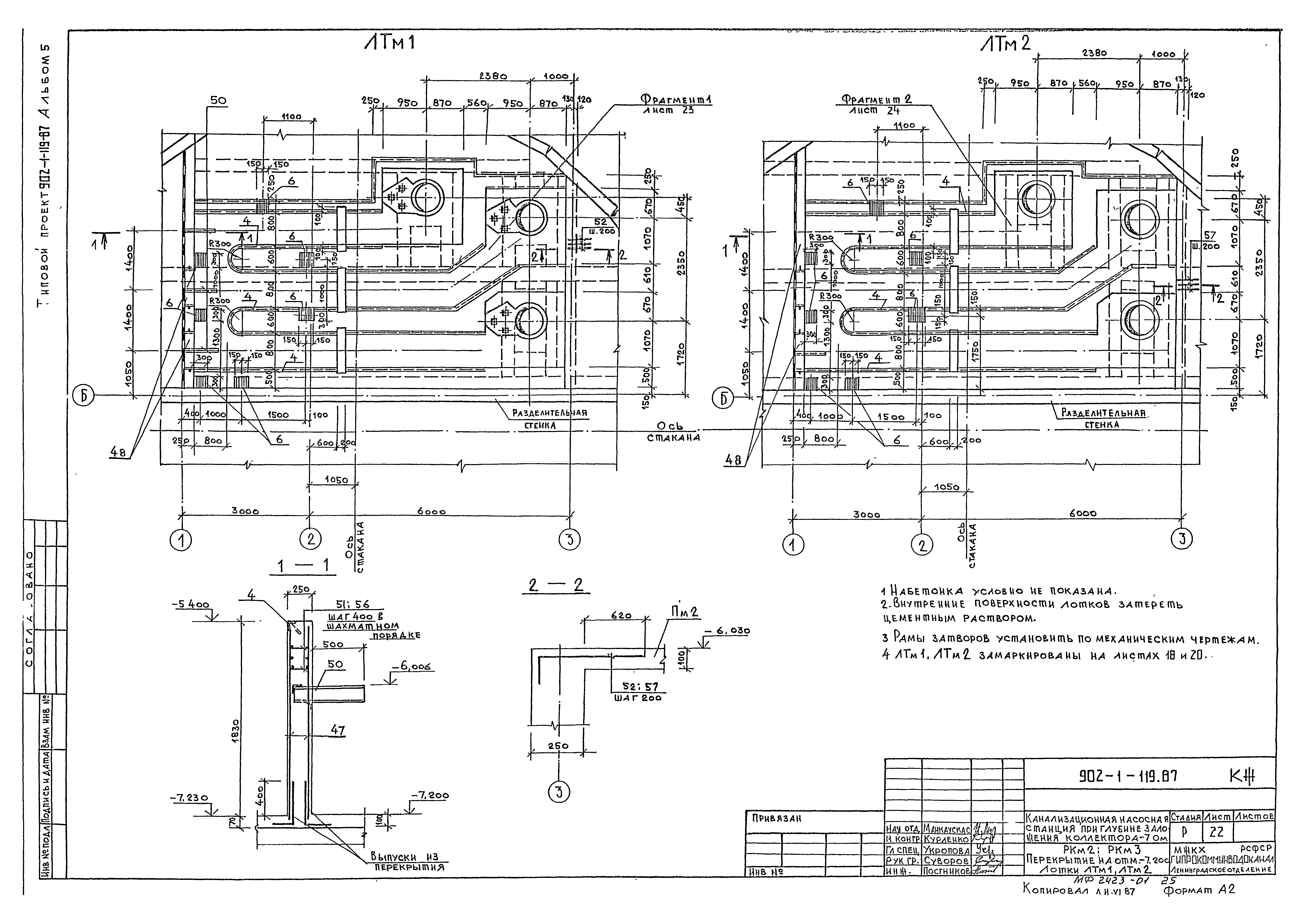
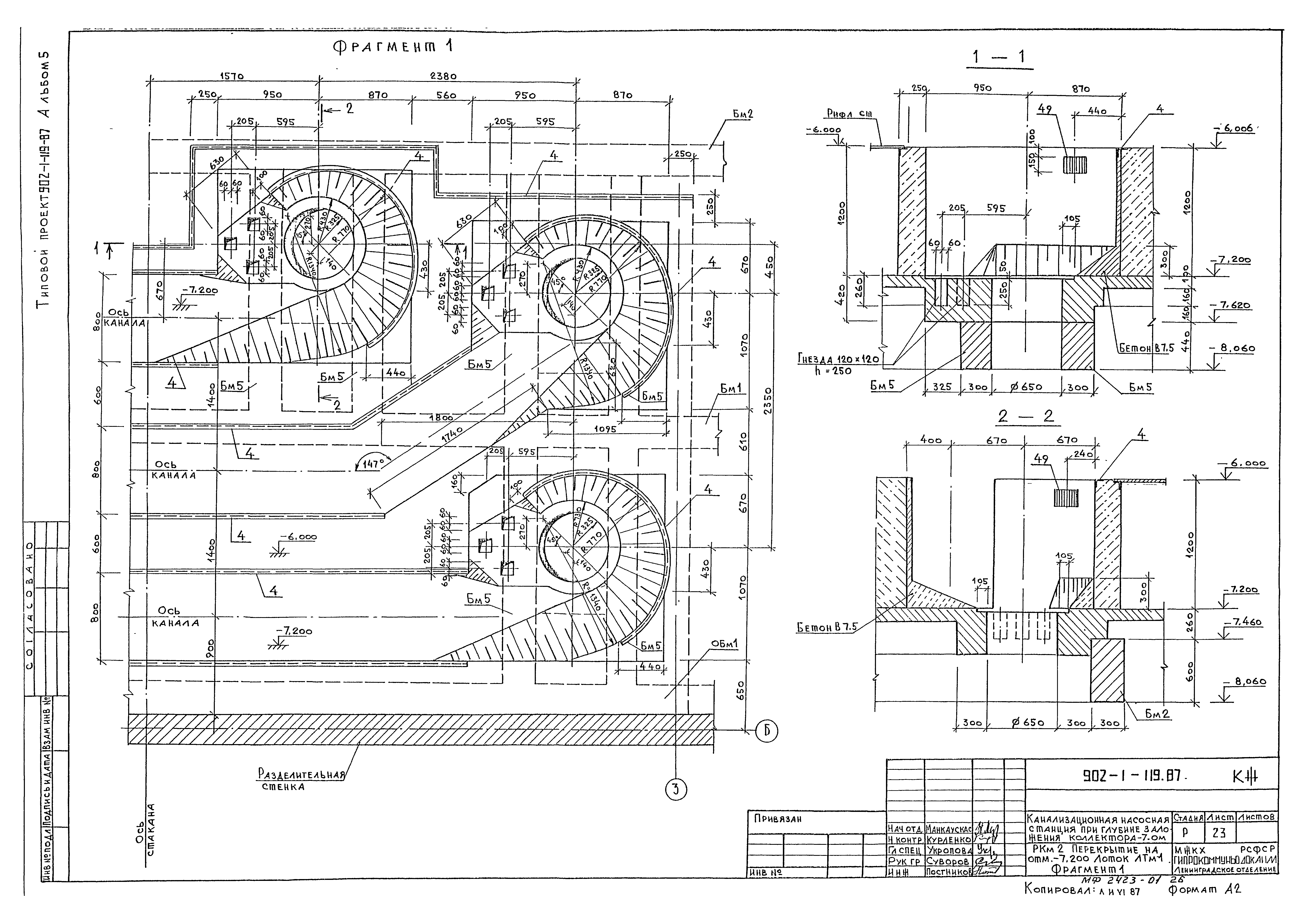
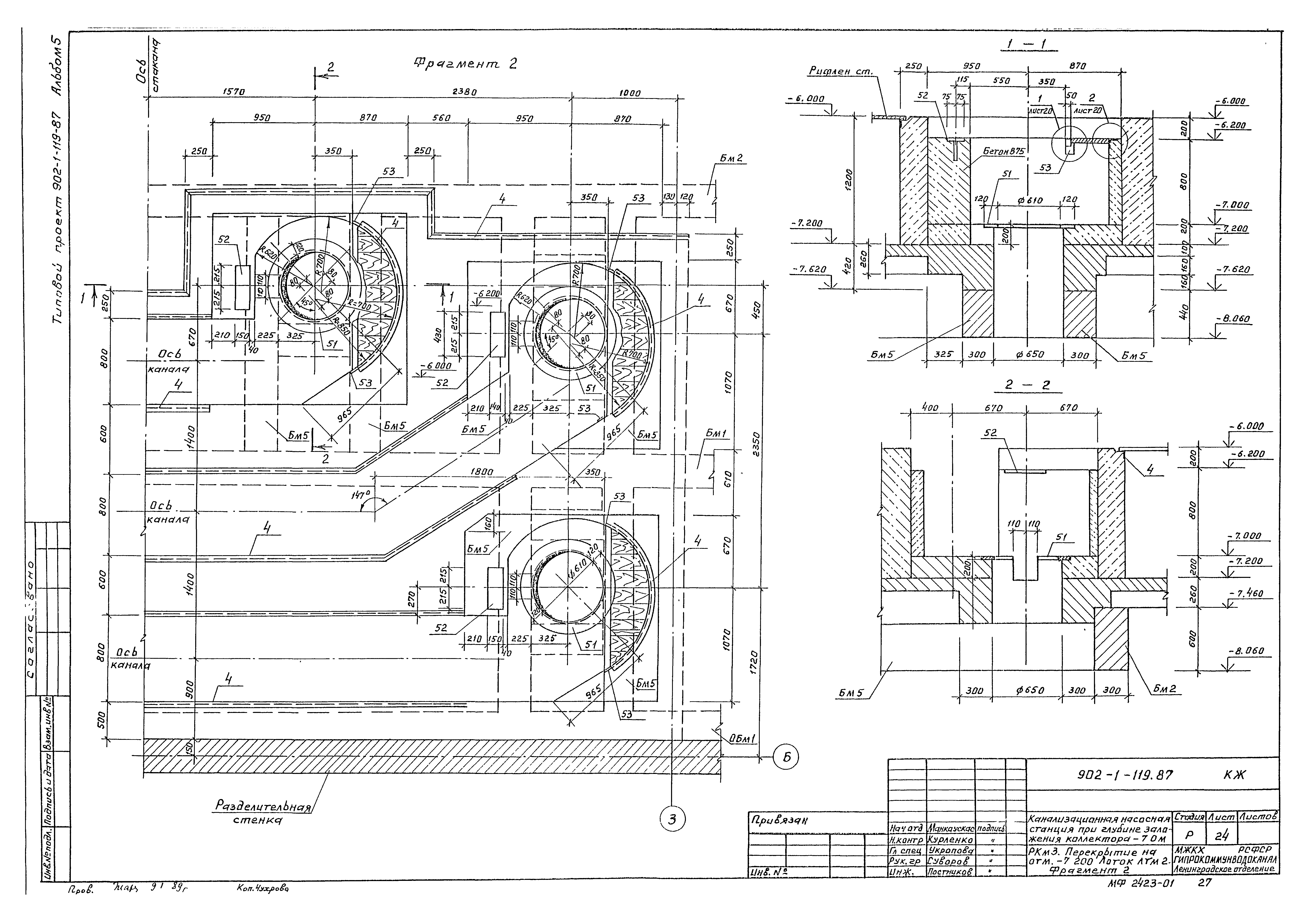
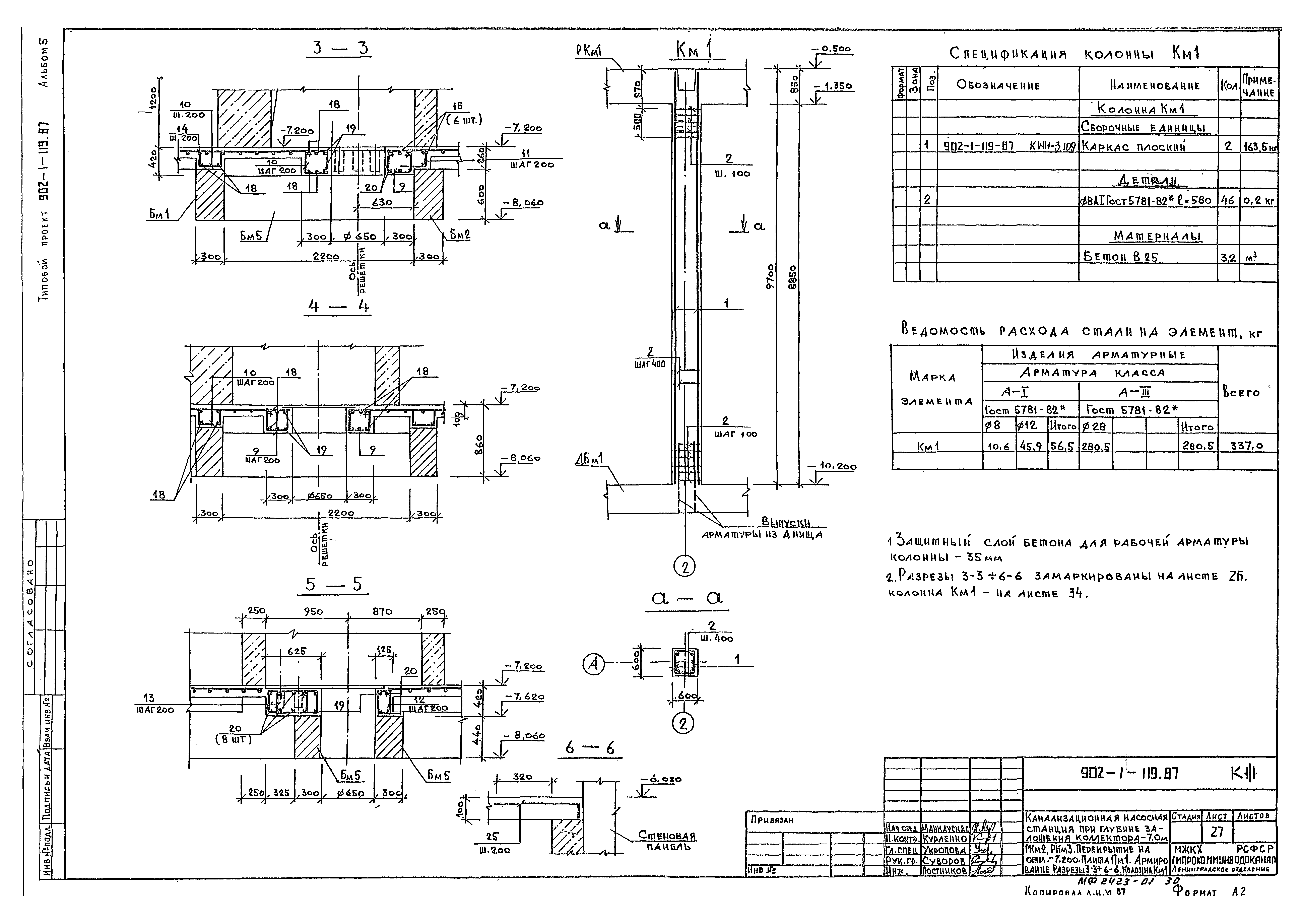
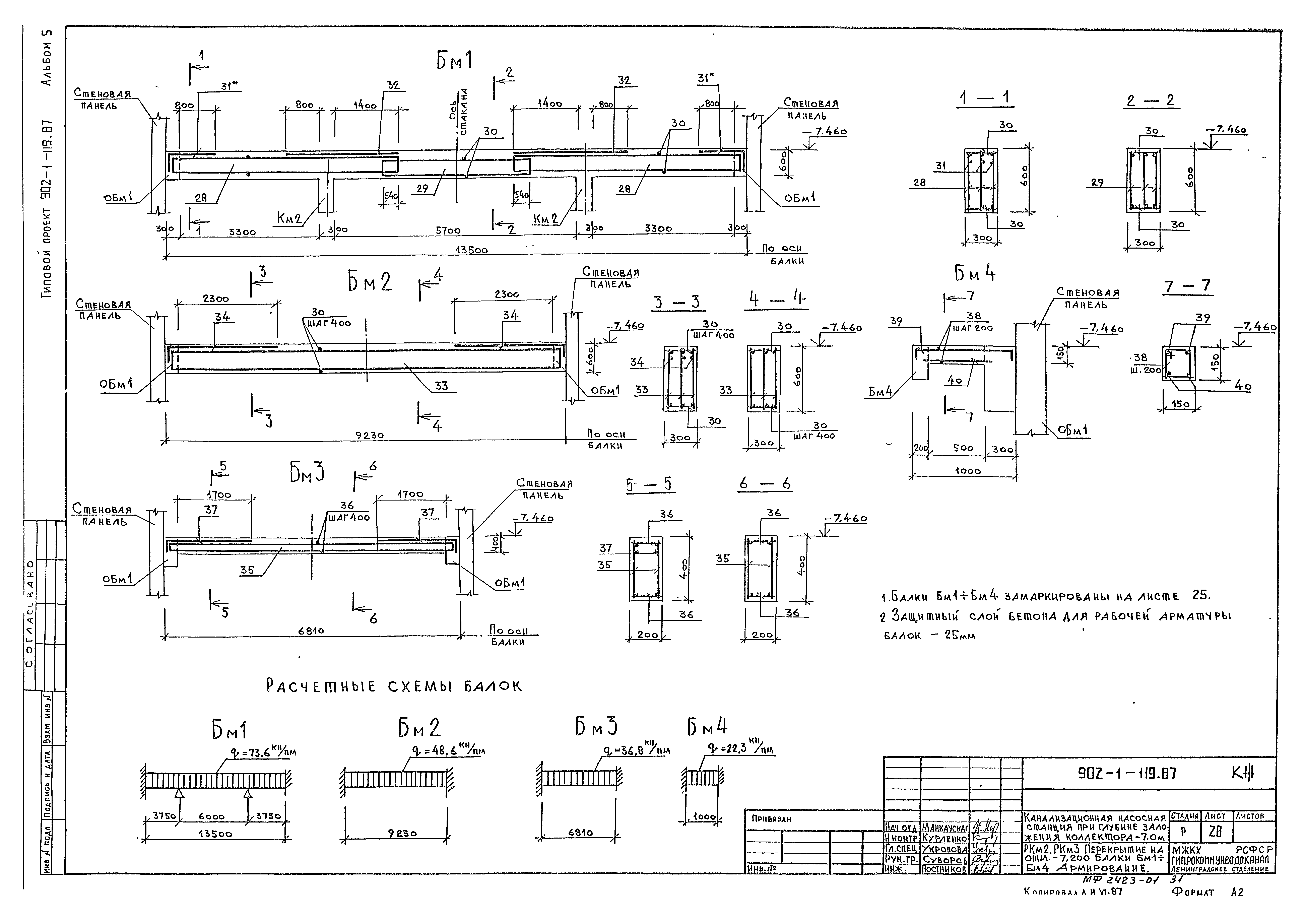
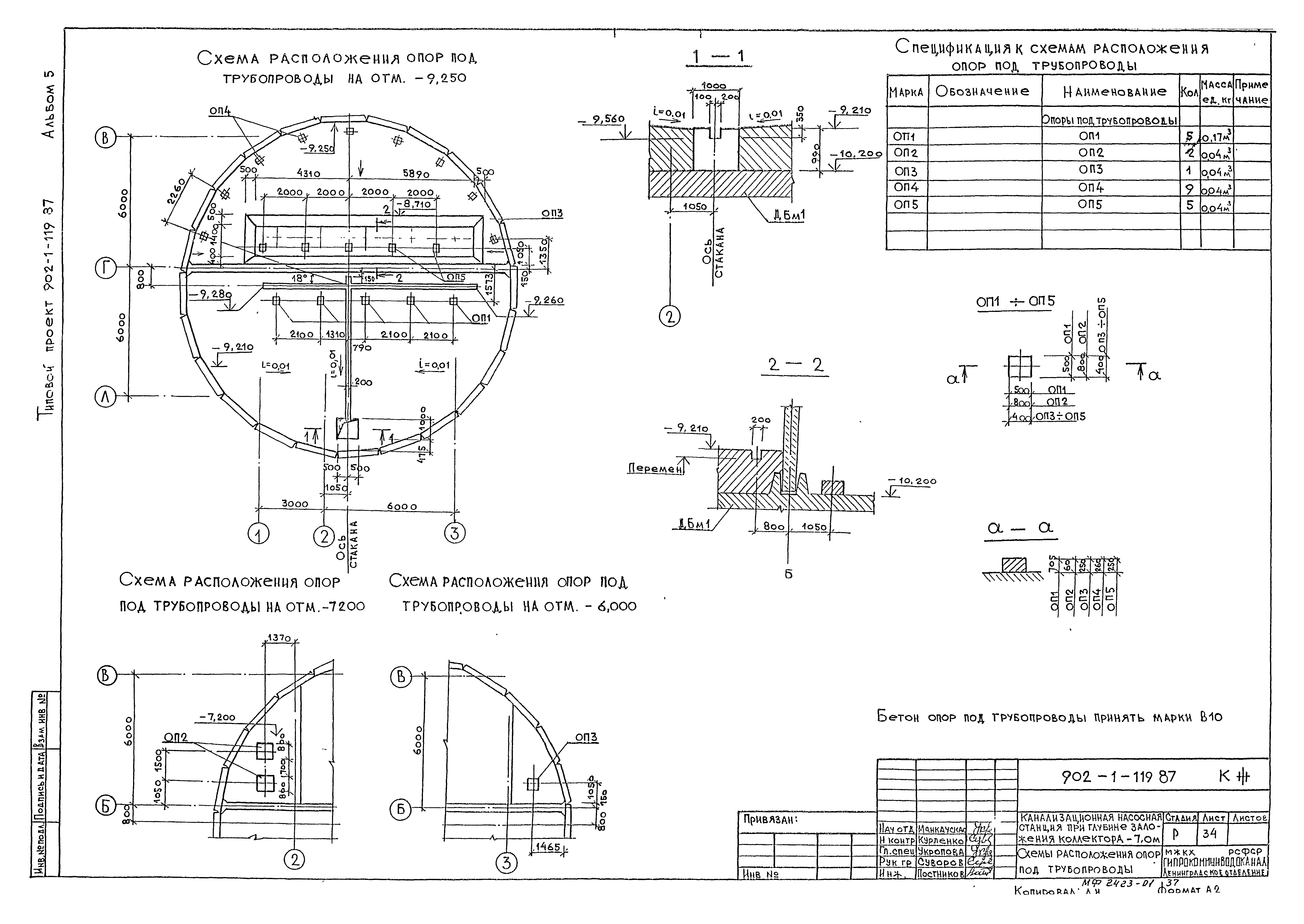
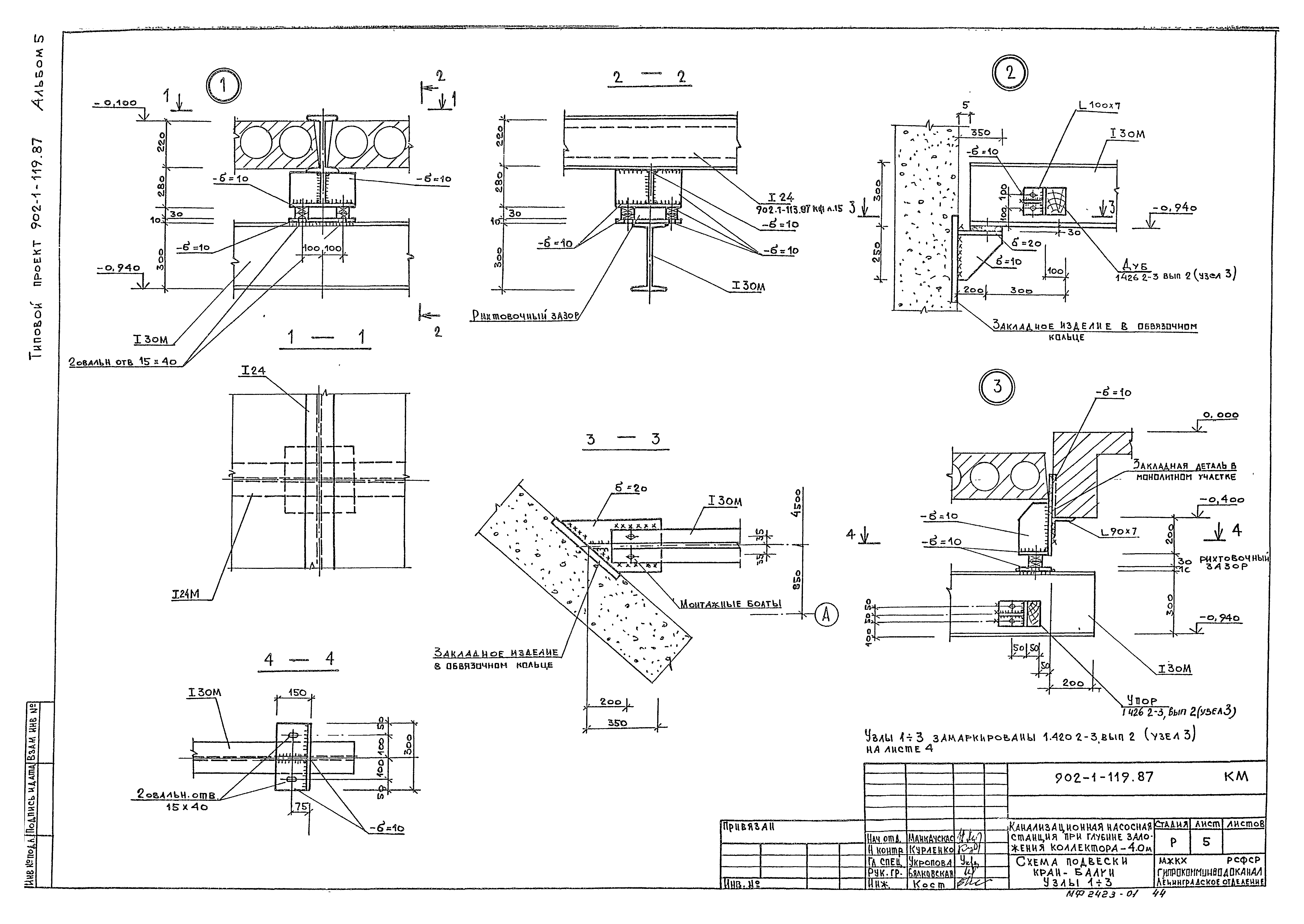
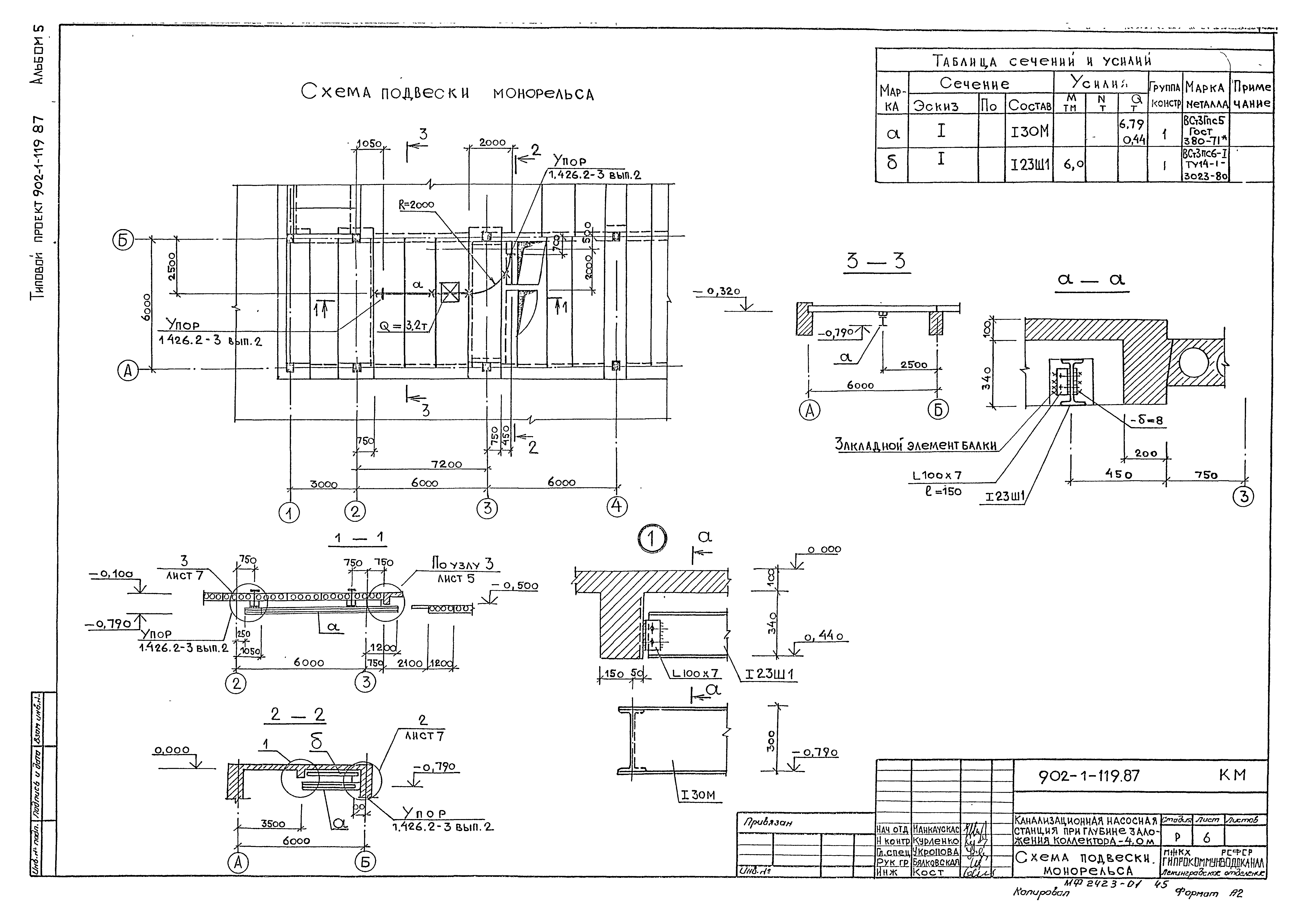
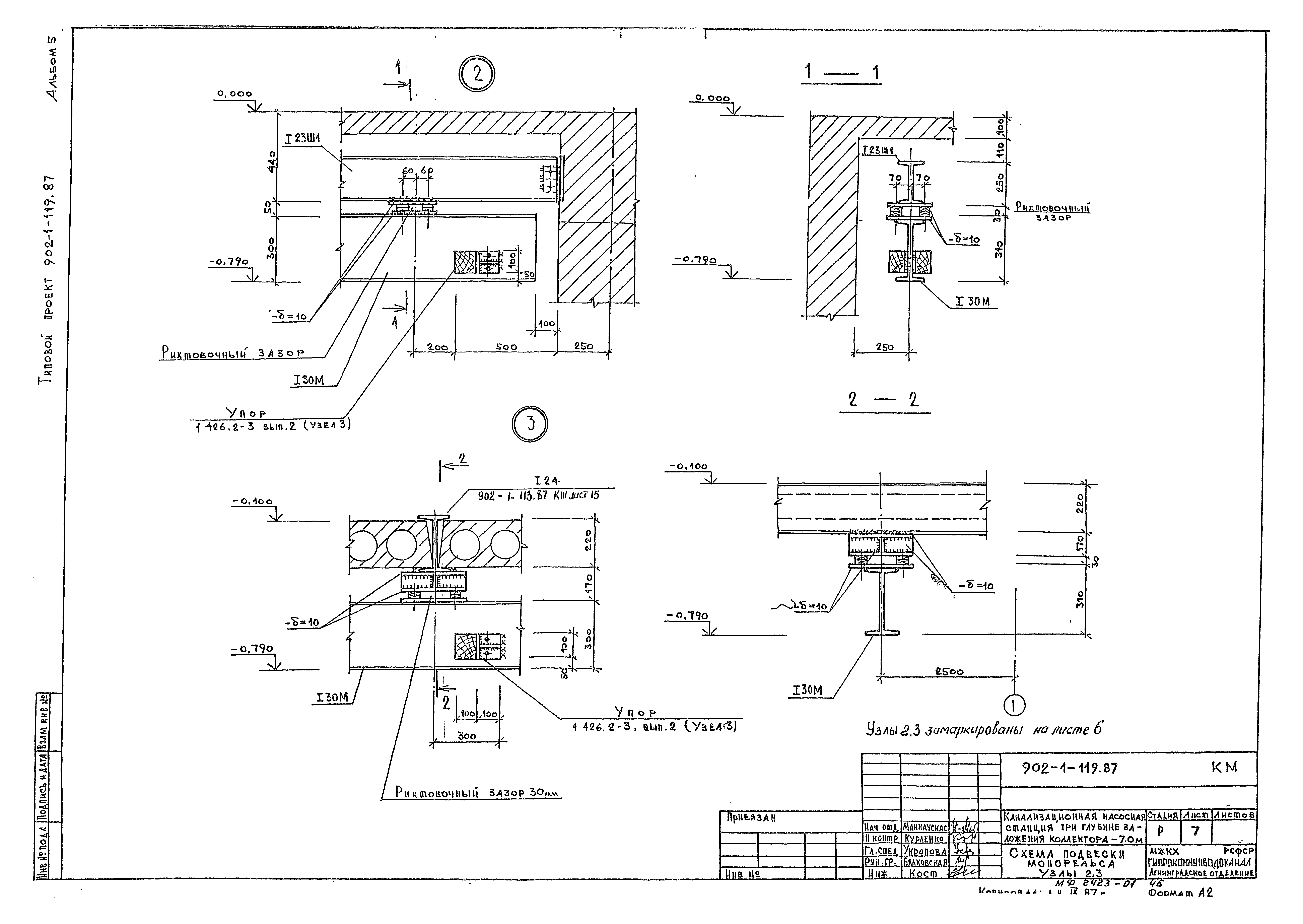
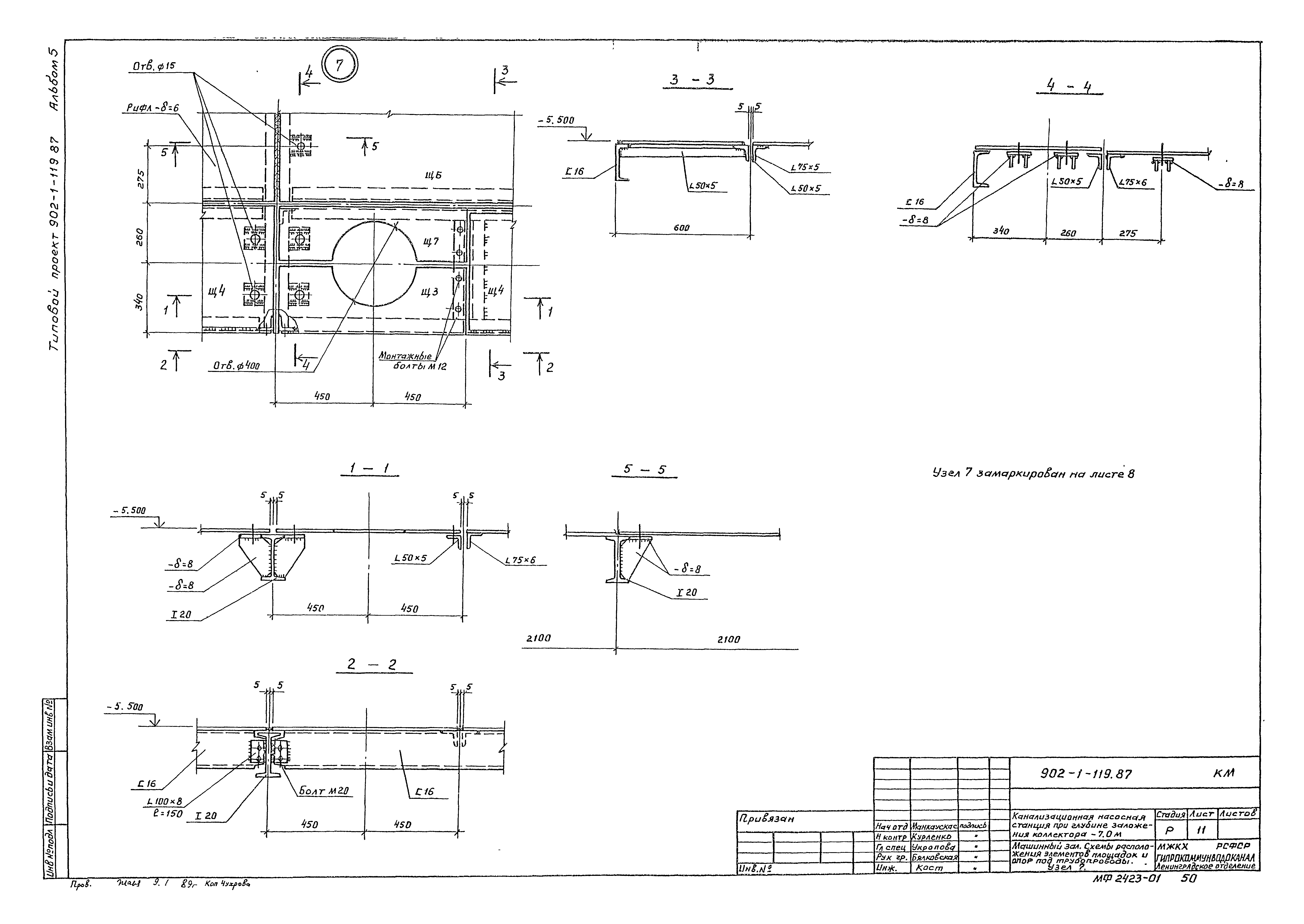
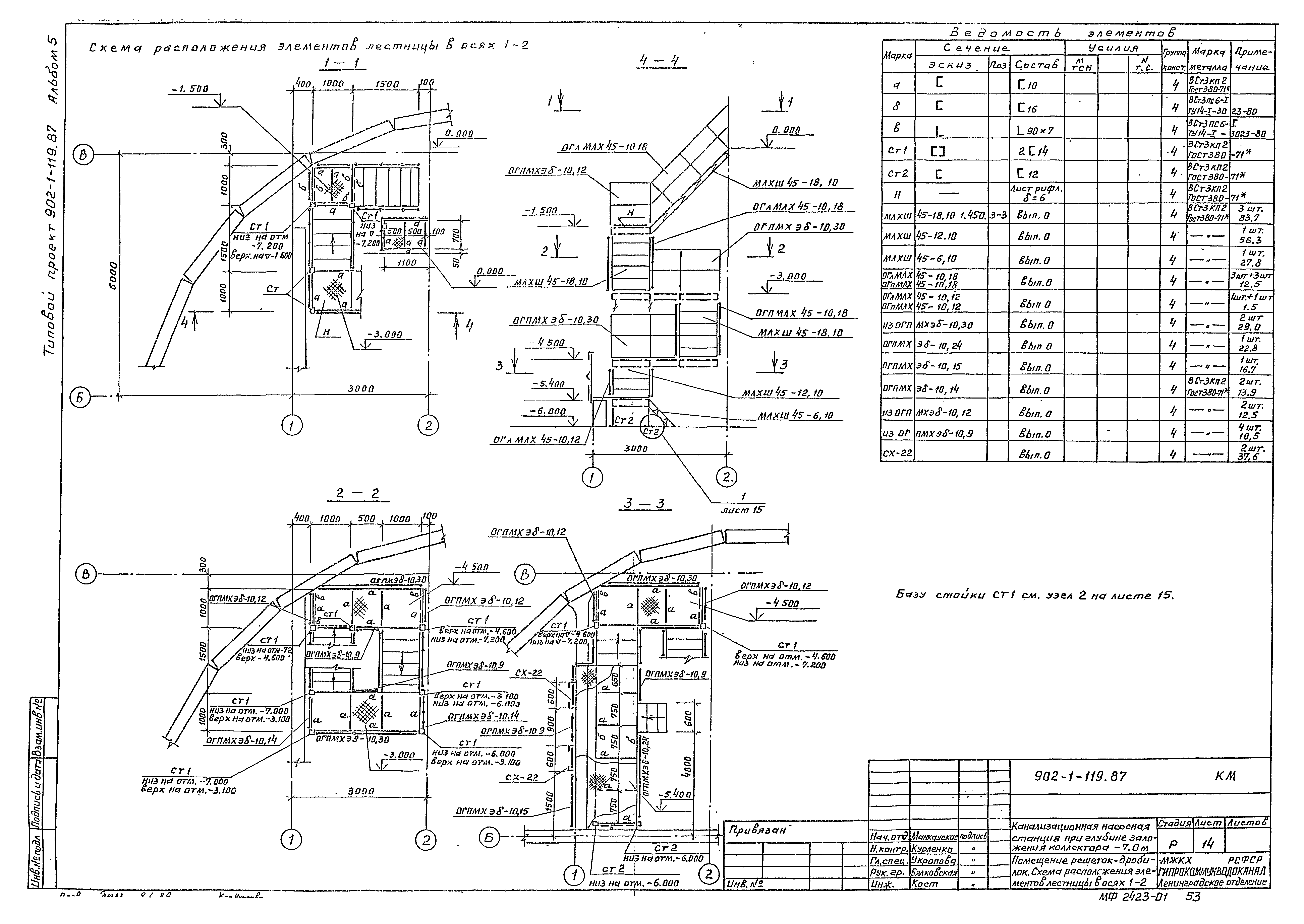
| Оглавление: | Содержание альбома Основной комплект марки КЖ Общие данные (начало) Общие данные (окончание) План на отм. -9.250,-6.000 Разрезы 1-1 - 3-3 Схема расположения элементов подземной части Схема расположения стеновых панелей стакана и разделительной стенки. Внутренняя развертка стакана Схема расположения стеновых панелей стакана и разделительной стенки. Разрезы 2-2 - 3-3. Развертка разделительной стенки Схема расположения стеновых панелей стакана и разделительной стенки. Монолитный участок УМ1 Схема расположения стеновых панелей стакана и разделительной стенки. Монолитные участки УМ2,УМ3 Схема расположения опорных блоков и форшахты Плита днища ПДМ1 (сухие грунты). Армирование Плита днища ПДМ1 (сухие грунты). Разрезы 1-1 - 2-2. Узлы А,Б. Армирование Плита днища ПДМ1 (сухие грунты). Схема расположения выпусков. Спецификации Плита днища ПДМ1. Узел установки патрубка для откачки воды Плита днища ПДМ1 (обводненные грунты). Армирование Плита днища ПДМ1 (обводненные грунты). Разрезы 1-1 - 2-2. Узлы А,Б. Армирование Плита днища ПДМ1 (обводненные грунты). Схема расположения выпусков. Спецификации РКМ2 перекрытие на отм. -7.200. Опалубочный чертеж РКМ2 перекрытие на отм. -7.200. Разрезы 1-1 - 4-4 РКМ3 перекрытие на отм. -7.200. Опалубочный чертеж РКМ3 перекрытие на отм. -7.200. Разрезы 1-1 - 4-4 РКМ2, РКМ3 перекрытие на отм. -7.200. Лотки ЛТМ1,ЛТМ2 РКМ2 перекрытие на отм. -7.200. Лоток ЛТМ1. Фрагмент 1 РКМ3 перекрытие на отм. -7.200. Лоток ЛТМ2. Фрагмент 2 РКМ2, РКМ3 перекрытие на отм. -7.200. Схема расположения плит перекрытия РКМ2, РКМ3 перекрытие на отм. -7.200. Плиты ПМ1,ПМ2. Армирование РКМ2, РКМ3 перекрытие на отм. -7.200. Плита ПМ1. Армирование. Разрезы 3-3 - 6-6. Колонна КМ1 РКМ2, РКМ3 перекрытие на отм. -7.200. Балки БМ1-БМ4. Армирование РКМ2, РКМ3 перекрытие на отм. -7.200. Балки БМ1,БМ5. Колонна КМ2 РКМ2 перекрытие на отм. -7.200. Спецификация (начало) РКМ2 перекрытие на отм. -7.200. Спецификация (окончание) РКМ3 перекрытие на отм. -7.200. Спецификация (начало) РКМ3 перекрытие на отм. -7.200. Спецификация (окончание) Схемы расположения опор под трубопроводы Схемы расположения колонн и фундаментов под оборудование Обвязочное кольцо ОКМ1 Основной комплект марки КМ Общие данные (начало) Общие данные (продолжение) Общие данные (окончание) Схема подвески кран-балки Схема подвески кран-балки. Узлы 1-3 Схема подвески монорельса Схема подвески монорельса. Узлы 2,3 Машинный зал. Схемы расположения элементов площадок и опор под трубопроводы Машинный зал. Схемы расположения элементов площадок и опор под трубопроводы. Разрезы 3-3,4-4 Машинный зал. Схемы расположения элементов площадок и опор под трубопроводы. Узлы 1-6 Машинный зал. Схемы расположения элементов площадок и опор под трубопроводы. Узел 7 Помещение решеток-дробилок. Схемы расположения щитов и балок на отм. -6.000 Машинный зал. Схемы расположения элементов лестницы Помещение решеток-дробилок. Схемы расположения элементов лестниц в осях 1-2 Помещение решеток-дробилок. Схемы расположения стремянки у оси 3 |
| Разработан: | Ленинградское отделение Гипрокоммунводоканала |
| Утверждён: | 09.12.1987 Госстрой РСФСР (Russian Federation Gosstroy 331) |




















































