Скачать Типовой проект 901-4-90.86 Альбом II. Технологические трубопроводы и сигнализация (из ТП 901-4-93.86)Дата актуализации: 01.01.2021
|
| Обозначение: | Типовой проект 901-4-90.86 |
| Обозначение англ: | 901-4-90.86 |
| Статус: | действует |
| Название рус.: | Альбом II. Технологические трубопроводы и сигнализация (из ТП 901-4-93.86) |
| Дата добавления в базу: | 01.09.2013 |
| Дата актуализации: | 01.01.2021 |
| Дата введения: | 12.11.1986 |
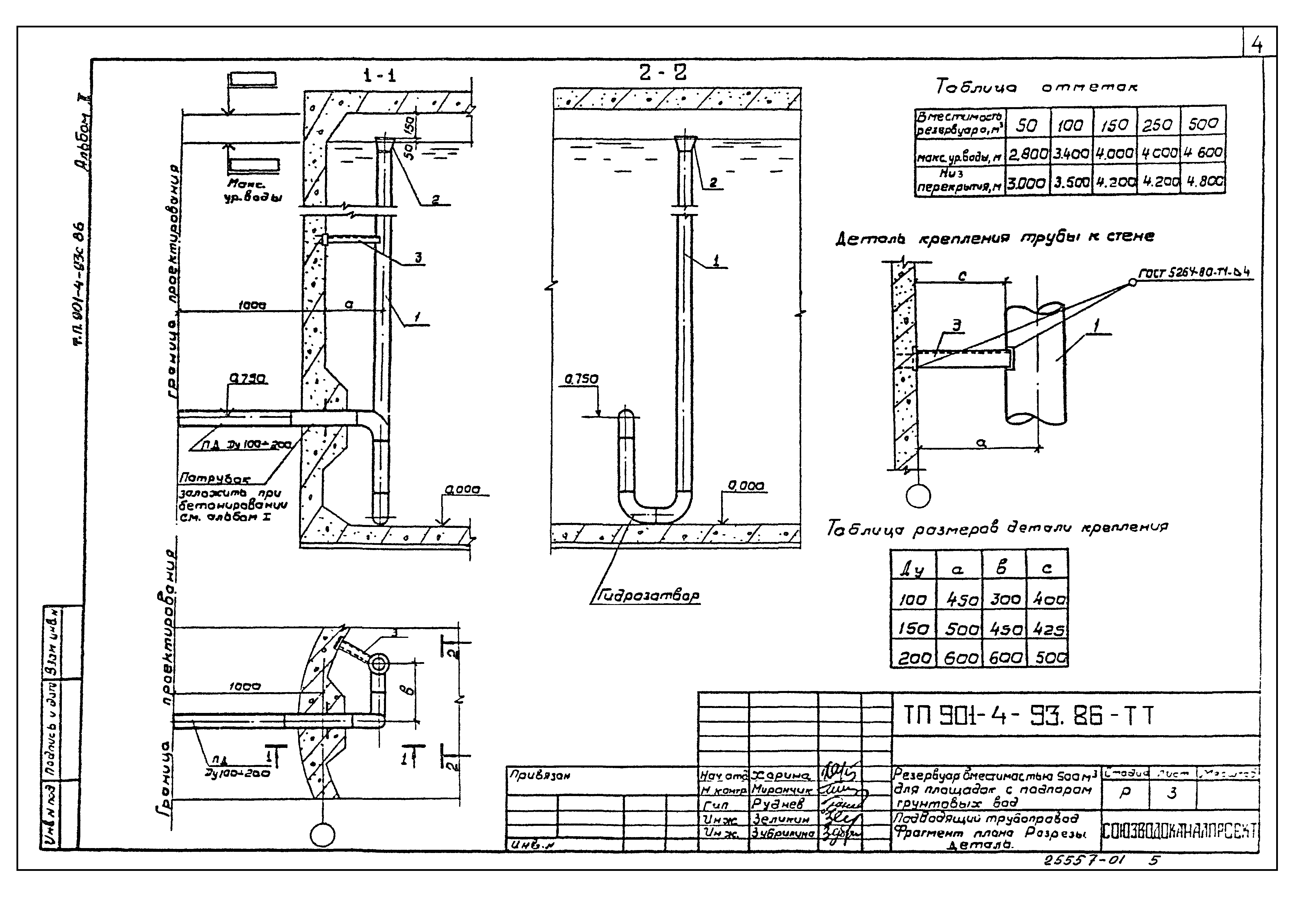
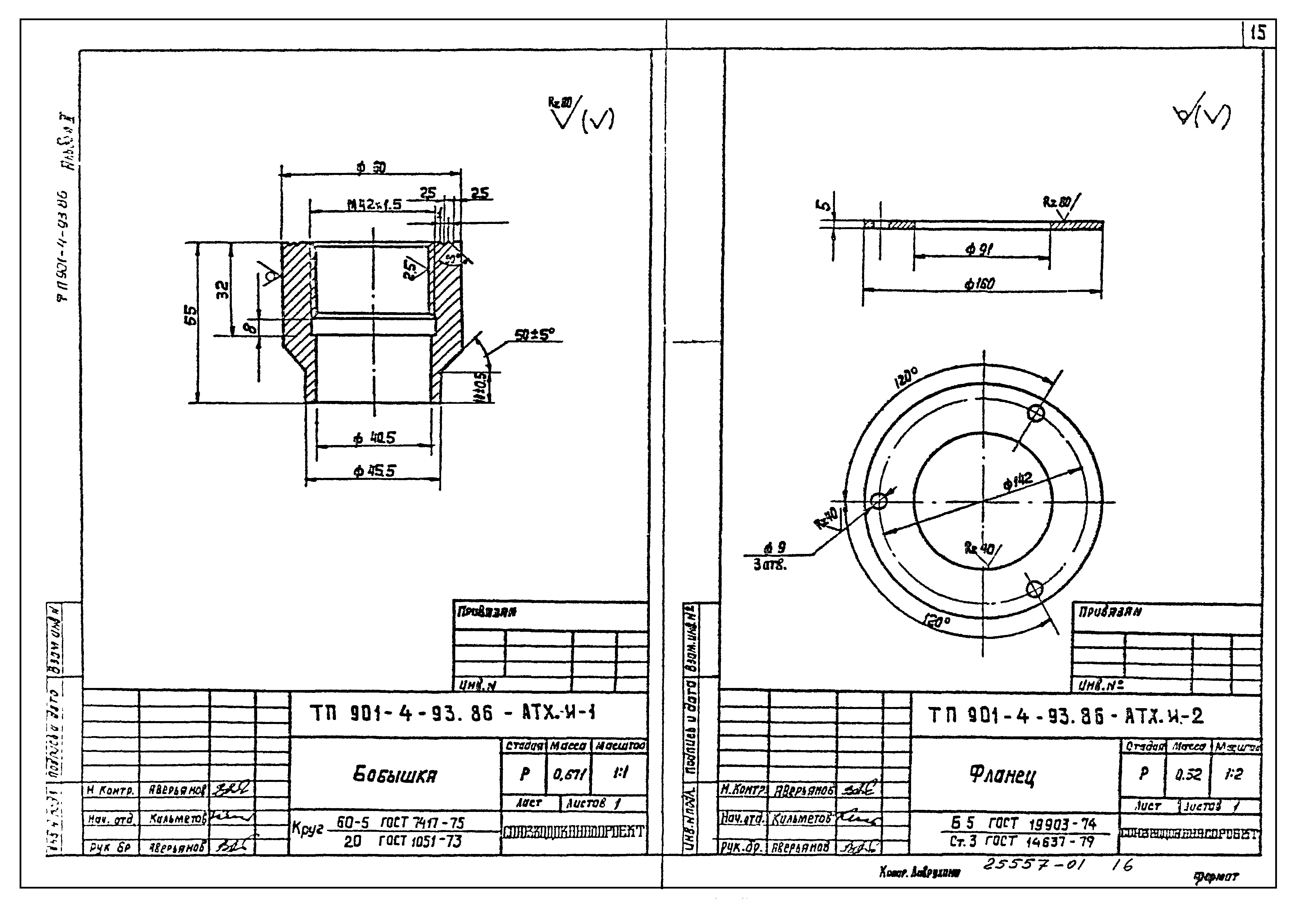
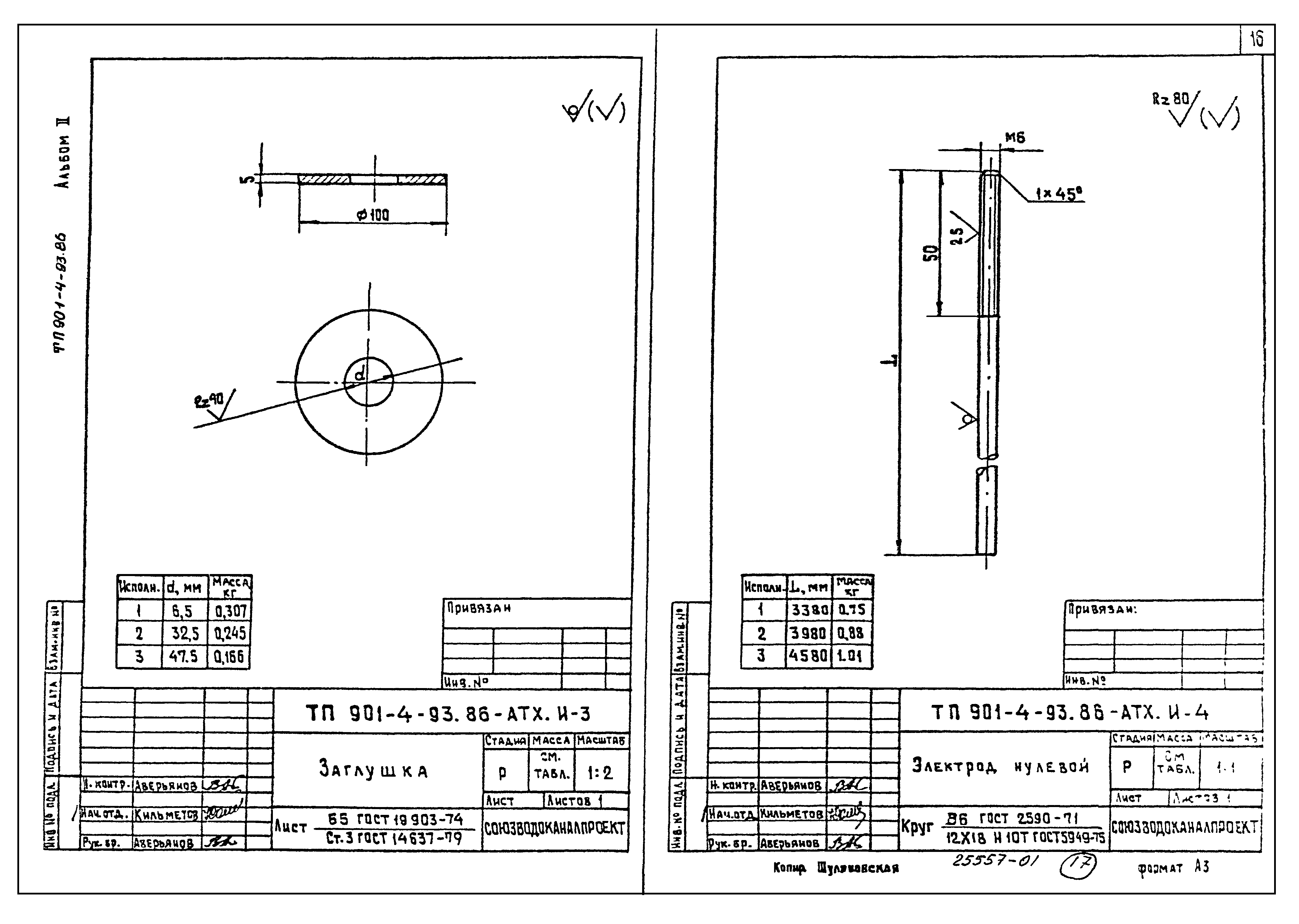
| Оглавление: | Общие данные Планы Подводящий трубопровод. Фрагмент плана. Разрезы. Деталь Подводящий трубопровод. Спецификация Переливное устройство. Фрагмент плана. Разрезы. Деталь Переливное устройство. Спецификация Прилагаемые документы 901-4-93.86-ТТН-ТУ Технические условия 901-4-93.86-ТТН-1 Деталь отводящего трубопровода 901-4-93.86-ТТН-2 Деталь спускного трубопровода Общие данные (начало) Общие данные (окончание) Расположение датчиков в камере приборов Установка датчика уровня УКС-1 и первичного преобразователя уровнемера РУС-0 Установка датчика уровня ЭРСУ-3 (ЭИУ-2) и нулевого электрода Прилагаемые документы АТХ.И-1 Бобышка АТХ.И-2 Фланец АТХ.И-3 Заглушка АТХ.И-4 Электрод нулевой |
| Разработан: | Союзводоканалпроект НИИЖБ |
| Утверждён: | 06.11.1986 Госстрой СССР (Государственный комитет Совета Министров СССР по делам строительства) (USSR Gosstroy АЧ-73) |
















