Скачать Типовой проект 211-1-534.92 Альбом 1. Архитектурно-строительные чертежи ниже и выше отм. 0.000. Технологические чертежиДата актуализации: 01.01.2021
|
| Обозначение: | Типовой проект 211-1-534.92 |
| Обозначение англ: | 211-1-534.92 |
| Статус: | не определен законодательством |
| Название рус.: | Альбом 1. Архитектурно-строительные чертежи ниже и выше отм. 0.000. Технологические чертежи |
| Дата добавления в базу: | 01.09.2013 |
| Дата актуализации: | 01.01.2021 |
| Дата введения: | 10.01.1993 |
| Дата окончания срока действия: | 30.06.2003 |
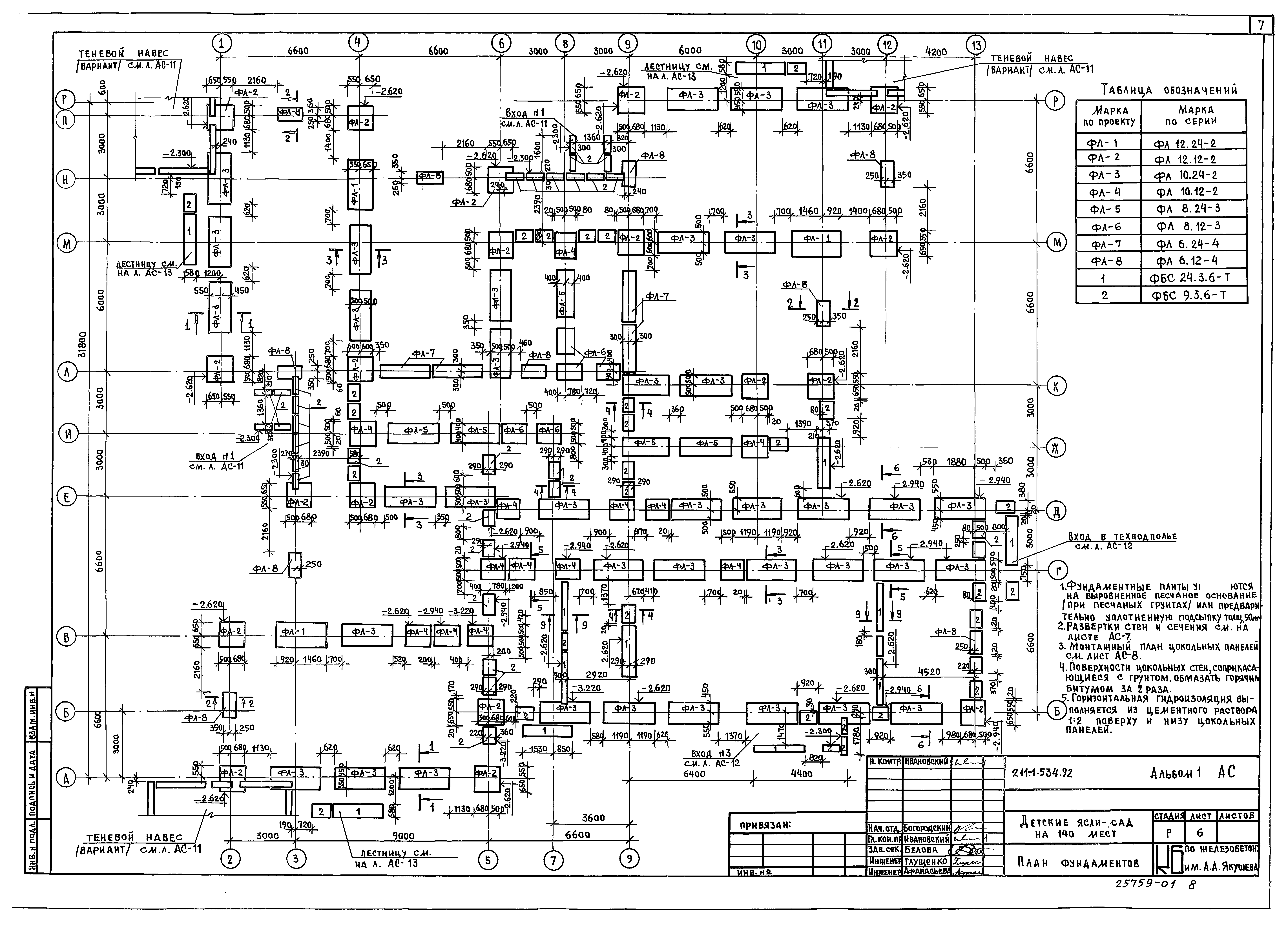
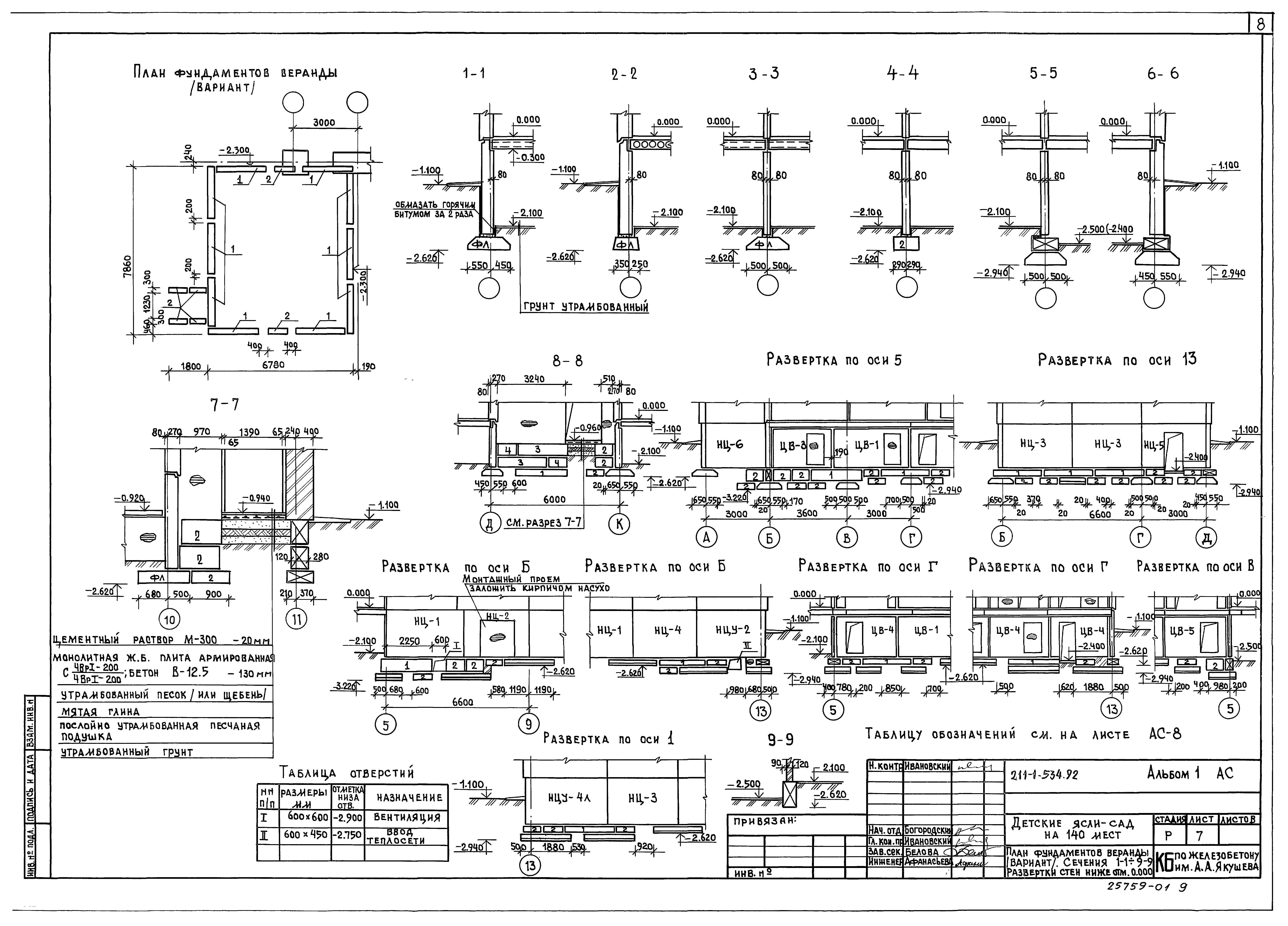
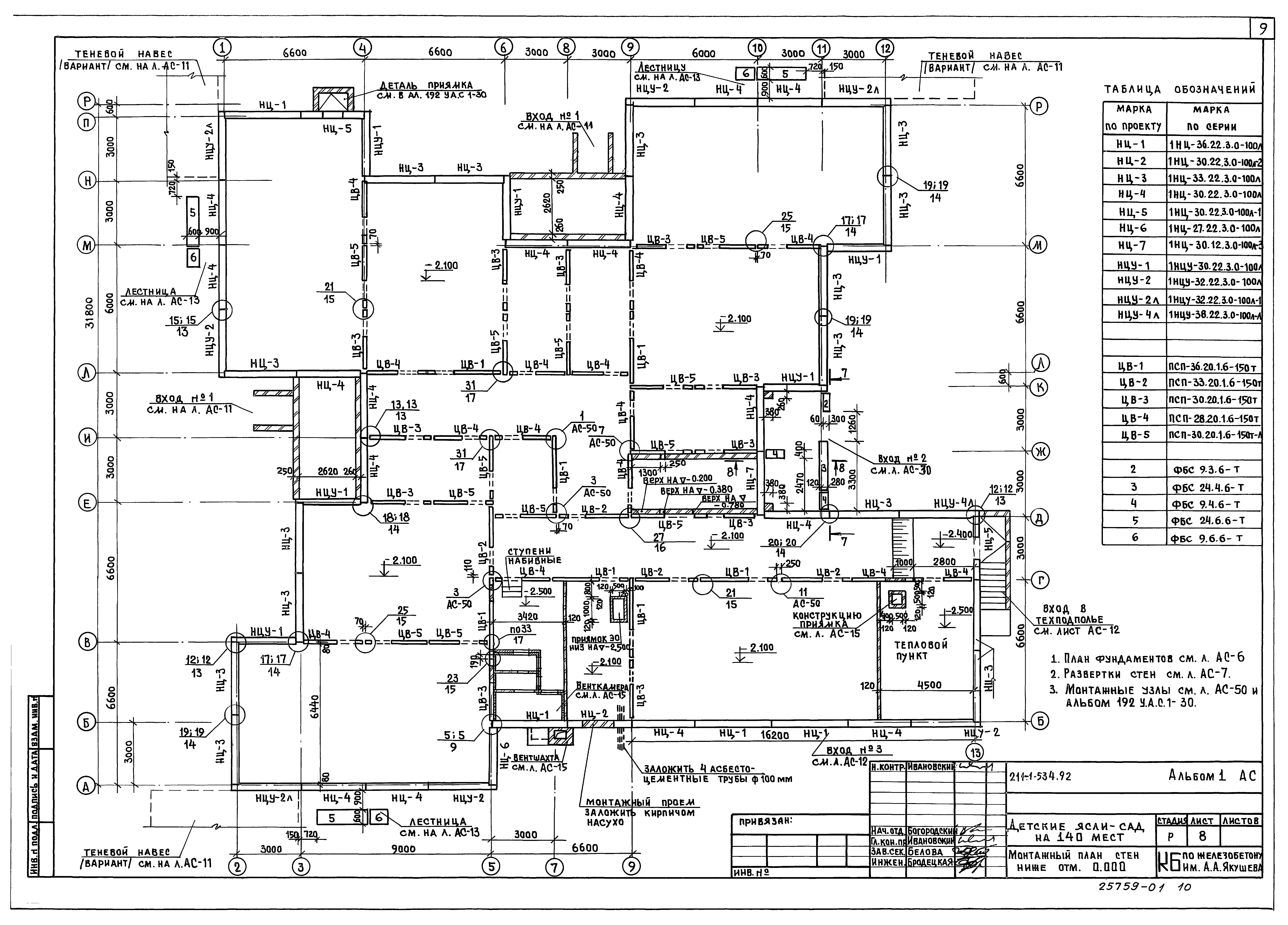
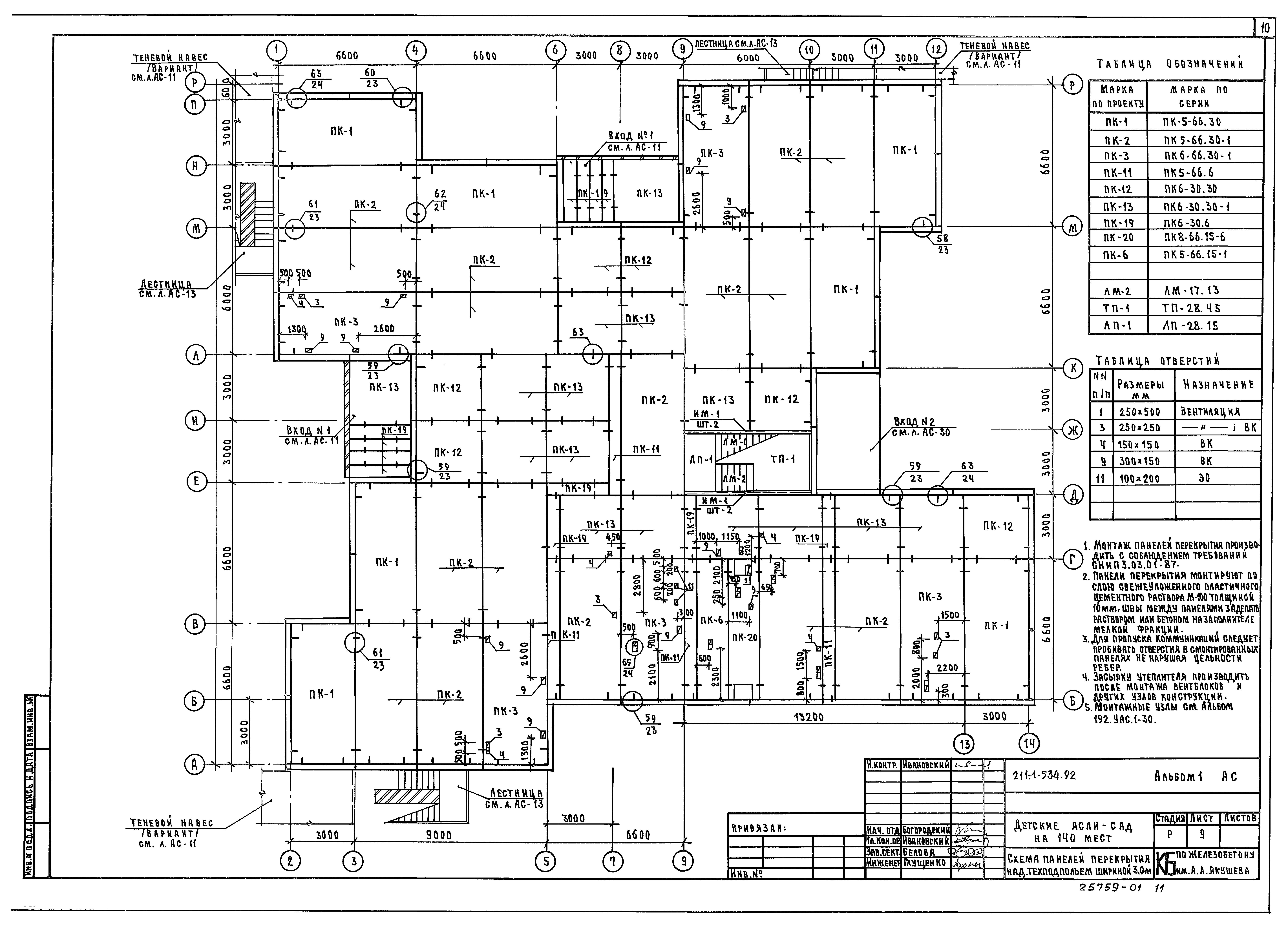
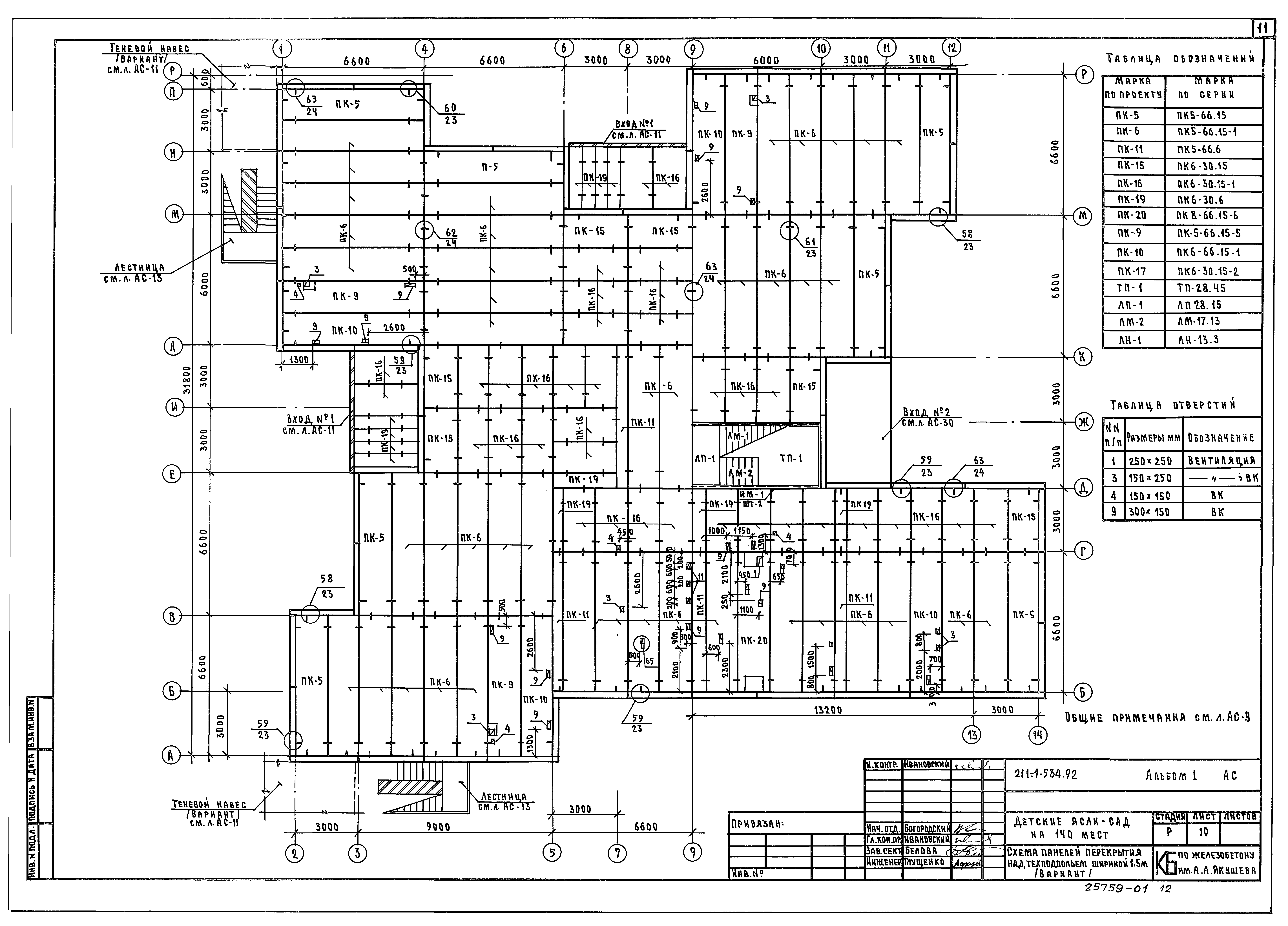
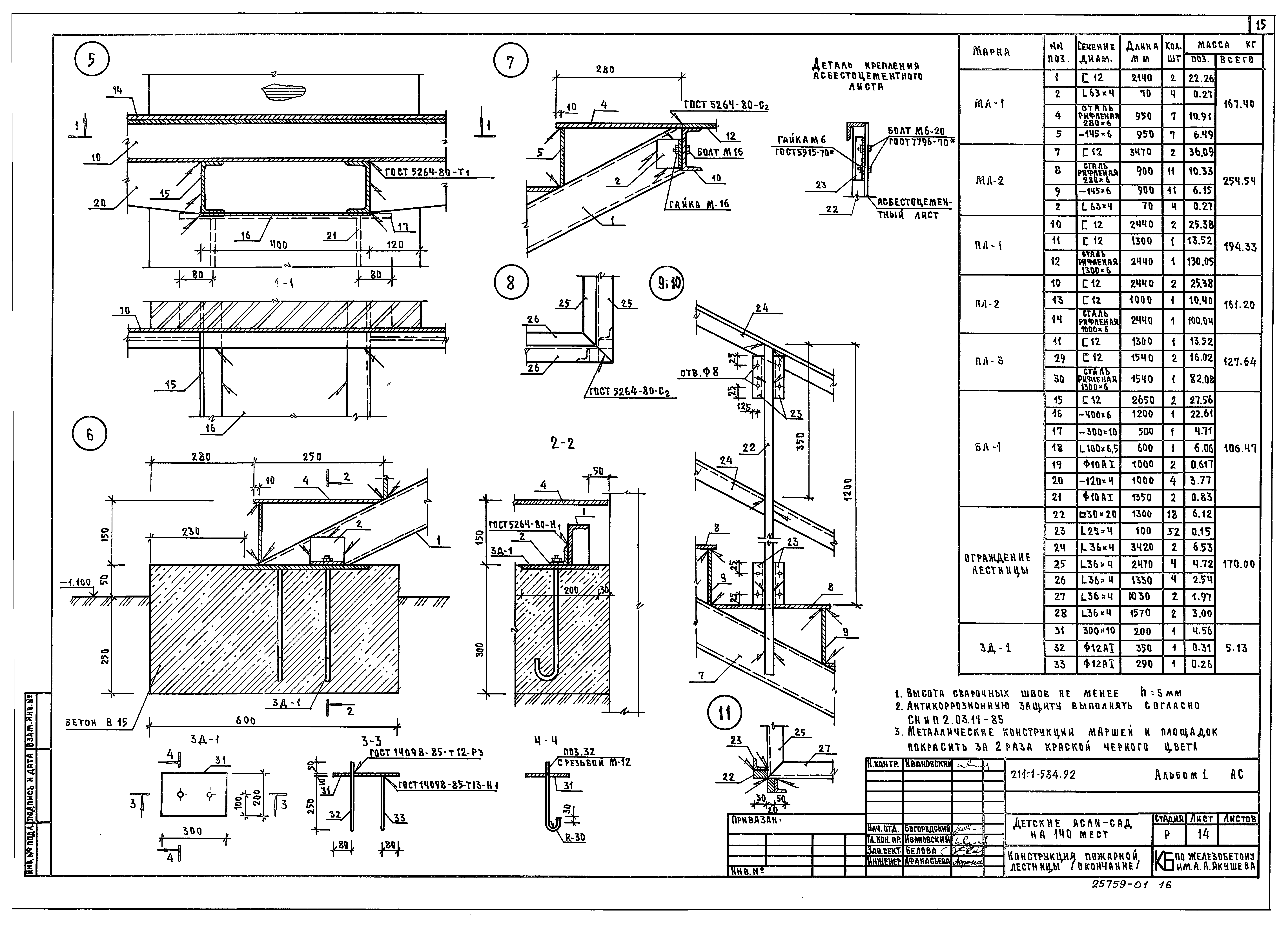
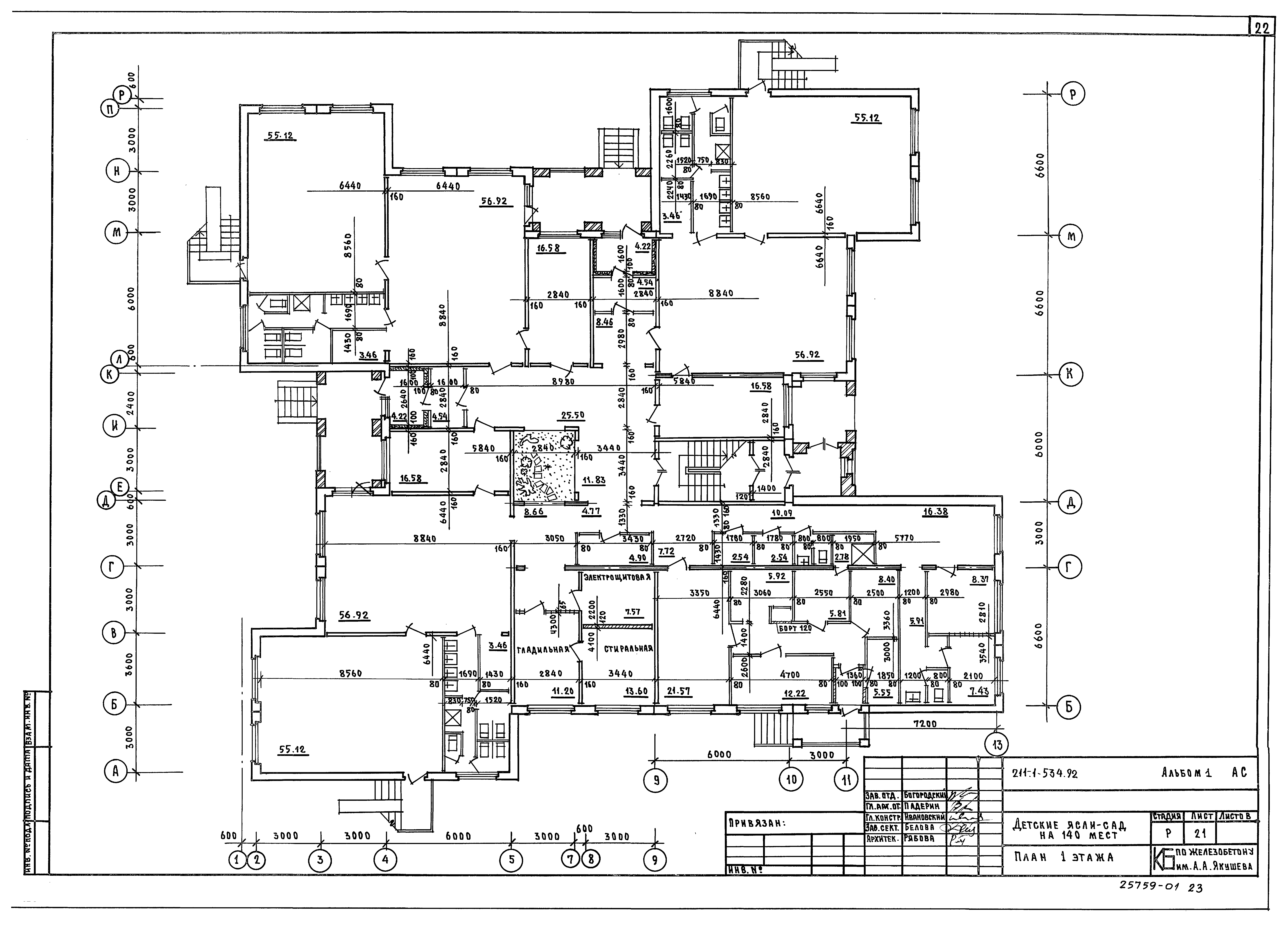
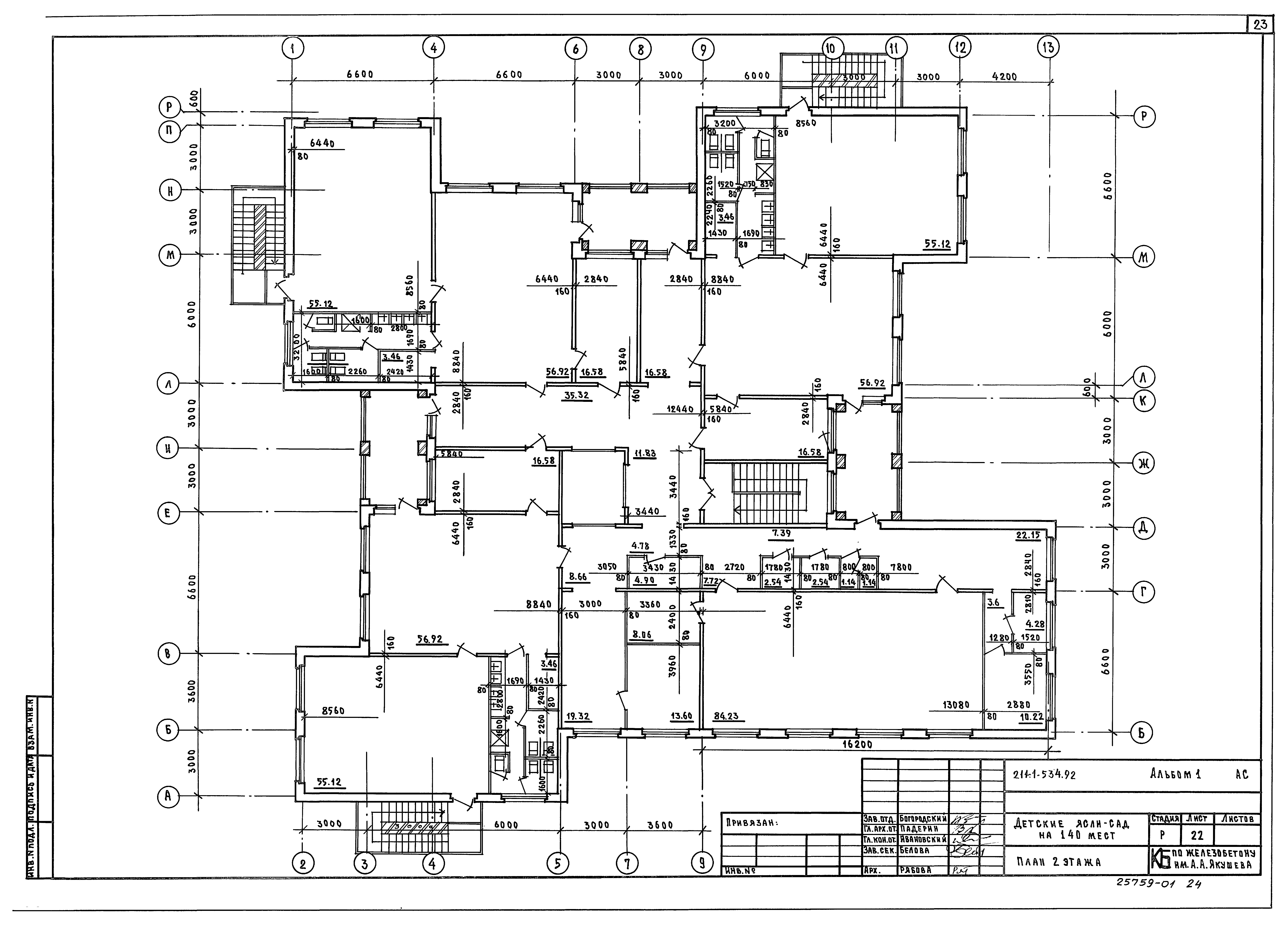
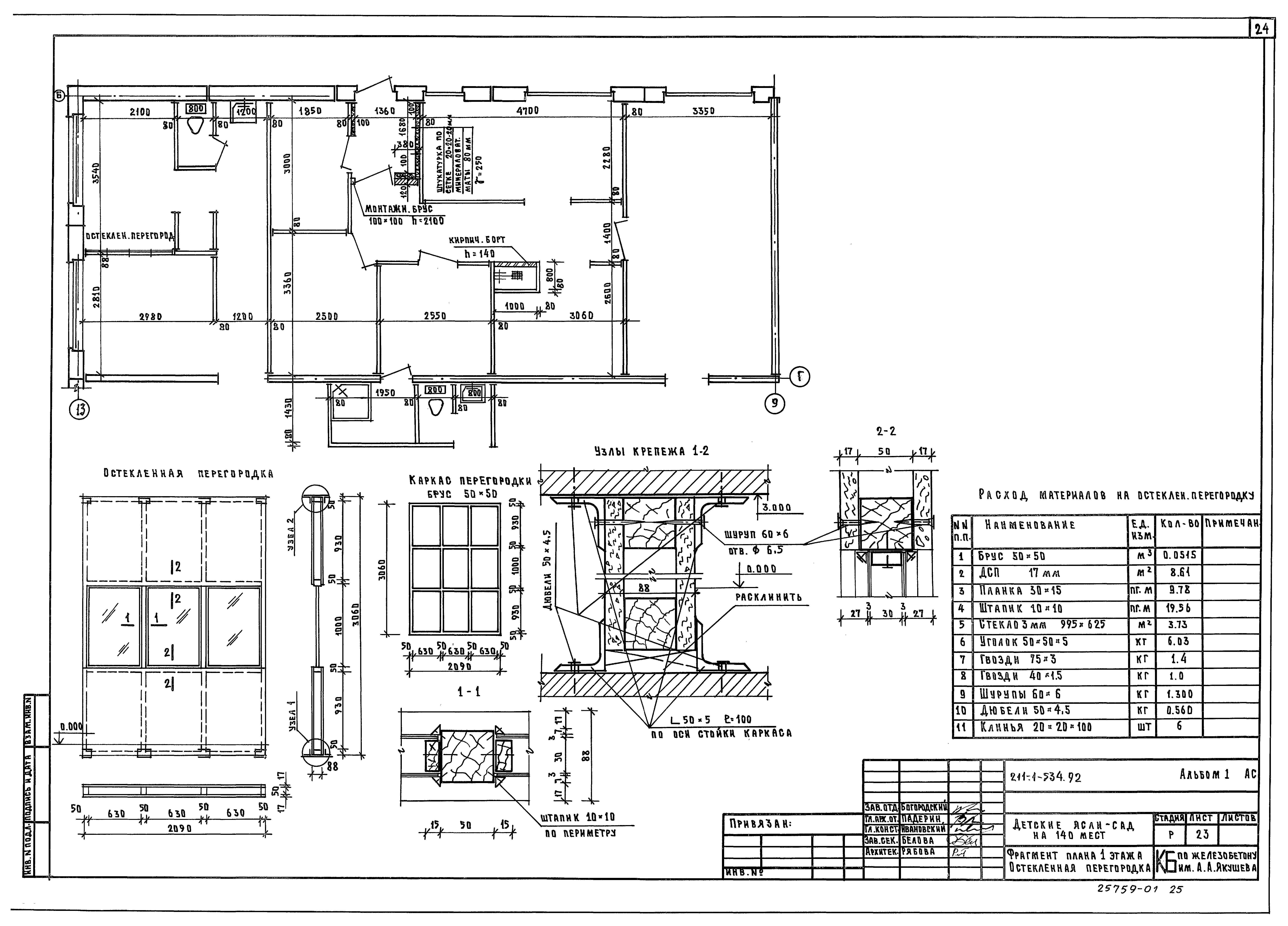
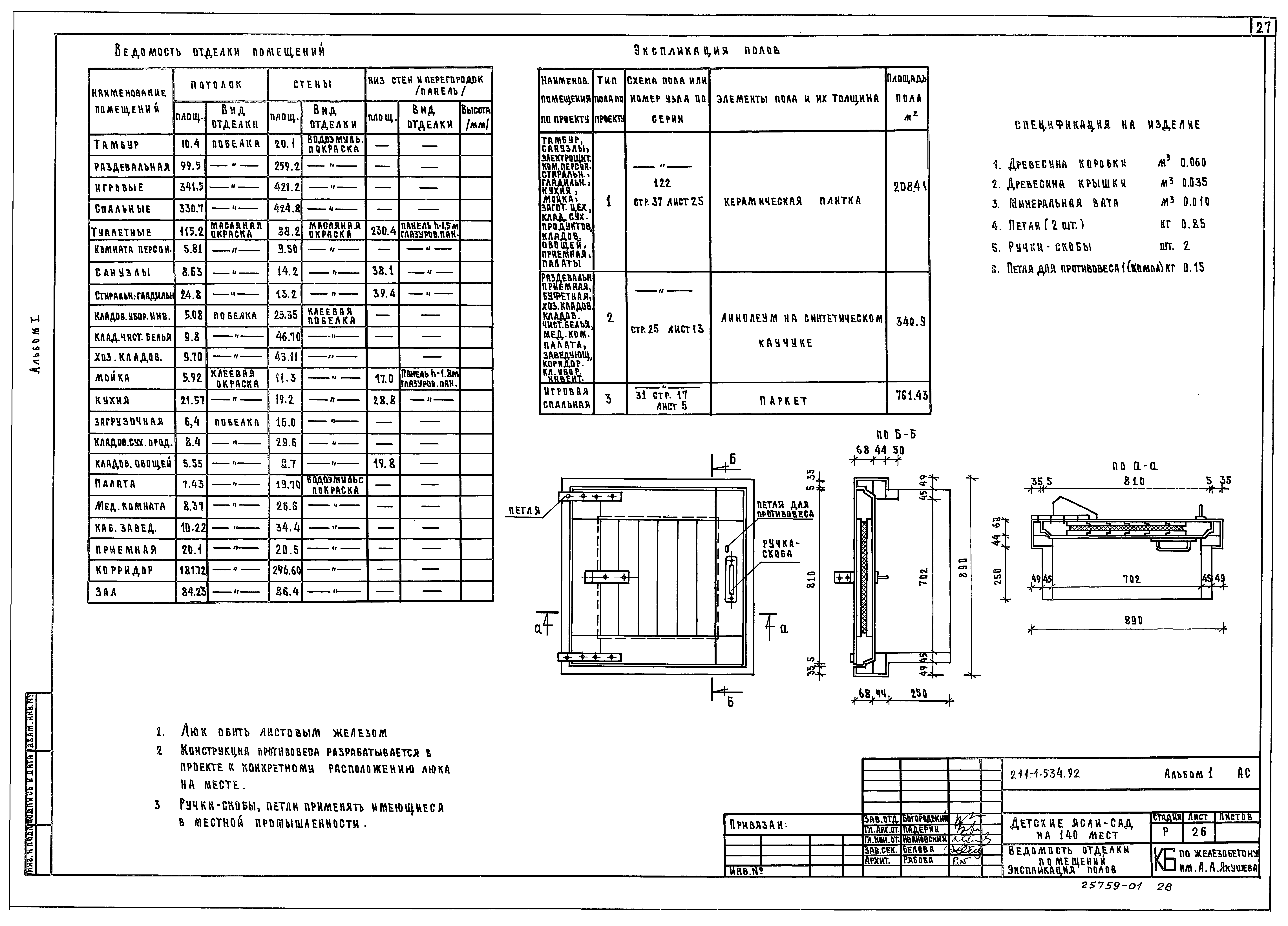
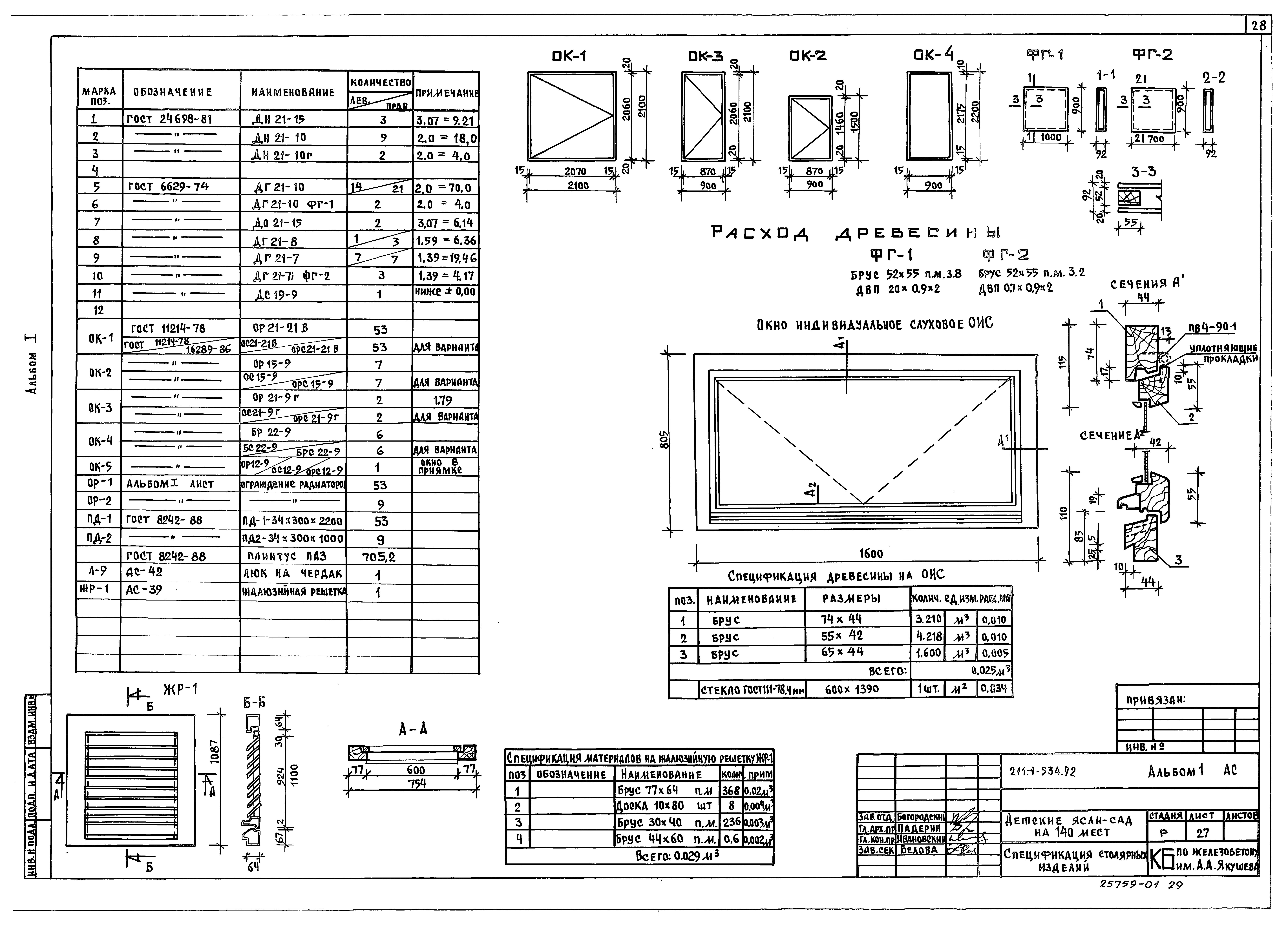
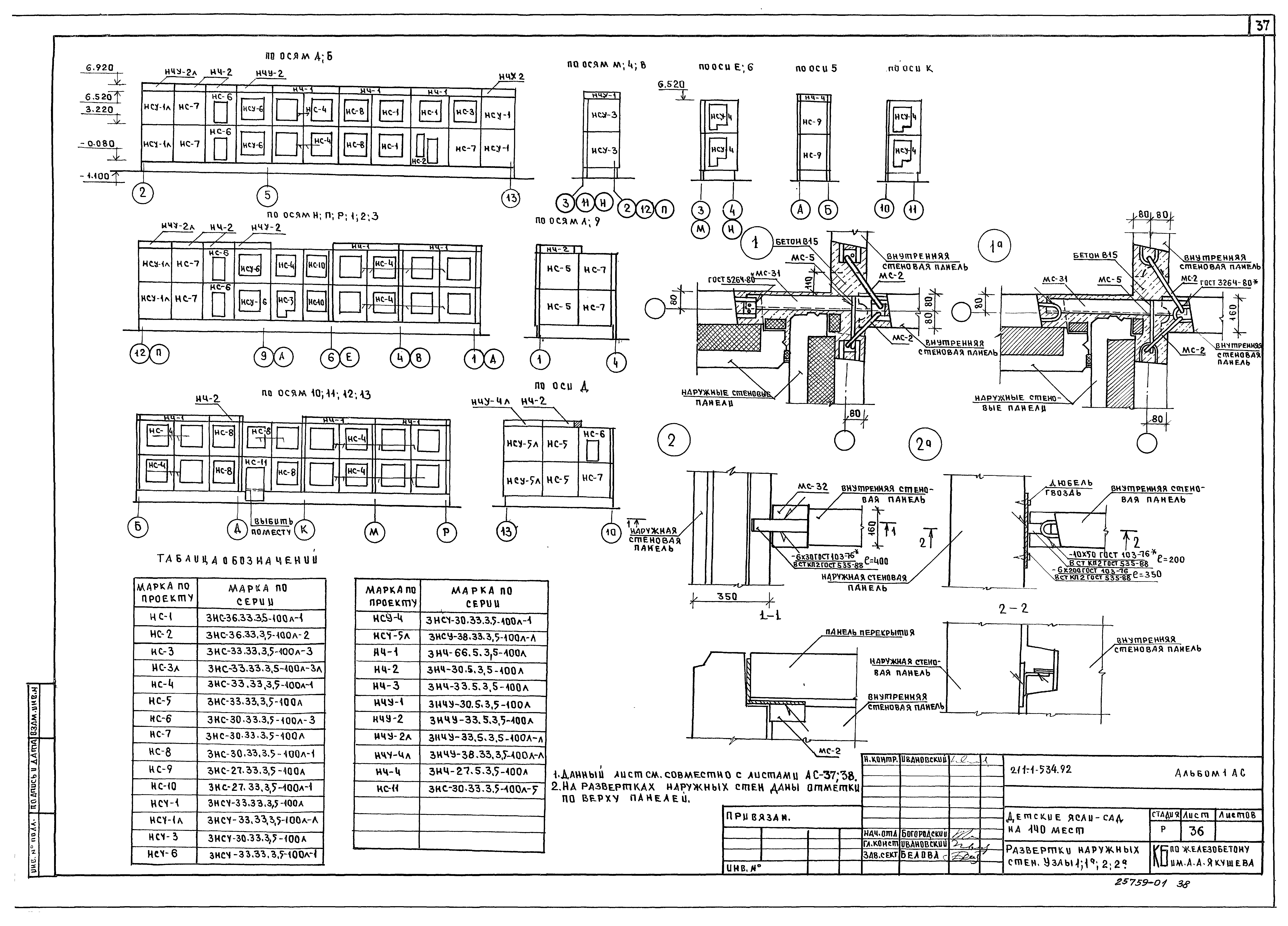
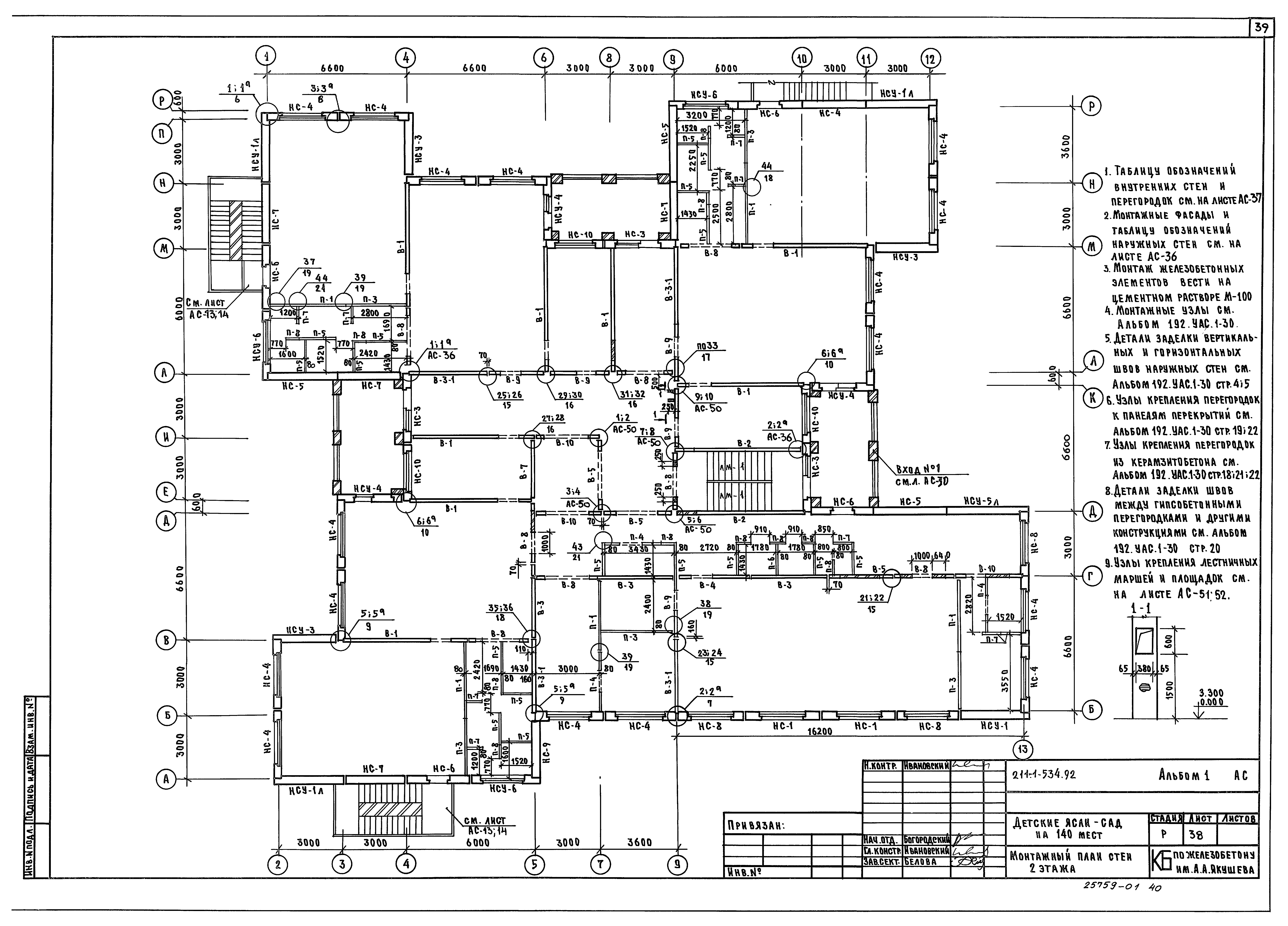
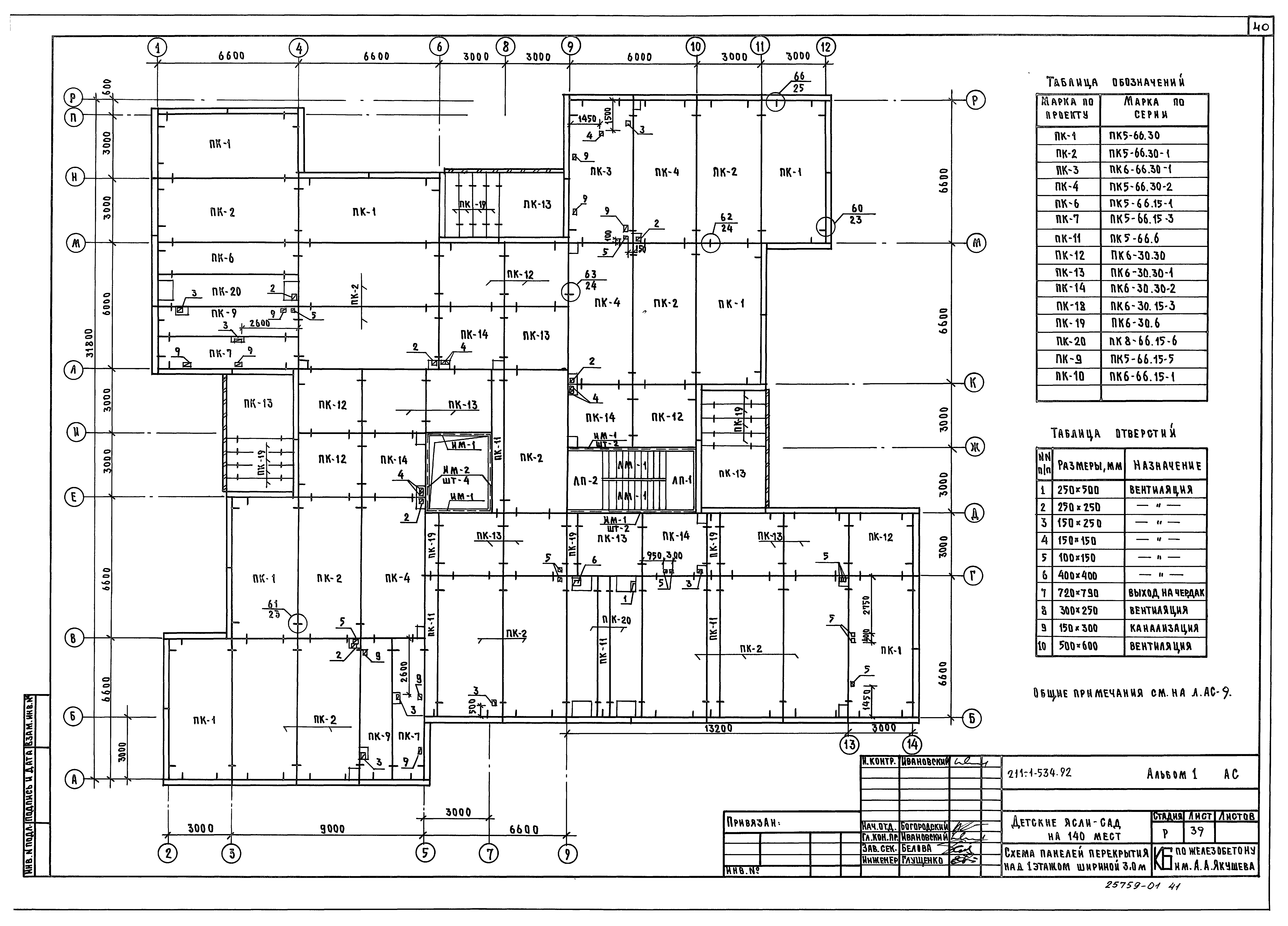
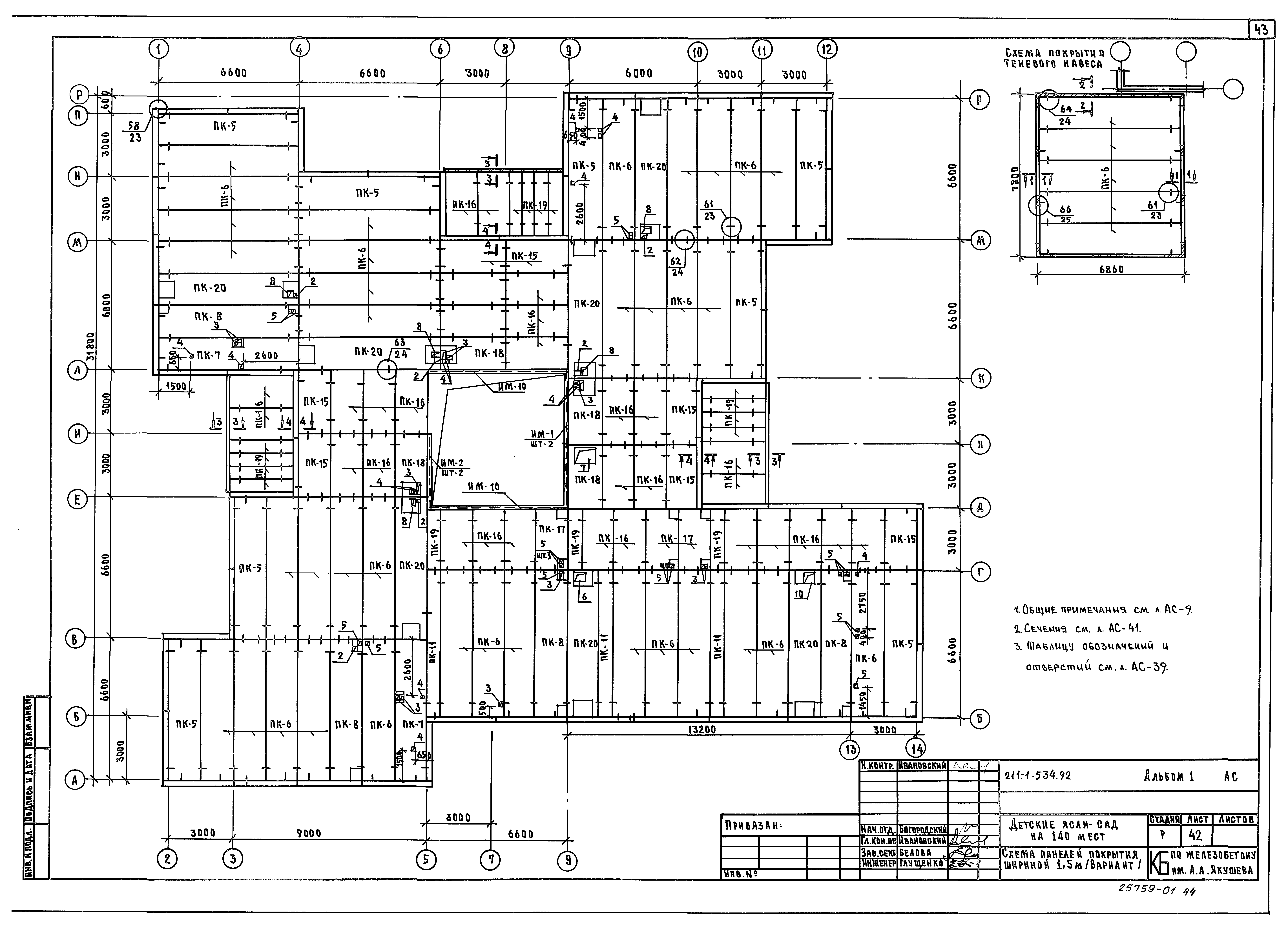
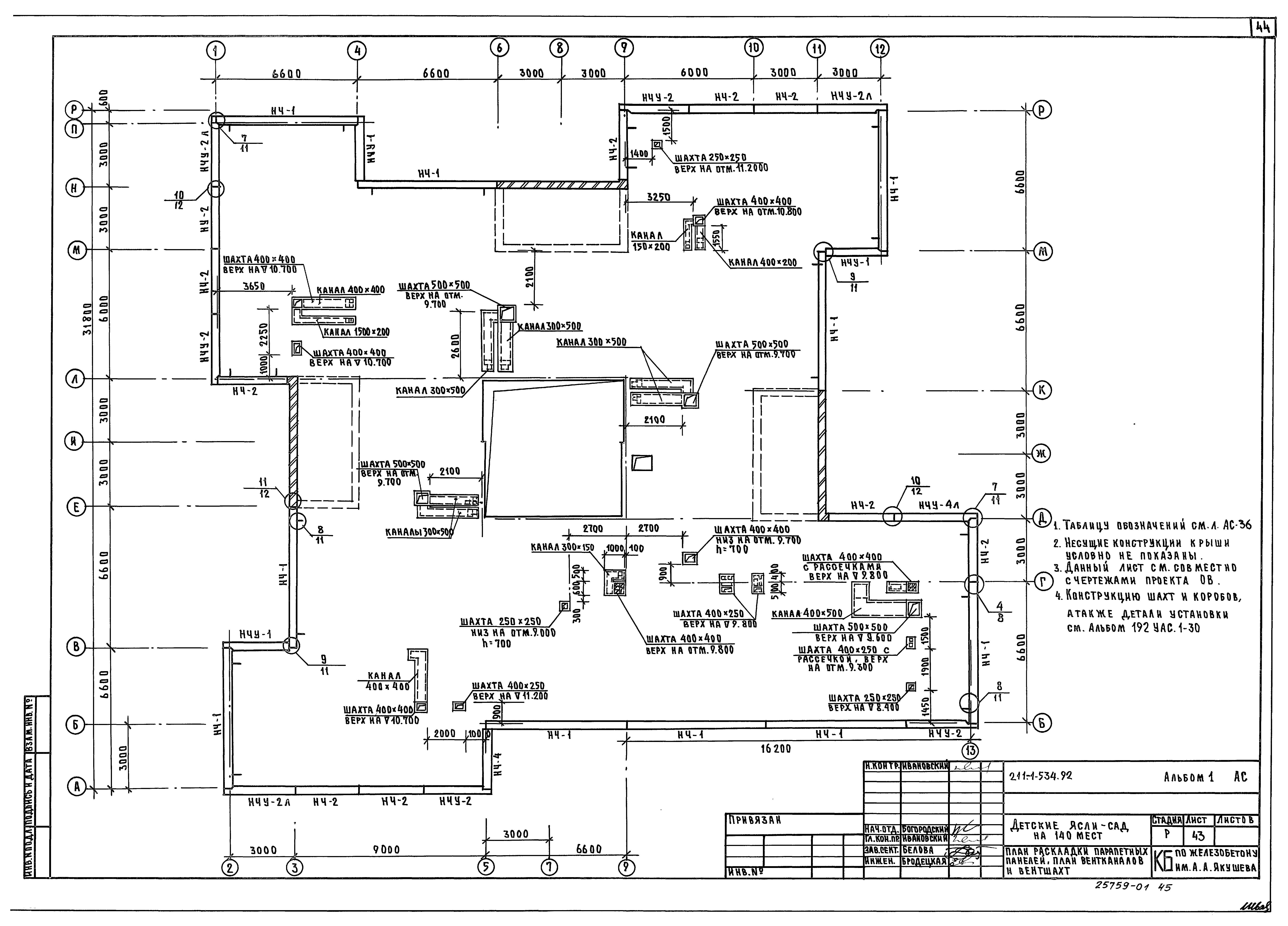
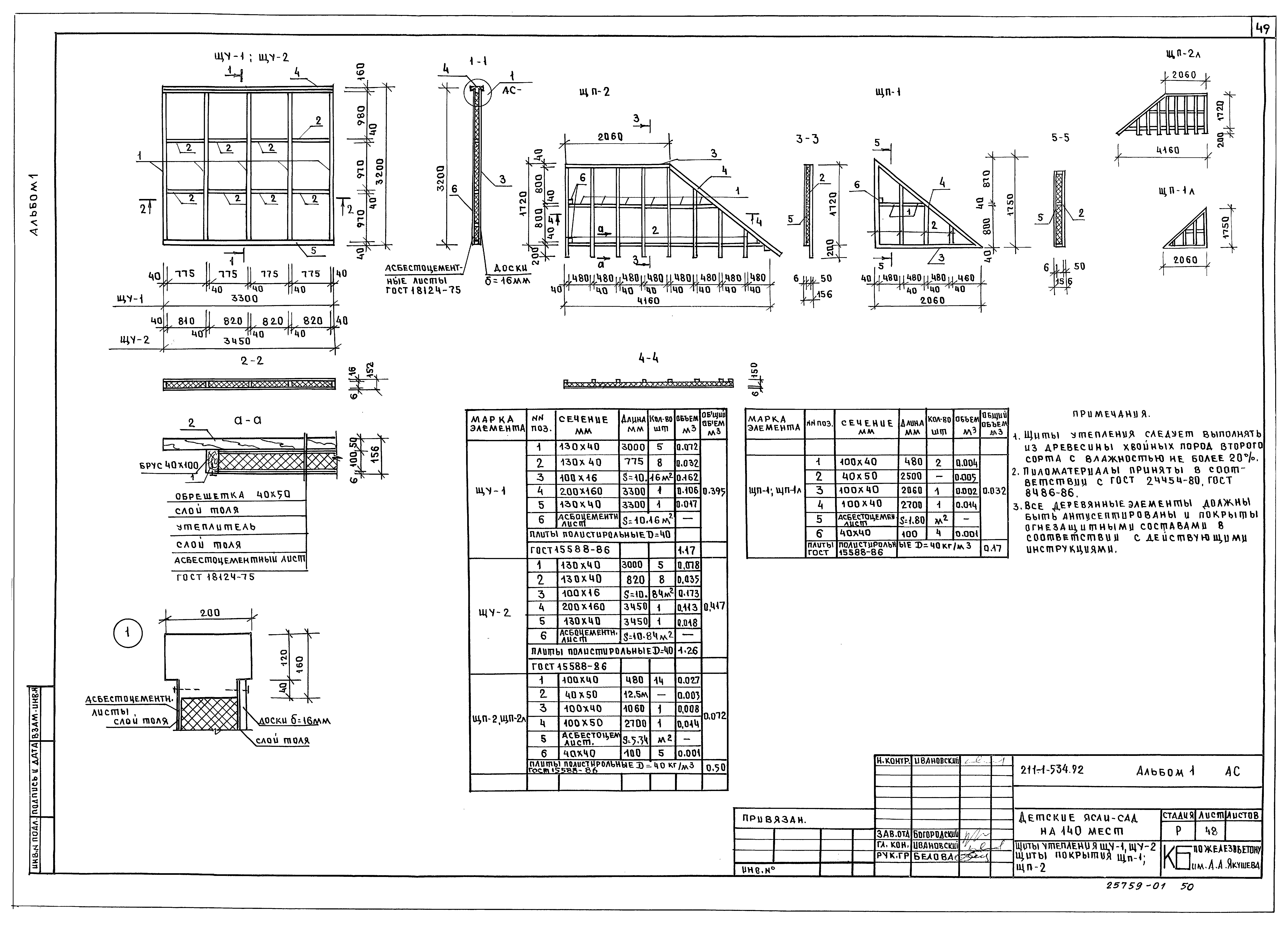
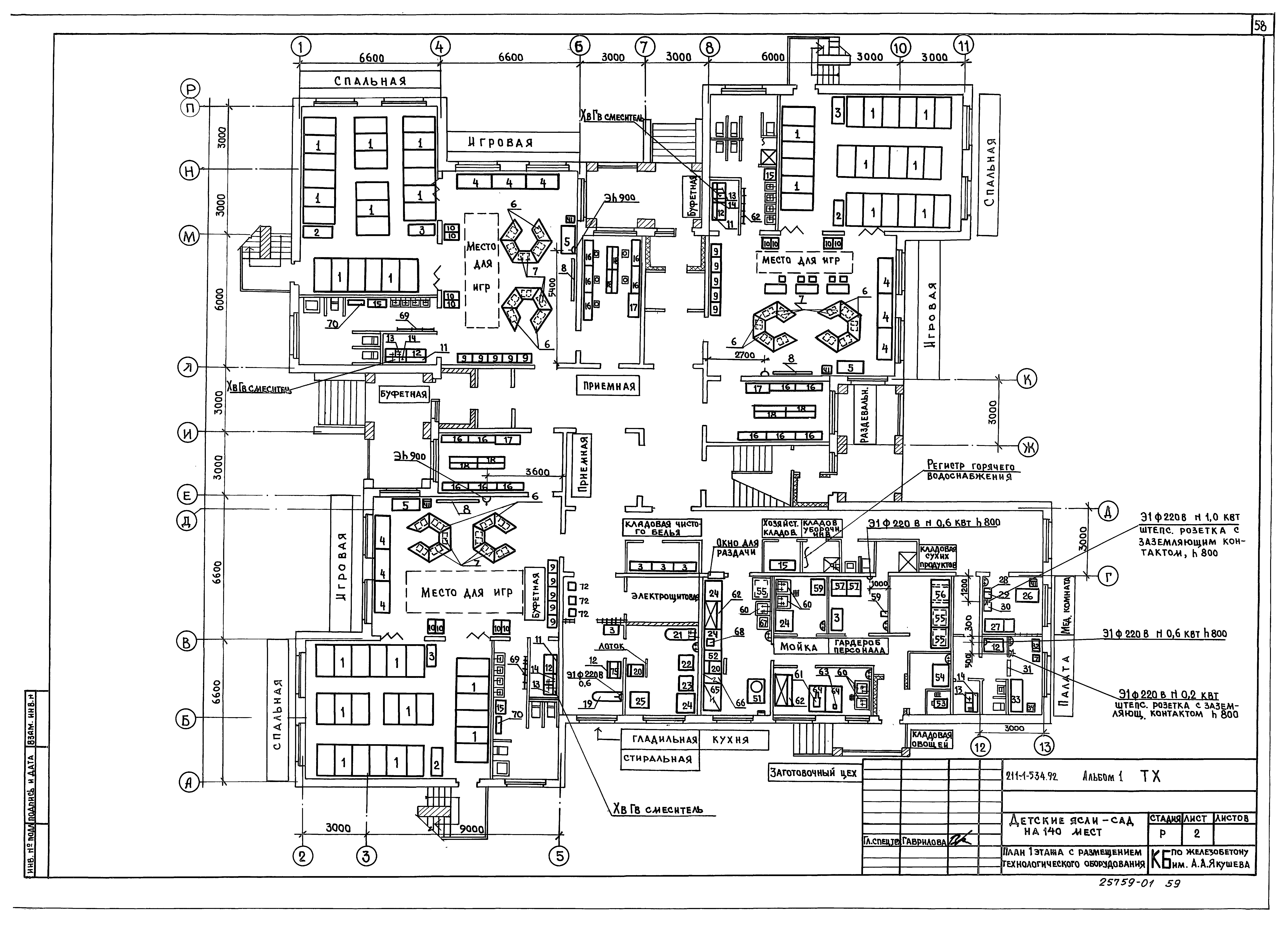
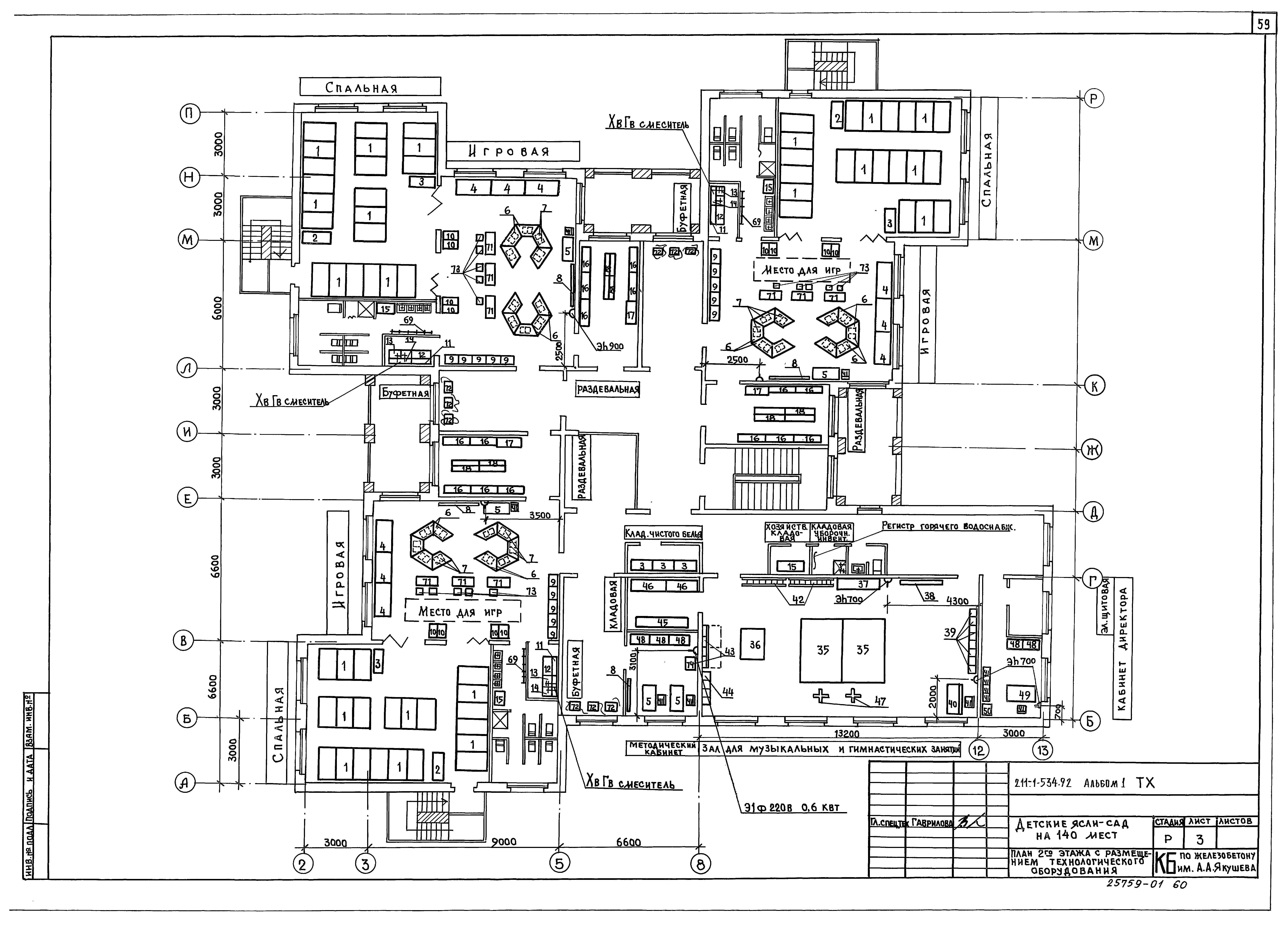
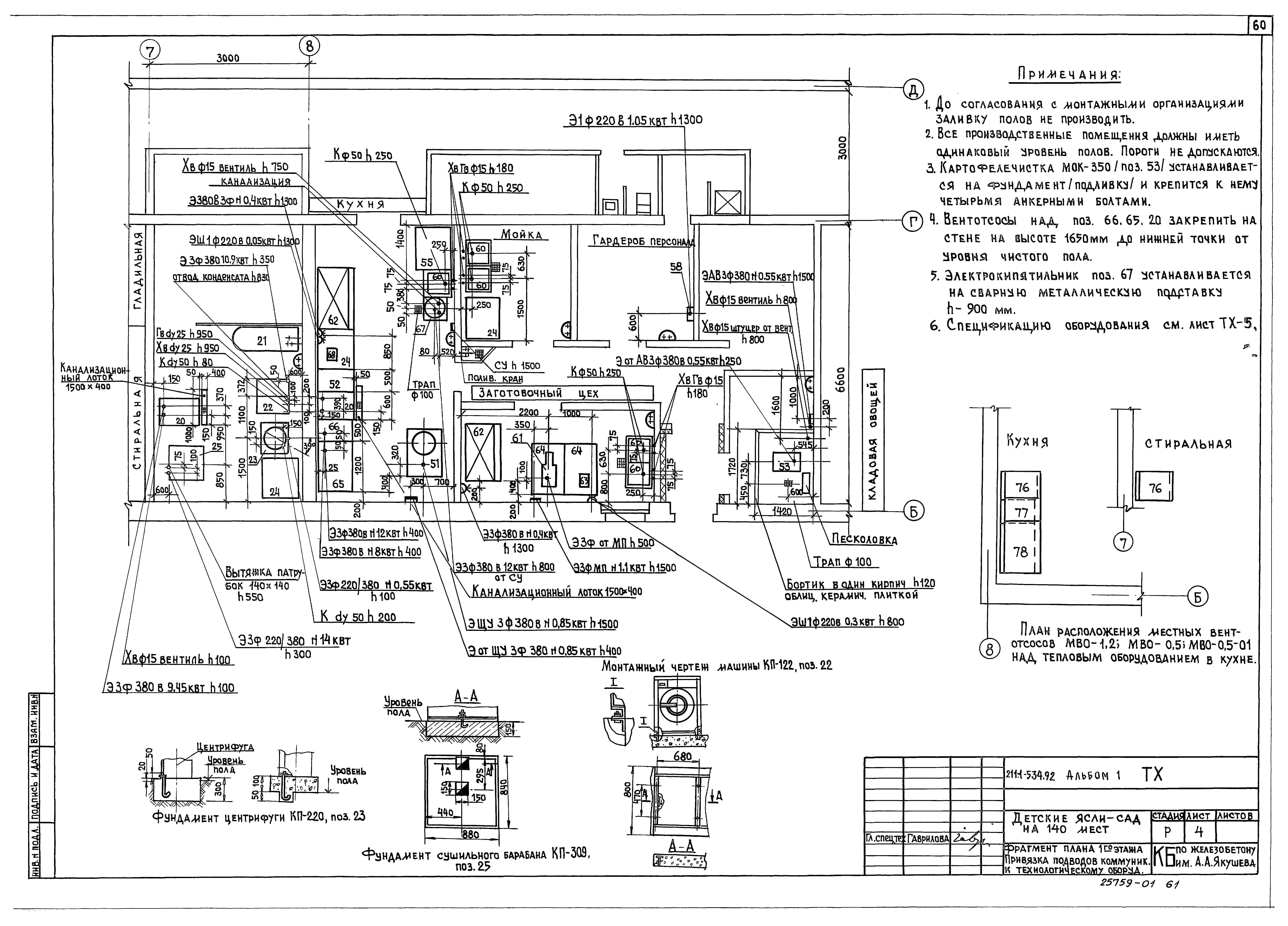
| Оглавление: | Состав проекта Общие данные (начало) Общие данные (окончание) Генплан. Технико-экономические показатели План техподполья План фундаментов План фундаментов веранды (вариант). Сечения 1-1-9-9. Развертки стен ниже отм. 0.000 Монтажный план стен ниже отм. 0.000 Схема панелей перекрытия над техподпольем шир. 3.0 м Схема панелей перекрытия над техподпольем шир. 1.5 м (вариант) Теневой навес (вариант). Вход № 1 Вход № 3. Вход в техподполье Конструкция пожарной лестницы (начало) Конструкция пожарной лестницы (окончание) Конструкция воздухозаборной шахты, венткамеры Сводная спецификация ниже отм. 0.000 (начало) Сводная спецификация ниже отм. 0.000 (окончание) Фасады 13-1,А-Р Фасад 1-13. Разрез 1-1 Фасады 13-1,А-Р (вариант) План 1 этажа План 2 этажа Фрагмент плана 1 этажа. Остекленная перегородка План отделочных работ 1 этажа План отделочных работ 2 этажа Ведомость отделки помещений. Экспликация полов Спецификация столярных изделий Ограждение радиаторов ОР-1;ОР-2 Ограждение ИМ-1,ИМ-16 Устройство входа № 2. Ограждение ИМ-14 Вход № 1. Фрагмент фасада. Наличники окон. Наличники окон (вариант) Вход № 1 (вариант) с теневым навесом Вход № 3. Фрагменты плана фасада. Вход № 4. Фрагмент плана фасада. Сечения. Узлы. Спецификация Порядовка наружных стен входа № 1 Порядовка наружных стен теневого навеса Развертки наружных стен. Узлы 1,1а,2,2а Монтажный план стен 1 этажа Монтажный план стен 2 этажа Схема панелей перекрытия над 1 этажом шириной 3.0 м Схема панелей перекрытия над 1 этажом шириной 1.5 м (вариант) Схема панелей покрытия шириной 3.0 м Схема панелей покрытия шириной 1.5 м (вариант) План раскладки парапетных панелей План расположения стоек, прогонов, подкосов, раскосов План расположения стропильных ног Разрезы 1-1 - 3-3. Узлы 7-10 Узлы по крыши 1-6 Щиты утепления ЩУ-1,ЩУ-2. Шиты покрытия ЩП-1,ЩП-2 Крыша. Спецификация. Узлы Узлы соединения внутренних стеновых панелей Разрез лестничной клетки. Разрезы 1-1;2-2. Сечения 1-1 - 7-7 Узлы 1-3. Детали крепления ограждения Ограждение лестничных маршей ОЛ-1;ОЛ-2;ОЛ-3 Сводная спецификация выше отм. 0.000 (начало) Сводная спецификация выше отм. 0.000 (окончание) Технологическое оборудование Общие данные План 1 этажа с размещением технологического оборудования План 2 этажа с размещением технологического оборудования Фрагмент плана 1 этажа. Привязка подводок коммуникаций к технологическому оборудованию ТХ.СО Спецификация технологического оборудования |
| Разработан: | КБ по железобетону им. А.А. Якушева |
| Утверждён: | 01.11.1989 Госстрой РСФСР (Russian Federation Gosstroy 150) |






























































