Скачать Типовой проект 709-9-92.88 Альбом 1. Пояснительная записка. Технология производства. Архитектурные решения. Конструкции железобетонные. Внутренние водопровод и канализация. Отопление и вентиляция. Силовое электрооборудование. Автоматизация отопления и вентиляции. Связь и сигнализацияДата актуализации: 01.01.2021
|
| Обозначение: | Типовой проект 709-9-92.88 |
| Обозначение англ: | 709-9-92.88 |
| Статус: | не определен законодательством |
| Название рус.: | Альбом 1. Пояснительная записка. Технология производства. Архитектурные решения. Конструкции железобетонные. Внутренние водопровод и канализация. Отопление и вентиляция. Силовое электрооборудование. Автоматизация отопления и вентиляции. Связь и сигнализация |
| Дата добавления в базу: | 01.09.2013 |
| Дата актуализации: | 01.01.2021 |
| Дата введения: | 12.05.1988 |
| Дата окончания срока действия: | 30.06.2003 |
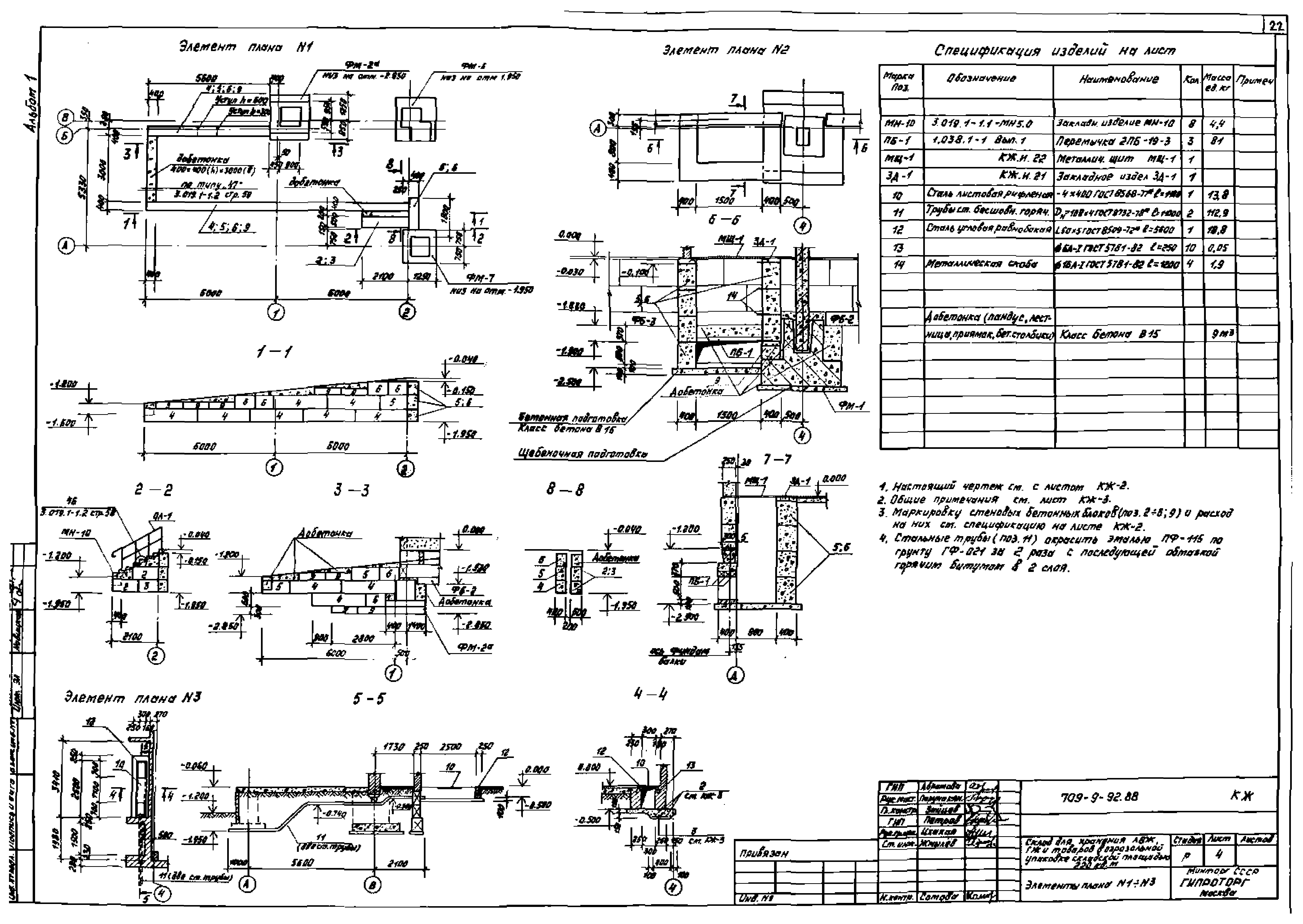
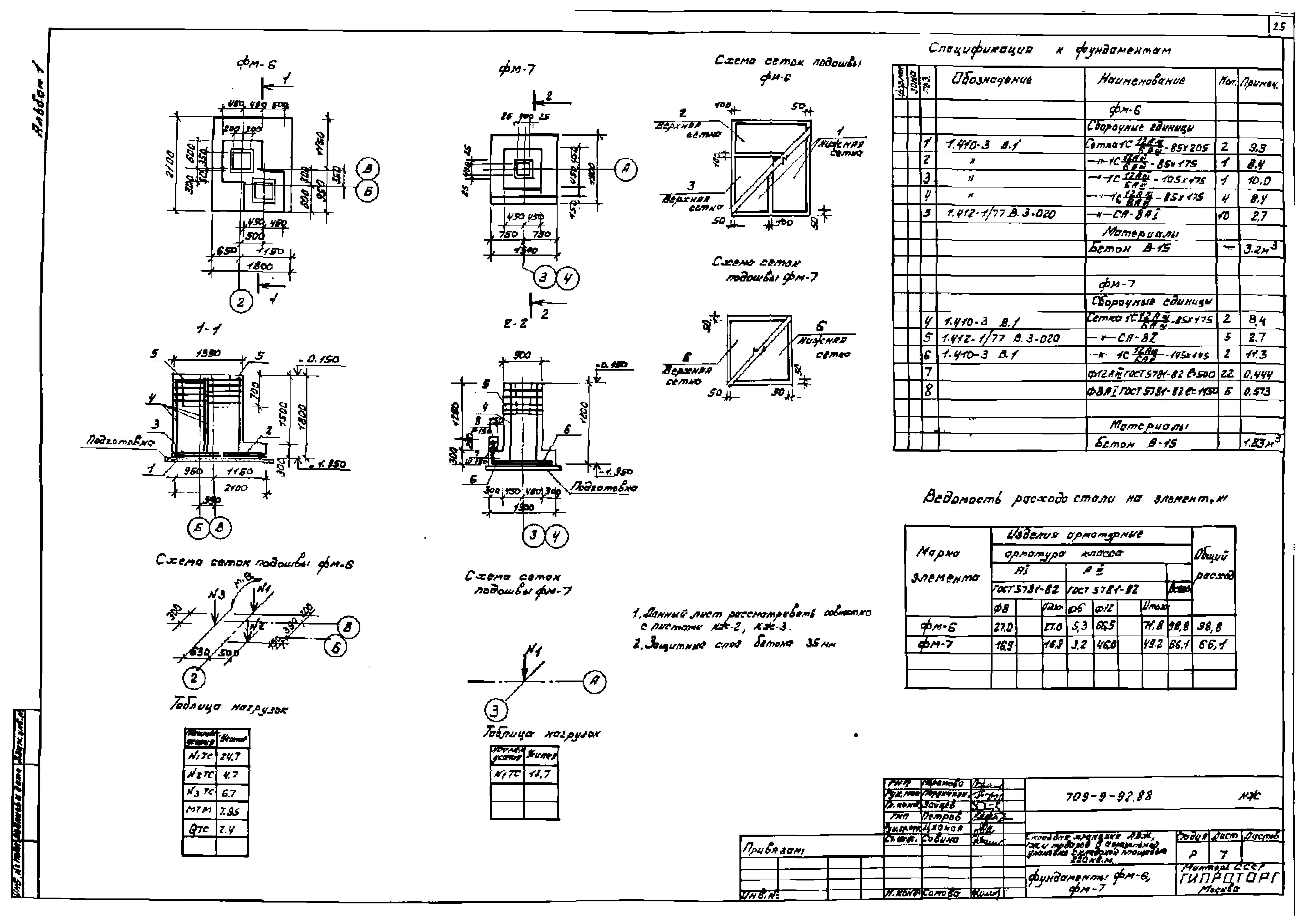
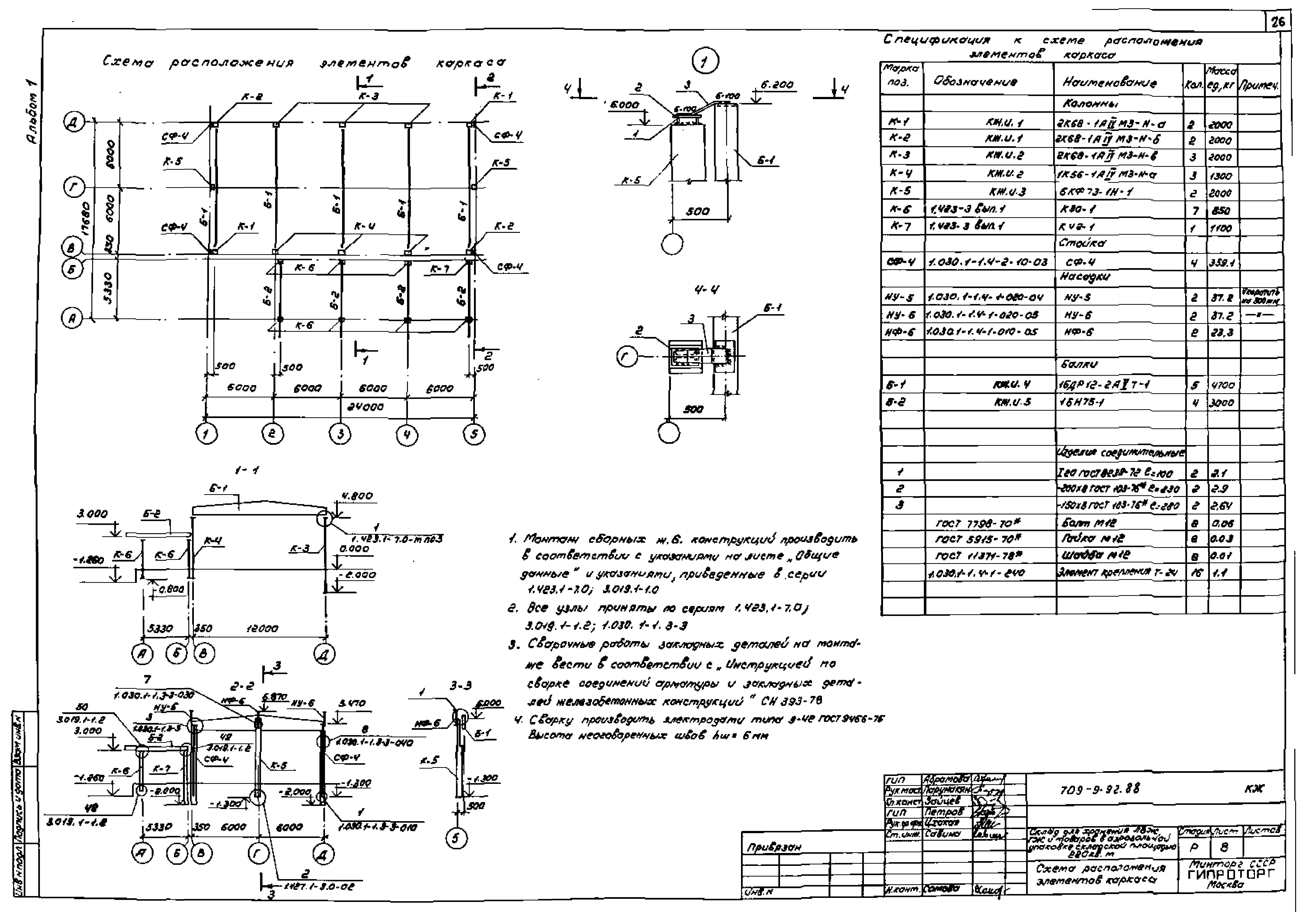
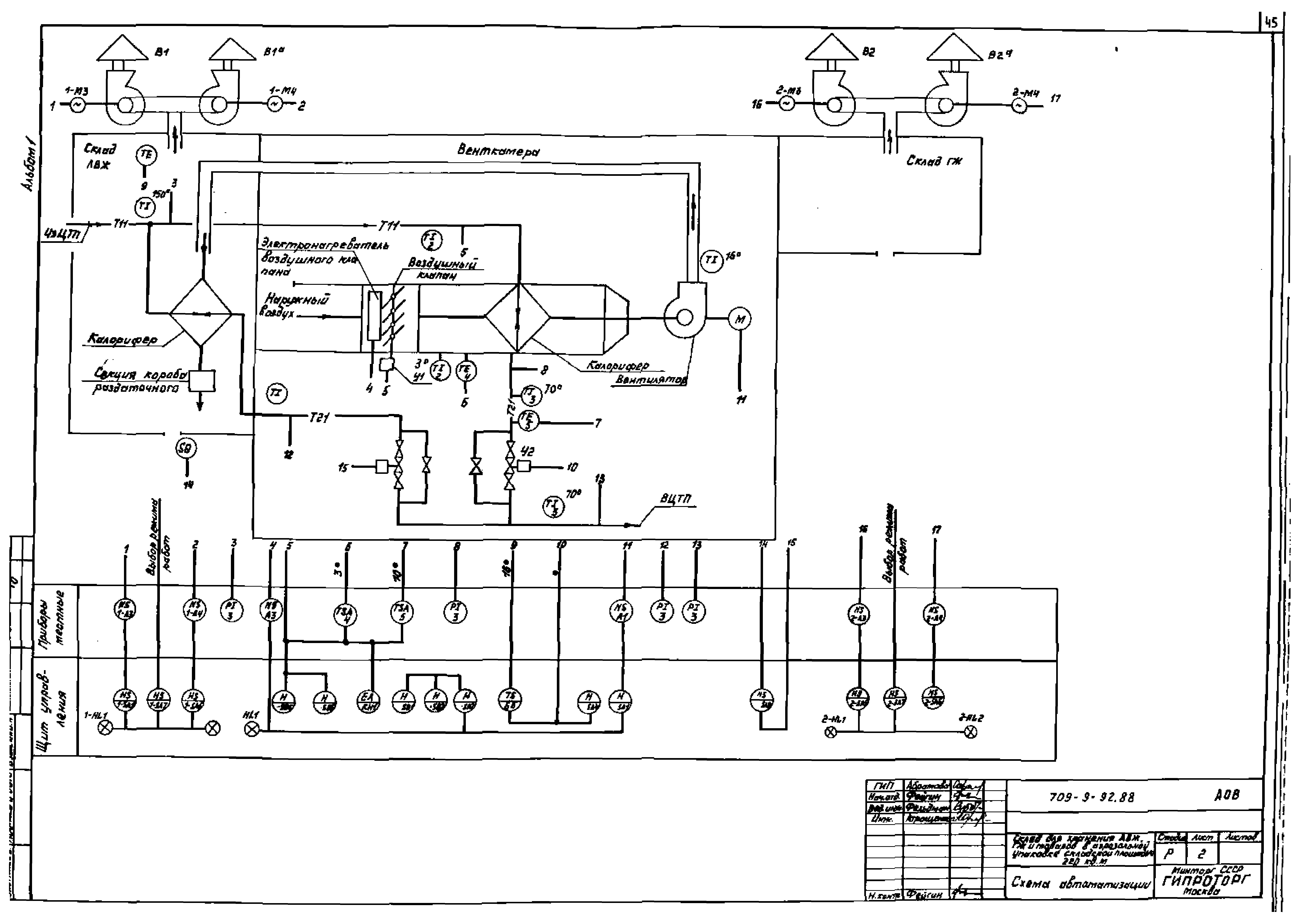
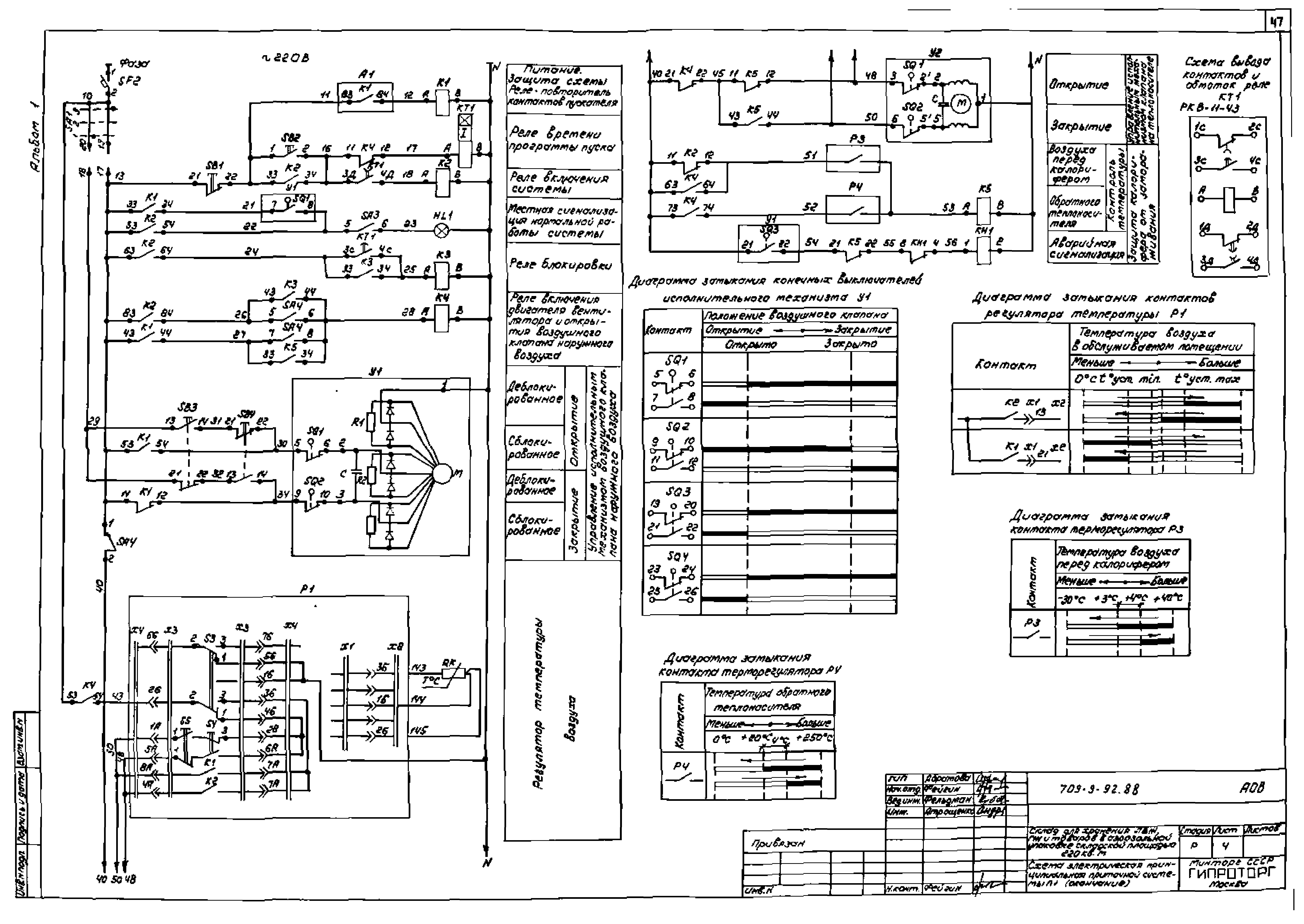
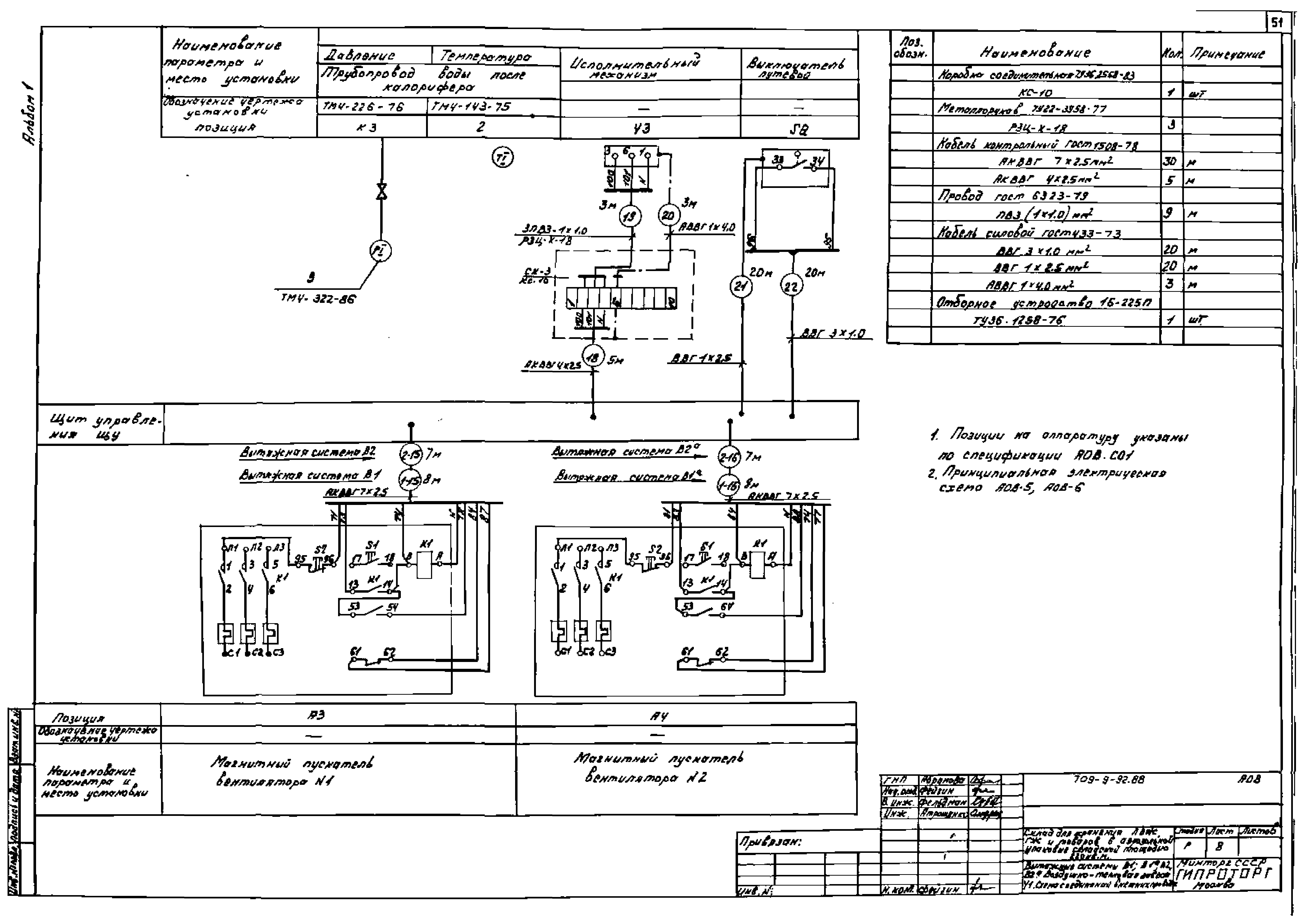
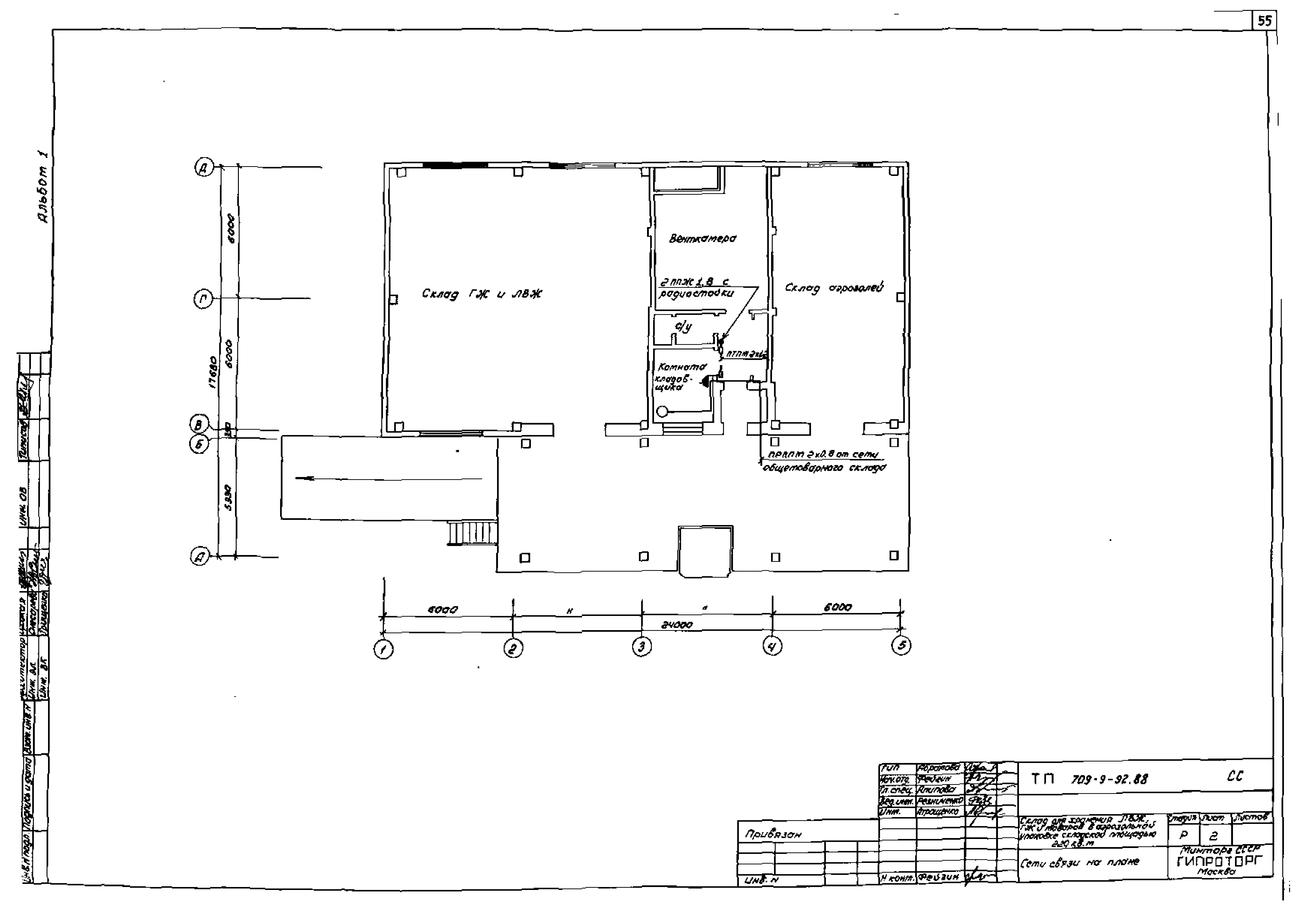
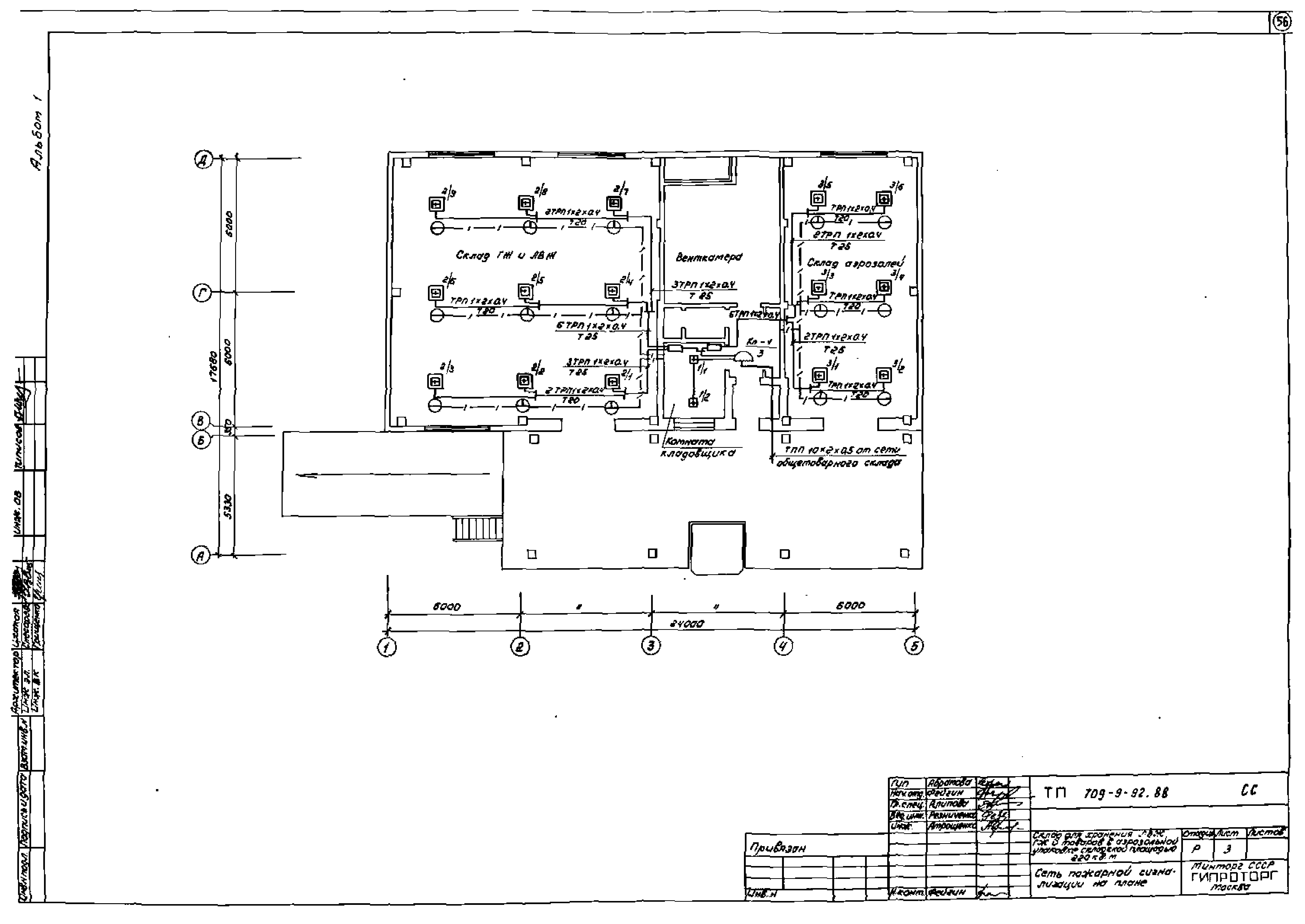
| Оглавление: | ПЗ1-ПЗ9 Пояснительная записка Чертежи марки ТХ Общие данные План на отм. 0.000 с расстановкой технологического оборудования. Разрезы Принципиальные схемы технологических процессов и механизации производства Чертежи марки АР Общие данные. Ведомость отделки помещений. Ведомость перемычек. Спецификация перемычек План на отм. 0.000. План полов. Экспликация полов. Схема генплана Разрезы 1-1,2-2. план кровли Фасады 1-5,Д-А,А-Д,5-1. Схемы заполнения проемов Чертежи марки КЖ Общие данные Схема расположения элементов фундаментов Сечения 1-1,7-7. Подпольные каналы Элементы плана № 1- № 3 Фундаменты ФМ-1,ФМ-2,ФМ-2а,ФМ-3 Фундаменты ФМ-4,ФМ-5 Фундаменты ФМ-6,ФМ-7 Схема расположения элементов каркаса Схема расположения фундаментов под УГП-1150 Схема расположения плит покрытия Кирпичные шахты на покрытии, перекрытие заборной шахты в венткамере Схема расположения стеновых панелей Чертежи марки ВК Общие данные. План с системами В1,Т3,К1. Схемы систем В1,Т3,К1 Чертежи марки ОВ Общие данные (начало) Общие данные (окончание) План на отм. 0.000. Разрез 1-1. План кровли. Узел 1 Схема системы отопления. Схема системы теплоснабжения установок П1,У1. Узлы 1,2,3 Схемы систем П1,У1,В1,В2,ВЕ1. Схема узла управления Установка системы П1 Установки систем В1,В2 Чертежи марки ЭМ Общие данные (начало) Общие данные (окончание) Схема принципиальная питающей и распределительной сети 1ШР План питающей и распределительной сети. Контур заземления План сети освещения Чертежи марки АОВ Общие данные Схема автоматизации Схема электрическая принципиальная приточной системы П1 (начало) Схема электрическая принципиальная приточной системы П1 (окончание) Схема электрическая принципиальная вытяжных систем В1,В1а Схема электрическая принципиальная воздушно-тепловой завесы У1, электропитания Приточная система П1. Схема соединений внешних проводок Вытяжные системы В1,В1а,В2,В2а. Воздушно-тепловая завеса У1. Схема соединений внешних проводок План расположения Щит управления ЩУ. Эскиз общего вида Чертежи марки СС Общие данные Сети связи на плане Сеть пожарной сигнализации на плане |
| Разработан: | Гипроторг |
| Утверждён: | 10.05.1988 Минторг СССР (USSR Mintorg 4) |
























































