Скачать Типовой проект 806-2-33.89 Альбом 1. Общая пояснительная записка. Технология производства. Архитектурно-строительные решения. Внутренние водопровод и канализация. Электрическое освещениеДата актуализации: 01.01.2021
|
| Обозначение: | Типовой проект 806-2-33.89 |
| Обозначение англ: | 806-2-33.89 |
| Статус: | не определен законодательством |
| Название рус.: | Альбом 1. Общая пояснительная записка. Технология производства. Архитектурно-строительные решения. Внутренние водопровод и канализация. Электрическое освещение |
| Дата добавления в базу: | 01.09.2013 |
| Дата актуализации: | 01.01.2021 |
| Дата введения: | 12.01.1989 |
| Дата окончания срока действия: | 30.06.2003 |
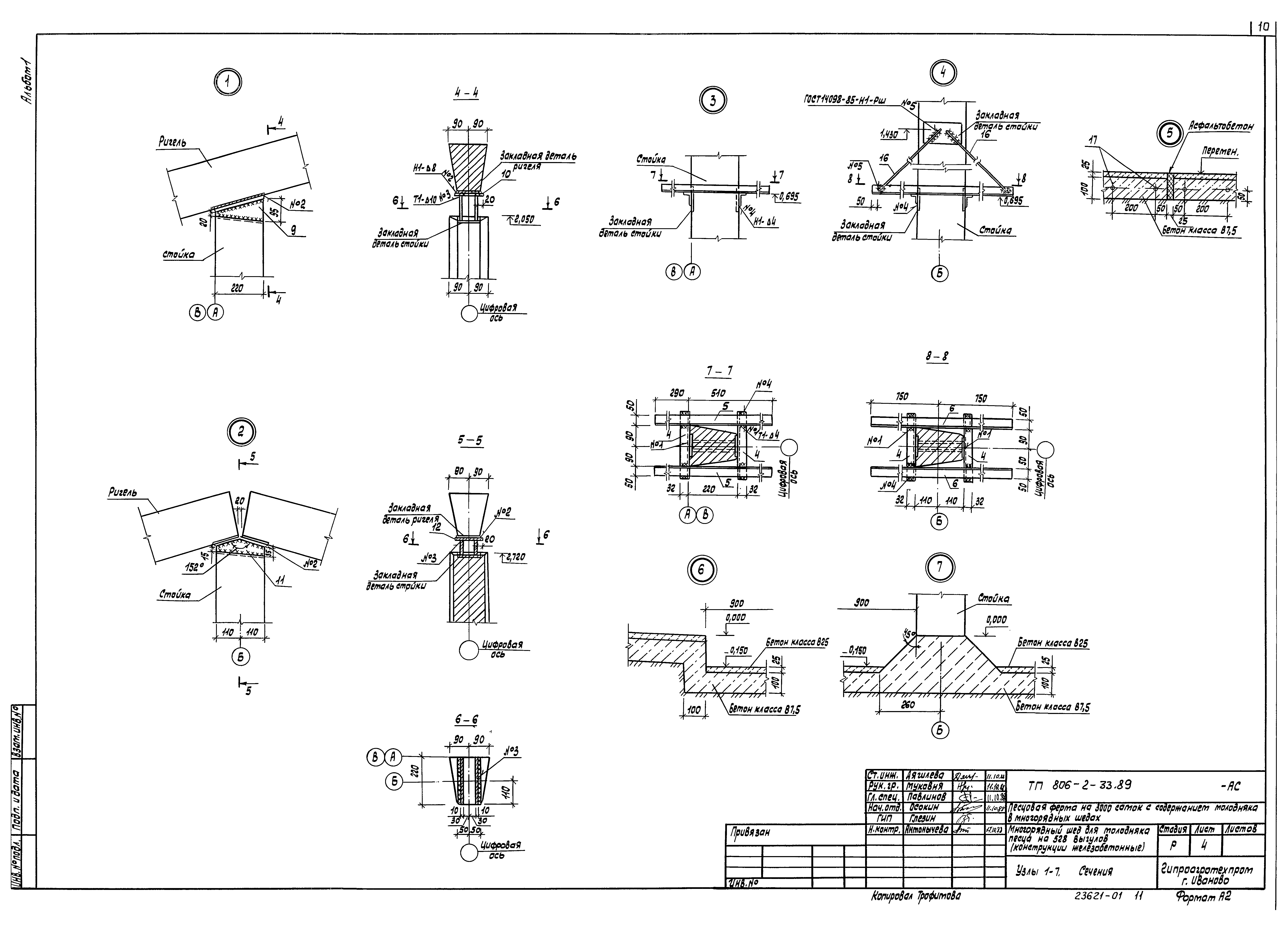
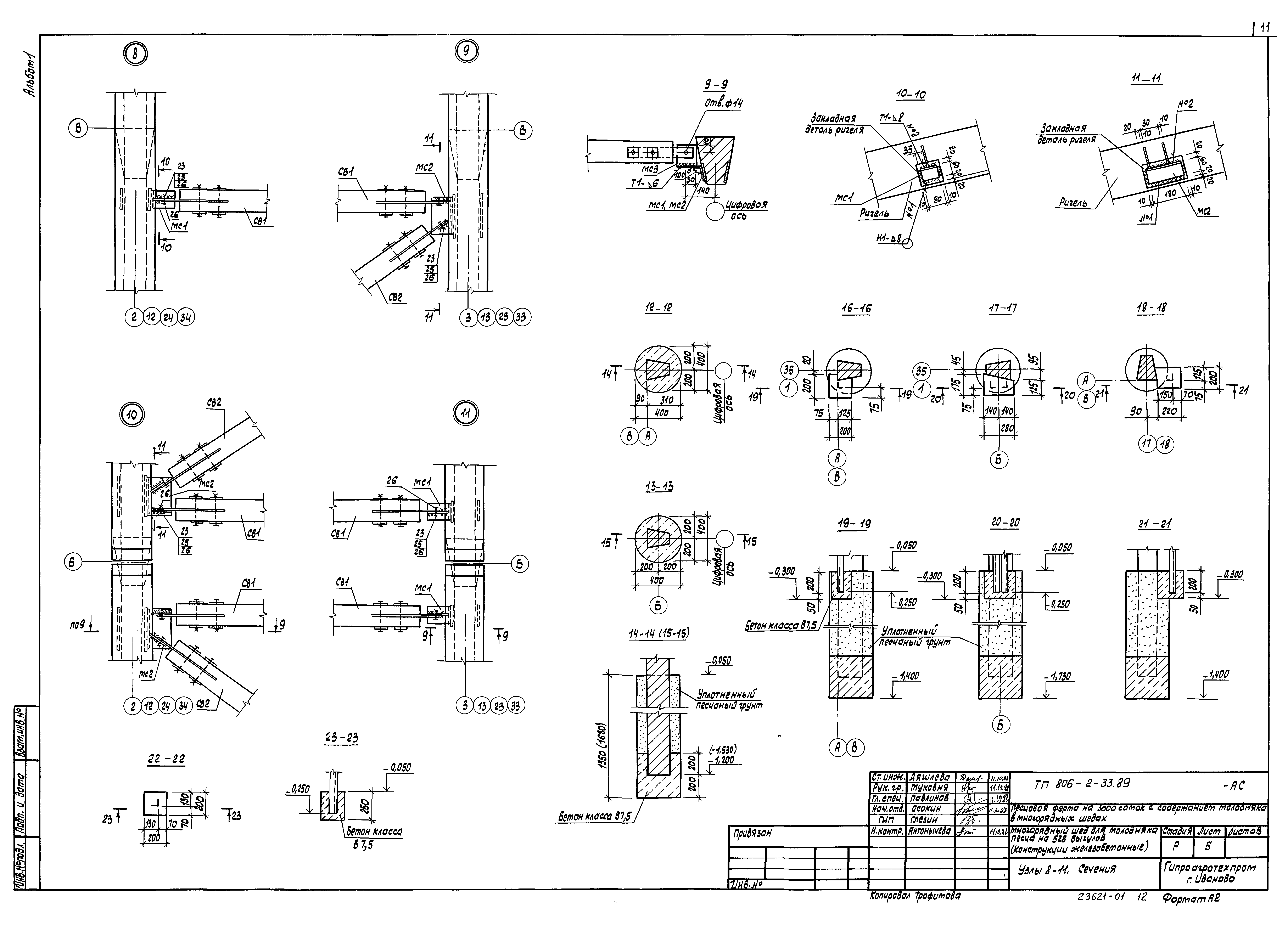
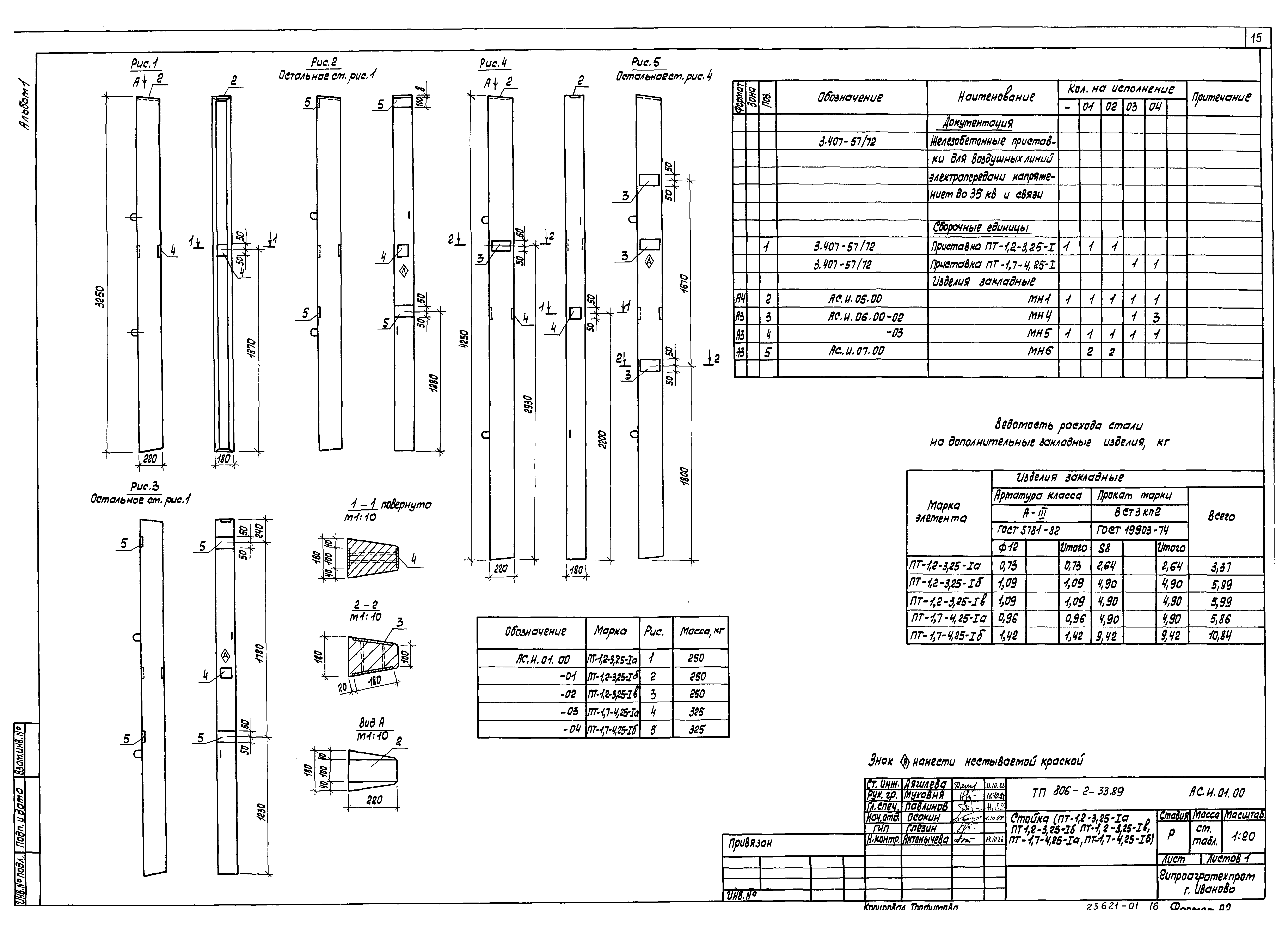
| Оглавление: | ТП 806-2-33.89 ПЗ Общая пояснительная записка Технология производства ТП 806-2-33.89 ТХ Общие данные. План расположения клеток в шеде. Разрез. Вид. Узлы Архитектурно-строительные решения ТП 806-2-33.89 АС Общие данные План на отм. 0.000. Фасады. Разрез 1-1. Фрагменты 1-3 Схема расположения элементов каркаса. Разрезы Узлы 1-7. Сечения Узлы 8-11. Сечения Узлы 12-16 Схема расположения прогонов и асбестоцементных волнистых листов на кровле. Узлы 1-3. Разрезы Спецификация к схемам расположения элементов каркаса, прогонов и асбестоцементных листов на кровле АС.И.01.00 Стойка (ПТ-1,2-3,25-Iа;ПТ-1,2-3,25-1б;ПТ-1,2-3,25-Iв;ПТ-1,7-4,25-Iа;ПТ-1,7-4,25-Iб) АС.И.02.00 Ригель (Р1-Р3) АС.И.03.09 Связь (СВ1,СВ2) АС.И.03.01 Элемент деревянный (ДЭ1,ДЭ2) АС.И.03.02 Элемент металлический (М1,М2) АС.И.04.00 Каркас пространственный КП1 АС.И.05.00 Изделие закладное МН1 АС.И.06.00 Изделие закладное (МН2-МН5) АС.И.07.00 Изделие закладное (МН6-МН9) АС.И.08.00 Дверь (Д1-Д3) Внутренние водопровод и канализация ТП 806-2-33.89 ВК Общие данные План на отм. 0.000. Схема системы В1. Фрагмент плана Электрическое освещение ТП 806-2-33.89 ЭО Общие данные. План расположения электрического оборудования и прокладки осветительной сети 36 В ТХ.СО Спецификация оборудования ВК.СО Спецификация оборудования ЭО.СО Спецификация оборудования |
| Разработан: | ОАО Институт Гипроагротехпром |
| Утверждён: | 12.01.1989 Гипроагротехпром (13) |

























