Скачать Типовой проект 221-1-706.92 Альбом 4. Электроснабжение. Связь и сигнализация. АвтоматикаДата актуализации: 01.01.2021
|
| Обозначение: | Типовой проект 221-1-706.92 |
| Обозначение англ: | 221-1-706.92 |
| Статус: | не определен законодательством |
| Название рус.: | Альбом 4. Электроснабжение. Связь и сигнализация. Автоматика |
| Дата добавления в базу: | 01.09.2013 |
| Дата актуализации: | 01.01.2021 |
| Дата введения: | 30.06.1992 |
| Дата окончания срока действия: | 30.06.2003 |
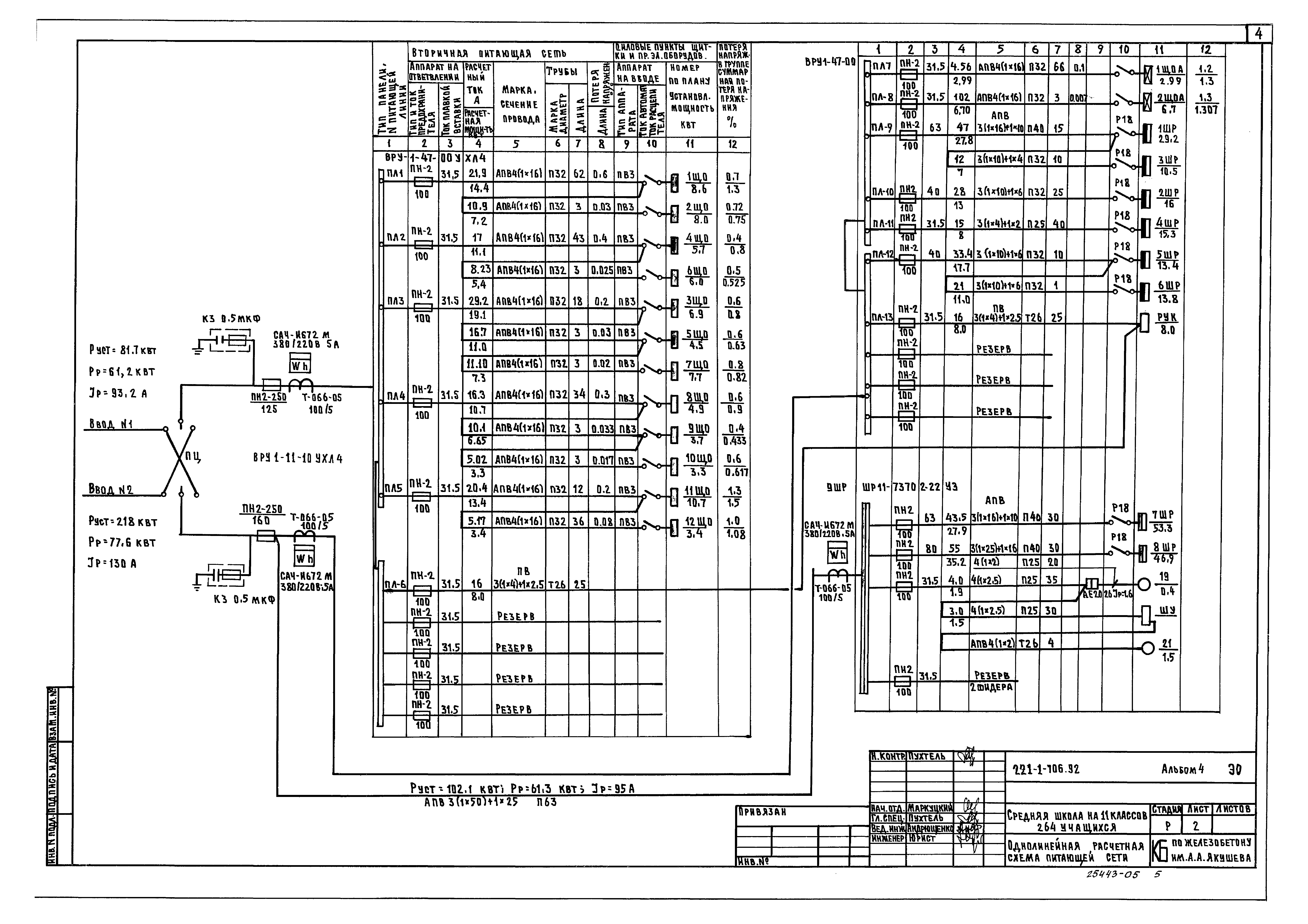
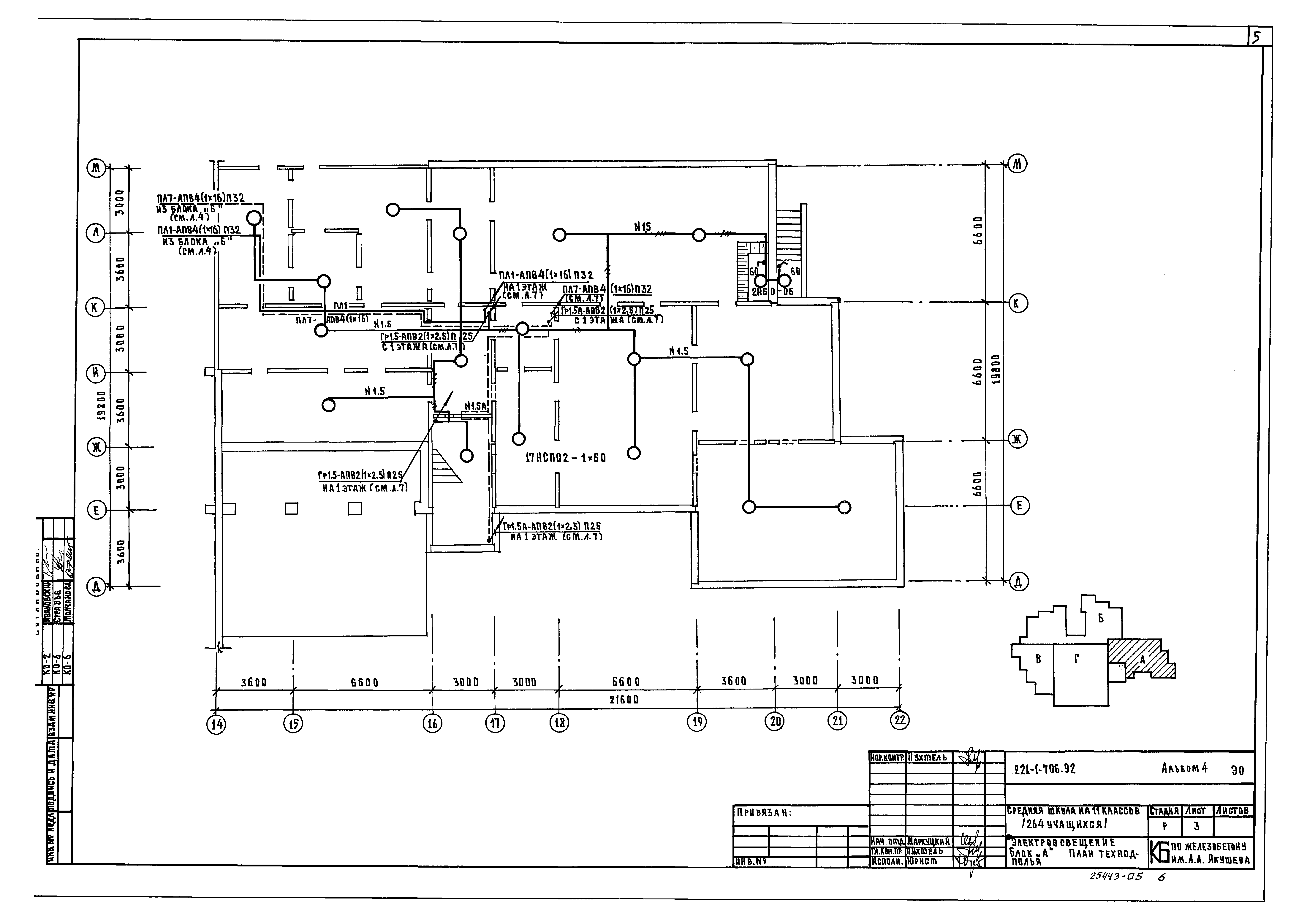
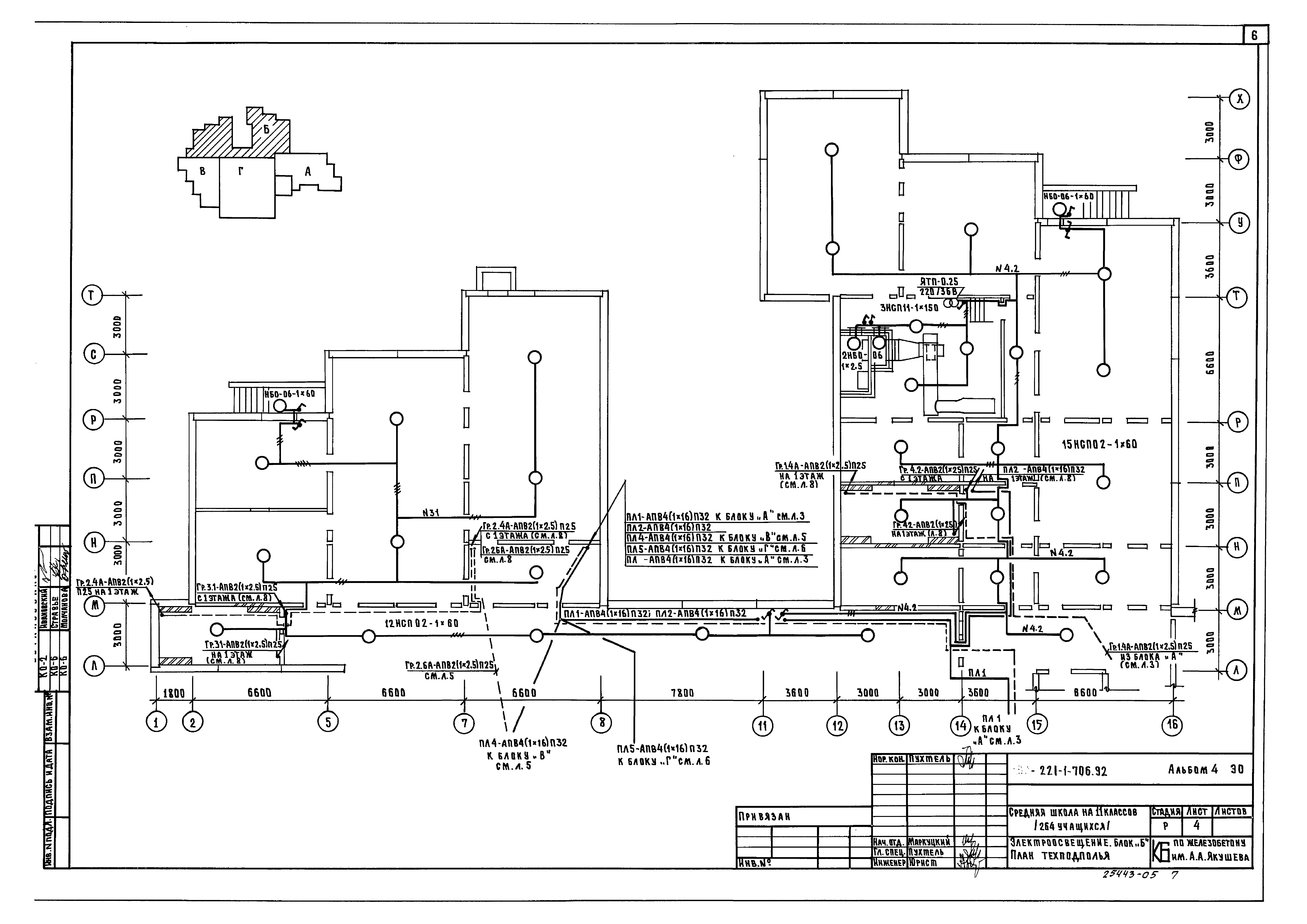
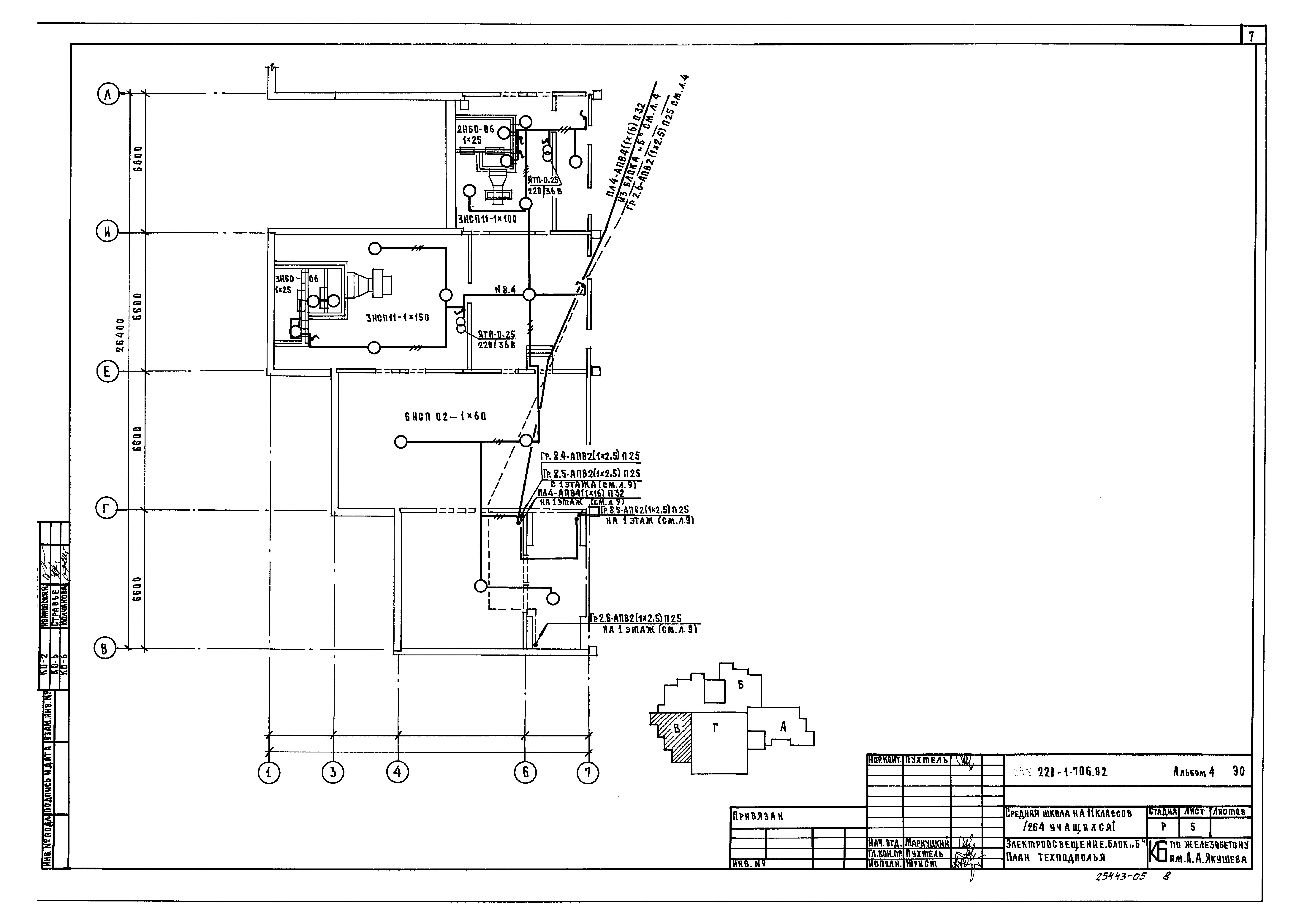
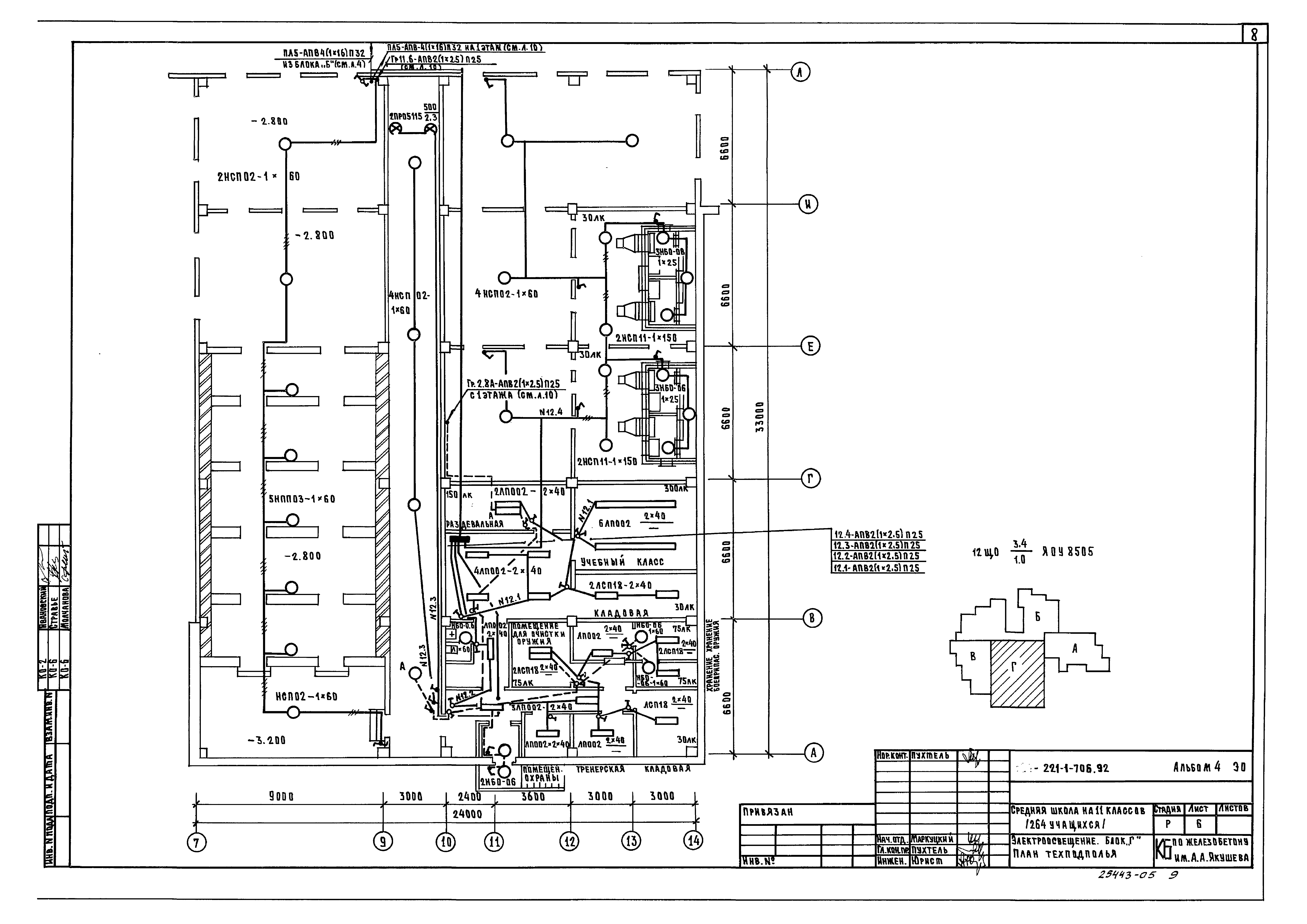
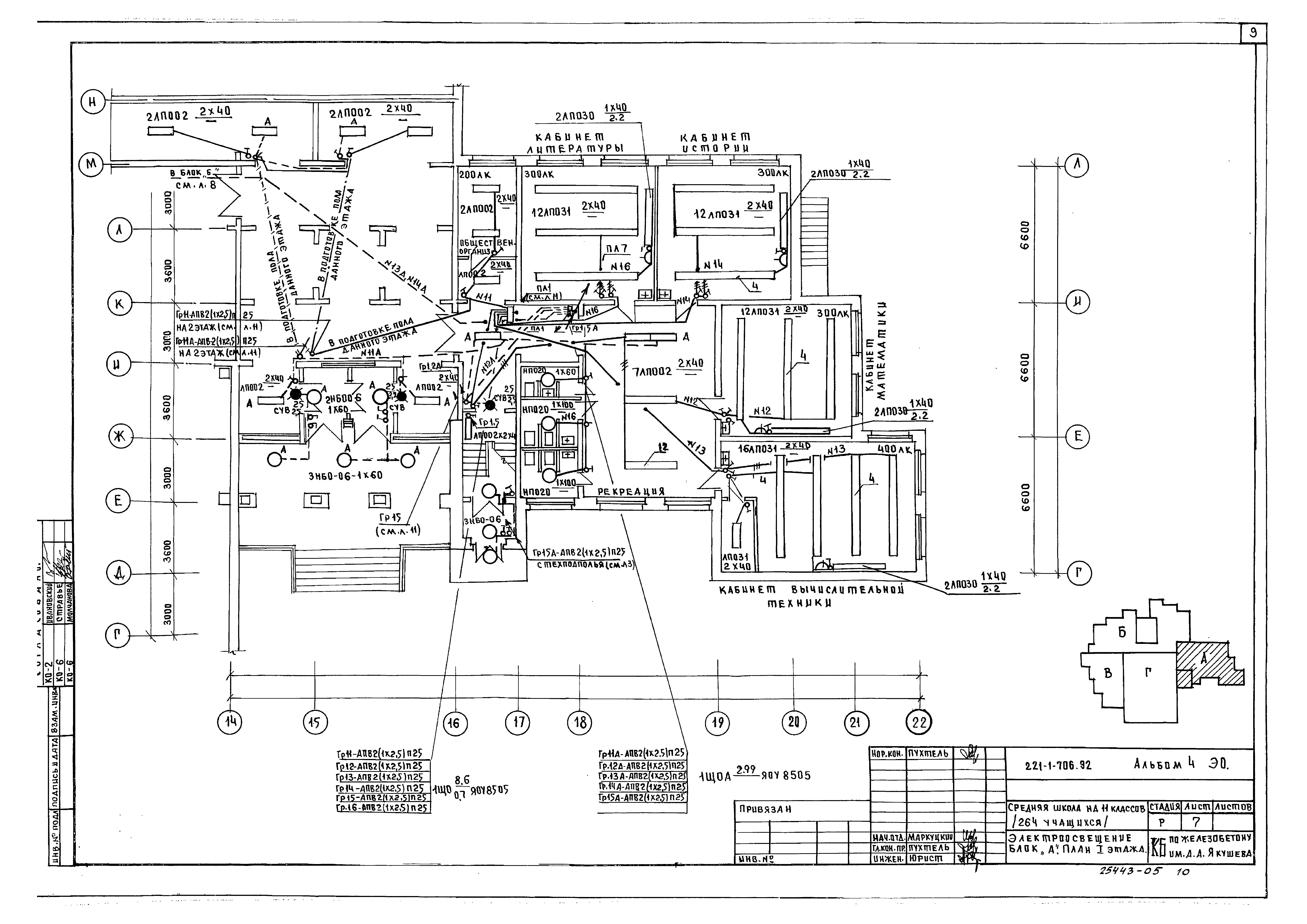
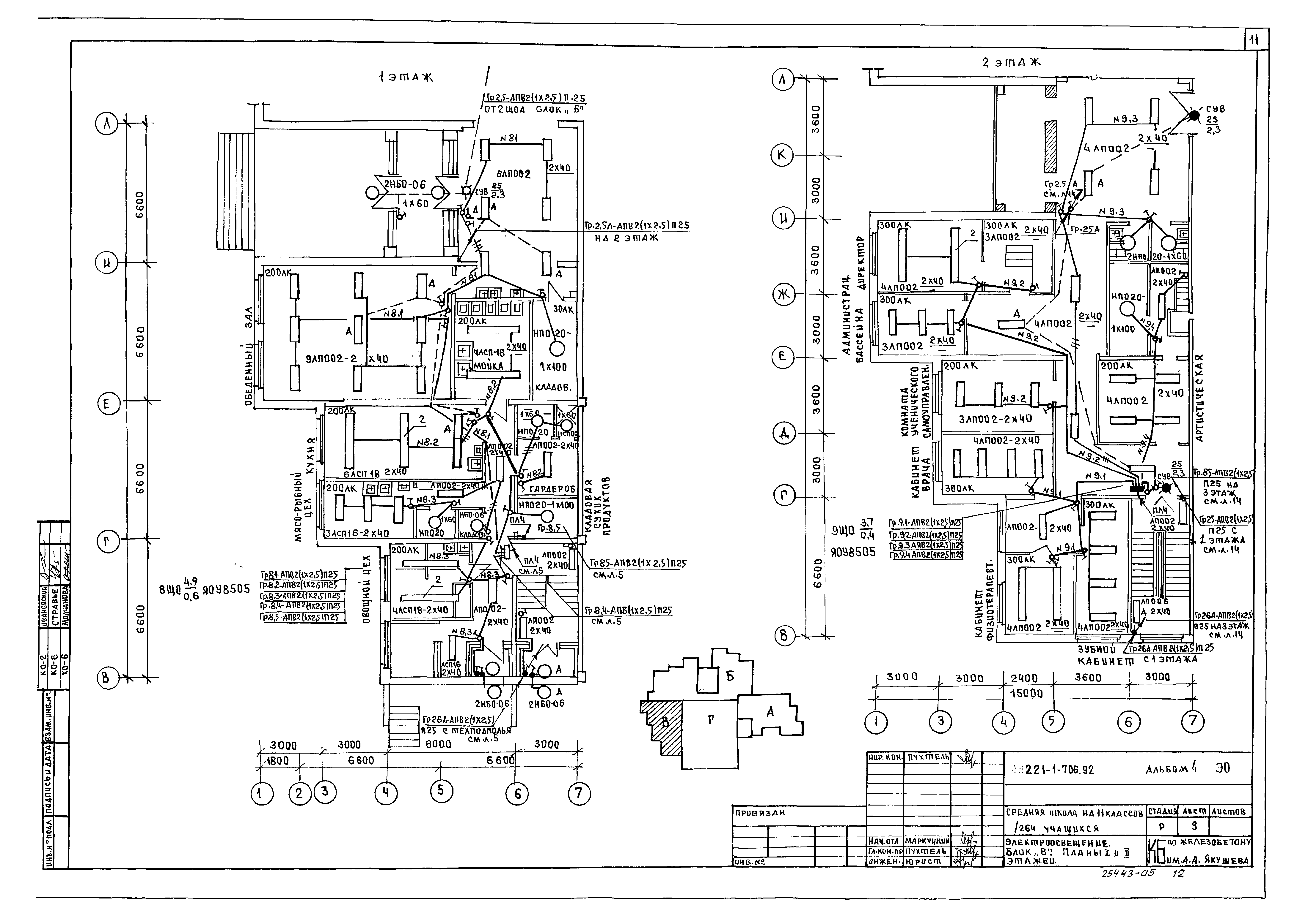
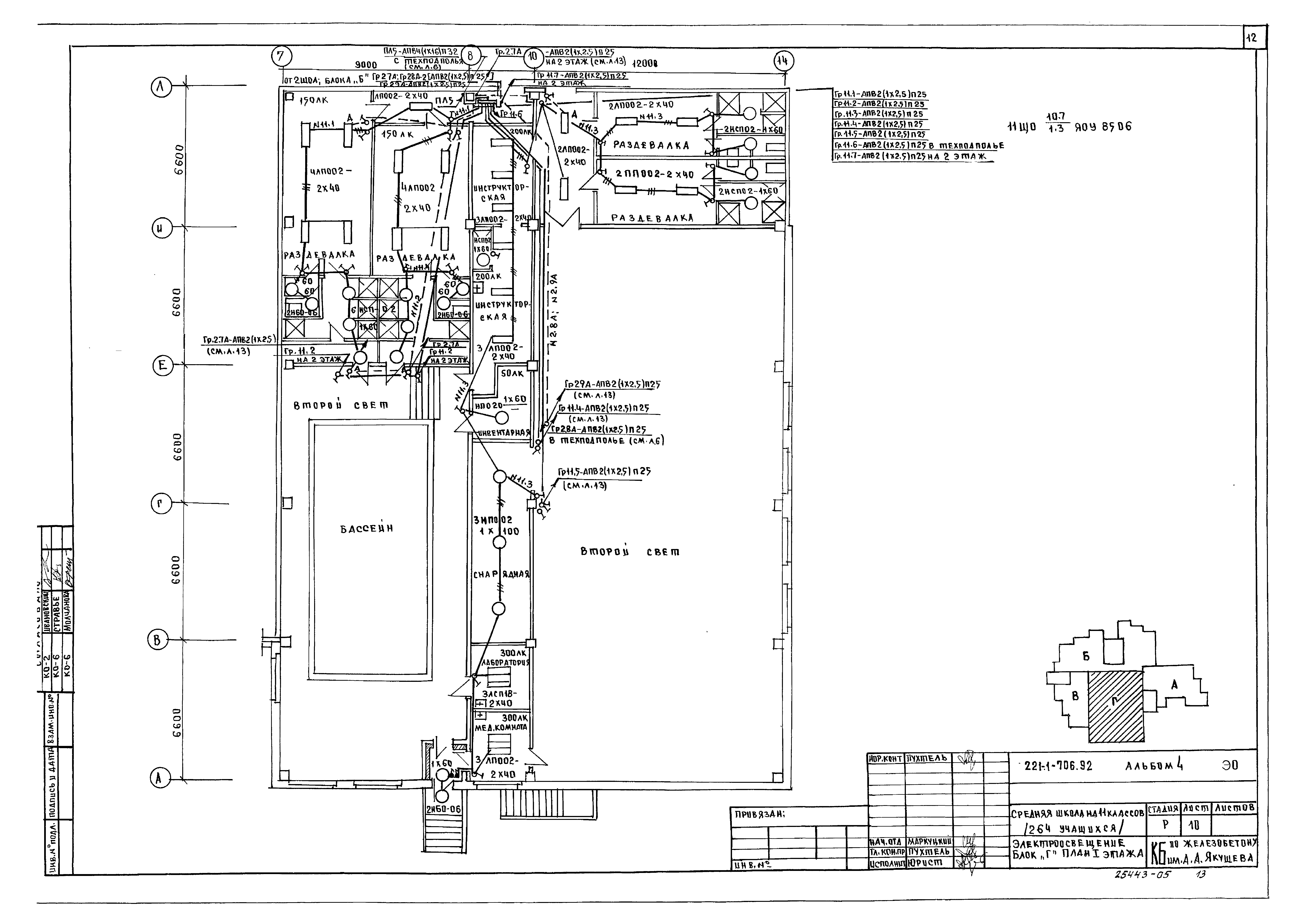
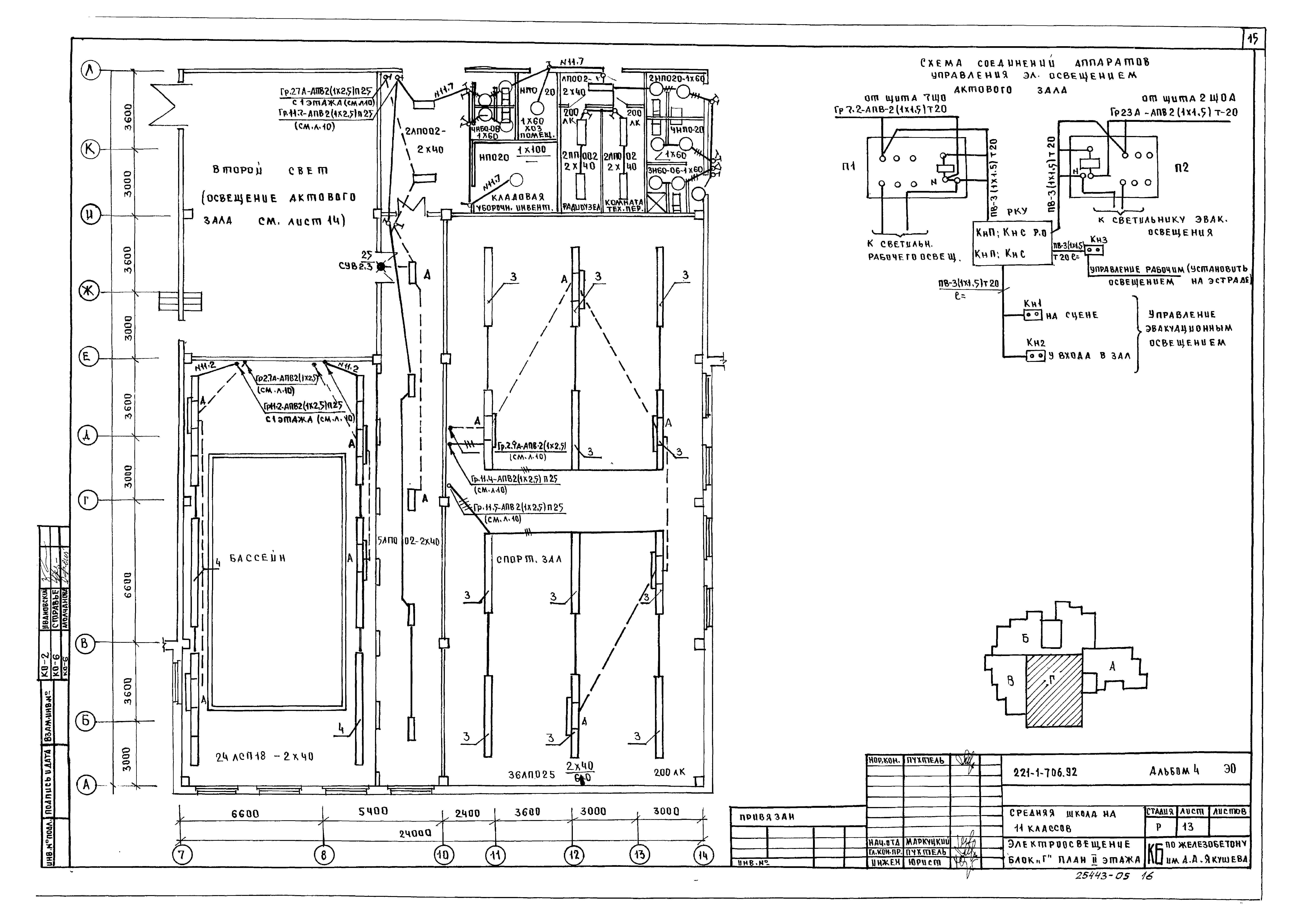
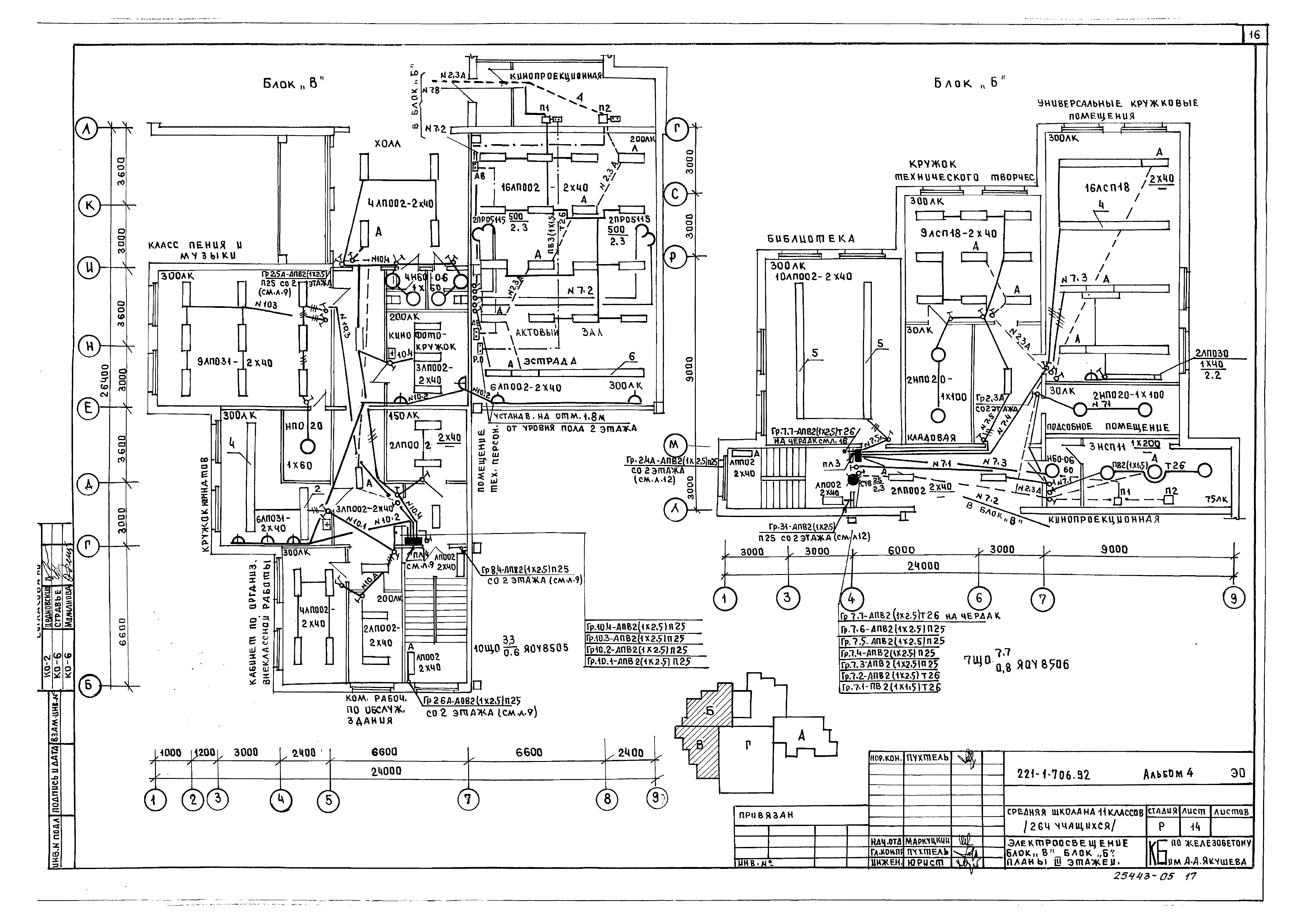
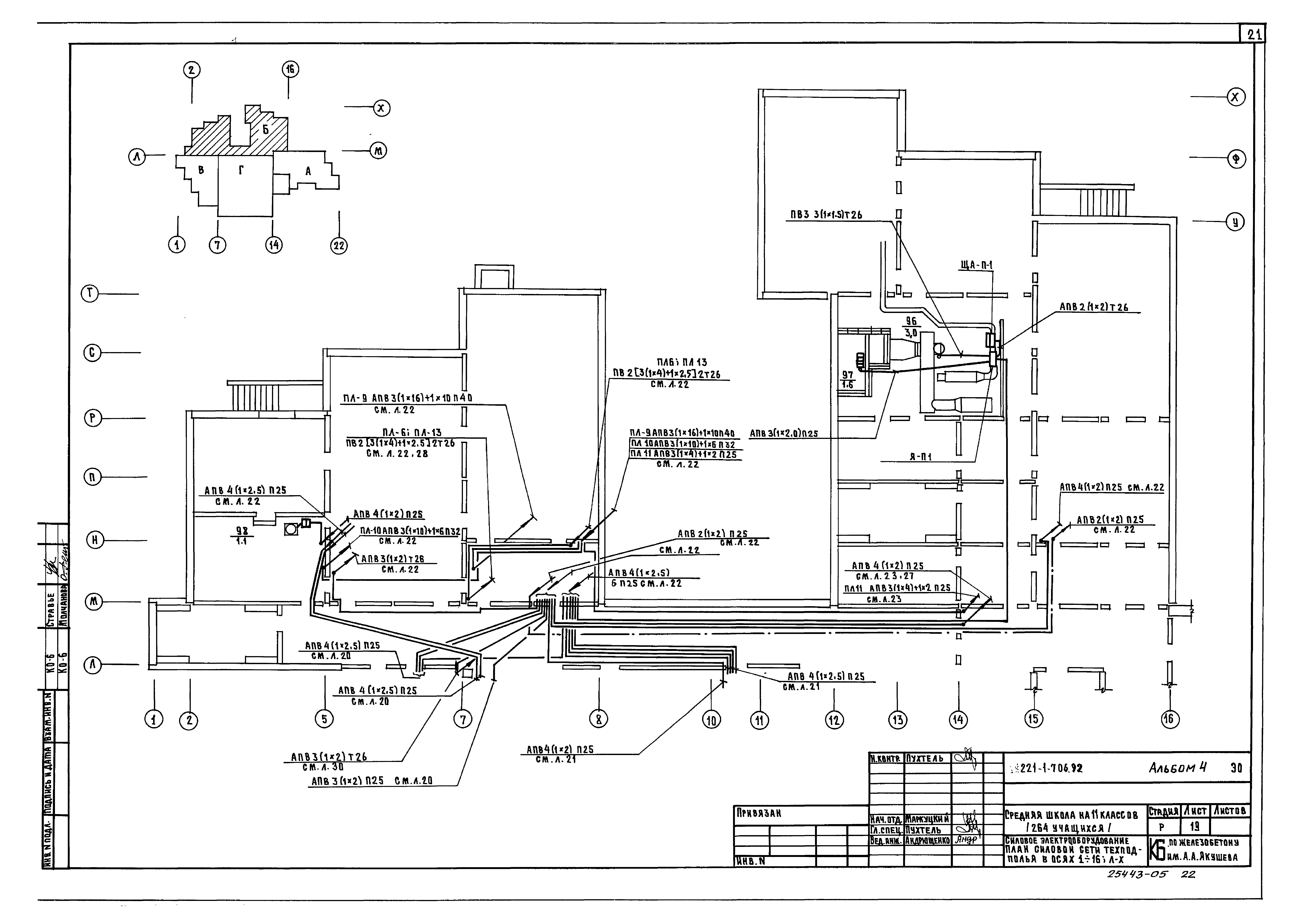
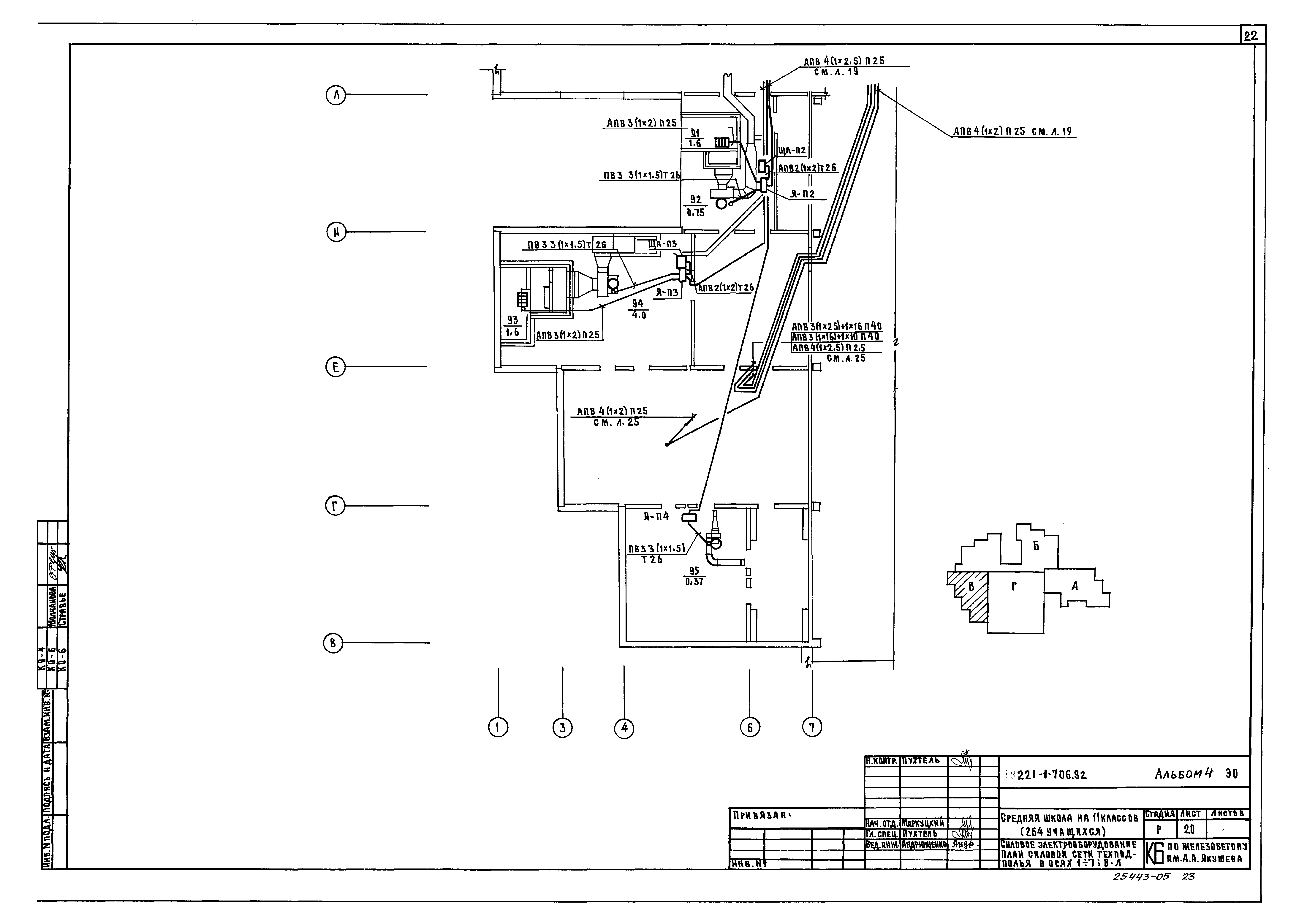
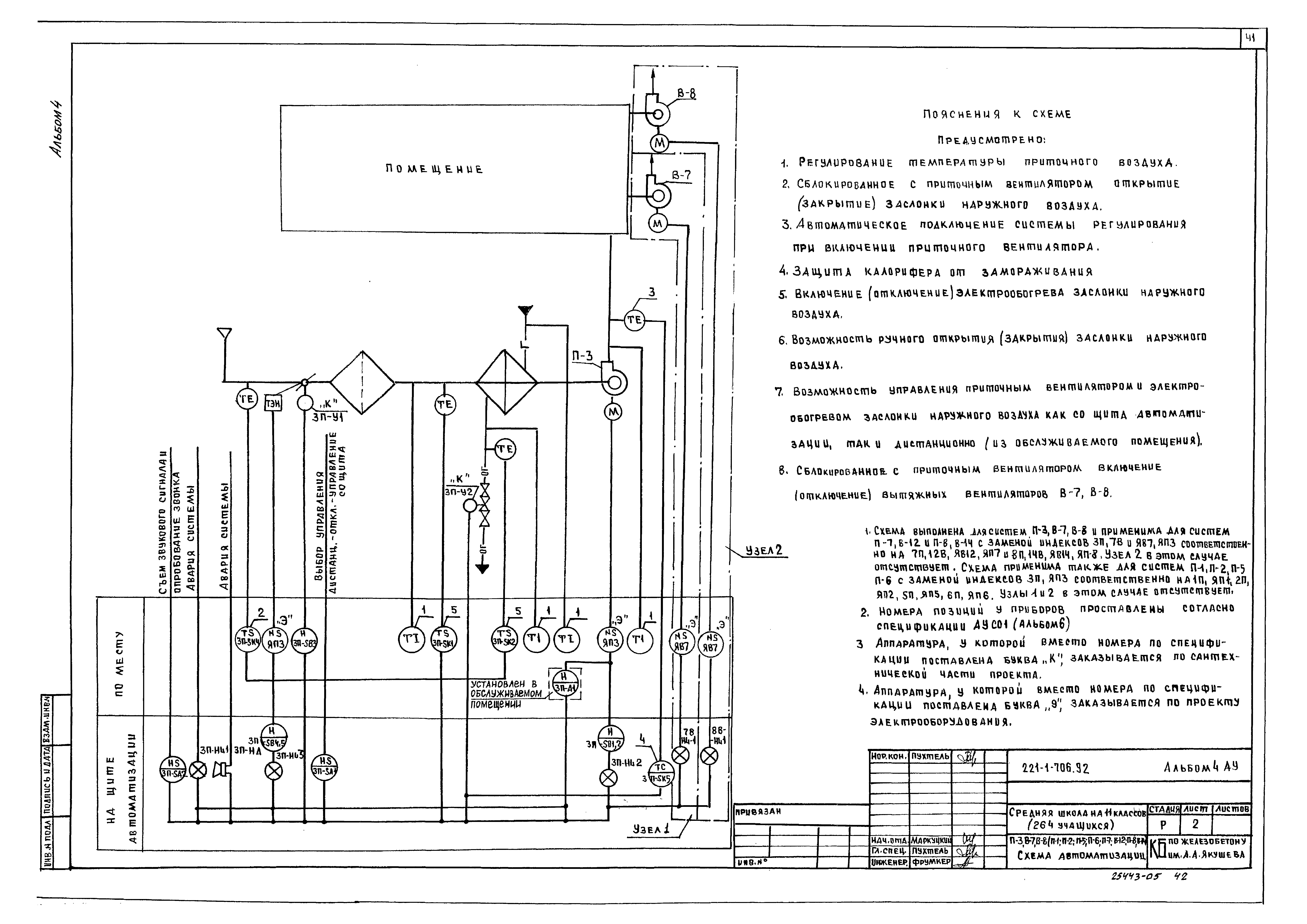
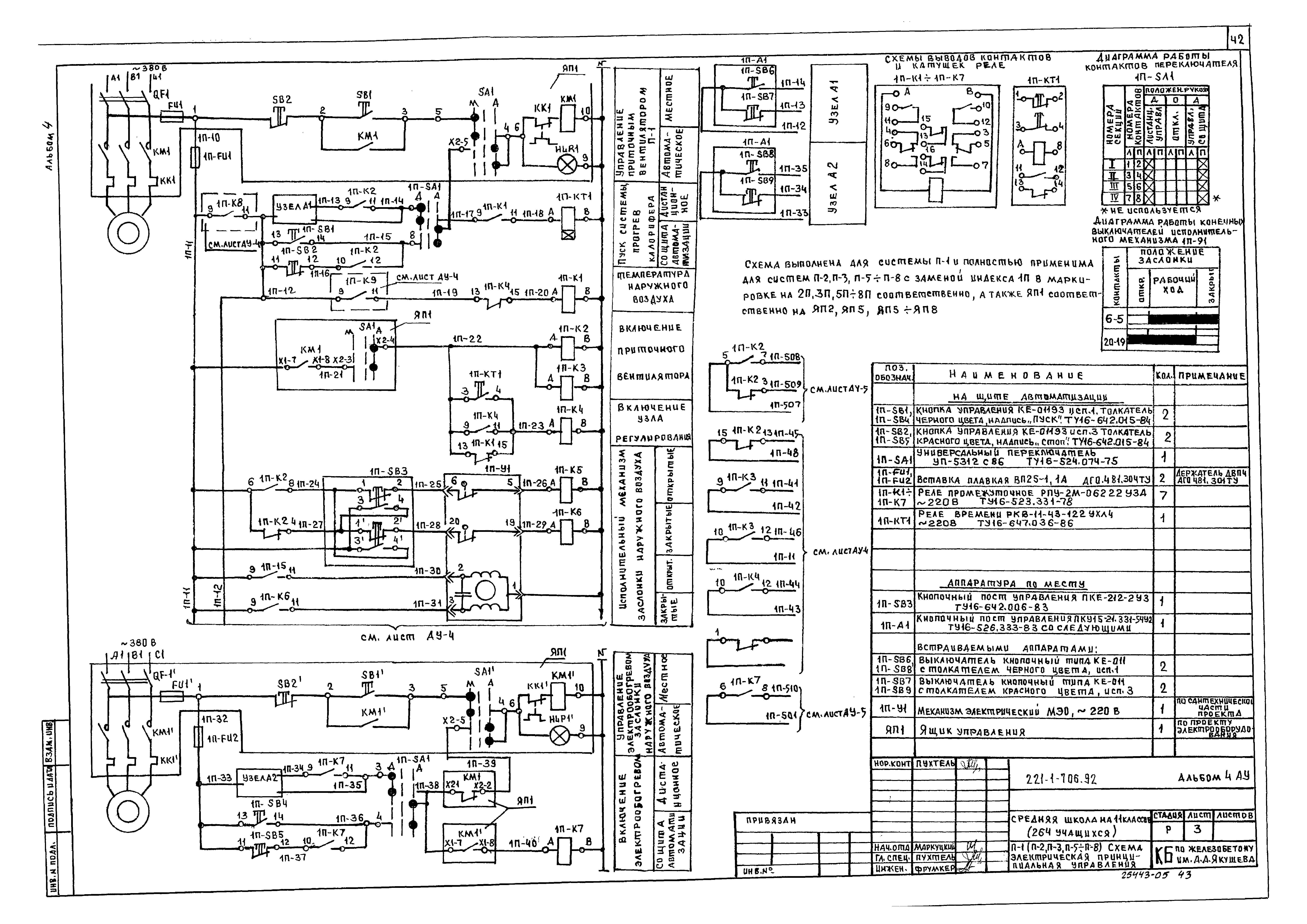
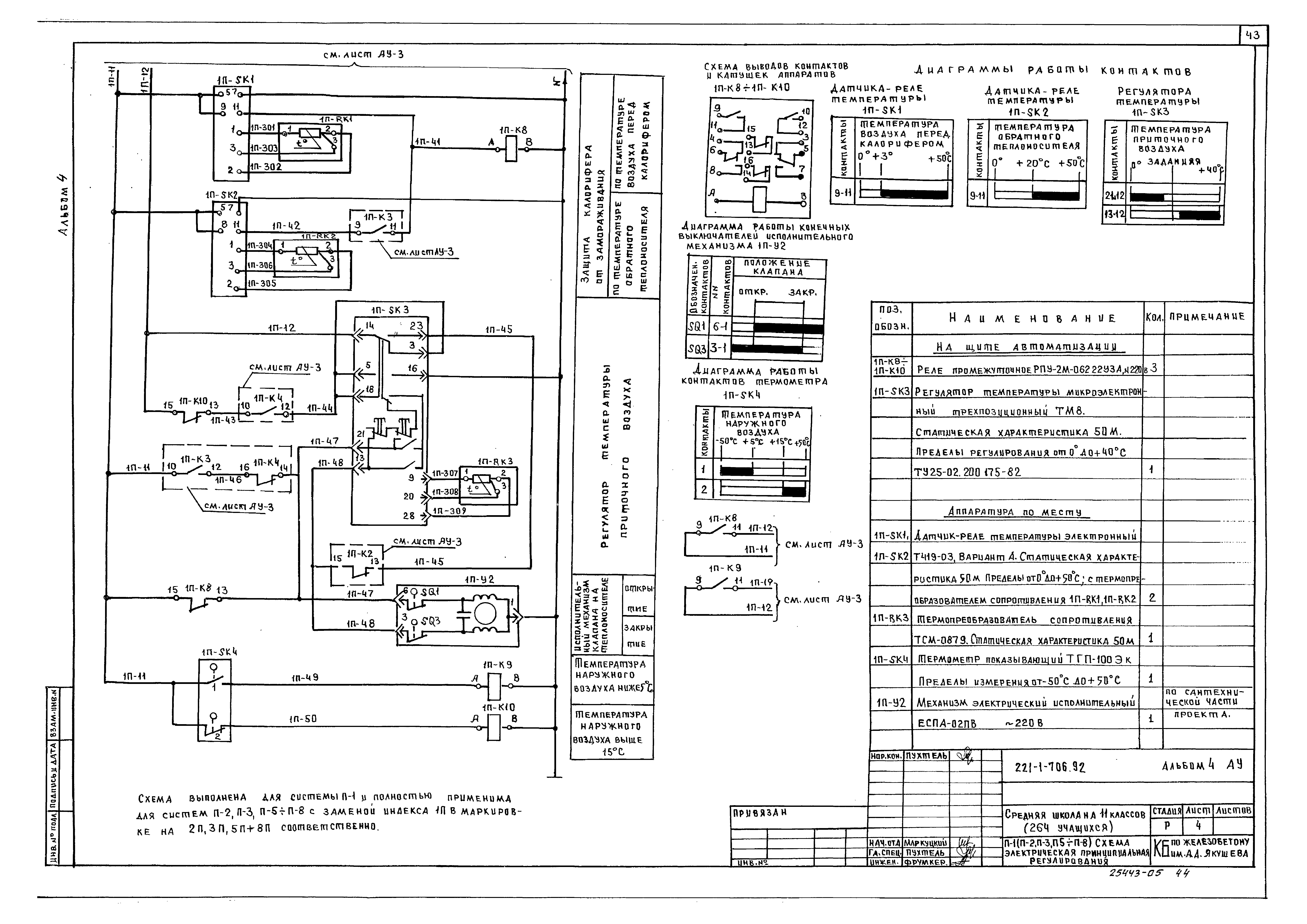
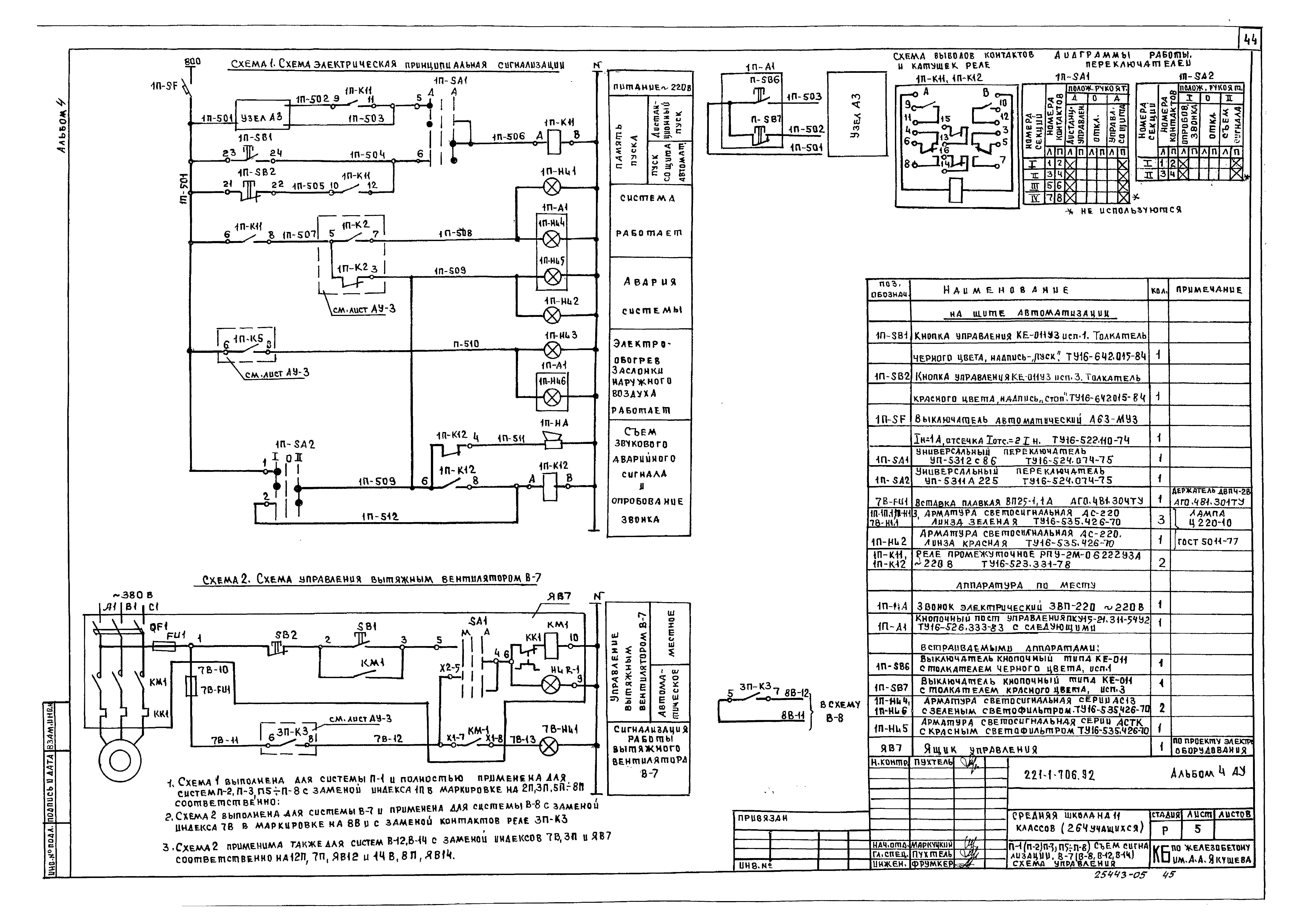
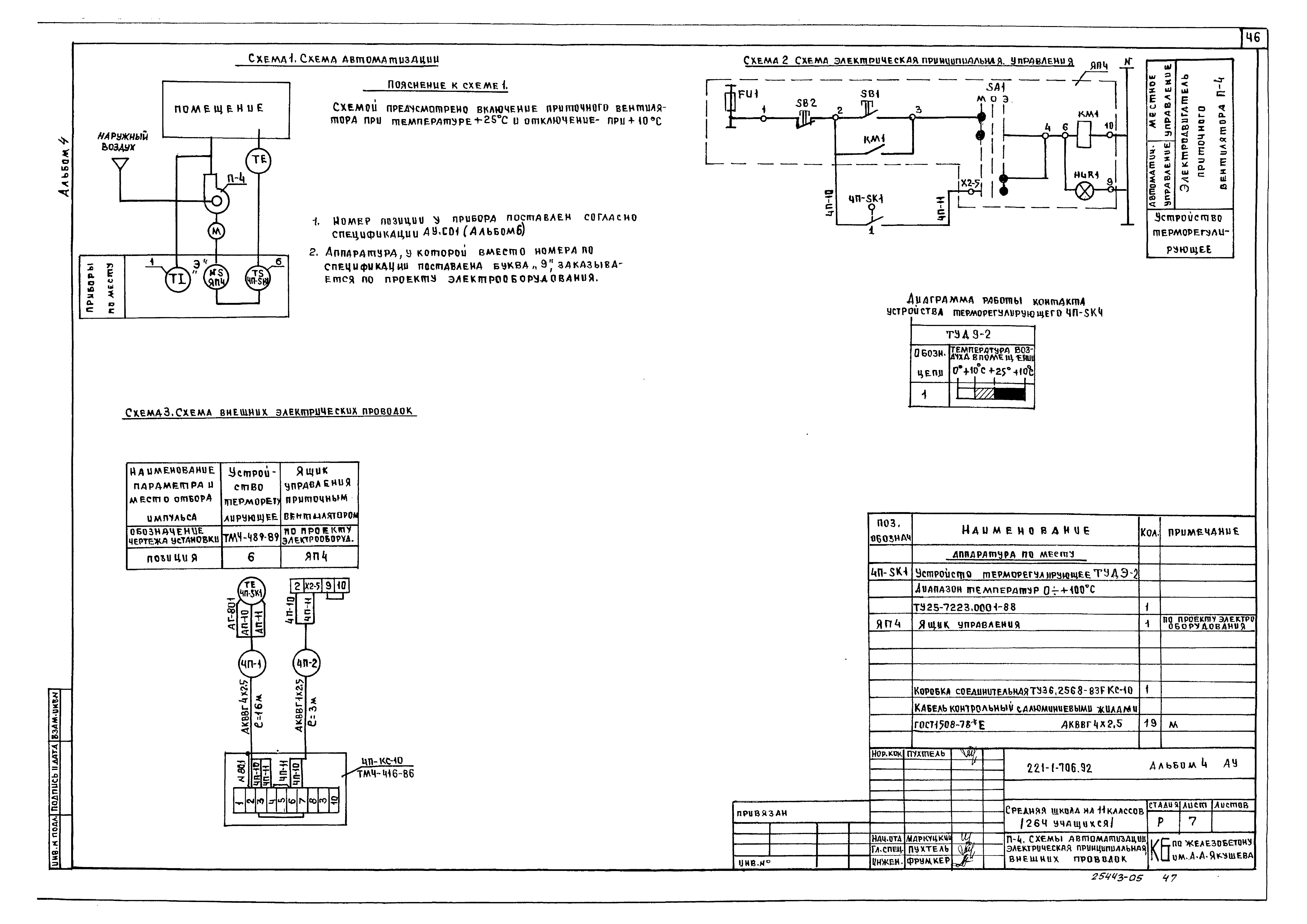
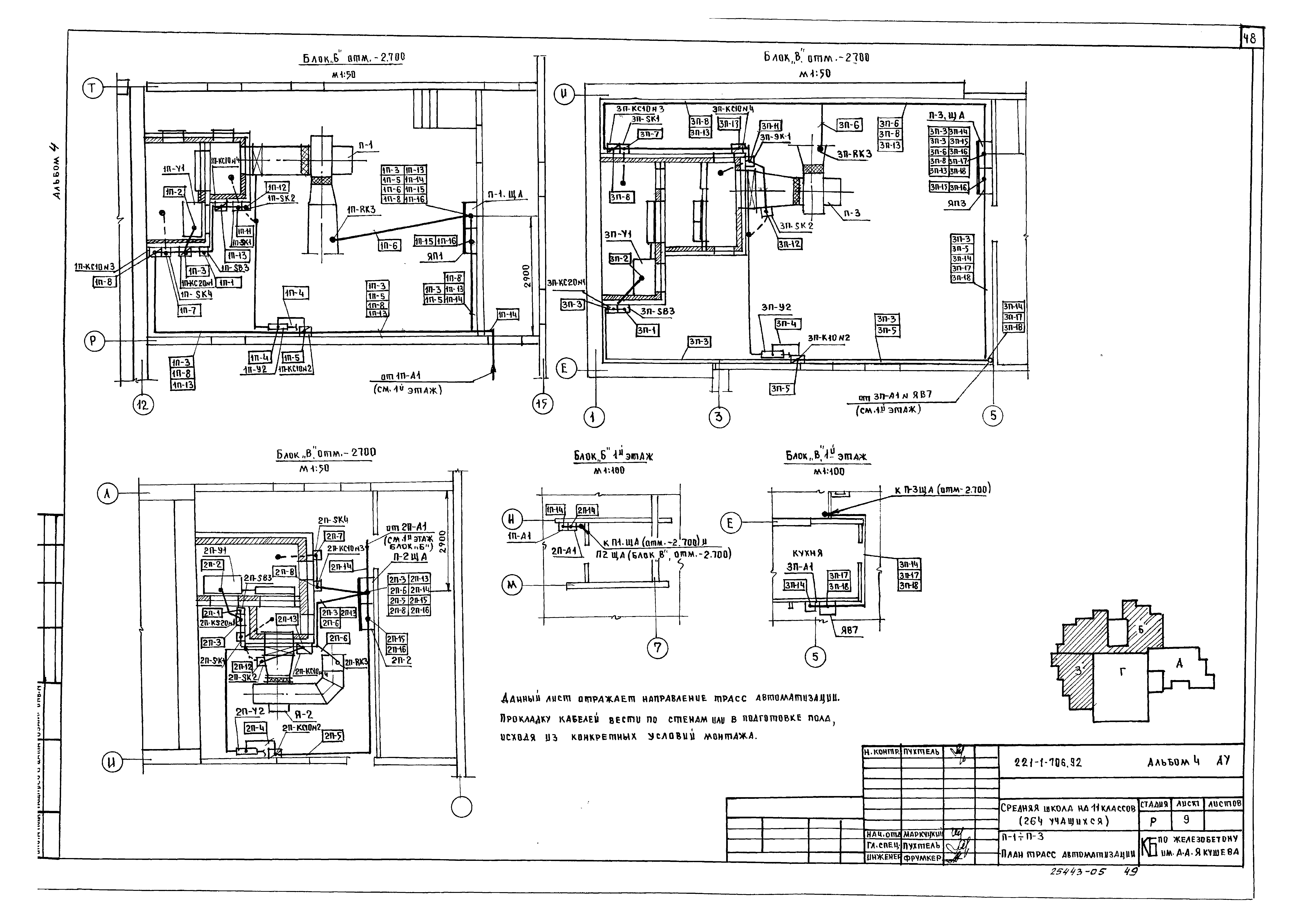
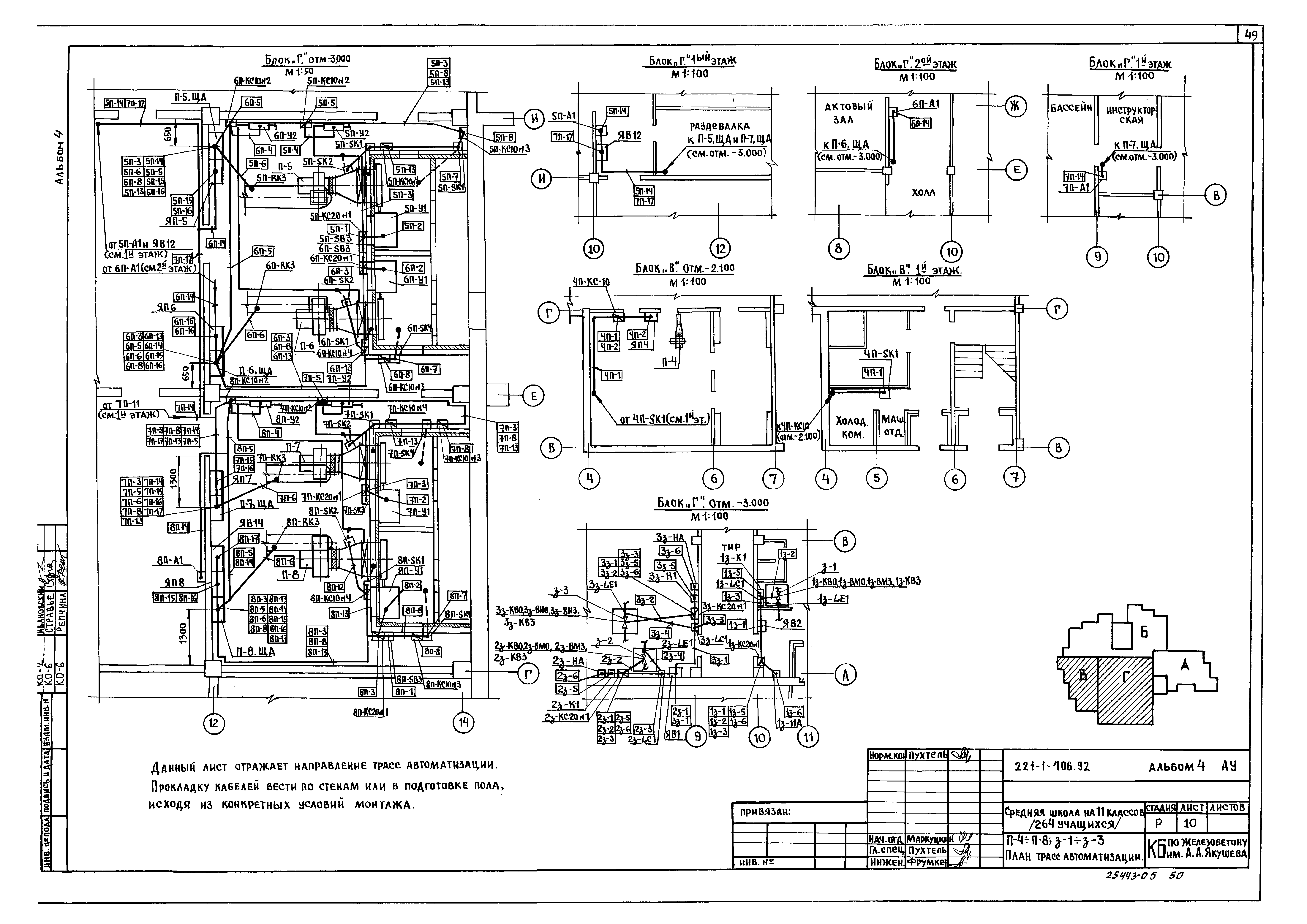
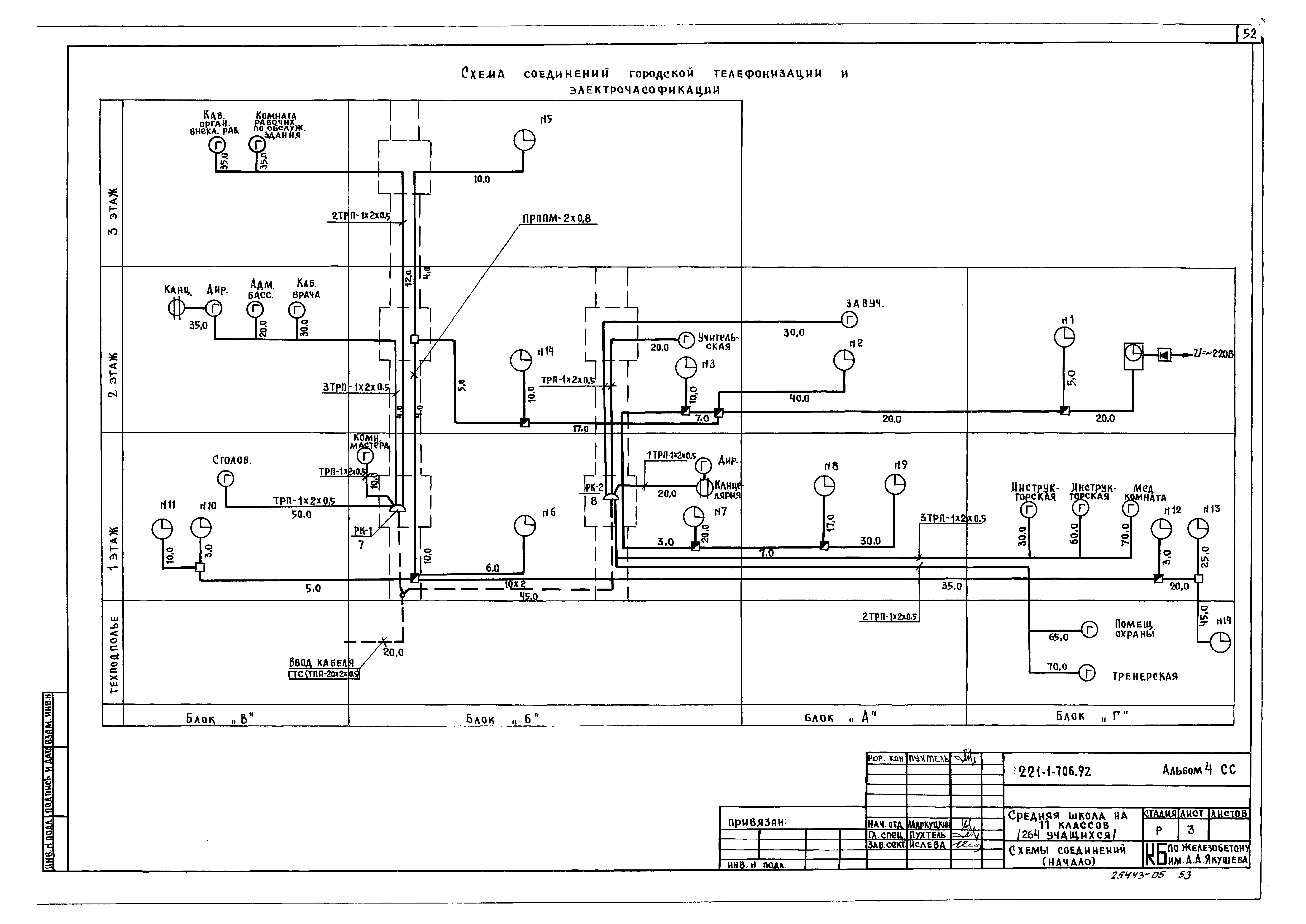
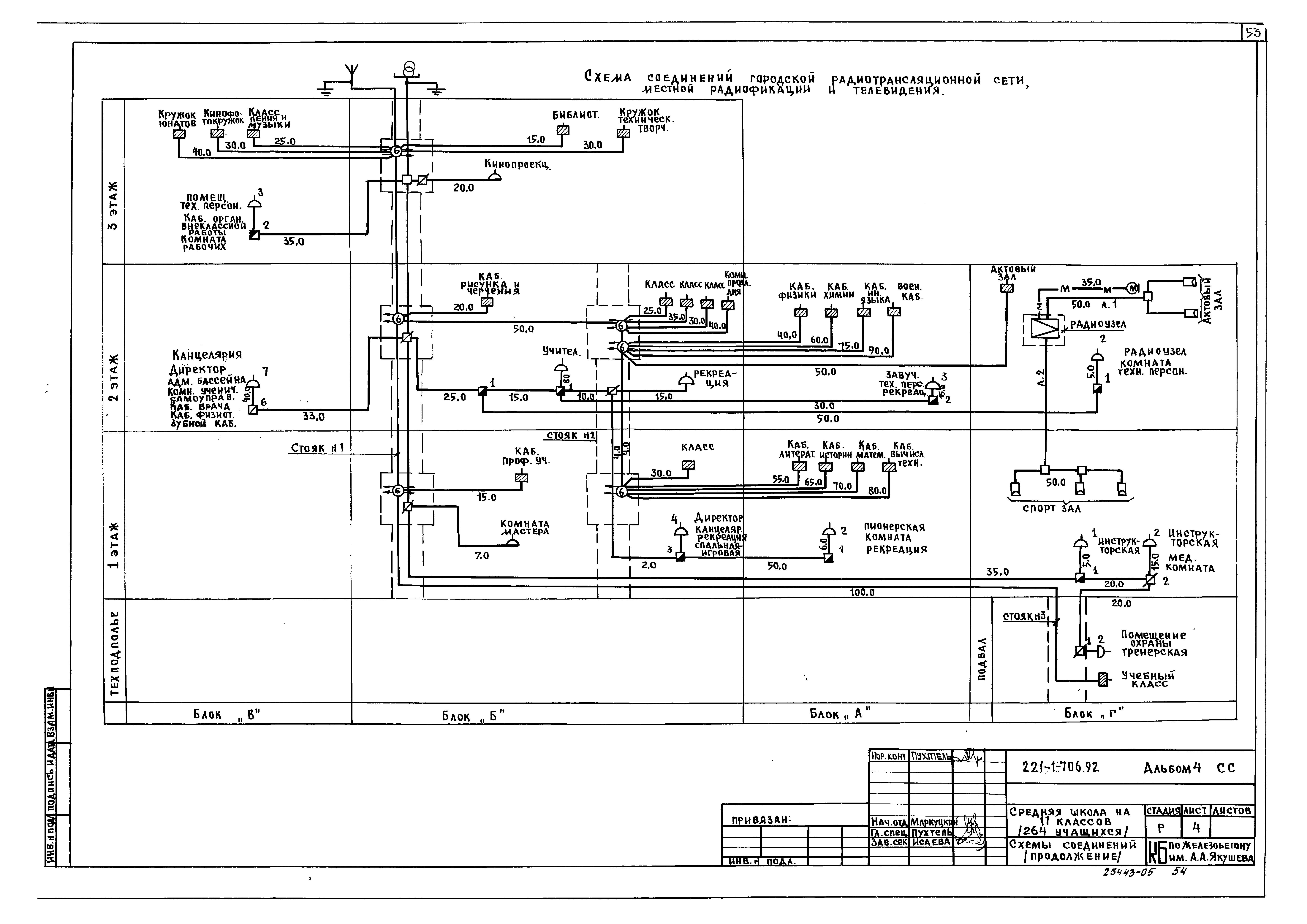
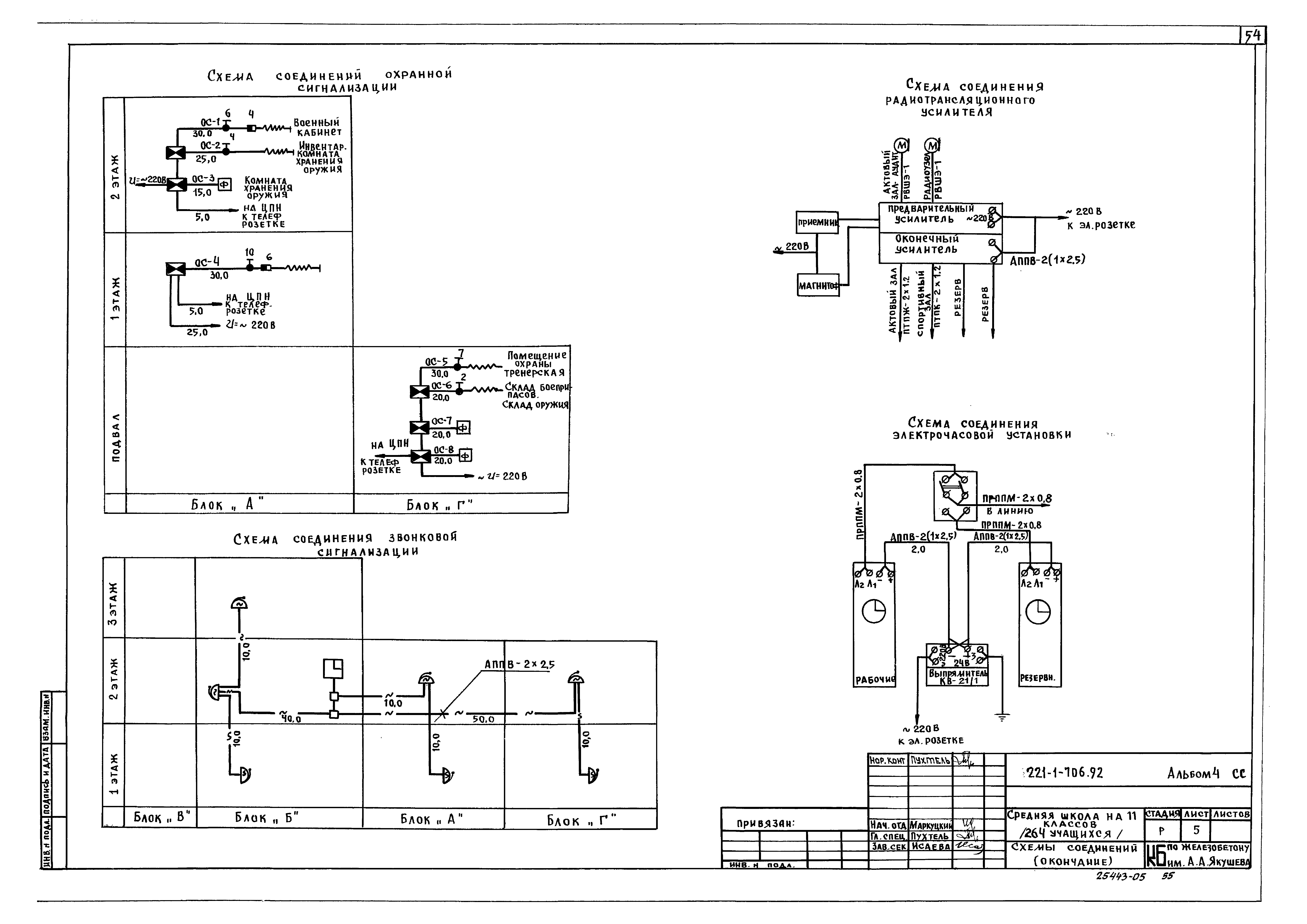
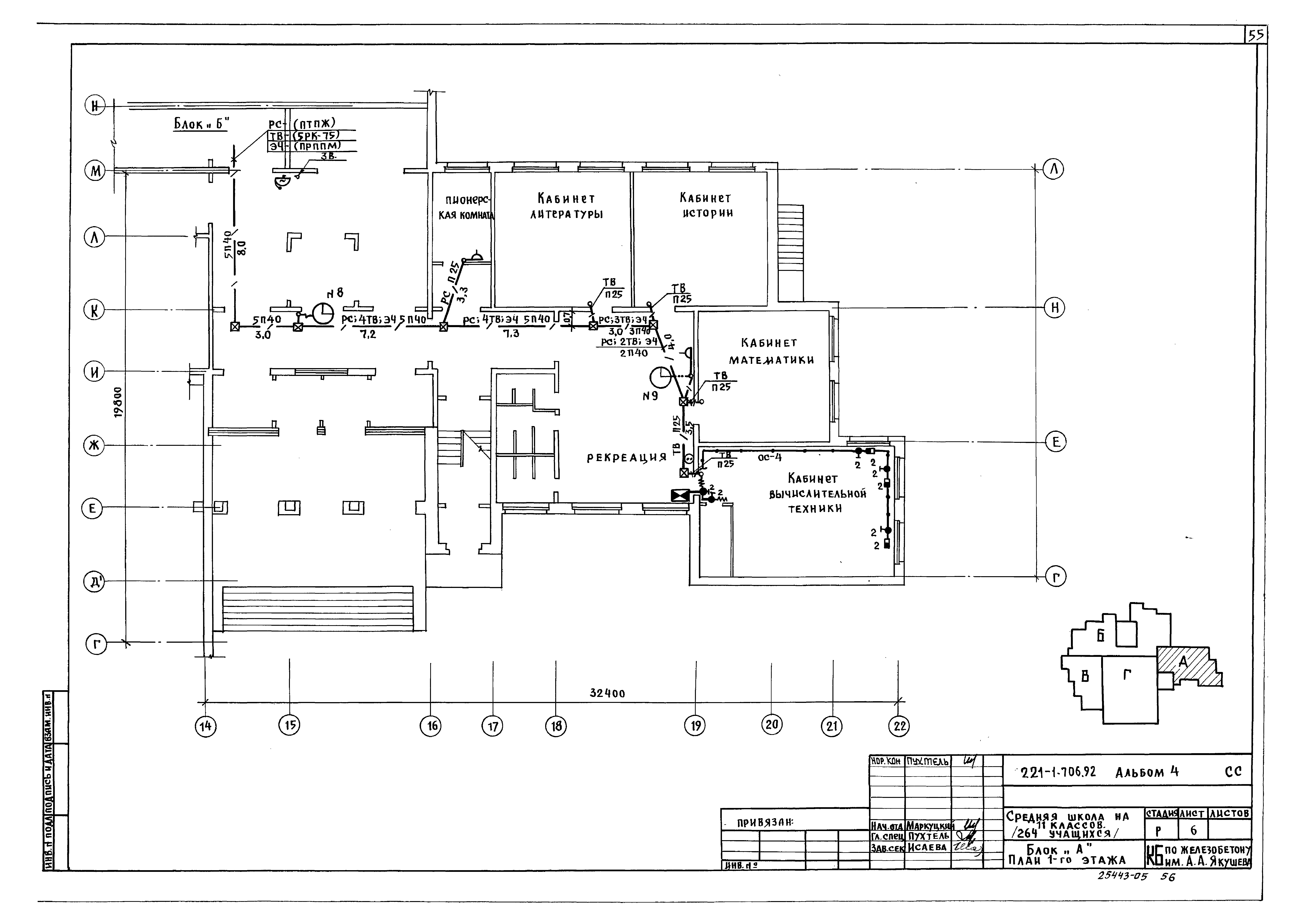
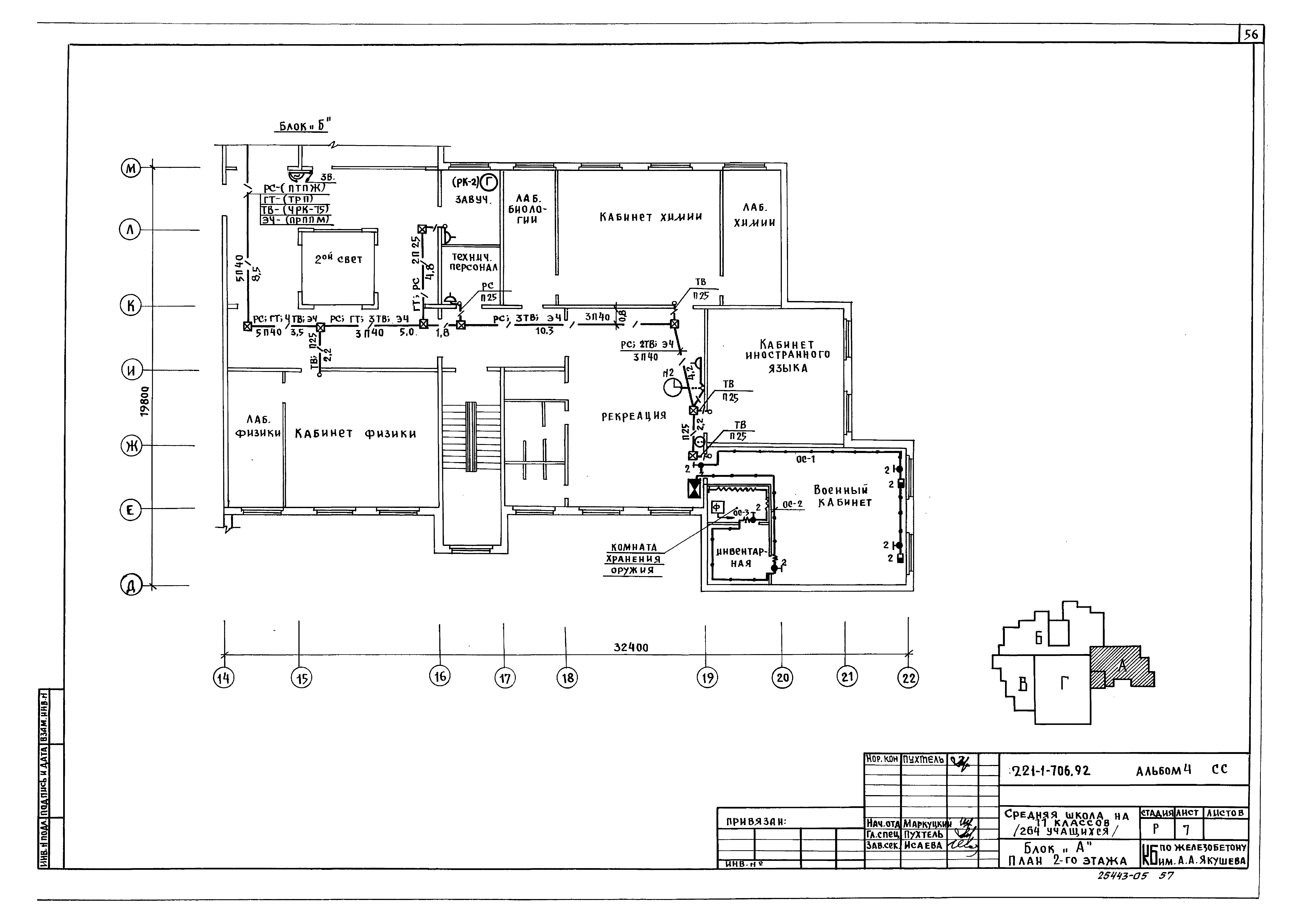
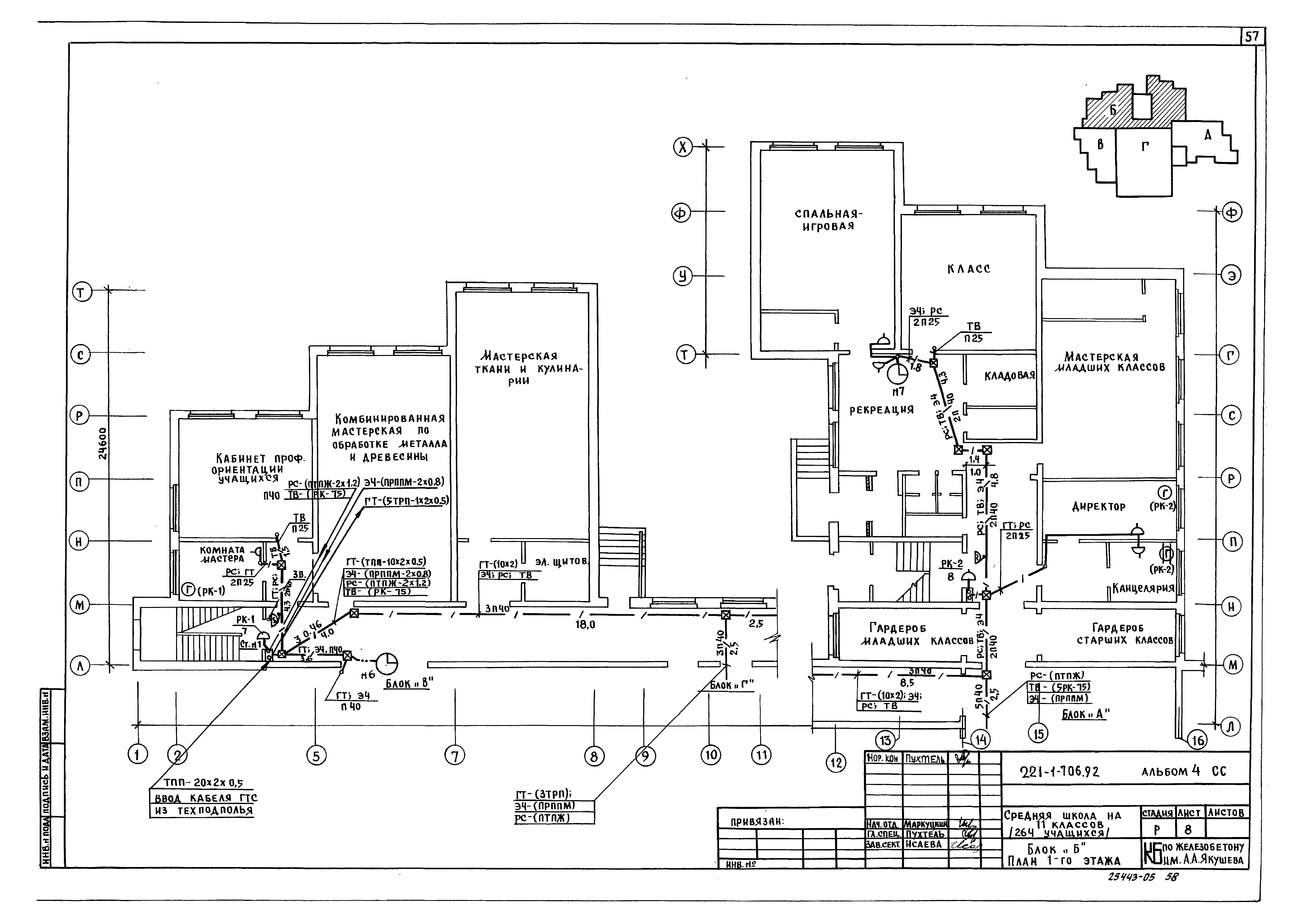
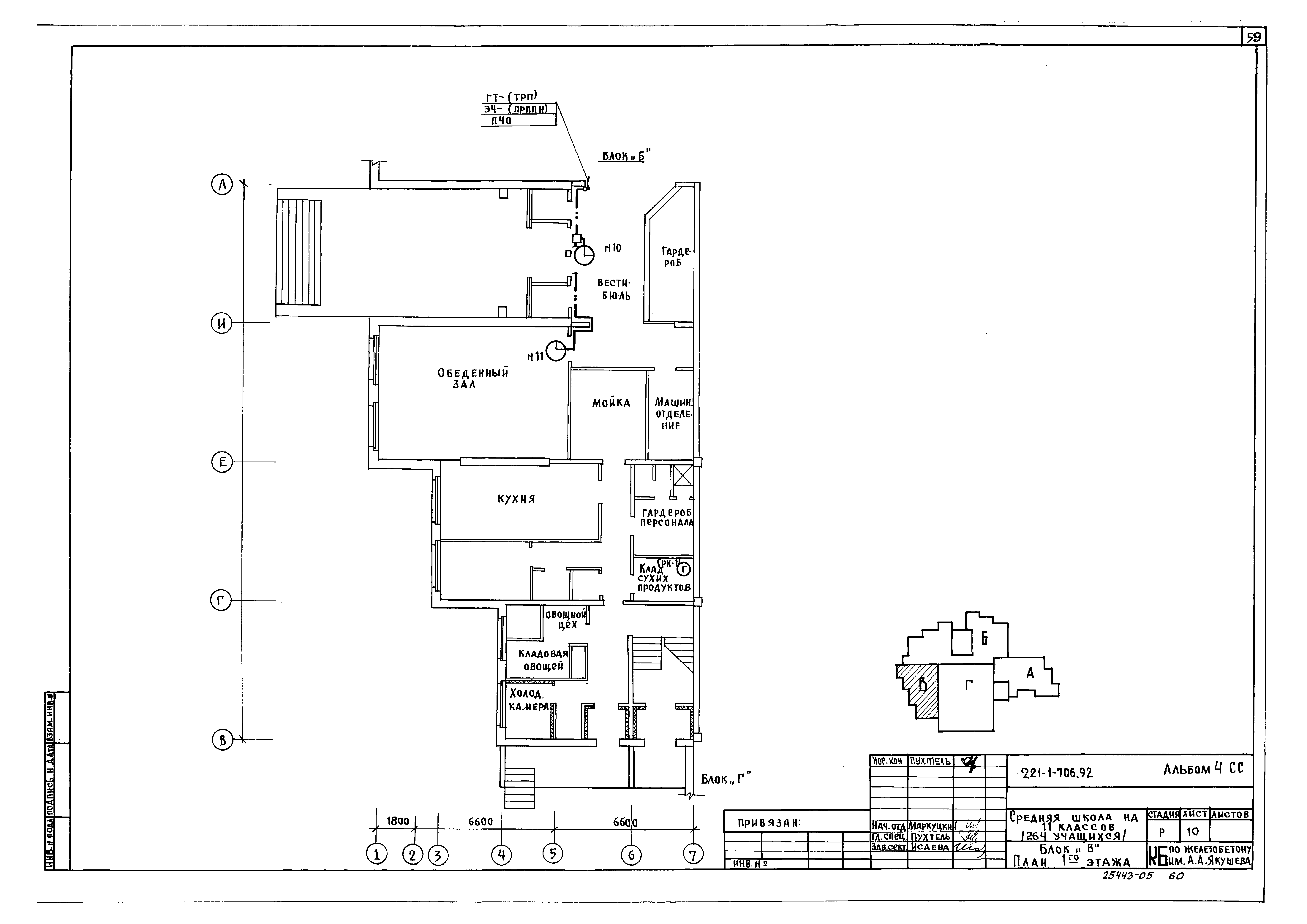
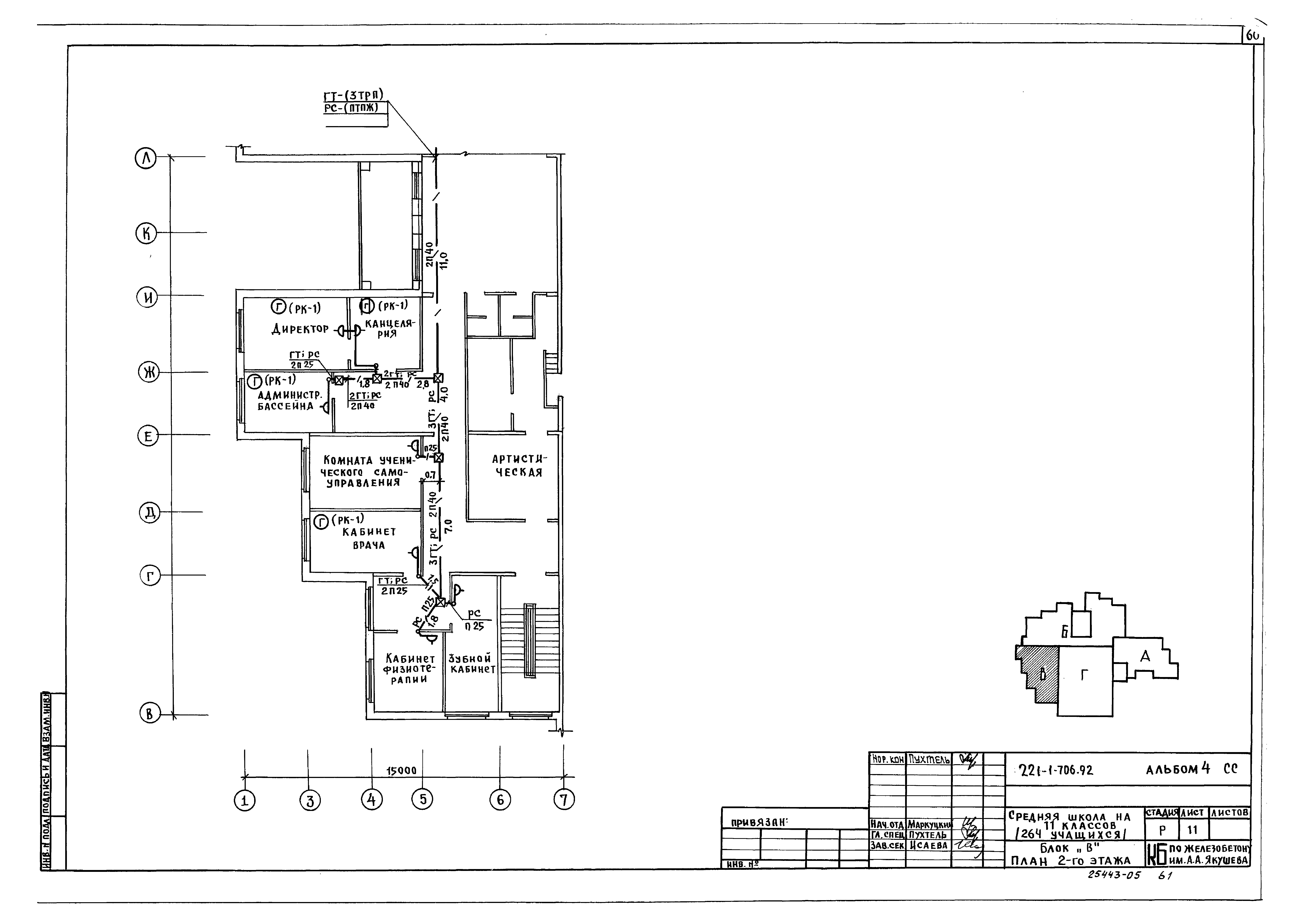
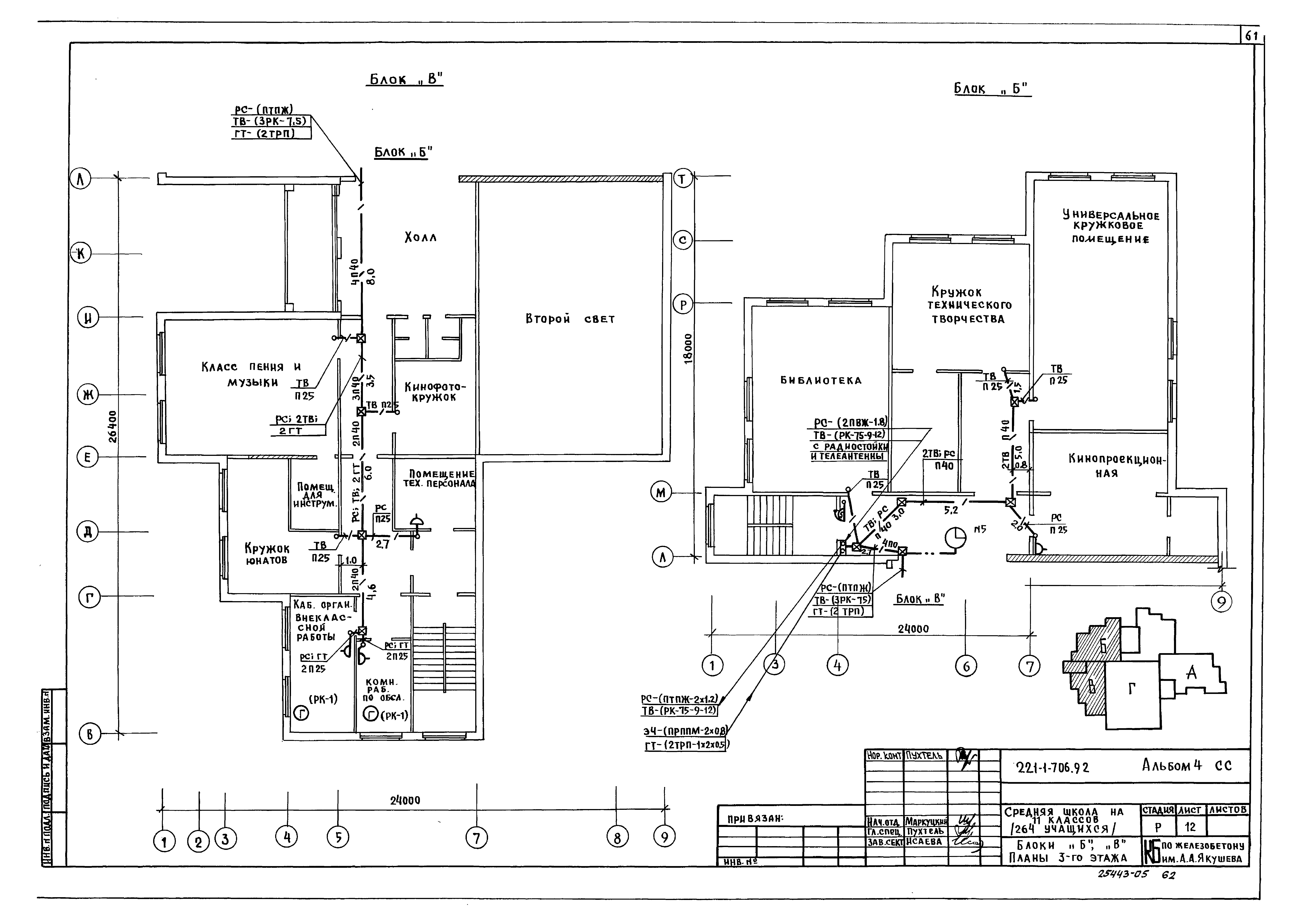
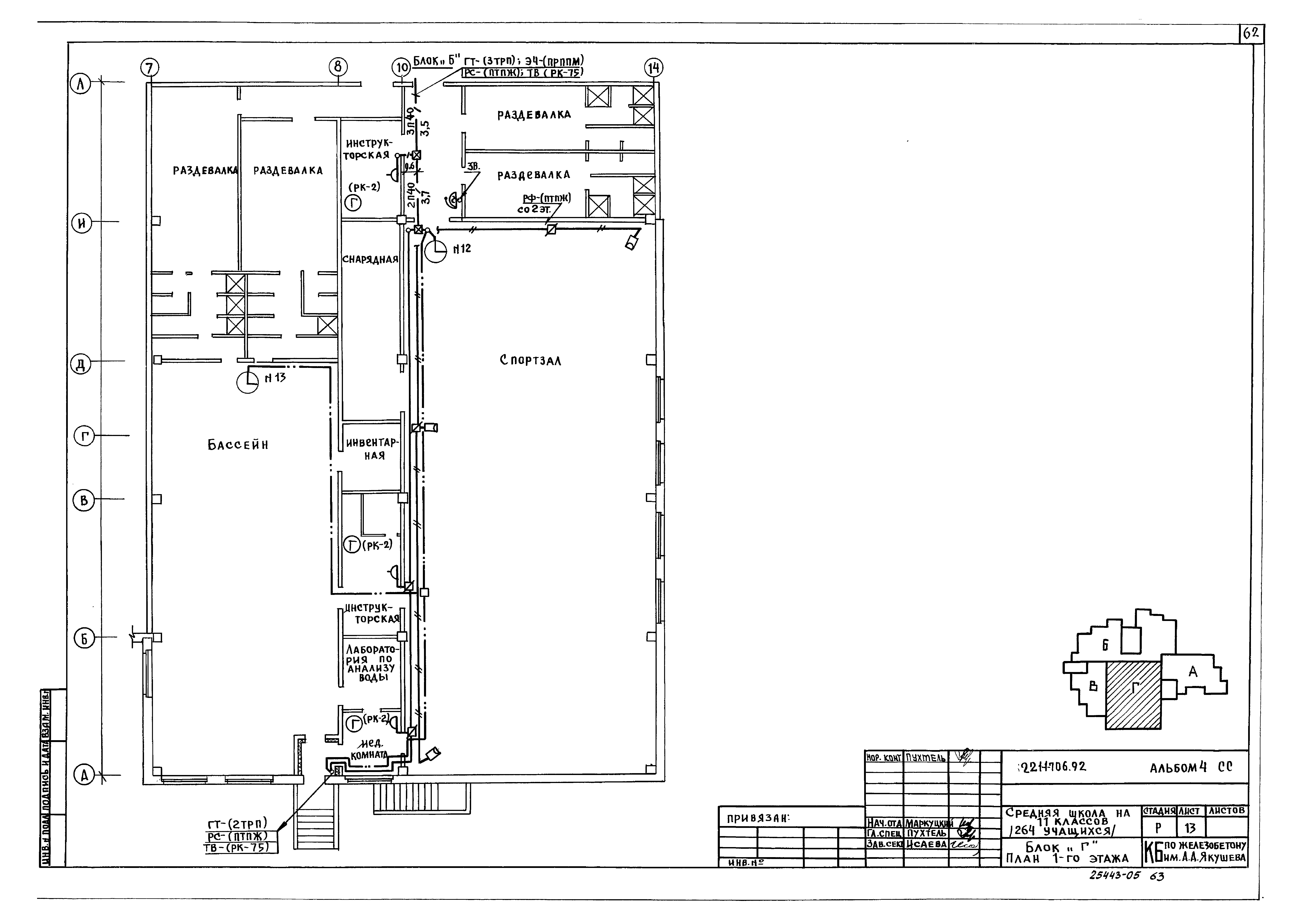
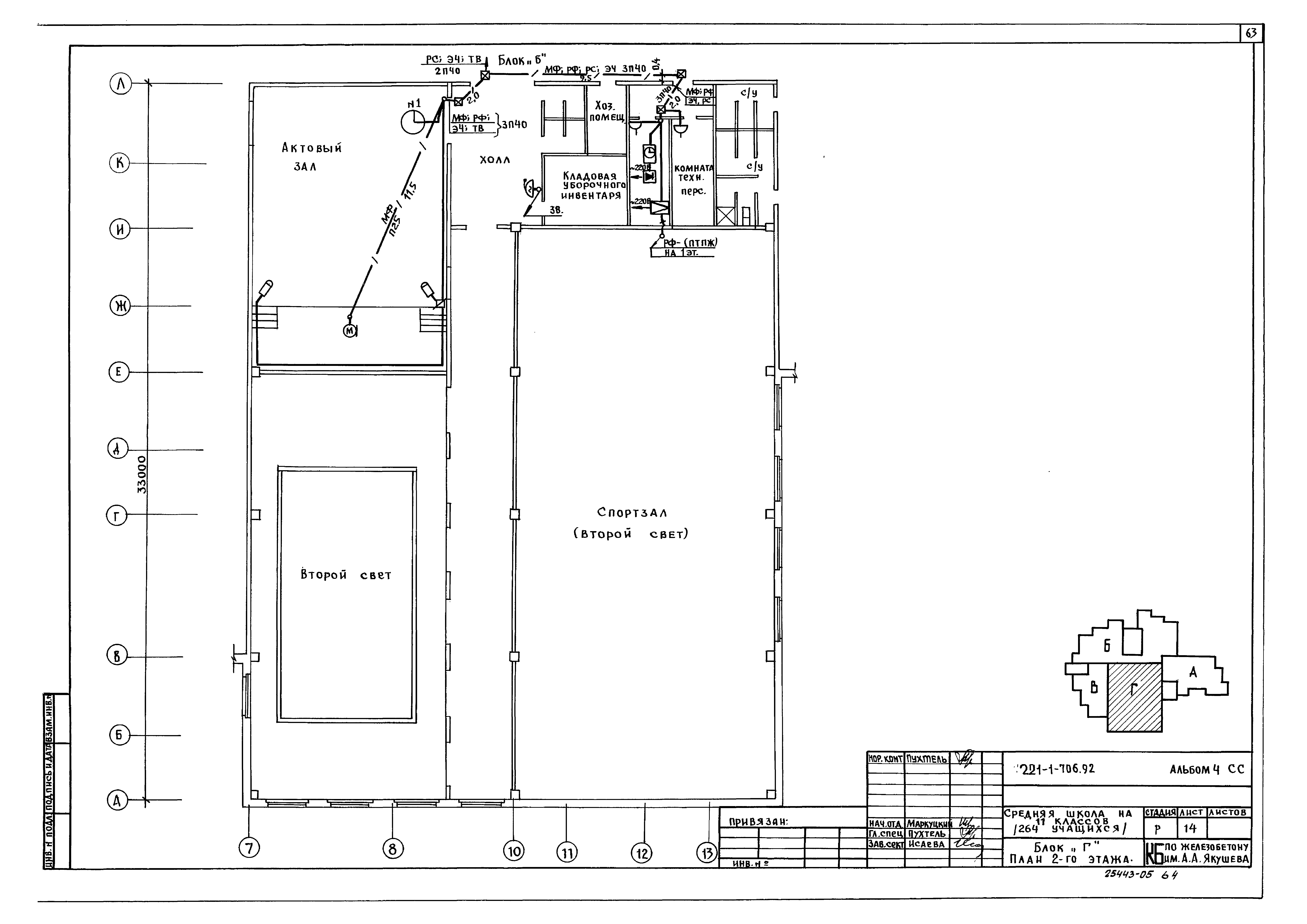
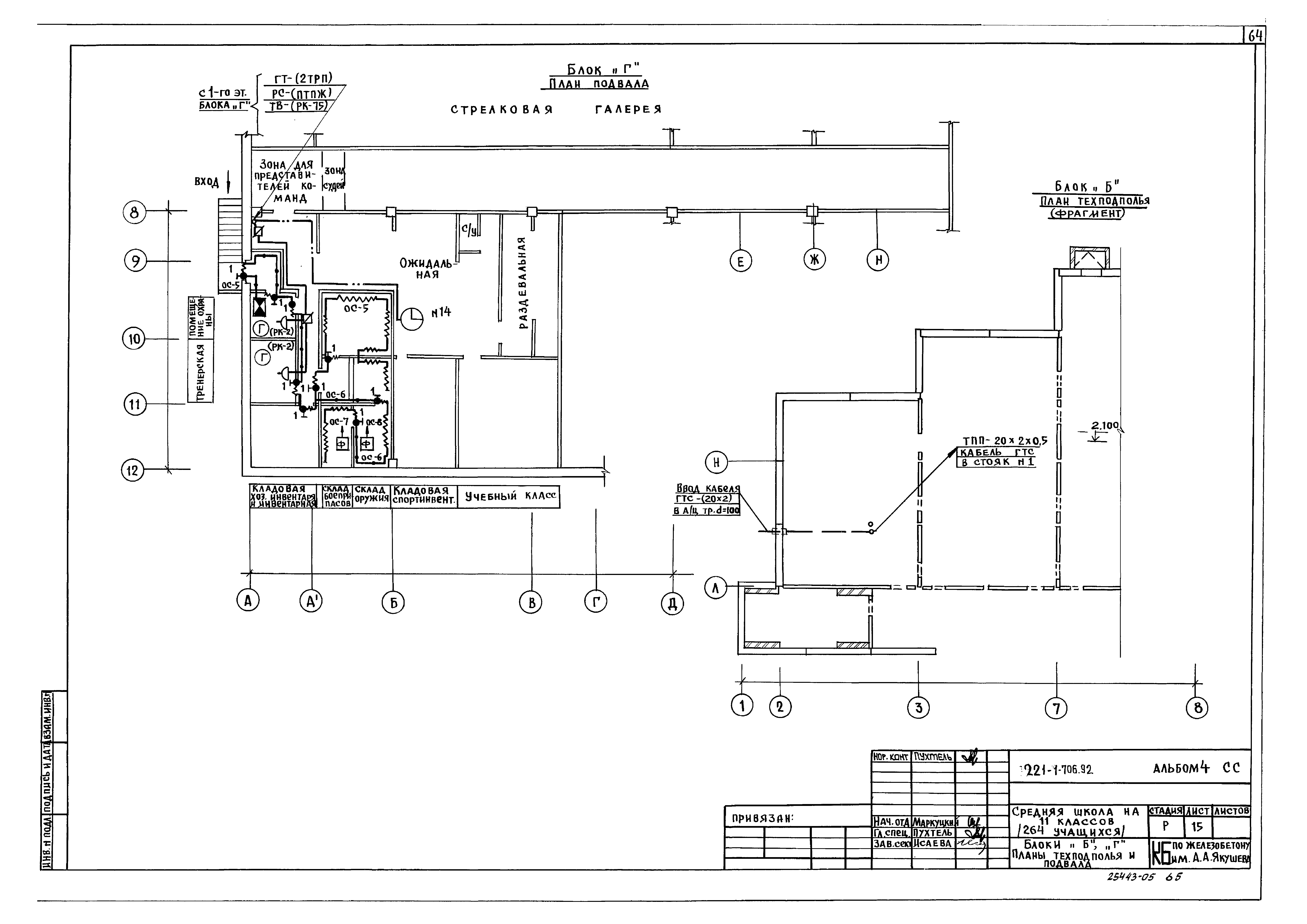
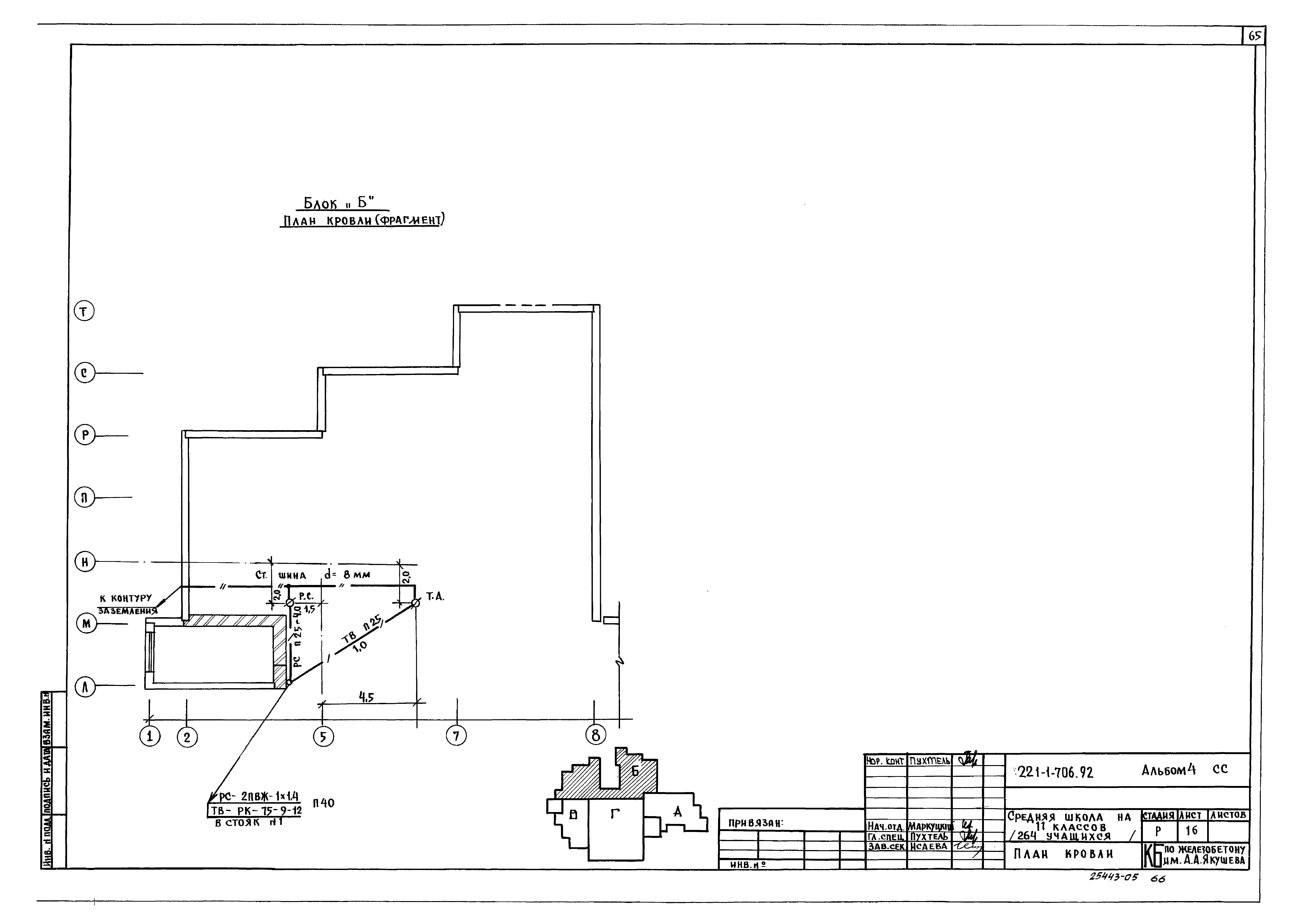
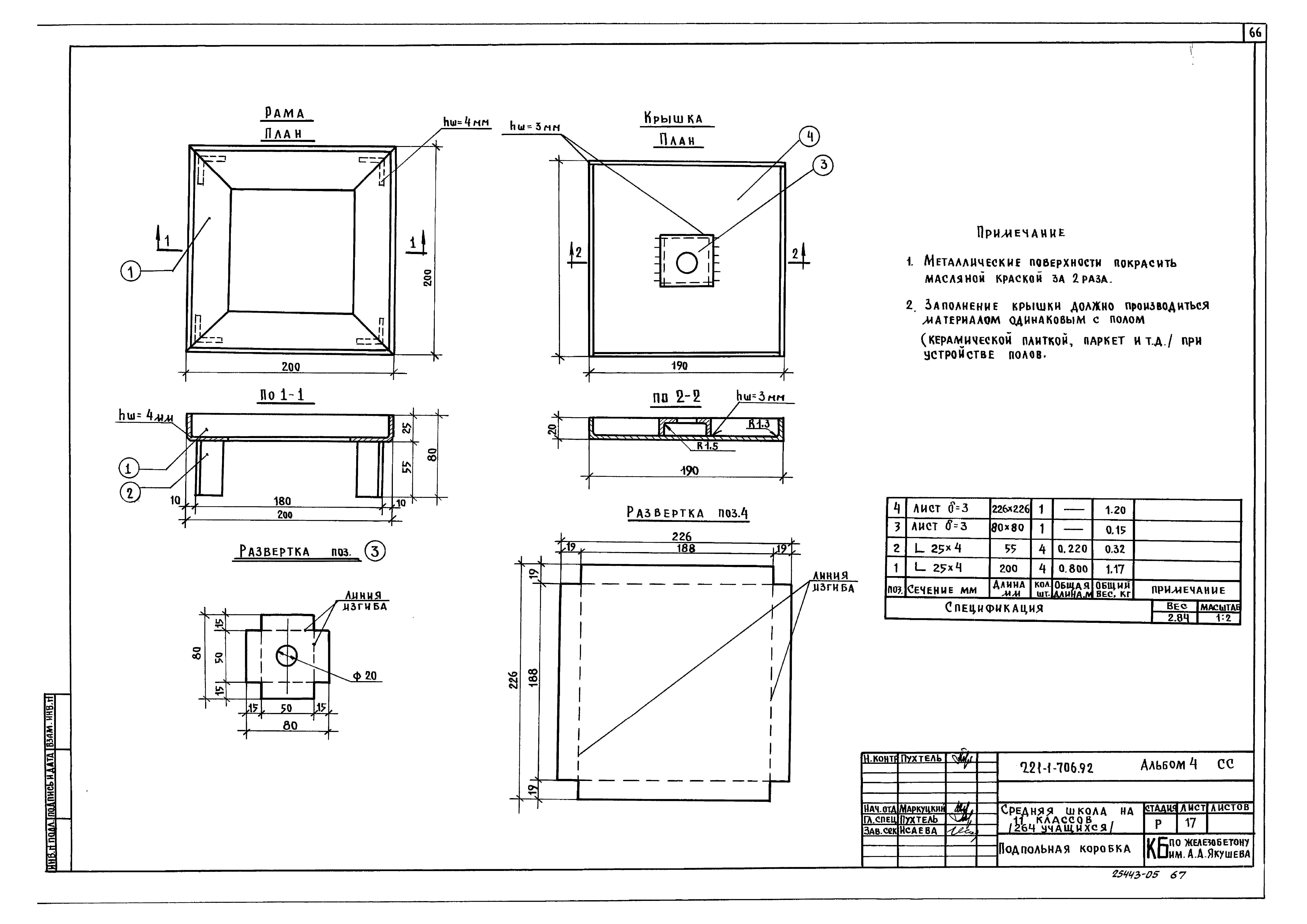
| Оглавление: | Содержание альбома Электрооборудование Общие данные Однолинейная расчетная схема питающей сети Электроосвещение Блок "А". План тхподполья Блок "Б". План тхподполья Блок "В". План тхподполья Блок "Г". План тхподполья Блок "Д". План 1 этажа Блок "Б". План 1 этажа Блок "В". План 1 и 2 этажей Блок "Г". План 1 этажа Блок "Д". План 2 этажа Блок "Б". План 2 этажа Блок "Г". План 2 этажа Блок "В". Блок "Б". План 3 этажа Блок "А". План чердака Блок "Б". План чердака Блок "В". План чердака Блок "Г". План чердака Силовое электрооборудование План силовой сети техподполья в осях 1-16;Л-Х План силовой сети техподполья в осях 1-7;В-Л План силовой сети техподполья в осях 1-14;А-Л План силовой сети 1го этажа в осях 1-16;Л-Ф План силовой сети 1го этажа в осях 14-22;Д-М План силовой сети 1го этажа в осях 7-14;А-Л 2 этажа в осях 7-9;Б-Л План силовой сети столовой План силовой сети 2 этажа в осях 1-8;В-Т План силовой сети 2 этажа в осях 14-22;Д-М План силовой сети 3 этажа в осях 1-9;В-Т План силовой сети чердака в осях 5-15 м;М-С;7-14;А-Л План силовой сети чердака в осях 1-7;В-Л;16-22;Д-М Схема расчетная распределительной сети 1ШР Схема расчетная распределительной сети 2ШР;3ШР Схема расчетная распределительной сети 4ШР;5ШР (начало) Схема расчетная распределительной сети 4ШР;5ШР (окончание). 6ШР (начало) Схема расчетная распределительной сети 5ШР (окончание) Схема расчетная распределительной сети 7ШР;8ШР ЭО-ОЛ Опросный лист Автоматизация Общие данные П-3;В-7;В-8 (П-1;П-2;П-5;П-6;П-7;В-12;П-8;В-14). Схема автоматизации П-1(П-2,П-3,П-5-П-8). Схема электрическая принципиальная управления П-1(П-2,П-3,П-5-П-8). Схема электрическая принципиальная регулирования П-1(П-2,П-3,П-5-П-8). Схема сигнализации П-3,В-7,В-8(П-1,П-2,П-5,П-6,П-7,В-12,П-8,В-14). Схема внешних электрических проводок П-4. Схемы автоматизации, электрическая, принципиальная, внешних проводок Задвижка З-1(З-2,З-3). Схема электрическая принципиальная, внешних проводок П1-П3. План трасс автоматизации П-4-П-8,З-1-З-3. План трасс автоматизации Общие данные (начало) Общие данные (окончание) Схемы соединений (начало) Схемы соединений (продолжение) Схемы соединений (окончание) Блок "А". План 1 этажа Блок "А". План 2-го этажа Блок "Б". План 1-го этажа Блок "Б". План 2-го этажа Блок "А". План 1-го этажа Блок "В". План 2-го этажа Блок "Б","В". Планы 3-го этажа Блок "Г". План 1-го этажа Блок "Г". План 2-го этажа Блоки "Б","Г". Планы техподполья и подвала План кровли Подпольная коробка Блокировка окон и дверей |
| Разработан: | КБ по железобетону им. А.А. Якушева |
| Утверждён: | 14.04.1989 Госкомархстрой РСФСР (Russian Federation Goskomarkhstroy 108) |



































































