Скачать Типовой проект 702-3-3.83 Альбом I. Пояснительная записка. Технологические и электротехнические чертежиДата актуализации: 01.01.2021
|
| Обозначение: | Типовой проект 702-3-3.83 |
| Обозначение англ: | 702-3-3.83 |
| Статус: | действует |
| Название рус.: | Альбом I. Пояснительная записка. Технологические и электротехнические чертежи |
| Дата добавления в базу: | 01.09.2013 |
| Дата актуализации: | 01.01.2021 |
| Дата введения: | 30.05.1983 |
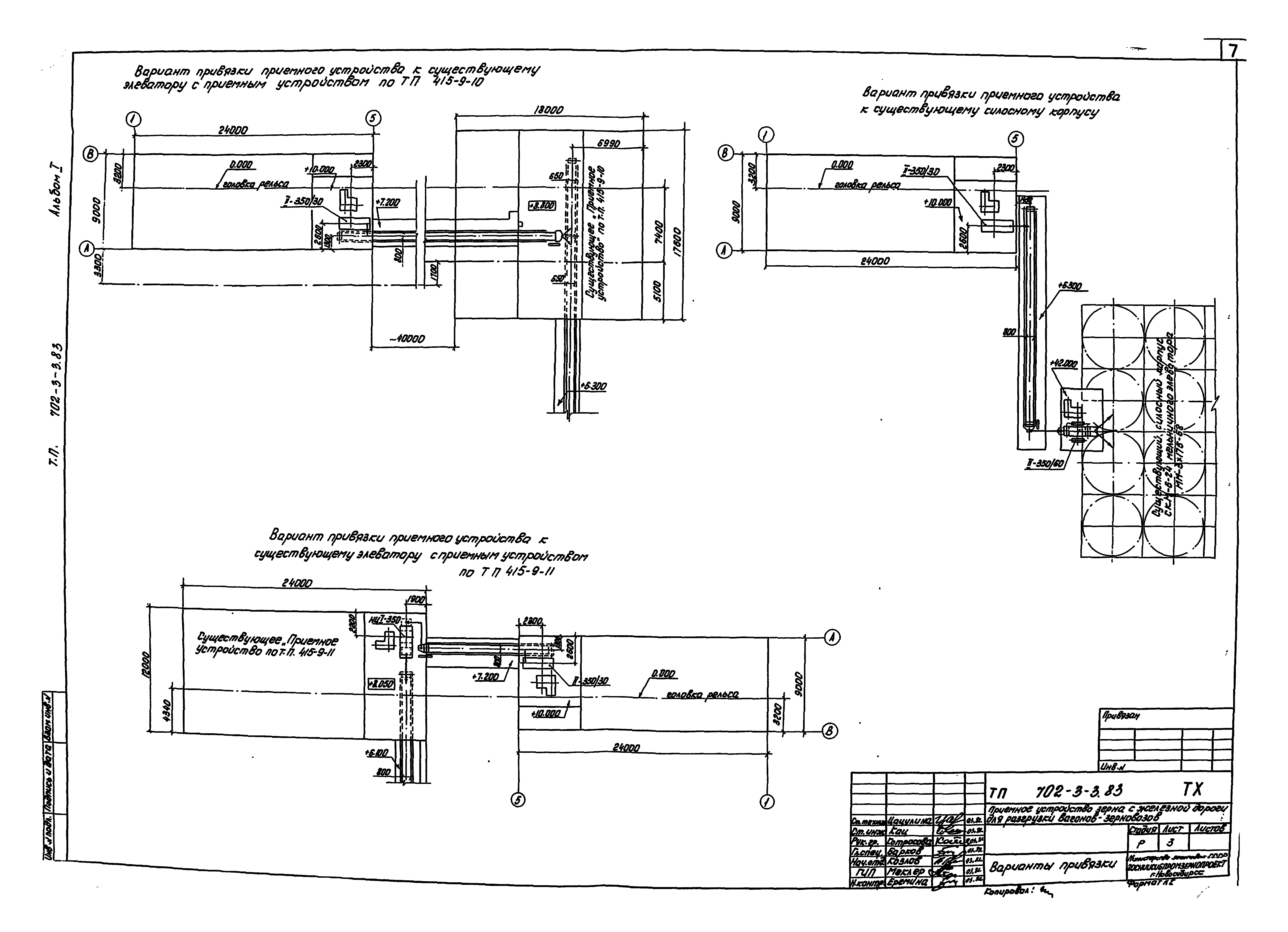
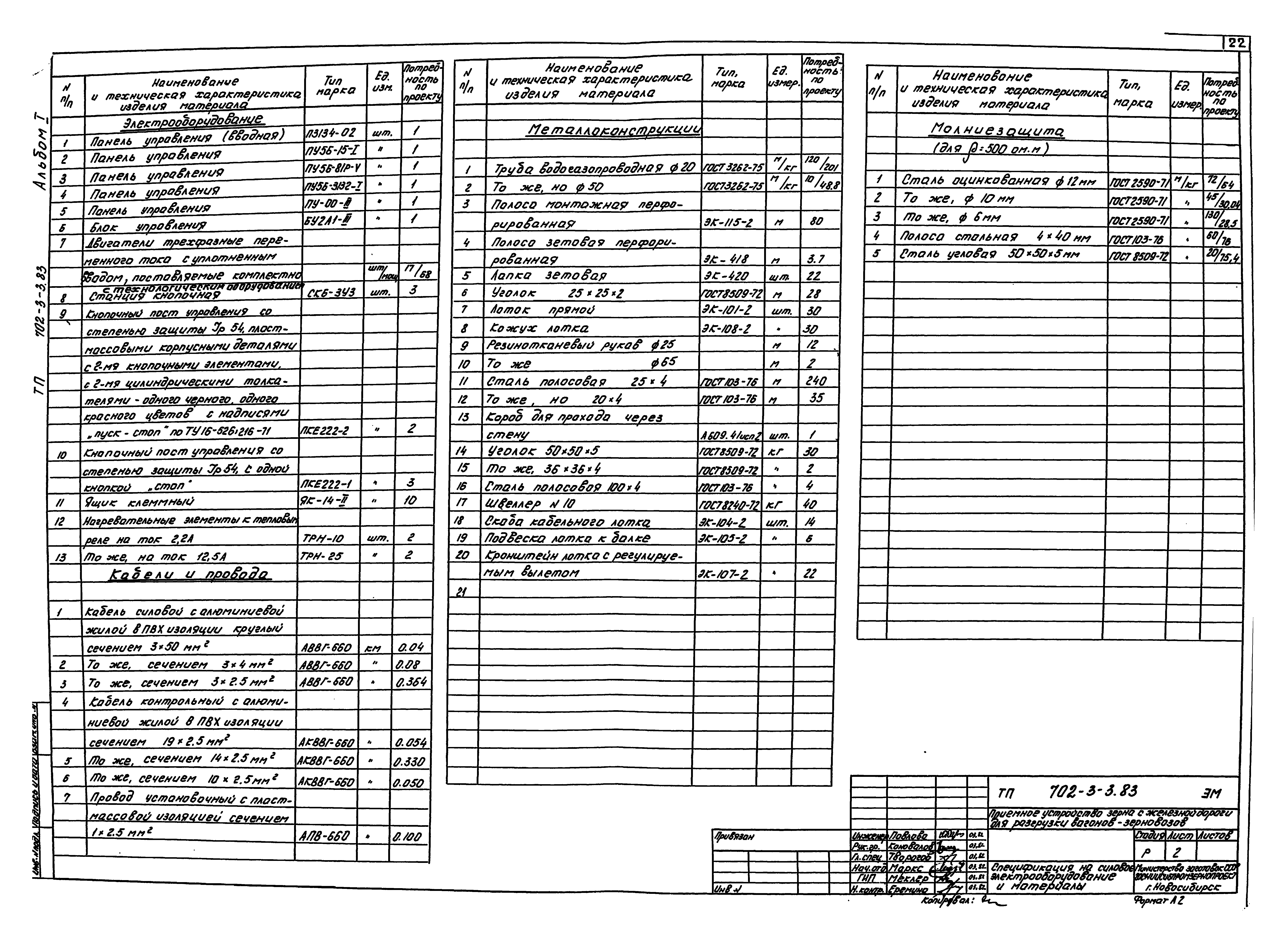
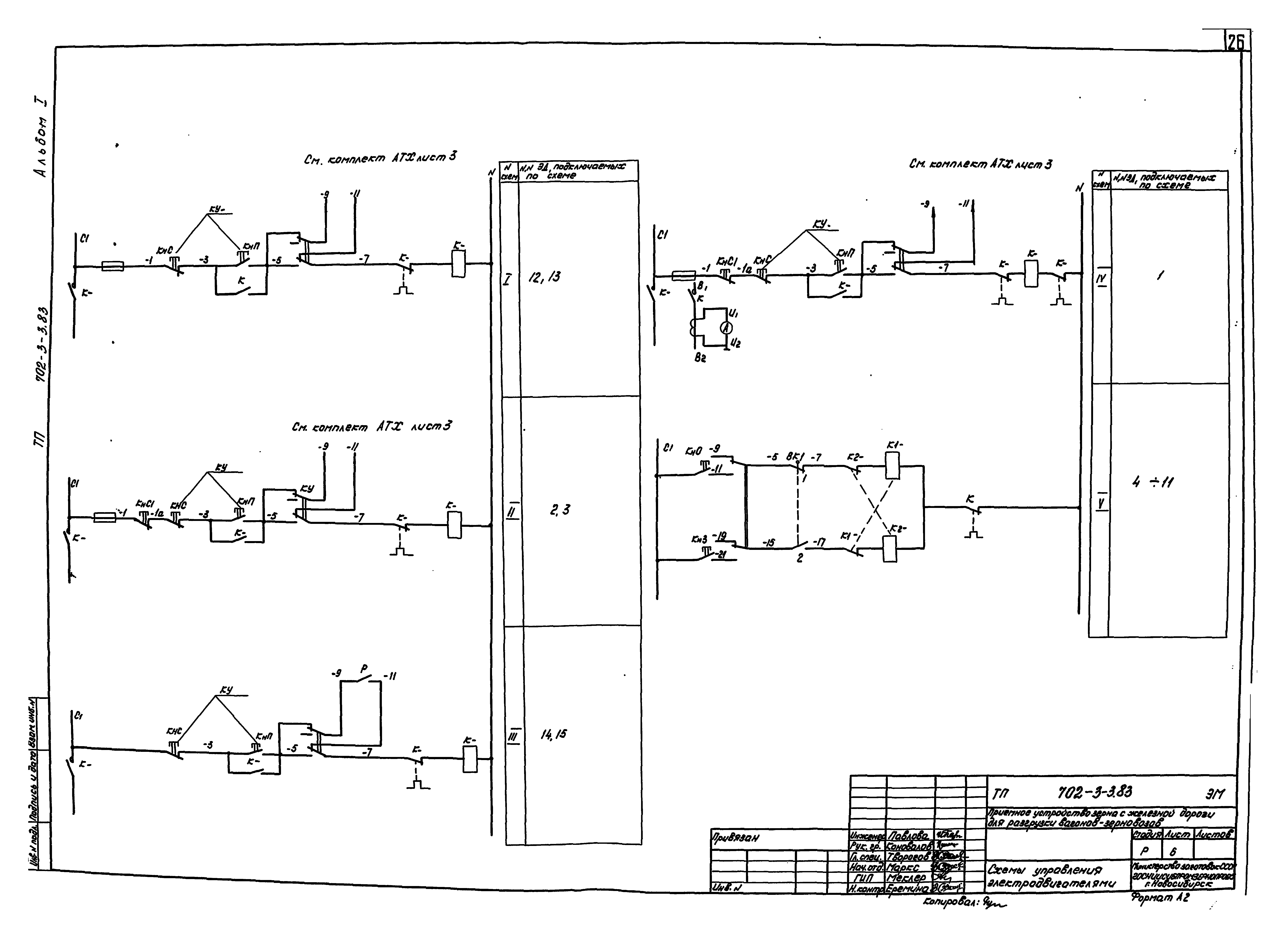
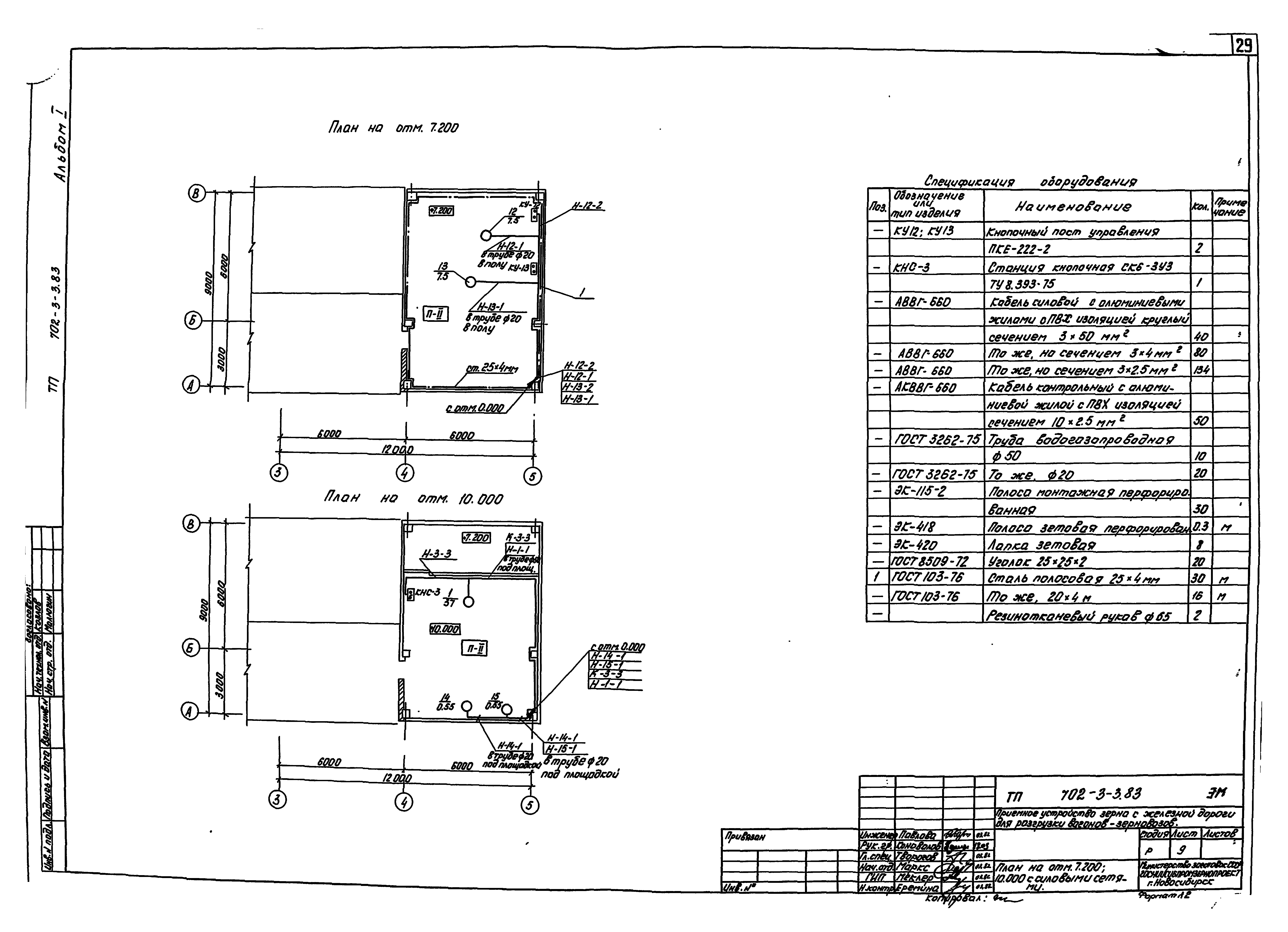
| Оглавление: | Содержание альбома ПЗ-1 Пояснительная записка (начало) ПЗ-2 Пояснительная записка (окончание) ТХ-1 Общие данные ТХ-2 Спецификация на материалы и изделия, поставляемые подрядной организацией ТХ-3 Варианты привязки ТХ-4 Схема движения зерна ТХ-5 Планы на отм. -0.180;-4.130. План кровли ТХ-6 Разрезы А-А;6-6. План на отметке 10.000 ТХ-7 Планы отверстий на отм. -0.180;-4.130;7.100;10.000 и на кровле ТХ-8 Схема аспирационной сети № 1 ТХ-9 Схема аспирационной сети № 2 ТХ-10 Пылевой самотек. Самотек с ленточного конвейера № 2.1 на норию № 1.1 ТХ-11 Графическая спецификация нории II-350/30 ТХ-12 Ленточный конвейер № 2.1 ТХ-13 Ленточный конвейер № 2.2 ТКМ-1 Опора под отводной ролик нории II-350/30 ТКМ-2 Патрубок переходный к выхлопному диффузору к установке циклонов 46ЦШ-450 и 550 ТХН-1 Опорная конструкция ленточного конвейера № 2.1 ТХН-2 Опорная конструкция ленточного конвейера № 2.2 ЭМ-1 Общие данные ЭМ-2 Спецификация на силовое электрооборудование и материалы ЭМ-3 Схема электрическая однолинейная РП. Схемы монтажные панелей 2.3 РП ЭМ-4 Схема монтажная панели П-4 РП. Схема электрических соединений КЯ-4 ЭМ-5 Электромонтажные схемы кнопочных станций КНС1-КНС3 ЭМ-6 Схемы управления электродвигателями ЭМ-7 КЯ-16. Общий вид. Однолинейная и электромонтажные схемы ЭМ-8 План на отметке -4.100;0.000 с силовыми сетями ЭМ-9 План на отм. 7.200;10.000 с силовыми сетями ЭМ-10 Молниезащита ЭМ-11 Кабельный журнал ЭО-1 Общие данные ЭО-2 Спецификация на материалы для электроосвещения ЭО-3 План на отметке 0.000;-4.100 с сетями электроосвещения ЭО-4 План на отм. 7.200;10.000 с сетями эл. Освещения. Установочный чертеж светильника СКЗР-1-250 СС-1 Общие данные СС-2 План на отметке 0.000 АТХ-1 Общие данные АТХ-2 Ведомость электрооборудования и материалов АТХ-3 Схемы электрические принципиальные АТХ-4 Схема управления задвижками и сигнализации АТХ-5 Блоки релейные № 1,2. Клеммные ящики КЯ1,КЯ4-КЯ11 АТХ-6 Блоки релейные № 3,4,5 АТХ-7 Планы с разводкой сетей ДАУ |
| Разработан: | Госниисибпромзернопроект |
| Утверждён: | 13.05.1982 Министерство заготовок СССР (USSR Ministry of Procurements 135) |












































