Скачать Типовой проект 702-3-3.83 Альбом III. Изделия заводского изготовленияДата актуализации: 01.01.2021
|
| Обозначение: | Типовой проект 702-3-3.83 |
| Обозначение англ: | 702-3-3.83 |
| Статус: | действует |
| Название рус.: | Альбом III. Изделия заводского изготовления |
| Дата добавления в базу: | 01.09.2013 |
| Дата актуализации: | 01.01.2021 |
| Дата введения: | 30.05.1983 |
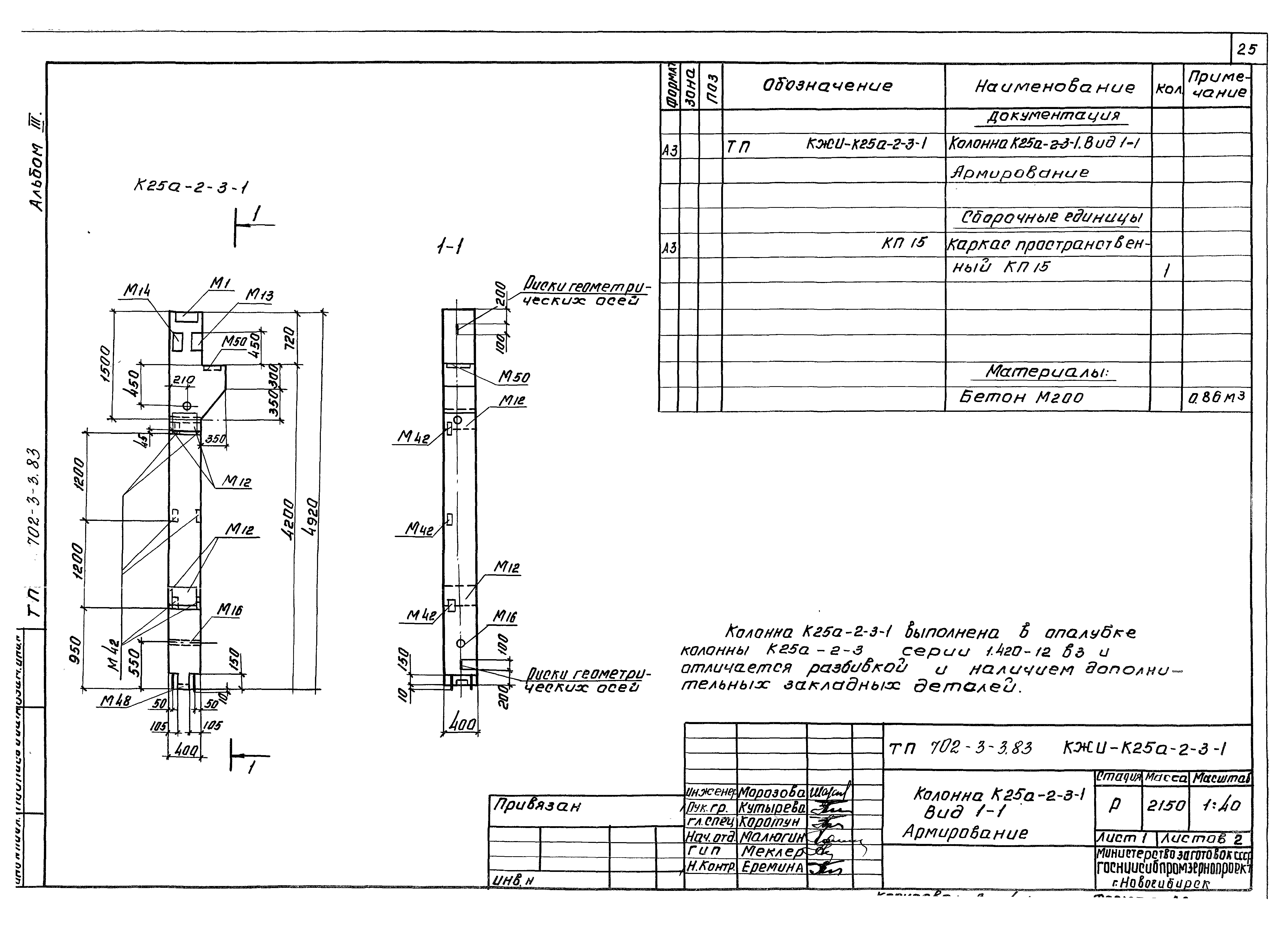
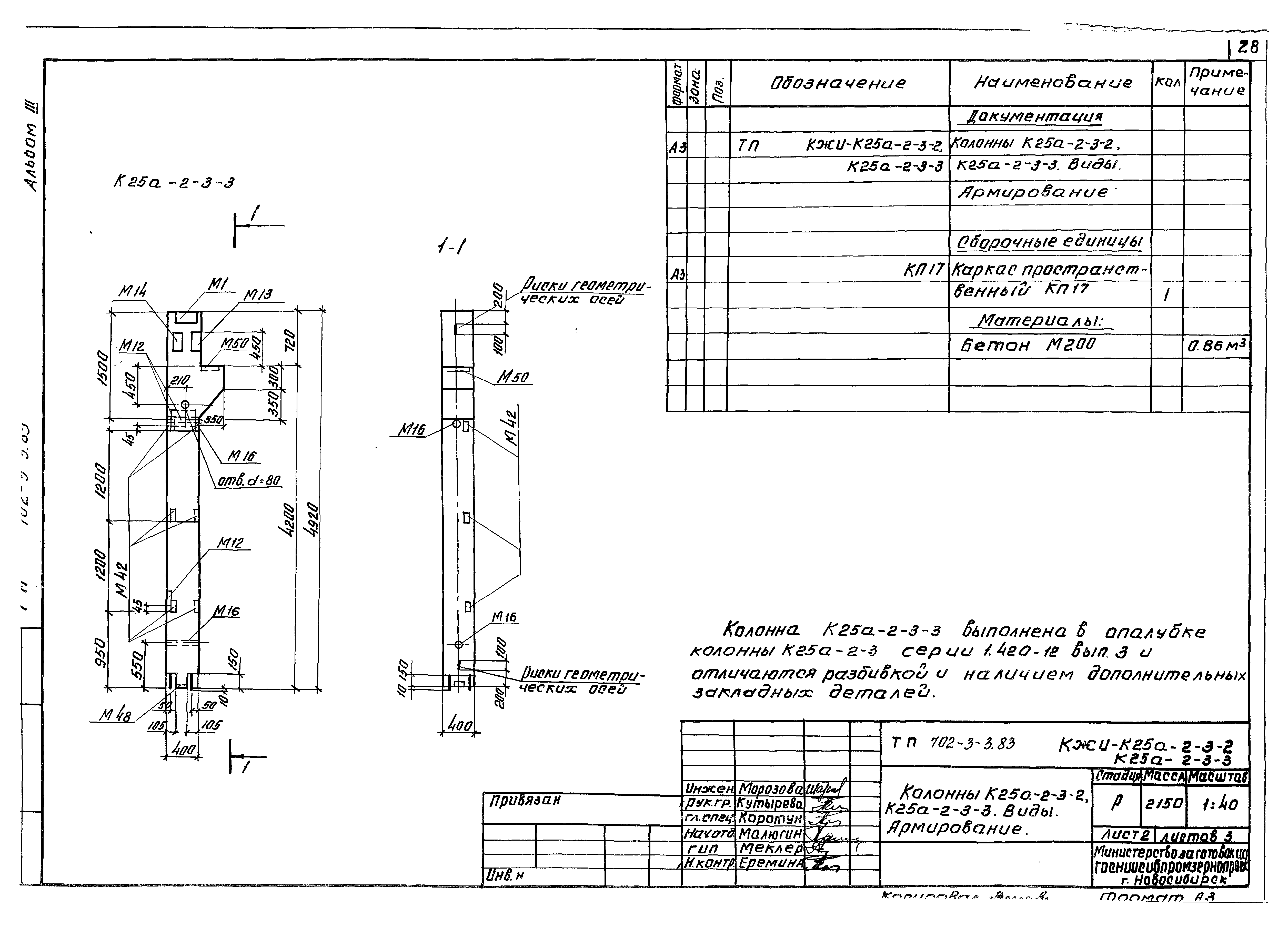
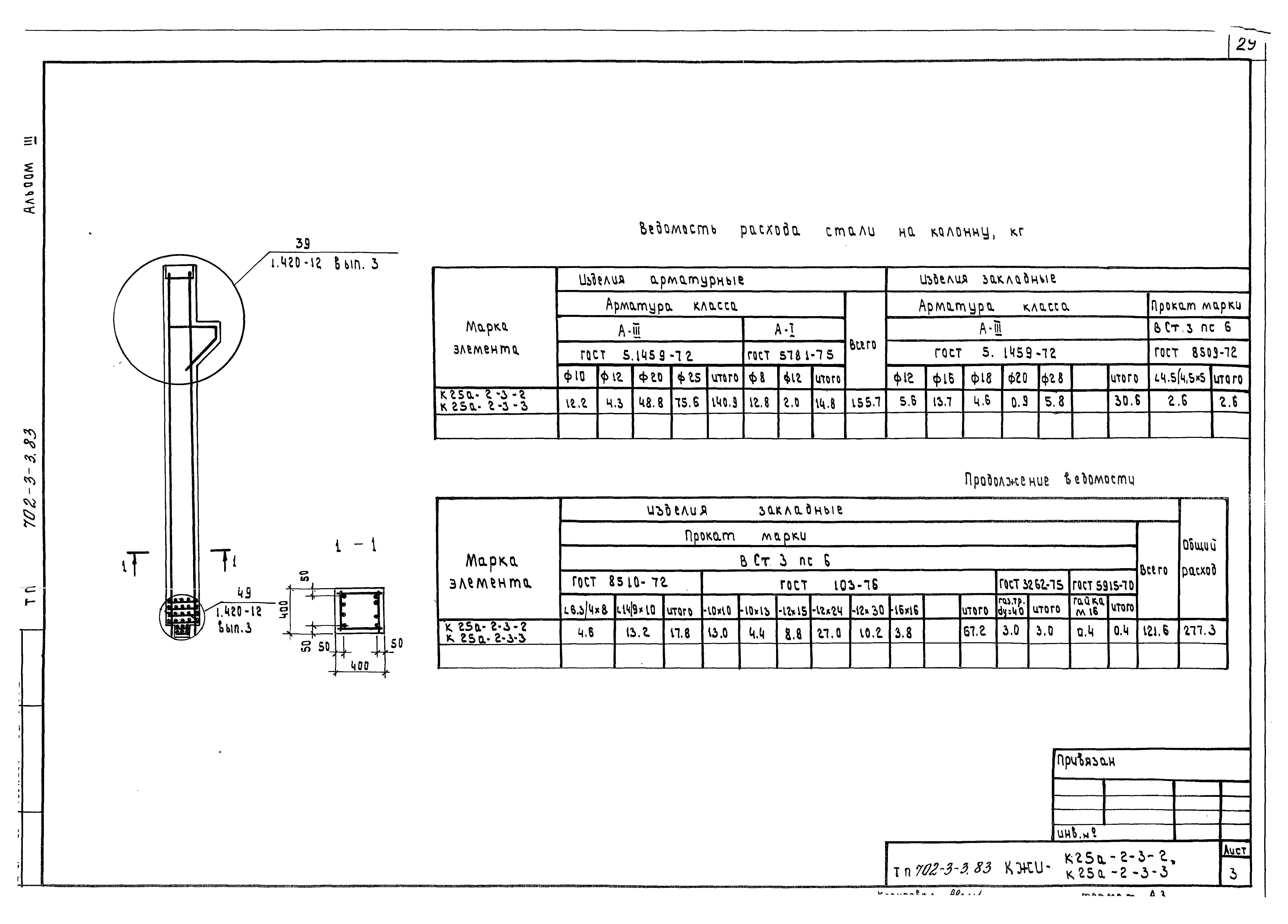
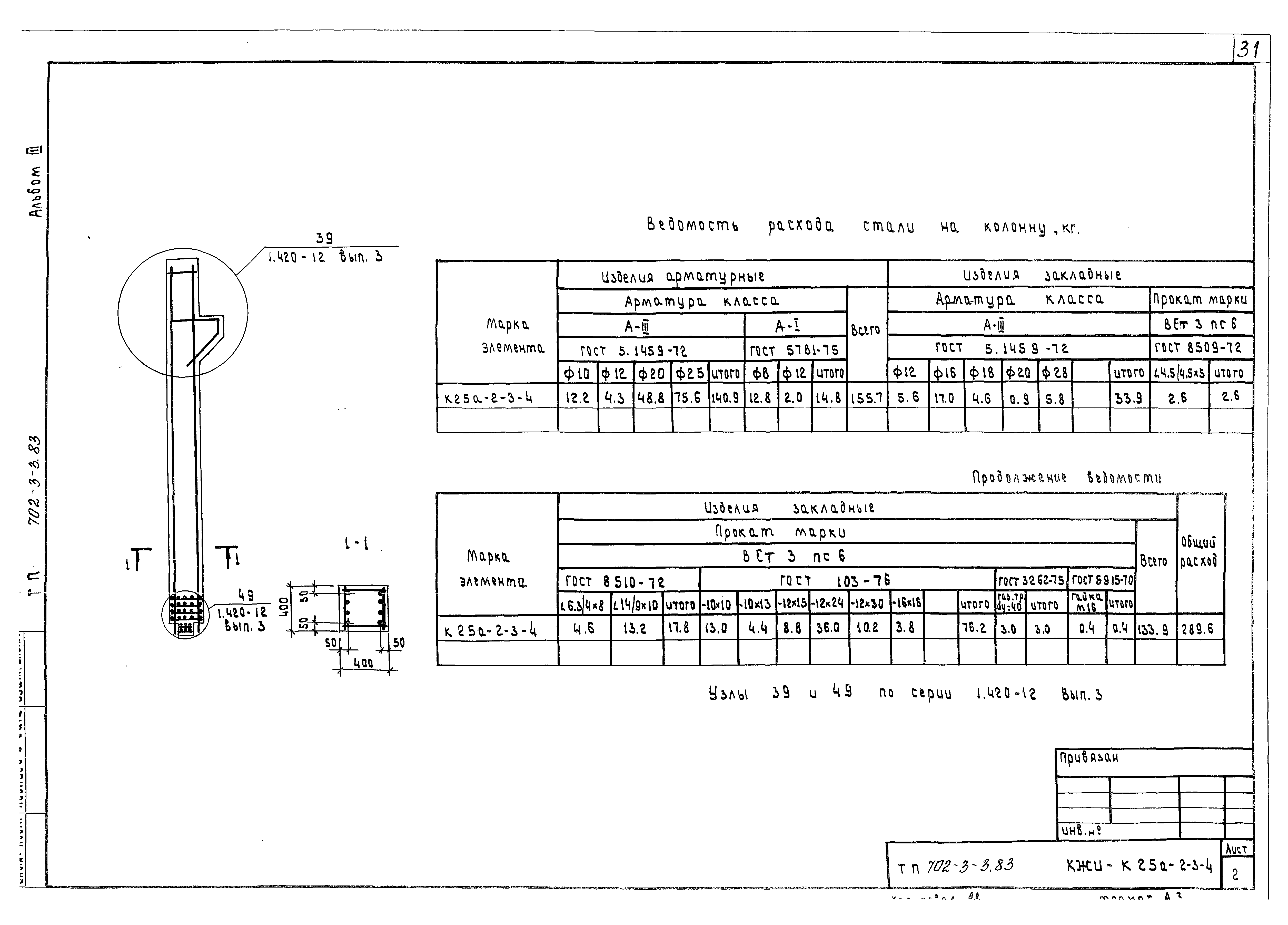
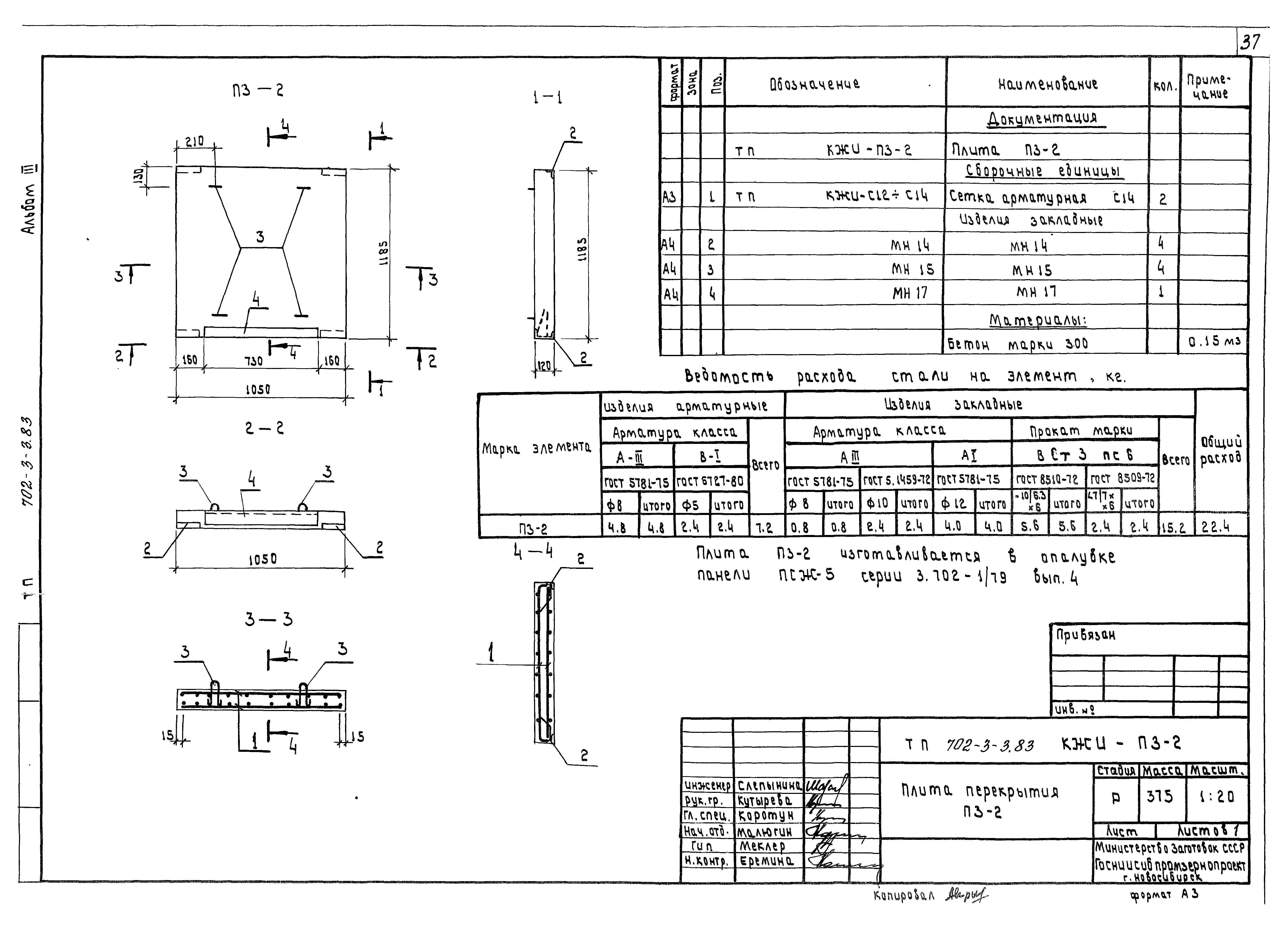
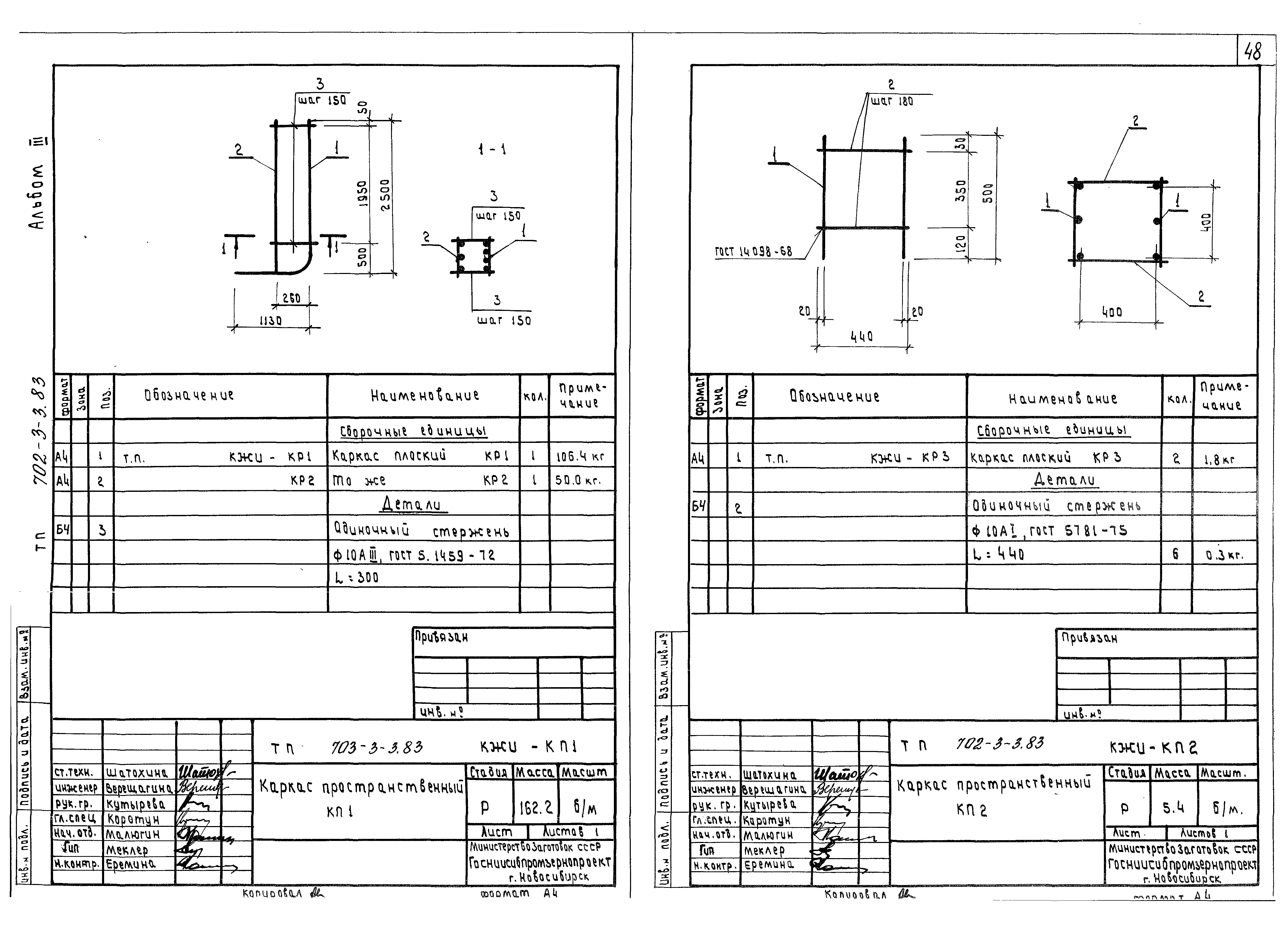
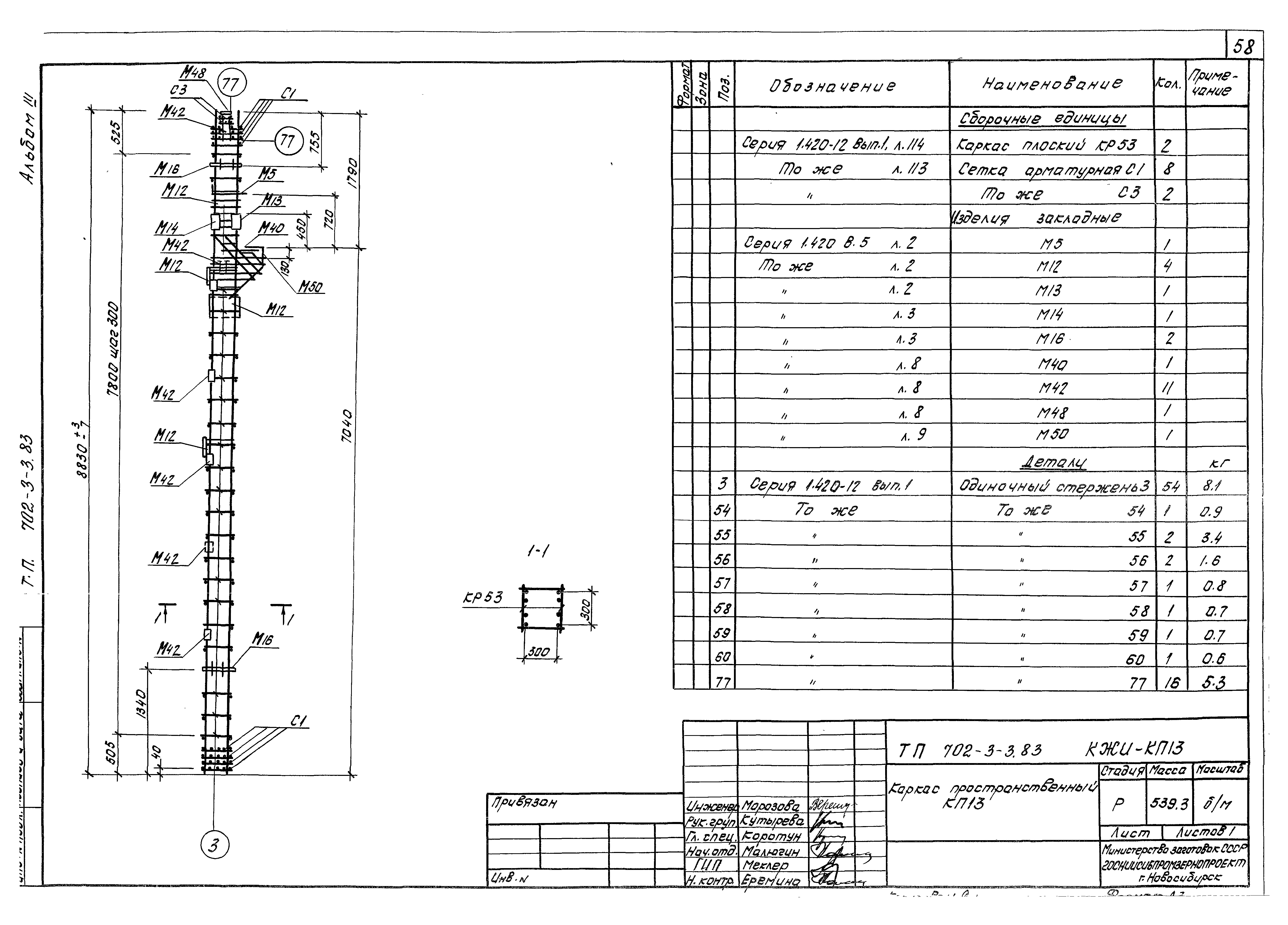
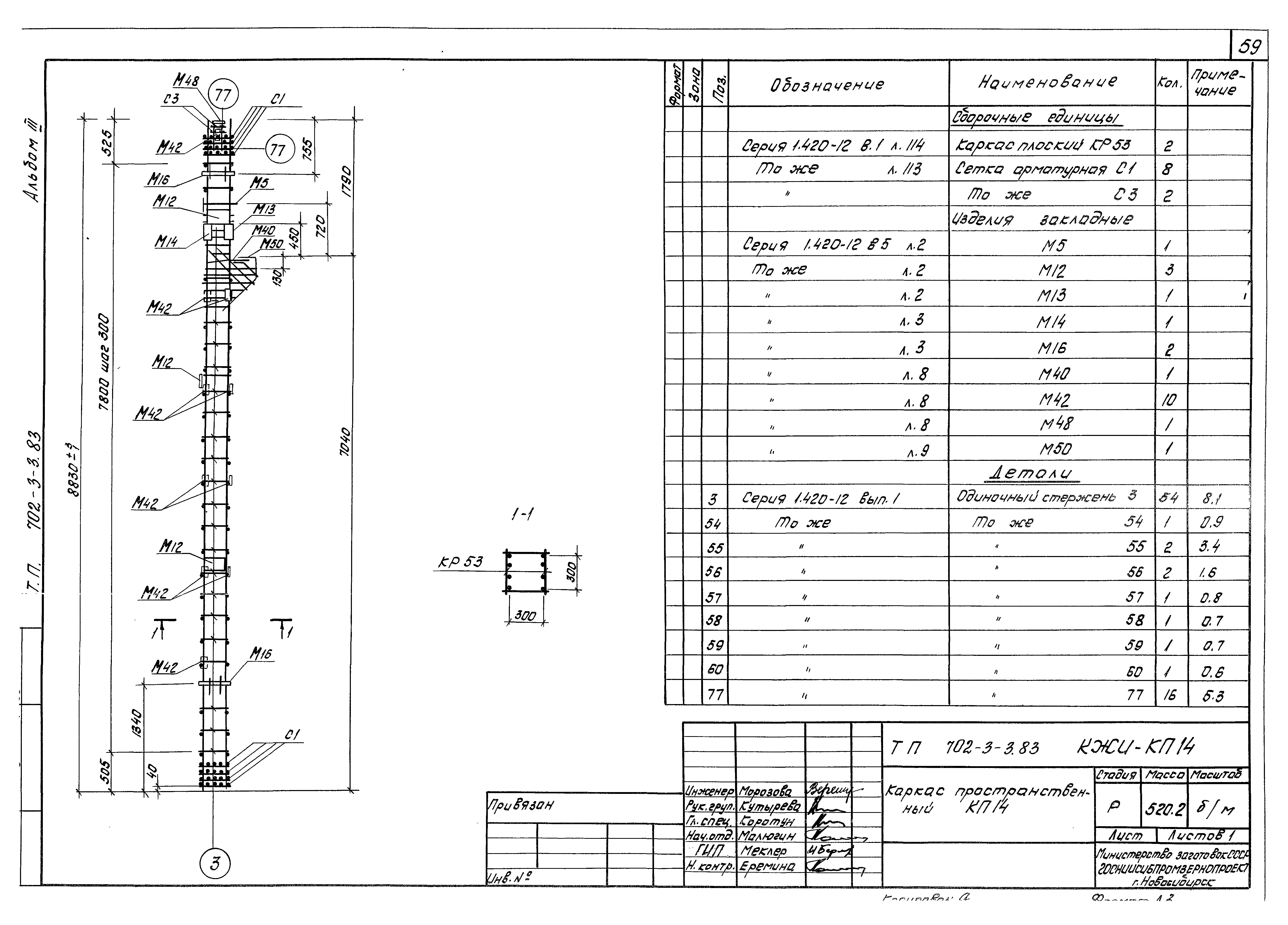
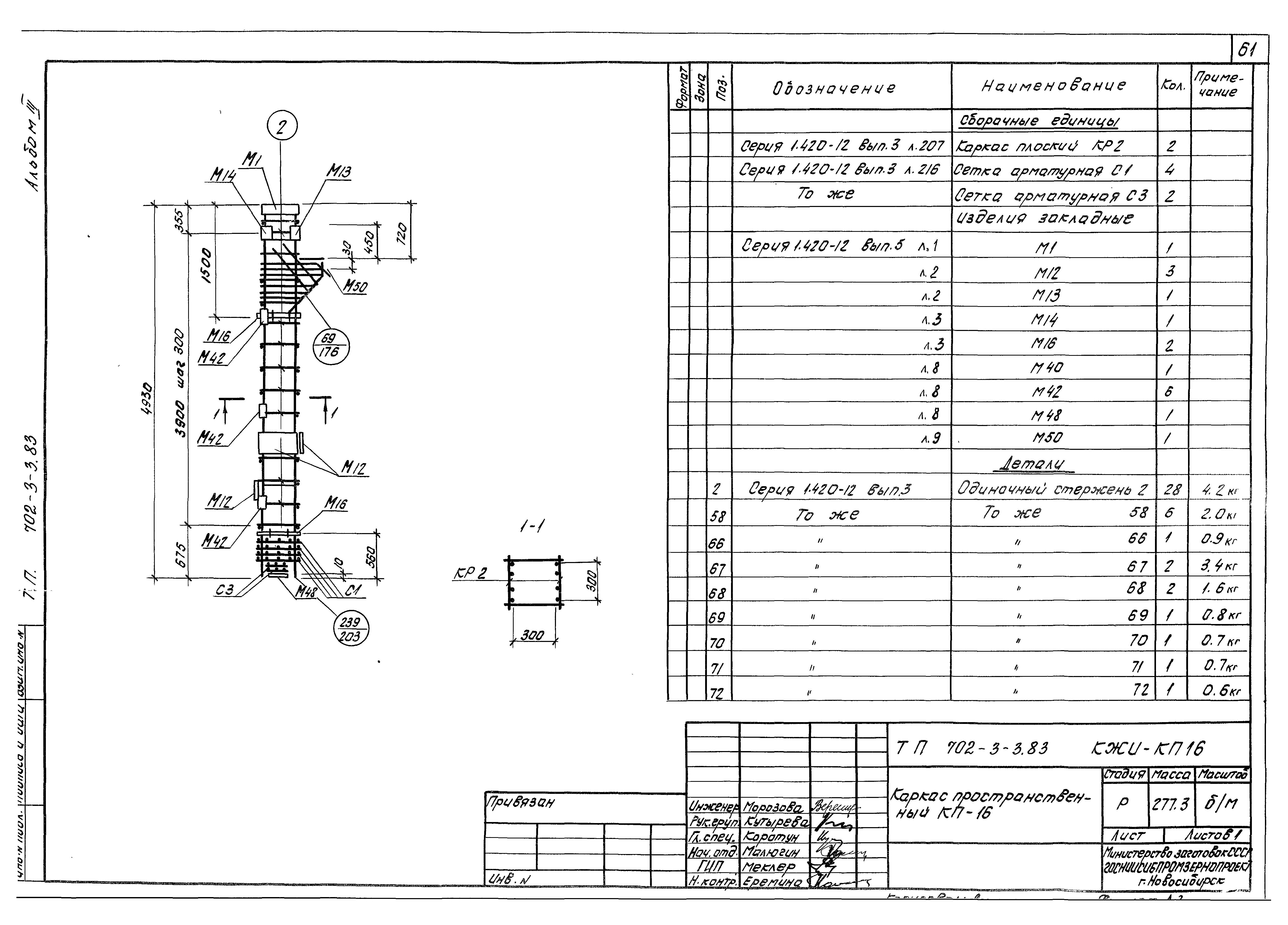
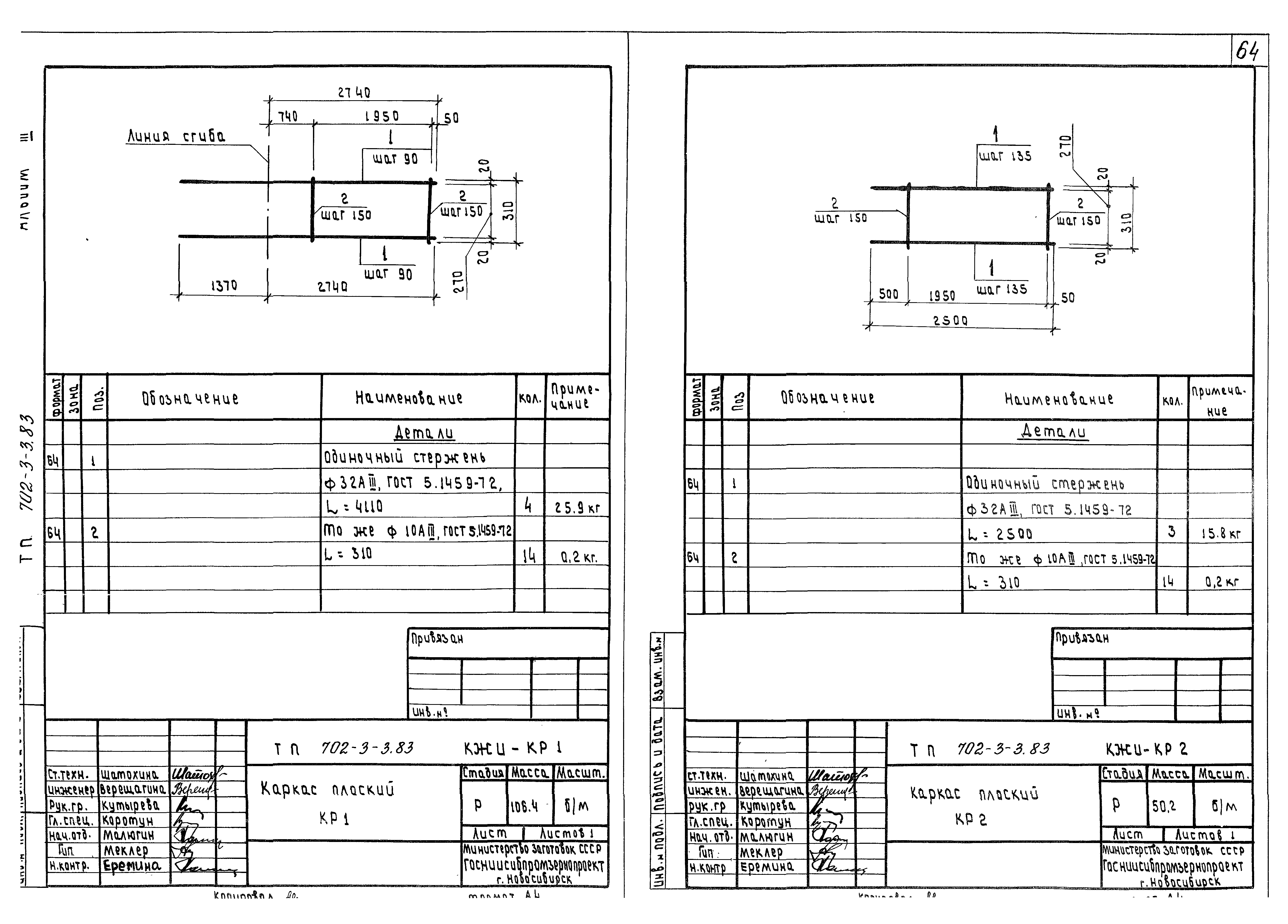
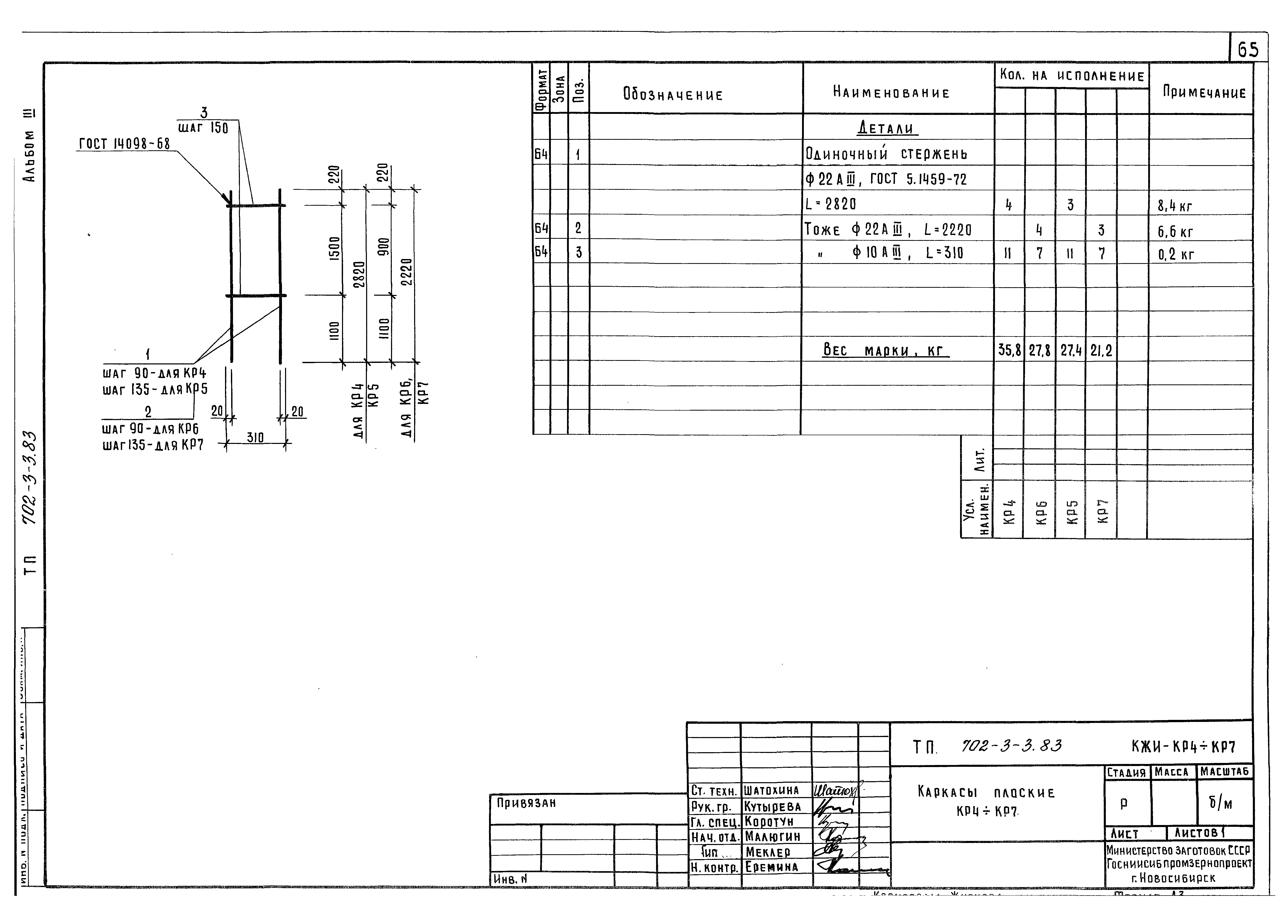
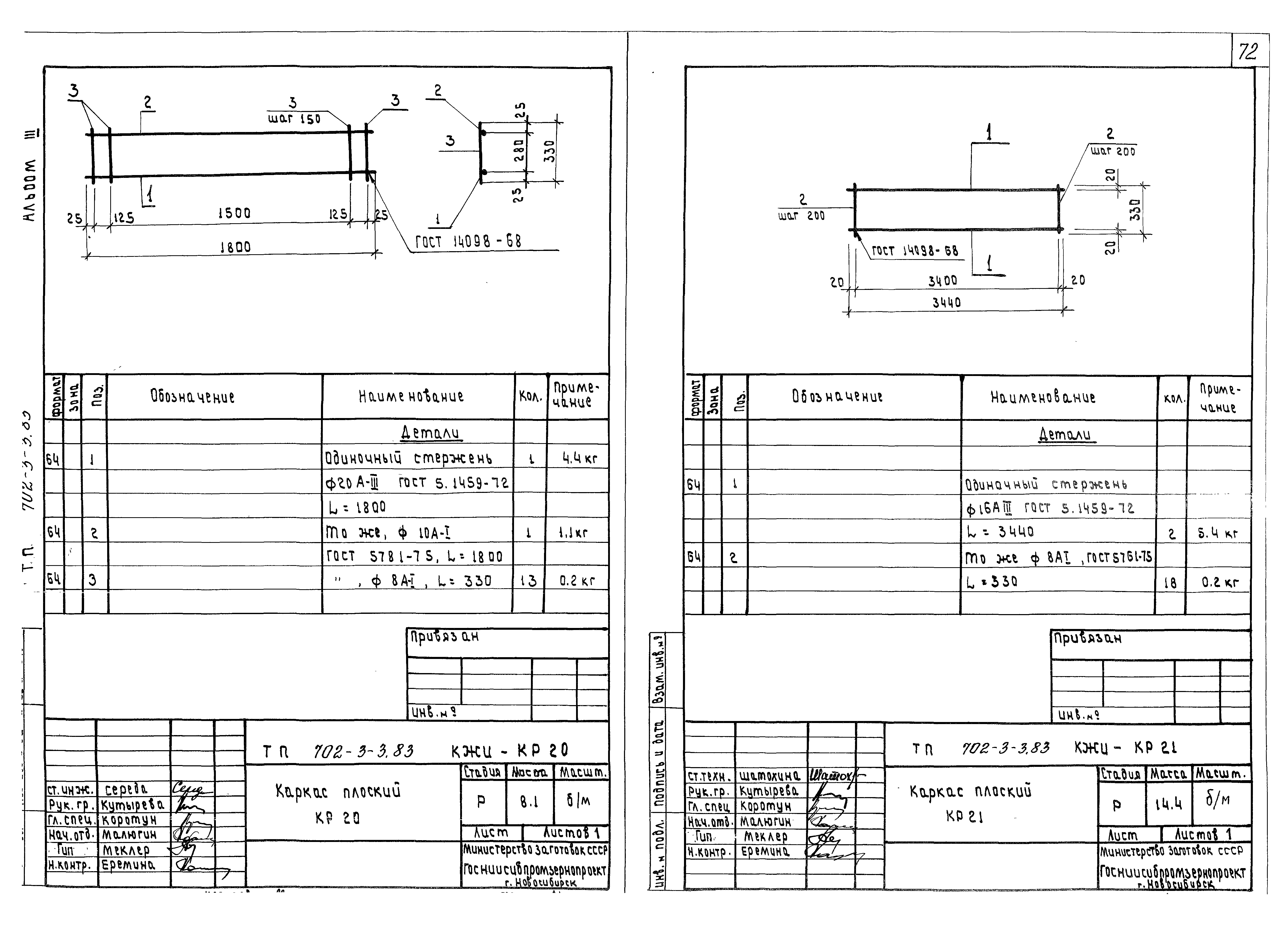
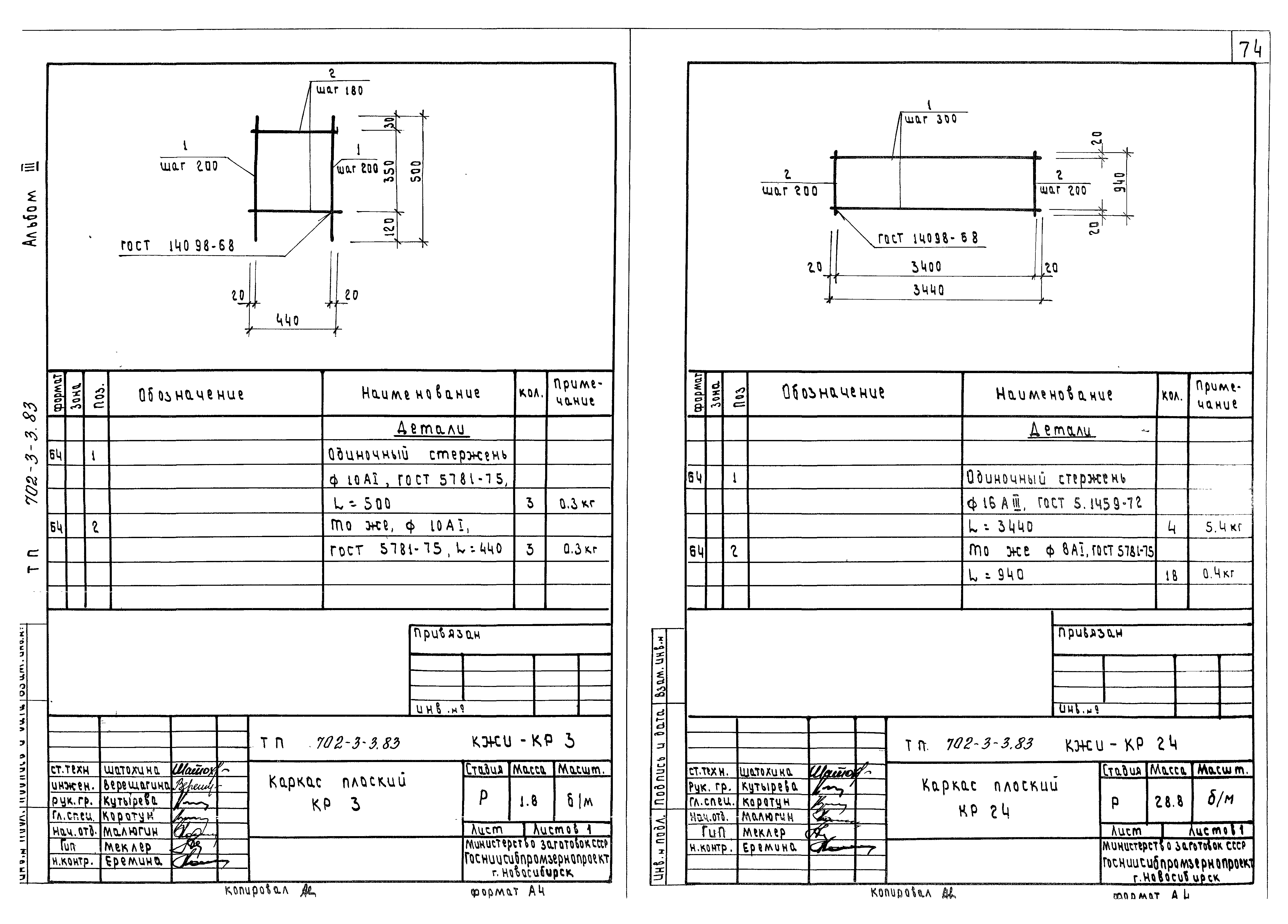
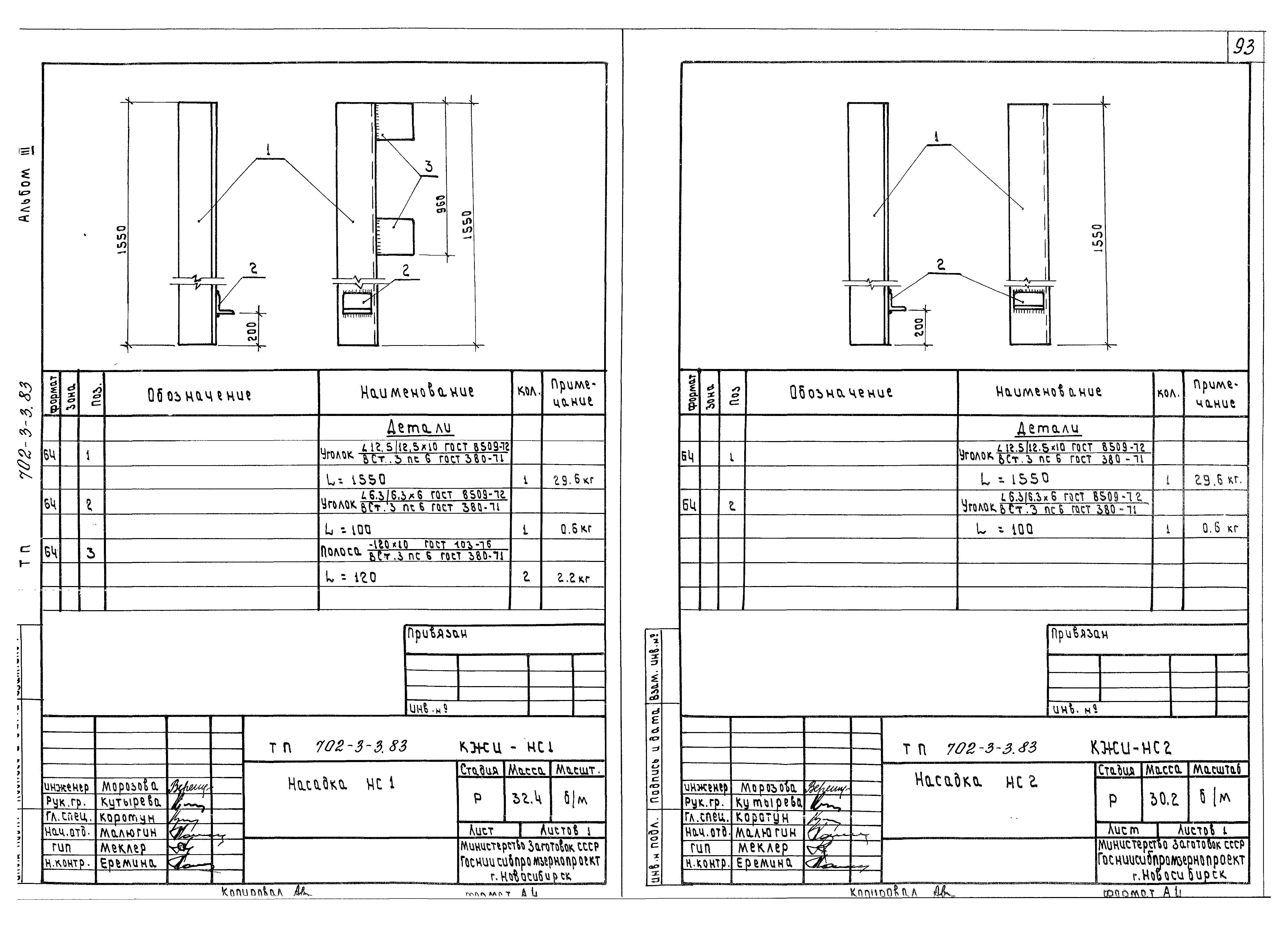
| Оглавление: | ТП 702-3-3.83-КЖИ-ДО Опись документов ТП 702-3-3.83-КЖИ-К3а-4-2-1 Колонна К3а-4-2-1. Вид 1-1. Армирование ТП 702-3-3.83-КЖИ-К3а-4-2-2 Колонна К3а-4-2-2. Вид 1-1. Армирование ТП 702-3-3.83-КЖИ-К3а-4-2-3 Колонна К3а-4-2-3. Вид 1-1. Армирование ТП 702-3-3.83-КЖИ-К3а-4-2-4 Колонна К3а-4-2-4. Вид 1-1. Армирование ТП 702-3-3.83-КЖИ-К3а-4-2-5 Колонна К3а-4-2-5. Вид 1-1. Армирование ТП 702-3-3.83-КЖИ-К3а-4-2-6 Колонна К3а-4-2-6. Вид 1-1. Армирование ТП 702-3-3.83-КЖИ-К3а-4-2-7 Колонна К3а-4-2-7. Вид 1-1. Армирование ТП 702-3-3.83-КЖИ-К3а-4-2-8 Колонна К3а-4-2-8. Вид 1-1. Армирование ТП 702-3-3.83-КЖИ-К3а-4-2-9 Колонна К3а-4-2-9. Вид 1-1. Армирование ТП 702-3-3.83-КЖИ-К3а-4-2-10 Колонна К3а-4-2-10. Вид 1-1. Армирование ТП 702-3-3.83-КЖИ-К25а-2-3-1 Колонна К25а-2-3-1. Вид 1-1. Армирование ТП 702-3-3.83-КЖИ-К25а-2-3-2,К25а-2-3-3 Колонна К25а-2-3-2,К25а-2-3-3. Вид 1-1. Армирование ТП 702-3-3.83-КЖИ-К25а-2-3-4 Колонна К25а-2-3-4. Вид 1-1. Армирование ТП 702-3-3.83-КЖИ-БОС2-1-1,БОС2-1-1а Железобетонные обвязочные балки БОС2-1-1,БОС2-1-1а ТП 702-3-3.83-КЖИ-П1-П3 Плиты перекрытия П1-П3 ТП 702-3-3.83-КЖИ-П4-П6 Плиты перекрытия П4-П6 ТП 702-3-3.83-КЖИ-П2-1 Плита перекрытия П2-1 ТП 702-3-3.83-КЖИ-П3-1 Плита перекрытия П3-1 ТП 702-3-3.83-КЖИ-П3-2 Плита перекрытия П3-2 ТП 702-3-3.83-КЖИ-1П7-2АIIIт-1 Плита перекрытия 1П7-2АIIIт-1 ТП 702-3-3.83-КЖИ-1П3-2АIIIт-1 Плита перекрытия 1П3-2АIIIт-1 ТП 702-3-3.83-КЖИ-1П3-2АIIIт-2 Плита перекрытия 1П3-2АIIIт-2 ТП 702-3-3.83-КЖИ-1П3-2АIIIт-3 Плита перекрытия 1П3-2АIIIт-3 ТП 702-3-3.83-КЖИ-П16 Плита перекрытия П16 ТП 702-3-3.83-КЖИ-П17,П18 Плита перекрытия П17,П18 ТП 702-3-3.83-КЖИ-ПС635.12-1АIV-т-11-1, ПС635.12-1АIV-т-12-2, ПС635.9-1АIV-т-11-7, ПС635.9-1АIV-т-12-8 Панели стеновые ПС635.12-1АIV-т-11-1, ПС635.12-1АIV-т-12-2, ПС635.9-1АIV-т-11-7, ПС635.9-1АIV-т-12-8 ТП 702-3-3.83-КЖИ-ПС635.12-1АIV-т-11-9, ПС600.12-1АIV-т-11-11, ПС600.12-1АIV-т-12-12 Панели стеновые ПС635.12-1АIV-т-11-9, ПС600.12-1АIV-т-11-11, ПС600.12-1АIV-т-12-12 ТП 702-3-3.83-КЖИ-ПС300.9-1ВI-т-21-15, ПС300.9-1ВI-т-21-16 Панели стеновые ПС300.9-1ВI-т-21-15, ПС300.9-1ВI-т-21-16 ТП 702-3-3.83-КЖИ-ПС600.9-4АIV-т-11-13, ПС600.9-4АIV-т-12-14, ПС300.9-1ВI-т-21-17 Панели стеновые ПС600.9-4АIV-т-11-13, ПС600.9-4АIV-т-12-14, ПС300.9-1ВI-т-21-17 ТП 702-3-3.83-КЖИ-ПС635.9-1АIV-т-11-4, ПС635.9-1АIV-т-12-5, ПС635.12-1АIV-т-11-10 Панели стеновые ПС635.9-1АIV-т-11-4, ПС635.9-1АIV-т-12-5, ПС635.12-1АIV-т-11-10 ТП 702-3-3.83-КЖИ-КВ16-2,КВ22-3,КВ22-3а,КВ22-4 Козырьки КВ16-2,КВ22-3,КВ22-3а,КВ22-4 ТП 702-3-3.83-КЖИ-КП1 Каркас пространственный КП1 ТП 702-3-3.83-КЖИ-КП2 Каркас пространственный КП2 ТП 702-3-3.83-КЖИ-КП3,КП4 Каркас пространственный КП3,КП4 ТП 702-3-3.83-КЖИ-КП5 Каркас пространственный КП5 ТП 702-3-3.83-КЖИ-КП6 Каркас пространственный КП6 ТП 702-3-3.83-КЖИ-КП7 Каркас пространственный КП7 ТП 702-3-3.83-КЖИ-КП8 Каркас пространственный КП8 ТП 702-3-3.83-КЖИ-КП9 Каркас пространственный КП9 ТП 702-3-3.83-КЖИ-КП10 Каркас пространственный КП10 ТП 702-3-3.83-КЖИ-КП11 Каркас пространственный КП11 ТП 702-3-3.83-КЖИ-КП12 Каркас пространственный КП12 ТП 702-3-3.83-КЖИ-КП13 Каркас пространственный КП13 ТП 702-3-3.83-КЖИ-КП14 Каркас пространственный КП14 ТП 702-3-3.83-КЖИ-КП15 Каркас пространственный КП15 ТП 702-3-3.83-КЖИ-КП16 Каркас пространственный КП16 ТП 702-3-3.83-КЖИ-КП17 Каркас пространственный КП17 ТП 702-3-3.83-КЖИ-КП18 Каркас пространственный КП18 ТП 702-3-3.83-КЖИ-КР1 Каркас плоский КР1 ТП 702-3-3.83-КЖИ-КР2 Каркас плоский КР2 ТП 702-3-3.83-КЖИ-КР4-КР7 Каркас плоский КР4-КР7 ТП 702-3-3.83-КЖИ-КР8,КР9 Каркас плоский КР8,КР9 ТП 702-3-3.83-КЖИ-КР10 Каркас плоский КР10 ТП 702-3-3.83-КЖИ-КР11 Каркас плоский КР11 ТП 702-3-3.83-КЖИ-КР13,КР14 Каркас плоский КР13,КР14 ТП 702-3-3.83-КЖИ-КР12 Каркас плоский КР12 ТП 702-3-3.83-КЖИ-КР15 Каркас плоский КР15 ТП 702-3-3.83-КЖИ-КР16 Каркас плоский КР16 ТП 702-3-3.83-КЖИ-КР17 Каркас плоский КР17 ТП 702-3-3.83-КЖИ-КР18 Каркас плоский КР18 ТП 702-3-3.83-КЖИ-КР19 Каркас плоский КР19 ТП 702-3-3.83-КЖИ-КР20 Каркас плоский КР20 ТП 702-3-3.83-КЖИ-КР21 Каркас плоский КР21 ТП 702-3-3.83-КЖИ-КР22 Каркас плоский КР22 ТП 702-3-3.83-КЖИ-КР23 Каркас плоский КР23 ТП 702-3-3.83-КЖИ-КР3 Каркас плоский КР3 ТП 702-3-3.83-КЖИ-КР24 Каркас плоский КР24 ТП 702-3-3.83-КЖИ-КР25,КР26 Каркас плоский КР25,КР26 ТП 702-3-3.83-КЖИ-КР27 Каркас плоский КР27 ТП 702-3-3.83-КЖИ-КР28 Каркас плоский КР28 ТП 702-3-3.83-КЖИ-С1 Сетка арматурная С1 ТП 702-3-3.83-КЖИ-С2 Сетка арматурная С2 ТП 702-3-3.83-КЖИ-С3 Сетка арматурная С3 ТП 702-3-3.83-КЖИ-С4 Сетка арматурная С4 ТП 702-3-3.83-КЖИ-С5 Сетка арматурная С5 ТП 702-3-3.83-КЖИ-С6 Сетка арматурная С6 ТП 702-3-3.83-КЖИ-С7 Сетка арматурная С7 ТП 702-3-3.83-КЖИ-С8 Сетка арматурная С8 ТП 702-3-3.83-КЖИ-С9 Сетка арматурная С9 ТП 702-3-3.83-КЖИ-С10 Сетка арматурная С10 ТП 702-3-3.83-КЖИ-С11 Сетка арматурная С11 ТП 702-3-3.83-КЖИ-С12-С14 Сетка арматурная С12-С14 ТП 702-3-3.83-КЖИ-С15-С17 Сетка арматурная С15-С17 ТП 702-3-3.83-КЖИ-С18 Сетка арматурная С18 ТП 702-3-3.83-КЖИ-МН1 Изделие закладное МН1 ТП 702-3-3.83-КЖИ-МН8 Изделие закладное МН8 ТП 702-3-3.83-КЖИ-МН11 Изделие закладное МН11 ТП 702-3-3.83-КЖИ-МН12 Изделие закладное МН12 ТП 702-3-3.83-КЖИ-МН13 Изделие закладное МН13 ТП 702-3-3.83-КЖИ-МН14 Изделие закладное МН14 ТП 702-3-3.83-КЖИ-МН15 Изделие закладное МН15 ТП 702-3-3.83-КЖИ-МН16 Изделие закладное МН16 ТП 702-3-3.83-КЖИ-МН17 Изделие закладное МН17 ТП 702-3-3.83-КЖИ-МС1 Изделие соединительное МС1 ТП 702-3-3.83-КЖИ-МС2 Изделие соединительное МС2 ТП 702-3-3.83-КЖИ-МС3 Изделие соединительное МС3 ТП 702-3-3.83-КЖИ-МС14 Изделие соединительное МС14 ТП 702-3-3.83-КЖИ-ФК1 Опорная консоль ФК1 ТП 702-3-3.83-КЖИ-НС1 Накладка НС1 ТП 702-3-3.83-КЖИ-НС2 Накладка НС2 ТП 702-3-3.83-КЖИ-БМ1-БМ3 Балки металлические БМ1-БМ3 |
| Разработан: | Госниисибпромзернопроект |
| Утверждён: | 13.05.1982 Министерство заготовок СССР (USSR Ministry of Procurements 135) |






























































































