Скачать Типовой проект 111-135-61.01.86 Альбом I. Часть 1. Часть 2. Часть 15. Архитектурно-строительные чертежи. Конструктивный вариант с трехслойными стеновыми панелями с соединительными ребрами. Санитарно-технические чертежи. Конструктивный вариант с трехслойными стеновыми панелями с соединительными ребрами. Спецификация оборудования. Конструктивный вариант с трехслойными стеновыми панелями с соединительными ребрамиДата актуализации: 01.01.2021
|
| Обозначение: | Типовой проект 111-135-61.01.86 |
| Обозначение англ: | 111-135-61.01.86 |
| Статус: | не определен законодательством |
| Название рус.: | Альбом I. Часть 1. Часть 2. Часть 15. Архитектурно-строительные чертежи. Конструктивный вариант с трехслойными стеновыми панелями с соединительными ребрами. Санитарно-технические чертежи. Конструктивный вариант с трехслойными стеновыми панелями с соединительными ребрами. Спецификация оборудования. Конструктивный вариант с трехслойными стеновыми панелями с соединительными ребрами |
| Дата добавления в базу: | 01.09.2013 |
| Дата актуализации: | 01.01.2021 |
| Дата введения: | 10.11.1986 |
| Дата окончания срока действия: | 30.06.2003 |
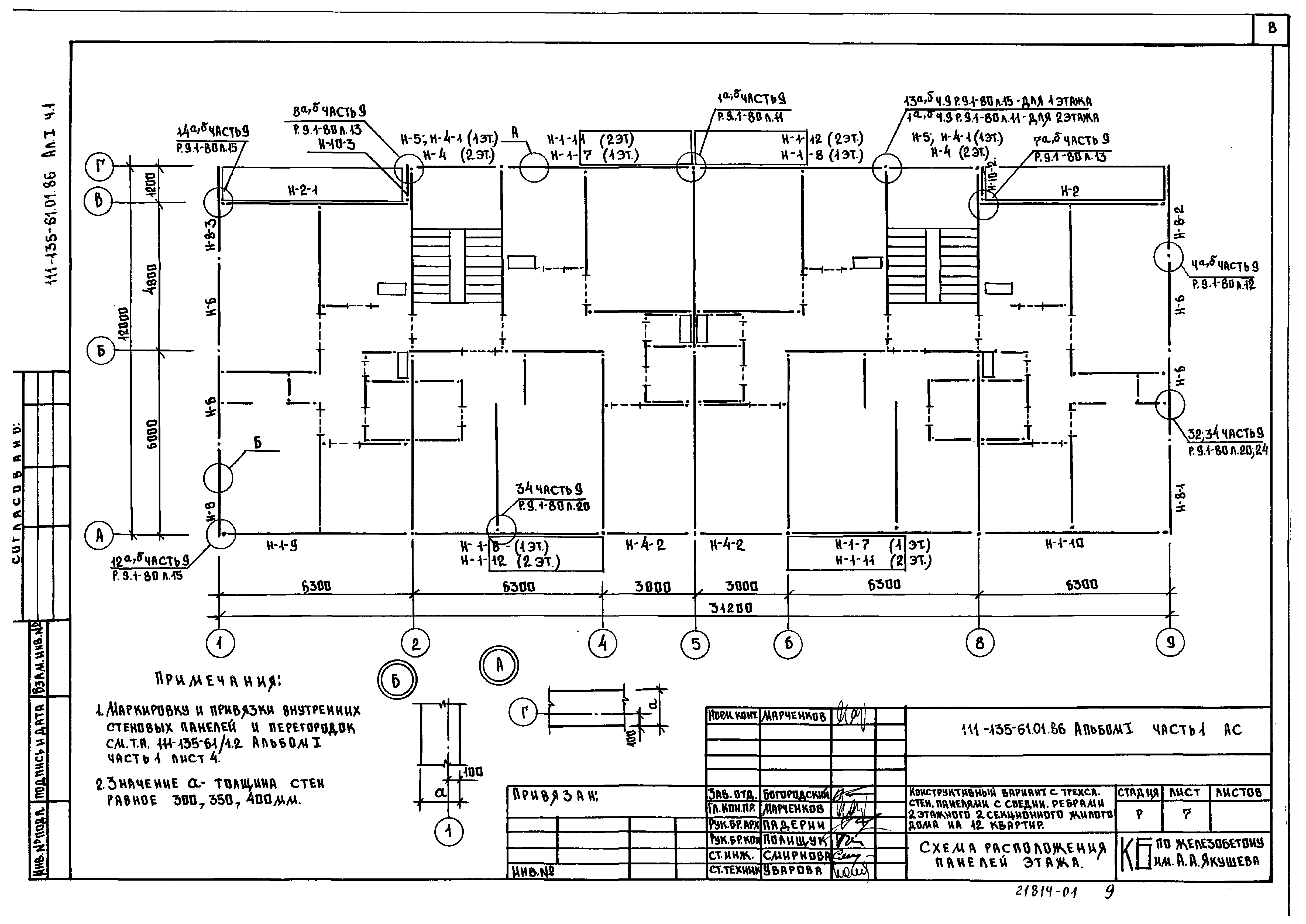
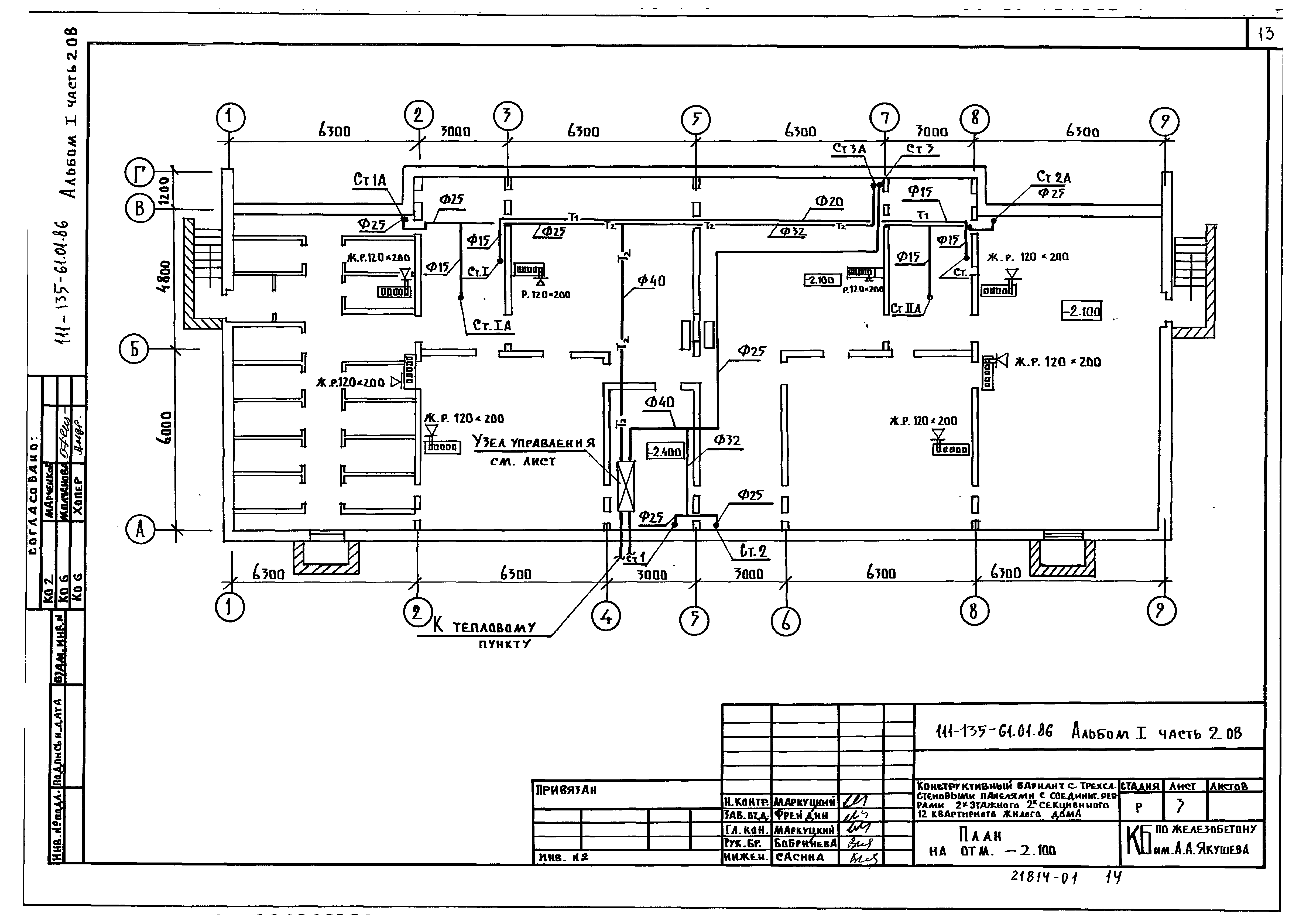
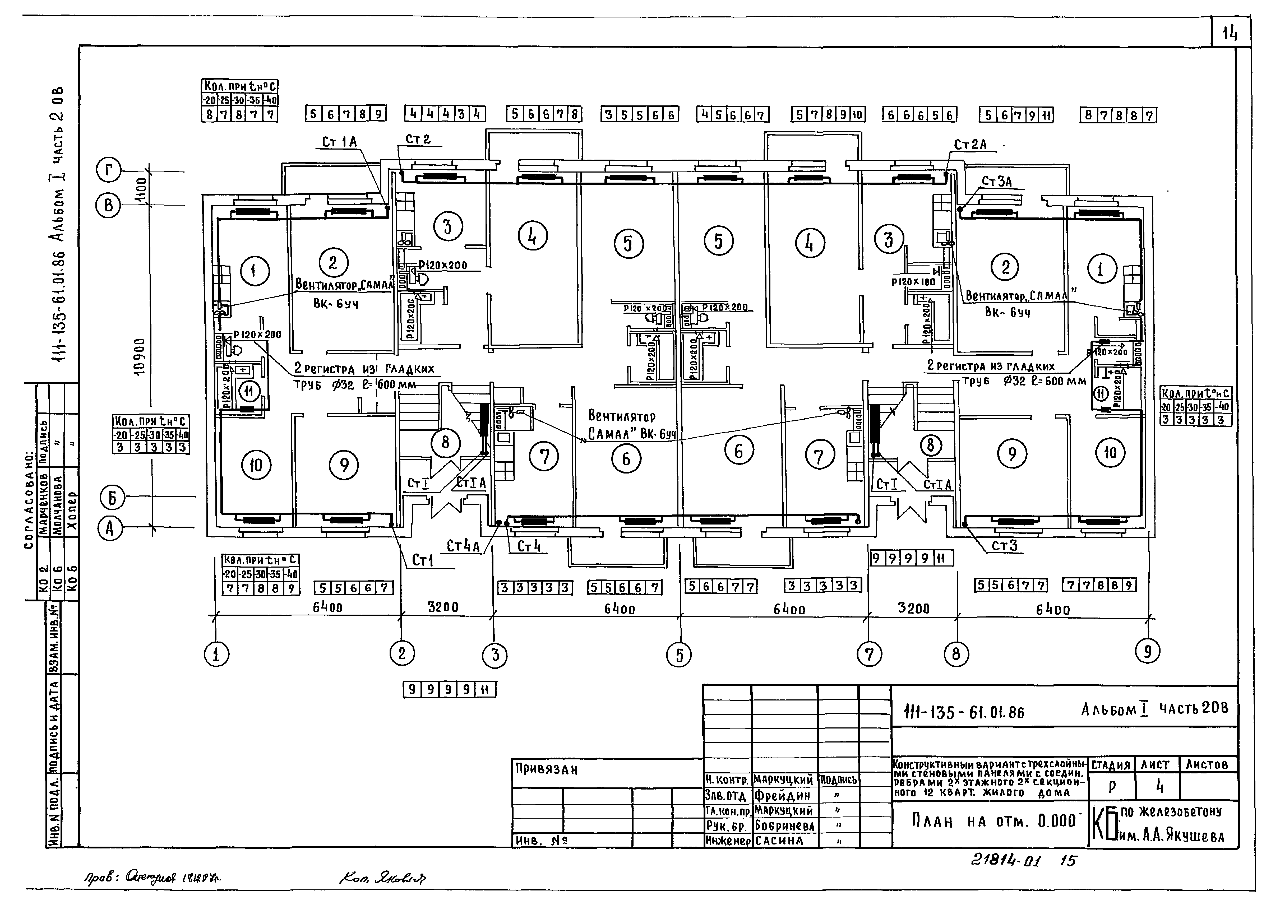
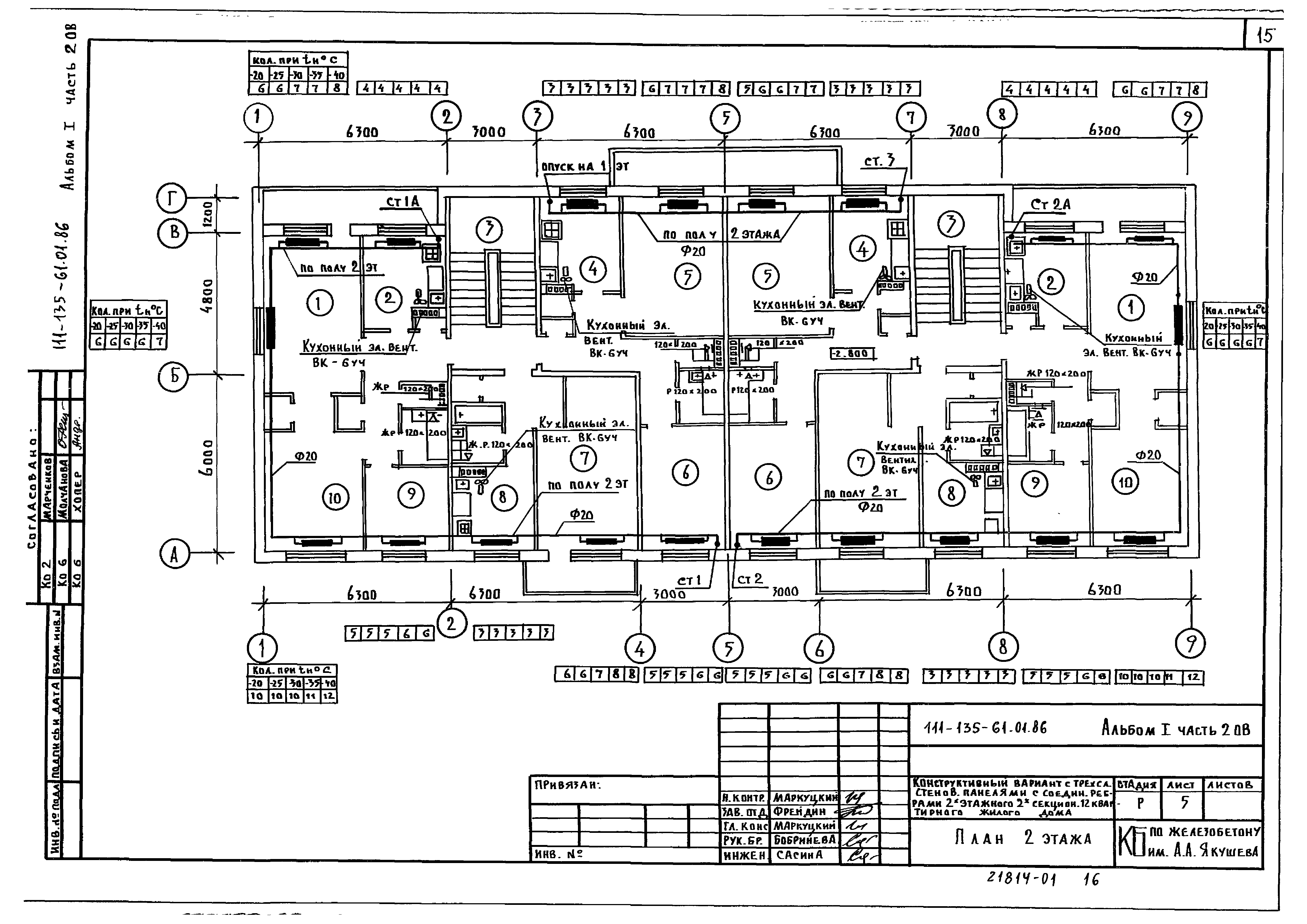
| Оглавление: | 111-135-61.01.86 Альбом 1. Часть 1 АС Общие данные (начало) Общие данные (продолжение) Общие данные (окончание) Схемы расположения панелей наружных стен фасада Схемы расположения панелей этажа Спецификация наружных стеновых панелей 111-135-61.01.86 Альбом 1. Часть 2 ОВ Общие данные (начало) Общие данные (окончание) План на отм. -2.100 План 1 этажа План 2 этажа Схема системы отопления № 1 Схема системы отопления № 2 Автоматизированный узел управления Конструкция тепловой изоляции трубопроводов 111-135-61.01.86 Альбом 1. Часть 15 СО Спецификация оборудования по рабочим чертежам марки ОВ |
| Разработан: | КБ по железобетону им. А.А. Якушева |
| Утверждён: | 19.09.1986 Госстрой РСФСР (Russian Federation Gosstroy 1/17-12/1331) |
























