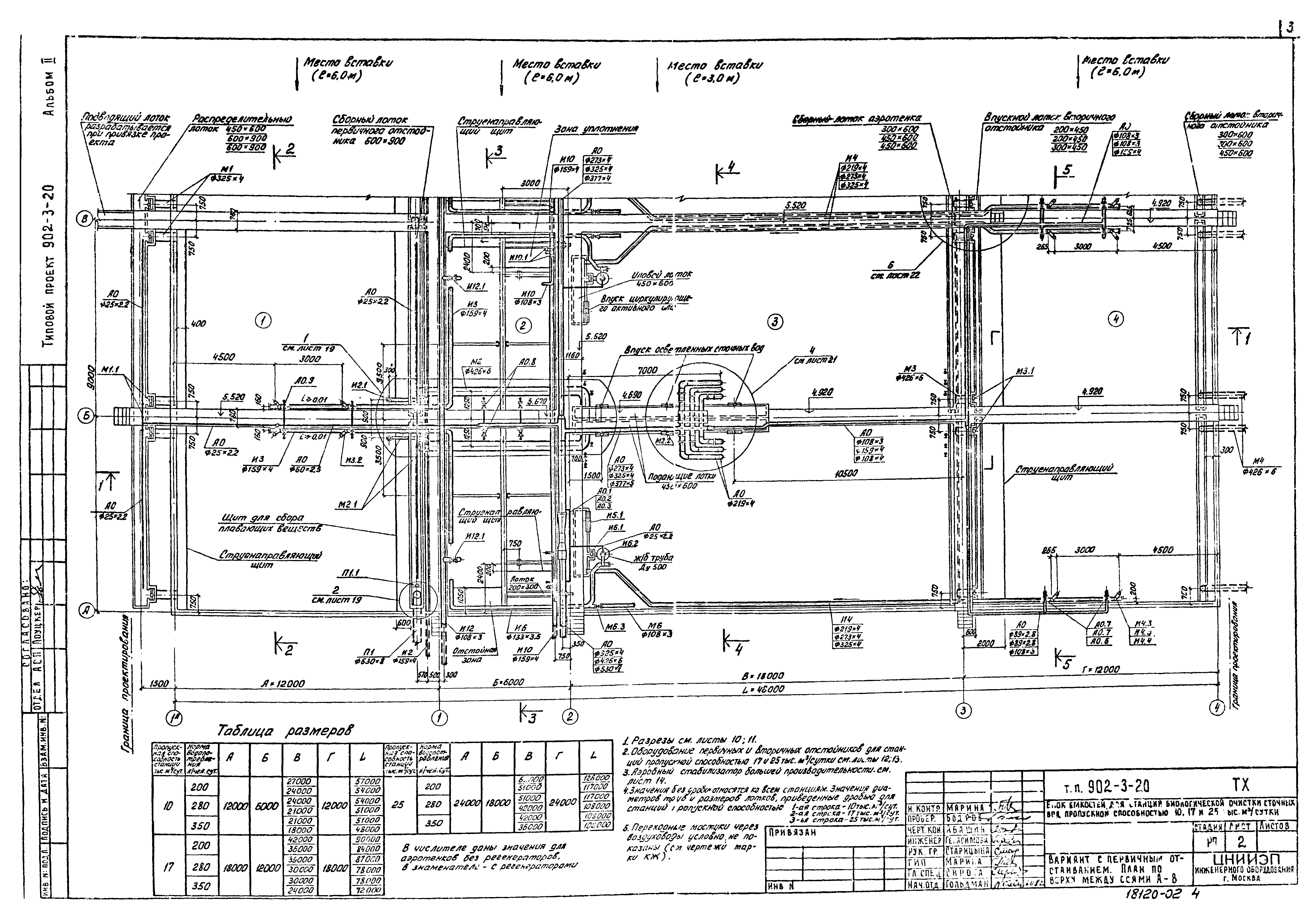
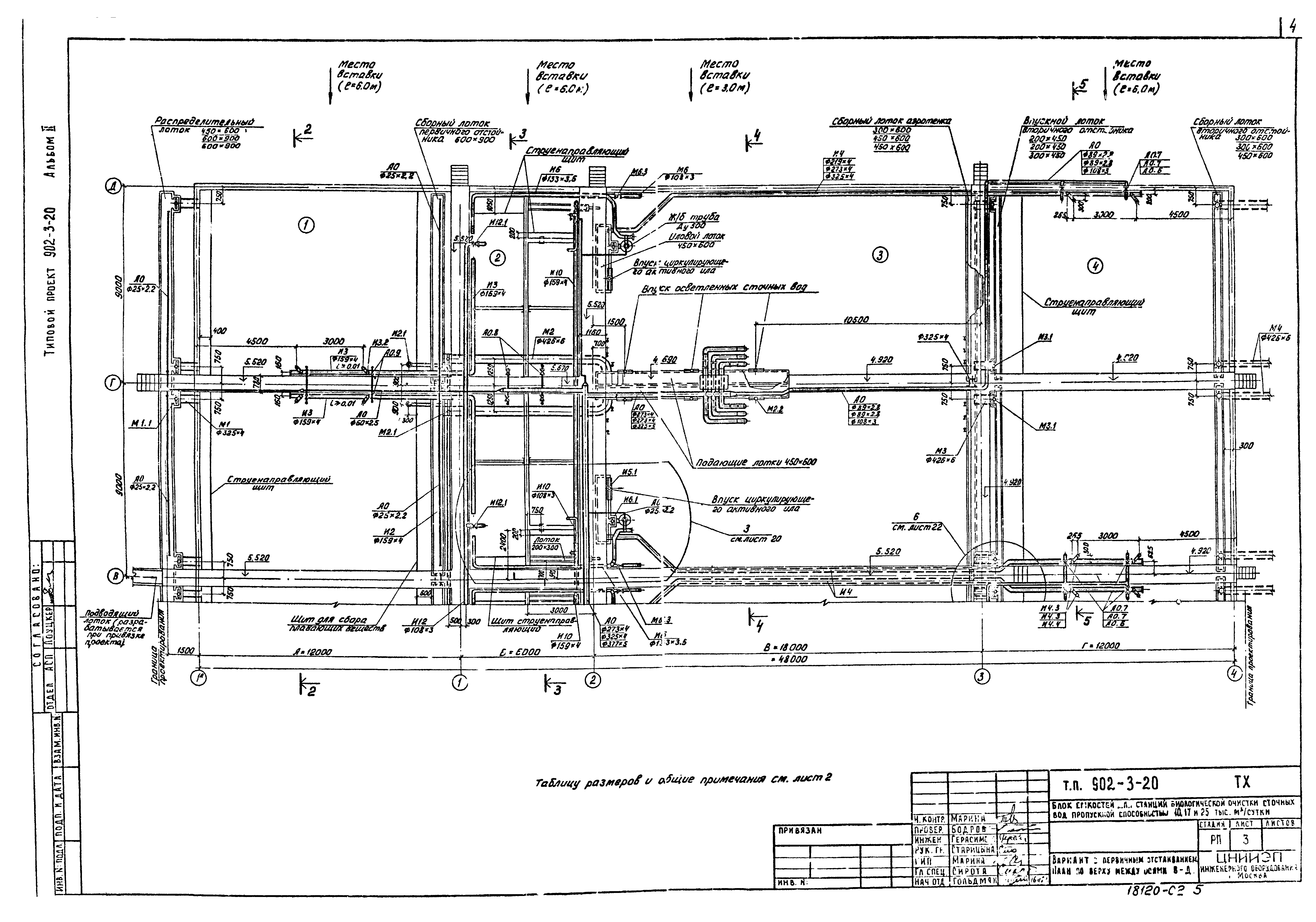
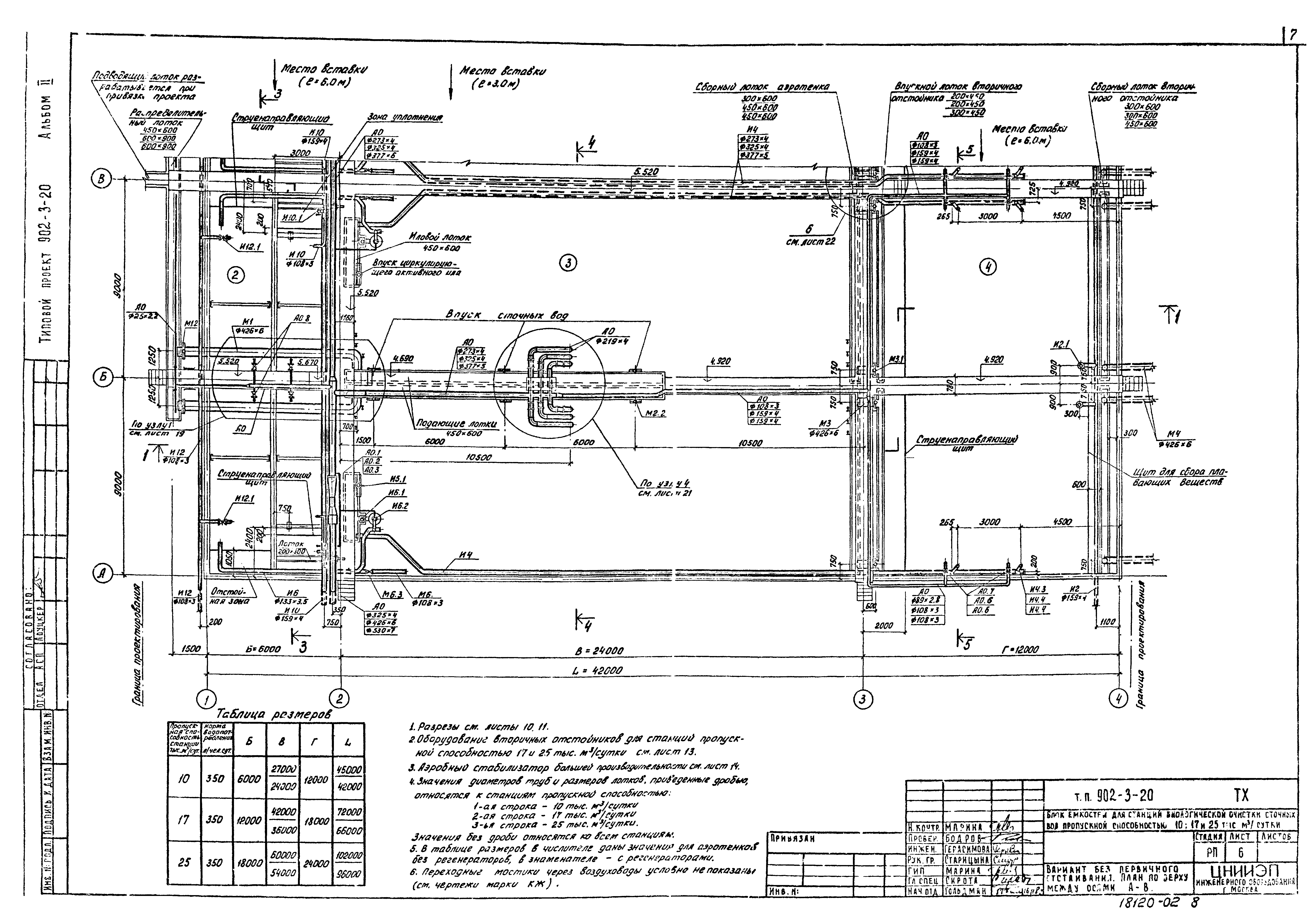
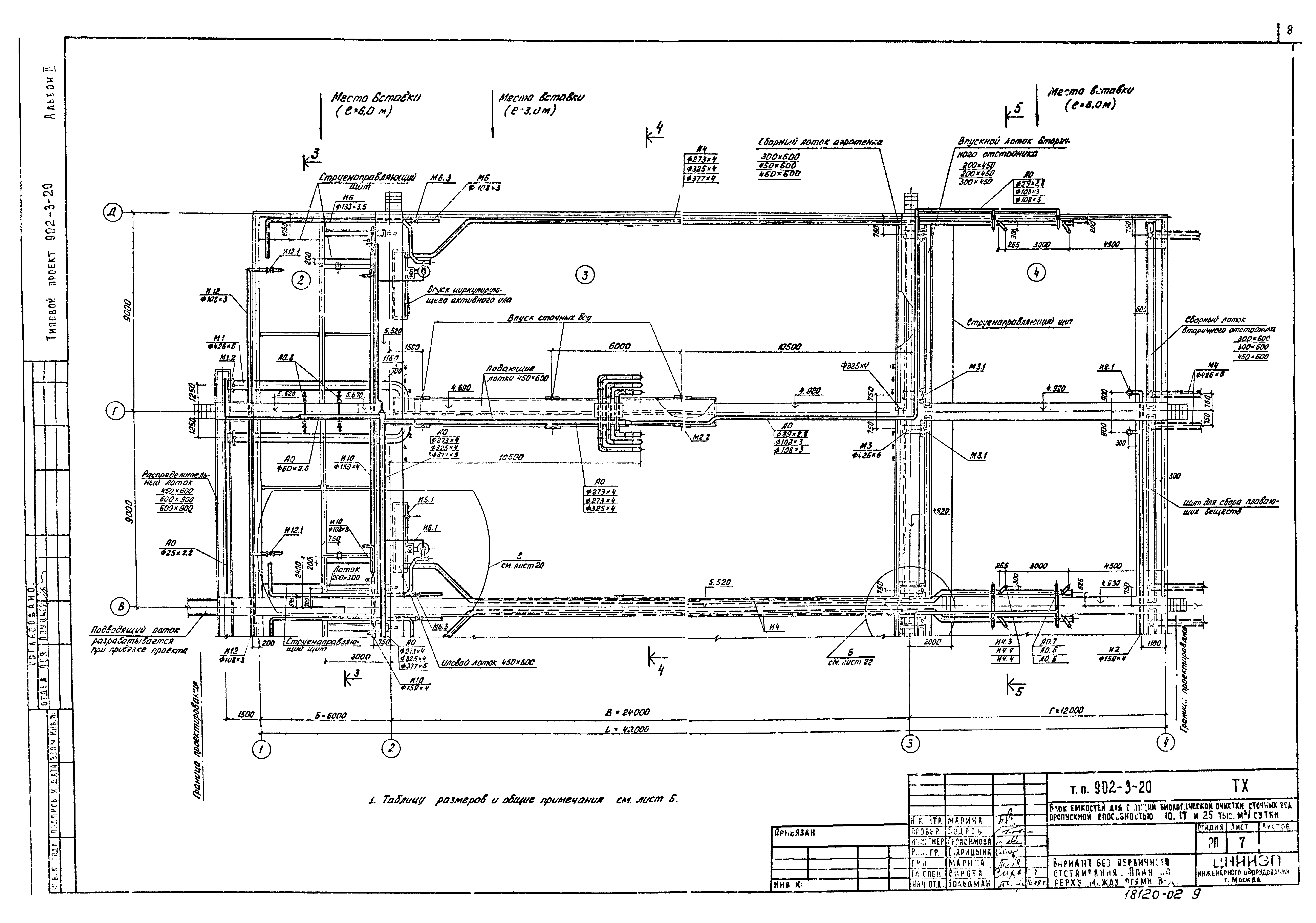
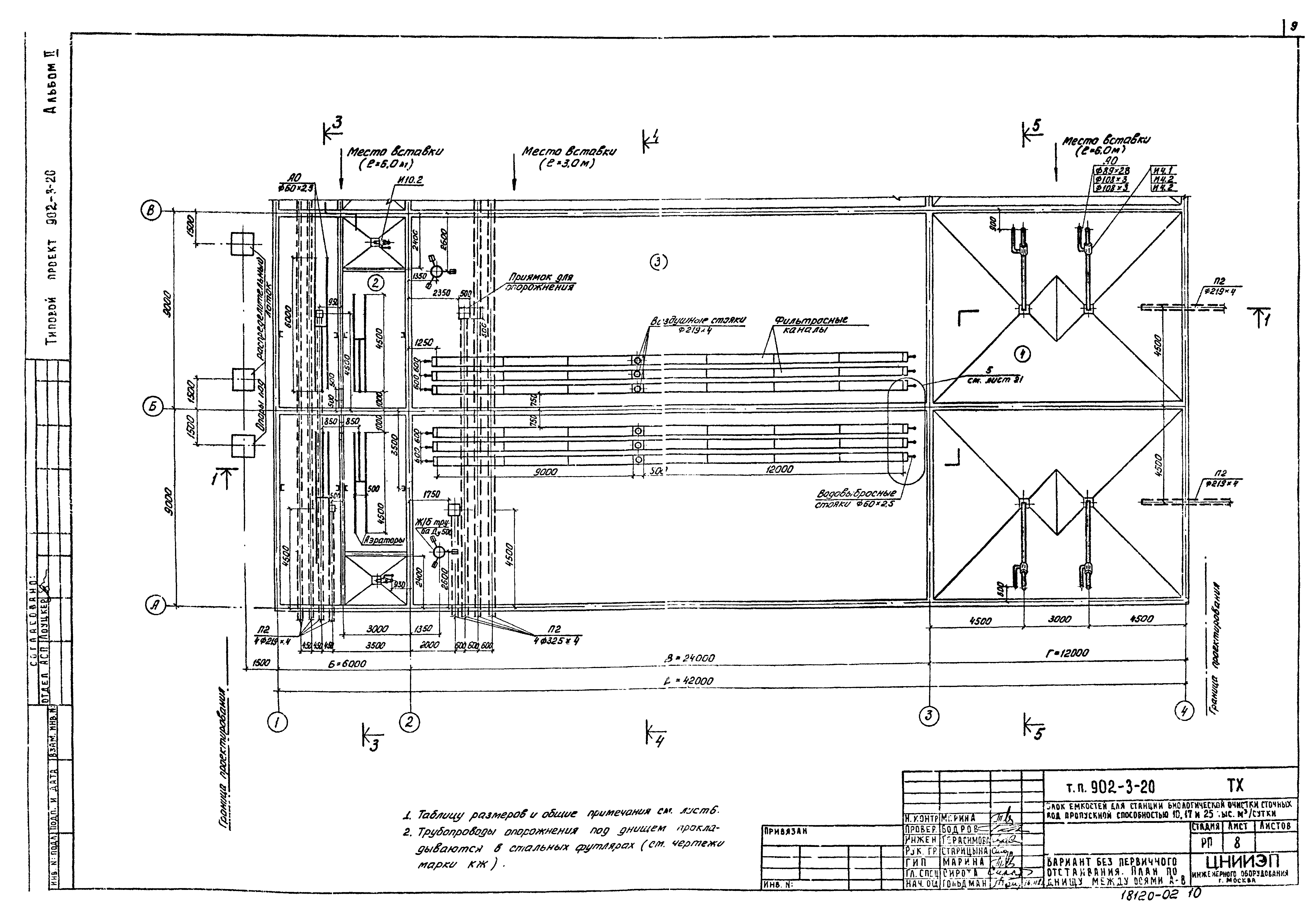
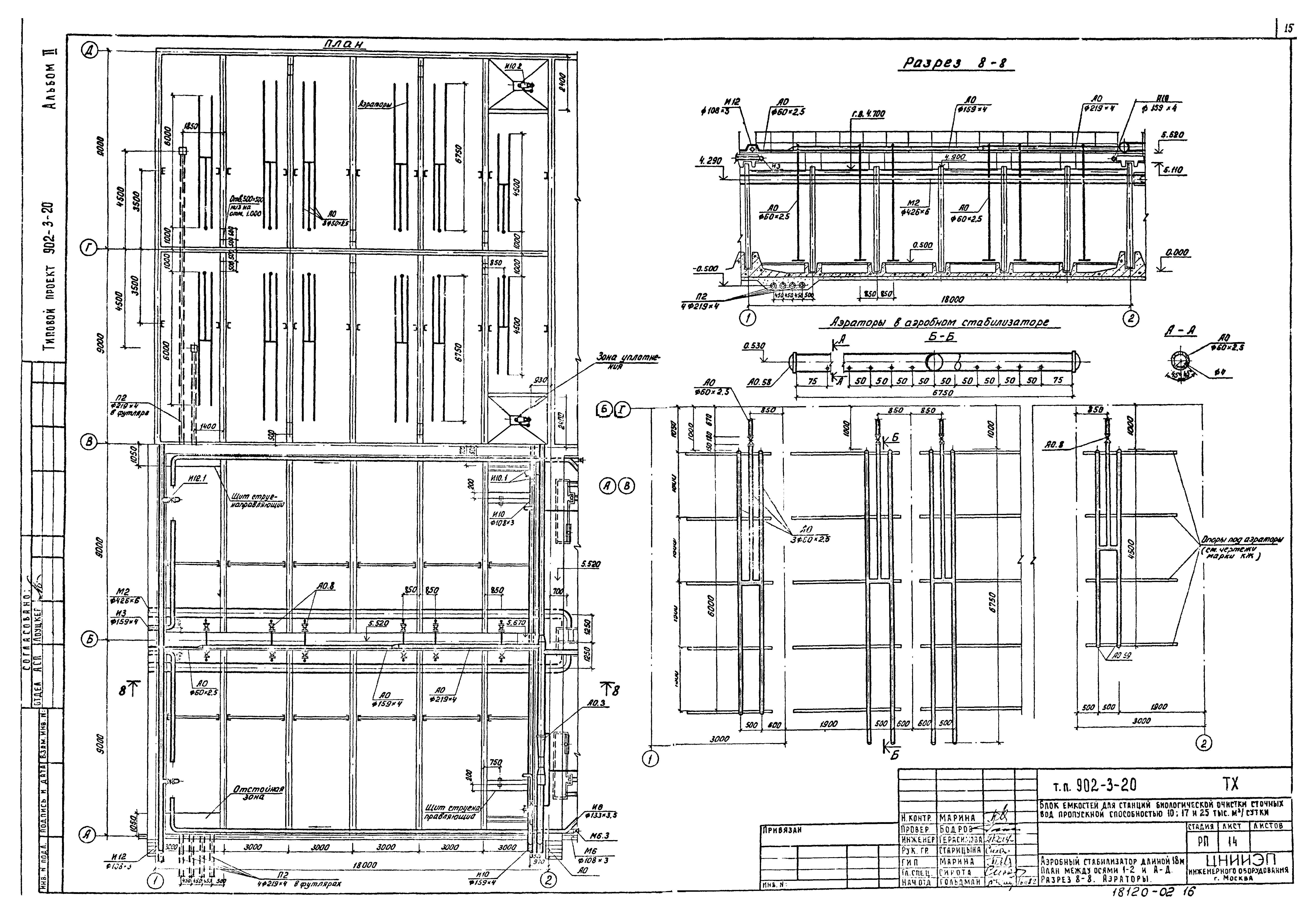
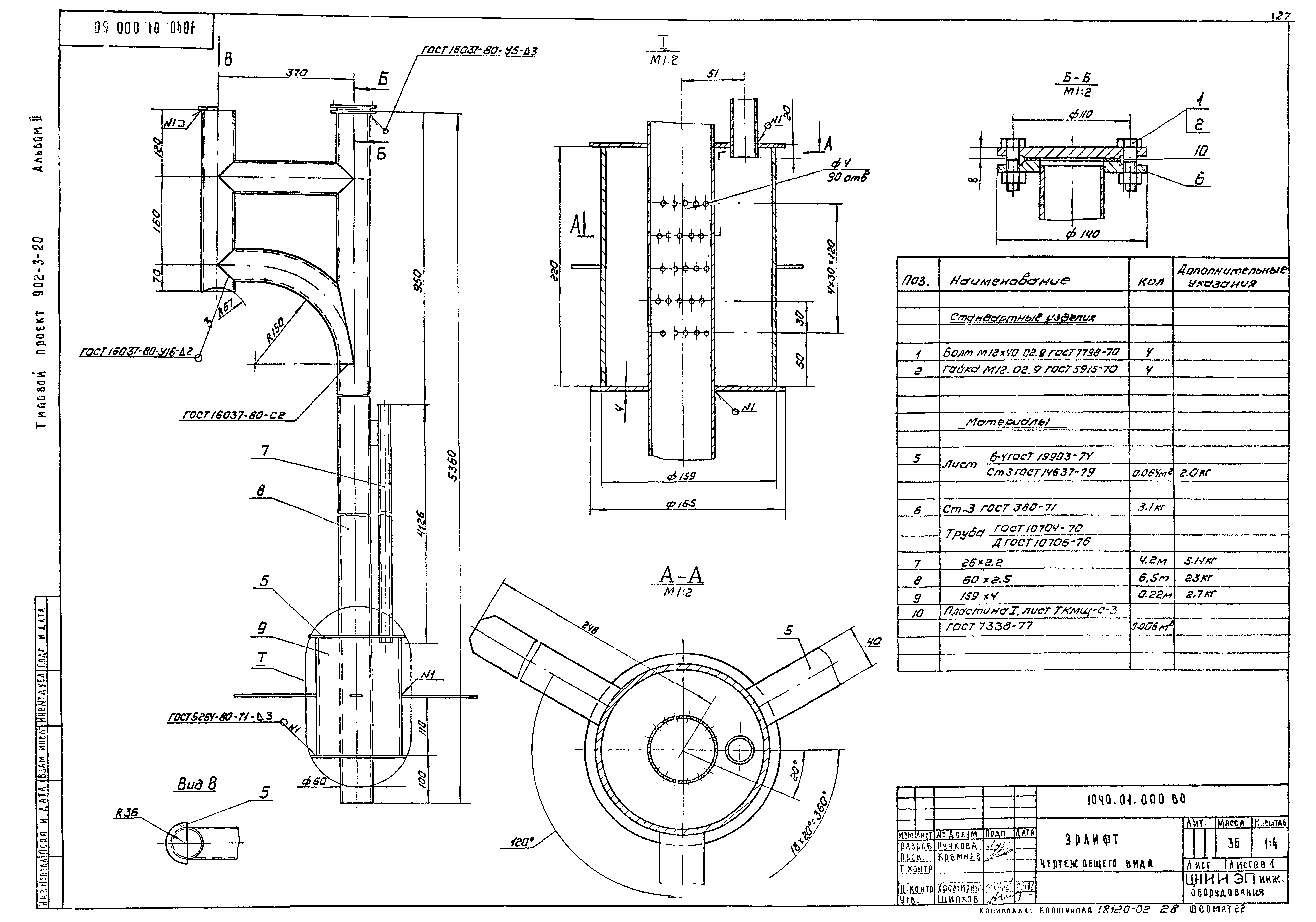
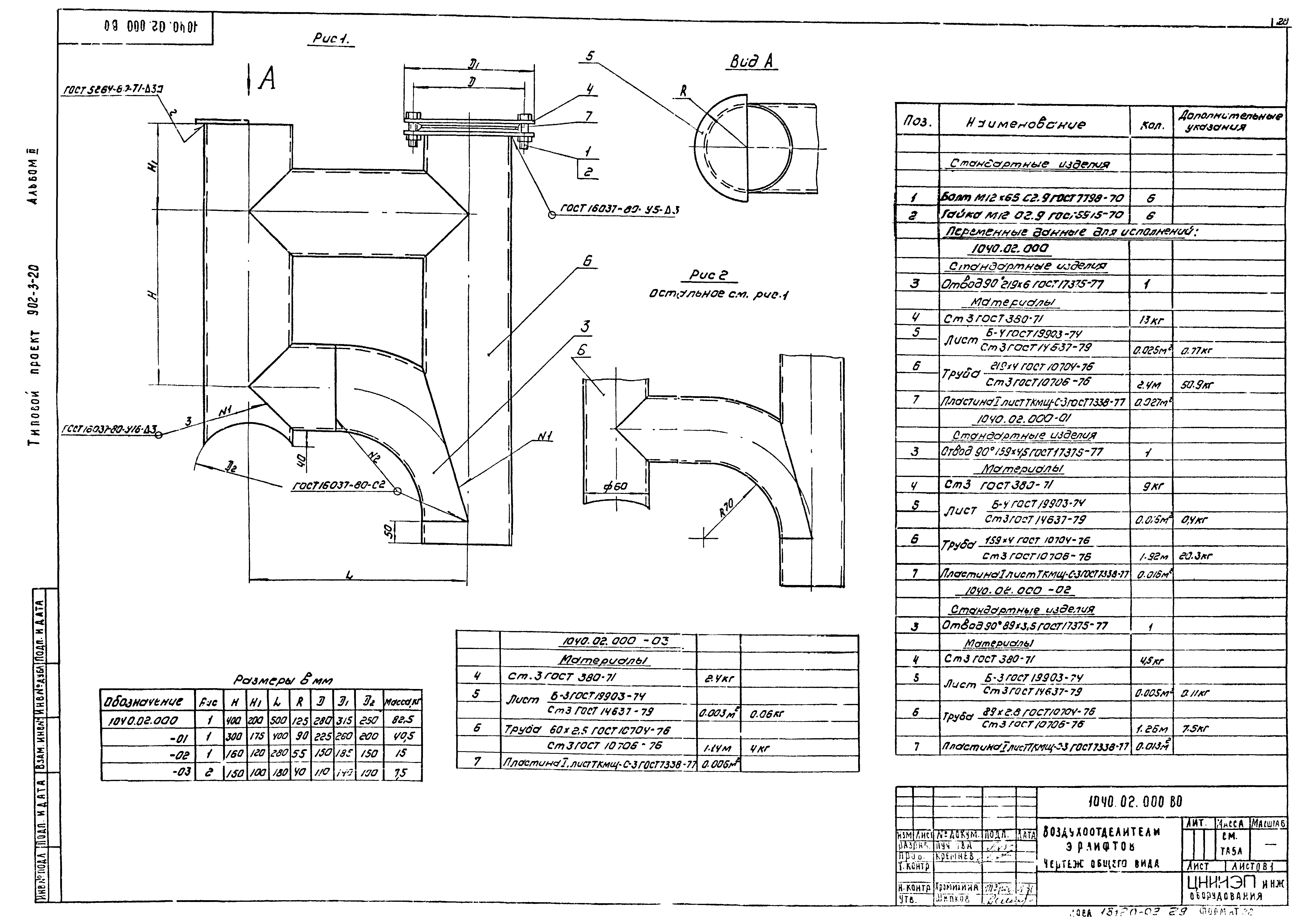
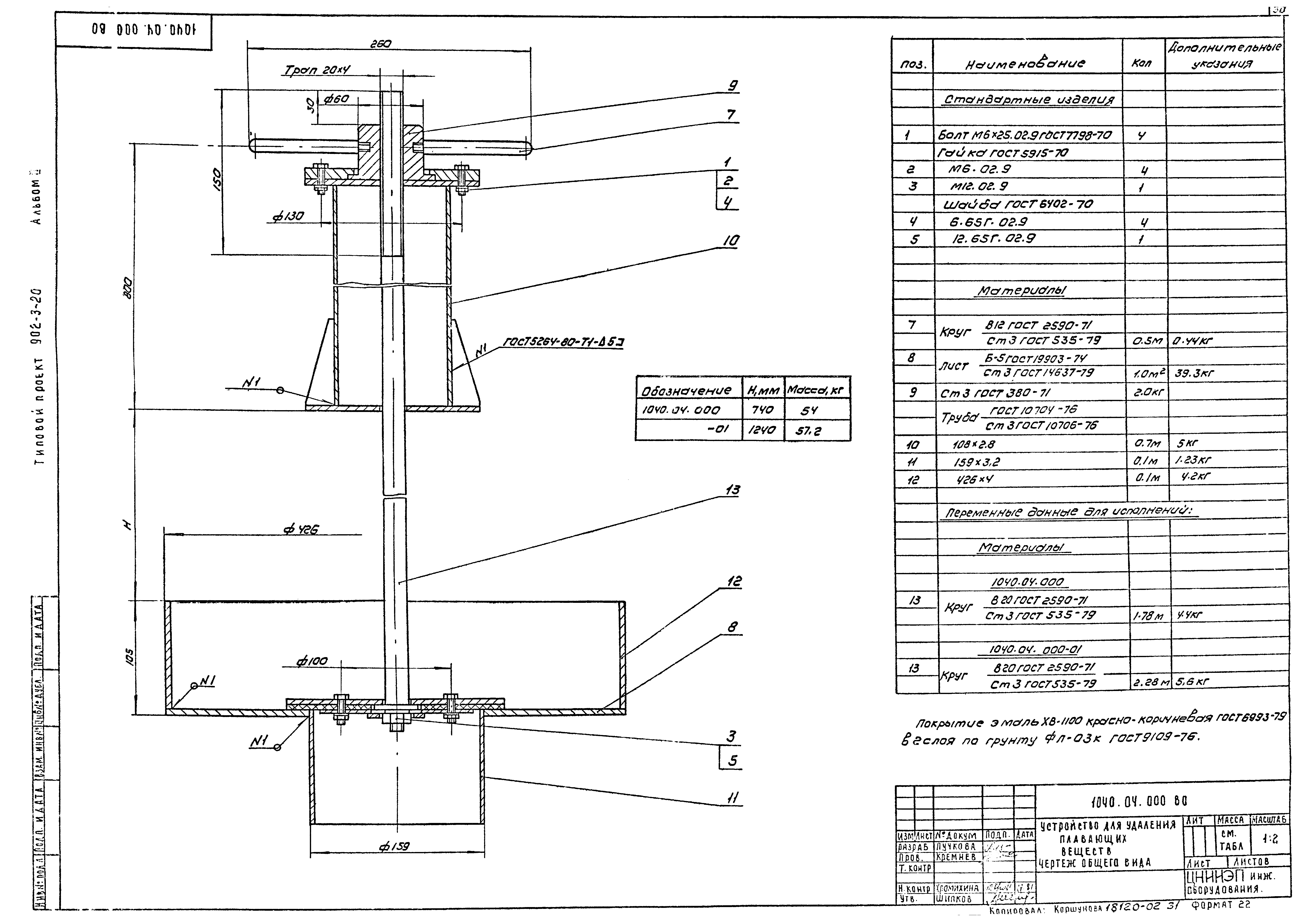
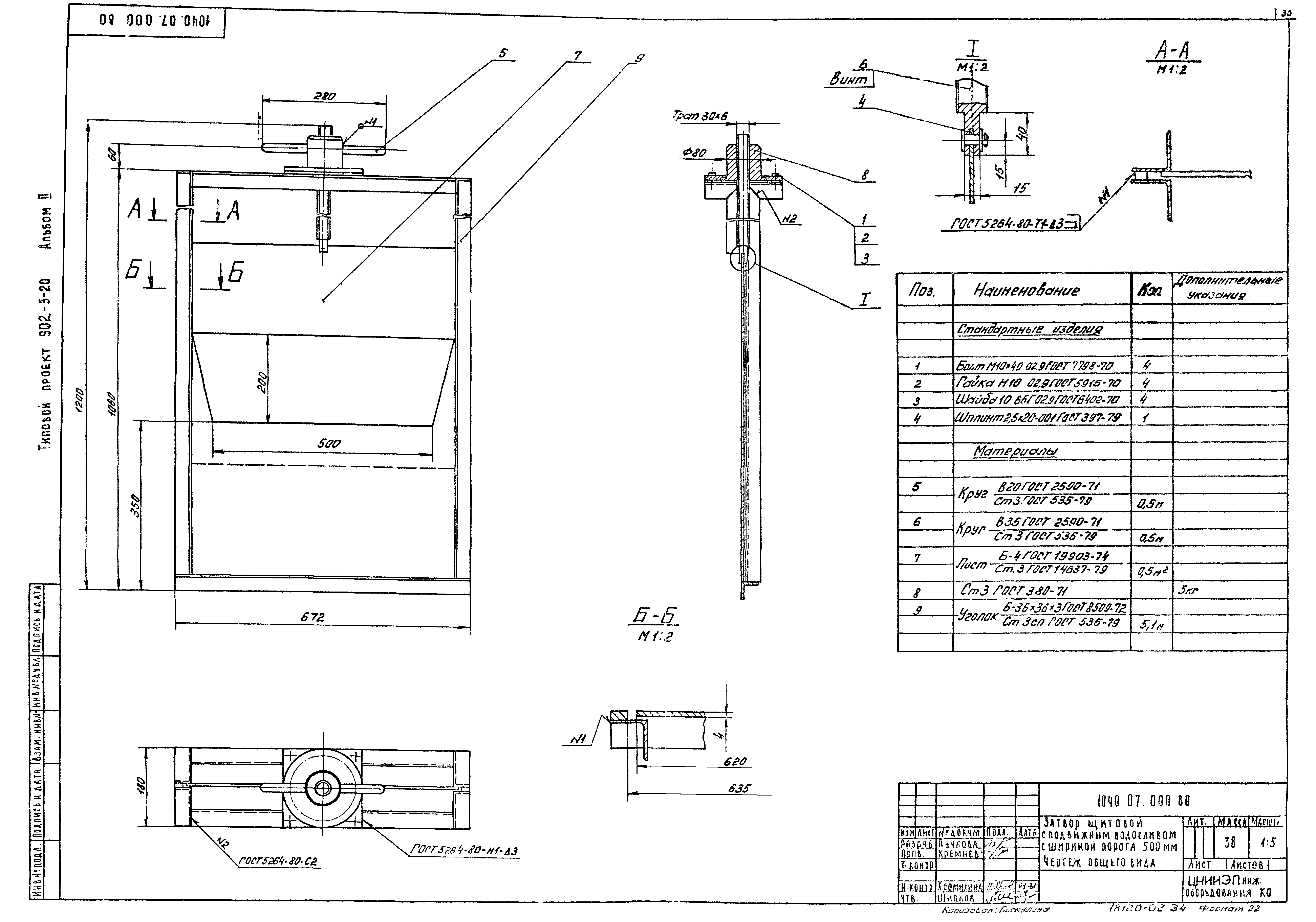
Скачать Типовой проект 902-3-20 Альбом II. Технологическая часть. Нестандартизированное оборудованиеДата актуализации: 01.01.2021 Типовой проект 902-3-20
Альбом II. Технологическая часть. Нестандартизированное оборудование| Обозначение: | Типовой проект 902-3-20 | | Обозначение англ: | 902-3-20 | | Статус: | не действует | | Название рус.: | Альбом II. Технологическая часть. Нестандартизированное оборудование | | Дата добавления в базу: | 01.09.2013 | | Дата актуализации: | 01.01.2021 | | Дата введения: | 18.02.1982 | | Разработан: | ЦНИИЭП
| | Утверждён: | 17.08.1981 Госгражданстрой (Gosgrazhdanstroy 247)
| | Чем заменён: | |
                                  
|