Скачать Типовой проект 903-1-170 Альбом XVI. Автоматизация. Общие видыДата актуализации: 01.01.2021
|
| Обозначение: | Типовой проект 903-1-170 |
| Обозначение англ: | 903-1-170 |
| Статус: | заменен |
| Название рус.: | Альбом XVI. Автоматизация. Общие виды |
| Дата добавления в базу: | 01.10.2014 |
| Дата актуализации: | 01.01.2021 |
| Дата введения: | 28.12.1979 |
| Дата окончания срока действия: | 01.04.1988 |
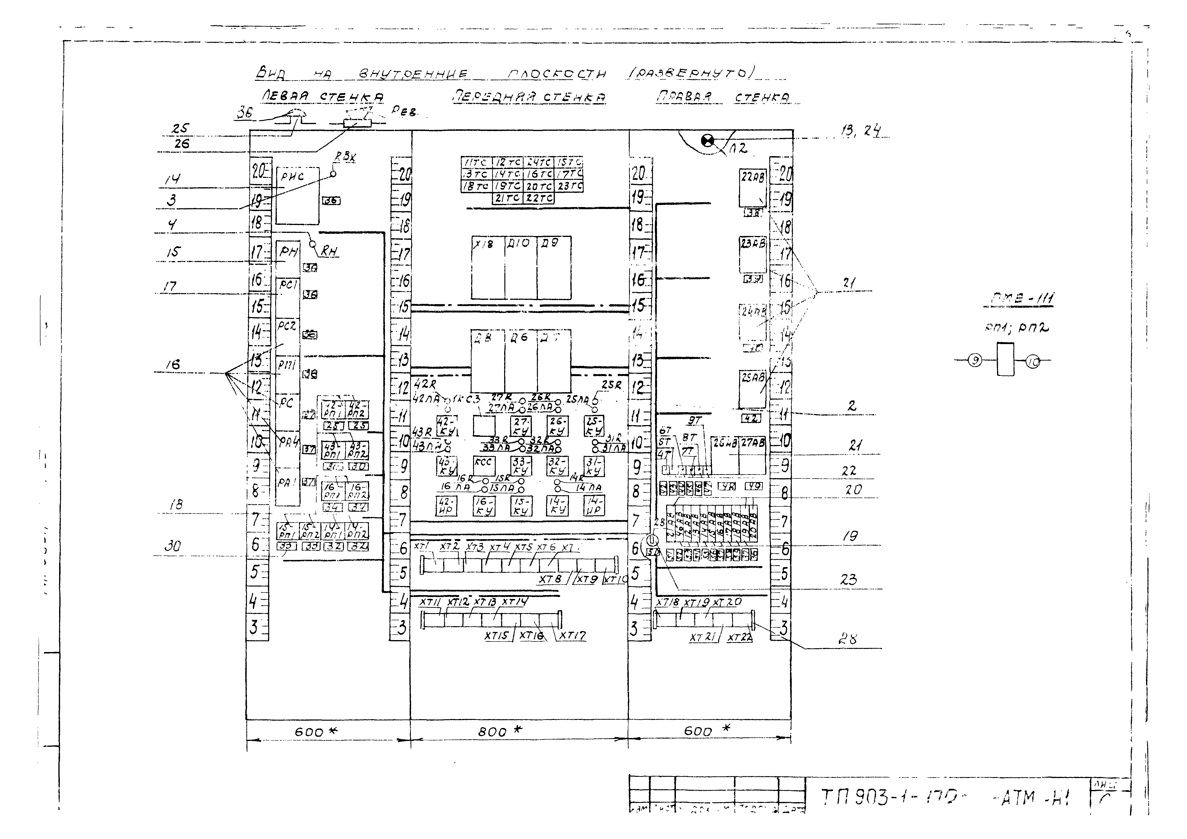
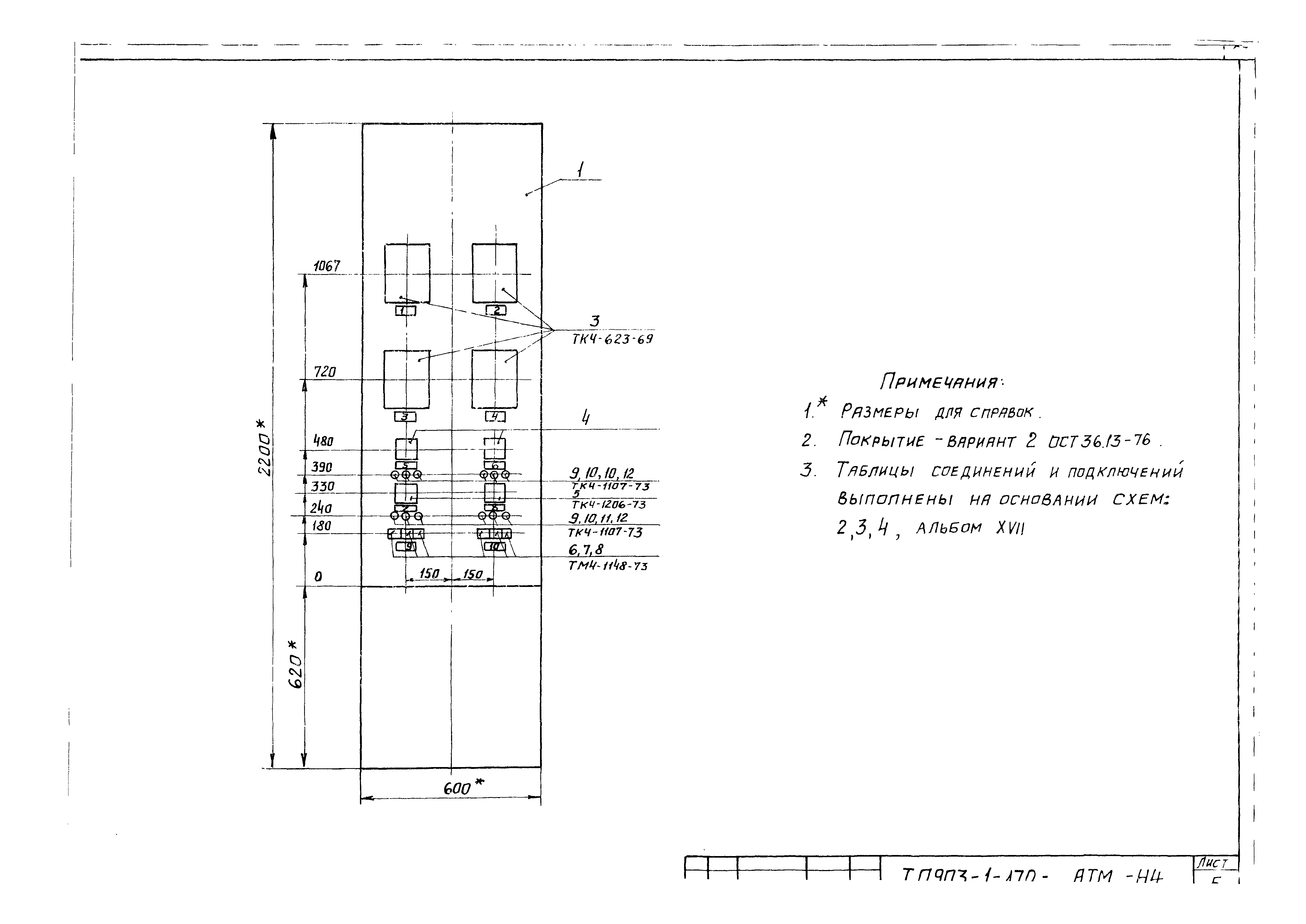
| Оглавление: | Общие данные Щит № 1 управления. Общий вид Щит № 2 управления. Общий вид Щит № 3 общих замеров. Общий вид Щит № 6 общих замеров. Общий вид Щит управления котельной. Общий вид. Перечень составных частей Спецификация щитов |
| Разработан: | ГПИ Сантехпроект Госстроя СССР Минтяжмаш СССР Союзпроммеханизация |
| Утверждён: | 28.12.1979 ГПИ Сантехпроект (217) |
| Заменяет собой: |
|
| Чем заменён: |





















































































