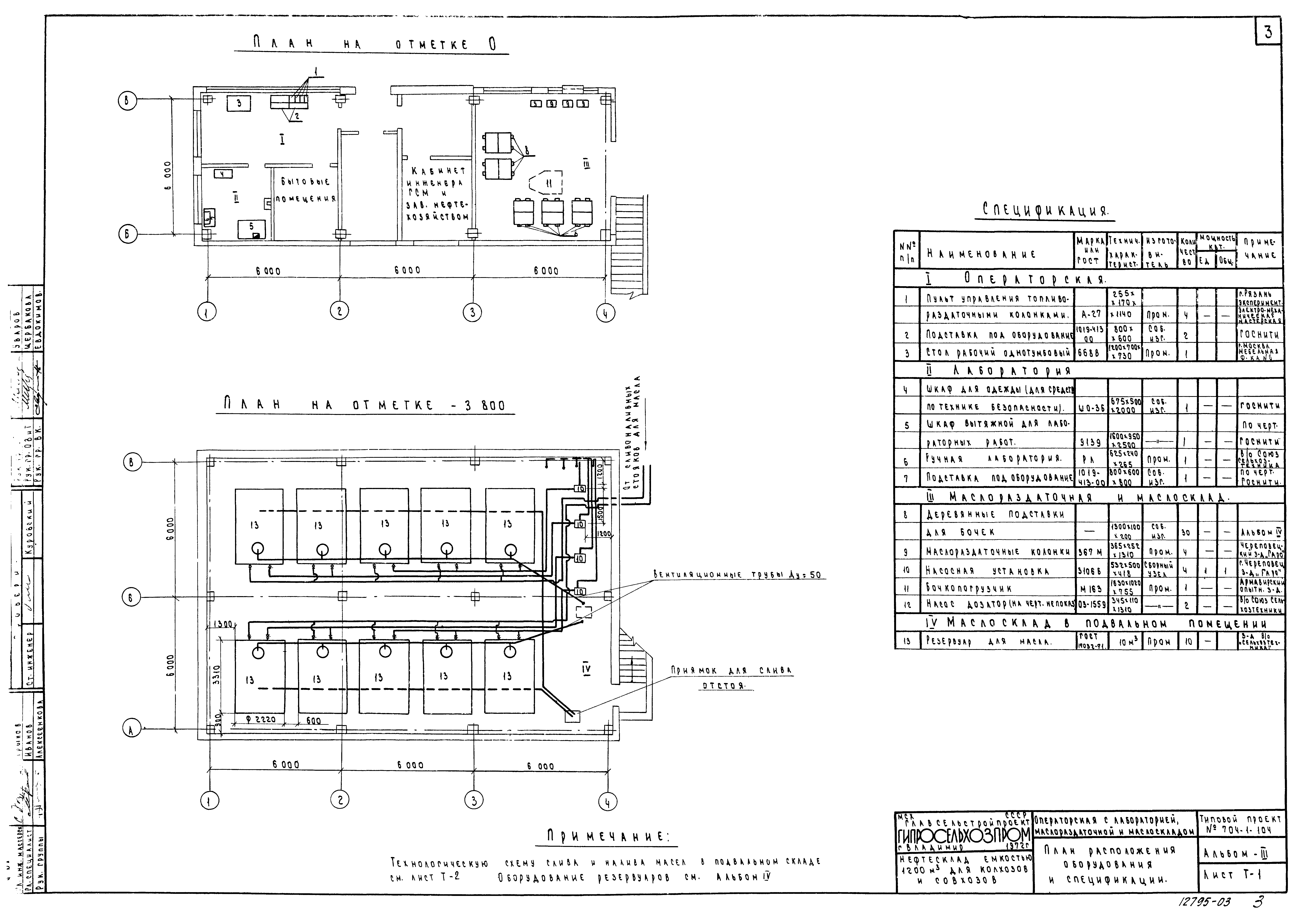
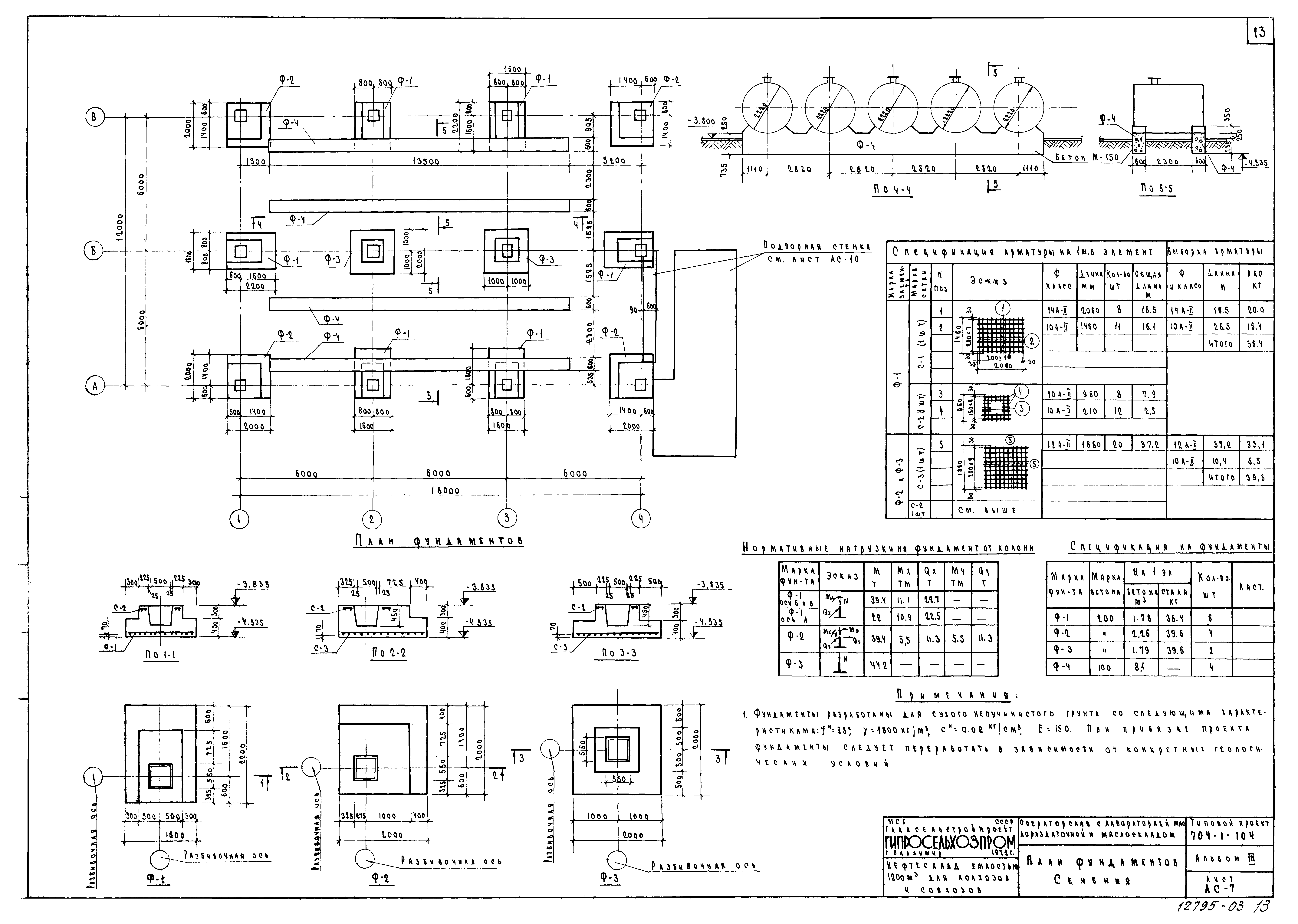
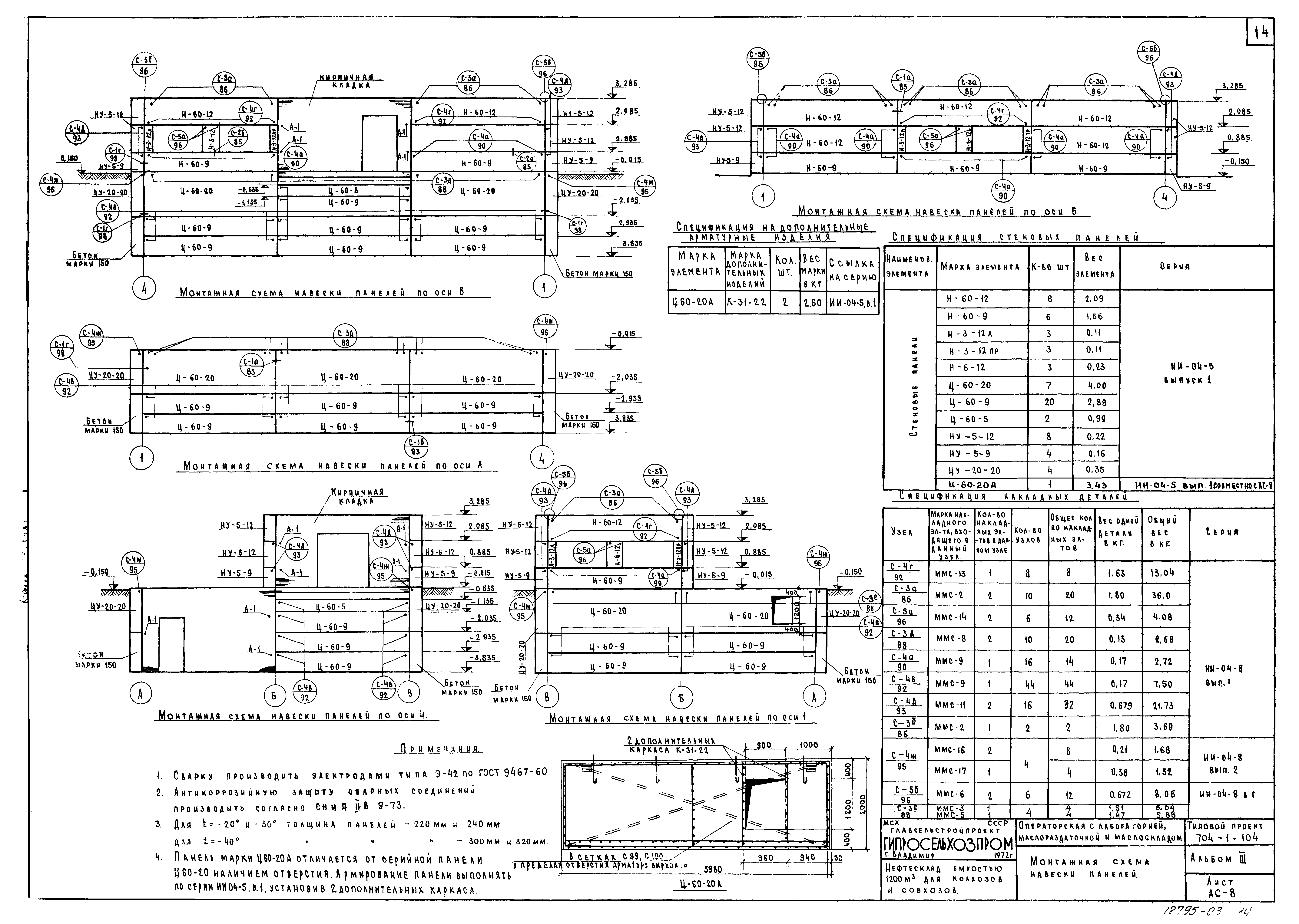
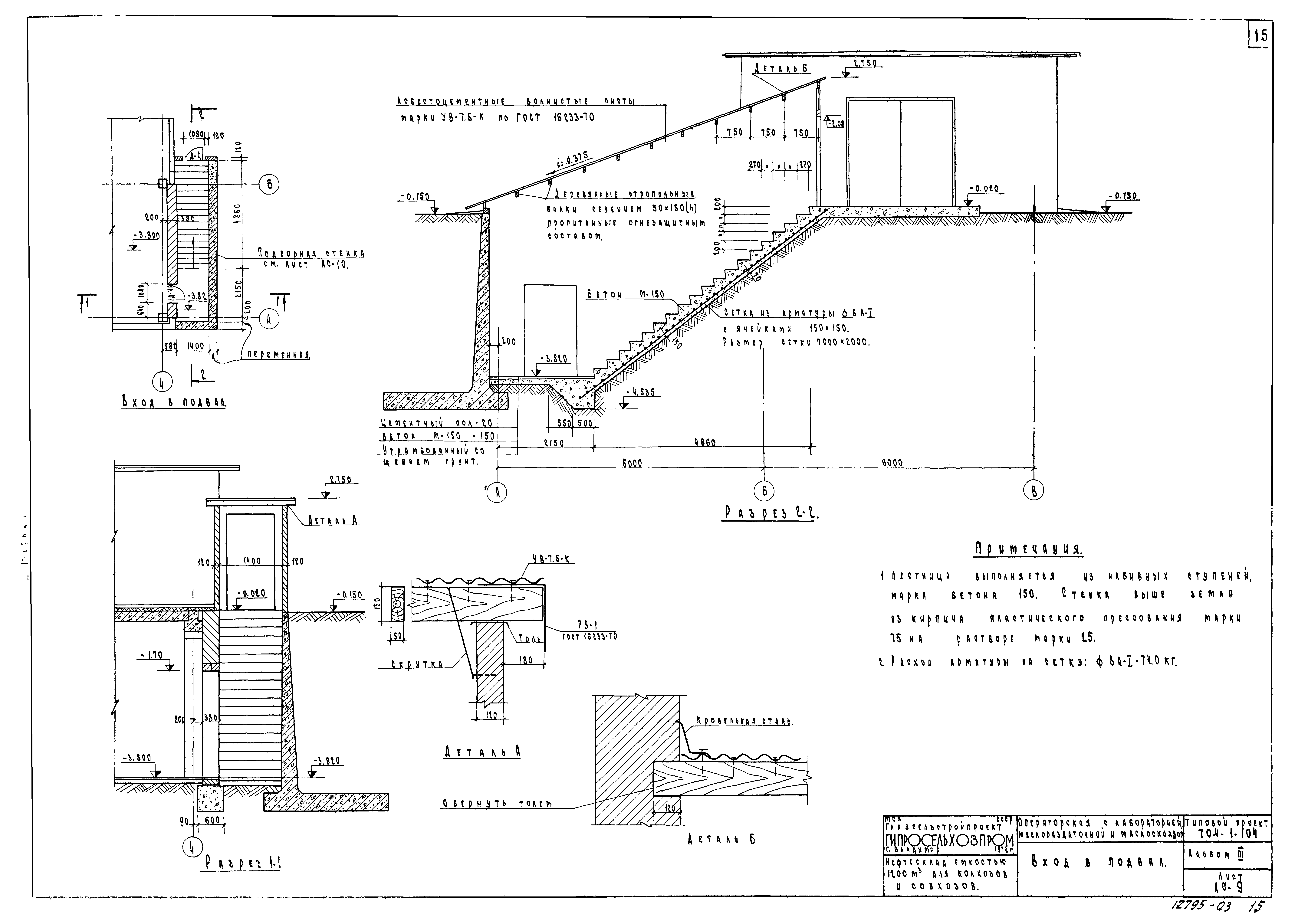
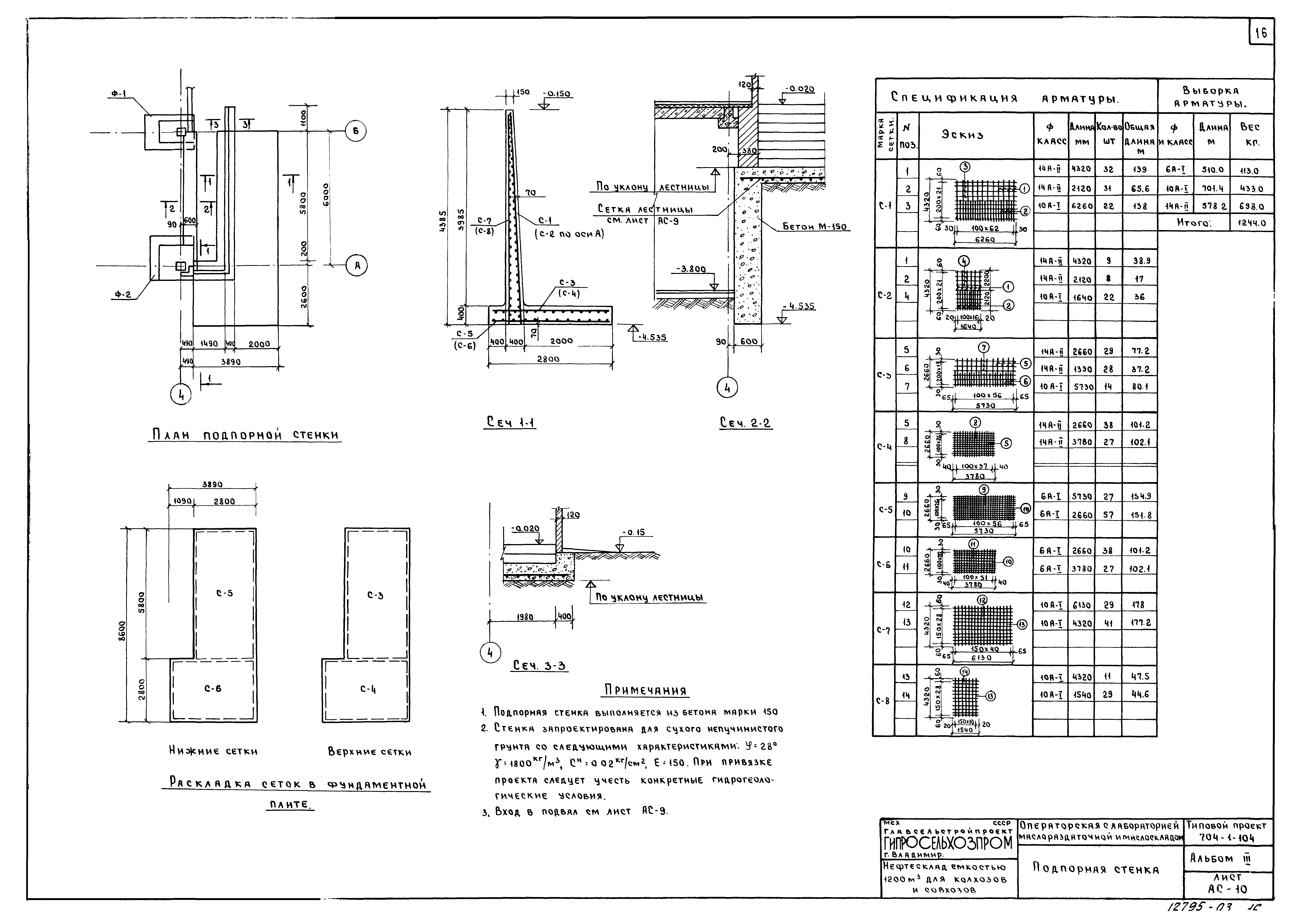
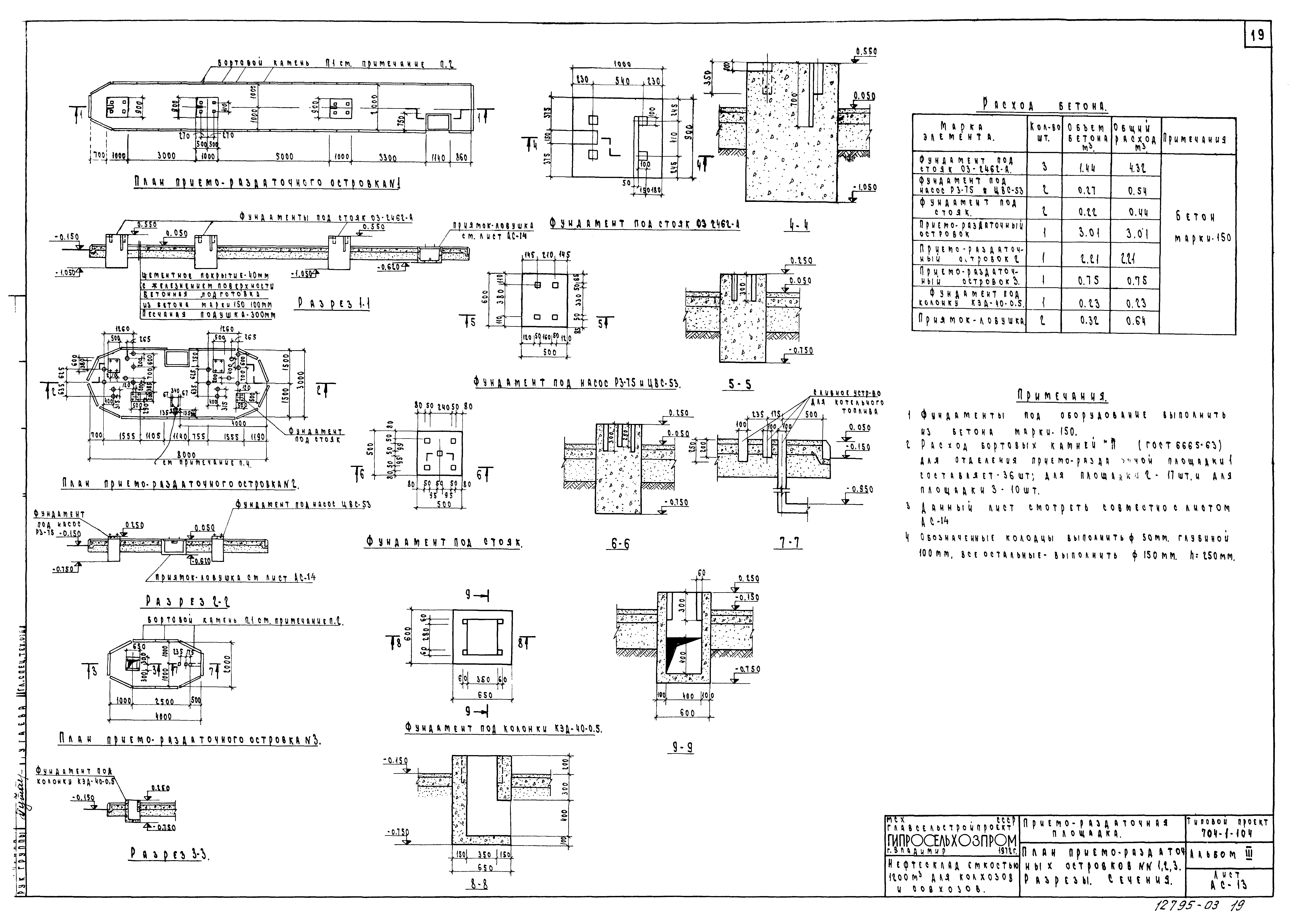
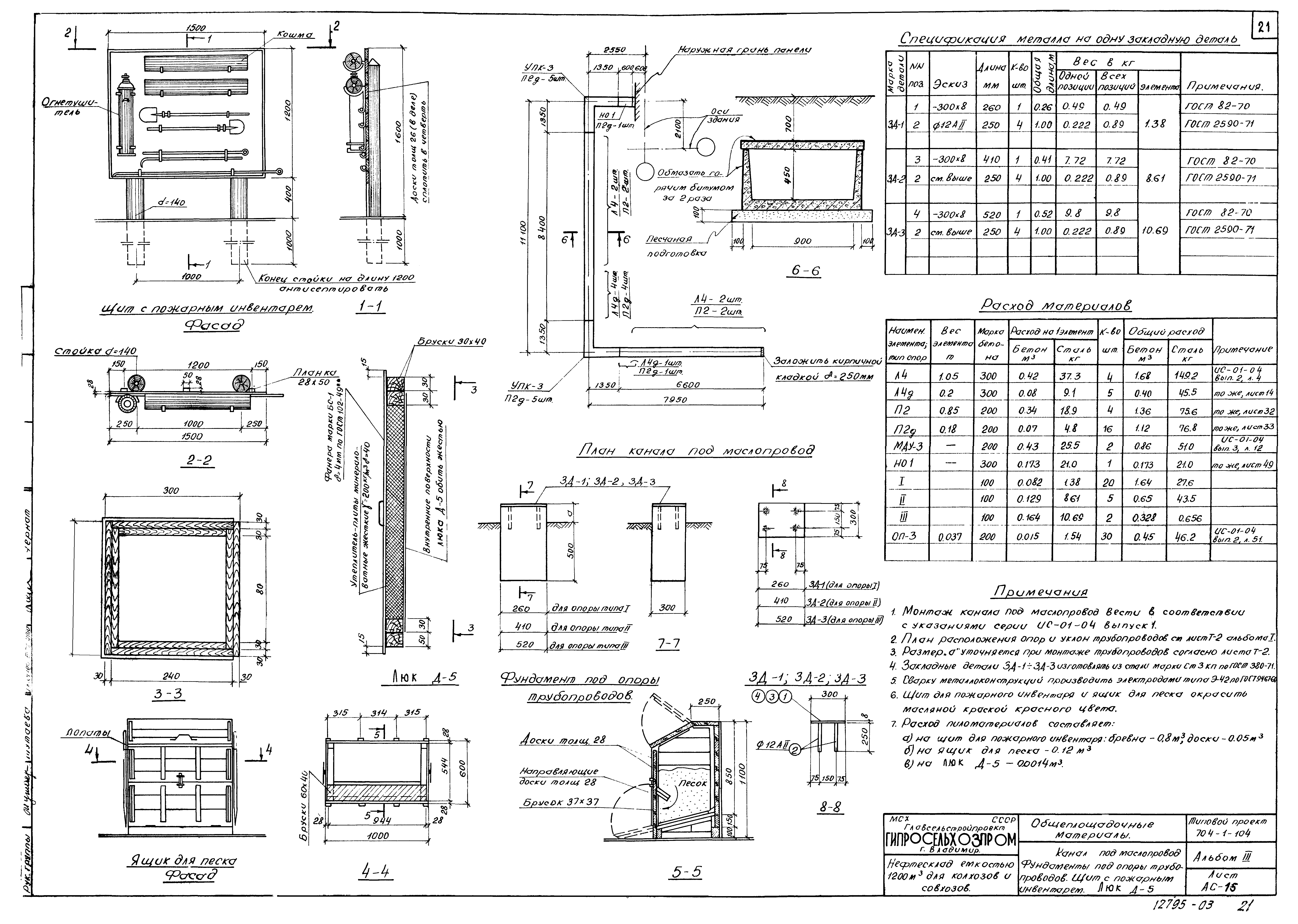
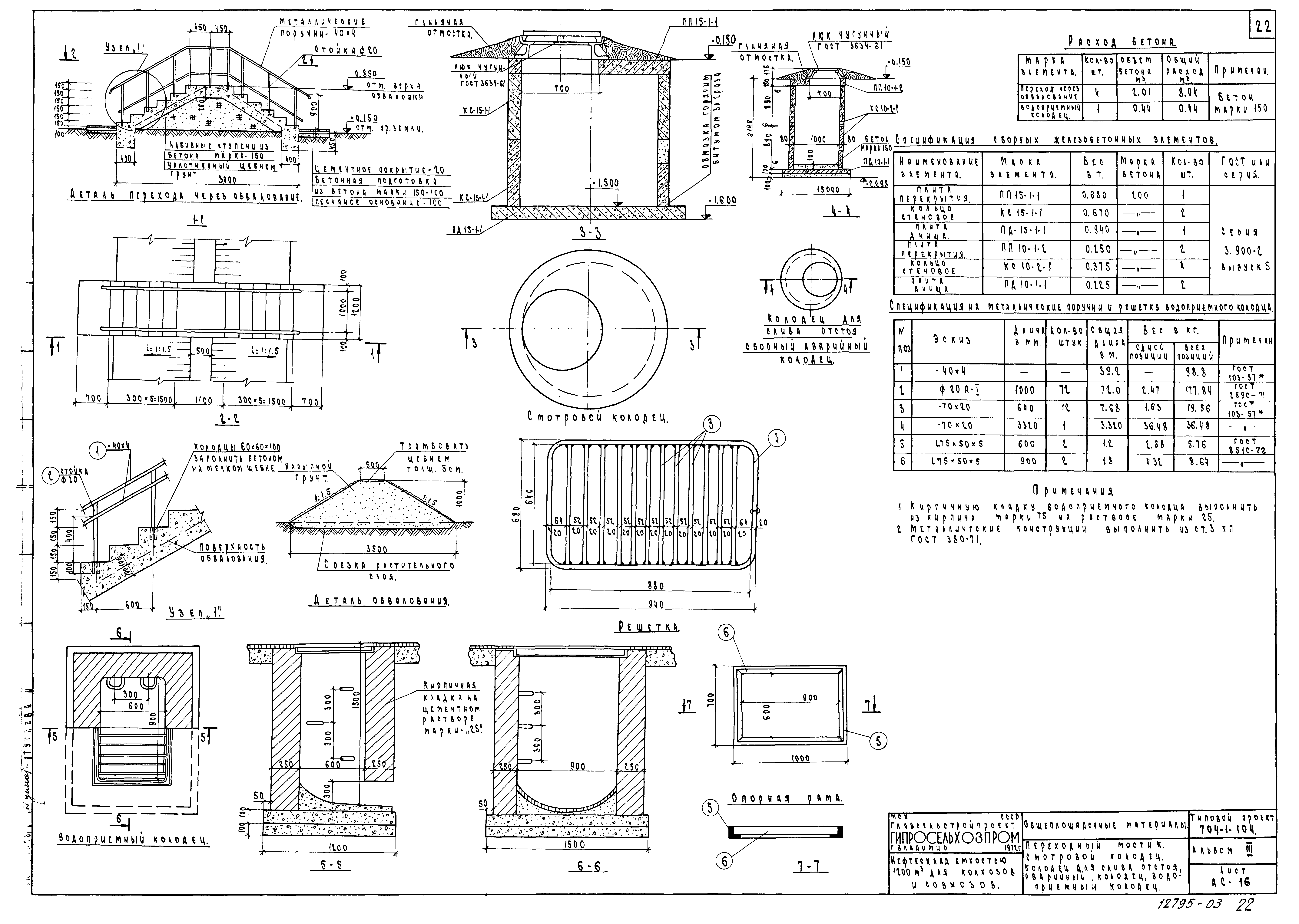
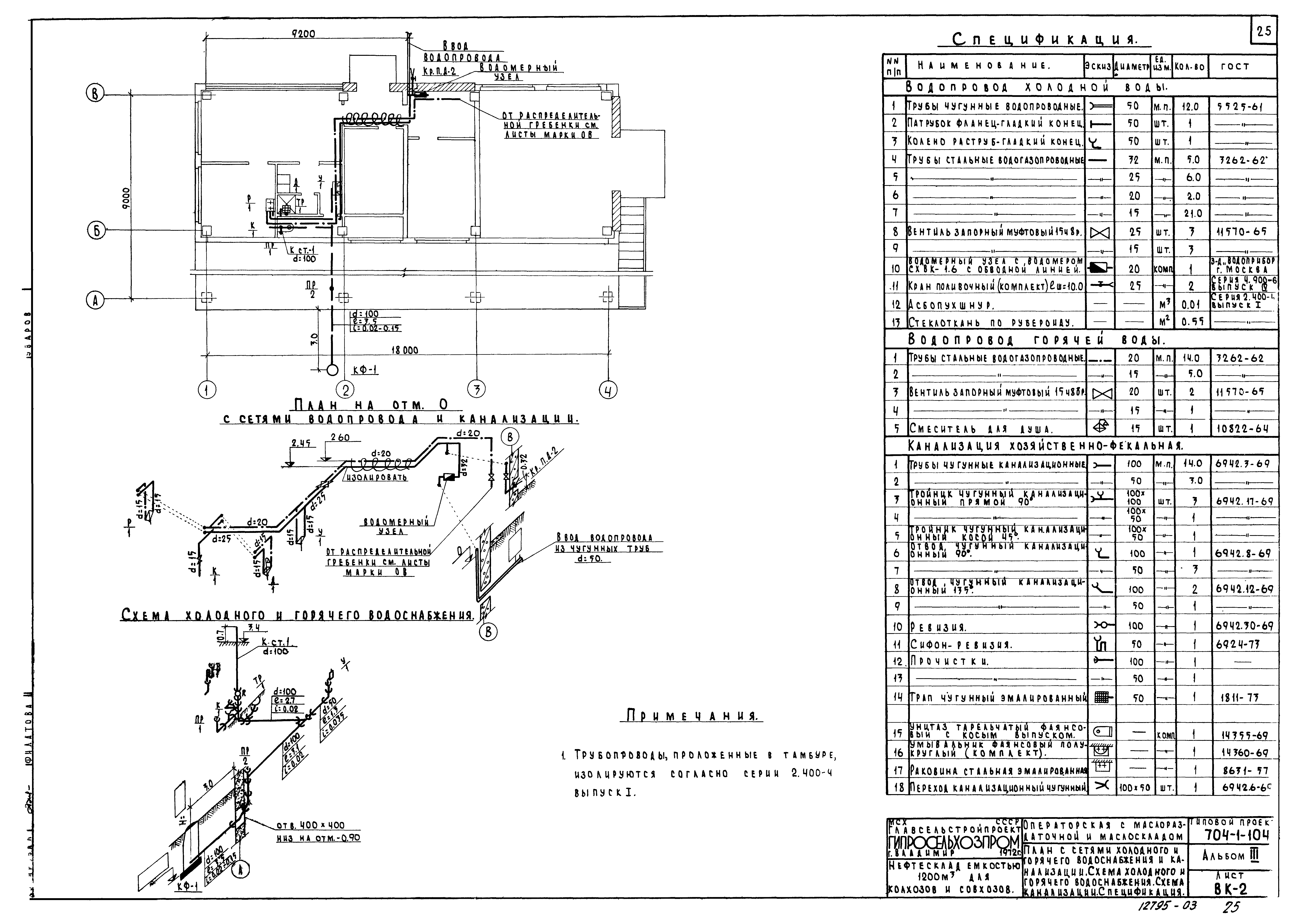
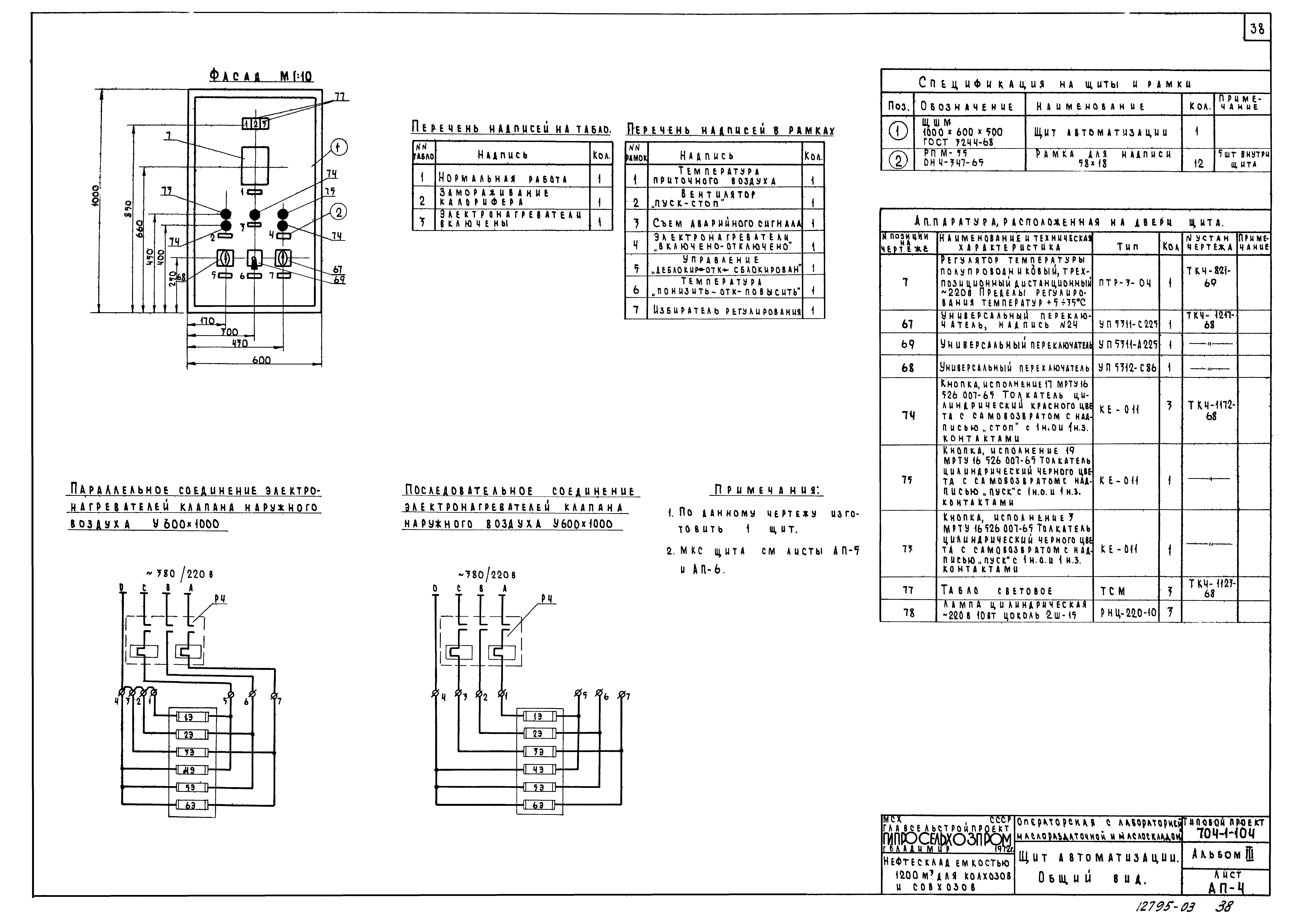
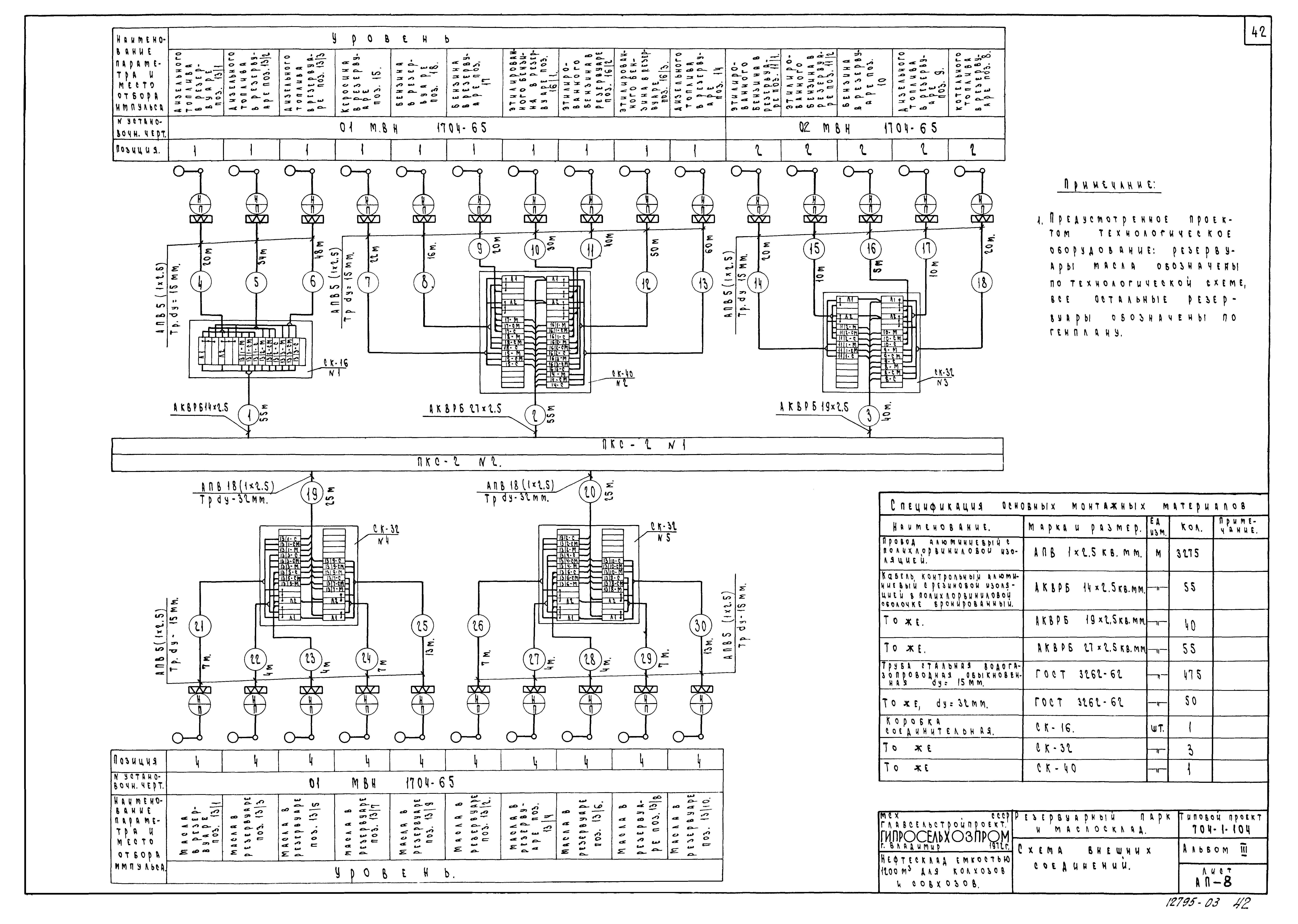
Скачать Типовой проект 704-1-104 Альбом III. Операторская с лабораторией, маслораздаточной, маслоскладом. Резервуарный парк, приемораздаточная площадка. Пояснительная записка и чертежиДата актуализации: 01.01.2021 Типовой проект 704-1-104
Альбом III. Операторская с лабораторией, маслораздаточной, маслоскладом. Резервуарный парк, приемораздаточная площадка. Пояснительная записка и чертежи| Обозначение: | Типовой проект 704-1-104 | | Обозначение англ: | 704-1-104 | | Статус: | действует | | Название рус.: | Альбом III. Операторская с лабораторией, маслораздаточной, маслоскладом. Резервуарный парк, приемораздаточная площадка. Пояснительная записка и чертежи | | Дата добавления в базу: | 01.09.2013 | | Дата актуализации: | 01.01.2021 | | Дата введения: | 05.08.1974 | | Разработан: | Гипросельхозпром
| | Утверждён: | 21.05.1973 Минсельхоз СССР (USSR Minselkhoz 24)
|
                                            
|