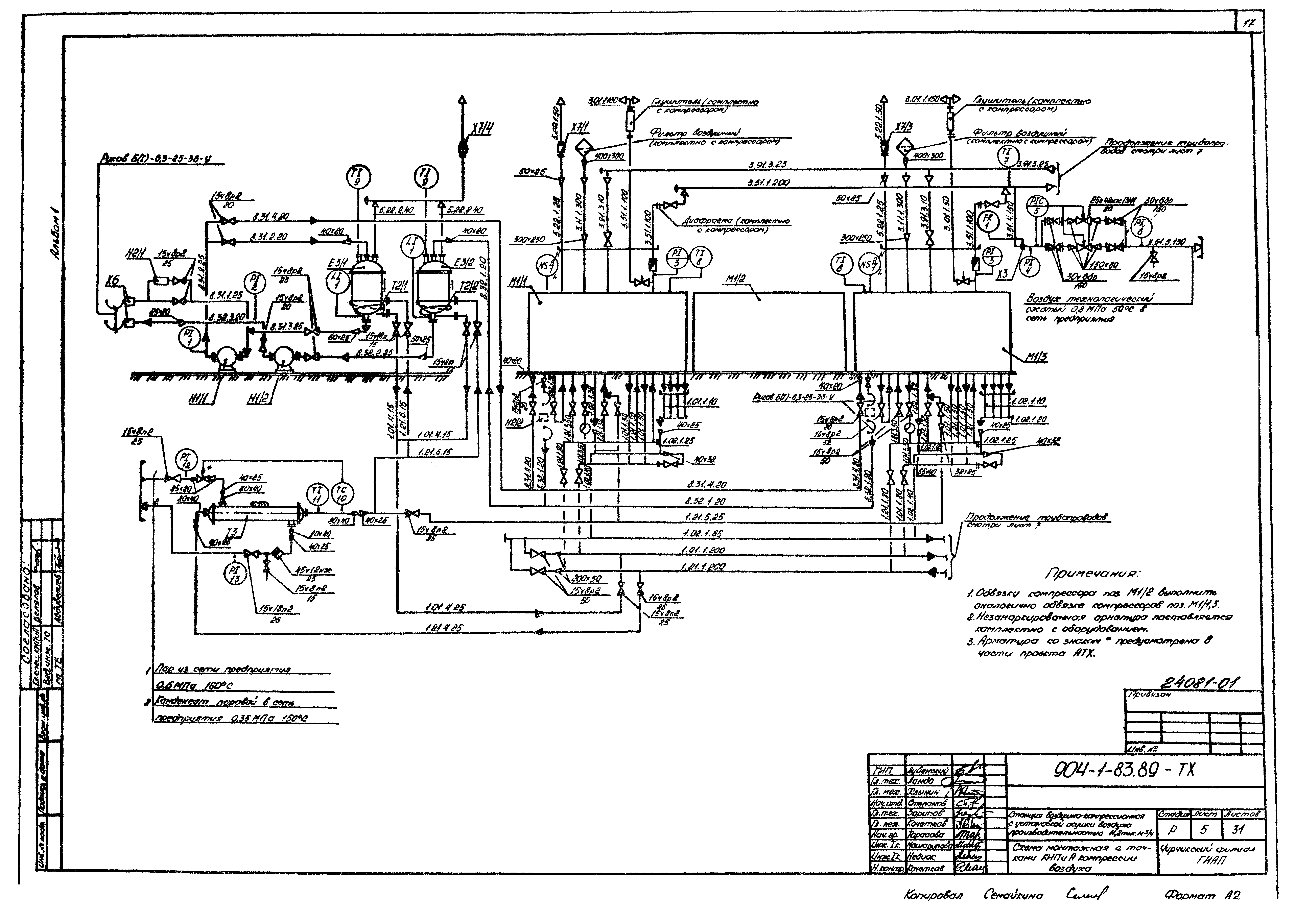
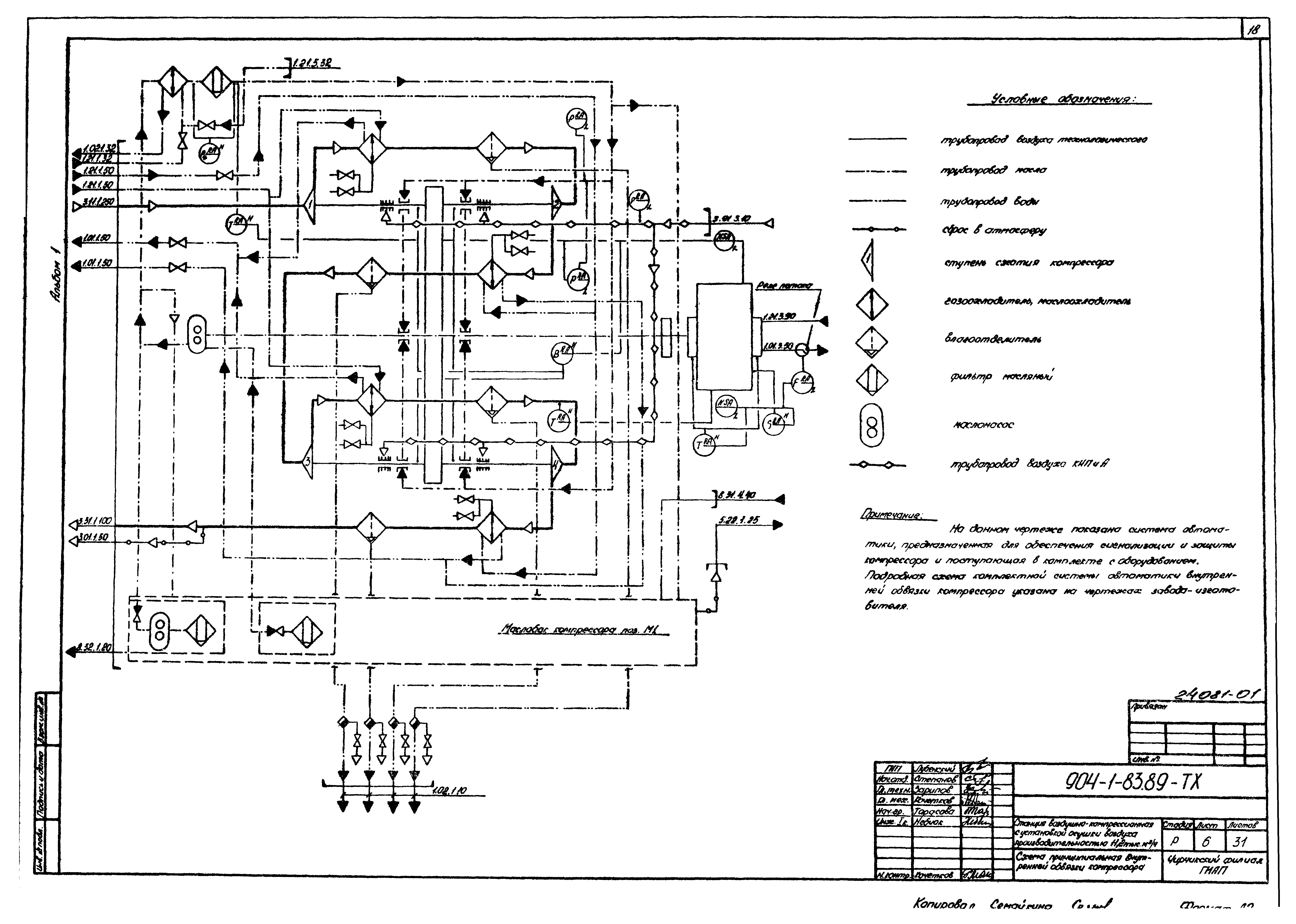
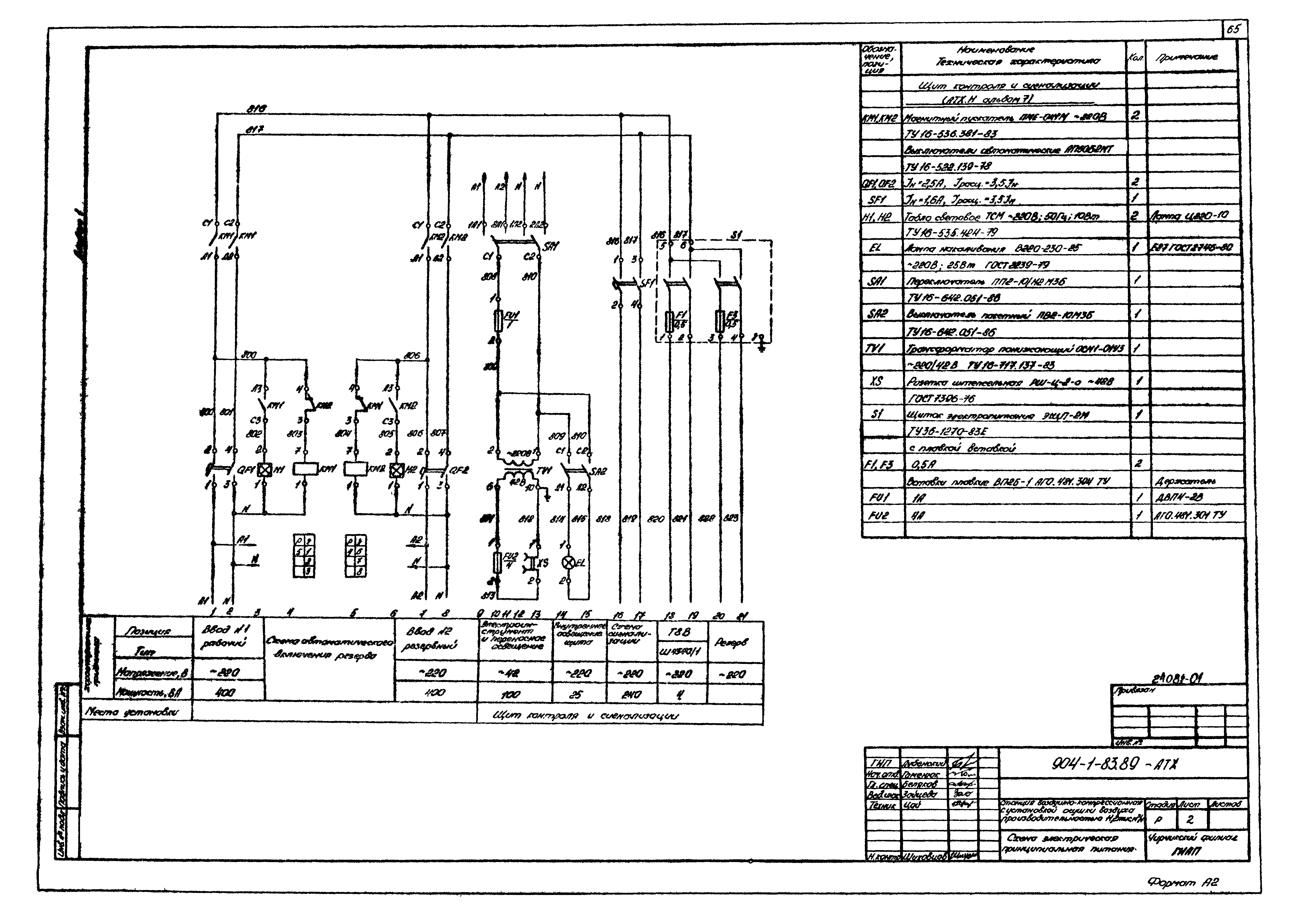
Скачать Типовой проект 904-1-83.89 Альбом 1. Пояснительная записка. Технология производства. Автоматизация производства и КИПДата актуализации: 01.01.2021 Типовой проект 904-1-83.89
Альбом 1. Пояснительная записка. Технология производства. Автоматизация производства и КИП| Обозначение: | Типовой проект 904-1-83.89 | | Обозначение англ: | 904-1-83.89 | | Статус: | не действует | | Название рус.: | Альбом 1. Пояснительная записка. Технология производства. Автоматизация производства и КИП | | Дата добавления в базу: | 01.09.2013 | | Дата актуализации: | 01.01.2021 | | Разработан: | Чирчикский филиал ГИАП
| | Утверждён: | 27.10.1989 Минудобрений СССР (USSR Minudobreniy 221)
|
                                                                          
|