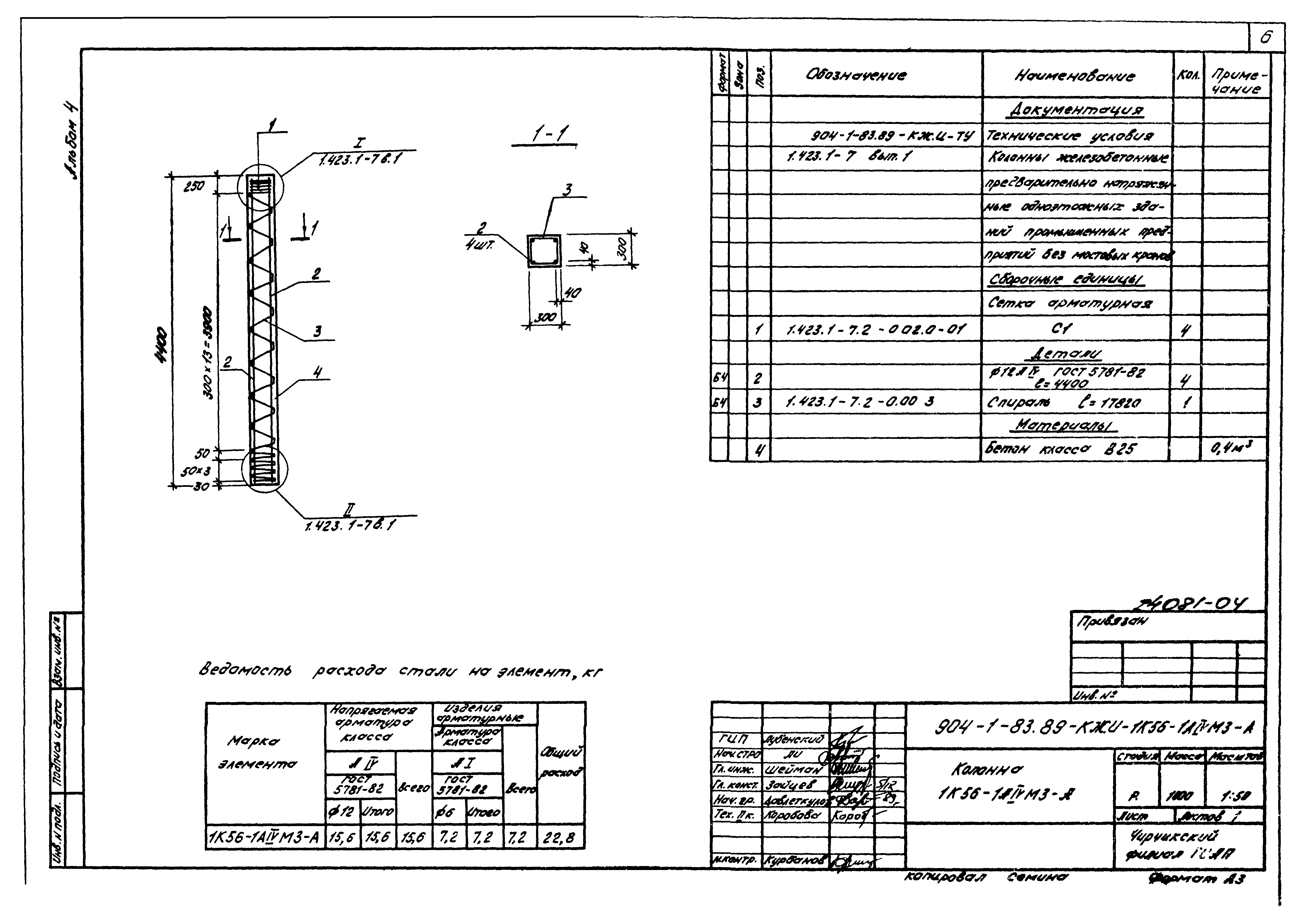
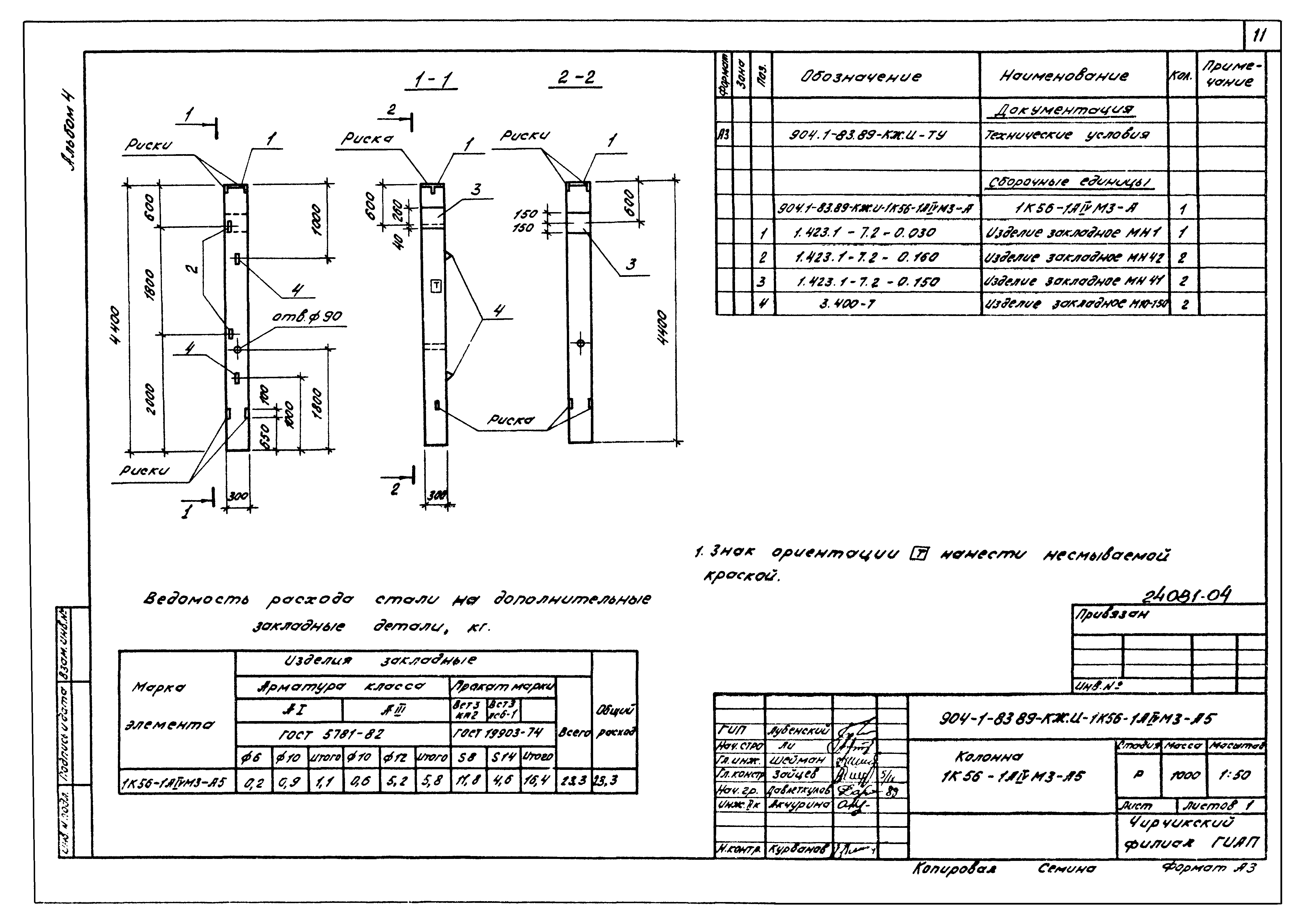
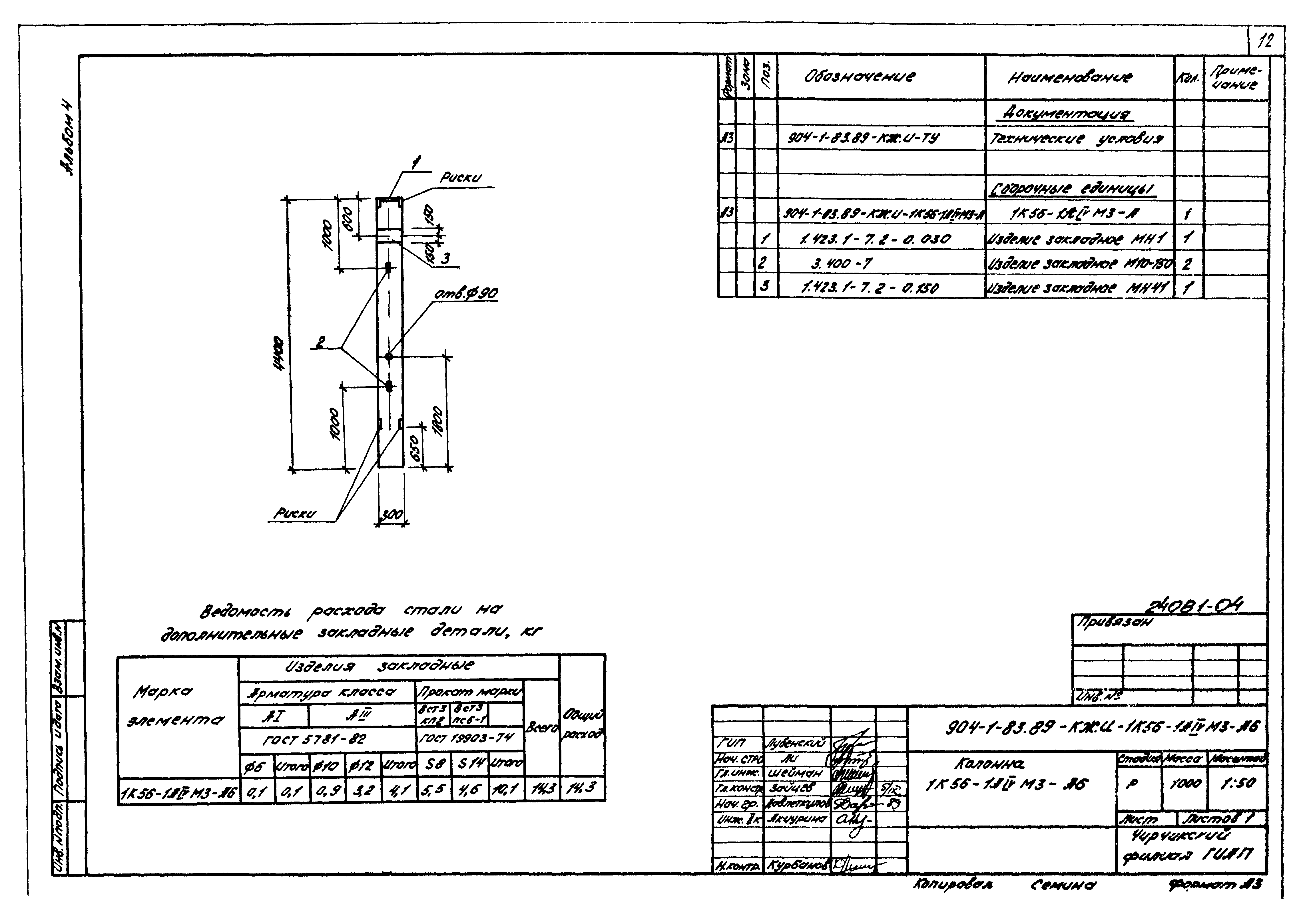
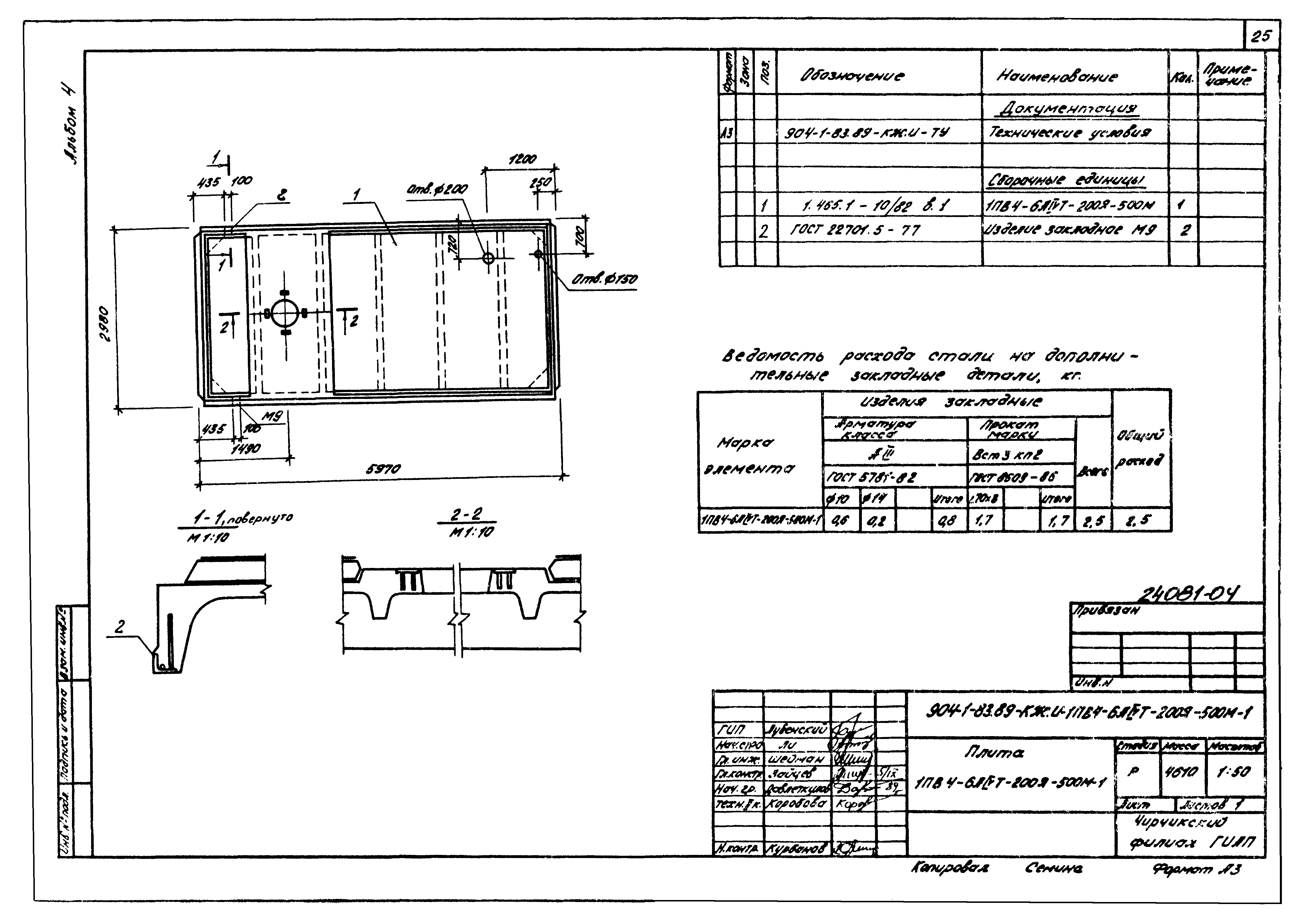
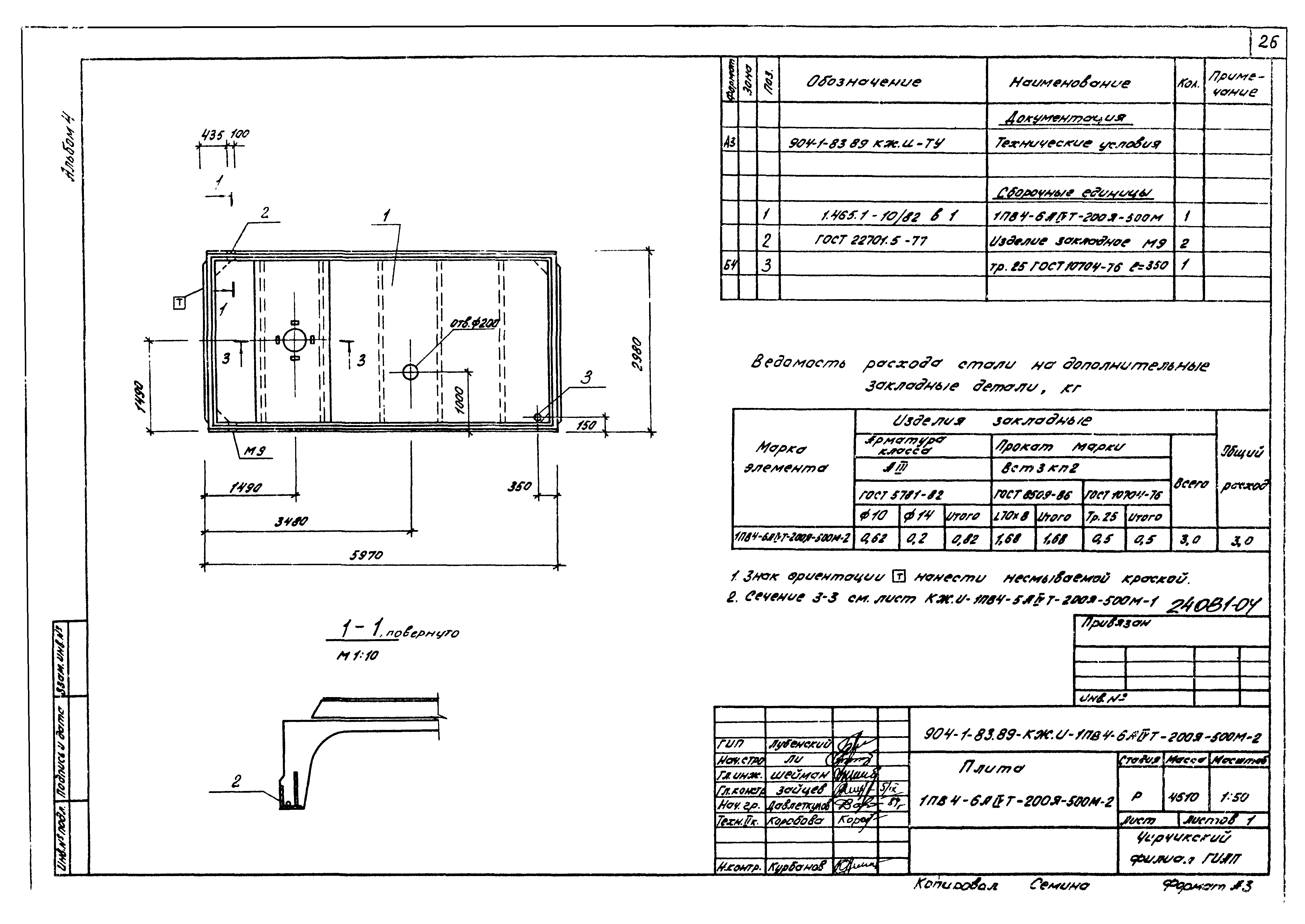
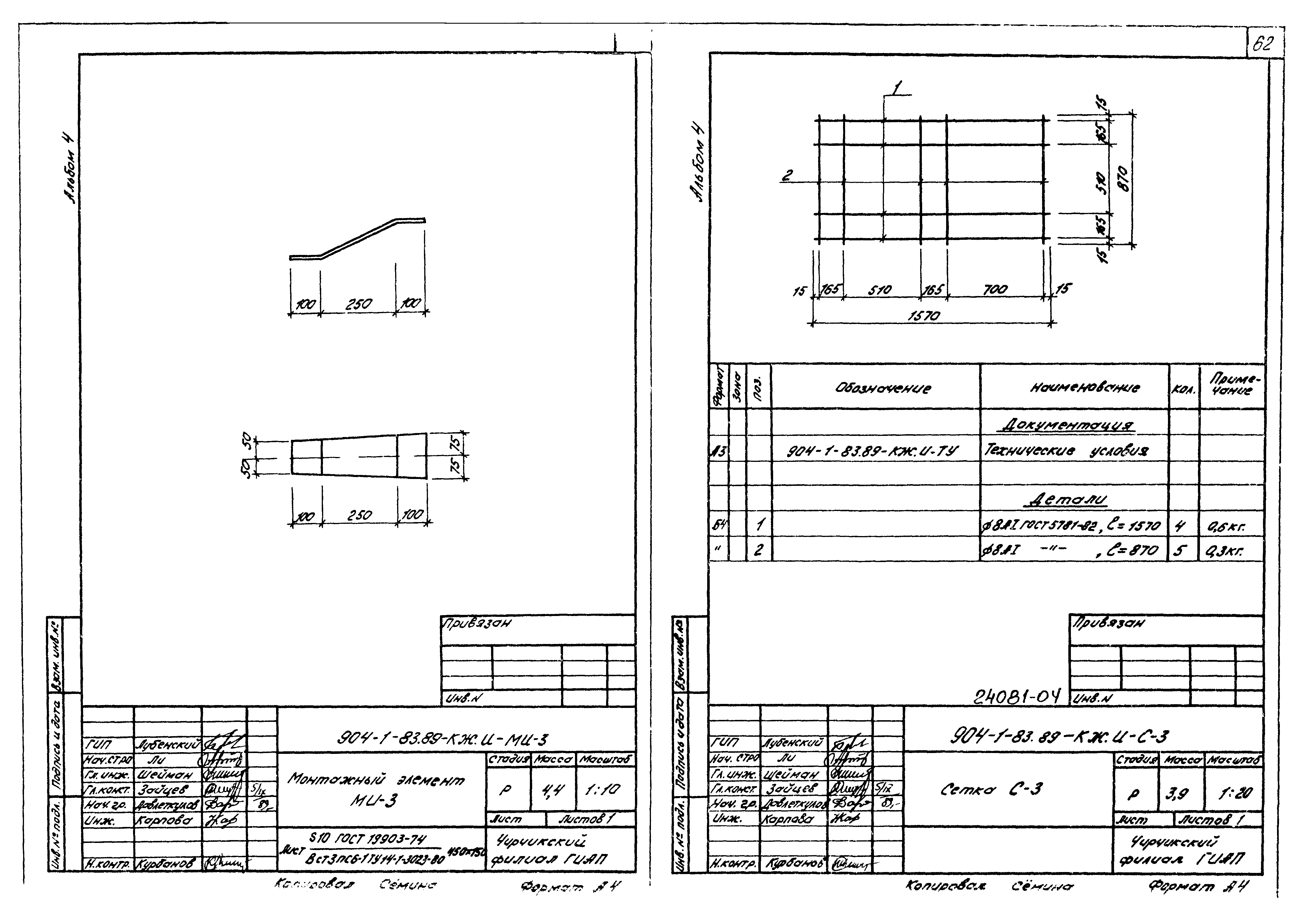
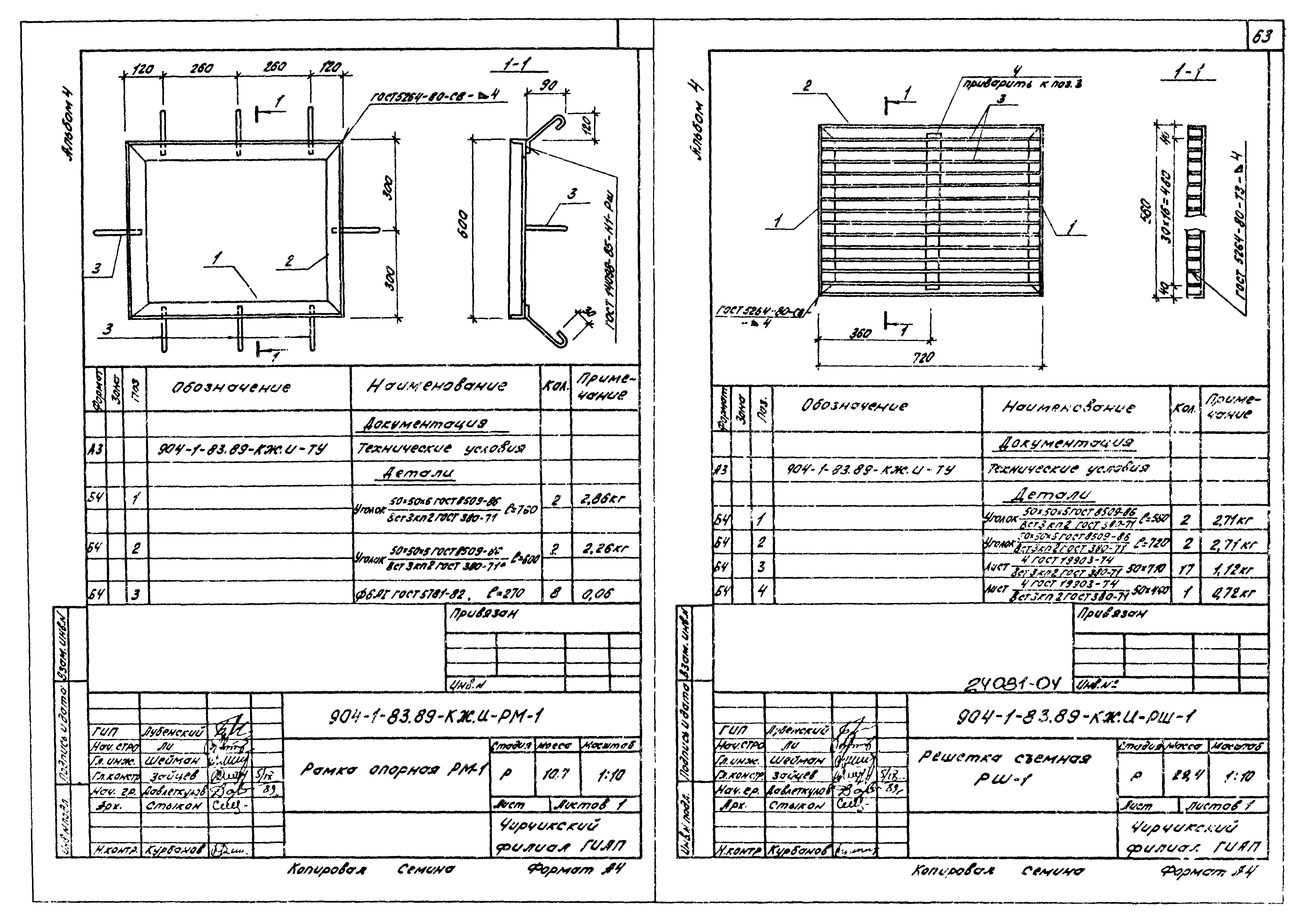
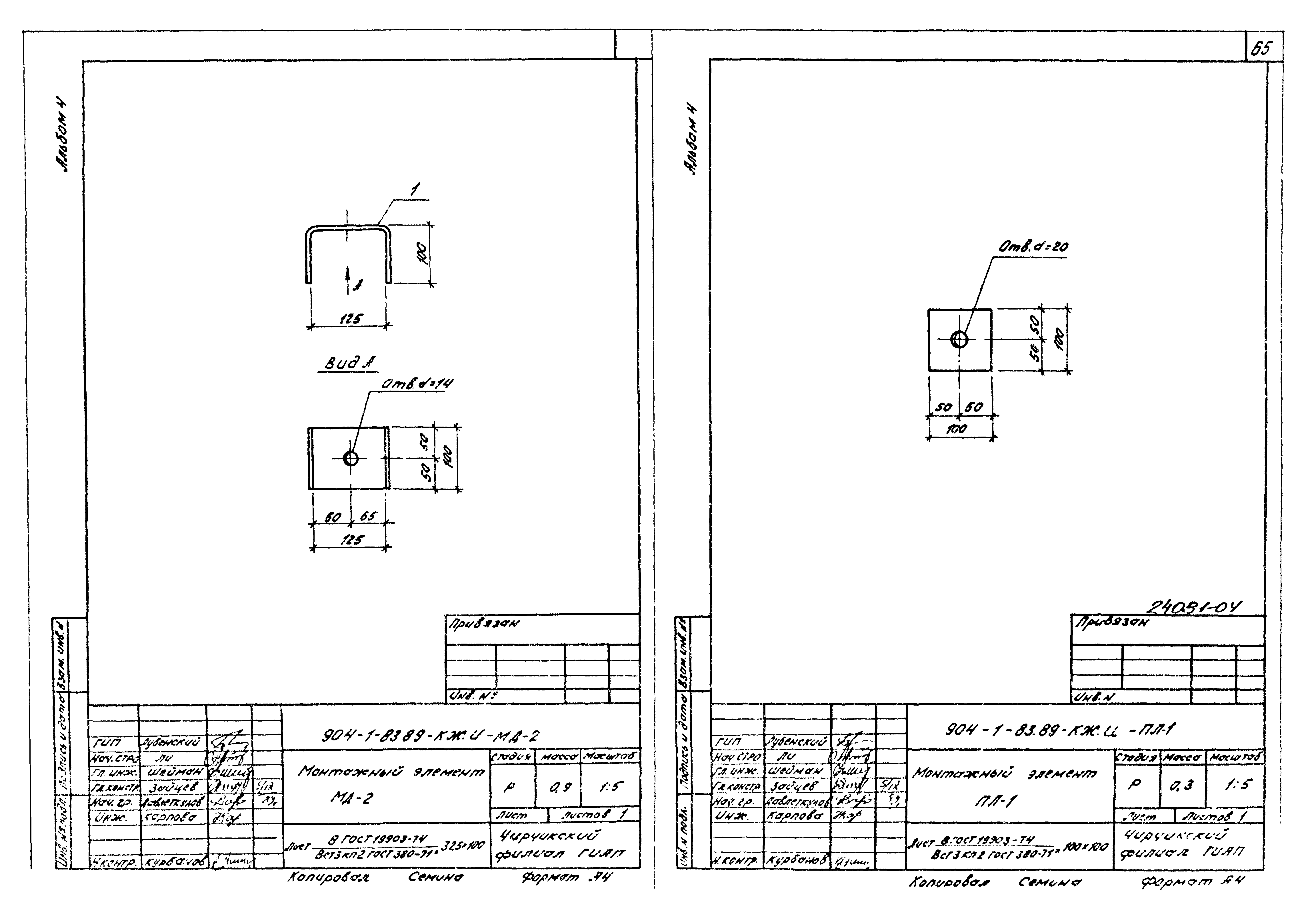
Скачать Типовой проект 904-1-83.89 Альбом 4. Строительные конструкции и изделияДата актуализации: 01.01.2021
|
| Обозначение: | Типовой проект 904-1-83.89 |
| Обозначение англ: | 904-1-83.89 |
| Статус: | не действует |
| Название рус.: | Альбом 4. Строительные конструкции и изделия |
| Дата добавления в базу: | 01.09.2013 |
| Дата актуализации: | 01.01.2021 |
| Разработан: | Чирчикский филиал ГИАП |
| Утверждён: | 27.10.1989 Минудобрений СССР (USSR Minudobreniy 221) |













































































