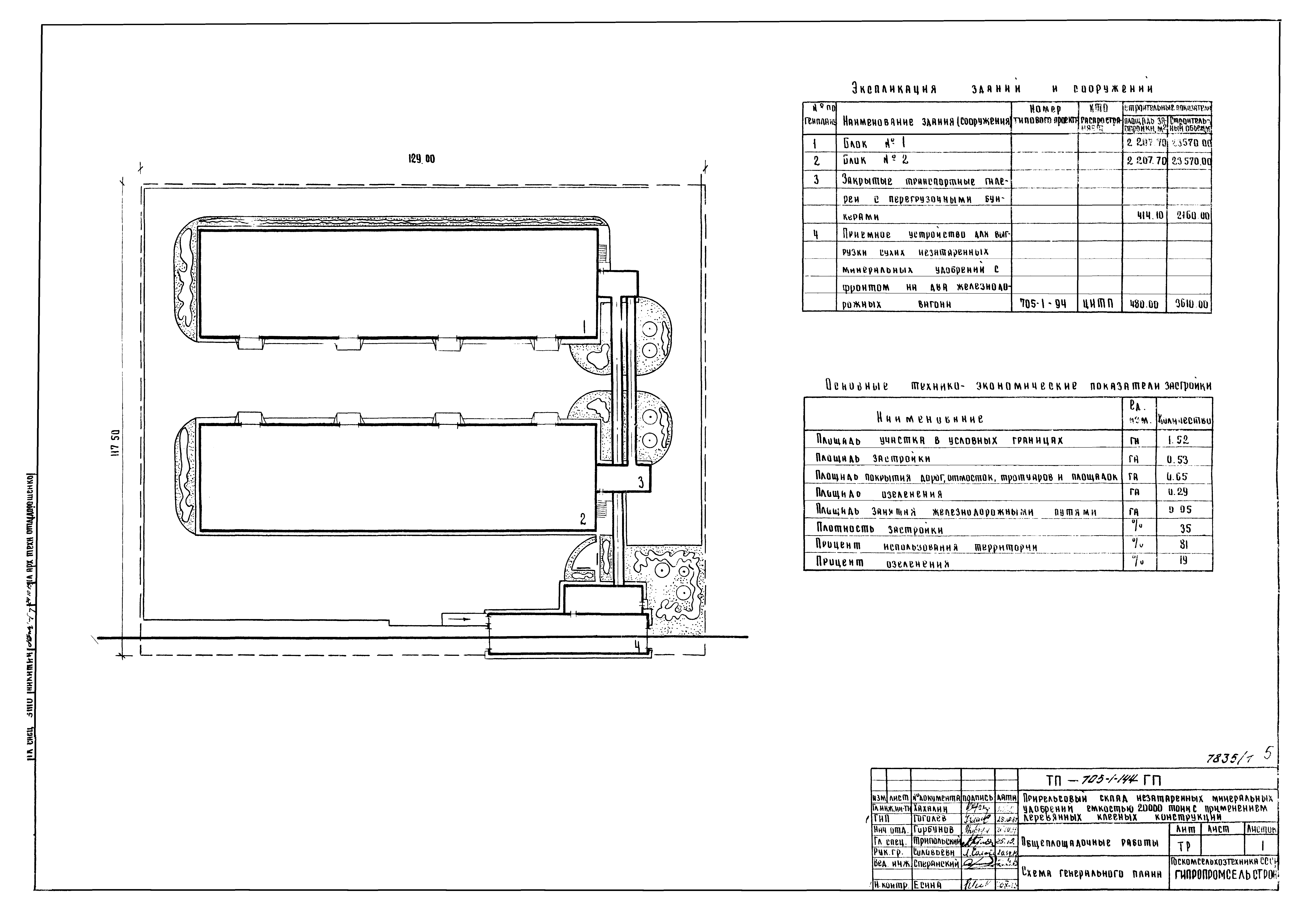
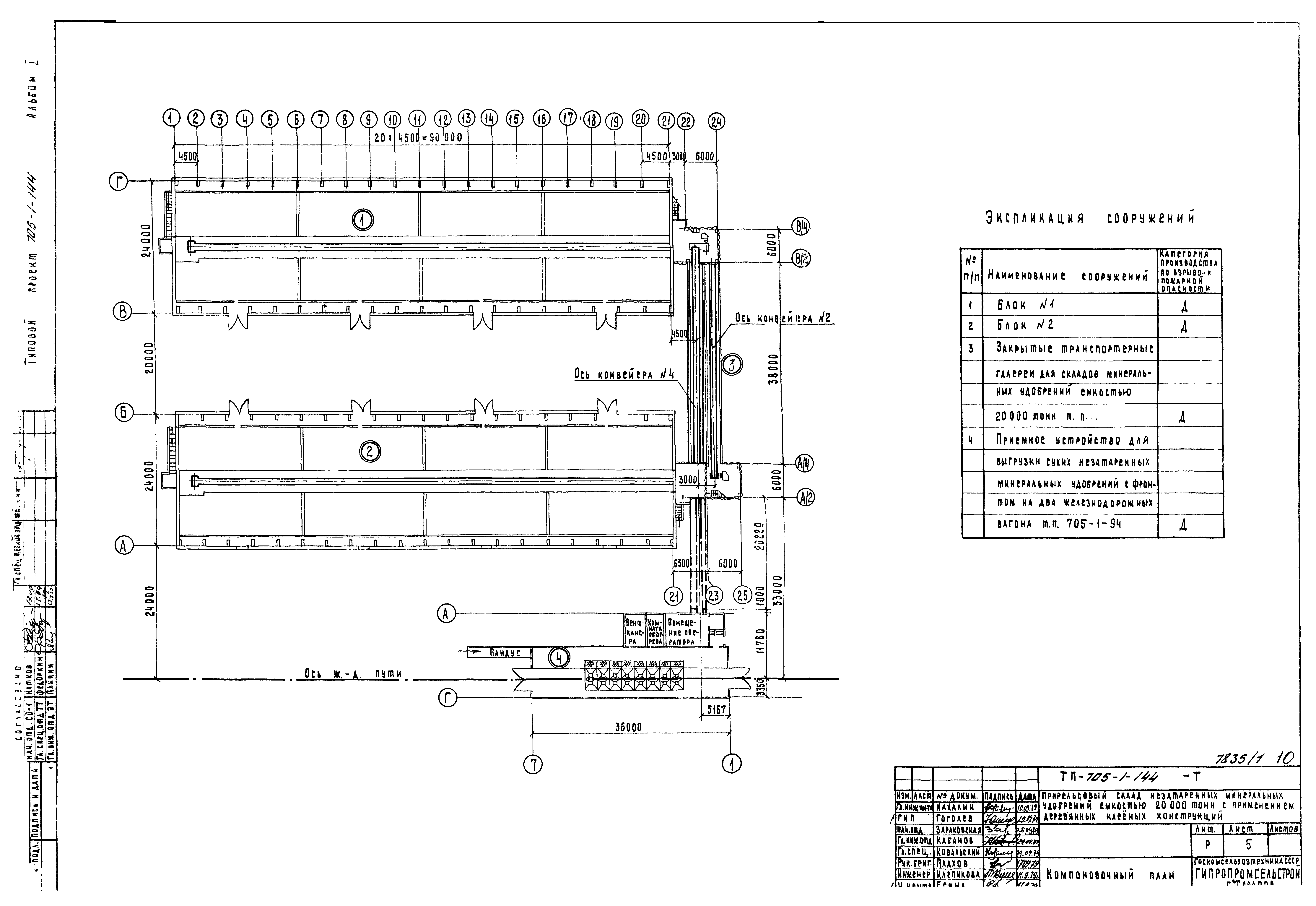
Скачать Типовой проект 705-1-144 Альбом I. Пояснительная записка. Технологические чертежиДата актуализации: 01.01.2021
|
| Обозначение: | Типовой проект 705-1-144 |
| Обозначение англ: | 705-1-144 |
| Статус: | не действует |
| Название рус.: | Альбом I. Пояснительная записка. Технологические чертежи |
| Дата добавления в базу: | 01.09.2013 |
| Дата актуализации: | 01.01.2021 |
| Разработан: | Гипропромсельстрой |
| Утверждён: | 28.09.1979 Госкомсельхозтехника СССР (82) |















