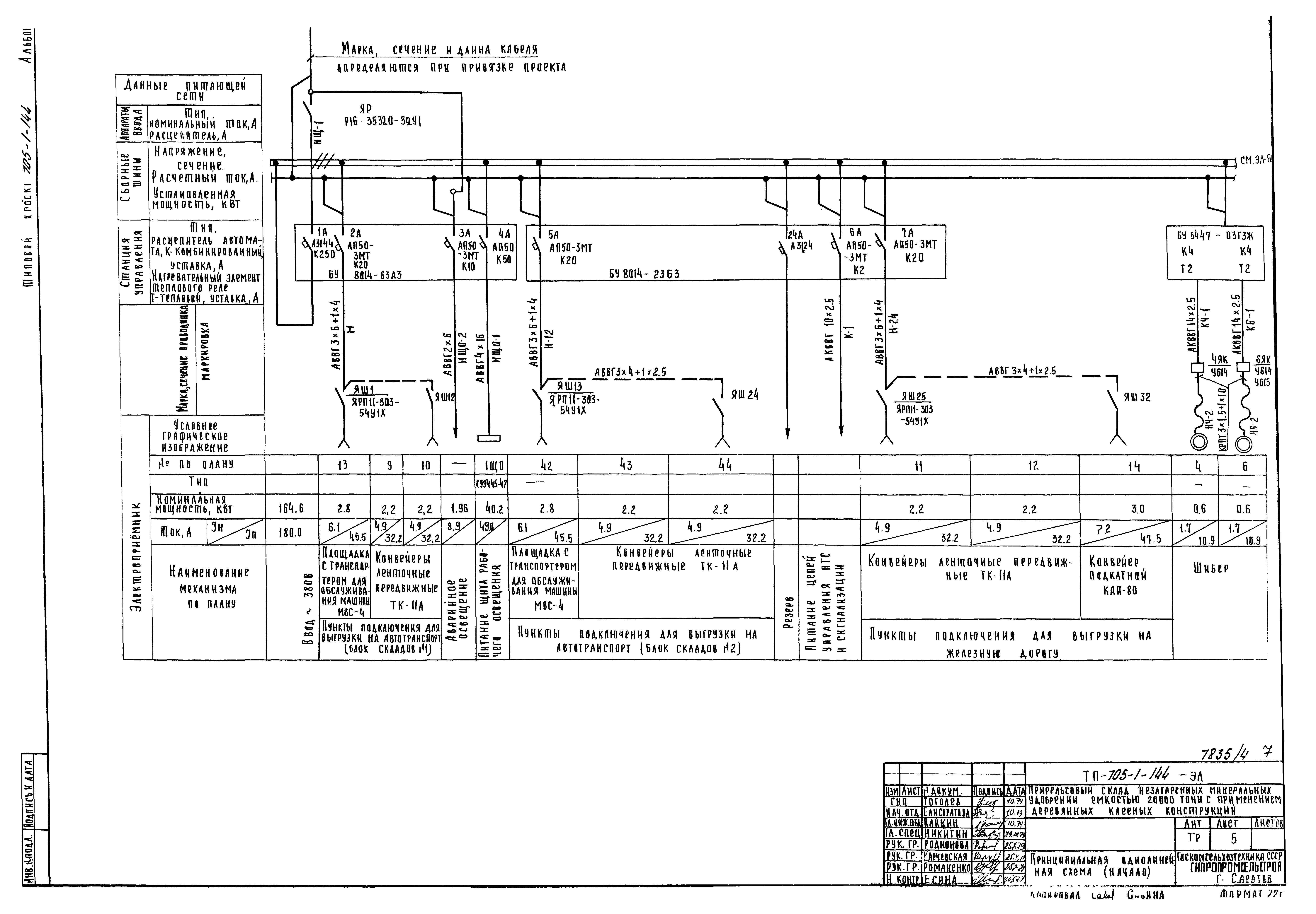
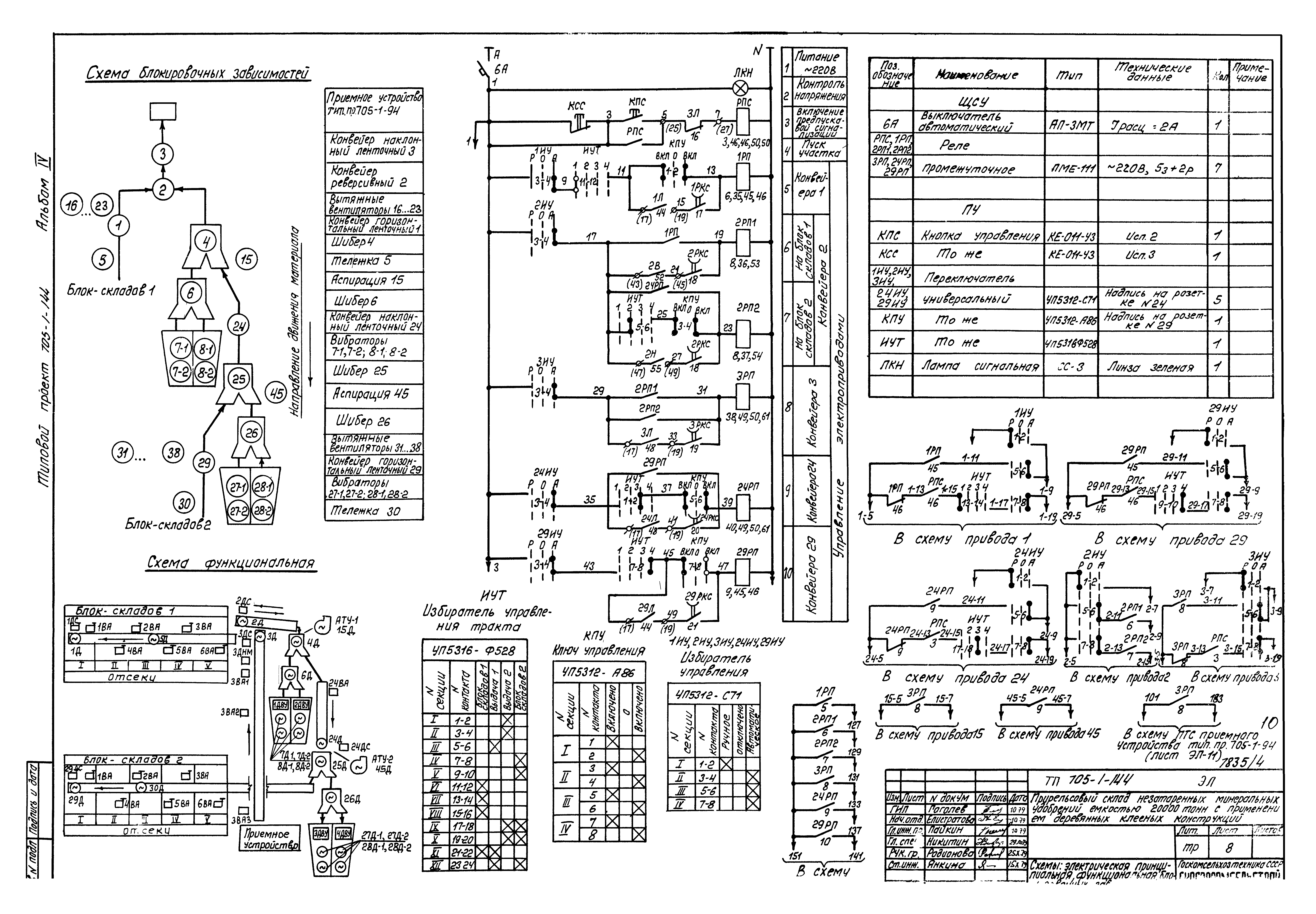
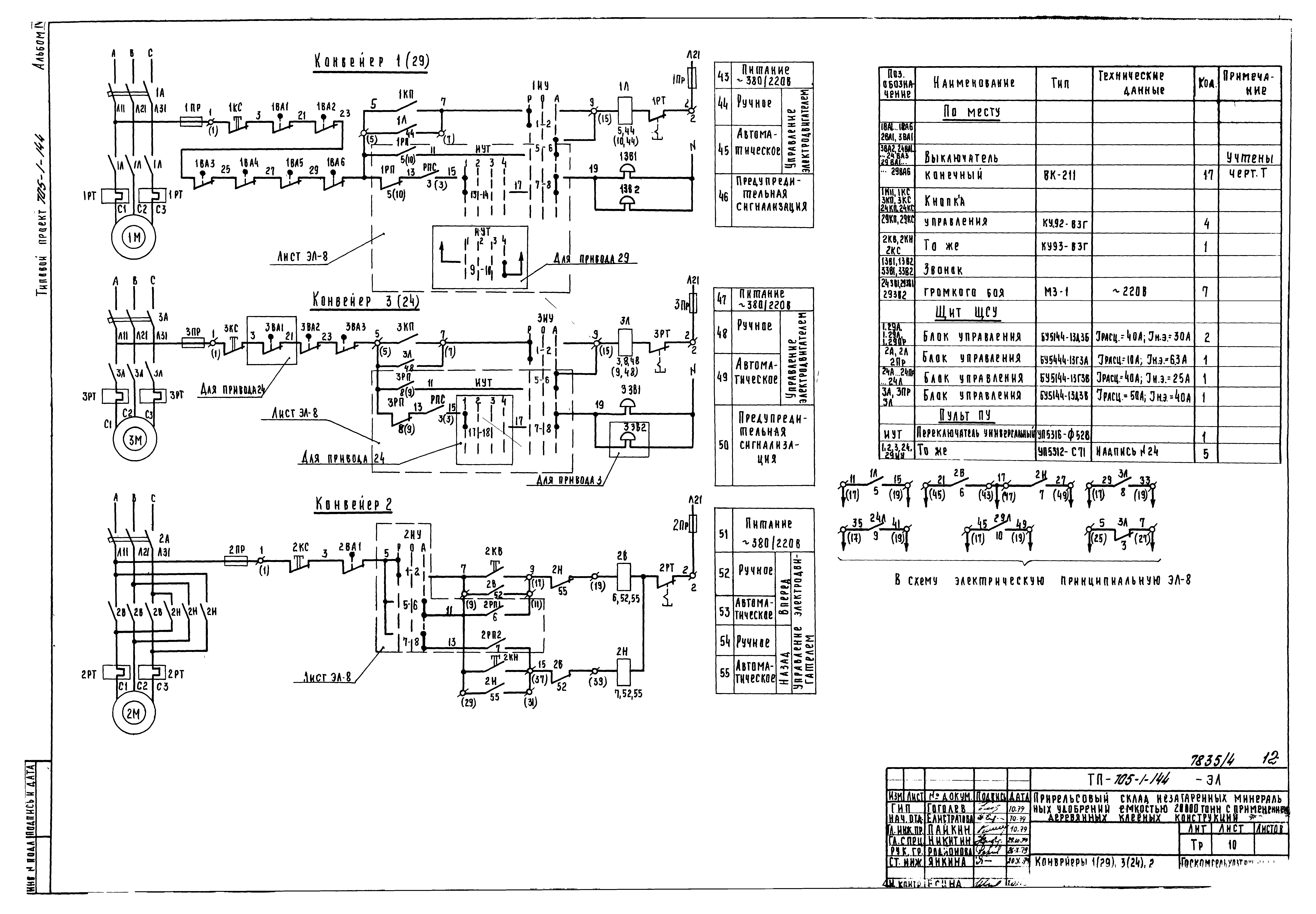
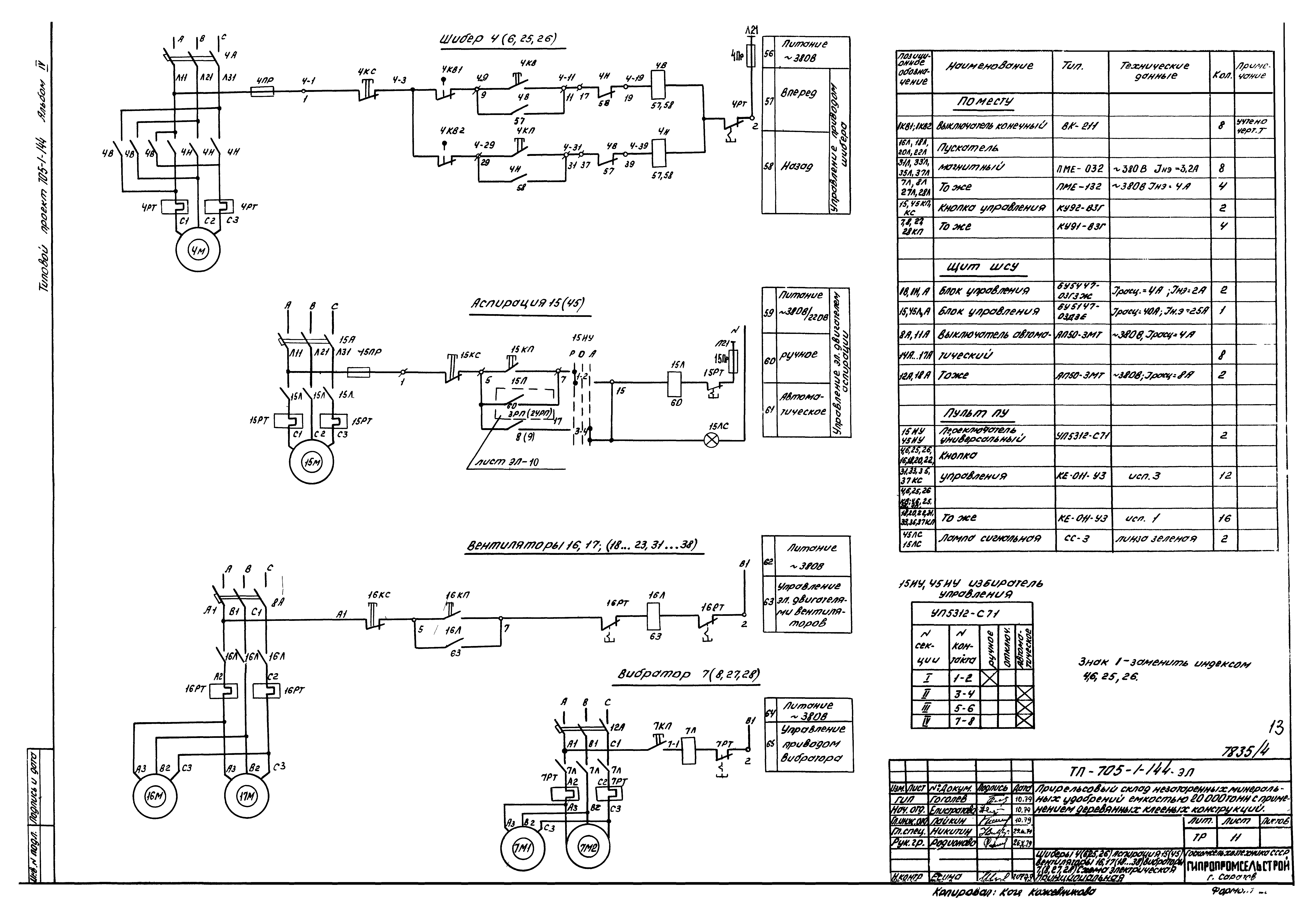
Скачать Типовой проект 705-1-144 Альбом IV. Электротехнические чертежи. Чертежи по связи и сигнализации. Чертежи задания заводу-изготовителюДата актуализации: 01.01.2021 Типовой проект 705-1-144
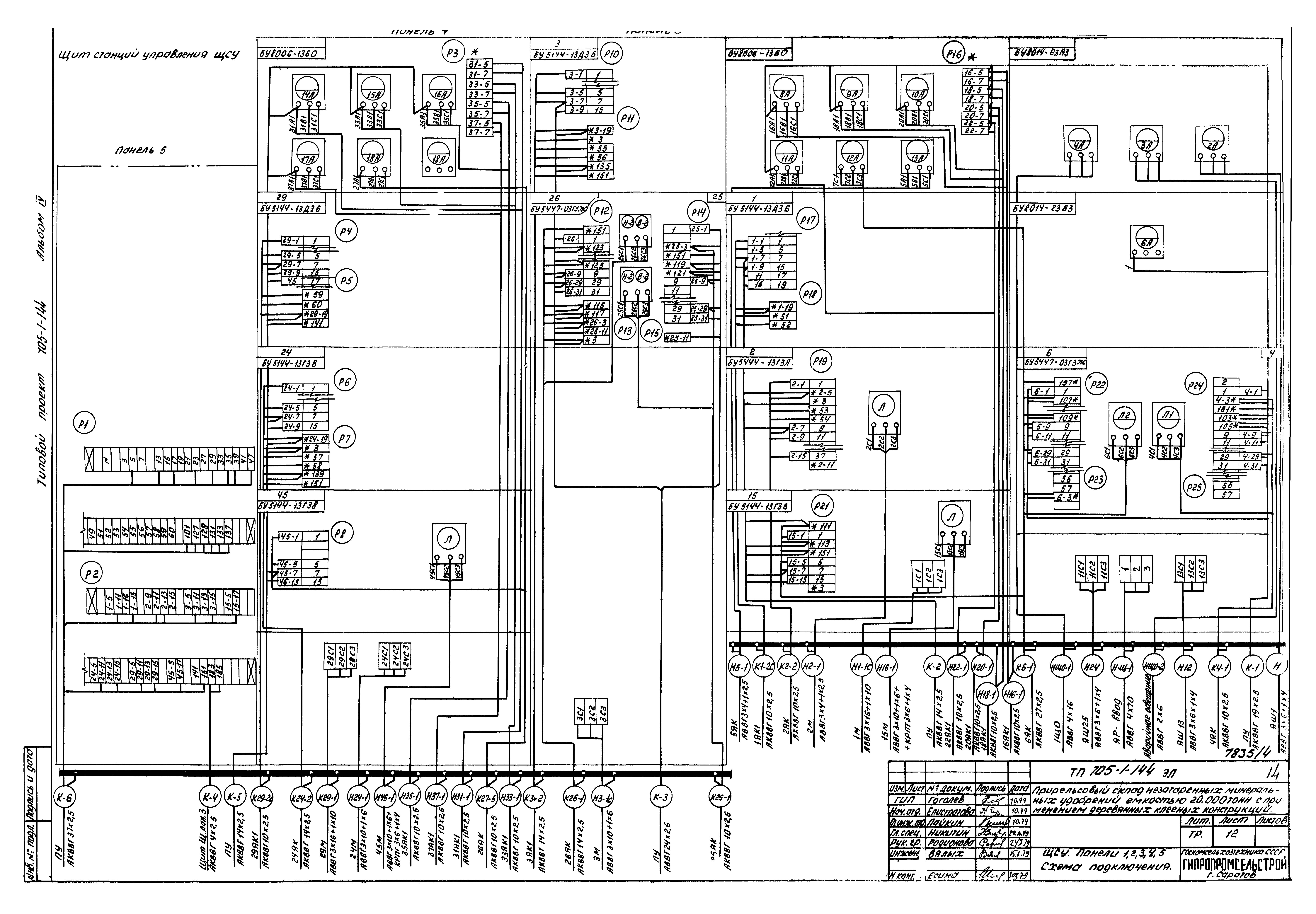
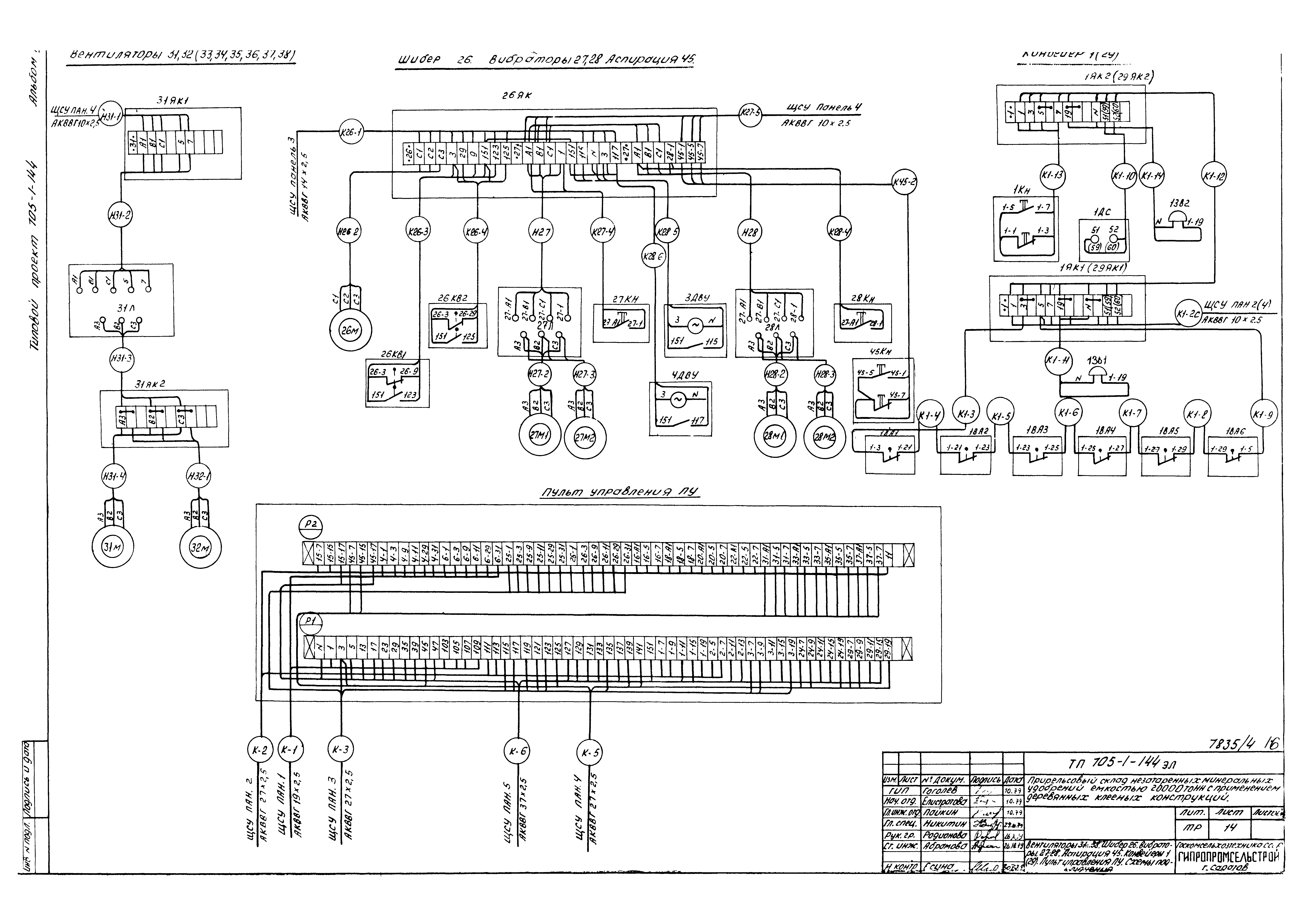
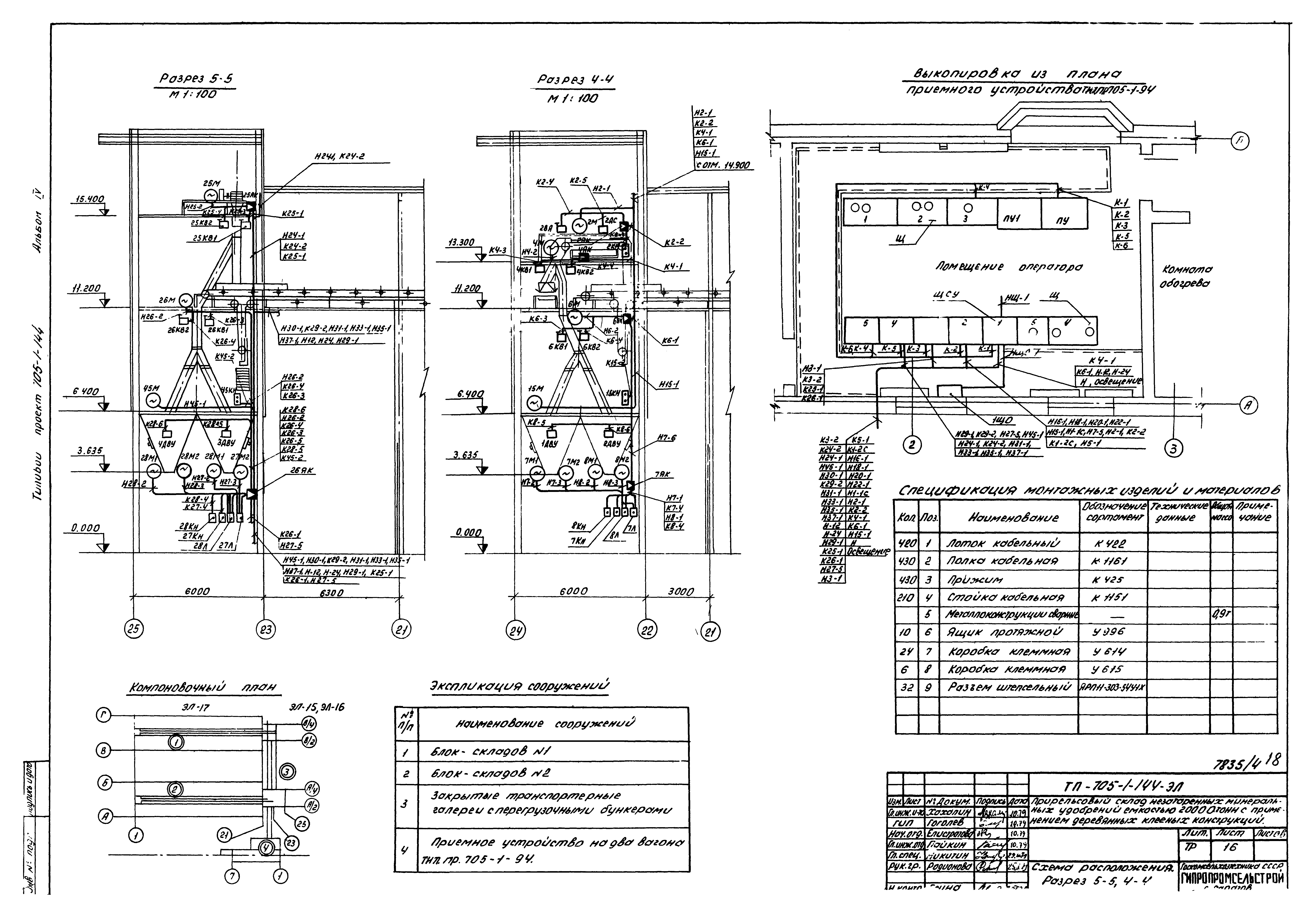
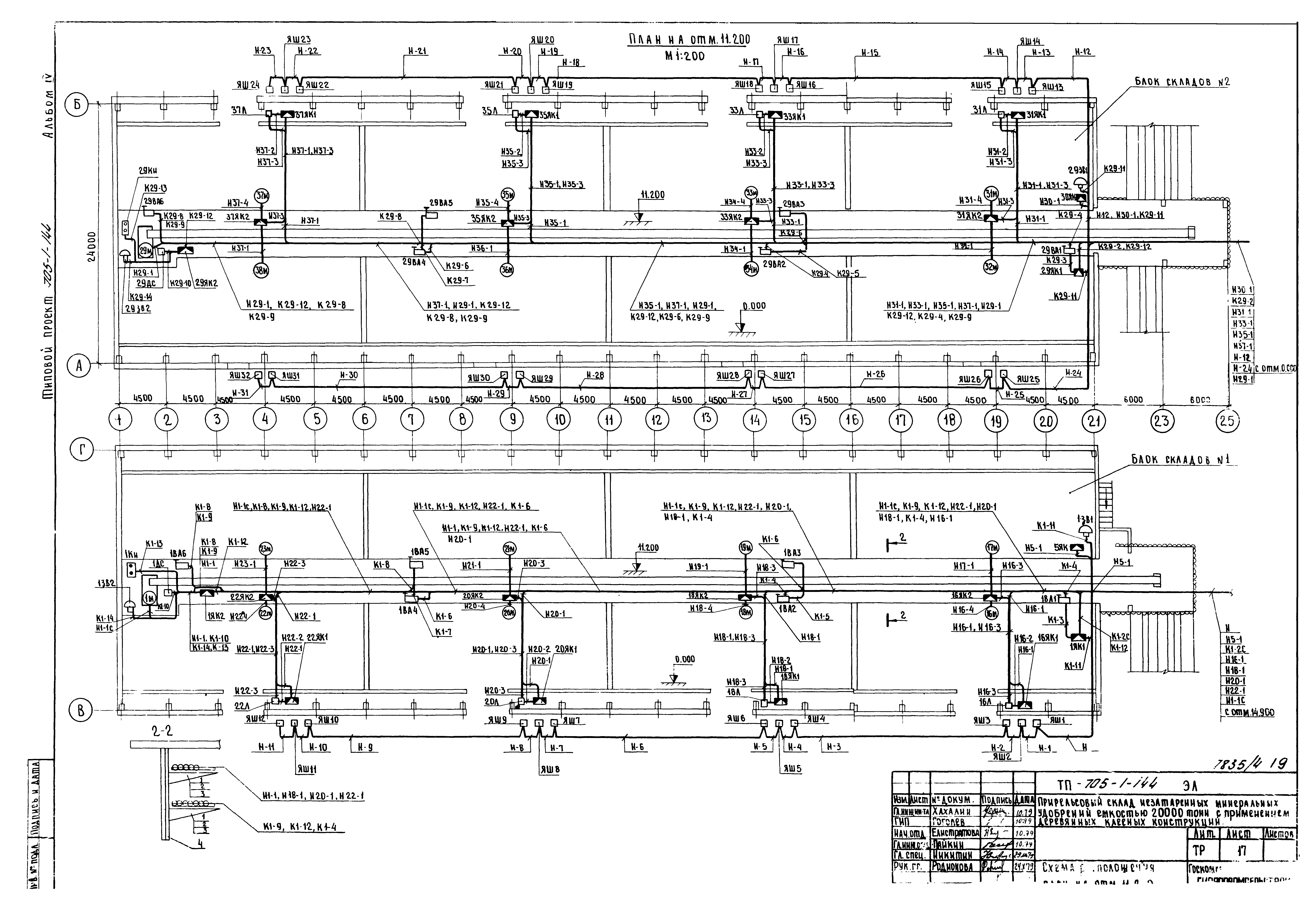
Альбом IV. Электротехнические чертежи. Чертежи по связи и сигнализации. Чертежи задания заводу-изготовителю| Обозначение: | Типовой проект 705-1-144 | | Обозначение англ: | 705-1-144 | | Статус: | не действует | | Название рус.: | Альбом IV. Электротехнические чертежи. Чертежи по связи и сигнализации. Чертежи задания заводу-изготовителю | | Дата добавления в базу: | 01.09.2013 | | Дата актуализации: | 01.01.2021 | | Разработан: | Гипропромсельстрой
| | Утверждён: | 28.09.1979 Госкомсельхозтехника СССР (82)
|
                                    
|