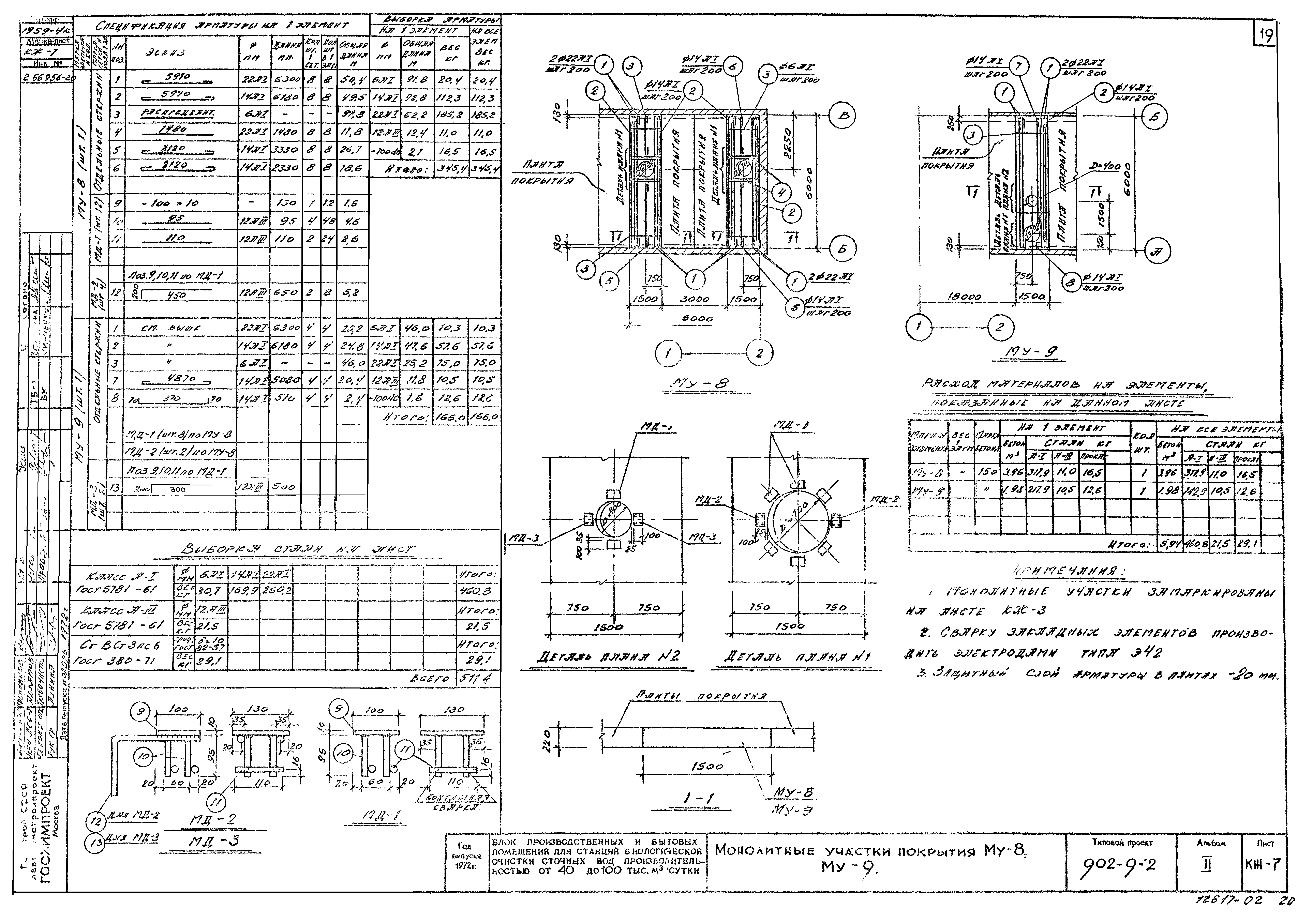
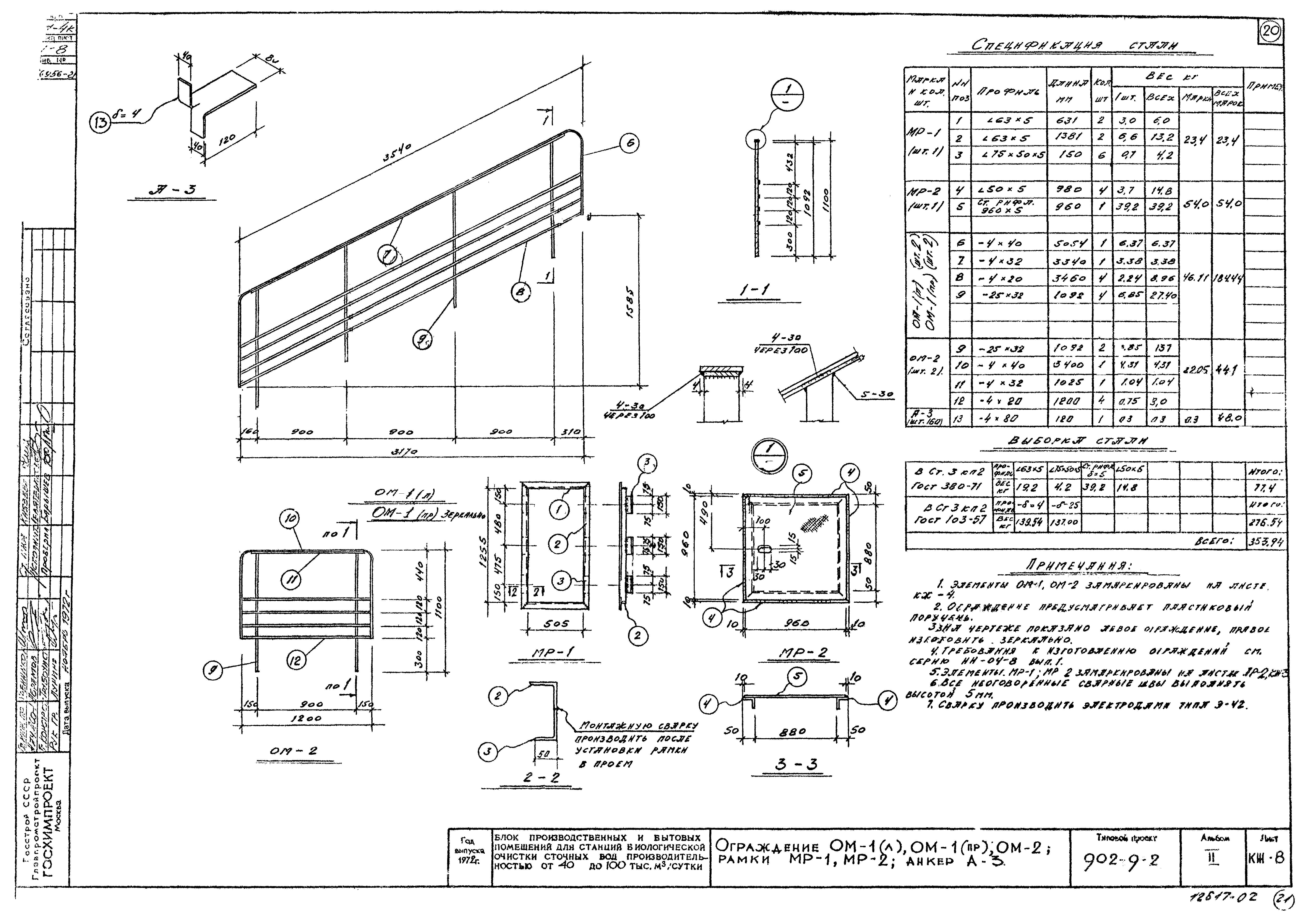
Скачать Типовой проект 902-9-2 Альбом II. Архитектурно-строительная часть (вариант - стены кирпичные)Дата актуализации: 01.01.2021 Типовой проект 902-9-2
Альбом II. Архитектурно-строительная часть (вариант - стены кирпичные)| Обозначение: | Типовой проект 902-9-2 | | Обозначение англ: | 902-9-2 | | Статус: | действует | | Название рус.: | Альбом II. Архитектурно-строительная часть (вариант - стены кирпичные) | | Дата добавления в базу: | 01.09.2013 | | Дата актуализации: | 01.01.2021 | | Дата введения: | 20.11.1973 | | Разработан: | Госхимпроект
| | Утверждён: | 19.11.1973 СоюзводоканалНИИпроект (SoyuzvodokanalNIIproject 249)
|
                    
|