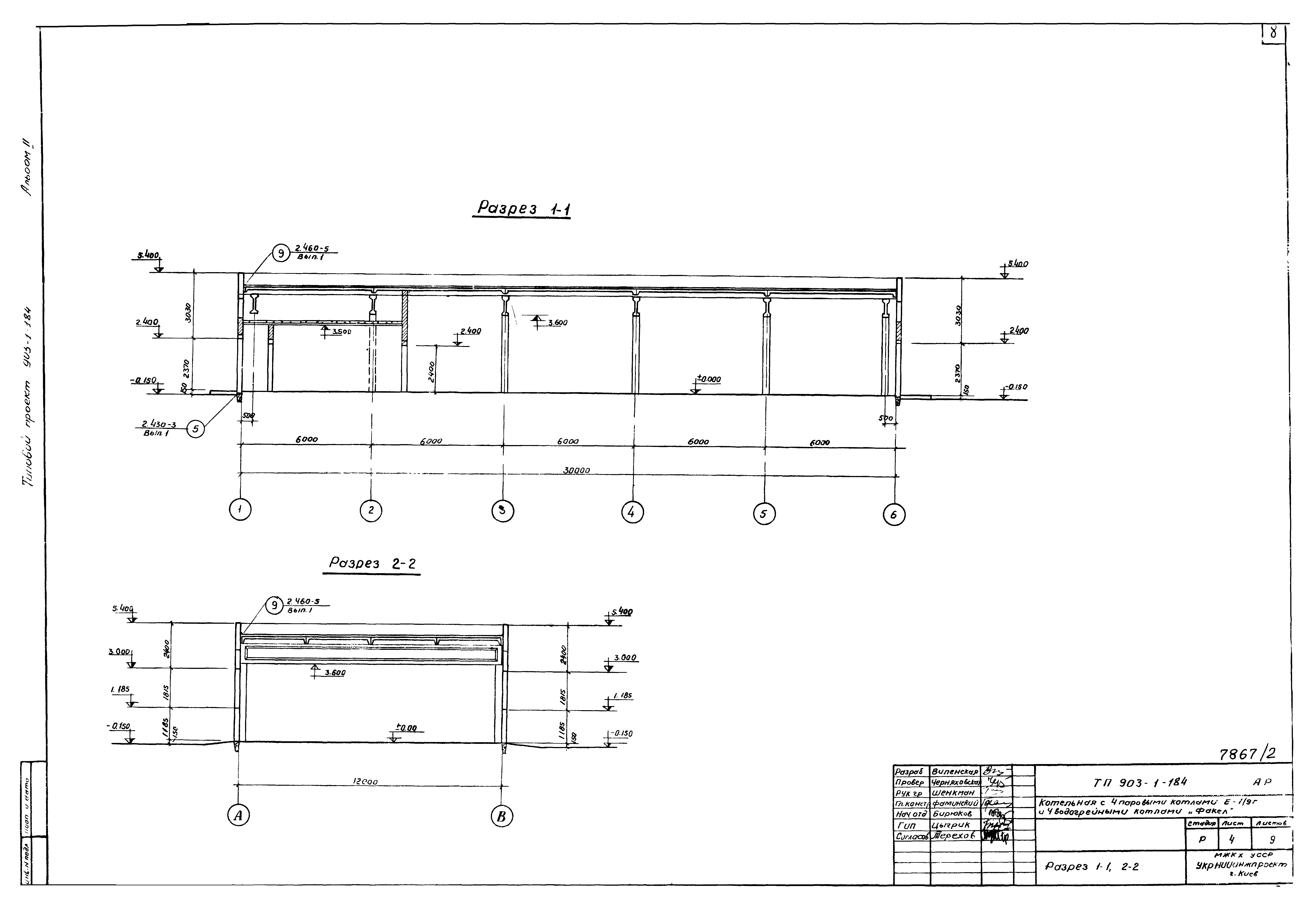
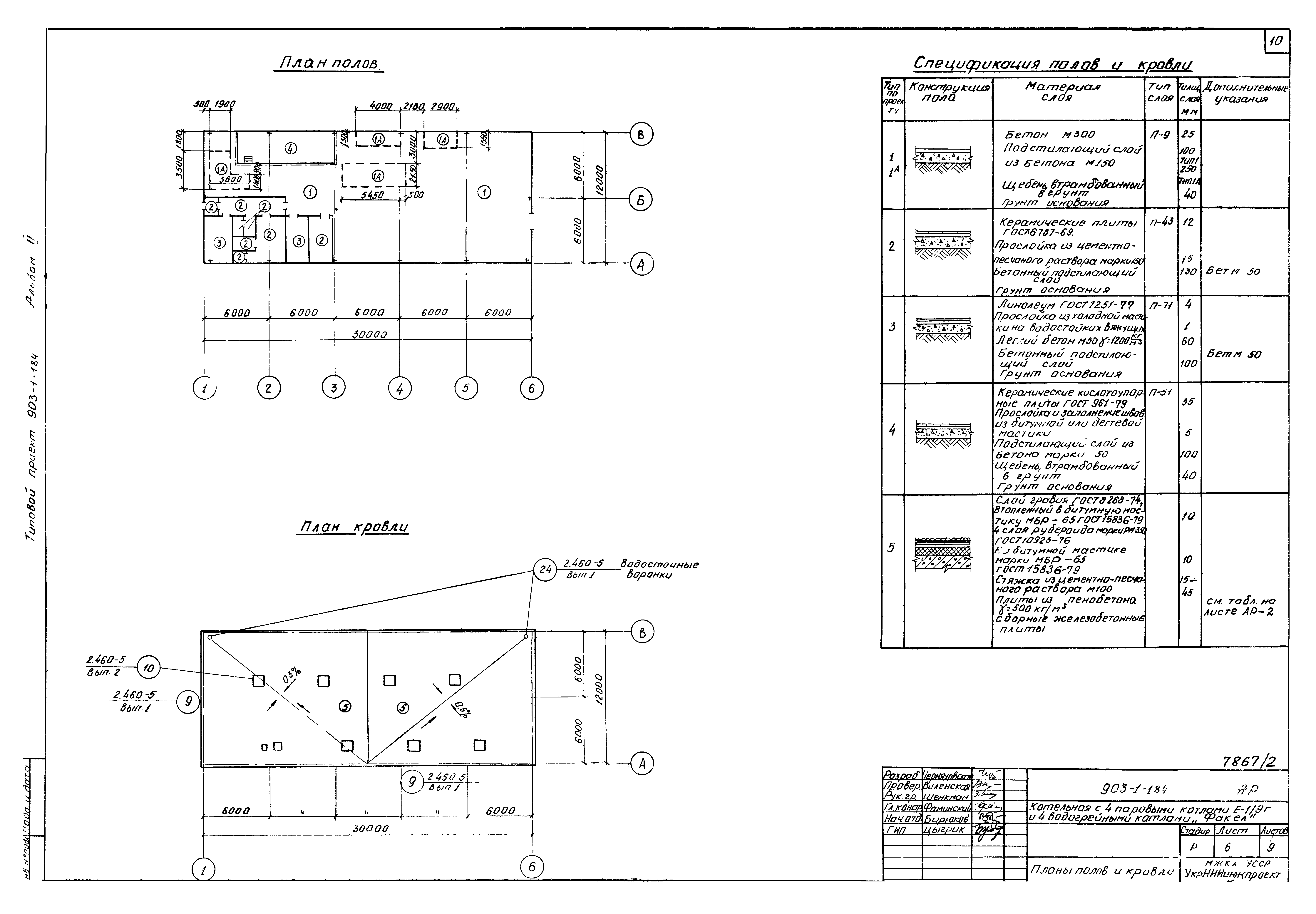
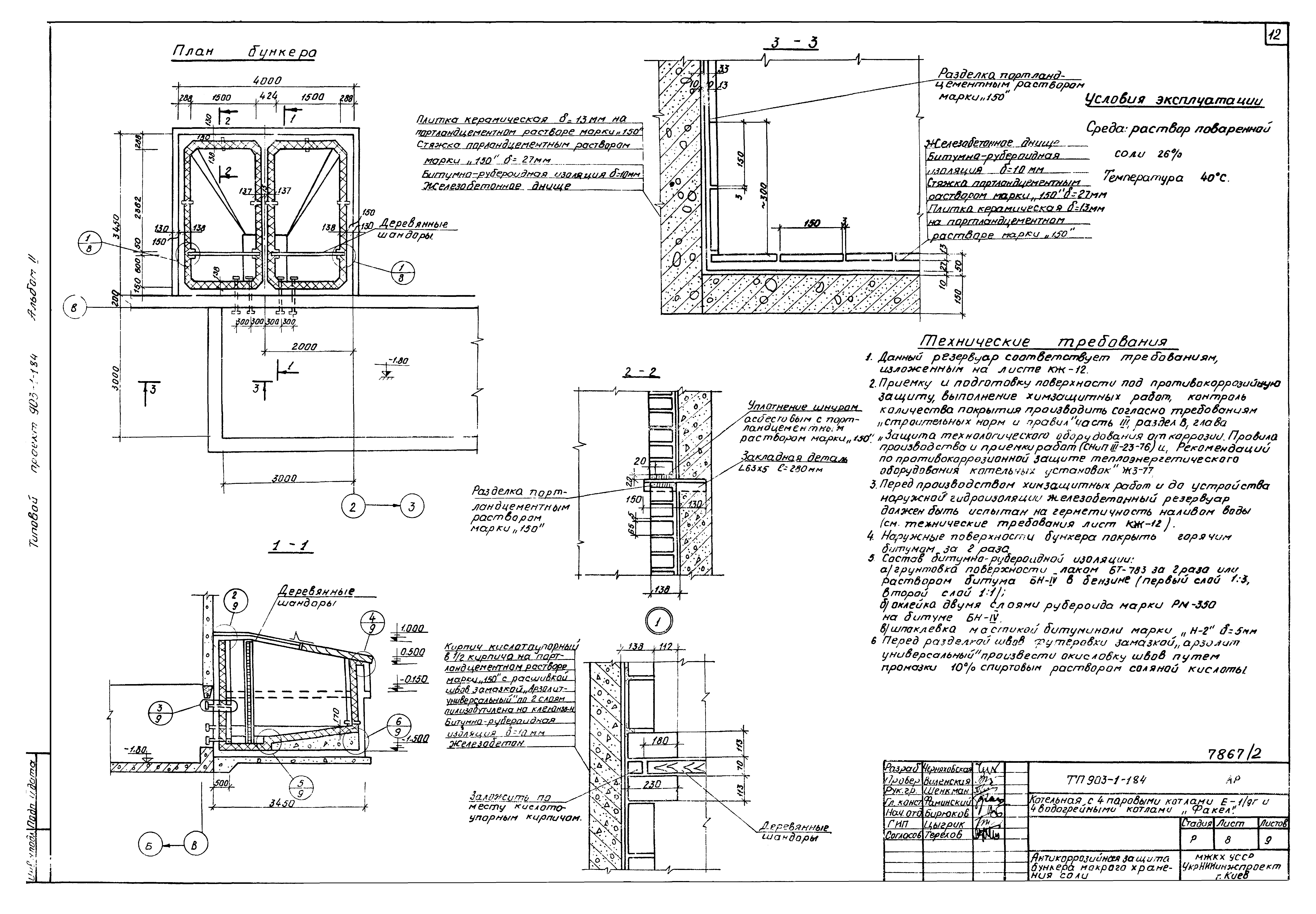
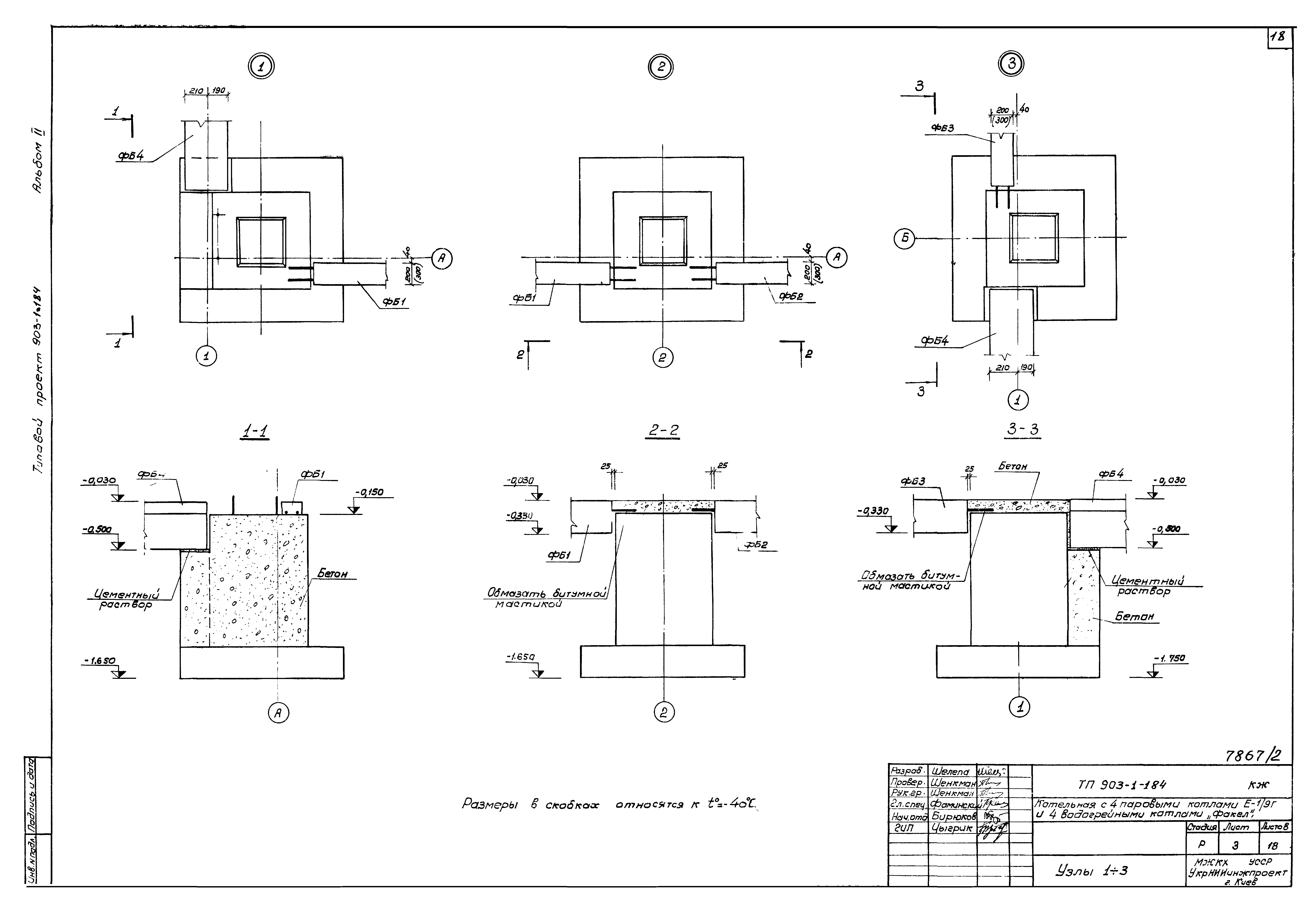
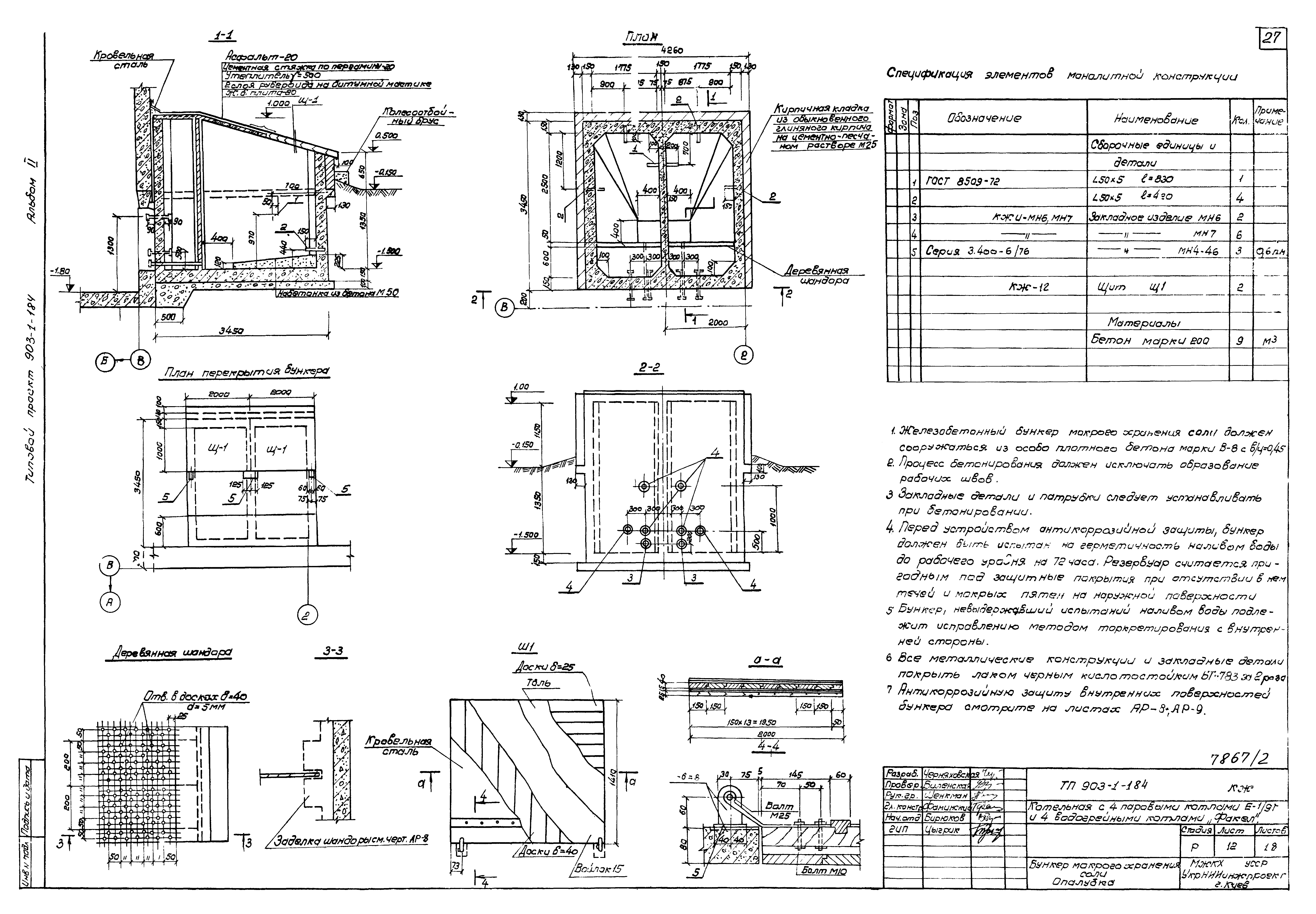
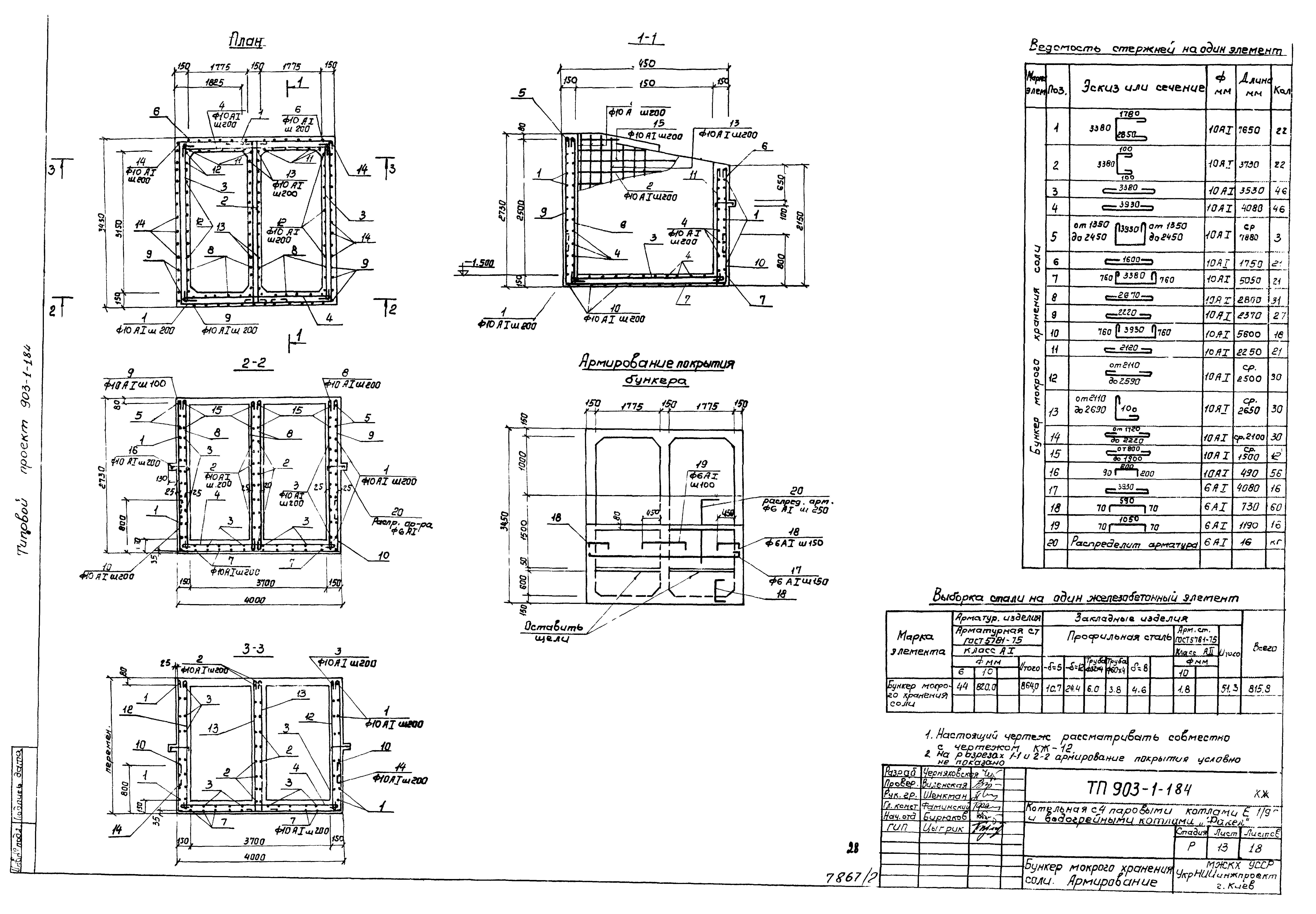
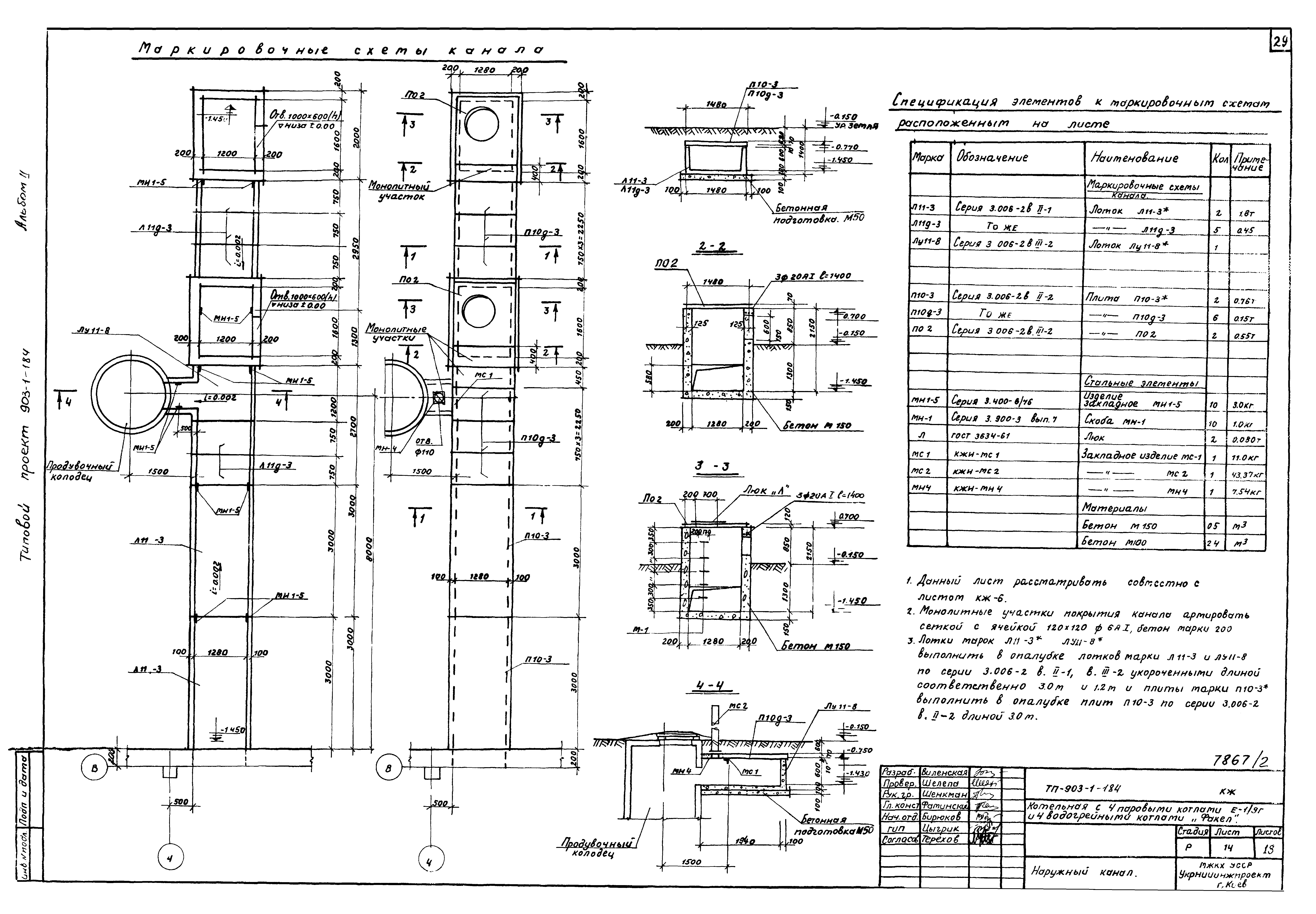
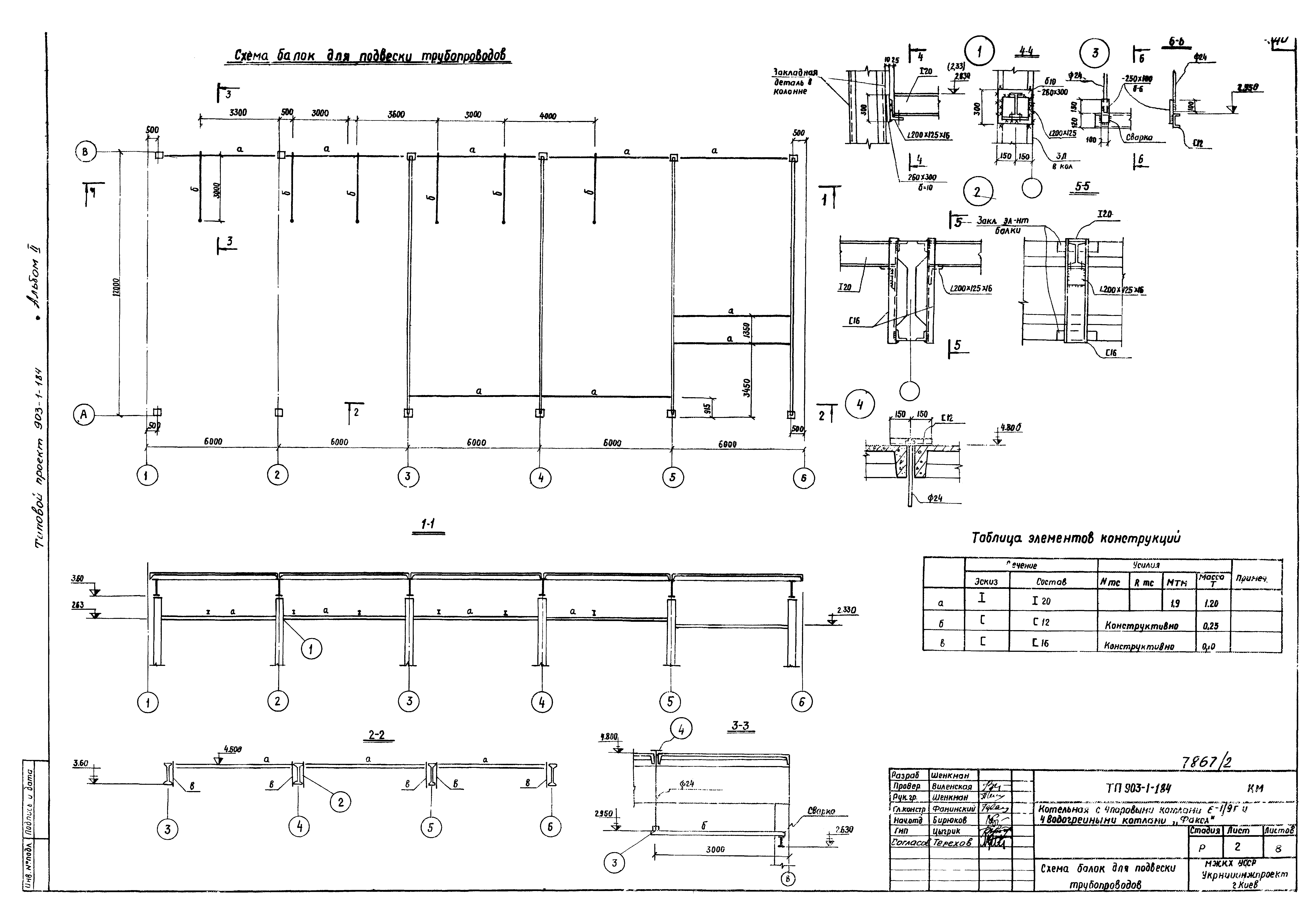
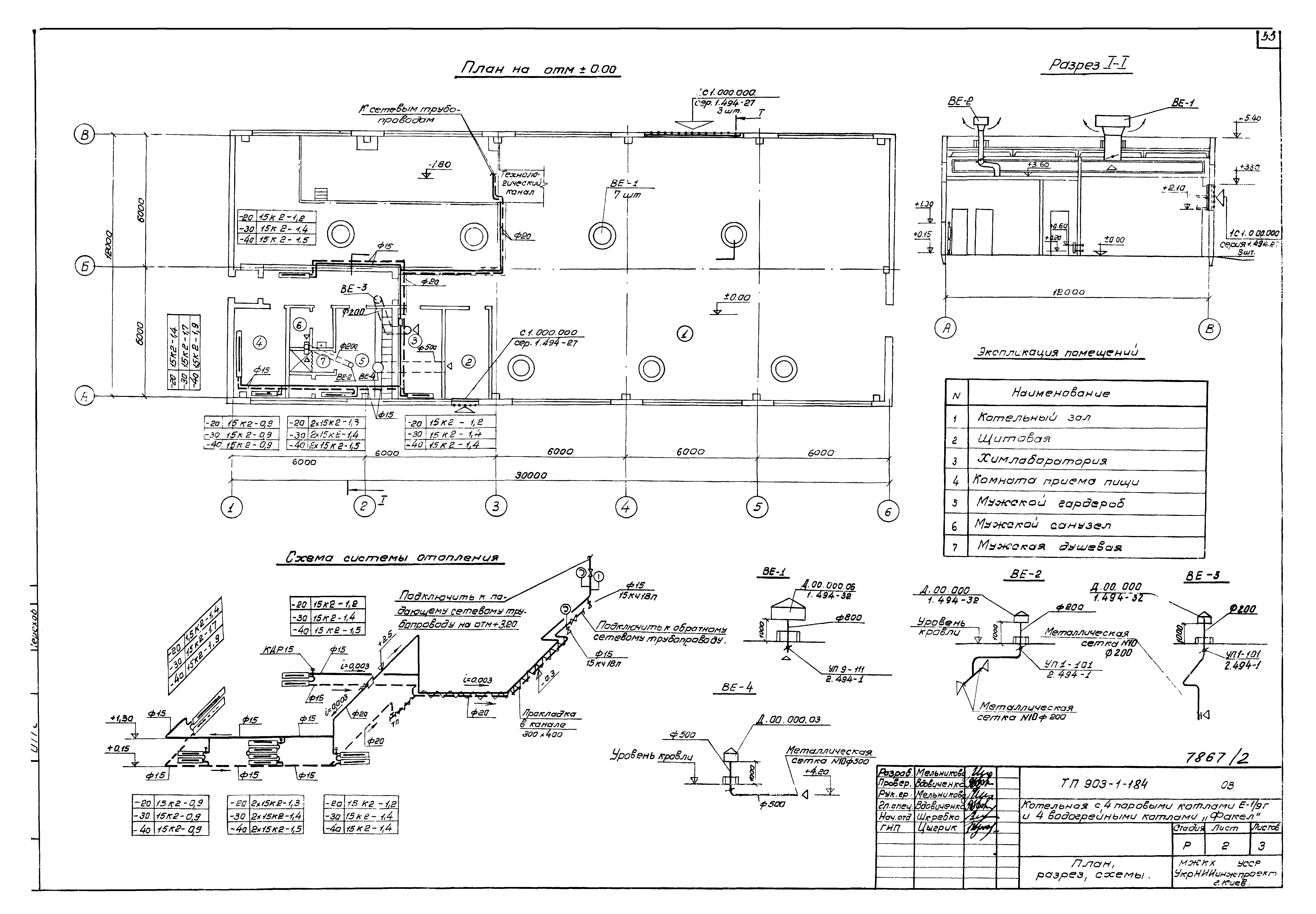
Скачать Типовой проект 903-1-184 Альбом II. Архитектурно-строительная и санитарно-техническая частиДата актуализации: 01.01.2021 Типовой проект 903-1-184
Альбом II. Архитектурно-строительная и санитарно-техническая части| Обозначение: | Типовой проект 903-1-184 | | Обозначение англ: | 903-1-184 | | Статус: | не действует | | Название рус.: | Альбом II. Архитектурно-строительная и санитарно-техническая части | | Дата добавления в базу: | 01.09.2013 | | Дата актуализации: | 01.01.2021 | | Разработан: | УкрНИИинжпроект Минжилкомхоза УССР
| | Утверждён: | 11.04.1980 Институт УкрНИИинжпроект (51)
|
                                                     
|