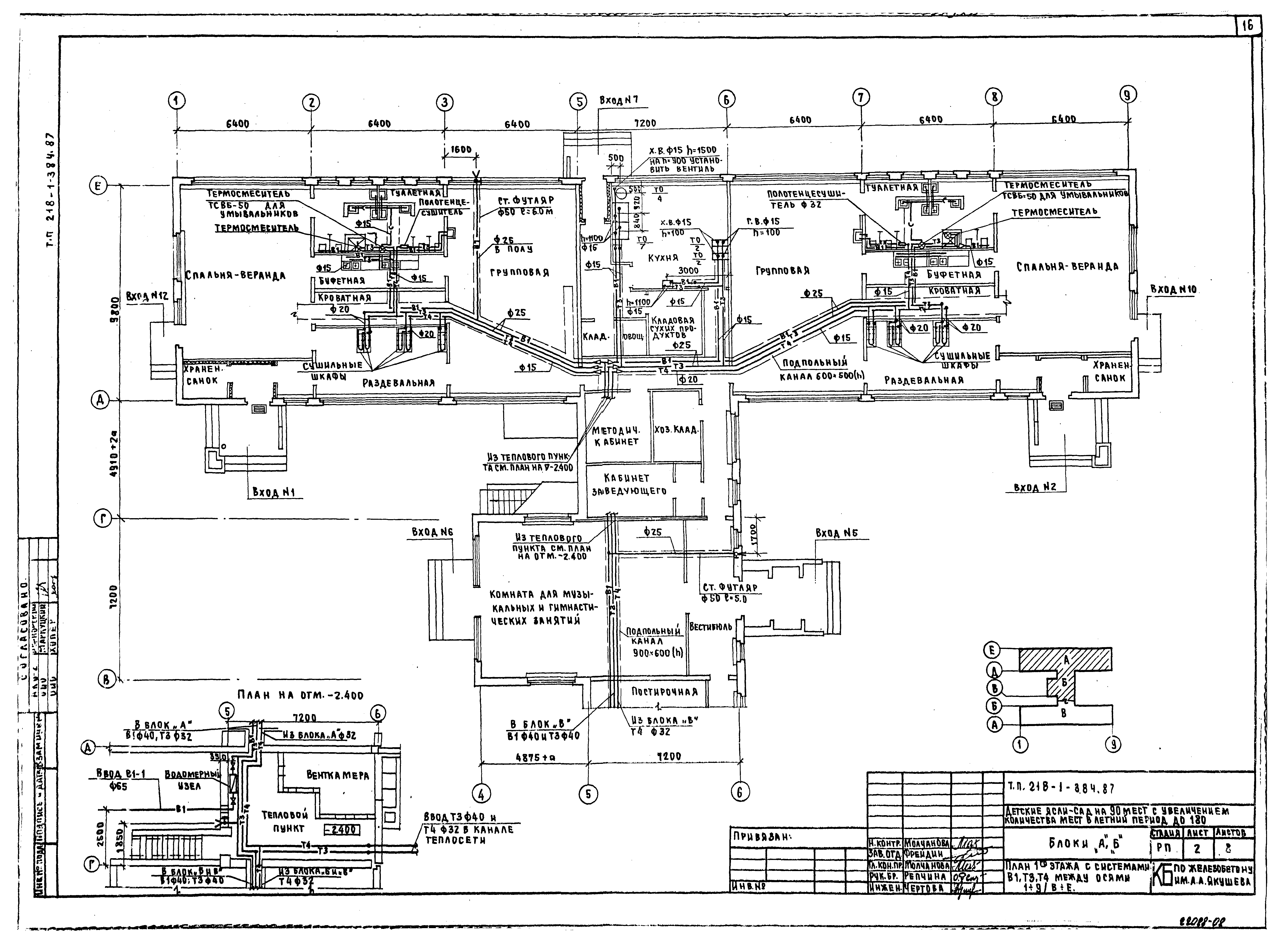
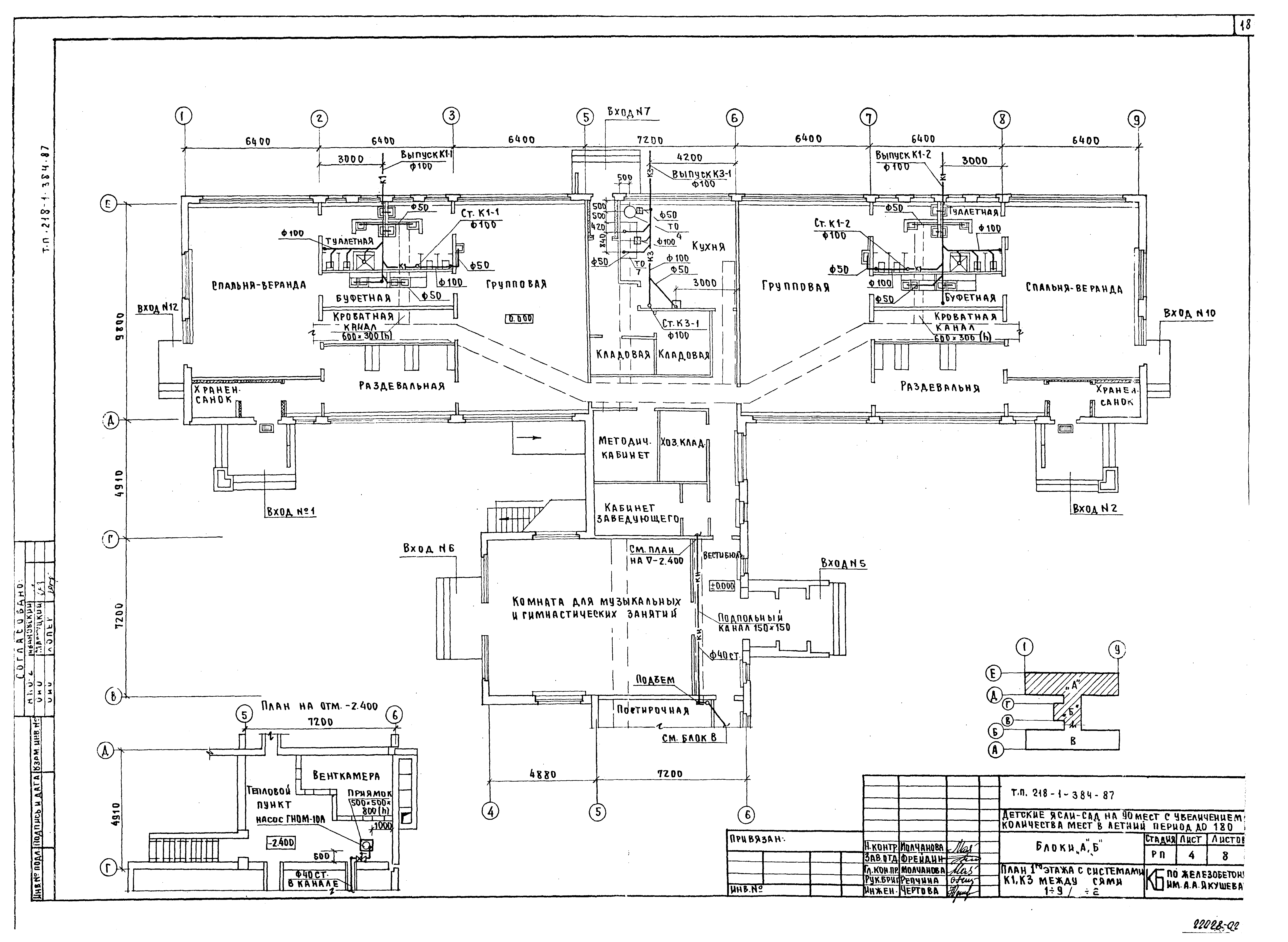
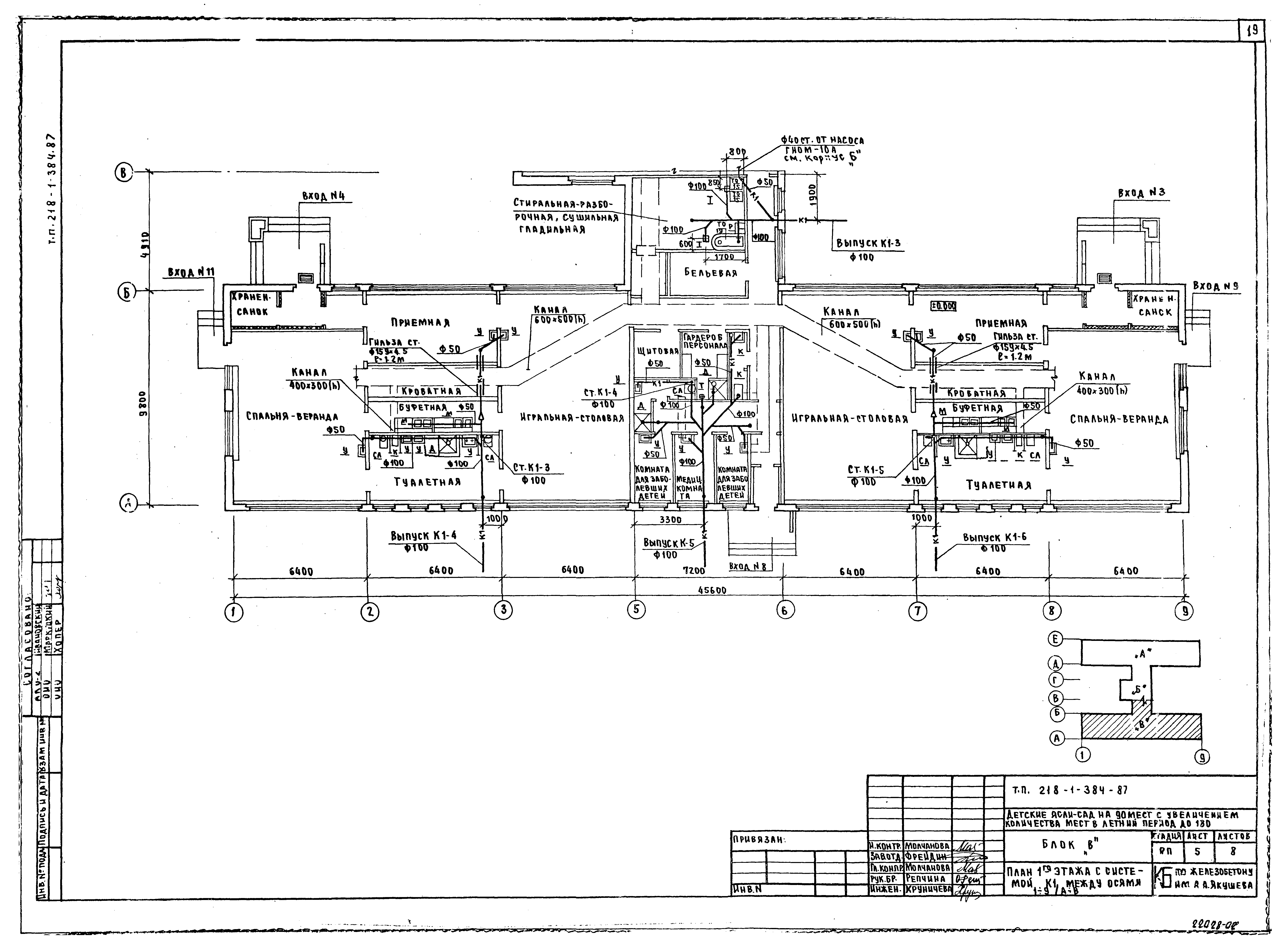
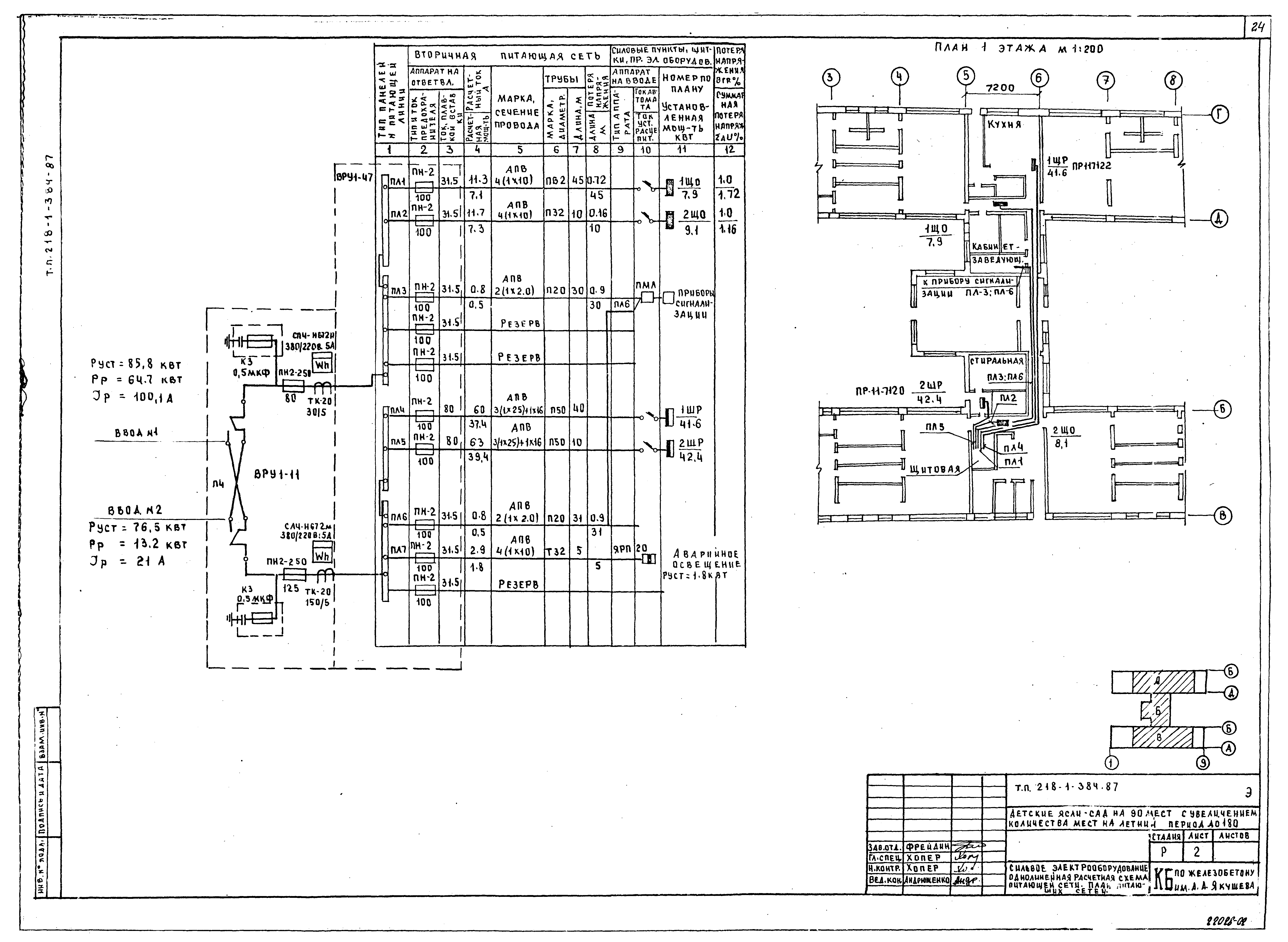
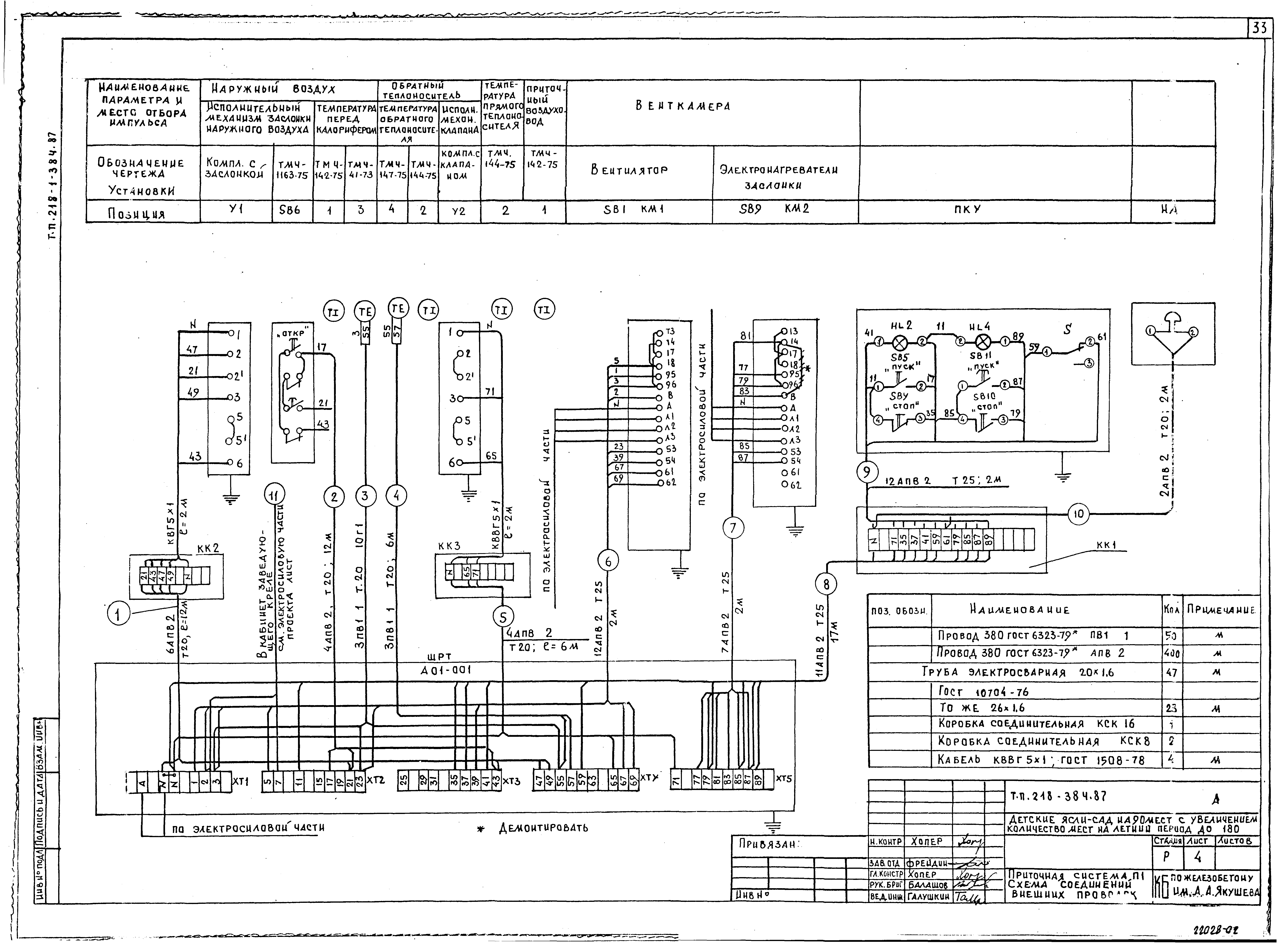
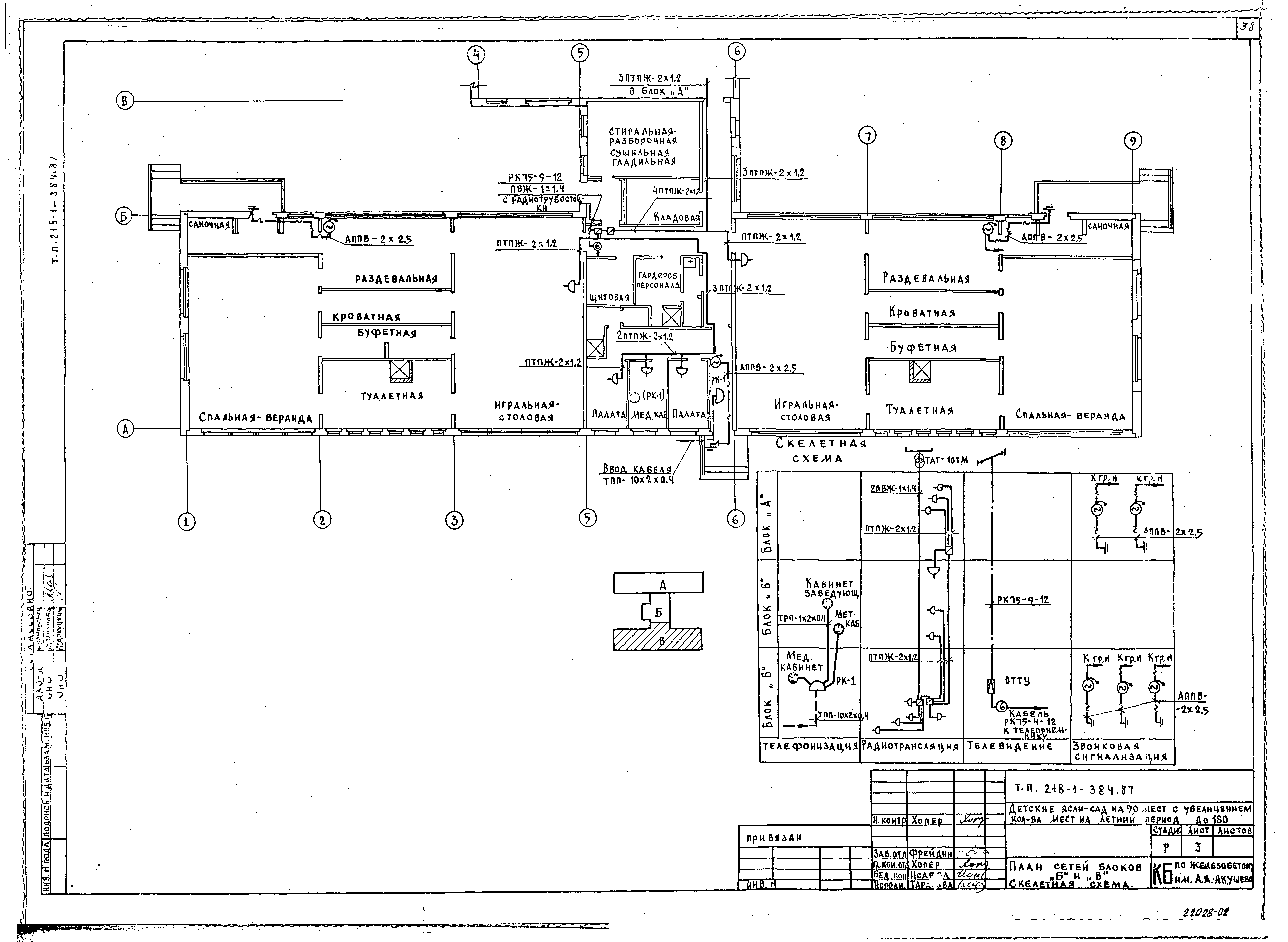
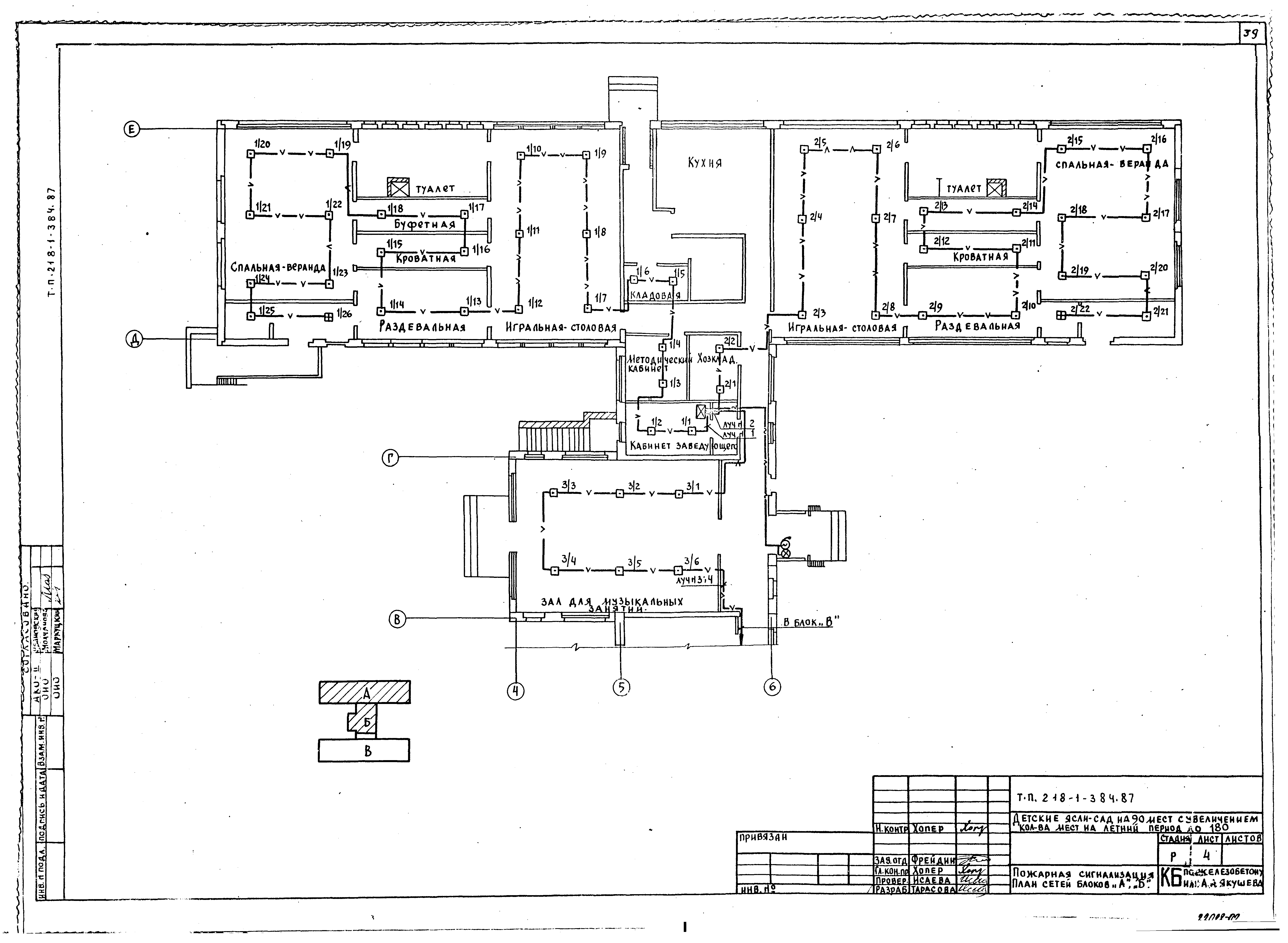
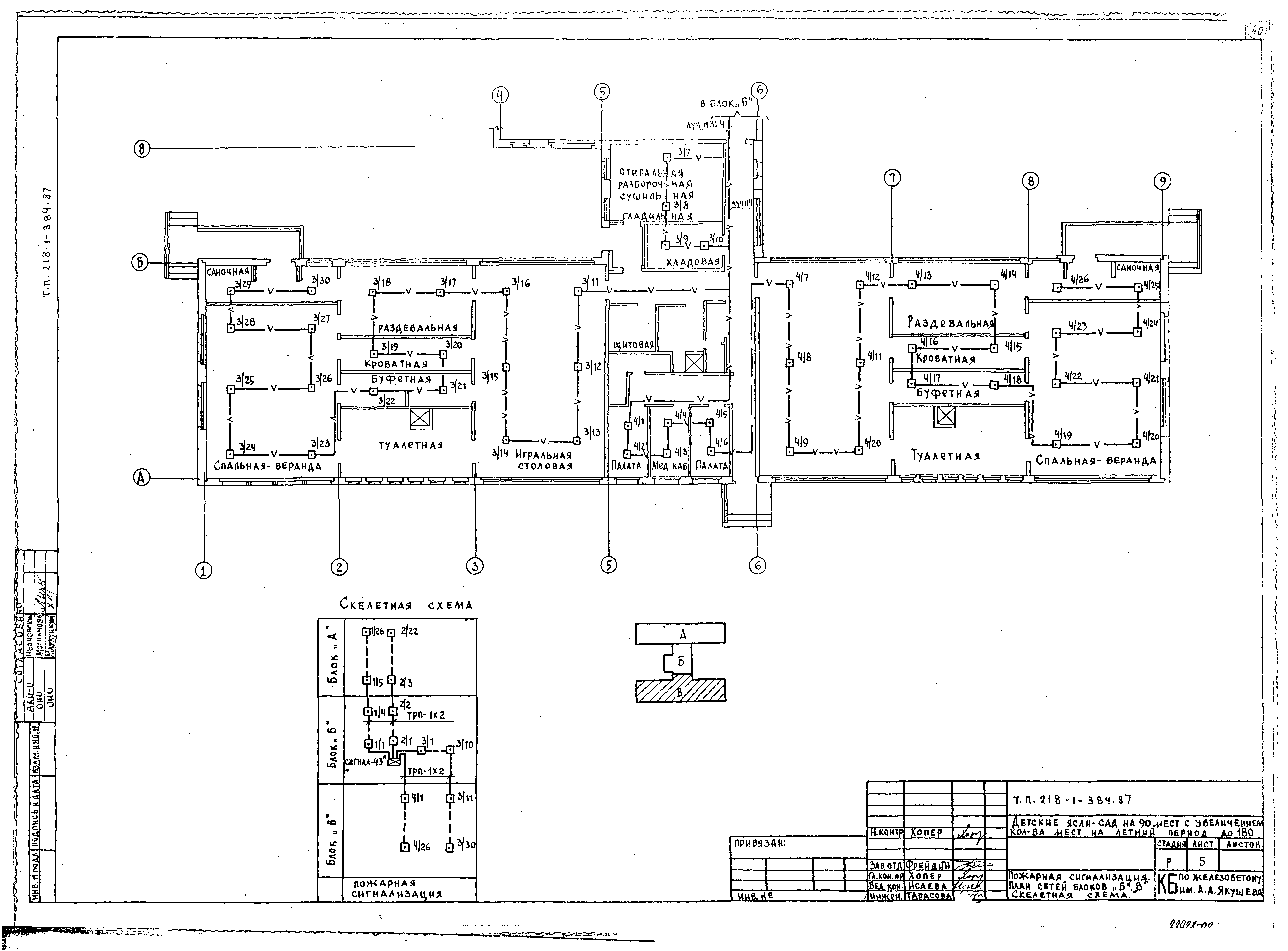
Скачать Типовой проект 218-1-384.87 Альбом II. Санитарно-технические и электротехнические чертежиДата актуализации: 01.01.2021
|
| Обозначение: | Типовой проект 218-1-384.87 |
| Обозначение англ: | 218-1-384.87 |
| Статус: | не определен законодательством |
| Название рус.: | Альбом II. Санитарно-технические и электротехнические чертежи |
| Дата добавления в базу: | 01.09.2013 |
| Дата актуализации: | 01.01.2021 |
| Дата введения: | 19.11.1986 |
| Дата окончания срока действия: | 30.06.2003 |
| Разработан: | КБ по железобетону им. А.А. Якушева |
| Утверждён: | 19.02.1986 Госстрой РСФСР (Russian Federation Gosstroy 17-12/1492) |









































