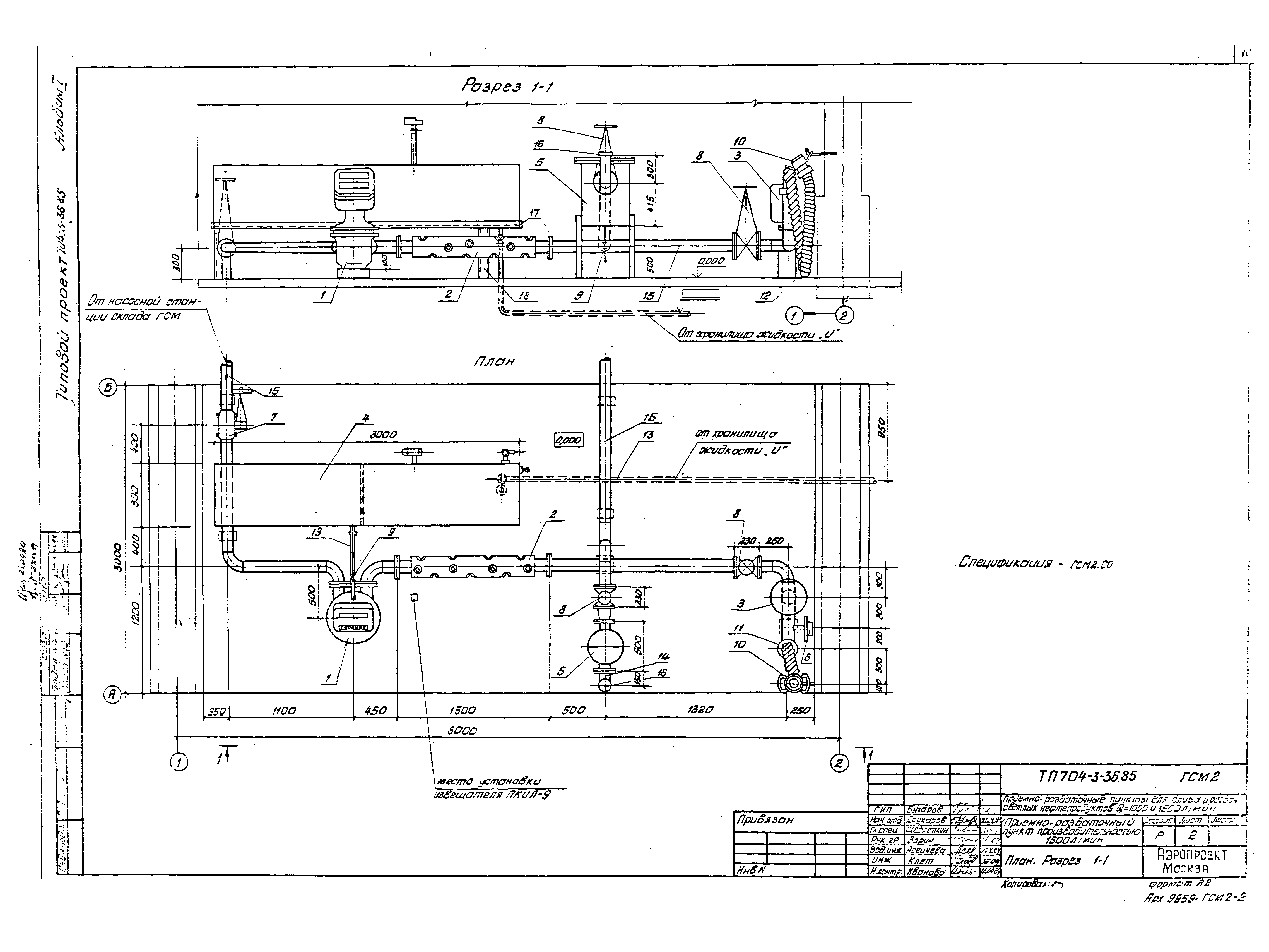
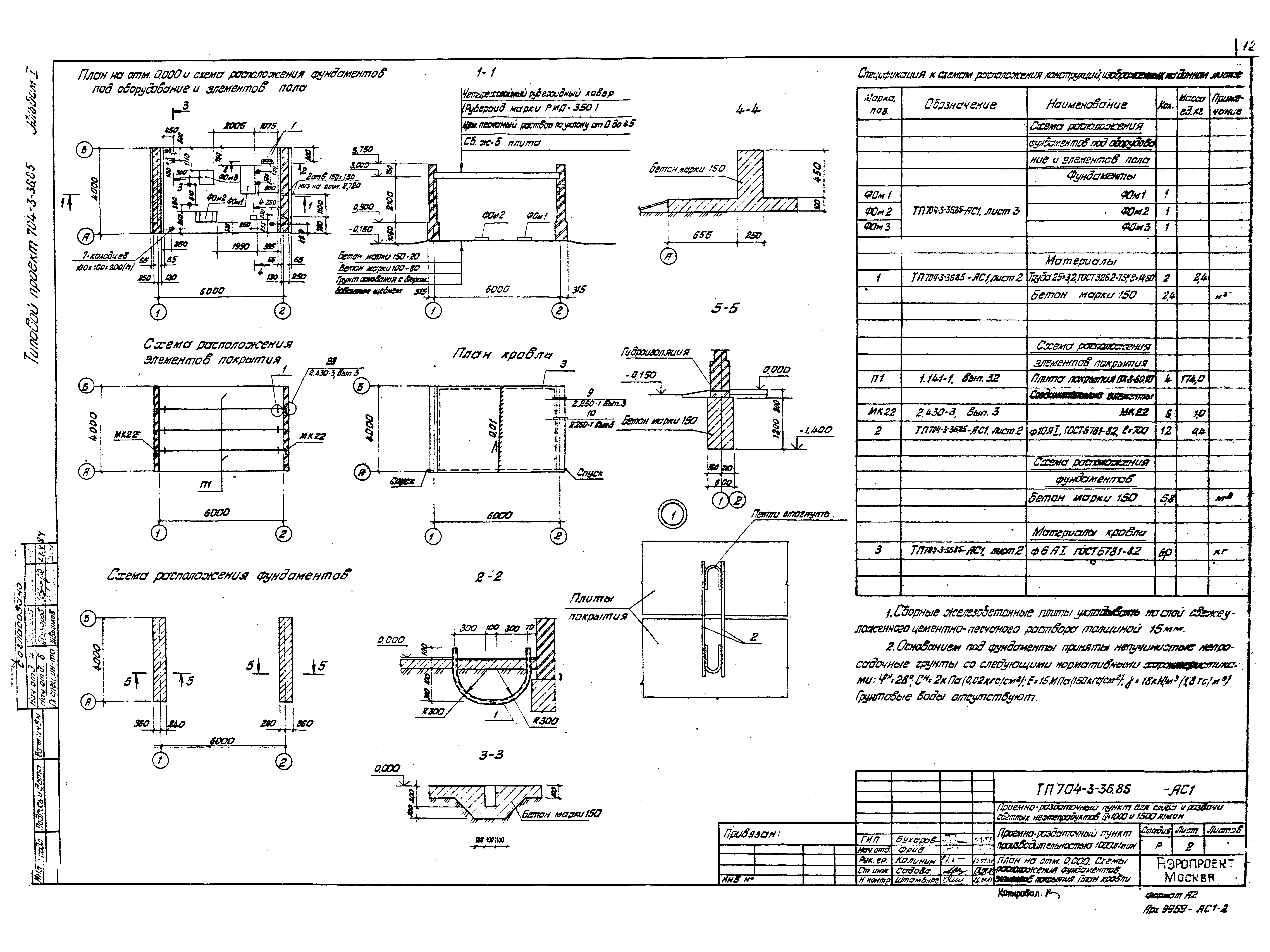
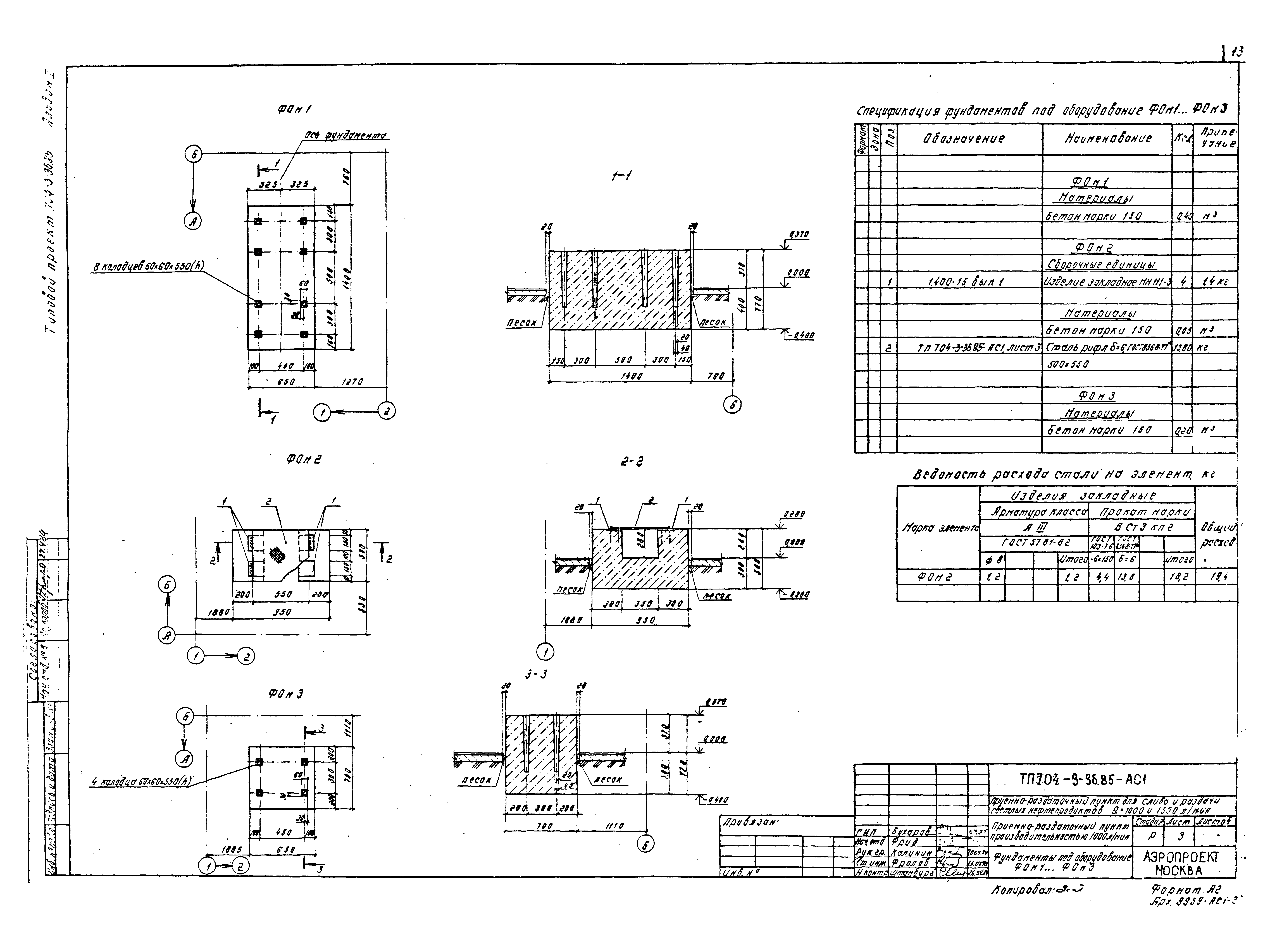
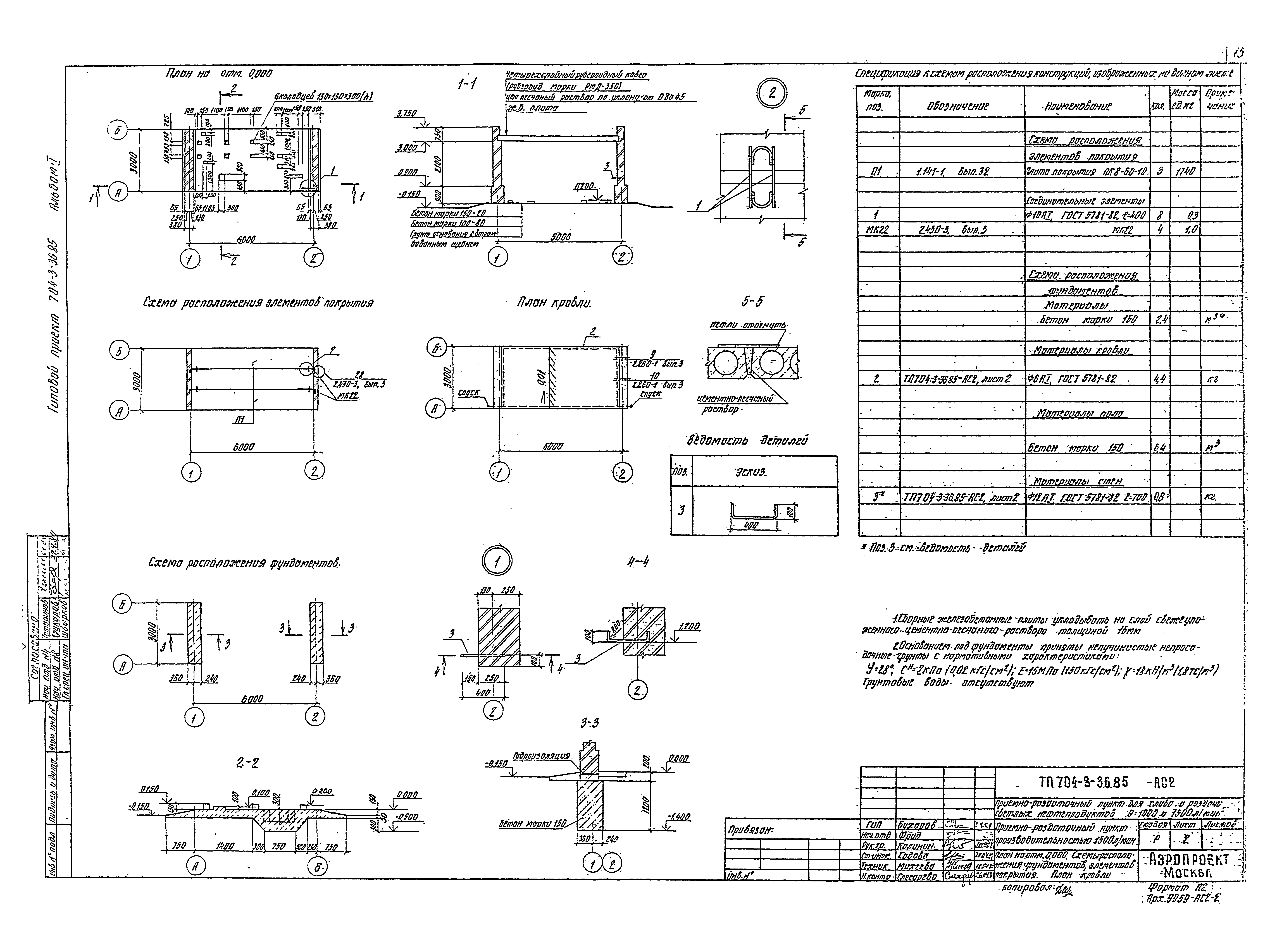
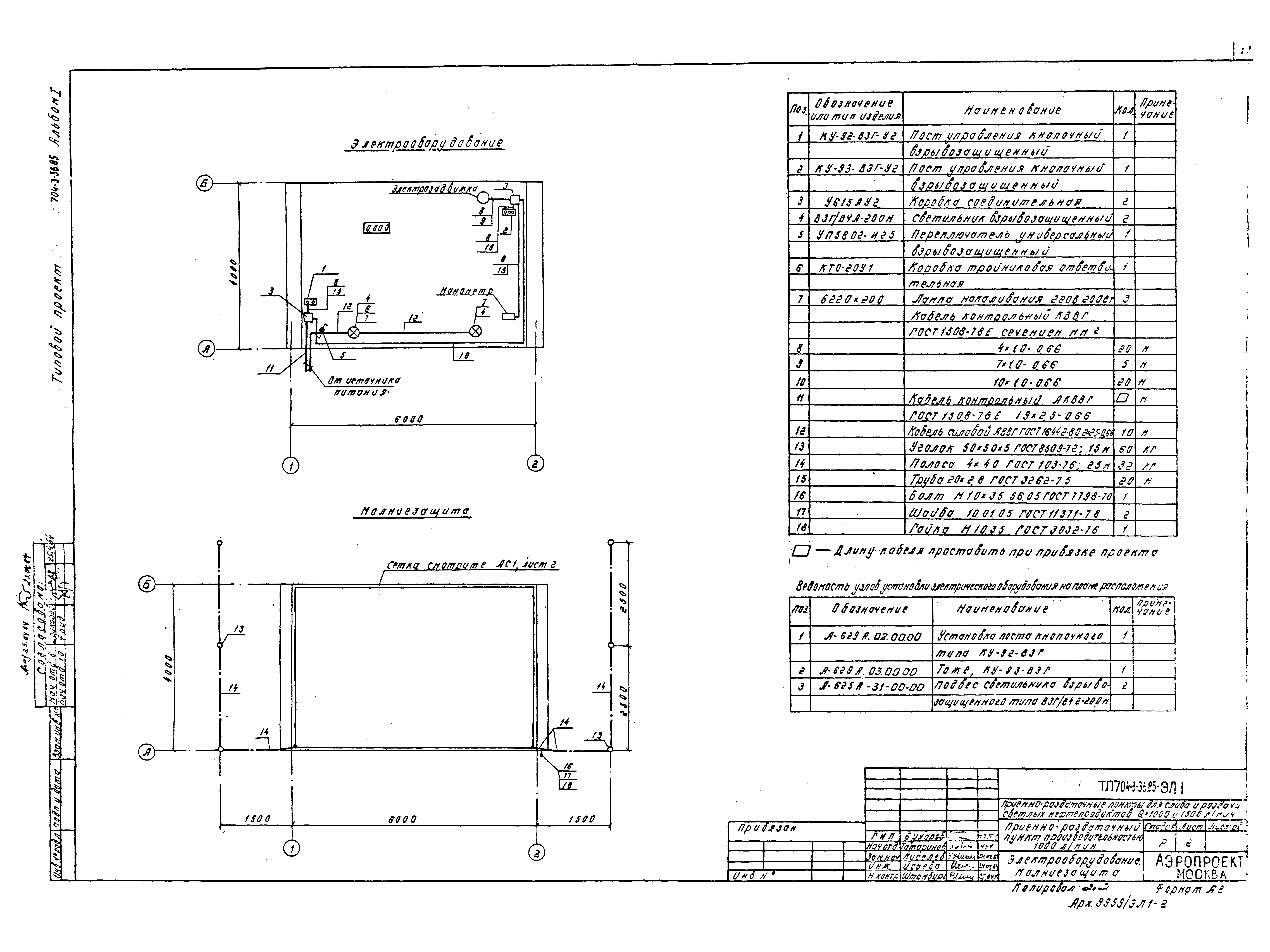
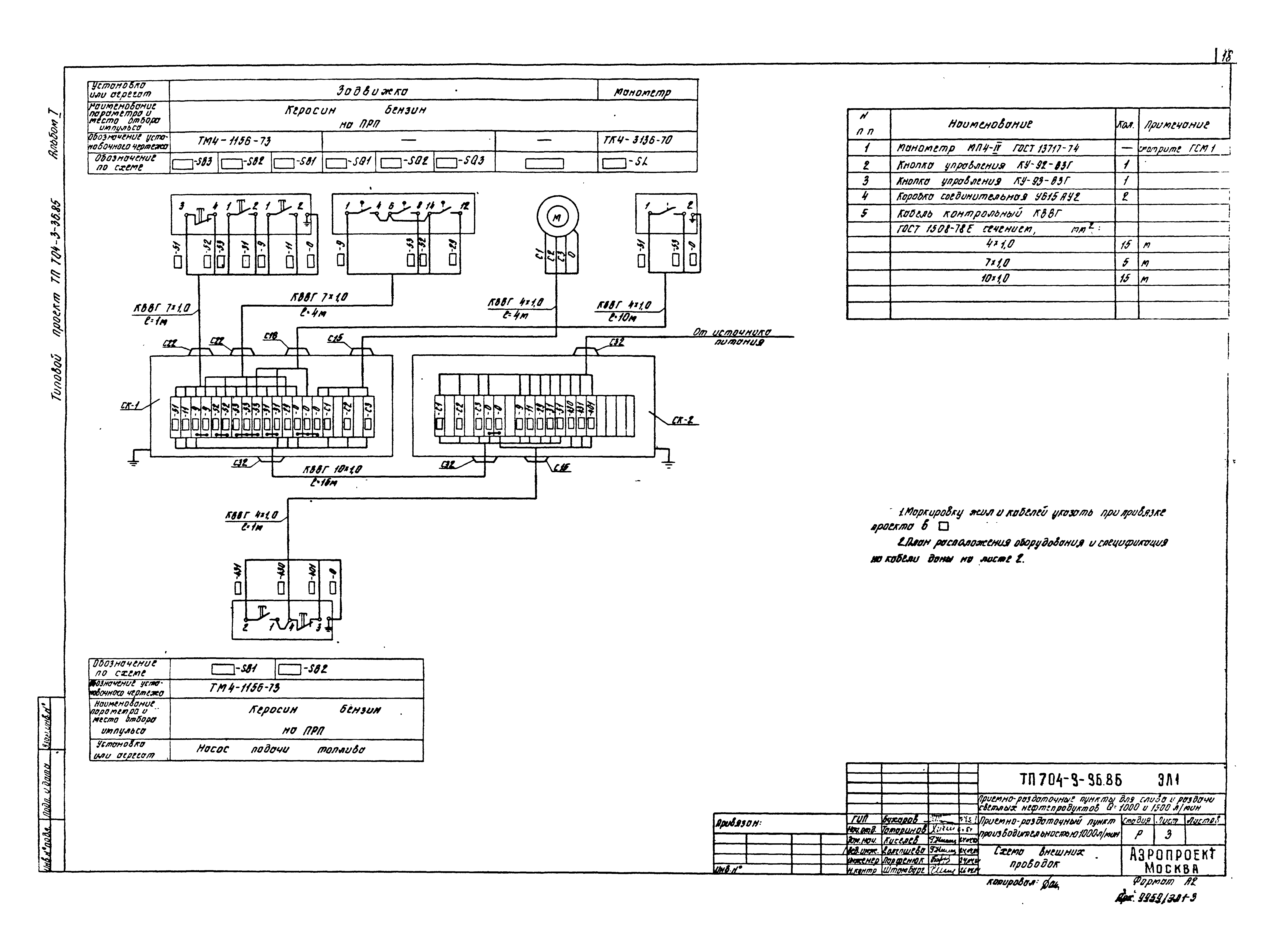
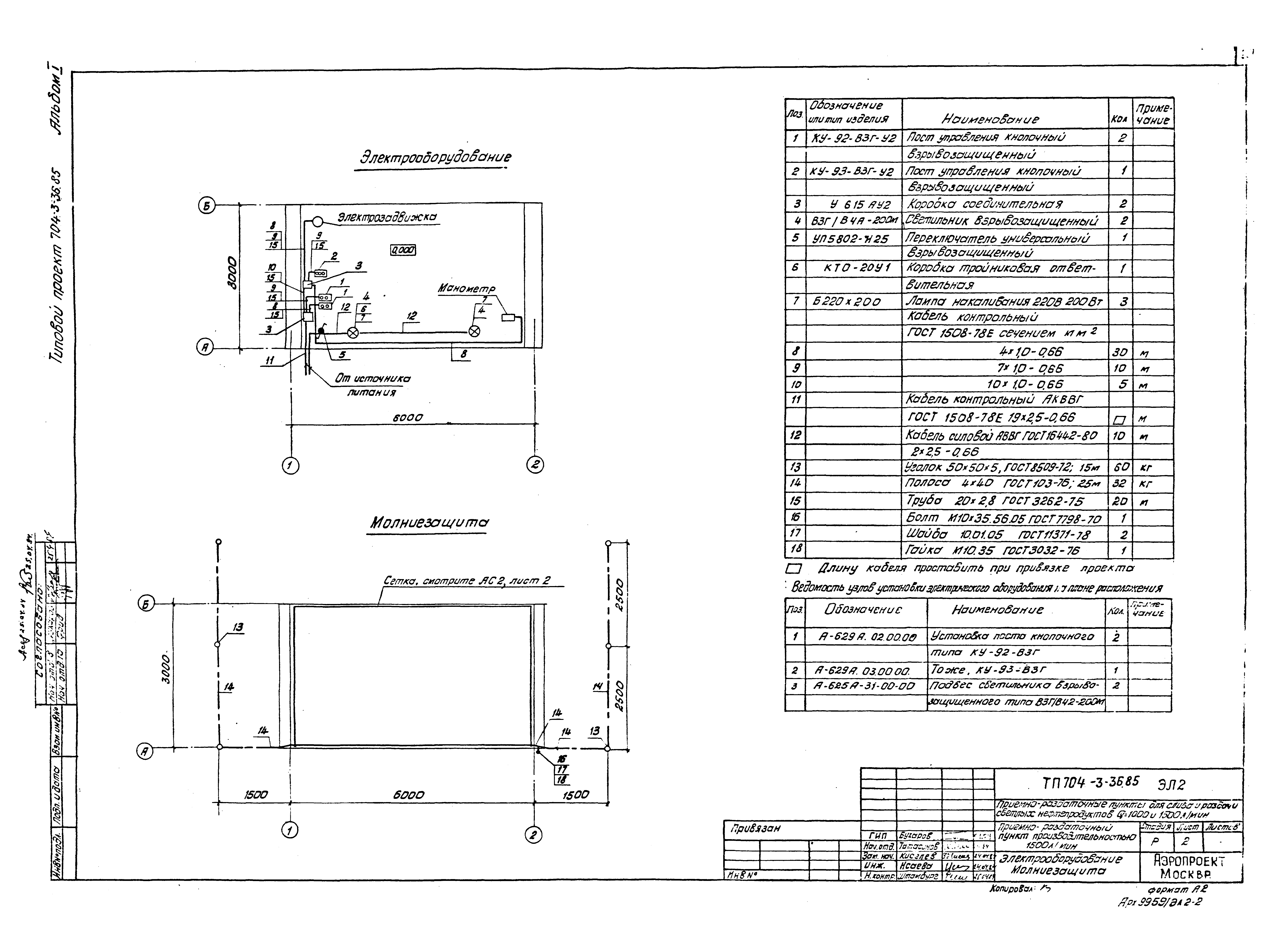
Скачать Типовой проект 704-3-36.85 Альбом I. Общая пояснительная записка. Авиатопливоснабжение. Архитектурно-строительные решения. Электротехнический раздел проектаДата актуализации: 01.01.2021
|
| Обозначение: | Типовой проект 704-3-36.85 |
| Обозначение англ: | 704-3-36.85 |
| Статус: | не определен законодательством |
| Название рус.: | Альбом I. Общая пояснительная записка. Авиатопливоснабжение. Архитектурно-строительные решения. Электротехнический раздел проекта |
| Дата добавления в базу: | 01.09.2013 |
| Дата актуализации: | 01.01.2021 |
| Дата введения: | 25.07.1985 |
| Дата окончания срока действия: | 30.06.2003 |
| Разработан: | Аэропроект |
| Утверждён: | 26.05.1984 Министерство гражданской авиации СССР (USSR Ministry of Civil Aviation 22) |





















