Скачать Конвейеры ленточные стационарные общего назначения с резинотканевой лентой В = 400, 500, 650, 800, 1000, 1200, 1400, 1600, 2000 мм. Каталог. Часть I. ОборудованиеДата актуализации: 01.01.2021
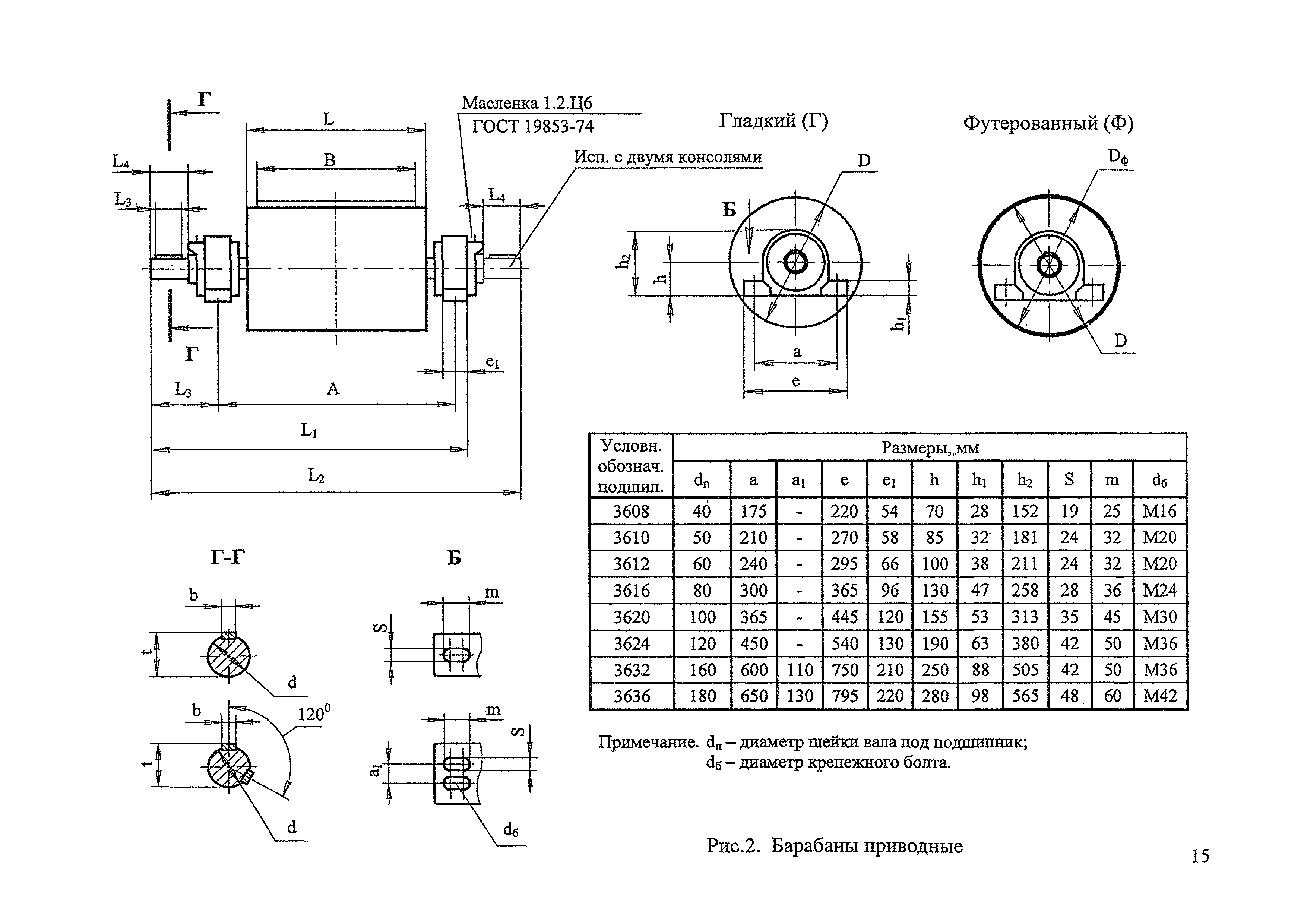
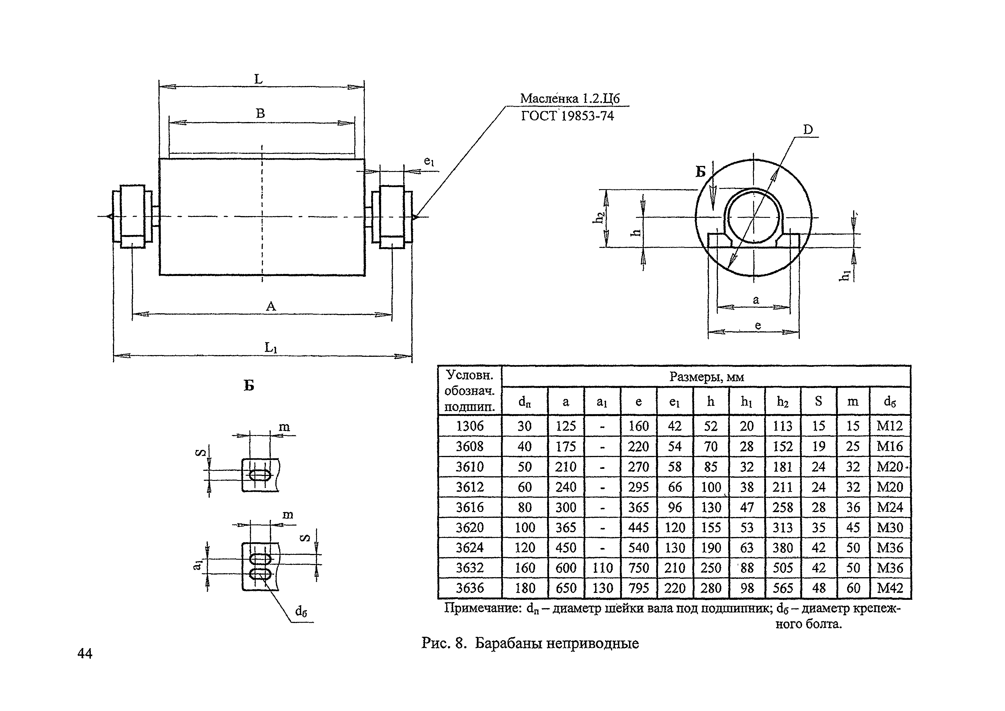
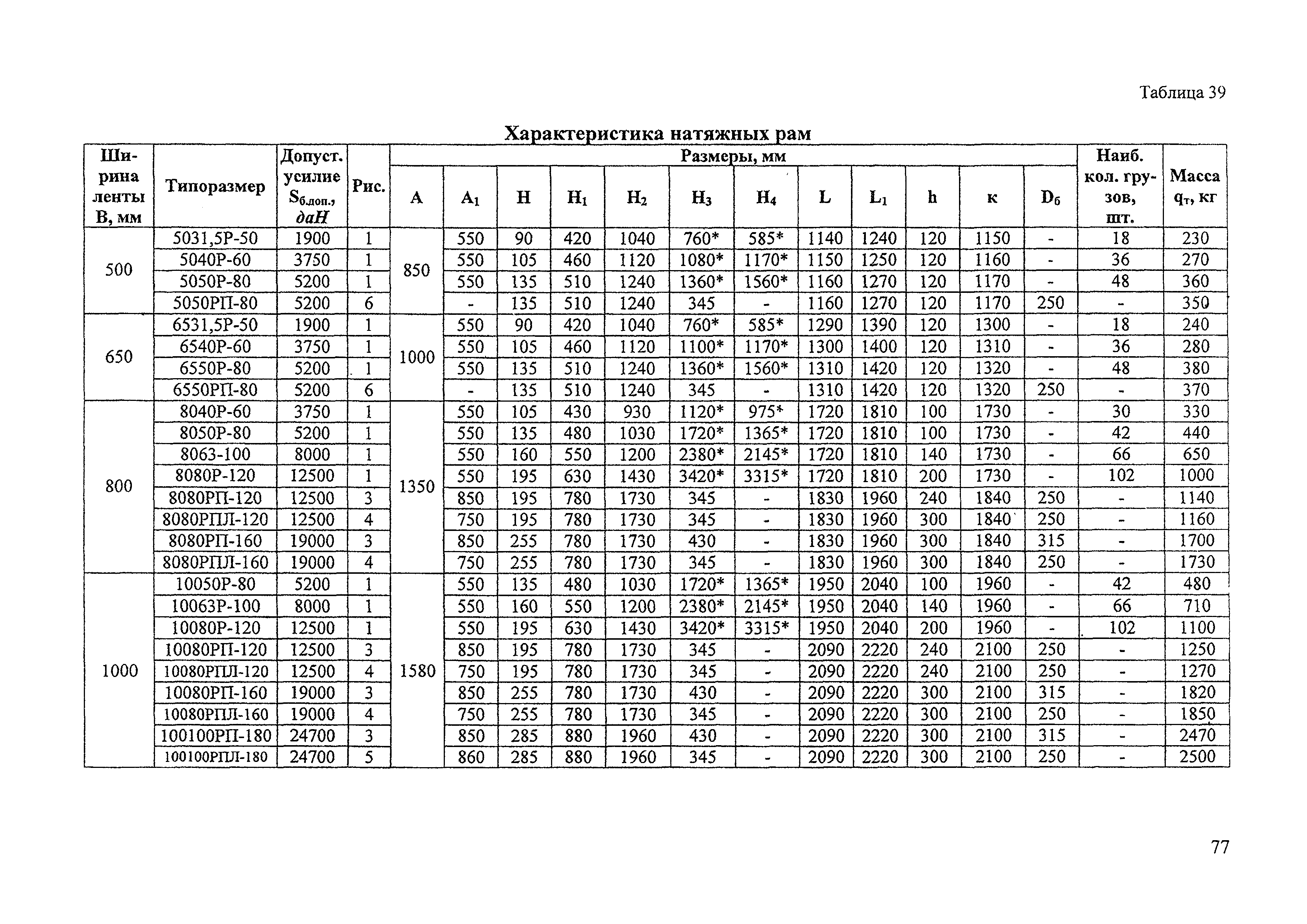
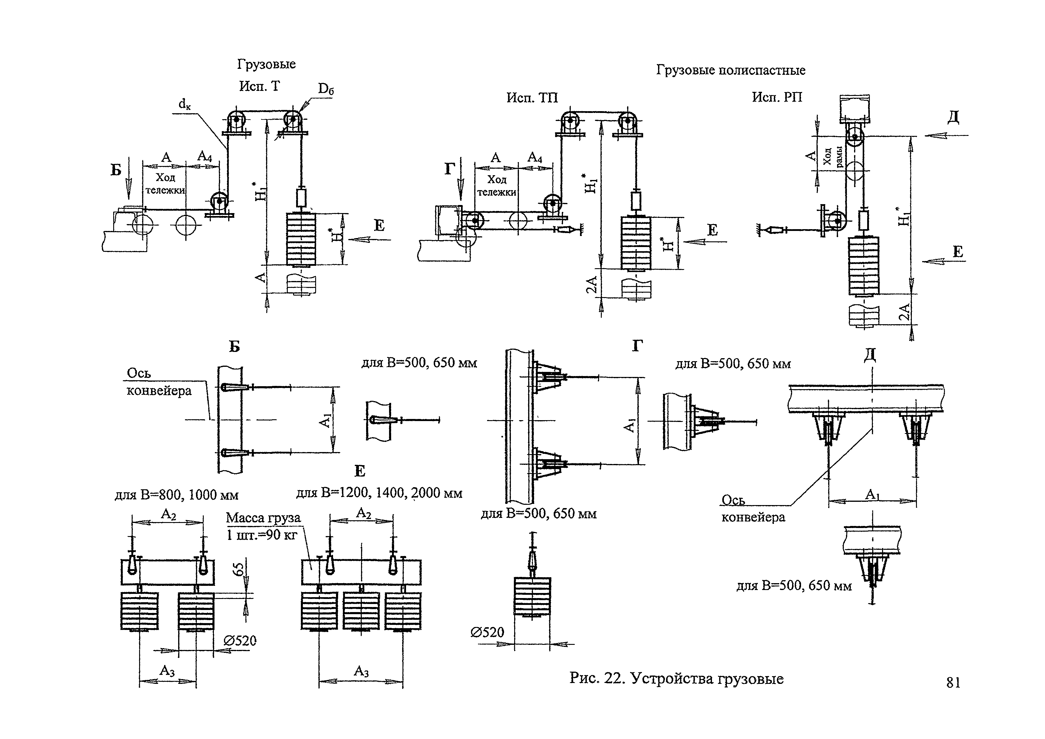
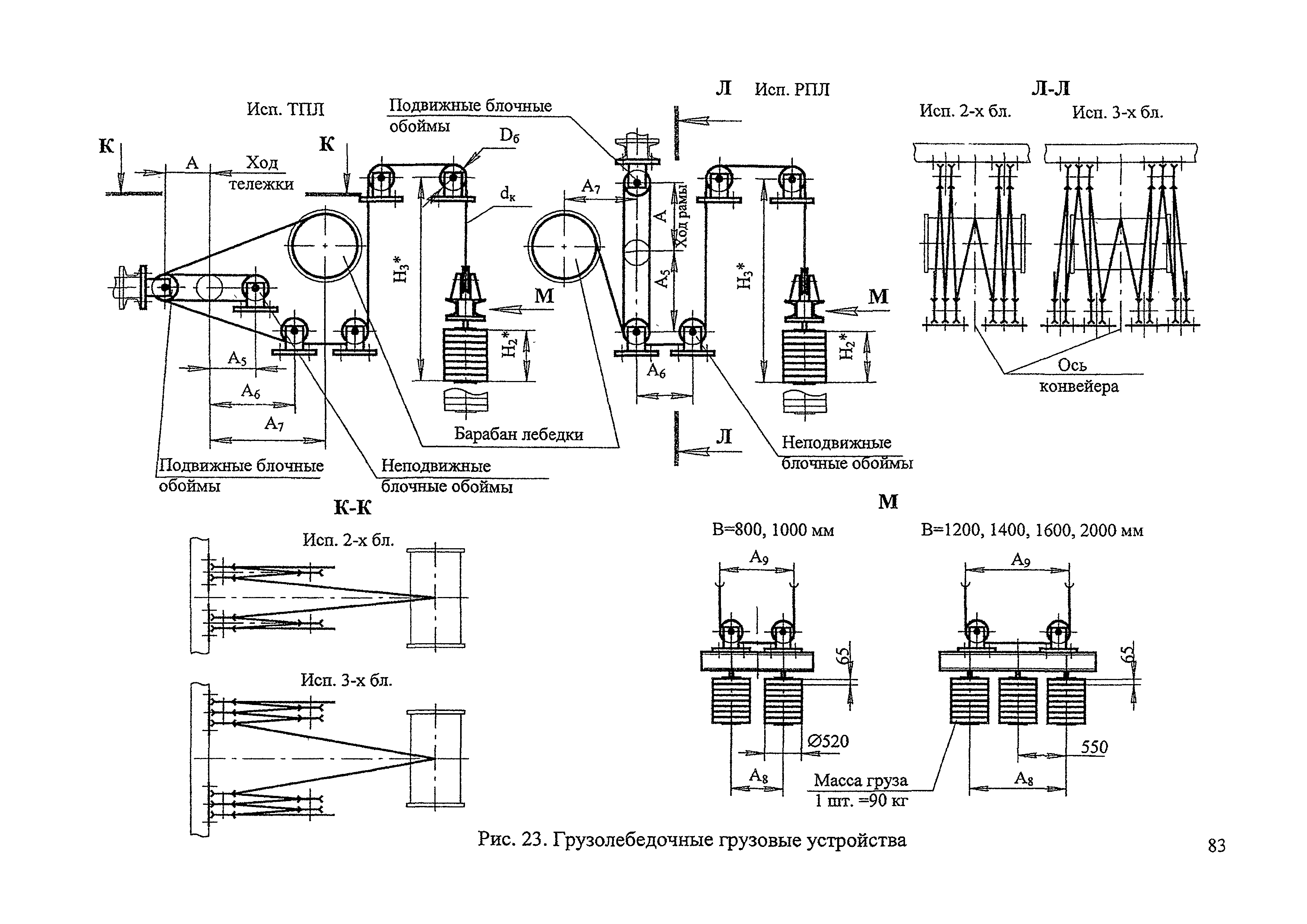
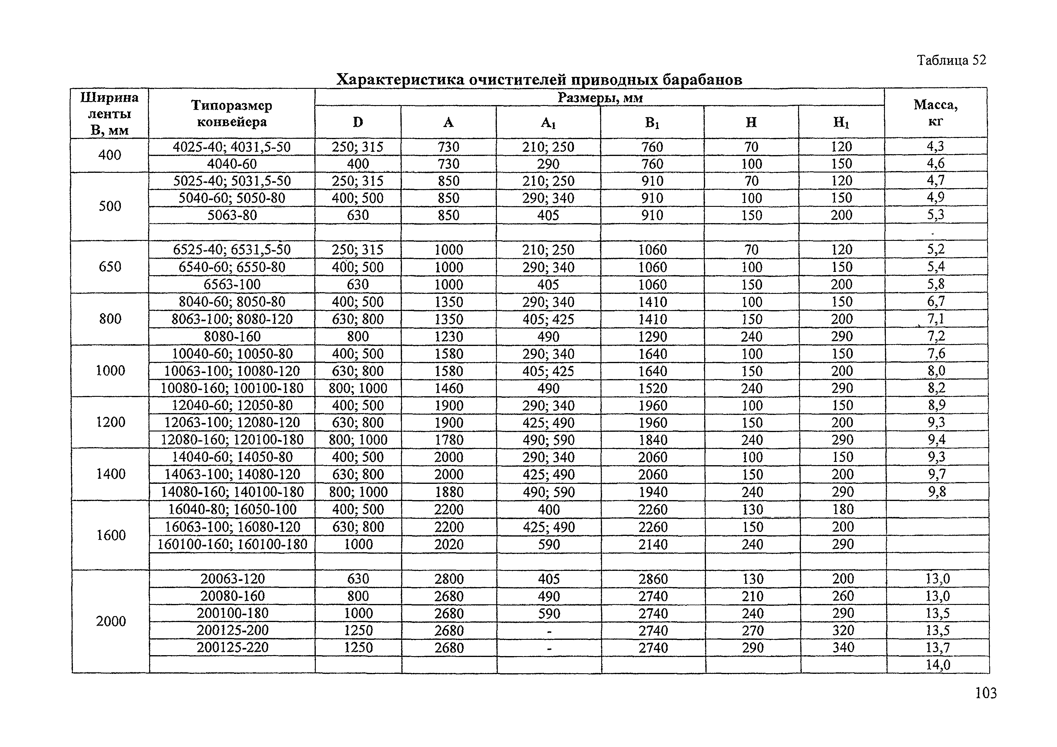
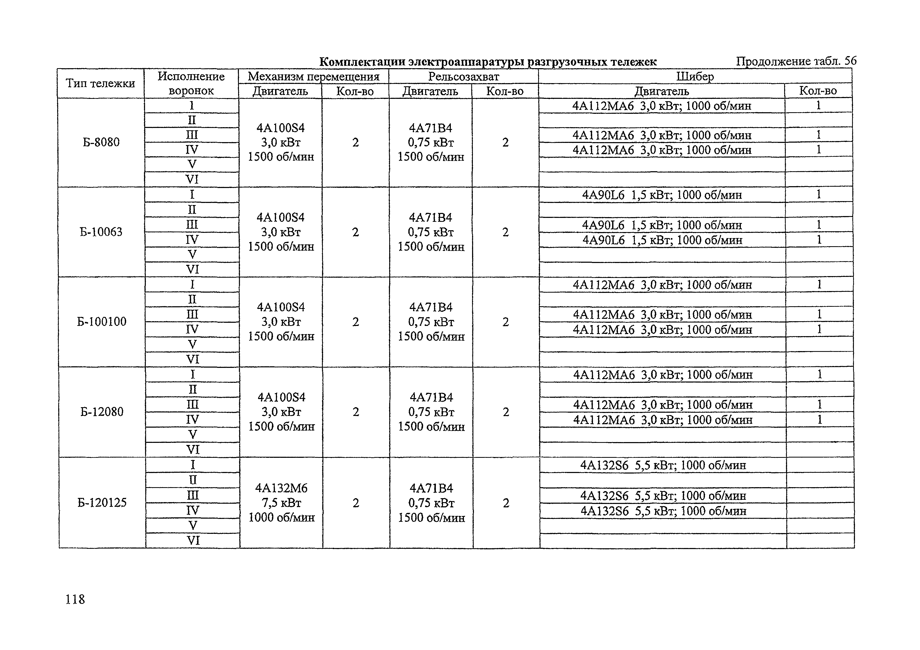
Конвейеры ленточные стационарные общего назначения с резинотканевой лентой В = 400, 500, 650, 800, 1000, 1200, 1400, 1600, 2000 мм. Каталог. Часть I. Оборудование| Статус: | справочные материалы, мп, тпр | | Название рус.: | Конвейеры ленточные стационарные общего назначения с резинотканевой лентой В = 400, 500, 650, 800, 1000, 1200, 1400, 1600, 2000 мм. Каталог. Часть I. Оборудование | | Дата добавления в базу: | 01.09.2013 | | Дата актуализации: | 01.01.2021 | | Оглавление: | Предисловие 1. Общие сведения о ленточных конвейерах и их проектировании 2. Выбор схемы трассы и расположение основного оборудования 3. Методы расчета ленточных конвейеров 4. Выбор скорости и ширины ленты 5. Приближенный метод расчета ленточных конвейеров 5.1. Расчет привода Барабаны приводные Приводные механизмы Муфты тихоходные 5.2. Выбор ленты Характеристика конвейерных лент по ГОСТ 20-85 5.3 Выбор неприводных барабанов 5.4 Выбор роликоопор и роликов Роликоопоры верхние желобчатые Роликоопоры верхние желобчатые амортизирующие Роликоопоры верхние желобчатые центрирующие Роликоопоры верхние прямые Роликоопоры нижние прямые Ролики дефлекторные верхние для желобчатой ленты Ролики дефлекторные нижние для плоской ленты 5.5 Выбор натяжного устройства Устройства натяжные винтовые Устройства натяжные грузовые 6. Уточненный метод расчета ленточных конвейеров 6.1. Уточненный тяговый расчет 6.2. Расчет и выбор основного оборудования Приводной барабан Неприводные барабаны Приводной механизм Выбор ленты Проверка и корректировка радиуса кривизньх трассы конвейера R2 Натяжное устройство 7. Очистные устройства 7.1. Устройства для очистки ленты 7.2. Устройства для очистки барабанов 8. Средства автоматизации и безопасности ленточных конвейеров Устройства выключающие рычажные Устройства выключающие канатные Устройства от продольного пореза ленты 9. Устройства для промежуточной разгрузки конвейеров 10. Металлоконструкции ленточных конвейеров 10.1. Общие сведения о металлоконструкциях 10.2. Опорные рамы приводных головных барабанов 10.3. Опорные конструкции средней части конвейера 10.4. Опорные конструкции натяжных устройств 10.5. Ограждения и укрытия конвейеров Приложение. Комплектация приводов ОАО "Белохолувицкий завод" | | Разработан: | ОАО Белохолуницкий завод
| | Нормативные ссылки: | |
                                                                                                                                       
|